Komplett salgsoppgave

Osloveien 26 A, B og C

12 000 000 kr
384 m²
12 soverom
Velkommen til Osloveien 26A, B og C - og denne innholdsrike flermannsboligen beliggende i et attraktivt område på Marienborg/Ila!
Velkommen til Osloveien 26A, B og C - og denne innholdsrike flermannsboligen beliggende i et attraktivt område på Marienborg/Ila!
Kart
Redesign på Hjem.no
Del
Jan Vidar Lysbakken
Presenteres av
Jan Vidar Lysbakken
Marienborg/Ila
Innholdsrik flermannsbolig i attraktivt område | Tre leiligheter og en hybelleilighet | Leieinntekter på 70.000,- pr mnd

Unngå doble boligrenter

Vi tilbyr gunstig forsikring.
Sjekk estimert lånekostnad

    Pris

  • Prisantydning
    12 000 000 kr
  • Omkostninger
    320 990 kr
  • Totalpris
    12 320 990 kr

    Areal

  • BRUKSAREAL
    412 m²
  • BRA-I (internt bruksareal)
    384 m²
  • BRA-E (eksternt bruksareal)
    28 m²

    Nøkkelinfo

  • Etasje
    4
  • Byggeår
    1911
  • Soverom
    12 soverom
  • Bad
    4 bad
  • Tomteareal
    498 m² (eiet)
  • Type
    Flermannsbolig
  • Eierform
    Eiet
  • Fasiliteter
    Garasje/P-plass
  • Energimerke
    Oransje G

Visning

For å delta på visning, ber vi om at du melder deg på. Da sikrer vi at du får nødvendig informasjon og at det er satt av tilstrekkelig med tid. Kontakt megler dersom annet tidspunkt ønskes. Husk å lese salgsoppgaven før visningen, så du stiller forberedt.
Ønsker du kun å bli holdt orientert, kan du fra eiendommens hjemmeside få varsel om solgtpris, eller kontakte megler.
Lurer du på noe?

Beskrivelse

Kort om eiendommen

Velkommen til Osloveien 26A, B og C - en svært innholdsrik og oppgradert flermannsbolig beliggende i et attraktivt område på Marienborg/Ila! Her bor man med kort vei til en rekke servicetilbud, gode kollektivmuligheter og flotte turmuligheter. I dag er boligen leid ut i sin helhet fordelt på tre boenheter og en hybel, og har leieinntekter på ca. kr 70.000,- per måned. Verdt å nevne:
  • Godt tilrettelagt for utleie med leiligheter som passer både par, studenter og familier
  • Gode leieinntekter, med potensiale på hele kr 840.000,- årlig
  • Kjeller med BRA på hele 111 kvm og rikelig med potensiale
  • Kort vei til en rekke av Trondheims anerkjente studiesteder
  • Sentrumsnær beliggenhet med Trondheim torg kun 20 minutter gange fra boligen
  • Nydelig utsikt over byen og Nidelva
  • Innhold og byggemåte

    Eiendommen

    Osloveien 26 A, B og C, 7017 TRONDHEIM
    Kommunenummer 5001, gårdsnummer 421, bruksnummer 335

    Innhold

    Totalt
    BRA: 412 kvm
    BRA-i: 384 kvm
    BRA-e: 28 kvm
    TBA: 0 kvm
    Kjeller
    BRA: 111 kvm
    BRA-i: 111 kvm. Gang, boder og verkstedrom.
    BRA-e: 0 kvm
    TBA: 0 kvm
    1. etasje
    BRA: 122 kvm
    BRA-i: 122 kvm. Entré, trappegang, gang, stue, kjøkken, bad, bod, toalettrom og seks soverom.
    BRA-e: 0 kvm
    TBA: 0 kvm
    2. etasje
    BRA: 115 kvm
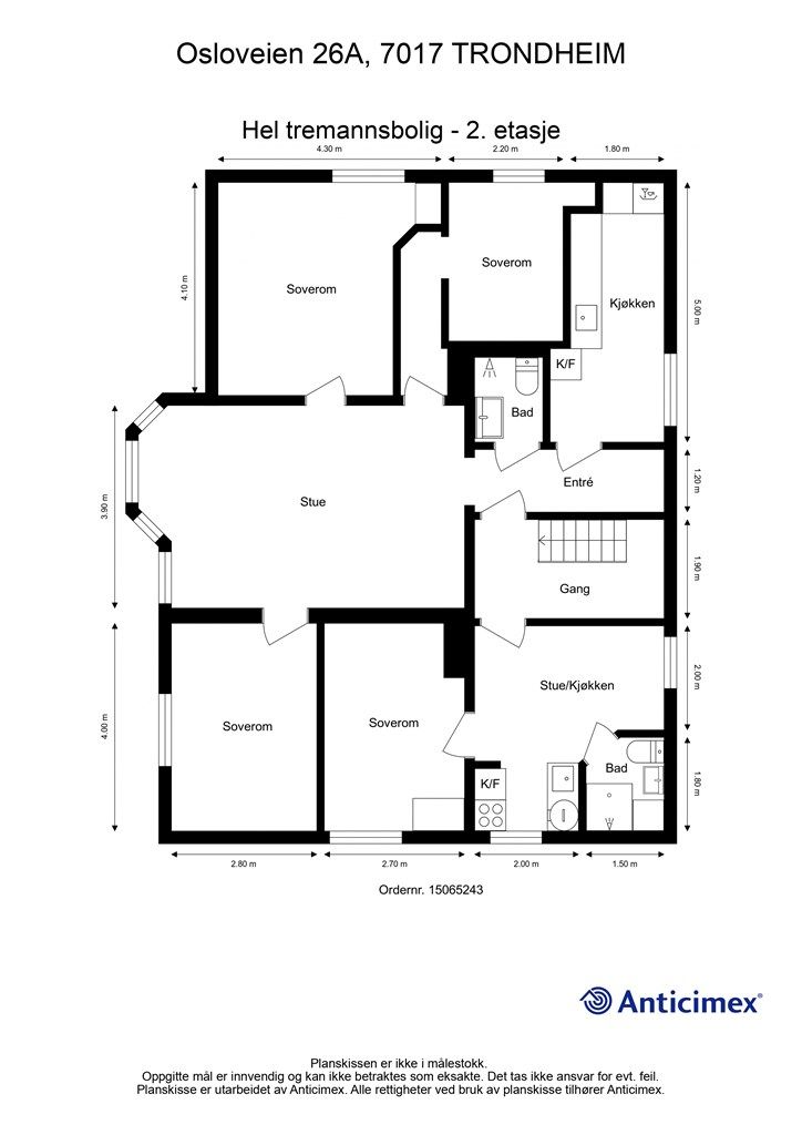
    BRA-i: 155 kvm. Trappegang, entré , to kjøkken, to bad, fire soverom og stue.
    BRA-e: 0 kvm
    TBA: 0 kvm
    Loftsetasje
    BRA: 36 kvm
    BRA-i: 36 kvm. Stue/kjøkken, bad og to soverom.
    BRA-e: 0 kvm
    TBA: 0 kvm
    Garasje
    BRA: 28 kvm
    BRA-i: 0 kvm
    BRA-e: 28 kvm. Garasje.
    TBA: 0 kvm
    Loftsetasjen har et totalt gulvareal (GUA) på 66 kvm, men grunnet skråtak/lav takhøyde er kun 36 kvm av arealet måleverdig som bruksareal. De delene av arealene som har lav himlingshøyde (ALH) utgjør 30 kvm.
    Vedlagte plantegninger er ikke målbare. De oppgitte arealer er hentet fra rapport med befaringsdato 02.01.2025 utført av Anticimex AS avd. Trondheim. Arealene er beregnet og rom er definert etter dagens faktiske bruk, uavhengig av hva som er godkjent av bygningsmyndighetene.

    Byggemåte

    Selger har fått utarbeidet en tilstandsrapport, dvs. en teknisk gjennomgang av boligen hvor eventuelle avvik, risiko for kjøper og prisoverslag for hva som bør gjøres av oppgradering, er skissert. Se særskilt TGIU (tilstandsgrad ikke undersøkt), samt TG2 og TG3 som viser hva som er boligens normale slitasje, alder og type, hva som er avvik fra dette og hva som bør/må utbedres. Rapporten og selgers egenerklæring er en del av salgsoppgaven og må leses nøye før bud inngis. Kjøper overtar ansvaret for de opplysninger som fremkommer av salgsdokumentasjonen, og kan ikke gjøre gjeldende som mangel noe som burde vært kjent eller som ikke kan anses å ha betydning for avtalen.  
    Bygningen er iht. tilstandsrapporten oppført med grunnmur av teglstein. Fundamentert på ukjent byggegrunn. Bygget er oppført med støpt gulv mot grunn. Yttervegger av trekonstruksjoner. Fasaden er kledd med stående trekledning. Etasjeskillere av trekonstruksjoner. Valmtak i trekonstruksjoner (ikke besiktiget). Yttertak er utvendig tekket med metallplater. Entrédør med sikkerhetslås og glassfelter. Vinduer og balkongdør med karmer av tre, og to-lags glass. Les forøvrig mer om byggemåte og den tekniske tilstanden i rapporten.

    Standard

    55% har fått TG 1: I orden
    32% har fått TG 2: Alder, slitasje, skader mv.
    9% har fått TG 3: Strakstiltak nødvendig
    4% har fått TGIU: Ikke undersøkt
    Rapporten fra takstmann er en teknisk gjennomgang av boligen og angir eventuelle byggetekniske avvik. Sammendraget under beskriver avvik ved boligen som har fått tilstandsgrad TGIU, TG2 og TG3.
    Tilstandsgrad 2:
    Våtrom - loft:
    - Helhetsvurdering: Det er valgt å vurdere våtrommet (og tilhørende bygningsdeler) med en samlet helhetsvurdering. Følgende hovedmomenter er lagt til grunn for vurderingen: Baderomsplater er ikke montert iht. monteringsanvisning. Det vurderes at overgangene mellom platene ikke er tettet med tettemasse. Det vurderes at overgangene i innerhjørnet ikke er tettet på anbefalt måte. Det er ikke benyttet tettesjikt/membran i våtsoner(pipe), noe som gjør at gjeldende krav for våtrom ikke er oppfylt. Det opplyses om at det er utført arbeider på våtrommet gjennom egeninnsats, med den risiko dette innebærer. Basert på alle ovennevnte forhold bør det gjennomføres jevnlig ettersyn av våtrommet, slik at nødvendige tiltak kan iverksettes. Eksakt tilstand på bygningsdeler som ikke lar seg inspisere er ikke kartlagt. Våtrommets eventuelle restlevetid er ikke kjent, og det må påregnes tiltak i fremtiden. Til informasjon: Det er foretatt hulltaking og utført fuktmåling med egnet instrument i tilstøtende rom til våtsone. Målingen gir kun et øyeblikksbilde av forholdene og kan for eksempel endre seg med årstider, fukt- og temperaturforhold. Det ble ikke registrert forhøyede verdier eller andre avvik. Relativ fuktighet ble målt til 50,1 prosent, ved 13,6 celsius.
    Våtrom - liten leilighet 2.etasje:
    - Overflater vegger: Baderomsplater er ikke montert iht. monteringsanvisning. Det kan ikke verifiseres at overgangene er tettet med tettemasse. Redusert levetid eller svekket tettefunksjon kan ikke utelukkes.
    - Fallforhold (gulv): Det er ikke mulig å måle fallet i sluksonen grunnet plassering av dusjkabinett. Det er ikke kjent om fallforholdet fører til tilfredsstillende avrenning av bruksvannet hvis kabinettet fjernes. Ytterligere undersøkelser anbefales slik at tiltak kan iverksettes ved behov.
    - Membran, tettesjikt og overgang til sluk.: Grunnet plassering av dusjkabinett er det ikke mulig å foreta undersøkelse av sluket. Utførelse vedrørende tettedetaljer /tilstand er ukjent. Ytterligere undersøkelser anbefales.
    - Slukets tilkomstmulighet for rengjøring: Sluk under dusjkabinett er ikke lett tilgjengelig for rengjøring. Forholdet kan medføre at ytterligere tiltak blir nødvendig når sluket skal renses.
    - Annet: Det foreligger lite informasjon om våtrommet generelt og det opplyses om at egeninnsats er benyttet, med den risiko dette innebærer.
    Våtrom - stor leilighet 2. etasje:
    - Membran, tettesjikt og overgang til sluk.: Overgang mellom sluk og membran er uoversiktlig. Det kan derfor ikke verifiseres at utførelsen er korrekt, eller at lekkasjesikkerheten er ivaretatt. Ytterligere undersøkelser anbefales slik at tilstanden kan kartlegges og nødvendige tiltak kan iverksettes.
    - Ventilasjon: Våtrommet har kun naturlig ventilasjon. Naturlig ventilasjon gir som regel mindre effektiv luftutskifting enn mekanisk ventilasjon, noe som kan medføre økt fuktpåkjenning i våtrommet. Tiltak må påregnes.
    Selger opplyser at lufting på bad er god da det er konstant trekk ut, og bemerker at elektrisk vifte kan gjøre det verre.
    - Annet: Det foreligger lite informasjon om våtrommet generelt og det opplyses om at egeninnsats er benyttet, med den risiko dette innebærer.
    Våtrom - 1 etasje:
    - Fallforhold (gulv): Det er ikke mulig å måle fallet i sluksonen grunnet plassering av dusjkabinett. Det er ikke kjent om fallforholdet fører til tilfredsstillende avrenning av bruksvannet hvis kabinettet fjernes. Ytterligere undersøkelser anbefales slik at tiltak kan iverksettes ved behov.
    - Membran, tettesjikt og overgang til sluk.: Grunnet plassering av dusjkabinett er det ikke mulig å foreta undersøkelse av sluket. Utførelse vedrørende tettedetaljer /tilstand er ukjent. Ytterligere undersøkelser anbefales.
    - Sanitærutstyr / innredning: Trykknapp til toalettet er defekt/skadet. Eksakt årsak er ukjent. Tiltak må påregnes.
    - Annet: Det foreligger lite informasjon om våtrommet generelt og det opplyses om at egeninnsats er benyttet, med den risiko dette innebærer.
    Selger opplyser at det er brukt fugemasse i skjøtene på baderomsplatene på alle badene.
    Kjøkken - stor leilighet 2 etasje:
    - Overflater gulv: Gulvets overflatemateriale har enkelte synlige skader. Eksakt årsak er ukjent. Tiltak kan iverksettes ved behov.
    Kjøkken - 1 etasje:
    - Overflater gulv: Gulvets overflatemateriale har enkelte synlige skader. Eksakt årsak er ukjent. Tiltak kan iverksettes ved behov. Det er stedvis knirk i gulvet. Eksakt årsak er ukjent. Tiltak kan iverksettes ved behov.
    - Innredning: Kjøkkeninnredningen bærer preg av slitasje og enkelte skader. Jevnlig ettersyn anbefales slik at tiltak kan iverksettes ved behov. Tegn til svelleskader på benkeplate. Vannsprut vurderes som en sannsynlig årsak. Jevnlig ettersyn anbefales slik at tiltak kan iverksettes ved behov.
    Toalettrom (Ikke våtrom) - 1. etasje:
    - Ventilasjon: Ingen, eller lite ventilasjon av rommet. Forholdet kan medføre økt fuktbelastning og redusert luftkvalitet. Det bør etableres en permanent ventilasjonsløsning.
    - Sanitærutstyr / innredning: Trykknapp til toalettet er defekt/skadet. Eksakt årsak er ukjent. Tiltak må påregnes.
    Øvrige rom - 1 etasje:
    - Overflater gulv: Gulvets overflatemateriale har enkelte synlige skader. Eksakt årsak er ukjent. Tiltak kan iverksettes ved behov. Det er stedvis knirk i gulvet. Eksakt årsak er ukjent. Tiltak kan iverksettes ved behov. Observasjonene er foretatt i en eldre bygning og bør ses i den sammenheng.
    Øvrige rom - stor leilighet 2 etasje:
    - Overflater gulv: Det registreres stedvise gliper i gulvets overflatemateriale. Eksakt årsak er ukjent. Jevnlig ettersyn anbefales slik at tiltak kan iverksettes ved behov. Gulvets overflatemateriale har tegn til svelleskader. Eksakt årsak er ukjent. Jevnlig ettersyn anbefales slik at tiltak kan iverksettes ved behov.
    - Ventilasjon: Lite ventilasjon i etasjen. Det er ukjent om ventilasjon/tilluft er tilstrekkelig. Ventilering ved åpning av vinduer bør påregnes. Videre tiltak bør iverksettes ved behov.
    Loft - innredet:
    - Konstruksjonsoppbygging: Loftet er bruksendret fra råloft til beboelsesrom. Konstruksjonen er lukket, og det er ikke kjent hvordan oppbyggingen er utført. Erfaringsmessig betraktes slike konstruksjoner som risikokonstruksjoner blant annet med tanke på fukt-/kondensproblematikk. Det er ikke observert skader eller symptomer på skader, men skader kan ikke utelukkes. Oppfølging med jevnlig ettersyn anbefales slik at tiltak kan iverksettes ved behov. TG2 er valgt for å belyse risiko.
    Selger opplyser: - Risiko for kondens i loftskonstruksjonen er redusert fordi det er brukt trefiberisolasjon og dampbrems (ikke dampsperre) Og begge kan lettere avgi fuktighet.
    - Ventilasjon: Lite ventilasjon i etasjen. Det er ukjent om ventilasjon/tilluft er tilstrekkelig. Ventilering ved åpning av vinduer bør påregnes. Videre tiltak bør iverksettes ved behov.
    Selger opplyser at det er lufteventiler i 4 vinduer på loftet.
    Ildsteder / skorsteiner innvendig. (Omfatter ikke funksjonalitet og innvendig pipeløp):
    - Skorsteiner inne i boligen: Skorstein har ikke fire frie sider. Det skal være mulig å påse at skorsteinens ytterflater er uten sprekkdannelser med tanke på spredning av branngasser. Tiltak og ytterligere undersøkelser bør påregnes vis det skal etableres nytt ilsted.
    Innvendige trapper:
    - Innvendige trapper: Trappen har ikke håndløper på begge sider. Åpninger i rekkverket på mer enn 0,10 meter. Trappen har stedvis fri ganghøyde lavere enn 2,0 m. Inntrinn er mindre enn 0,25 meter. Trappens håndløper er lavere enn 0,8 meter. Trappen vurderes som bratt, med den risiko dette innebærer. Basert på ovennevnte forhold oppfyller ikke trappen dagens krav til sikkerhet. Tilstandsgrad settes iht. NS3600. Om trappen vil oppfylle kravene som var gjeldene på oppføringstidspunktet eller ikke, er ikke videre undersøkt.
    Etasjeskiller - 1 etasje:
    - Skjevhetsmåling: Det er registrert skjevheter i stue, hvor forskjellen mellom høyeste og laveste punkt er målt til 28 mm. Eksakt årsak til skjevhetene er ikke kjent.
    Tekniske anlegg, VVS anlegg (Sjekkpunkter utover det som er inkludert i andre rom):
    - Avløpsrør. (Sjekkpunkter utover det som er inkludert i andre rom): Avløpsrør av støpejern (i kjeller) er vurdert til å ha en alder som tilsier at anbefalt brukstid er passert. På bakgrunn av alderen er det grunn til å varsle om risiko for skjulte avvik, svekket funksjon, usikker restlevetid eller lignende forhold som utvikles over tid. Det er ikke mulig å verifisere om avløpssystemet er luftet over tak eller ikke. Ytterligere undersøkelser anbefales.
    - Varmtvannsbereder (Sjekkpunkter utover det som er inkludert i andre rom): På bakgrunn av berederens(over 20år) alder er det grunn til å varsle om usikker restlevetid eller andre forhold som utvikles over tid. Det kan ikke utelukkes behov for reparasjon/utskiftning. Jevnlig ettersyn anbefales slik at eventuelle tiltak kan iverksettes ved behov.
    - Andre VVS-tekniske anlegg (eksempelvis luft/luft varmepumpe): Det er ikke kjent når det sist ble foretatt service på varmepumpe.
    Elektrisk anlegg:
    - Forenklet vurdering av det elektriske anlegget: Varmtvannsbereder har ikke fast tilkobling, men er koblet med stikkontakt (konsekvens er fare for varmgang). Det observeres enkelte kabler som ikke er tilstrekkelig festet. Det er ikke fremlagt samsvarserklæring på det elektriske anlegget. Med bakgrunn i TG2 bør det gjennomføres en utvidet el-kontroll av en kvalifisert elektrofaglig person.
    Yttervegger inkl. fasader og konstruksjon:
    - Fasader ink. kledning: Deler av bygningens ytterkledning/fasader har symptomer på slitasje og elde, og det ble observert stedvise moderate tegn til råteskader på nedre del av ytterkledningen. Ytterligere undersøkelser anbefales slik at tiltak kan iverksettes ved behov. Lufte- og dreneringsspalte bak trekledning er stedvis blokkert. Forholdet kan redusere levetiden til kledningen og påvirke veggkonstruksjonen negativt. Tilstanden inne i konstruksjonen er ikke kjent. Ytterligere undersøkelser anbefales slik at tiltak kan iverksettes ved behov. Vindusomramminger har stedvise symptomer på slitasje og elde, selv om det ikke ble observert tegn på større råteskader. Tiltak må påregnes. Vannbord har stedvise symptomer på slitasje og elde, og det ble observert enkelte råteskader. Ytterligere undersøkelser anbefales for å avdekke skadeomfang. Forholdet tyder på behov for tiltak.
    Dører og vinduer:
    - Vinduer: Enkelte vinduer bærer preg av slitasje og elde. Det er ikke observert synlige skader av større betydning, men basert på tilstanden er restlevetiden usikker. Innsettingsdetaljer, inkl. beslagsløsninger har en del slitasjeskader. Vedlikehold må påregnes.
    - Dører: Ytterdører bærer preg av slitasje og elde. Det er ikke observert synlige skader av større betydning, men basert på tilstanden er restlevetiden redusert/usikker.
    Yttertak:
    - Helhetsvurdering: Det er valgt å vurdere yttertaket (og tilhørende bygningsdeler) med en samlet helhetsvurdering. Følgende hovedmomenter er lagt til grunn for vurderingen: Ingen tilkomst til taket, noe som gjør at yttertaket ikke ble inspisert. Vurderingen er derfor utelukkende basert på informasjon om yttertakets alder og eventuelle observasjoner gjort fra innsiden, med den begrensning dette innebærer. På bakgrunn av bygningsdelenes alder er det grunn til å varsle om risiko for skader, svekket funksjon eller lignende forhold som utvikles over tid. Takkonstruksjonen er lukket, og det er ikke kjent hvordan oppbyggingen er utført med den risiko dette innebærer. Skorstein (med tilhørende komponenter) og andre takgjennomføringer er ikke undersøkt på grunn av at det ikke var tilkomst, med den risko dette innebærer. Alle opplysninger gitt i dette punktet bør ses i sammenheng med avsnitt "Loft - Innredet". Det gjøres oppmerksom på at en komplett undersøkelse av yttertaket krever stillas og/eller andre sikkerhetsmessige forutsetninger som ikke var til stede på befaringsdagen. Basert på alle ovennevnte forhold bør det gjennomføres ytterligere undersøkelser for å kartlegge eksakt tilstand og hvilke tiltak som eventuelt skulle være nødvendig. Restlevetiden på de forskjellige bygningsdelene er ikke kjent.
    Grunnmur, fundamenter:
    - Grunnmur: Avskalling av maling/murpuss observeres stedvis på grunnmuren. Eksakt årsak er ukjent. Tiltak kan iverksettes ved behov.
    Stikkledninger og tanker:
    - Vann- og avløpsledninger (ink. stikkledninger): Utvendige vann- og avløpsrør har ukjent alder/tilstand. Anbefalt brukstid kan være passert. TG2 er valgt for å belyse risiko, selv om tegn til skader ikke er registrert. Ytterligere undersøkelser anbefales.
    Frittstående byggverk:
    - Helhetsvurdering: På bakgrunn av at bygningsdelen har en alder og tilstand som viser tegn til synlig slitasje/elde, er det nødvendig å varsle om risiko for skjulte avvik, svekket funksjon, usikker restlevetid eller lignende forhold som utvikles over tid. Bygningens ytterkledning og overflatebehandling viser tegn til slitasje og elde. Deler av kledningen er avsluttet for nært terreng (eller andre bygningsdeler), noe som kan gi forkortet levetid og økt behov for vedlikehold. Garasjeport har høy slitasjegrad. Basert på alle ovennevnte forhold er restlevetiden på bygningsdelene usikker. Det bør gjennomføres ytterligere undersøkelser av fagkyndige for å kartlegge eksakt tilstand og hvilke tiltak som eventuelt skulle være nødvendig.
    Selger opplyser at det er gjort reperasjoner og forbedringer på det som var råteskader på panel. Og muren er reparert og malt.
    Tilstandsgrad 3:
    Toalettrom:
    - Det er valgt å vurdere toalettrommet (og tilhørende bygningsdeler) med en samlet helhetsvurdering. Følgende hovedmomenter er lagt til grunn for vurderingen: På bakgrunn av alderen til røropplegg og andre tekniske installasjoner er det grunn til å varsle om risiko for skjulte skader, svekket funksjon, usikker restlevetid og lignende forhold som utvikles over tid men ikke lar seg observere direkte. Det ble registrert høy slitasje og enkelte skader på rommets overflater. Basert på alle ovennevnte forhold vurderes toalettrommet (med tilhørende bygningsdeler) til å være passert sin levetid, og det påvises tegn til funksjonssvikt. Det bør gjennomføres strakstiltak som for eksempel ytterligere undersøkelser av fagkyndige for å kartlegge eksakt tilstand, årsakssammenhenger og hvilke tiltak som eventuelt skulle være nødvendig. Det må påregnes kostnader for utbedringer.
    Kjeller:
    - Det er valgt å vurdere bygningsdelene med en samlet helhetsvurdering basert på slitasjegrad, tilstand, konstruksjonstype og risiko. Hovedmomenter for helhetsvurderingen er: Innvendige flater bærer preg av alder/slitasje og det registreres avvik. Deler av etasjen fremstår som uferdig og det gjenstår arbeid. Ventilasjonen vurderes ikke til å være tilstrekkelig. Det registreres symptomer på fuktproblematikk (lukt). Deler av overflatene var ikke tilgjengelig for inspeksjon pga. særlig tungt/store mengder inventar. Spor etter gnagere observeres i veggkonstruksjonen (gnagere fører i mange tilfeller til skader, så alle åpninger og inntrekksveier bør kartlegges og tettes av fagkyndig). Kjelleren har vegger under bakkenivå som er utlektet fra grunnmuren. Det er foretatt hulltaking og utført fuktmåling med egnet instrument i utlektet veggkonstruksjon. Det ble registrert høye fuktverdier. Forholdet tyder på fuktskader i konstruksjonen. Relativ fuktighet ble målt til 83,2 prosent, ved 9,4 celsius. Hulltaking i forbindelse med fuktmåling viser at konstruksjonen har en oppbygging som vurderes til å være en risikokonstruksjon. Det observeres innvendig dampsperre i veggkonstruksjonen, noe som erfaringsmessig er forbundet med forhøyet risiko for fuktproblematikk (innvendig dampsperre hindrer uttørking). Årsakene til fuktproblematikk er som regel sammensatte og eksakt årsak er ikke kjent. Skjulte eller bakenforliggende skader kan ikke avkreftes. Det gjøres oppmerksom på at en komplett undersøkelse og kartlegging av tilstanden til konstruksjonene ikke er mulig uten større inngrep. Erfaringsmessig er konstruksjoner under bakkenivå en risikokonstruksjon som er skadeutsatt. Basert på ovennevnte forhold vurderes strakstiltak å være nødvendig. Det bør gjennomføres ytterligere undersøkelser av fagkyndige for å kartlegge eksakt tilstand, årsakssammenhenger og hvilke tiltak som skulle være nødvendig.
    Drenering:
    - Det er valgt å vurdere dreneringen med en samlet helhetsvurdering. Dreneringens tilstand og funksjon påvirker innvendige bruksområder og innvendige bygningsdelers tilstand. Følgende hovedmomenter er lagt til grunn for vurderingen: Bygningsdelen er nedgravd og skjult, noe som gjør at det er vanskelig å angi noen eksakt tilstand. Estimert teknisk levetid på drenssystemer har et betydelig sprang, og er mellom 20 - 60 år. Basert på alder er derfor restlevetiden vurdert til å være usikker. Fra innsiden observeres symptomer på fuktproblematikk som vurderes til å tyde på svakheter i dreneringens funksjon. Terrengfallet rundt grunnmuren vurderes stedvis til å ikke være tilstrekkelig for å lede vann vekk fra bygningen. Vann fra yttertaket er ikke ledet vekk fra bygningen i tilstrekkelig grad. Alle opplysninger gitt i dette punktet bør ses i sammenheng med avsnitt "Rom under terreng". Basert på alle ovennevnte forhold vurderes dreneringen i denne bygningen til å være passert sin levetid, og det påvises tegn til funksjonssvikt. Det bør gjennomføres ytterligere undersøkelser av fagkyndige for å kartlegge eksakt tilstand, årsakssammenhenger og hvilke tiltak som skulle være nødvendig. Det må påregnes kostnader for utbedringer.
    Tilstandsgrad IU:
    Fukt i tilliggende konstruksjoner - stor leilighet 2. etasje:
    - Med bakgrunn i at våtrommets vegger er av mur/betong er det ikke praktisk mulig å gjennomføre fuktmåling/hulltaking i et område der det erfaringsmessig forekommer skader. Hulltaking og fuktmåling i lukkede konstruksjoner er derfor ikke utført. Tilstanden inne i konstruksjonen er ikke kjent.
    Fukt i tilliggende konstruksjoner - 1. etasje:
    - Med bakgrunn i at våtrommets vegger er av mur/betong er det ikke praktisk mulig å gjennomføre fuktmåling/hulltaking i et område der det erfaringsmessig forekommer skader. Hulltaking og fuktmåling i lukkede konstruksjoner er derfor ikke utført. Tilstanden inne i konstruksjonen er ikke kjent.
    Radon:
    - Det er ukjent om radonmåling er gjennomført i boligen. Ytterligere undersøkelser anbefales.
    Konstruksjon - Yttervegger inkludert fasader og konstruksjon:
    - Det er ukjent om radonmåling er gjennomført i boligen. Ytterligere undersøkelser anbefales.
    Byggegrunn:
    - Byggegrunnens oppbygning er ukjent.
    Oljetanker:
    - Ukjent alder, type og tilstand. Ingen fremlagt dokumentasjon. Ytterligere undersøkelser anbefales.
    Tilstandsrapporten og selgers egenerklæring følger vedlagt i salgsoppgaven. Interessenter må sette seg inn i dokumentene før bud inngis.

    Løsøre og tilbehør

    Vi viser til liste fra Norges Eiendomsmeglerforbund som gjelder fra 01.01.2020 angående løsøre og tilbehør.
    Hvitevarer medfølger eiendommen i følge selger.

    Oppvarming

    Boligen varmes opp av elektrisitet og varmepumpe.

    Ferdigattest/brukstillatelse

    Eiendommen har vært brukt til boligformål siden 1911. Kommunen opplyser at det ikke foreligger ferdigattest eller midlertidig brukstillatelse for eiendommen.
    Det foreligger derimot:
    - Godkjent byggeanmeldelse vedrørende oppføring av bolig datert 23.05.1910.
    - Godkjent byggeanmeldelse vedrørende etablering av veranda i 2. etasje datert 15.01.1914.
    - Igangsettelsestillatelse for fasadeendring og utvendig kjellernedgang i eksisterende bygg datert 11.07.2013. Det er ikke søkt om ferdigattest for tiltaket.
    - Ferdigattest for bruksendring, etablering av boenheter og fasadeendring datert 16.01.2018.
    - Godkjent søknad vedrørende innsetting av nytt takvindu datert 04.02.2021. Det er ikke søkt om ferdigattest for tiltaket.
    Selger har fått ferdigattest i 2018 for tiltak etter godkjent søknad i 2016, som omfatter blant annet alle fire etasjer med vesentlige oppgraderinger av bygget med både godkjenning av leiligheter/boenheter, etterisolering, fasader, brannkrav, el- og røropplegg med mere.
    Avvik/kommentarer fra opprinnelige tegninger bemerkes med kommentarer pr. etasje:
    Kjeller (sammenliknet med opprinnelige tegninger fra 1910):
    - Stort sett lik utforming, men noen vegger er flyttet på og satt opp i senere tid.
    - Boden ved toalettrommet er opprinnelig byggemeldt som toalettrom.
    Det gjøres oppmerksom på at etablering av utvendig kjellernedgang (godkjent i 2013) ikke er gjennomført. I tillegg ble det gitt igangsettelsestillatelse for eget inngangsparti, gang, stue/kjøkken, toalettrom og fire soverom 15.03.2016. I søknaden ser man også at trappen mellom kjeller og 1. etasje skulle fjernes. Selger opplyser videre om at nivået til kjelleren var tiltenkt å senkes en liten meter i forbindelse med arbeider i kjeller. Selger opplyser at det er valgt å fokusere på oppgraderinger av de andre etasjene, og at arbeidene i kjelleretasjen av den grunn gjenstår, og dersom ny eier ønsker å gjennomføre tiltenkte arbeider må det søkes på nytt. Kjelleretasjen har således ikke areal som er godkjent for varig opphold. Det presiseres at selv om ferdigattest ble gitt i 2018 gjøres det oppmerksom på at den delen av tiltak som omhandler arbeider i kjellere ikke er utført.
    2. etasje (sammenliknet med tegninger fra bruksendring og fasadeendring i 2018):
    - Den minste leiligheten er opprinnelig byggemeldt uten soverom, og dagens soverom tilhører egentlig den store leiligheten. Kjøper overtar alt ansvar, eventuell kostnad og risiko forbundet med dette.
    - Den store leiligheten er opprinnelig byggemeldt med en vindeltrapp opp til loftsetasjen fra stuen. Trappen er ikke satt opp og det presiseres at loftsetasjen ikke er egen bruksenhet.
    - Verandaen slik den var tiltenkt i tegninger fra 1914 er ikke oppført.
    Loftsetasje (sammenliknet med tegninger fra bruksendring og fasadeendring i 2018):
    - Deler av stuen er opprinnelig byggemeldt som en lukket bod, og deler av arealet er dermed ikke godkjent for varig opphold. Innredning av rommet til bruk for varig opphold er ikke bruksendret/omsøkt og er heller ikke godkjent for denne bruk av kommunen. Konsekvensen ved søknad kan være at rommet ikke godkjennes som varig opphold og at rommet da må brukes som bod/midlertidig oppbevaring. Kjøper overtar alt ansvar, kostnad og risiko for dette videre. 
    Kjøper overtar eiendommen slik den fremstår på visning med risiko og ansvaret for eventuelle pålegg fra kommunen og kostnader forbundet med dette.

    Tinglyste heftelser og rettigheter

    Eiendommen overdras fri for pengeheftelser.
    Det er tinglyst følgende servitutter på eiendommen.
    - Dagboknr 900327, tinglyst 25.09.1918, type heftelse: Skjønn. Underekspropriasjonsskjønn over jernbaneanlegget fra Stenberget til Fjeldseter.
    - Dagboknr 900470, tinglyst 03.08.1920, type heftelse: Vedtagelse av Trondheims stadsingeniørvesen oppstillede betingelser for anbringelse av felles vannavstikker vedr. nr. 24 og 26.
    - Dagboknr 900483, tinglyst 11.07.1922, type heftelse: Skjønn. Utskrift av kjennelse i ekspropriasjonsskjønn for grunnavståelse til jernbaneanlegget Stenberget - Fjeldseter.
    Dokumentene er ikke å finne i verken Statens Kartverks arkiver eller Statsarkivet, men hefter i eiendommen. Kjøper overtar ansvaret for servituttene.
    Servituttene vil følge eiendommen. Kjøpers bank vil få prioritet etter ovennevnte heftelser og servitutter. 

    Eventuell adgang til utleie

    Boligen leies i sin helhet ut fordelt på tre boenheter og en hybel, og har leieinntekter på ca. kr 70.000,- per måned. Leieforholdene kan sies opp i juli dersom ny eier ønsker å benytte seg av hele eller deler av arealet selv. Det gjøres oppmerksom på at bruksenheten i kjelleren ikke er godkjent for varig opphold, og at hybelleiligheten på loftet ikke er godkjent som separat boenhet.

    Diverse

    Tilbud av produkter og tjenester fra våre samarbeidspartnere. Vi er opptatt av verdiskapning, og har knyttet til oss samarbeidspartnere som skal sikre våre kunder de beste produkter og tjenester:
    - Gjensidige leverer boligselgerforsikring og tilbyr bygningsforsikring.
    - Boligkjøperforsikring levers av Hiscox og med Sedgwick som skadebehandler, og er formidlet gjennom Gjensidige.
    - BN bank tilbyr finansieringsløsninger.
    - Vår avdeling Krogsveen Pluss tilbyr flyttetjenester som utvask, visningsvask, lager, tømming og transport av flyttelass, i tillegg til å formidle kontakt med Flip for overflateoppussing.
    - I forbindelse med overtagelse av eiendommen tilbyr Overo avtale om strøm, alarm og bredbånd.
    - Krogsveen er, sammen med øvrige bransjeaktører, medeier i den digitale annonseringsplattformen Hjem.
    Selger opplyser om følgende:
    - Det er noe fukt i kjelleren.
    - Kjelleren har do og dusj i dårlig stand som det ikke er påbegynt oppussing av.
    - Kjeller har tidligere vært drenert, men selger har ikke oversikt over tilstand.
    - I nordvestlige hjørne av muren, der et tidligere avløpsrør gikk ned er det registrert at stein er sprukket.
    - Garasjen er gammel og kondemnabel.
    - Det var en liten periode et hull som selger tror at rus og rotter har kommet seg inn. Hullet er tettet og selger tror ikke det kommer noe inn nå. Selger har ikke hørt fra leieboere om mus i veggene.
    - Eiendommen har nedgravd oljetank. Nedgravd oljetank som er tatt ut av bruk skal fjernes. Selger opplyser om at de ikke har foretatt seg noe med den foreløpig, og at de ikke har fått dispensasjon fra kommunen til å ha den liggende.
    Kjøper overtar alt ansvar, eventuell kostnad og risiko forbundet med overnevnte punkter.

    Beliggenhet og tomteforhold

    Beliggenhet

    Boligen har en attraktiv beliggenhet på Marienborg/Ila, et rolig, men sentralt område kun 1,5 km fra Trondheim sentrum. Her bor du med kort vei til et bredt utvalg av servicetilbud, restauranter og kulturelle opplevelser, samtidig som boligen er tilbaketrukket og gir en skjermet, fredelig atmosfære. Flere barnehager og skoler ligger innen kort gangavstand, noe som gjør området godt egnet for barnefamilier.
    Dagligvarebutikkene Joker Ilevollen og Bunnpris Ila ligger kun 9 minutters gange unna, og området har et svært godt kollektivtilbud. Med både buss og byens eneste trikkelinje får du hyppige avganger til sentrum og resten av byen. Den sentrale beliggenheten gir også korte gang- og sykkelavstander til flere av byens studiesteder, inkludert NTNU Kalvskinnet, NTNU Øya, NTNU Gløshaugen og BI. I tillegg ligger Marienborg stasjon, med togforbindelse til Trondheim lufthavn, kun 20 minutters gange unna. Nærmeste kollektivholdeplass er kun 3 minutters gange fra boligen.
    For den aktive er det flere treningssentre i nærområdet, blant annet 3T-Ilsvika, Impuls og Feel24-Ilsvika, alle innen gangavstand. I tillegg er det kort vei til Bymarka, hvor du finner flotte turområder og naturskjønne omgivelser. En av de mest populære turene går til Våttakammen, som byr på en av byens beste utsikter. Turen er omtrent tre kilometer hver vei og tar rundt én time opp, før du kan nyte panoramautsikten over Trondheim.

    Adkomst

    Se Google maps - det er enkelt å finne frem i kartet.
    Link: https://maps.app.goo.gl/vzUc6oMNp7LSHhRM6

    Barnehager, skoler og fritid

    Barnehager i nærheten:
    Ila barnehage (1-5 år) 8 min til fots
    66 barn 0.6 km
    Steinerbarnehagen i Ila (0-5 år) 10 min til fots
    21 barn 0.7 km
    Iladalen barnehage (1-5 år) 10 min til fots
    67 barn 0.8 km
    Skoler i nærheten:
    Ila skole (1-7 kl.) 10 min til fots
    441 elever, 29 klasser 0.7 km
    Steinerskolen i Trondheim (1-10 kl.) 10 min til fots
    233 elever, 18 klasser 0.7 km
    Åsveien skole og ressurssenter (1-10 kl.) 18 min til fots
    564 elever, 36 klasser 1.4 km
    Birralee International School Trondheim
    278 elever, 23 klasser 1.5 km
    Sverresborg skole (8-10 kl.) 18 min til fots
    569 elever, 33 klasser 1.4 km
    Skansen Videregående Steinerskole 11 min til fots
    Thora Storm avd. Adolf Øien 19 min til fots
    396 elever 1.4 km
    Offentlig transport:
    Nyveibakken 3 min til fots
    Nyveibakken 6 min til fots
    Skansen stasjon 11 min til fots
    Trondheim S 5 min med bil
    Trondheim Værnes 32 min med bil
    Dagligvare:
    Joker Ilevollen 9 min til fots
    Bunnpris Ila 9 min til fots
    Varer og Tjenester:
    Trondheim Torg 21 min til fots
    Mercursenteret 25 min til fots
    Vitusapotek Trondheim Torg 21 min til fots
    Vitusapotek Byåsen 26 min til fots
    Vinmonopolet Trondheim Torg 21 min til fots
    Bankkvartalet Vinmonopol 27 min til fots
    Informasjon om tilhørende skolekretser er hentet fra Prognosesenteret som dataleverandør, og tilhørigheten kan årlig endres av kommunen. Dersom skole- og barnehagetilbud er av betydning for kjøpet, ber vi om at det rettes en særskilt henvendelse til kommunen/bydelsadministrasjonen for oppdatert informasjon.

    Beskrivelse av tomt

    Eiertomt på 498,4 kvm opparbeidet med gruslagte veier, steinheller, diverse beplantninger, plenareal, terrasse på terreng og biloppstillingsplass.

    Parkering

    Det er oppført en garasje (som ifølge selger er kondemnabel), i tillegg til flere biloppstillingsplasser på tomten.

    Vei, vann og avløp

    Eiendommen har adkomst via kommunal vei.
    Eiendommen er tilknyttet kommunalt ledningsnett via private stikkledninger. Eier er selv ansvarlig for private stikkledninger til boligen.

    Regulerings-og arealplaner

    Eiendommen ligger i et uregulert område, men er i kommuneplanens arealdel 2012-2024 avsatt til:
    - Sentrumsformål (498,35 kvm)
    - Forhold som skal avklares og belyses (498,35 kvm)
    - Byggegrenser, utbyggingsvolum og funksjonskrav (996,7 kvm)
    Eiendommen har antikvarisk verdi klasse C og er i kommuneplanens arealdel vedtatt til hensynssone. For bygninger og anlegg i klasse C vil det kunne aksepteres endringer i eksteriør som ikke svekker den antikvariske verdien. Eventuelle tiltak og endringer vurderes i hver enkelt sak og ses i sammenheng med sine omgivelser. Byantikvaren må gi uttalelse til eventuelle tiltak. Boligen er videre SEFRAK-registrert med SEFRAK-minne 1601 1108 1.
    Innenfor områdene Rosenborg, Møllenberg, Singsaker, Kalvskinnet, Øya, Elgeseter, Lademoen, Berg, Bakklandet, Ila og Midtbyen, kreves særskilt tillatelse fra kommunen for å dele opp eller bruksendre boenhet til hybler.
    Utsnitt av plan med tilhørende bestemmelser kan fås ved henvendelse til megler.

    Økonomi

    Kommunale utgifter

    Kommunale avgifter er kr 58.620,- for inneværende år. I dette inngår gebyr for vann, avløp, feiing og eiendomsskatt.
    Kommunale avgifter i Trondheim Kommune er fordelt på 12 terminer. For termin 12 av 12 i 2024 var avgiften på kr 4.885,-.
    Kommunale avgifter og gebyrer kan avvike fra en termin til en annen.
    Boligen har en årlig forsikringspremie ca. på kr 40.000,-.
    Utgiftene er basert på nåværende eiers forbruk og avtaler.

    Formuesverdi

    Formuesverdi for 2023 var kr 4.487.471,- ifølge skatteetaten. Beløpet forutsetter at eier bor fast i boligen (primærbolig).
    Ved eventuell øvrig bruk av eiendommen (f.eks. fritidsbolig, pendlerbolig, utleieobjekt) var formuesverdien for 2023 kr 12.839.244,-.
    Formuesverdien justeres normalt årlig. Se skatteetaten.no for mer informasjon om fastsettelse av formuesverdien.

    Omkostninger

    12 000 000,00 Prisantydning
    Omkostninger
    300 000,00  Dokumentavgift til staten (2,5% av kjøpesum)
    545,00  Tinglysing panterettsdokument
    545,00  Tinglysing skjøte
    19 900,00  Tryg Boligkjøperpakke (valgfri)
    --------------------------------------------------------
    320 990,00 Omkostninger totalt
    --------------------------------------------------------
    12 320 990,00 Totalpris inkl. omkostninger
    --------------------------------------------------------
    Totalpris inkl. omkostninger forutsetter kjøp til prisantydning. Det tas forbehold om endringer i avgifter og gebyrer.

    Betalingsbetingelser

    Kjøpesum inkludert omkostninger, samt pantedokument tilknyttet eventuelt lån, skal være disponibelt hos megler 2 virkedager før overtagelsen.

    Annen viktig informasjon

    Eier

    Vegard Rye Carlsen og Aase Løken

    Overtakelse

    Etter nærmere avtale.

    Boligselgerforsikring

    Selger har i forbindelse med salget tegnet boligselgerforsikring levert av Gjensidige.  
    Boligselgerforsikringen dekker selgers ansvar etter avhendingsloven begrenset oppad til kr 14 millioner. Dersom kjøper oppdager forhold ved eiendommen som hen mener utgjør en mangel ved eiendommen, vil Gjensidige behandle reklamasjonen på vegne av selger. Forsikringsvilkår kan fås ved henvendelse til megler.  
    Vedlagt salgsoppgaven følger selgers egenerklæringsskjema og tilstandsrapport. Interessenter må sette seg inn i dokumentene før bud inngis. 

    Boligkjøperforsikring

    Innen kontraktsmøtet må kjøper ta stilling til om det ønskes å bestille Boligkjøperpakken gjennom Gjensidige. I denne gunstige pakken er boligen ferdig forsikret og inkluderer rettshjelpsforsikring, også kalt Boligkjøperforsikring. Rettshjelpsforsikring gir trygghet og tilgang på profesjonell juridisk hjelp dersom det oppdages uventede feil eller mangler det første året etter overtagelse. Forsikringsselskapet behandler i så fall ethvert mangelskrav kjøper måtte ha overfor selger. 
    Boligkjøperpakken inkluderer bygningsforsikring for hus og hytte, innboforsikring, flytteforsikring og dobbel rentedekning - i situasjoner hvor kjøper ikke får solgt nåværende primærbolig.   
    Kjøper mottar ingen særskilt faktura for Boligkjøperpakken da kostnaden det første året legges til kjøpesummen for boligen. Det gjøres oppmerksom på Krogsveen mottar et honorar for denne formidlingen.
    Produktark for Boligkjøperpakken ligger vedlagt i salgsoppgaven.  
    Dersom ikke boligkjøperpakke ønskes kan kun rettshjelpsforsikring, også kalt boligkjøperforsikring, tegnes særskilt via megler. Rettshjelpsforsikringen varer i 5 år fra overtagelse og leveres gjennom Gjensidige. Ta kontakt med megler for ytterligere informasjon. 
    Selskap og privatpersoner som driver med kjøp/salg/utvikling som ledd i egen næringsvirksomhet kan ikke tegne boligkjøperpakke eller rettshjelpsforsikring. 

    Budgivning

    Forbrukerinformasjon om budgivning er vedlagt denne salgsoppgaven og er også på vår hjemmeside Krogsveen.no. Alle bud og budforhøyelser må inngis skriftlig. I tillegg må legitimasjon være fremlagt sammen med signatur fra budgiver.
    Vi oppfordrer til å gi bud elektronisk via GI BUD-knappen på eiendommens hjemmeside på Krogsveen.no. Da vil samtlige vilkår bli oppfylt. Eventuelle forhøyelser eller endringer av budet kan bekreftes pr SMS eller på e-post. Vi oppfordrer alltid til å kontakte megler pr. telefon i tillegg da forsinkelser i SMS og e-post kan forekomme.
    For at budene skal kunne bli behandlet og videreformidlet skriftlig til alle involverte parter, må alle bud ha en tilstrekkelig lang akseptfrist, jf. eiendomsmeglingsforskriften § 6-3.
    Selger må også skriftlig akseptere budet før aksept kan formidles til budgiver. Akseptfrist bør derfor være på minimum 30 minutter, og budforhøyelser må derfor skje i god tid før fristens utløp.
    Bud i forbrukerforhold kan uansett ikke settes med kortere frist enn kl. 12.00 første virkedag etter siste annonserte visning. I tillegg kan ikke budet ha forbehold om at det skal holdes hemmelig ovenfor øvrige interessenter. Megler har iht lov om eiendomsmegling ikke anledning til å videreformidle disse budene, og de vil dermed heller ikke bli journalført.
    Etter at eiendommen er solgt vil kjøper og selger få tilsendt budjournal. Øvrige budgivere kan få utlevert kopi av budjournalen i anonymisert form.

    Hvitvaskingsreglene

    I henhold til lov om hvitvasking og terrorfinansiering har megler plikt til å gjennomføre kontrolltiltak overfor kunder, herunder fullmektiger. Dette innebærer bl.a. å bekrefte kunders og reelle rettighetshaveres identitet på bakgrunn av fremvist gyldig legitimasjon eller på annen godkjent måte, samt å innhente opplysninger om kundeforholdets formål og tilsiktede art. Dersom slike kundetiltak ikke kan gjennomføres, kan megler ikke etablere kundeforholdet eller utføre transaksjonen.
    Hvis kjøper ikke bidrar til gjennomføring av kundekontrollen og dette fører til at transaksjonen blir forsinket eller ikke kan gjennomføres, vil dette ansees som mislighold av avtalen og gi selger rettigheter etter avhendingslova kapittel 5. I tilfeller der selger ikke bidrar til gjennomføring av løpende kundekontroll underveis i oppdraget, er det selger som misligholder sine forpliktelser etter avtalen og gi kjøper rettigheter etter avhendingslovens kapittel 4. Partene er selv ansvarlige for eventuelle kostnader og ansvar dette kan medføre. Eiendomsmegleren eller eiendomsmeglingsforetaket kan ikke holdes ansvarlig for de konsekvenser dette vil kunne få for partene eller andre som har interesser i eiendomshandelen.
    Kjøper oppfordres til å innbetale kjøpesummen som ikke kommer fra låneinstitusjon i én samlet innbetaling fra egen konto i norsk bank. Megler har plikt til å melde fra til Økokrim om eiendomshandler som fremstår som mistenkelige. Melding sendes Økokrim uten at partene varsles. 

    Personopplysningsloven

    I henhold til personopplysningsloven gjør vi oppmerksom på at interessenter kan bli registrert for videre oppfølging.

    Lovanvendelse

    Generelle bestemmelser
    Salgsoppgaven er basert på de opplysningene selger har gitt til megler, den bygningssakyndiges tilstandsrapport, samt opplysninger innhentet fra kommunen, Kartverket og andre tilgjengelige kilder. Det er viktig at kjøper setter seg grundig inn i alle salgsdokumentene, herunder salgsoppgave, tilstandsrapport og selgers egenerklæring. Kjøper anses kjent med forhold som er tydelig beskrevet i salgsdokumentene, og slike forhold kan ikke påberopes som mangler. Dette gjelder uavhengig av om kjøper har lest dokumentene. Alle interessenter oppfordres til å undersøke eiendommen nøye, gjerne sammen med fagkyndig før bud inngis. Kjøper som velger å kjøpe usett kan ikke gjøre gjeldende som mangel noe han burde blitt kjent med ved undersøkelsen. 
    Dersom det er behov for avklaringer, anbefaler vi at interessenter rådfører seg med eiendomsmegler eller egne rådgivere før det legges inn bud.
    En bolig som har blitt brukt i en viss tid, har vanligvis blitt utsatt for slitasje og skader kan ha oppstått. Slik bruksslitasje må kjøper regne med, og det kan avdekkes enkelte forhold etter overtakelse som nødvendiggjør utbedringer. Normal slitasje og skader som nødvendiggjør utbedring, er innenfor hva kjøper må forvente og vil ikke utgjøre en mangel.
    Kjøper og selgers rettigheter og plikter reguleres av avtalen mellom partene, samt informasjonen som har vært tilgjengelig for kjøperen i forbindelse med handelen. Avtalen utfylles av avhendingsloven, og det gjelder ulike avtalevilkår avhengig av om kjøper er forbrukerkjøper eller ikke.  Dette er nærmere beskrevet nedenfor. 
    På grunn av ulike avtalevilkår kan selger vurdere bud fra en som ikke er forbruker, ulikt fra en forbrukers bud. Dersom kjøper ikke er forbruker, er selger sitt mulige mangelsansvar begrenset fordi eiendommen selges "som den er".  Selger kan ikke ta «som den er»- forbehold overfor en forbrukerkjøper. Selv et lavere bud fra en som ikke er forbruker kan foretrekkes fordi begrensningen i mulig mangelsansvar kan ha egenverdi for selger. Selger står fritt til å forkaste eller akseptere ethvert bud, og er for eksempel ikke forpliktet til å akseptere høyeste bud.
    Budgiver skal i budskjema avgi egenerklæring om budgiver er forbruker eller næringsdrivende/ person som hovedsakelig handler som ledd i næringsvirksomhet. Budgivere får informasjon dersom andre bud er inngitt av en som ikke er forbruker. 
    Forbrukerkjøp - definisjon
    Med forbrukerkjøp menes kjøp av eiendom når kjøperen er en fysisk person som ikke hovedsakelig handler som ledd i næringsvirksomhet.
    Forbruker – avtalevilkår
    Eiendommen har en mangel dersom den ikke er i samsvar med kravene som følger av avtalen, eller det foreligger brudd på bestemmelsene i avhendingsloven §§ 3-2 til 3-8. Hvis eiendommen ikke er i samsvar med det kjøperen må kunne forvente ut ifra alder, type og synlig tilstand, kan det være grunnlag for mangelskrav. Det samme gjelder hvis det er holdt tilbake eller gitt uriktige opplysninger om eiendommen. Dette gjelder likevel bare dersom man kan gå ut ifra at det virket inn på avtalen at opplysningen ikke ble gitt eller at mangelskravet ikke blir rettet i tide på en tydelig måte.
    Boligen kan ha en mangel etter avhendingsloven § 3-3 andre ledd, dersom det er avvik mellom opplyst og faktisk innvendig areal, forutsatt at avviket er på 2% eller mer og minimum 1 kvm.
    Ved beregning av et eventuelt prisavslag eller erstatning må kjøper selv dekke tap/kostnader opptil et beløp på kr 10 000 (egenandel).
    Ikke-forbruker (næringsdrivende) – definisjon 
    Hvis kjøper er en juridisk person, eller en fysisk person som hovedsakelig handler som ledd i næringsvirksomhet, vil kjøpet ikke anses som et forbrukerkjøp. 
    Ikke-forbruker – avtalevilkår
    Eiendommen har en mangel dersom den ikke er i samsvar med kravene som følger av avtalen.
    Eiendommen selges «som den er», og selgers ansvar utover det konkret avtalte er da begrenset etter avhendingsloven § 3-9, første ledd andre setning. 
    Avhendingsloven § 3-3 andre ledd fravikes, og hvorvidt boligens arealsvikt utgjør en mangel vurderes etter avhendingsloven § 3-8. 
    Informasjon om kjøpers undersøkelsesplikt, herunder oppfordringen om å undersøke eiendommen nøye, gjelder også for kjøpere som ikke anses som forbrukere.
    Det forutsettes at hjemmel overføres til kjøper. Hvis kjøper ikke ønsker hjemmelsoverføring av eiendommen, må det tas forbehold om dette i budet.

    Meglers vederlag

    Meglers vederlag betales av selger og er avtalt til:
    - Vederlag: 0,8% av salgssummen.
    - Tilrettelegging: kr 17.000,-
    - Oppgjør: kr 7.500,-
    - Markedspakke: kr 25.500,-
    - Visninger: kr 2.000,- per visning.
    - Oppslag eiendomsregister: kr 2.900,-
    Utlegg
    - Innhenting av offentlig opplysninger Trondheim kommune: kr 3.441,-
    - Tinglysing sikring: kr 500,-
    Andre utgifter
    - Foto: kr 5.950,-
    - Tilstandsrapport fra bygningssakkyndig: kr 16.950,-

    Opplysninger om oppdraget

    Oppdragsnummer 68-0227/24
    Eiendomsmegler Krogsveen AS, avd. Trondheim
    Fjordgata 82, 7010, TRONDHEIM
    950 007 613
    Oppdragets KR-kode KR68.24227

    Dato

    Sist oppdatert: 05. september 2025 kl. 14:19

    Dokumenter

    Utskriftsvennlig salgsoppgave

    Område

    Legg til steder som er viktige for deg

    Prisutvikling for området

    Kvadratmeterpris
    0 kr/m²
    Endring
    ↘︎ % ()

    Visning

    For å delta på visning, ber vi om at du melder deg på. Da sikrer vi at du får nødvendig informasjon og at det er satt av tilstrekkelig med tid. Kontakt megler dersom annet tidspunkt ønskes. Husk å lese salgsoppgaven før visningen, så du stiller forberedt.
    Ønsker du kun å bli holdt orientert, kan du fra eiendommens hjemmeside få varsel om solgtpris, eller kontakte megler.
    Lurer du på noe?

    Vil du varsles om lignende boliger?

    Ved å lagre ditt boligsøk hos oss får du beskjed når vi har en bolig som ligner denne, før den legges ut på markedet!

    På flyttefot? Slik gjør vi det enklere for deg

    Skreddersydd flyttepakke

    Vi fikser håndverkere, vask, pakking, lagring og transport, og legger ut for utgiftene underveis.

    Hjelp med både kjøp og salg

    Hos oss har du din egen rådgiver gjennom hele kjøps- og salgsprosessen.

    Hjelp til finansiering

    Vårt samarbeid med BN Bank sikrer deg rask og løsningsorientert hjelp, til konkurransedyktige betingelser.