Sloratoppen 17A

6 990 000 kr

152 m²

4 soverom

Komplett salgsoppgave

Langhus

Tomannsbolig med dobbelgarasje - Fire soverom - Nyoppusset bad i 2022 - Usjenerte og solrike uteområder - Barnevennlig!

    Pris

  • Prisantydning

    6 990 000 kr

  • Omkostninger

    195 740 kr

  • Totalpris

    7 185 740 kr

    Areal

  • Bruksareal

    182 m²

  • BRA-I (internt bruksareal)

    152 m²

  • BRA-E (eksternt bruksareal)

    30 m²

  • TBA (terrasse-balkongareal)

    64 m²

    Nøkkelinfo

  • Byggeår

    2007

  • Soverom

    4 soverom

  • Bad

    2 bad

  • Type

    Halvpart vertikaldelt bolig

  • Eierform

    Eierseksjon

  • Fasiliteter

    Garasje/P-plass og Balkong/Terrasse

  • Årlig velavgift

    3 000 kr

  • Energimerke

    Lysegrønn C

Unngå doble boligrenter

Vi tilbyr gunstig forsikring.

Hva koster lånet?

Sjekk estimert lånekostnad

Beskrivelse

Kort om eiendommen

Velkommen til Sloratoppen 17A! Innholdsrik familiebolig med god planløsning og store uteplasser med gode solforhold Her bor du i et trygt og familievennlig nabolag. Boligen har en flott planløsning med en egen sone for barna/ungdommen i 2. etasje, med fire soverom og TV-stue. Fra stuen og kjøkkenet er det utgang til to store terrasser, som skaper en fin overgang til hagen. Dette er et hjem skapt for et godt familieliv, med kort vei til skoler, barnehager og servicetilbud. Høydepunkter:
  • Lekkert bad i 2. etasje, oppgradert i 2022 med dobbel servant
  • Fire soverom og TV-stue i 2. etasje
  • To store markterrasser og en veranda
  • Peisovn og to varmepumper fra 2022
  • Dobbelgarasje med elbillader
  • Gulvvarme i hele 1. etasje og på bad i 2. etasje Velkommen til visning!
  • Innhold og byggemåte

    Eiendommen

    Sloratoppen 17A, 1405 LANGHUS
    Kommunenummer 3207, gårdsnummer 107, bruksnummer 694, seksjonsnummer 3, ideell andel 1/1

    Innhold

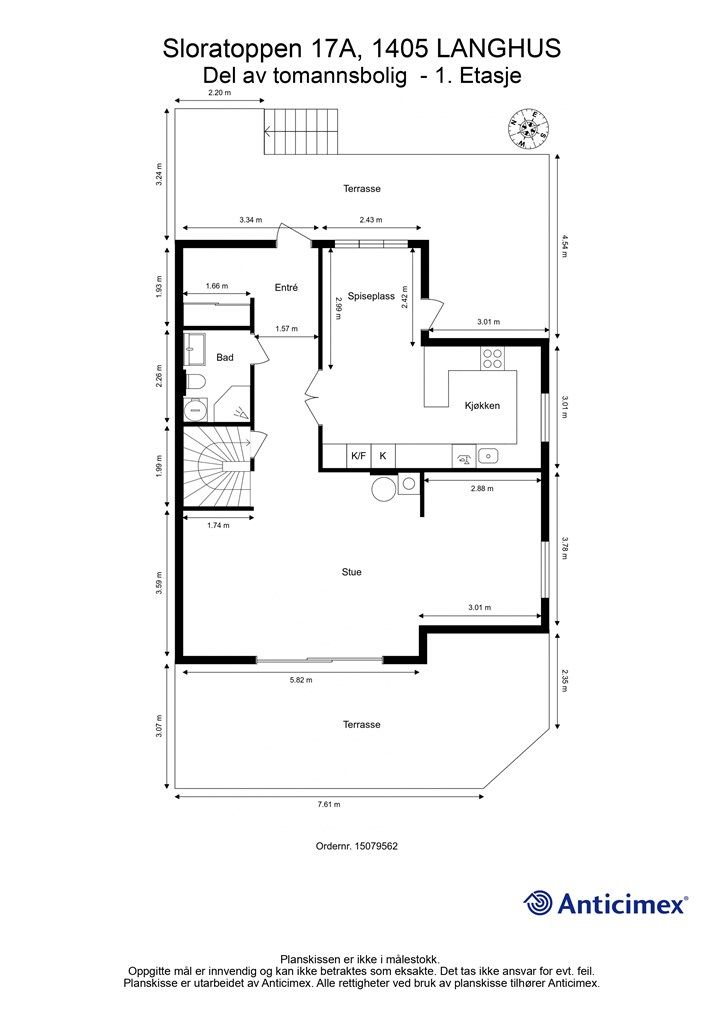
    Totalt bruksareal BRA: 182 kvm.

    BRA-i:
    1. etasje 80 kvm: Entré, stue, kjøkken, bad, innvendig bod.
    2. etasje 72 kvm: 4 soverom, TV-stue, bad.

    BRA-e:
    1. etasje 30 kvm: Garasje.

    Terrasse- og balkongareal (TBA):
    1. etasje 59 kvm: To terrasser.
    2. etasje 5 kvm: Balkong.

    Vedlagte plantegninger er ikke målbare. De oppgitte arealer er hentet fra rapport med befaringsdato 19.02.2026, utført av Anticimex AS v/Stian Darell.

    Det gjøres oppmerksom på at deler av kjøkkenet opprinnelig er byggemeldt som bod. Se pkt. ferdigattest.

    Byggemåte

    Tilstandsrapporten er inntatt i salgsoppgaven. Rapporten inneholder informasjon om eventuelle avvik og konsekvensen av disse. Dersom det er registrert avvik med TG3, har den bygningssakkyndige i tillegg gitt et anslag på hva det vil koste å utbedre disse. Ettersom kjøper regnes å være kjent med forhold som tydelig fremgår av tilstandsrapporten, oppfordres du til å sette deg grundig inn i rapporten i sin helhet.

    Bygningen er iht. tilstandsrapport en del av en tomannsbolig oppført i 2007. Bygningen er oppført i trekonstruksjoner over en grunnmur av betong, med støpt gulv mot grunn, en såkalt støpt plate på mark. Yttervegger er av trekonstruksjoner med utvendige fasader kledd med liggende trekledning, og etasjeskillere er av trekonstruksjoner. Boligen har et saltak i trekonstruksjoner, og yttertaket er utvendig belagt med takstein fra byggeår med et undertak av sutaksplater. Vinduer og balkongdører har karmer av tre og to-lags glass fra byggeår. Boligen har en profilert entrédør med glassfelt fra byggeår, utstyrt med elektrisk kodelås.

    Følgende bygningsdeler er gitt Tilstandsgrad 2 (TG2) — Avvik som kan kreve tiltak:

    Våtrom - Bad 1. etasje
    - Lekkasjesikkerhet: Fallforhold utenfor sluksonen vurderes ikke til å være tilstrekkelig for å lede eventuelt lekkasjevann til sluk, og det er ikke påvist at vanntett sjikt har tilstrekkelig oppkant ved dørterskel for å kompensere for dette.
    - Vanntett sjikt/membran i gulv og vegger: Vanntett sjikt har en alder som tilsier at fremtidig funksjon er usikker. Det registreres manglende tetting/bruk av mansjett mellom veggbokser til varmtvannsbereder og tettesjiktet i veggen.
    - Tettesjiktets tilslutning til sluk: Overgang mellom sluk og vanntett sjikt er uoversiktlig.

    Tekniske anlegg
    - Innvendig stakeluke: Innvendig stakeluke er ikke påvist, og det er derfor ukjent om dette er etablert.

    Andre rom
    - Ventilasjon: Det vurderes at det ikke er tilstrekkelige åpninger/luftespalter mellom rom for å sikre tilfredsstillende luftgjennomstrømning, noe som er et viktig prinsipp for ventilasjon av boliger.

    Loft - uinnredet/kaldtloft
    - Synlige overflater (taktro, vegger, gulv, o.l): Misfarging observeres stedvis på undertak og plater mot andre del av tomannsboligen, noe som tyder på negativ påvirkning av fukt/kondens. Det ble likevel ikke målt høye fuktnivåer i berørte materialer i området (stikkprøveprinsippet er benyttet). Fuktinnholdet i treverket ble målt med piggelektroder til 16,2 vektprosent, som er under grensen for kritisk fuktinnhold (på materialer plassert i et åpent rom ligger denne grensen rundt 20 vektprosent).

    Yttervegger inkl. fasader
    - Overflatebehandling: Det er stedvis slitasje på ytterkledningens overflatebehandling.

    Vinduer og ytterdører
    - Vinduer og omramming: Enkelte vinduer viser begynnende tegn til slitasje på overflatebehandling.

    Yttertak
    - Inspeksjonsmulighet: Taket er ikke fysisk inspisert grunnet is og snø (sikkerhetsmessige forhold).
    - Tekking (med tilhørende beslag): Taktekkingen (med tilhørende beslag) er ikke fysisk undersøkt, og derfor kun vurdert på bakgrunn av bygningsdelens alder, med den begrensning dette innebærer.
    - Undertak (inkluderer sløyfer, lekter og innfestninger): Undertaket (inkluderer sløyfer, lekter, innfestninger og lignende) med tilhørende komponenter har en alder som tilsier at fremtidig funksjon er usikker.
    - Vannbord, vindskier, gesimskasser og lignende: Vindskier viser tydelige tegn til slitasje og elde, med synlige tegn på råteskader. Vurderingen er begrenset til det som er synlig fra bakkenivå.

    Veranda
    - Tilstand på rekkverk og overflatematerialer: Rekkverket viser tegn til slitasje, elde og begynnende råteskader.

    Terrasse/platting
    - Tilstand på rekkverk og overflatematerialer: Overflatematerialer på terrassen (og rekkverk) viser tegn til slitasje.

    Andre byggverk
    - Yttertak og takkonstruksjon: Taket er ikke fysisk inspisert grunnet is og snø (sikkerhetsmessige forhold). Taktekkingen har nådd en alder og tilstand der fremtidig funksjon vurderes som usikker.
    - Innvendige forhold: Misfarging observeres stedvis på undertak, noe som tyder på negativ påvirkning av fukt. Årsakene til fuktproblematikk er som regel sammensatte, men kondens/redusert avtrekk/ventilasjon vurderes som en sannsynlig hovedårsak.

    Følgende bygningsdeler er ikke undersøkt (TGIU):

    Yttertak
    - Takgjennomføringer (takhatter o.l.): Ikke besiktiget.
    - Detaljer inn mot tilstøtende konstruksjoner: Ikke besiktiget.
    - Skorsteiner (over tak): Ikke besiktiget.

    Helse, miljø og sikkerhet
    - Terrasse / platting - Rekkverkshøyde og lysåpninger: Rekkverkshøyder, lysåpninger og andre sikkerhetsmessige forhold er kontrollert opp mot dagens gjeldende byggtekniske forskrift, selv om denne ikke har tilbakevirkende kraft. Rekkverkshøyden er under 1,0 meter. Basert på ovennevnte forhold oppfyller ikke rekkverket dagens krav til sikkerhet. Om rekkverket oppfylte kravene som var gjeldende på oppføringstidspunktet eller ikke, er ikke tatt stilling til.
    - Utvendig trapp - Rekkerkshøyde og lysåpninger: Rekkverkshøyder, lysåpninger og andre sikkerhetsmessige forhold er kontrollert opp mot dagens gjeldende byggtekniske forskrift, selv om denne ikke har tilbakevirkende kraft. Trappen har kun rekkverk på en side, noe som kan medføre fallfare. Basert på ovennevnte forhold oppfyller ikke trappen dagens krav til sikkerhet. Om trappen oppfylte kravene som var gjeldende på oppføringstidspunktet eller ikke, er ikke tatt stilling til.
    - Forstøtningsmur - Rekkerkshøyde og lysåpninger: Rekkverkshøyder, lysåpninger og andre sikkerhetsmessige forhold er kontrollert opp mot dagens gjeldende byggtekniske forskrift, selv om denne ikke har tilbakevirkende kraft. Rekkverkshøyden er under 1,0 meter. Basert på ovennevnte forhold oppfyller ikke rekkverket dagens krav til sikkerhet. Om rekkverket oppfylte kravene som var gjeldende på oppføringstidspunktet eller ikke, er ikke tatt stilling til.
    - Branntekniske forhold - Godkjent slukkeutstyr: Boligen mangler godkjent slokkeutstyr. Forholdet påvirker sikkerheten. Det er viktig å sørge for at godkjent slokkeutstyr blir anskaffet så snart som mulig.

    Ovennevnte er kun et utdrag fra rapporten. Se supplerende tekst i tilstandsrapporten for mer informasjon. Kjøper overtar ansvar og risiko for dette.

    Moderniseringer og påkostninger

    Følgende moderniseringer er foretatt de senere år:

    2023:
    - Ny integrert komfyr på kjøkken.

    2022:
    - Rehabilitering av bad i 2. etasje, utført av AS Majetic Rør og Bygg, dokumentasjon foreligger.
    - Montering av multisplit luft-til-luft varmepumpe i begge etasjer, utført av A+Varmepumper AS.
    - Skifte av kabel og ny kurs til jacuzzi, utført av Elkomfort AS, samsvarserklæring foreligger.
    - Byttet alle spottere fra halogen til LED, utført av Elkomfort AS.
    - Lagt nytt kurs til el-bil lader i garasje.
    - Skiftet ut eksisterende termostater til smarte termostater og direkte koblet VVB for smartstyring, utført av Elkomfort AS.
    - Diverse elektrisk arbeid i forbindelse med rehabilitering av bad 2. etasje, utført av Elkomfort AS.
    - Bytte av kjøkkenkran, installering av automatisk lekkasjestopper og ny oppvaskmaskin.

    2021:
    - Nye innredninger på bad i 2. etasje.

    2020:
    - Ny varmtvannsbereder (194L) installert på bad.

    Standard

    Flott familiebolig med fine uteplasser, hage og parkering i dobbelgarasje. Badet i 2. etasje ble rehabilitert i 2022, og varmepumper ble montert i begge etasjer i 2022. Kjøkkenet har fått integrert komfyr i 2023 og oppvaskmaskin i 2022. Varmtvannsberederen er fra 2020. Det elektriske anlegget har gjennomgått oppgraderinger i 2022, inkludert bytte av spottere til LED, etablering av nye kurser for elbillader og jacuzzi, samt installasjon av smarte termostater og styring for varmtvannsbereder.

    I tilknytning til inngangspartiet er det en hyggelig terrasse med plass til cafébord og stoler. Fra terrassen er det trapp ned til dobbelgarasje.

    1. etasje

    Entré: Man kommer inn i en romslig og innbydende entré med fliser på gulv og skyvedørsgarderobe med speilfronter. Det er malt panel på vegger og downlights i tak. Ytterdør er utstyrt med elektrisk kodelås. Entréen har knaggrekker slik at gjester enkelt kan henge fra seg ytterklær. Hele 1. etasje har varme i gulv.

    Kjøkken: Boligen har et stort og innholdsrikt kjøkken. Morgenkaffen kan inntas ved frokostbaren og det er god plass til spisebord og stoler. Kjøkkeninnredningen har slette fronter og heltre benkeplate med nedfelt oppvaskkum i rustfritt stål og ett-greps armatur. Mellom benkeplate og overskap er det flislagt, med belysning og stikkontakter under overskapene. Kjøkkenet har integrert komfyr og nedfelt platetopp, samt ventilator i overskap tilkoblet avtrekkskanal. Innfelt kjøleskap med frysedel og innfelt oppvaskmaskin er installert. Det er meget godt med skap, skuffer og arbeidsflater i innredningen. Automatisk lekkasjestopper er etablert i underskap. Fra kjøkkenet er det utgang til terrasse.

    Stue: Stuen er av generøs størrelse med store vinduer som slipper inn rikelig med naturlig lys. En moderne peisovn er plassert sentralt i rommet for kos og varme på ekstra kjølige dager. Det er også varmepumpe fra 2022, med kjølefunksjon. I stuen er det lagt parkett på gulv og vegger er av malt panel, med moderne fargevalg. Rommet kan innredes med sofa, bord, TV og tilhørende møblement. I tillegg er det plass til spisebord og stoler. Fra stuen er det utgang til sørvestvendt terrasse som kan deles inn i soner og møbleres deretter. Videre adkomst til fin hage. Jacuzzien som står på terrassen følger med salget.

    Bad 1. etasje: Baderommet har gulvflate belagt med naturstein og gulvvarme, samt flislagte vegger og glattmalt himling. Rommet er utstyrt med en vegghengt servantinnredning med skuffer, heldekkende servant og ett-greps armatur, samt et speil. Det er et frittstående dusjkabinett med skyvedører og to-greps armatur, og et vegghengt toalett med innebygd sisterne. Varmtvannsberederen er plassert i et skap. Mekanisk avtrekksventil er i himling.

    2. etasje

    TV-stue: Boligens andre stue kan innredes med sofa, bord, TV og TV-benk. Denne stuen gir barna/ungdommen et eget oppholdsrom.

    Bad 2. etasje: Baderommet har flislagt gulv med gulvvarme og flislagte vegger. Himlingen er nedsenket, glattmalt og utstyrt med downlights. Innredningen består av en vegghengt servantinnredning med skuffer, to overliggende servanter og to ett-greps armaturer, samt et speil med lys og stikkontakt. Dusjhjørnet har glassdører og to-greps armatur med regnfalldusj. Det er et vegghengt spyletoalett med innebygd sisterne. Rommet har opplegg for vaskemaskin. Mekanisk avtrekksventil er i himling.

    Soverom: Boligen har 4 romslige soverom. Soverommene ligger alle i samme etasje, noe som er praktisk i småbarnsperioden. Soverommene har plass til seng, nattbord og skrivebord/sminkebord. Soverom 2 har skyvedørsgarderobe med speilfronter og utgang til veranda på ca. 5 kvm.

    Bod/oppbevaring: I boligens 1. etasje er det en innvendig bod. Det er adkomst via takluke med stige til uinnredet kaldtloft. Gulvet er stedvis kledd med plater. Ellers er det lagringsplass i garasjen.

    Løsøre og tilbehør

    Vi viser til liste fra Norges Eiendomsmeglerforbund som gjelder fra 01.01.2020 angående løsøre og tilbehør.

    Følger ikke med salget: Frittstående fryseskap på kjøkkenet.

    Oppvarming

    Oppvarming med elektrisitet, varmepumpe og vedfyring. Det er gulvvarme/varmekabler i 1. etasje og på bad i 2. etasje. To varmepumper er plassert i stue i 1. og 2. etasje, og det er en peisovn med glassdør i stuen.

    Ferdigattest/brukstillatelse

    Det foreligger ikke ferdigattest på eiendommen, men midlertidig brukstillatelse ble gitt 25.05.2007. Denne kan fås ved henvendelse til megler.

    Det foreligger 'Svar på melding om mindre byggearbeid' for oppføring av garasje på 30,2 m², datert 27.04.2007. Tillatelsen ble gitt under forutsetning av at garasjen ble tilstrekkelig ventilert, at kontrollerklæring for plassering ble returnert, og at forenklet avfallsplan ble innsendt. Det er ikke utstedt ferdigattest for garasjen.

    Det gjøres oppmerksom på at deler av kjøkkenet opprinnelig er byggemeldt som bod jf. byggetegninger og er ikke godkjent til varig opphold. Utvidelsen av kjøkkenet til bruk for varig opphold er ikke bruksendret/omsøkt og er heller ikke godkjent av kommunen. Konsekvensen ved søknad kan være at deler av rommet ikke godkjennes som varig opphold og at rommet da må brukes som bod/midlertidig oppbevaring. 

    Kjøper overtar alt ansvar, kostnad og risiko for dette videre. 

    Tinglyste heftelser og rettigheter

    Eiendommen overdras fri for pengeheftelser.

    Sameiet har legalpant for krav mot sameieren som følger av sameieforholdet iht. eierseksjonsloven § 31. Pantet er begrenset oppad til 2G (G = folketrygdens grunnbeløp).

    Det er tinglyst fem servitutter på sameiets eiendom. Disse omhandler blant annet bestemmelse om garasje/parkering, adkomstrett og veg.

    Servituttene vil følge eiendommen. Kjøpers bank vil få prioritet etter ovennevnte heftelser og servitutter.

    Eventuell adgang til utleie

    Boligen kan leies ut såfremt boligen har forsvarlige radonverdier. Leietaker må følge sameiets vedtekter og ordensregler på lik linje som eier.

    Diverse

    Vi er opptatt av verdiskapning, og har knyttet til oss samarbeidspartnere som skal sikre våre kunder de beste produkter og tjenester;
    • I forbindelse med forberedelse av salget, innhenter vi informasjon om eiendommen hovedsakelig fra vår samarbeidspartner Ambita.
    • Gjensidige leverer boligselgerforsikring og tilbyr bygningsforsikring
    • Boligkjøperforsikring leveres av Hiscox og med Sedgwick som skadebehandler, og er formidlet gjennom Gjensidige.
    • Trøgstad Sparebank tilbyr finansieringsløsninger
    • Vår avdeling Krogsveen Pluss tilbyr flyttetjenester som utvask, visningsvask, lager, tømming og transport av flyttelass, i tillegg til å formidle kontakt med Flip for overflateoppussing.
    • I forbindelse med overtagelse av eiendommen tilbyr Overo avtale om strøm, alarm og bredbånd.
    • Krogsveen er, sammen med øvrige bransjeaktører, medeier i Bomega AS som tilbyr den digitale annonseringsplattformen Hjem.

    Energimerking

    Denne boligen er energimerket. På en skala fra A til G, der A er best, har denne boligen oppnådd C (en normalbolig vil gjerne ligge i området C-F). Kopi av energiattest ligger vedlagt i salgsoppgaven eller kan fås ved henvendelse til megler.

    Beliggenhet og tomteforhold

    Beliggenhet

    Eiendommen ligger i et svært barnevennlig og attraktivt boligområde på Slora/Langhus, i Nordre Follo kommune. Sørmarka ligger i umiddelbar nærhet og byr på gode rekreasjonsmuligheter gjennom alle årstider. Sørmarka har skiløyper, skistuer og akebakker om vinteren, samt terrengsykkelstier, fiskevann og kanomuligheter om sommeren. I tillegg er det gangavstand til flere barnehager, barneskole, ungdomsskole, dagligvarebutikk, samt bussholdeplass med korrespondanse til togstasjon og Ski. Fra Ski stasjon tar Follobanen deg inn til Oslo på ca. 11-12 minutter med 6 avganger i timen.

    Langhusområdet er perfekt for fritidsaktivitet utendørs som innendørs. Flere aktive idrettslag og andre organisasjoner i nærområdet sørger for et bredt aktivitetstilbud. Det er kort vei til lekeplass, skøytebane, svømmehall og et flott idrettsanlegg med fotballbaner og idrettshall. Norges største fornøyelsespark, Tusenfryd, ligger bare en kort biltur unna.

    Nøstvedtmarka byr på et stort nett av turstier, veier og mange interessante kulturminner. Om vinteren kjøres det opp skiløyper her og det er servering på Stuene. Tussetjern har badebrygge, svaberg og en fin tursti rundt vannet. Ved Breivoll, innerst i Bunnefjorden, finner du mange små sandstrender, store grøntarealer, kiosk, stupebrett og fiskeplass.

    Dagligvarehandelen kan blant annet gjøres på Meny, KIWI og Coop Extra. Ønsker du ytterligere servicetilbud, har Langhus nærsenter et variert serviceutvalg. Ski Storsenter med 145 butikker, restauranter, kino, bibliotek, bowling og legesenter er et populært møtested i kommunen.

    Adkomst

    Se Google Maps - det er enkelt å finne frem i kartet.

    Det vil bli skiltet med Krogsveen visningsskilt ved fellesvisninger.

    Barnehager, skoler og fritid

    Det er gangavstand til flere barnehager, samt gangavstand til Vevelstadåsen barneskole og Haugjordet ungdomsskole. Se vedlagt nabolagsprofil.

    Informasjon om tilhørende skolekretser er hentet fra Prognosesenteret som dataleverandør, og tilhørigheten kan årlig endres av kommunen. Dersom skole- og barnehagetilbud er av betydning for kjøpet, ber vi om at det rettes en særskilt henvendelse til kommunen for oppdatert informasjon.

    Beskrivelse av tomt

    Felles eiet tomt på 2063,6 m². Tomten er pent opparbeidet med grus, støpte trapper, terrasse på terreng, diverse støttemurer, biloppstillingsplasser, plenarealer og variert beplantning.

    Parkering

    Eiendommen disponerer en dobbelgarasje med elbillader og en stor innkjørsel med plass til flere biler. Innkjørselen deles med 17B.

    Vei, vann og avløp

    Eiendommen har adkomst via privat vei med felles vedlikeholdsansvar.

    Eiendommen er tilknyttet kommunalt ledningsnett via private stikkledninger. Eier er selv ansvarlig for private stikkledninger til boligen.

    Regulerings-og arealplaner

    Eiendommen er regulert til frittliggende småhusbebyggelse og felles avkjørsel i henhold til reguleringsplan for Slora, del av Q1, med tilhørende reguleringsbestemmelser datert 09.09.1980.

    I kommuneplan for Nordre Follo 2023-2034 fremkommer det følgende hensynssoner:
    - H110: Nedslagsfelt drikkevann (2.064 kvm).
    - H320_2: Flomfare (5 kvm).

    Utsnitt av plan med tilhørende bestemmelser kan fås ved henvendelse til megler.

    Økonomi

    Kommunale utgifter

    Kommunale avgifter er kr 28.293,- for inneværende år. I dette inngår gebyr for vann, avløp, renovasjon og feiing/tilsyn.

    Nåværende eier har et strømforbruk som tilsvarer ca. kr 25.275,- pr. år/18.587 kWh. pr. år. 

    Selger har avtalt Norgespris på strøm på eiendommen frem til 31.12.2026, og denne er pt. på kr 50 øre inkl. mva. Nettleie, avgifter og påslag fra kraftleverandøren kommer i tillegg.

    Denne avtalen vil følge eiendommen i den avtalte perioden.

    Les mer om Norgespris her: https://www.regjeringen.no/no/aktuelt/legg-fram-lov-om-norgespris-pa-straum-og-fjernvarme/id3102642/

    Boligen har en årlig forsikringspremie på kr 5.388,-

    Velavgift er kr 3.000,- pr. år (går til måking av felles privat vei, strøing av felles privat vei, og diverse vedlikehold).

    Boligen er tilknyttet Viken Fiber og Telenor som leverandør av tv og internett. Avgift er på kr 983,- pr. mnd. Dekoder medfølger ikke.

    Utgiftene er basert på nåværende eiers forbruk og avtaler.

    Formuesverdi

    Formuesverdi for 2024 var kr 2.034.917,- i følge selgers Skatteetaten. Beløpet forutsetter at eier bor fast i boligen (primærbolig).

    Ved eventuell øvrig bruk av eiendommen (f.eks. fritidsbolig, pendlerbolig, utleieobjekt) var formuesverdien for 2023 kr 8.139.669,-

    Fra 2026 har Stortinget vedtatt en oppdatert modell for beregning av formuesverdi for primærbolig, så avvik kan forekomme.
    For mer informasjon se skatteetaten.no

    Omkostninger

    6 990 000,00 Prisantydning

    Omkostninger

    174 750,00  Dokumentavgift til staten (2,5% av kjøpesum)
    19 900,00  Gjensidige Boligkjøperpakke (valgfri)
    545,00  Tinglysing panterettsdokument
    545,00  Tinglysing skjøte
    --------------------------------------------------------
    195 740,00 Omkostninger totalt

    --------------------------------------------------------
    7 185 740,00 Totalpris inkl. omkostninger

    --------------------------------------------------------

    Tilbud om lånefinansiering

    Megler formidler gjerne kontakt med rådgiver hos Trøgstad Sparebank. De har konkurransedyktige betingelser samt rask og løsningsorientert behandling av din lånesøknad.

    Betalingsbetingelser

    Kjøpesum inkludert omkostninger, samt pantedokument tilknyttet eventuelt lån, skal være disponibelt hos megler 2 virkedager før overtagelsen.

    Annen viktig informasjon

    Eier

    William Hang og Linh Nguyen

    Informasjon om forkjøpsrett

    Eiendommen er seksjonert, og boligen er tilknyttet Sameiet Sloratoppen 15-17, med sameiebrøk 1/4.
    Sameiet består av fire selveide seksjoner.
    Styreleder er Rogelio Calas.
    Dugnad må påregnes.

    Hver sameier har full eiendomsrett og eksklusive bruksrett til areal innenfor egen seksjon. Den øvrige del av tomten er fellesareal og eierne har en ideell andel av disse.

    Diverse info fra kasserer:
    1. Sameiets felleskonto hadde en saldo på kroner 24.555,97 per 31.12.2025.
    2. Fellesutgifter pr. seksjon er pt. på kr 3.000,- pr. år. Innbetales kvartalsvis, kroner 750,- per kvartal, direkte til sameiets konto. Eventuell endring av fellesutgifter vedtas på sameiets årsmøte.
    3. Det er ingen restanse i Sameiet.
    4. Medlemskap i Langhus Vel og obligatorisk brøyteavgift var på kroner 2.075,- per husstand i 2025. Sameiet har så langt mottatt samlefaktura for medlemskap og brøyteavgift, og har betalt denne over felles konto. Kroner 8.300,- i 2025.
    5. Sameiet tar pt. ikke gebyr for eierskifte.
    6. Andre utgifter: Løpende utgifter til vedlikehold av felles vei, gjerde og støttemur. For det meste plank, maling og skruer.
    7. Planlagte dugnader: Ikke datofestet. Sameiet pleier å ha en dugnad på våren. På den kommende dugnaden må det utføres noe vedlikeholdsarbeid på gjerdet langs veien.
    8. Andre opplysninger for ny eier: Sameiet har løpende avtale for strøing av veien på vinterstid. For vinteren 24/25 utgjorde denne avtalen kroner 833,- pr. husstand. Betalt over felleskonto.

    Dokumenter for sameiet og kopi av seksjonsbegjæringen kan fås ved henvendelse til megler.

    Overtakelse

    Etter nærmere avtale.

    Velforening

    Langhus velforening

    Boligselgerforsikring

    Selger har i forbindelse med salget tegnet boligselgerforsikring levert av Gjensidige.  
    Boligselgerforsikringen dekker selgers ansvar etter avhendingsloven begrenset oppad til kr 14 millioner. Dersom kjøper oppdager forhold ved eiendommen som hen mener utgjør en mangel ved eiendommen, vil Gjensidige behandle reklamasjonen på vegne av selger. Forsikringsvilkår kan fås ved henvendelse til megler.  

    Vedlagt salgsoppgaven følger selgers egenerklæringsskjema og tilstandsrapport. Interessenter må sette seg inn i dokumentene før bud inngis. 

    Boligkjøperforsikring

    Innen kontraktsmøtet må kjøper ta stilling til om det ønskes å bestille Boligkjøperpakken gjennom Gjensidige. I denne gunstige pakken er boligen ferdig forsikret og inkluderer rettshjelpsforsikring, også kalt Boligkjøperforsikring. Rettshjelpsforsikring gir trygghet og tilgang på profesjonell juridisk hjelp dersom det oppdages uventede feil eller mangler det første året etter overtagelse. Forsikringsselskapet behandler i så fall ethvert mangelskrav kjøper måtte ha overfor selger. 

    Boligkjøperpakken inkluderer bygningsforsikring for hus og hytte, innboforsikring, flytteforsikring og dobbel rentedekning - i situasjoner hvor kjøper ikke får solgt nåværende primærbolig.   

    Kjøper mottar ingen særskilt faktura for Boligkjøperpakken da kostnaden det første året legges til kjøpesummen for boligen. Det gjøres oppmerksom på Krogsveen mottar et honorar for denne formidlingen.
    Produktark for Boligkjøperpakken ligger vedlagt i salgsoppgaven.  

    Dersom ikke boligkjøperpakke ønskes kan kun rettshjelpsforsikring, også kalt boligkjøperforsikring, tegnes særskilt via megler. Rettshjelpsforsikringen varer i 5 år fra overtagelse og leveres gjennom Gjensidige. Ta kontakt med megler for ytterligere informasjon. 

    Selskap og privatpersoner som driver med kjøp/salg/utvikling som ledd i egen næringsvirksomhet kan ikke tegne boligkjøperpakke eller rettshjelpsforsikring. 

    Budgivning

    Forbrukerinformasjon om budgivning er vedlagt denne salgsoppgaven og er også på vår hjemmeside Krogsveen.no. Alle bud og budforhøyelser må inngis skriftlig. I tillegg må legitimasjon være fremlagt sammen med signatur fra budgiver.

    Vi oppfordrer til å gi bud elektronisk via GI BUD-knappen på eiendommens hjemmeside på Krogsveen.no. Da vil samtlige vilkår bli oppfylt.  
    Eventuelle forhøyelser eller endringer av budet kan bekreftes pr SMS eller på e-post. Vi oppfordrer alltid til å kontakte megler pr. telefon i tillegg da forsinkelser i SMS og e-post kan forekomme.

    For at budene skal kunne bli behandlet og videreformidlet skriftlig til alle involverte parter, må alle bud ha en tilstrekkelig lang akseptfrist, jf. eiendomsmeglingsforskriften § 6-3.

    Selger må også skriftlig akseptere budet før aksept kan formidles til budgiver. Akseptfrist bør derfor være på minimum 30 minutter, og budforhøyelser må derfor skje i god tid før fristens utløp.

    Bud i forbrukerforhold kan uansett ikke settes med kortere frist enn kl. 12.00 første virkedag etter siste annonserte visning. I tillegg kan ikke budet ha forbehold om at det skal holdes hemmelig ovenfor øvrige interessenter. Megler har iht lov om eiendomsmegling ikke anledning til å videreformidle disse budene, og de vil dermed heller ikke bli journalført.

    Etter at eiendommen er solgt vil kjøper og selger få tilsendt budjournal. Øvrige budgivere kan få utlevert kopi av budjournalen i anonymisert form.

    Hvitvaskingsreglene

    I henhold til lov om hvitvasking og terrorfinansiering har megler plikt til å gjennomføre kontrolltiltak overfor kunder, herunder fullmektiger. Dette innebærer bl.a. å bekrefte kunders og reelle rettighetshaveres identitet på bakgrunn av fremvist gyldig legitimasjon eller på annen godkjent måte, samt å innhente opplysninger om kundeforholdets formål og tilsiktede art.

    Dersom slike kundetiltak ikke kan gjennomføres, kan megler ikke etablere kundeforholdet eller utføre transaksjonen.

    Hvis kjøper ikke bidrar til gjennomføring av kundekontrollen og dette fører til at transaksjonen blir forsinket eller ikke kan gjennomføres, vil dette ansees som mislighold av avtalen og gi selger rettigheter etter avhendingslova kapittel 5. I tilfeller der selger ikke bidrar til gjennomføring av løpende kundekontroll underveis i oppdraget, er det selger som misligholder sine forpliktelser etter avtalen og gi kjøper rettigheter etter avhendingslovens kapittel 4. Partene er selv ansvarlige for eventuelle kostnader og ansvar dette kan medføre. Eiendomsmegleren eller eiendomsmeglingsforetaket kan ikke holdes ansvarlig for de konsekvenser dette vil kunne få for partene eller andre som har interesser i eiendomshandelen.

    Kjøper oppfordres til å innbetale kjøpesummen som ikke kommer fra låneinstitusjon i én samlet innbetaling fra egen konto i norsk bank. Megler har plikt til å melde fra til Økokrim om eiendomshandler som fremstår som mistenkelige. Melding sendes Økokrim uten at partene varsles. 

    Personopplysningsloven

    I henhold til personopplysningsloven gjør vi oppmerksom på at interessenter kan bli registrert for videre oppfølging.

    Lovanvendelse

    Generelle bestemmelser
    Salgsoppgaven er basert på de opplysningene selger har gitt til megler, den bygningssakyndiges tilstandsrapport, samt opplysninger innhentet fra kommunen, Kartverket og andre tilgjengelige kilder. Det er viktig at kjøper setter seg grundig inn i alle salgsdokumentene, herunder salgsoppgave, tilstandsrapport og selgers egenerklæring. Kjøper anses kjent med forhold som er tydelig beskrevet i salgsdokumentene, og slike forhold kan ikke påberopes som mangler. Dette gjelder uavhengig av om kjøper har lest dokumentene. Alle interessenter oppfordres til å undersøke eiendommen nøye, gjerne sammen med fagkyndig før bud inngis. Kjøper som velger å kjøpe usett kan ikke gjøre gjeldende som mangel noe han burde blitt kjent med ved undersøkelsen. 

    Dersom det er behov for avklaringer, anbefaler vi at interessenter rådfører seg med eiendomsmegler eller egne rådgivere før det legges inn bud.

    En bolig som har blitt brukt i en viss tid, har vanligvis blitt utsatt for slitasje og skader kan ha oppstått. Slik bruksslitasje må kjøper regne med, og det kan avdekkes enkelte forhold etter overtakelse som nødvendiggjør utbedringer. Normal slitasje og skader som nødvendiggjør utbedring, er innenfor hva kjøper må forvente og vil ikke utgjøre en mangel.

    Kjøper og selgers rettigheter og plikter reguleres av avtalen mellom partene, samt informasjonen som har vært tilgjengelig for kjøperen i forbindelse med handelen. Avtalen utfylles av avhendingsloven, og det gjelder ulike avtalevilkår avhengig av om kjøper er forbrukerkjøper eller ikke.  Dette er nærmere beskrevet nedenfor. 

    På grunn av ulike avtalevilkår kan selger vurdere bud fra en som ikke er forbruker, ulikt fra en forbrukers bud. Dersom kjøper ikke er forbruker, er selger sitt mulige mangelsansvar begrenset fordi eiendommen selges "som den er".  Selger kan ikke ta «som den er»- forbehold overfor en forbrukerkjøper. Selv et lavere bud fra en som ikke er forbruker kan foretrekkes fordi begrensningen i mulig mangelsansvar kan ha egenverdi for selger. Selger står fritt til å forkaste eller akseptere ethvert bud, og er for eksempel ikke forpliktet til å akseptere høyeste bud.

    Budgiver skal i budskjema avgi egenerklæring om budgiver er forbruker eller næringsdrivende/ person som hovedsakelig handler som ledd i næringsvirksomhet. Budgivere får informasjon dersom andre bud er inngitt av en som ikke er forbruker. 

    Forbrukerkjøp - definisjon
    Med forbrukerkjøp menes kjøp av eiendom når kjøperen er en fysisk person som ikke hovedsakelig handler som ledd i næringsvirksomhet.

    Forbruker – avtalevilkår
    Eiendommen har en mangel dersom den ikke er i samsvar med kravene som følger av avtalen, eller det foreligger brudd på bestemmelsene i avhendingsloven §§ 3-2 til 3-8. Hvis eiendommen ikke er i samsvar med det kjøperen må kunne forvente ut ifra alder, type og synlig tilstand, kan det være grunnlag for mangelskrav. Det samme gjelder hvis det er holdt tilbake eller gitt uriktige opplysninger om eiendommen. Dette gjelder likevel bare dersom man kan gå ut ifra at det virket inn på avtalen at opplysningen ikke ble gitt eller at mangelskravet ikke blir rettet i tide på en tydelig måte.

    Boligen kan ha en mangel etter avhendingsloven § 3-3 andre ledd, dersom det er avvik mellom opplyst og faktisk innvendig areal, forutsatt at avviket er på 2% eller mer og minimum 1 kvm.

    Ved beregning av et eventuelt prisavslag eller erstatning må kjøper selv dekke tap/kostnader opptil et beløp på kr 10 000 (egenandel).

    Ikke-forbruker (næringsdrivende) – definisjon 
    Hvis kjøper er en juridisk person, eller en fysisk person som hovedsakelig handler som ledd i næringsvirksomhet, vil kjøpet ikke anses som et forbrukerkjøp. 

    Ikke-forbruker – avtalevilkår
    Eiendommen har en mangel dersom den ikke er i samsvar med kravene som følger av avtalen.
    Eiendommen selges «som den er», og selgers ansvar utover det konkret avtalte er da begrenset etter avhendingsloven § 3-9, første ledd andre setning. 

    Avhendingsloven § 3-3 andre ledd fravikes, og hvorvidt boligens arealsvikt utgjør en mangel vurderes etter avhendingsloven § 3-8. 

    Informasjon om kjøpers undersøkelsesplikt, herunder oppfordringen om å undersøke eiendommen nøye, gjelder også for kjøpere som ikke anses som forbrukere.

    Det forutsettes at hjemmel overføres til kjøper. Hvis kjøper ikke ønsker hjemmelsoverføring av eiendommen, må det tas forbehold om dette i budet.

    Meglers vederlag

    Meglers vederlag betales av selger og er avtalt til:
    Vederlag: 1 % av salgssummen.
    Minimumsprovisjon er kr 60.000,-

    Vederlag:
    Kontroll av hjemmel og heftelser kr 3.900,-
    Markedsføringspakke kr 29.900,-
    Oppgjør kr 8.900,-
    Tilrettelegging kr 17.000,-
    Visninger pr stk/Overtagelse kr 3.500,-

    Utlegg:
    Innhenting av offentlig opplysninger Nordre Follo - legalpant kr 563,-
    Innhenting av offentlig opplysninger Nordre Follo kommune kr 3.300,-
    Tinglysing sikring kr 545,-

    Andre utgifter:
    AX tilstandsrapport rekkehus/tomannsbolig kr 17.500,-
    Boligselgerforsikring Gjensidige snr - regnes av prisantydning  kr 32.518,-
    Fotopakke inkl. høydefoto kr 5.500,-

    Opplysninger om oppdraget

    Oppdragsnummer 46-0030/26
    Eiendomsmegler Krogsveen AS, avd. Ski
    Kirkeveien 2A, 1400, SKI
    950 007 613
    Oppdragets KR-kode KR46.2630

    Dato

    Sist oppdatert: 27. mars 2026 kl. 12:57

    Dokumenter

    Utskriftsvennlig salgsoppgave

    Område

    Legg til steder som er viktige for deg

    Prisutvikling for området

    Kvadratmeterpris

    0 kr/m²

    Endring

    ↘︎ % ()

    Visning

    For å delta på visning, ber vi om at du melder deg på. Da sikrer vi at du får nødvendig informasjon og at det er satt av tilstrekkelig med tid. Kontakt megler dersom annet tidspunkt ønskes. Husk å lese salgsoppgaven før visningen, så du stiller forberedt.
    Ønsker du kun å bli holdt orientert, kan du fra eiendommens hjemmeside få varsel om solgtpris, eller kontakte megler.

    Lurer du på noe?

    Unngå doble boligrenter

    Vi tilbyr gunstig forsikring.

    Hva koster lånet?

    Sjekk estimert lånekostnad

    Vil du varsles om lignende boliger?

    Ved å lagre ditt boligsøk hos oss får du beskjed når vi har en bolig som ligner denne, før den legges ut på markedet!

    På flyttefot? Slik gjør vi det enklere for deg

    Skreddersydd flyttepakke

    Vi fikser håndverkere, vask, pakking, lagring og transport, og legger ut for utgiftene underveis.

    Hjelp med både kjøp og salg

    Hos oss har du din egen rådgiver gjennom hele kjøps- og salgsprosessen.

    Hjelp til finansiering

    Vårt samarbeid med BN Bank sikrer deg rask og løsningsorientert hjelp, til konkurransedyktige betingelser.