Claude Monets alle 21
7 490 000 kr
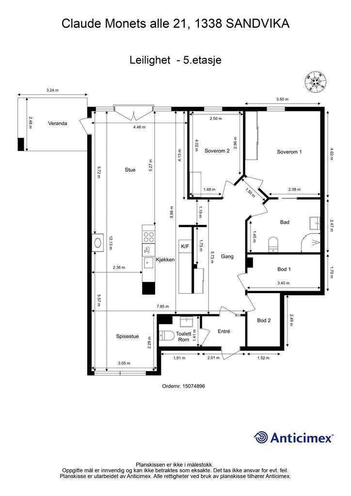
118 m²
2 soverom
Solgt
Sandvika sentrum
Stor 3-roms seniorleilighet (55+) i 5. etg. med balkong, heis og garasje | Mye lagringsplass | Bad og WC | Servicetilbud
Prisantydning
7 490 000 krAndel fellesgjeld
50 686 krOmkostninger
199 540 krTotalpris
7 740 226 kr
Pris
Bruksareal
123 m²BRA-I (internt bruksareal)
118 m²BRA-E (eksternt bruksareal)
5 m²TBA (terrasse-balkongareal)
8 m²
Areal
Etasje
5Byggeår
1998Soverom
2 soveromBad
1 badType
EierleilighetEierform
EierseksjonFasiliteter
Garasje/P-plass, Heis og Balkong/TerrasseFellesutgifter
8 958 krEnergimerke
Grønn D
Nøkkelinfo
Unngå doble boligrenter
Vi tilbyr gunstig forsikring.
Vurderer du utleie?
Få et tilbud fra Utleie KrogsveenHva koster lånet?
Sjekk estimert lånekostnadBeskrivelse
Kort om eiendommen
Lys og romslig selveierleilighet i 5. etasje, forbeholdt beboere over 55 år. Beliggende midt i Sandvika sentrum med «alt» rett utenfor døren har du enkel tilgang på Sandvika Storsenter, butikker, restauranter, kulturtilbud, buss og tog. Leiligheten er gjennomgående og oppleves luftig, med god stue og utgang til veranda på ca. 8 kvm. Delvis åpen kjøkkenløsning, to soverom og rikelig med lagringsplass i boder gir en praktisk planløsning. Flislagt bad med gulvvarme og opplegg for vaskemaskin/tørketrommel, i tillegg til separat toalettrom. Vannbåren varme via radiatorer gir behagelig inneklima. Heis i bygget og egen garasjeplass gjør hverdagen komfortabel. En sjelden mulighet til å sikre seg en romslig seniorleilighet med sentral beliggenhet og tilgang til servicesenter.
Område
Legg til steder som er viktige for deg
På flyttefot? Tenk kjøp og salg samtidig.
Få din egen rådgiver gjennom hele kjøps- og salgsprosessen. Det starter med en verdivurdering.
Unngå doble boligrenter
Vi tilbyr gunstig forsikring.
Vurderer du utleie?
Få et tilbud fra Utleie KrogsveenHva koster lånet?
Sjekk estimert lånekostnadVil du varsles om lignende boliger?
Ved å lagre ditt boligsøk hos oss får du beskjed når vi har en bolig som ligner denne, før den legges ut på markedet!












































