Nedre Storgate 33
2 450 000 kr
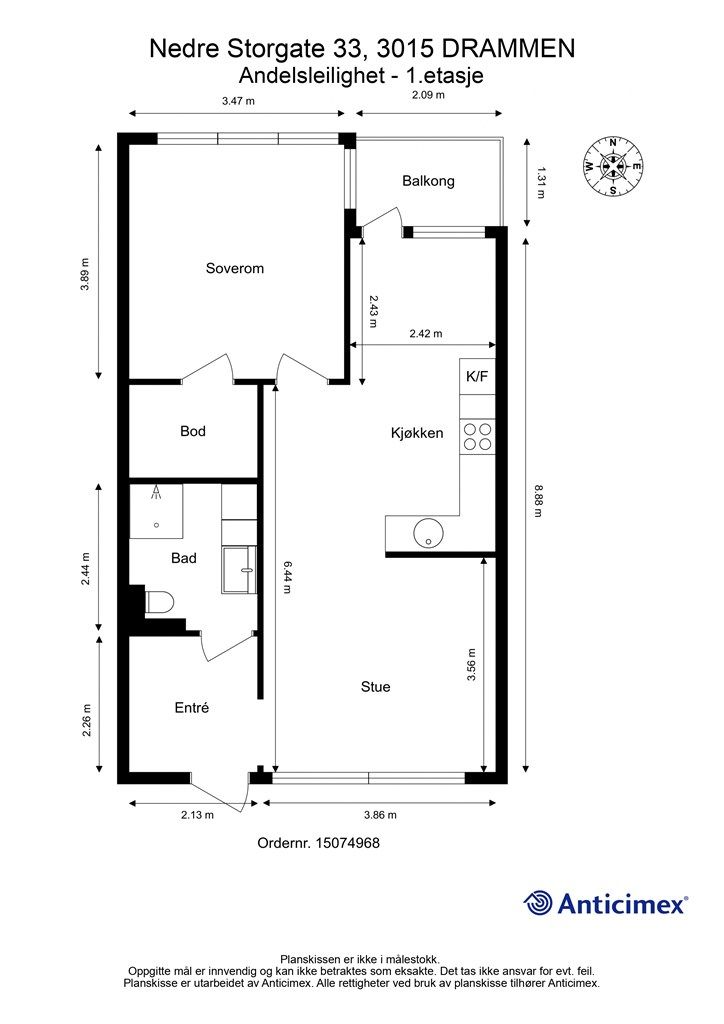
60 m²
1 soverom
Solgt

Presenteres av
Rune SirnesBragernes
Delikat og velholdt 2-roms leilighet med en sentral beliggenhet. Vannbåren varme. 2 uteplasser. Garasjeplass m/lader.
Prisantydning
2 450 000 krAndel fellesgjeld
1 372 777 krOmkostninger
19 250 krTotalpris
3 842 027 kr
Pris
Bruksareal
65 m²BRA-I (internt bruksareal)
60 m²BRA-E (eksternt bruksareal)
5 m²TBA (terrasse-balkongareal)
3 m²
Areal
Etasje
1Byggeår
2017Soverom
1 soveromBad
1 badType
AndelsleilighetEierform
AndelFasiliteter
Garasje/P-plass, Heis og Balkong/TerrasseFellesutgifter
13 286 krEnergimerke
Grønn B
Nøkkelinfo
Unngå doble boligrenter
Vi tilbyr gunstig forsikring.
Vurderer du utleie?
Få et tilbud fra Utleie KrogsveenHva koster lånet?
Sjekk estimert lånekostnadBeskrivelse
Kort om eiendommen
Delikat og velholdt 2-roms leilighet beliggende i 1. etasje (bakkeplan).
Leiligheten har en gjennomgående lun og moderne utførelse
Lagt nytt parkettgulv og malt vegger, dører samt lister i alle rom i nyere tid
Åpen kjøkken- og stueløsning med gjennomlys
Norema-kjøkken med medfølgende hvitevarer
Pent bad med baderomsinnredning og regnfallsdusj fra 2023
Vannbåren gulvvarme i alle rom og balansert ventilasjon
Overbygget vestvendt balkong og disponibel hellelagt uteplass
Medfølgende disponibel garasjeplass med el-billader fra 2024
Tilgang til felles atrium mellom bygningene og felles takterrasse
Meget sentral og pendlervennlig leilighet beliggende rett ved sentrum
Borettslaget har tilrettelagt for individuell nedbetaling av fellesgjeld
Område
Legg til steder som er viktige for deg
På flyttefot? Tenk kjøp og salg samtidig.
Få din egen rådgiver gjennom hele kjøps- og salgsprosessen. Det starter med en verdivurdering.
Unngå doble boligrenter
Vi tilbyr gunstig forsikring.
Vurderer du utleie?
Få et tilbud fra Utleie KrogsveenHva koster lånet?
Sjekk estimert lånekostnadVil du varsles om lignende boliger?
Ved å lagre ditt boligsøk hos oss får du beskjed når vi har en bolig som ligner denne, før den legges ut på markedet!
På flyttefot? Slik gjør vi det enklere for deg
Skreddersydd flyttepakke
Vi fikser håndverkere, vask, pakking, lagring og transport, og legger ut for utgiftene underveis.
Hjelp med både kjøp og salg
Hos oss har du din egen rådgiver gjennom hele kjøps- og salgsprosessen.
Hjelp til finansiering
Vårt samarbeid med BN Bank sikrer deg rask og løsningsorientert hjelp, til konkurransedyktige betingelser.

