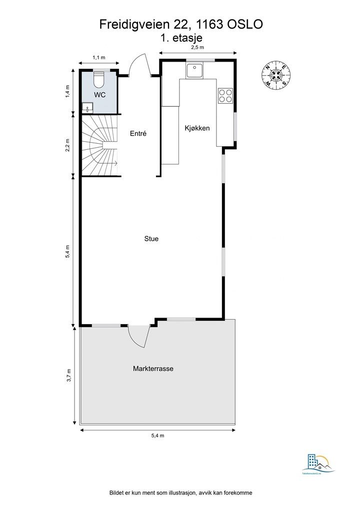
Freidigveien 22
12 590 000 kr
148 m²
4 soverom
Solgt
Nordstrand
Familiebolig m/ 4 sov | 2 bad | Flere stuer | Takterrasse | 2 p-plasser | Solrikt og sentralt | Egen inngang til kjeller
Prisantydning
12 590 000 krOmkostninger
325 790 krTotalpris
12 915 790 kr
Pris
Bruksareal
153 m²BRA-I (internt bruksareal)
148 m²BRA-E (eksternt bruksareal)
5 m²TBA (terrasse-balkongareal)
36 m²
Areal
Byggeår
2014Soverom
4 soveromBad
2 badType
Halvpart vertikaldelt boligEierform
EierseksjonEnergimerke
Oransje C
Nøkkelinfo
Unngå doble boligrenter
Vi tilbyr gunstig forsikring.
Vurderer du utleie?
Få et tilbud fra Utleie KrogsveenHva koster lånet?
Sjekk estimert lånekostnadBeskrivelse
Kort om eiendommen
Velkommen til Freidigveien 22!
En innbydende, funksjonell og moderne halvpart av vertikaldelt tomannsbolig over fire plan, beliggende i et populært, barnevennlig og veletablert område på Nordstrand. En ideell bolig for den sosiale familien – med flere stuer som skaper rom for både lek, ro og egne soner for barn og ungdom.
Svært kort vei til T-bane og buss gir rask og miljøvennlig tilgang til jobb og fritidstilbud. Det finnes mange tilbud for sportsinteresserte barn og ungdom i umiddelbar nærhet, med bl.a. Nordstrand Arena rett ved. Boligen er fra 2014 og har 3/4 soverom, 2 bad, flere oppholdsrom og solrike uteplasser. To garasjeplasser i felles garasjekjeller, hvorav én med elbillader.
Område
Legg til steder som er viktige for deg
På flyttefot? Tenk kjøp og salg samtidig.
Få din egen rådgiver gjennom hele kjøps- og salgsprosessen. Det starter med en verdivurdering.
Unngå doble boligrenter
Vi tilbyr gunstig forsikring.
Vurderer du utleie?
Få et tilbud fra Utleie KrogsveenHva koster lånet?
Sjekk estimert lånekostnadVil du varsles om lignende boliger?
Ved å lagre ditt boligsøk hos oss får du beskjed når vi har en bolig som ligner denne, før den legges ut på markedet!




