Sleiverudlia 3
4 730 000 kr
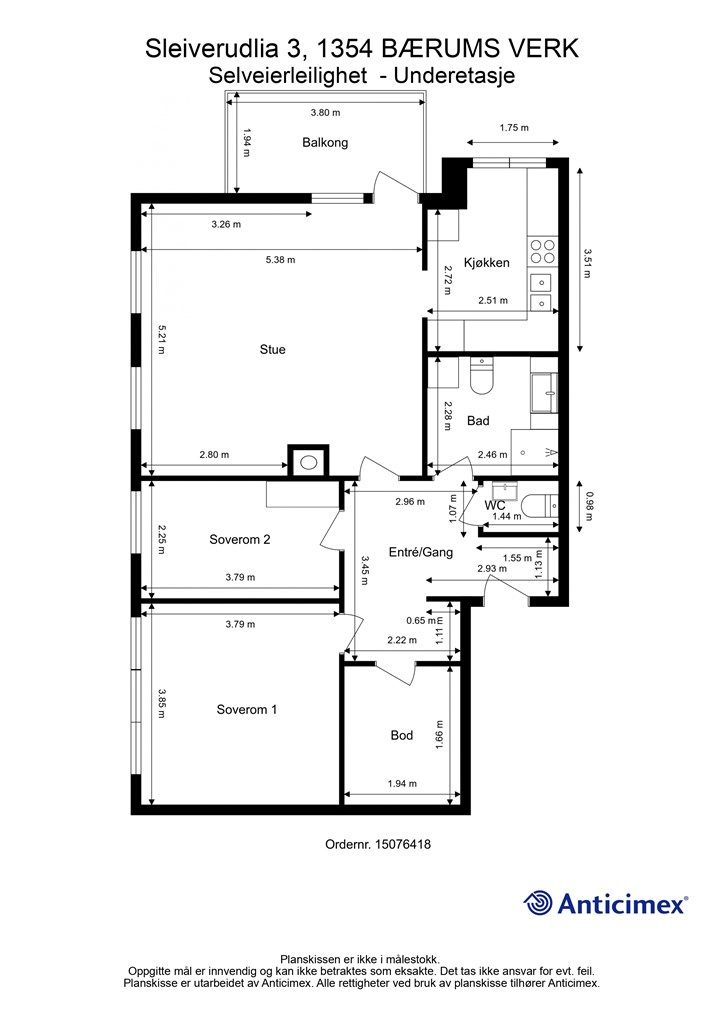
80 m²
2 soverom
Komplett salgsoppgave

Bærums Verk
Meget tiltalende og stilren 3-roms hjørneleilighet med balkong og garasje m/el i et barnevennlig og attraktivt område
Prisantydning
4 730 000 krAndel fellesgjeld
131 692 krOmkostninger
132 640 krTotalpris
4 994 332 kr
Pris
Bruksareal
83 m²BRA-I (internt bruksareal)
80 m²BRA-E (eksternt bruksareal)
3 m²TBA (terrasse-balkongareal)
7 m²
Areal
Etasje
-1Byggeår
1988Soverom
2 soveromType
EierleilighetEierform
EierseksjonFasiliteter
Garasje/P-plass og Balkong/TerrasseFellesutgifter
5 027 krEnergimerke
Oransje F
Nøkkelinfo
Unngå doble boligrenter
Vi tilbyr gunstig forsikring.
Vurderer du utleie?
Få et tilbud fra Utleie KrogsveenHva koster lånet?
Sjekk estimert lånekostnadBeskrivelse
Kort om eiendommen
Eiendomsmegler Cecilie Muri ved Krogsveen Bekkestua har gleden av å ønske velkommen til Sleiverudlia 3 - en meget innbydende og hyggelig 3-roms hjørneleilighet beliggende i et attraktivt og barnevennlig boligområde på Bærums Verk. Her bor dere i flotte omgivelser med kort avstand til nydelige turområder, lekeplasser, barnehager, skoler, buss og et rikt utvalg butikker på Bærums Verk handelssenter.
Leiligheten har en god planløsning bestående av en romslig entré, stor og lys stue, lekkert kjøkken, stilrent baderom, separat toalettrom, bod og to gode soverom. Fra stuen er det for øvrig også utgang til en hyggelig balkong. Videre har boligen også ytterligere en praktisk bod og parkeringsplass med lader i felles garasjeanlegg.
Innhold og byggemåte
Innhold og byggemåte
Eiendommen
Sleiverudlia 3, 1354 BÆRUMS VERK
Kommunenummer 3201, gårdsnummer 95, bruksnummer 167, seksjonsnummer 1
Innhold
Totalt bruksareal BRA: 83 kvm
BRA-i:
Leilighet:
Underetasje 80 kvm: Entré/gang, bad, bod, to soverom og stue/kjøkken
BRA-e:
Leilighet:
Underetasje 3 kvm: Bod
Åpent areal:
Leilighet:
Underetasje 7 kvm: Balkong
Vedlagte plantegninger er ikke målbare. De oppgitte arealer er hentet fra rapport med befaringsdato 16.10.2025 utført av Anticimex AS v/Tom Ivar Stensen. Arealene er beregnet og rom er definert etter dagens faktiske bruk, uavhengig av hva som er godkjent av bygningsmyndighetene.
Byggemåte
Selger har fått utarbeidet en tilstandsrapport, dvs. en teknisk gjennomgang av boligen hvor eventuelle avvik, risiko for kjøper og prisoverslag for hva som bør gjøres av oppgradering, er skissert. Se særskilt TGIU (tilstandsgrad ikke undersøkt), samt TG2 og TG3 som viser hva som er boligens normale slitasje, alder og type, hva som er avvik fra dette og hva som bør/må utbedres. Rapporten og selgers egenerklæring er en del av salgsoppgaven og må leses nøye før bud inngis. Kjøper overtar ansvaret for de opplysninger som fremkommer av salgsdokumentasjonen, og kan ikke gjøre gjeldende som mangel noe som burde vært kjent eller som ikke kan anses å ha betydning for avtalen.
Bygningen er iht. tilstandsrapporten oppført i betong. Les for øvrig mer om byggemåte og den tekniske tilstanden i rapporten.
- Boligbygg over 3 etasjer, samt kjeller.
- Leilighet beliggende i byggets underetasje. Adkomst til leiligheten via felles trappegang.
- Bygningen har støpt gulv mot grunn.
- Grunnmur av betong. Bærende vegger og etasjeskillere i hovedsak av betong.
- Yttervegger består av liggende panel.
- Taket er av typen saltak i trekonstruksjoner og er tekket med takstein (Taket er ikke besiktiget).
- Leiligheten har slett entrédør med brannklasse B30 og lydklasse 35dB. Vinduer og balkongdør fra 2013 med karmer av tre og to-lags glass.
- Leiligheten er oppvarmet med elektrisitet. Elektrisk gulvvarme på bad.
- Vannrør med rør-i-rør system. Vanninntaksrør i plast. Synlige avløpsrør av plast. Leilighetens stoppekran er plassert i fordelerskap for rør-i-rør på bad. Automatisk vannstopper med fuktsensor til oppvaskmaskin på kjøkken. Varmtvannsbereder (ukjent alder og størrelse) plassert i hjørnet under kjøkkenbenk. Oppvarming med elektrisitet. Leiligheten har ventilasjon med naturlig tilluft via vegg-/vindusventiler kombinert med mekanisk avtrekk via bad og toalettrom.
- Sikringsskap med automatsikringer, måler og kursoversikt er plassert i felles trappegang.
- Utgang fra stue til balkong på 7 m2. Balkong i trekonstruksjoner med rekkverk av tre. Gulvflate er belagt med terrassebord. Rekkverkshøyde er målt til 0,93 meter.
Det gjøres spesielt oppmerksom på:
TG2:
- Bad (side 8), kjøkken (side 9), øvrige rom (side 10), etasjeskiller (side 10), elektrisk anlegg (side 11), dører (side 11) og balkong (side 11).
TGIU:
- Bad: På grunn av våtrommets utforming og bruk, samt vegg av betong mot toalett, er det ikke praktisk mulig å gjennomføre hulltaking og fuktmåling i de mest fuktutsatte delene av våtsonen. Det ble derimot gjennomført et overflatesøk med fuktindikator, uten at det ble påvist indikasjoner som tyder på fuktskader.
- Avløpsrørene er skjult og eventuell stakeluke er ikke lokalisert.
- Ventilasjonsanlegget er felles for bygningen, og bygningsdelen er ikke undersøkt. Rens av felles ventilasjonssystem er bestilt via sameie og blir utført 04.11.25.
Se supplerende tekst i tilstandsrapporten om bygningsdelene. Kjøper overtar ansvar og risiko for dette.
Utdrag av selgers egenerklæring:
- Har det vært feil på bad, vaskerom eller toalettrom?: Demontert og strammet WC på nytt på baderom. Brukt kile mellom porselen og vegg. Silikonert på nytt. Ny avløpsstuss. Utført i 2025 av Storaas VVS. Total renovering av bad og gjestetoalett i 2019 av Østland Entreprenør AS.
- Er det utført arbeid på tak, yttervegg, vindu eller annen fasade?: Takrens og fasadevask, på oppdrag av sameiet i 2023. Nye vinduer i 2013. Malt rekkverk på verandaen i 2025.
- Har det vært feil på det elektriske anlegget?: Jordfeilsbryter fikk anmerkning ved el-inspeksjon utført av Rejlers Elsikkerhet AS på vegne av Elvia AS i 2022. Jordfeilsbryter byttet.
- Har du andre opplysninger om boligen eller eiendommen utover det du har svart?: Malt alle rom i 2024. Ny oppvaskmaskin installert 2024. Ny inngangsdør (brannsikker) montert i sameiet 2023. Nytt Epoq-kjøkken (fronter og hvitevarer) 2017. Noe slitasje på noen av frontene på kjøkkenet og frysboksene i fryseskap er ødelagt på baksiden, men fungerer som de skal. Bruksmerker på gulv.
Standard
Entré:
Romslig entré med god plass for yttertøy og sko.
Stue og balkong:
Stor og lys stue med gode møbleringsmuligheter og rikelig med lysinnslipp. Stuen har plass for sofagruppe, TV-seksjon, spisegruppe og annet passende møblement. Fra stuen er det utgang til en flott balkong på 7 kvm.
Kjøkken:
Lekkert kjøkken fra 2017 delvis åpent mot stue. Kjøkkenet har slette fronter på skap og skuffer, benkeplate av laminat med nedfelt oppvaskkum, integrert platetopp, stekeovn, mikrobølgeovn, kjøleskap og oppvaskmaskin. Ventilator med kullfilter er plassert over platetopp.
Soverommene:
Leiligheten har to gode soverom, begge med plass for seng, skap og annet passende møblement.
Baderom:
Delikat baderom fra 2019 med fliser på gulv med gulvvarme, fliser på vegger og malt himling med downlights. Badet har veggheng toalett, vegghengt servantinnredning med heldekkende servant, speilskap med overlys over servant, dusjhjørne med innfellbare glassdører, regndusj og hånddusj, og opplegg for vaskemaskin.
Toalettrom:
Praktisk separat toalettrom med fliser på gulv, kombinasjon av fliser og malte veggflater, malt himling, vegghengt toalett og vegghengt servantskap med heldekkende servant.
Løsøre og tilbehør
Vi viser til liste fra Norges Eiendomsmeglerforbund som gjelder fra 01.01.2020 angående løsøre og tilbehør.
Oppvarming
Leiligheten er oppvarmet med elektrisitet. Elektrisk gulvvarme på bad.
Dersom beboelsesrom ikke har vegg- eller fastmonterte varmekilder ved visning, følger dette heller ikke med.
Ferdigattest/brukstillatelse
Det foreligger ikke ferdigattest på eiendommen, men midlertidig brukstillatelse ble gitt 22.09.1988. Tillatelsen er gitt på følgende vilkår:
1. Terrenget må planeres som vist på de approberte tegninger.
2. Det må være forskriftsmessige trapper ved alle utganger.
3. Trapp skal ha forsvarlig rekkverk og solid håndlist på begge sider.
4. Det må støpet bunn i røykpipe i høyde med feiedør.
5. Betingelser som satt av brannvesenet i skriv.
Midlertidig brukstillatelse meddeles på betingelse av at ovennevnte pålegg blir etterkommet innen 31.12.88. Skriftlig melding om at ovennevnte pålegg er etterkommet må være bygningsvesenet i hende innen samme frist.
Det er uklart om dette er utført. Kjøper overtar ansvaret for dette.
Det foreligger ytterligere én arkivsakID (87/1488 - 3 Boder) hvor det ikke foreligger ferdigattest/midlertidig brukstillatelse.
Det gjøres oppmerksom på at det ikke lenger utstedes ferdigattest på tiltak det er søkt om før 1998 jf. plan- og bygningsloven § 21-10. Kommunen vil ikke kreve ferdigattest for disse tiltakene og vil avvise eventuelle søknader. Bestemmelsen innebærer ikke at tiltak med manglende søknad blir lovlige, men at man ikke trenger å avslutte gamle byggesaker. Normalt sett kreves ferdigattest for alle søknadspliktige tiltak som gjøres etter plan- og bygningsloven.
Tinglyste heftelser og rettigheter
Utover andel fellesgjeld overdras leiligheten fri for pengeheftelser med unntak av:
- Dagboknr 33035, tinglyst 23.10.1987, type heftelse: Pantsettelseserklæring til sameiet på kr 10 000,-.
- Dagboknr 6996, tinglyst 03.03.1989, type heftelse: Urådighet: Overdragelse skal godkjennes av sameiestyret.
- Dagboknr 11426, tinglyst 04.05.1992, type heftelse: Pantsettelseserklæring til sameiet på kr 10 000,-.
Sameiet har legalpant for krav mot sameieren som følger av sameieforholdet iht. eierseksjonsloven § 31. Pantet er begrenset oppad til 2G, (G = folketrygdens grunnbeløp).
I tillegg har sameiet tinglyst panterett som nevnt over.
Det er tinglyst 3 servitutter på sameiets eiendom. Disse inneholder bestemmelser om blant annet vann- og kloakkledninger, kabelanlegg på tomten, adkomstrett, garasje/parkering og målebrev.
Servituttene vil følge eiendommen. Kjøpers bank vil få prioritet etter ovennevnte heftelser og servitutter.
Eventuell adgang til utleie
Leiligheten kan leies ut såfremt leiligheten har forsvarlige radonverdier. Leietaker må følge sameiets vedtekter og ordensregler på lik linje som eier.
Beliggenhet og tomteforhold
Beliggenhet og tomteforhold
Beliggenhet
Boligen ligger i et rolig og attraktivt område på Sleiverud, Bærums Verk. Hyggelig nærområde med et godt bomiljø og fin utsikt mot Helset, Toppenhaug og Berglia samt jordene mot Lommedalen. Området passer godt for barnefamilier hvor det er flere barnehager i nærheter og kort vei til både barneskole og ungdomsskole.
Området har store fine lekearealer, forskjellige aktiviteter innen sport og friluftsliv, bademuligheter i Burudvann, golfbaner, ridesenter og alpinbakker, samt treningssenter i Lommedalen. Bærums Verk handelssenter ligger i gangavstand fra boligen, som tilbyr de fleste tjenester. Her har du et rikelig utvalg av både kjede- og nisjebutikker med bl.a. dagligvarebutikker, frisør, bokhandler og vinmonopol, samt flere caféer og restauranter.
Det er for øvrig også kort kjøreavstand til Kolsås- og Rykkinn Senter, samt både Bekkestua og Sandvika med alle forretnings- og servicetilbud, samt kafeer, spisesteder, kino, kulturhus, bibliotek m.m.
Nærmeste bussholdeplass (Sleiverudåsen) ligger ca. 200 meter fra boligen og har hyppige avganger i rushtiden mot Oslo bussterminal. Dersom du skal mot Sandvika har du også bussholdeplass på Bærums Verk. Også her har bussen hyppige avganger i rushtiden.
Adkomst
Veibeskrivelse Se Google Maps - det er enkelt å finne frem i kartet.
Barnehager, skoler og fritid
- Gullhaug barnehage
- Gullhaug Barneskole
- Skarva barnehage
- Grindaberget barnehage
- Helset barnehage avd. Helset og Skollerudveien
- Lommedalen Menighets barnehage
- Toppenhaug barnehage
- Mølladammen ungdomsskole
Dersom skole- og barnehagetilbud er av betydning for kjøpet, ber vi om at det rettes en særskilt henvendelse til kommunen for oppdatert informasjon.
Beskrivelse av tomt
Eiertomt på 3 744 kvm som tilhører sameiet. Tomten er fellesareal. Fellesområdet opparbeidet med blant annet asfalterte internveier, plenarealer, lekeplass, sittegrupper, trær og prydbusker.
Parkering
Det medfølger en vedtektsfestet eksklusiv bruksrett til en biloppstillingsplass i garasjeanlegget. Plassen har elbil-lader koblet mot Laddel.
Vei, vann og avløp
Eiendommen har adkomst via privat vei med felles vedlikeholdsansvar for sameiet.
Eiendommen er tilknyttet kommunalt ledningsnett via private stikkledninger. Sameiet er ansvarlig for private stikkledninger til bygningen.
Regulerings-og arealplaner
Eiendommen er regulert til "konsentrert småhusbebyggelse" i henhold til reguleringsplan "Sleiverud" med planID 1981009 datert 18.03.1986.
Utsnitt av plan med tilhørende bestemmelser kan fås ved henvendelse til megler.
Økonomi
Økonomi
Boligens kostnader
Fellesutgiftene er kr 5 027,- pr. mnd. og inkluderer: Forretningsførsel, kommunale avgifter, drift og vedlikehold, felles bygningsforsikring, kabel-TV/internett, nedbetaling av fellesgjeld, trappevask mm.
Fellesutgiftene fordeles slik:
- Fellesutgifter kr. 3 176,-
- Renter og omkostninger lån kr. 806,-
- Avdrag lån kr. 327,-
- Dugnadsbidrag kr. 50,-
- Renhold fellesarealer kr. 182,-
- Kabel-TV kr. 486,-
Fellesutgiftene justeres i forhold til sameiets faktiske utgifter. Det er vedtatt en økning på posten "fellesutgifter" på 10% fra 01.07.26. Ny husleie for denne seksjonen blir 5.344,- fra 01.07.26
Nåværende eier har et strømforbruk som tilsvarer ca. 13-14.000 kwh. pr. år.
Utgiftene er basert på nåværende eiers forbruk. Kjøper må selv tegne innboforsikring.
Formuesverdi
Formuesverdi for 2023 var kr 1 421 091,- ifølge skatteetaten. Beløpet forutsetter at eier bor fast i boligen (primærbolig).
Ved eventuell øvrig bruk av eiendommen (f.eks. fritidsbolig, pendlerbolig, utleieobjekt) var formuesverdien for 2023 kr 5 684 363,-.
Formuesverdien justeres normalt årlig. Se skatteetaten.no for mer informasjon om fastsettelse av formuesverdien.
Opplysninger om fellesgjeld
Andel formue er kr 19 008,- pr. 31.12.2024
Andel fellesgjeld er kr 134 185,- pr. 07.10.2025
Total fellesgjeld for sameiet er kr 4 063 546,- pr. 07.10.2025 og lånevilkårene er:
Lånenummer: 94907066503, Handelsbanken
Annuitetslån, 12 terminer per år.
Rentesats per 07.10.2025: 7.05% pa.
Antall terminer til innfrielse: 205
Saldo per 07.10.2025: 4 063 546
Andel av saldo: 134 186
Første termin/første avdrag: 01.12.2022 ( siste termin 01.11.2042 )
Omkostninger
4 730 000,00 Prisantydning
134 185,00 Andel av fellesgjeld
--------------------------------------------------------
4 864 185,00 Pris inkl. fellesgjeld
Omkostninger
121 600,00 Dokumentavgift til staten (2,5% av kjøpesum)
9 950,00 Gjensidige Boligkjøperpakke (valgfri)
545,00 Tinglysing panterettsdokument
545,00 Tinglysing skjøte
--------------------------------------------------------
132 640,00 Omkostninger totalt
--------------------------------------------------------
4 996 825,00 Totalpris inkl. omkostninger
--------------------------------------------------------
Dersom sameiet har fellesgjeld, vil leilighetens andel av fellesgjelden komme i tillegg til kjøpesummen. Denne gjelden skal ikke innbetales i oppgjøret, men følger leiligheten.
Totalpris inkl. omkostninger forutsetter kjøp til prisantydning.
Det tas forbehold om endringer i avgifter og gebyrer.
Tilbud om lånefinansiering
Megler formidler gjerne kontakt med rådgiver hos vår samarbeidspartner BN Bank. De har konkurransedyktige betingelser samt rask og løsningsorientert behandling av din lånesøknad. Krogsveen mottar et honorar for denne formidlingen.
Betalingsbetingelser
Kjøpesum inkludert omkostninger, samt pantedokument tilknyttet eventuelt lån, skal være disponibelt hos megler 2 virkedager før overtagelsen.
Annen viktig informasjon
Annen viktig informasjon
Eier
Rasmus Patric Alexander Jakobsson og Ida Linnea Gunnarsson
Informasjon om sameiet
Eiendommen er seksjonert, og leiligheten er tilknyttet Elvehøy boligsameie, med sameiebrøk 83/2538.
Sameiet består av 30 seksjoner.
Forretningsfører er ABBL.
Dugnad må påregnes.
Dyrehold er tillatt.
Vedlikehold/innkjøp i 2024:
- De årlige inspeksjonene og service på garasjeport er gjennomført.
- Det er utført årlig service på Everlite røykluker og sentral i alle oppgangene.
- Det har blitt gjennomført vår- og høstdugnad denne perioden, og vi har fått gjort flere små prosjekter.
- Alle metallgelendere som var avflasset og i forskjellige farger ble pusset og lakket i samme farge som inngangsdørene og vinduskarmer.
- Vi har malt veggene i slusene inn til garasjen, og gulvet i nr 7 er også malt. Det står igjen maling av gulv i nr 3 og 5.
- Store asfalthull i garasjen har blitt utbedret.
- Det er kjøpt inn gruskasser til hver inngang plassert i pappbodene, og en større utenfor garasjen.
- Det ble fjernet ytterligere busker og røtter i skråningen og ytterligere beplantning med busker. Arbeidet fortsetter i 2025.
- Det er nå installert feieluker i 6 av de høyeste pipene etter pålegg, da disse er for høye mht. tilgang for feieren. Arbeidet startet 2024 med 2 piper. Arbeidet på de resterende ble avsluttet april 2025.
- Vi har siden mai 2024 hatt overvåkingssystem som kan registrere evt. fukt og bevegelse i betongen. Dette har vært overvåket av Tek-Zence AS. Det vil foreligge en årsrapport av overvåkingen i mai 2025. Vi velger nå å avslutte overvåkingen for denne gang etter rapport er tilgjengelig.
- Det har også blitt byttet til nye brannslukkere (6 stk) pga. datomerking.
Planlagt vedlikehold/innkjøp i 2025:
- Garasje: Oppgradering til 4G-modem for elbil-lading i garasjeanlegget er nå ferdigstilt (med oppstartproblemer). Grunnen til dette er at 3G er lagt ned og ladestukturen har «fungert» på 2G frem til den nye oppgradering. Feilen lå hos både Nopek og Laddel, og er nå utbedret.
- Malingsdugnad: Det er i tillegg til vår- og høstdugnad også satt opp en egen malingsdugnad 21. juni 2025 kl 10.00. Det er behov for arbeid blant annet på bodene, ved garasjeporten (og pipene).
- Taket: Taket skal inspiseres og det skal skiftes ut noen takstein. Det er også behov for maling (lakk) av pipene grunnet «flassing». Dette planlegges sommer 2025.
Vesentlig vedlikehold de neste 5 år:
- Trefelling: Ved årsmøte i 2019 ble det vedtatt at vi skal fjerne de fleste høye grantrærne bak huset. Dette vil tilføre mer lys/sol til bygget som vil være fordelaktig for kledningen mtp fukt/råte etc. Planlegging og innhenting av pristilbud har hittil blitt satt på vent pga av andre presserende tiltak og utbedringer. Det kan muligens kunne starte igjen 2025.
- Drenering: Ny drenering rundt bygget, ikke fastsatt.
Iht. sameiets vedtekter må kjøper godkjennes av styret som ny sameier. Det er kjøpers ansvar at styregodkjenning blir gitt, men styret kan ikke nekte godkjenning uten saklig grunn.
Vi gjør videre oppmerksom på at det iht. eierseksjonsloven ikke er anledning å erverve mer enn 2 seksjoner i sameiet, her teller også eierskap via. firma, nærstående og familie. Kjøper har risikoen for at overskjøting på denne bakgrunn kan nektes av Statens Kartverk. I så fall vil kjøper uansett være forpliktet til å gjennomføre handelen, og oppgjør til selger vil finne sted tross manglende overskjøting. Konferer med megler for mer informasjon.
Overtakelse
Etter nærmere avtale.
Boligselgerforsikring
Selger har i forbindelse med salget tegnet boligselgerforsikring levert av Gjensidige.
Boligselgerforsikringen dekker selgers ansvar etter avhendingsloven begrenset oppad til kr 14 millioner. Dersom kjøper oppdager forhold ved eiendommen som hen mener utgjør en mangel ved eiendommen, vil Gjensidige behandle reklamasjonen på vegne av selger. Forsikringsvilkår kan fås ved henvendelse til megler.
Vedlagt salgsoppgaven følger selgers egenerklæringsskjema og tilstandsrapport. Interessenter må sette seg inn i dokumentene før bud inngis.
Boligkjøperforsikring
Innen kontraktsmøtet må kjøper ta stilling til om det ønskes å bestille Boligkjøperpakken gjennom Gjensidige. I denne gunstige pakken er boligen ferdig forsikret og inkluderer rettshjelpsforsikring, også kalt Boligkjøperforsikring. Rettshjelpsforsikring gir trygghet og tilgang på profesjonell juridisk hjelp dersom det oppdages uventede feil eller mangler det første året etter overtagelse. Forsikringsselskapet behandler i så fall ethvert mangelskrav kjøper måtte ha overfor selger.
Boligkjøperpakken inkluderer bygningsforsikring for hus og hytte, innboforsikring, flytteforsikring og dobbel rentedekning - i situasjoner hvor kjøper ikke får solgt nåværende primærbolig.
Kjøper mottar ingen særskilt faktura for Boligkjøperpakken da kostnaden det første året legges til kjøpesummen for boligen. Det gjøres oppmerksom på Krogsveen mottar et honorar for denne formidlingen.
Produktark for Boligkjøperpakken ligger vedlagt i salgsoppgaven.
Dersom ikke boligkjøperpakke ønskes kan kun rettshjelpsforsikring, også kalt boligkjøperforsikring, tegnes særskilt via megler. Rettshjelpsforsikringen varer i 5 år fra overtagelse og leveres gjennom Gjensidige. Ta kontakt med megler for ytterligere informasjon.
Selskap og privatpersoner som driver med kjøp/salg/utvikling som ledd i egen næringsvirksomhet kan ikke tegne boligkjøperpakke eller rettshjelpsforsikring.
Budgivning
Forbrukerinformasjon om budgivning er vedlagt denne salgsoppgaven og er også på vår hjemmeside Krogsveen.no. Alle bud og budforhøyelser må inngis skriftlig. I tillegg må legitimasjon være fremlagt sammen med signatur fra budgiver.
Vi oppfordrer til å gi bud elektronisk via GI BUD-knappen på eiendommens hjemmeside på Krogsveen.no. Da vil samtlige vilkår bli oppfylt.
Eventuelle forhøyelser eller endringer av budet kan bekreftes pr SMS eller på e-post. Vi oppfordrer alltid til å kontakte megler pr. telefon i tillegg da forsinkelser i SMS og e-post kan forekomme.
For at budene skal kunne bli behandlet og videreformidlet skriftlig til alle involverte parter, må alle bud ha en tilstrekkelig lang akseptfrist, jf. eiendomsmeglingsforskriften § 6-3.
Selger må også skriftlig akseptere budet før aksept kan formidles til budgiver. Akseptfrist bør derfor være på minimum 30 minutter, og budforhøyelser må derfor skje i god tid før fristens utløp.
Bud i forbrukerforhold kan uansett ikke settes med kortere frist enn kl. 12.00 første virkedag etter siste annonserte visning. I tillegg kan ikke budet ha forbehold om at det skal holdes hemmelig ovenfor øvrige interessenter. Megler har iht lov om eiendomsmegling ikke anledning til å videreformidle disse budene, og de vil dermed heller ikke bli journalført.
Etter at eiendommen er solgt vil kjøper og selger få tilsendt budjournal. Øvrige budgivere kan få utlevert kopi av budjournalen i anonymisert form.
Hvitvaskingsreglene
I henhold til lov om hvitvasking og terrorfinansiering har megler plikt til å gjennomføre kontrolltiltak overfor kunder, herunder fullmektiger. Dette innebærer bl.a. å bekrefte kunders og reelle rettighetshaveres identitet på bakgrunn av fremvist gyldig legitimasjon eller på annen godkjent måte, samt å innhente opplysninger om kundeforholdets formål og tilsiktede art.
Dersom slike kundetiltak ikke kan gjennomføres, kan megler ikke etablere kundeforholdet eller utføre transaksjonen.
Hvis kjøper ikke bidrar til gjennomføring av kundekontrollen og dette fører til at transaksjonen blir forsinket eller ikke kan gjennomføres, vil dette ansees som mislighold av avtalen og gi selger rettigheter etter avhendingslova kapittel 5. I tilfeller der selger ikke bidrar til gjennomføring av løpende kundekontroll underveis i oppdraget, er det selger som misligholder sine forpliktelser etter avtalen og gi kjøper rettigheter etter avhendingslovens kapittel 4. Partene er selv ansvarlige for eventuelle kostnader og ansvar dette kan medføre. Eiendomsmegleren eller eiendomsmeglingsforetaket kan ikke holdes ansvarlig for de konsekvenser dette vil kunne få for partene eller andre som har interesser i eiendomshandelen.
Kjøper oppfordres til å innbetale kjøpesummen som ikke kommer fra låneinstitusjon i én samlet innbetaling fra egen konto i norsk bank. Megler har plikt til å melde fra til Økokrim om eiendomshandler som fremstår som mistenkelige. Melding sendes Økokrim uten at partene varsles.
Personopplysningsloven
I henhold til personopplysningsloven gjør vi oppmerksom på at interessenter kan bli registrert for videre oppfølging.
Lovanvendelse
Generelle bestemmelser
Salgsoppgaven er basert på de opplysningene selger har gitt til megler, den bygningssakyndiges tilstandsrapport, samt opplysninger innhentet fra kommunen, Kartverket og andre tilgjengelige kilder. Det er viktig at kjøper setter seg grundig inn i alle salgsdokumentene, herunder salgsoppgave, tilstandsrapport og selgers egenerklæring. Kjøper anses kjent med forhold som er tydelig beskrevet i salgsdokumentene, og slike forhold kan ikke påberopes som mangler. Dette gjelder uavhengig av om kjøper har lest dokumentene. Alle interessenter oppfordres til å undersøke eiendommen nøye, gjerne sammen med fagkyndig før bud inngis. Kjøper som velger å kjøpe usett kan ikke gjøre gjeldende som mangel noe han burde blitt kjent med ved undersøkelsen.
Dersom det er behov for avklaringer, anbefaler vi at interessenter rådfører seg med eiendomsmegler eller egne rådgivere før det legges inn bud.
En bolig som har blitt brukt i en viss tid, har vanligvis blitt utsatt for slitasje og skader kan ha oppstått. Slik bruksslitasje må kjøper regne med, og det kan avdekkes enkelte forhold etter overtakelse som nødvendiggjør utbedringer. Normal slitasje og skader som nødvendiggjør utbedring, er innenfor hva kjøper må forvente og vil ikke utgjøre en mangel.
Kjøper og selgers rettigheter og plikter reguleres av avtalen mellom partene, samt informasjonen som har vært tilgjengelig for kjøperen i forbindelse med handelen. Avtalen utfylles av avhendingsloven, og det gjelder ulike avtalevilkår avhengig av om kjøper er forbrukerkjøper eller ikke. Dette er nærmere beskrevet nedenfor.
På grunn av ulike avtalevilkår kan selger vurdere bud fra en som ikke er forbruker, ulikt fra en forbrukers bud. Dersom kjøper ikke er forbruker, er selger sitt mulige mangelsansvar begrenset fordi eiendommen selges "som den er". Selger kan ikke ta «som den er»- forbehold overfor en forbrukerkjøper. Selv et lavere bud fra en som ikke er forbruker kan foretrekkes fordi begrensningen i mulig mangelsansvar kan ha egenverdi for selger. Selger står fritt til å forkaste eller akseptere ethvert bud, og er for eksempel ikke forpliktet til å akseptere høyeste bud.
Budgiver skal i budskjema avgi egenerklæring om budgiver er forbruker eller næringsdrivende/ person som hovedsakelig handler som ledd i næringsvirksomhet. Budgivere får informasjon dersom andre bud er inngitt av en som ikke er forbruker.
Forbrukerkjøp - definisjon
Med forbrukerkjøp menes kjøp av eiendom når kjøperen er en fysisk person som ikke hovedsakelig handler som ledd i næringsvirksomhet.
Forbruker – avtalevilkår
Eiendommen har en mangel dersom den ikke er i samsvar med kravene som følger av avtalen, eller det foreligger brudd på bestemmelsene i avhendingsloven §§ 3-2 til 3-8. Hvis eiendommen ikke er i samsvar med det kjøperen må kunne forvente ut ifra alder, type og synlig tilstand, kan det være grunnlag for mangelskrav. Det samme gjelder hvis det er holdt tilbake eller gitt uriktige opplysninger om eiendommen. Dette gjelder likevel bare dersom man kan gå ut ifra at det virket inn på avtalen at opplysningen ikke ble gitt eller at mangelskravet ikke blir rettet i tide på en tydelig måte.
Boligen kan ha en mangel etter avhendingsloven § 3-3 andre ledd, dersom det er avvik mellom opplyst og faktisk innvendig areal, forutsatt at avviket er på 2% eller mer og minimum 1 kvm.
Ved beregning av et eventuelt prisavslag eller erstatning må kjøper selv dekke tap/kostnader opptil et beløp på kr 10 000 (egenandel).
Ikke-forbruker (næringsdrivende) – definisjon
Hvis kjøper er en juridisk person, eller en fysisk person som hovedsakelig handler som ledd i næringsvirksomhet, vil kjøpet ikke anses som et forbrukerkjøp.
Ikke-forbruker – avtalevilkår
Eiendommen har en mangel dersom den ikke er i samsvar med kravene som følger av avtalen.
Eiendommen selges «som den er», og selgers ansvar utover det konkret avtalte er da begrenset etter avhendingsloven § 3-9, første ledd andre setning.
Avhendingsloven § 3-3 andre ledd fravikes, og hvorvidt boligens arealsvikt utgjør en mangel vurderes etter avhendingsloven § 3-8.
Informasjon om kjøpers undersøkelsesplikt, herunder oppfordringen om å undersøke eiendommen nøye, gjelder også for kjøpere som ikke anses som forbrukere.
Det forutsettes at hjemmel overføres til kjøper. Hvis kjøper ikke ønsker hjemmelsoverføring av eiendommen, må det tas forbehold om dette i budet.
Meglers vederlag
Meglers vederlag betales av selger og er avtalt til:
Vederlag: 1,00 % av salgssummen inkl. eventuell fellesgjeld.
Minimumsprovisjon er kr 50 000,00
Vederlag:
Foto leilighet kr 5 000,00
Kontroll av hjemmel og heftelser kr 2 900,00
Markedsføringspakke kr 28 250,00
Oppgjør kr 7 500,00
Tilrettelegging kr 17 000,00
Visninger pr stk kr 2000,-/ Overtagelse (3 stk inkl.)
Utlegg:
Eierskiftegebyr kr 6 570,00
Innhenting av informasjon forretningsfører kr 4 400,00
Innhenting av offentlig opplysninger Bærum kommune kr 4 426,00
Tinglysing sikring kr 545,00
Andre utgifter:
AX tilstandsrapport leilighet kr 10 750,00
Boligselgerforsikring Gjensidige Snr - regnes av prisantydning kr 22 900,00
Vi er opptatt av verdiskapning, og har knyttet til oss samarbeidspartnere som skal sikre våre kunder de beste produkter og tjenester;
• I forbindelse med forberedelse av salget, innhenter vi informasjon om eiendommen hovedsakelig fra vår samarbeidspartner Amibita.
• Gjensidige leverer boligselgerforsikring og tilbyr bygningsforsikring
• Boligkjøperforsikring leveres av Hiscox og med Sedgwick som skadebehandler, og er formidlet gjennom Gjensidige.
• BN bank tilbyr finansieringsløsninger
• Vår avdeling Krogsveen Pluss tilbyr flyttetjenester som utvask, visningsvask, lager, tømming og transport av flyttelass, i tillegg til å formidle kontakt med Flip for overflateoppussing.
• I forbindelse med overtagelse av eiendommen tilbyr Overo avtale om strøm, alarm og bredbånd.
• Krogsveen er, sammen med øvrige bransjeaktører, medeier i den digitale annonseringsplattformen Hjem som eies av Bomega AS.
Opplysninger om oppdraget
Oppdragsnummer 10-0305/25
Eiendomsmegler Krogsveen AS, avd. Bærum
Gml. Ringeriksvei 40, 1357, BEKKESTUA
950 007 613
Oppdragets KR-kode KR10.25305
Dato
Sist oppdatert: 25. mai 2026 kl. 13:56
Dokumenter
Dokumenter
PDF – 396 KB
PDF – 680 KB
PDF – 967 KB
PDF – 1 MB
PDF – 3 MB
PDF – 1007 KB
PDF – 64 KB
PDF – 312 KB
PDF – 29 KB
PDF – 127 KB
PDF – 392 KB
Område
Legg til steder som er viktige for deg
Visning
Ta kontakt med megler for avtale om privatvisning.
Ønsker du kun å bli holdt orientert, kan du fra eiendommens hjemmeside få varsel om solgtpris, eller kontakte megler.
Lurer du på noe?
Unngå doble boligrenter
Vi tilbyr gunstig forsikring.
Vurderer du utleie?
Få et tilbud fra Utleie KrogsveenHva koster lånet?
Sjekk estimert lånekostnadVil du varsles om lignende boliger?
Ved å lagre ditt boligsøk hos oss får du beskjed når vi har en bolig som ligner denne, før den legges ut på markedet!
































