Selvbyggerveien 40
5 780 000 kr
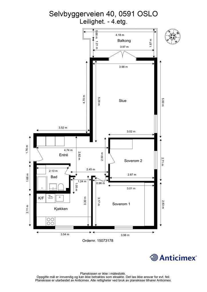
66 m²
2 soverom
Solgt

Presenteres av
Hanne PettersenTONSENHAGEN
RÅLEKKER topp-/endeleilighet i markagrensen! 3-roms m/ høy standard - solrik balkong - *garasjeplass m/EL
Prisantydning
5 780 000 krAndel fellesgjeld
181 251 krOmkostninger
18 978 krTotalpris
5 980 229 kr
Pris
Bruksareal
78 m²BRA-I (internt bruksareal)
66 m²BRA-E (eksternt bruksareal)
12 m²TBA (terrasse-balkongareal)
8 m²
Areal
Etasje
4Byggeår
1953Soverom
2 soveromBad
1 badType
AndelsleilighetEierform
AndelFasiliteter
Garasje/P-plass og Balkong/TerrasseFellesutgifter
6 519 krEnergimerke
Grønn F
Nøkkelinfo
Unngå doble boligrenter
Vi tilbyr gunstig forsikring.
Vurderer du utleie?
Få et tilbud fra Utleie KrogsveenHva koster lånet?
Sjekk estimert lånekostnadBeskrivelse
Kort om eiendommen
Flott beliggende toppleilighet med nydelig utsikt - her bor du høyt, frodig og fritt uten innsyn!
Denne leiligheten skiller seg ut både på standard og beliggenhet.
Bør oppleves!
Skauen borettslag ligger i markagrensen og er omringet av store grøntareal med fotballbaner, lekeplasser, ski/-turløyper, slalåmbakke, skøytebane og badedam.
Lekkert Sigdal-kjøkken fra 2019
Delikat bad modernisert 2019
Solrik, vestvendt balkong på 8 kvm
Kjeller-/loftsbod på 6 og 13 kvm (gulvareal)
Nye sikringer og nytt, skjult el-anlegg
Downlights
Garasjeplass med elbillader kan kjøpes separat. Beliggende 60 meter fra oppgangen*
Nye vinduer/balkongdører fra 2023
Felles smørebod, trimrom, utleielokale, vaskeri og hobbyrom
Forkjøpsretten er avklart
Område
Legg til steder som er viktige for deg
På flyttefot? Tenk kjøp og salg samtidig.
Få din egen rådgiver gjennom hele kjøps- og salgsprosessen. Det starter med en verdivurdering.
Unngå doble boligrenter
Vi tilbyr gunstig forsikring.
Vurderer du utleie?
Få et tilbud fra Utleie KrogsveenHva koster lånet?
Sjekk estimert lånekostnadVil du varsles om lignende boliger?
Ved å lagre ditt boligsøk hos oss får du beskjed når vi har en bolig som ligner denne, før den legges ut på markedet!
På flyttefot? Slik gjør vi det enklere for deg
Skreddersydd flyttepakke
Vi fikser håndverkere, vask, pakking, lagring og transport, og legger ut for utgiftene underveis.
Hjelp med både kjøp og salg
Hos oss har du din egen rådgiver gjennom hele kjøps- og salgsprosessen.
Hjelp til finansiering
Vårt samarbeid med BN Bank sikrer deg rask og løsningsorientert hjelp, til konkurransedyktige betingelser.

