Kilehagen 69
2 750 000 kr
39 m²
1 soverom
Komplett salgsoppgave

Ås/Kilehagen
Lys og moderne 2-roms fra 2006 | Attraktiv beliggenhet nær NMBU | P-plass og romslig bod | IN-ordning | Lave kjøpsomk.
Prisantydning
2 750 000 krAndel fellesgjeld
512 688 krOmkostninger
11 040 krTotalpris
3 273 728 kr
Pris
Bruksareal
44 m²BRA-I (internt bruksareal)
39 m²BRA-E (eksternt bruksareal)
5 m²TBA (terrasse-balkongareal)
14 m²
Areal
Etasje
1Byggeår
2006Soverom
1 soveromBad
1 badType
AndelsleilighetEierform
AndelFellesutgifter
7 109 krEnergimerke
Rød D
Nøkkelinfo
Unngå doble boligrenter
Vi tilbyr gunstig forsikring.
Vurderer du utleie?
Få et tilbud fra Utleie KrogsveenHva koster lånet?
Sjekk estimert lånekostnadBeskrivelse
Kort om eiendommen
En lys og moderne 2-roms leilighet fra 2006 i idylliske og rolige omgivelser. Attraktiv beliggenhet nær NMBU og Ås sentrum. I Ås sentrum finnes de aller fleste servicetilbud og togstasjon. Bussholdeplass med forbindelser til Ski og Drøbak. Flotte turmuligheter i nærområdet.
Leiligheten ligger i 1. etasje med egen inngang fra bakkeplan. Varmekabler i gulv i alle rom. Leiligheten består av entré, stue med åpen kjøkkenløsning, lyst soverom med garderobeskap, flislagt bad og gang med garderobeskap. Ny overbygget vestvendt terrasse med gode solforhold. Parkeringsplass og utebod rett ved leiligheten.
Perfekt leilighet for studenter eller som førstegangskjøp!
Velkommen til hyggelig visning!
Innhold og byggemåte
Innhold og byggemåte
Eiendommen
Kilehagen 69, 1430 ÅS
Kommunenummer 3218, gårdsnummer 42, bruksnummer 284, ideell andel 1/1
Andelsnummer 20, Kilehagen BRL v/Hedda Kleven Berg, organisasjonsnummer 988549509
Innhold
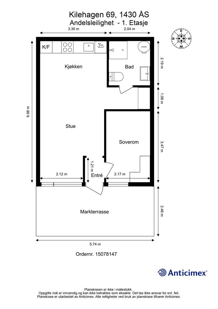
Totalt bruksareal BRA: 44 kvm
BRA-i:
Leiligheten:
1. etasje 39 kvm: Entré, stue/kjøkken, soverom og bad/vaskerom.
BRA-e:
Leiligheten:
1. etasje 5 kvm: Utvendig bod.
Åpent areal:
Leiligheten:
1. etasje 14 kvm: Markterrasse.
Uteboden er plassert i et frittstående bodhus, rett bak biloppstillingsplassene.
Vedlagte plantegninger er ikke målbare. De oppgitte arealer er hentet fra rapport med befaringsdato 08.01.2026 utført av Anticimex v/Stian Darell.
Byggemåte
Selger har fått utarbeidet en tilstandsrapport, dvs. en teknisk gjennomgang av boligen hvor eventuelle avvik, risiko for kjøper og prisoverslag for hva som bør gjøres av oppgradering, er skissert. Se særskilt TGIU (tilstandsgrad ikke undersøkt), samt TG2 og TG3 som viser hva som er boligens normale slitasje, alder og type, hva som er avvik fra dette og hva som bør/må utbedres. Rapporten og selgers egenerklæring er en del av salgsoppgaven og må leses nøye før bud inngis. Kjøper overtar ansvaret for de opplysninger som fremkommer av salgsdokumentasjonen, og kan ikke gjøre gjeldende som mangel noe som burde vært kjent eller som ikke kan anses å ha betydning for avtalen.
Bygningen er iht. tilstandsrapporten oppført i tre. Boligbygg over 2 etasjer. Gulv mot grunn og grunnmur av betong. Bærende konstruksjoner samt etasjeskillere av trekonstruksjoner. Fasader utført i liggende kledning. Takkonstruksjon utført i valmtaksform utvendig tekket med takstein (ikke besiktiget). Leiligheten har profilert entrédør med glassfelt fra byggeår utstyrt med elektrisk kodelås. Vinduer med karmer av tre og to-lags glass fra byggeår. Vannrør av typen rør-i-rør. Synlige avløpsrør av plast. Varmtvannsbereder på 200 liter fra byggeår plassert på bad. Oppvarming via elektrisitet. Elektrisk gulvvarme i alle rom. Boligen har ventilasjon i form av friskluftsventiler i vinduer kombinert med mekanisk avtrekk på bad samt kjøkken med styring via kjøkkenventilator. Les for øvrig mer om byggemåte og den tekniske tilstanden i rapporten.
Det gjøres spesielt oppmerksom på:
Tilstandsgrad 2 (TG2):
- Bad/vaskerom: Sprekk/hull i flisfuge registrert i dusjsonen. Flisfugene fremstår som slitte og kunne med fordel vært etterfylt. Fare for utvikling og løse fliser. Tiltak: Fornye flisfuger på gulvet i dusjsonen. Nivåforskjell fra døråpning på topp overflate gulv og til hovedsluk er på tilfeldig sted målt til ca. 15 mm. Dette er vurdert til å ikke være tilfredsstillende mht. lekkasjesikkerhet. Lokalfall i dusjsonen er mindre enn hva som ideelt anbefales. Det ble målt på tilfeldig sted og målingen viste et fallforhold på 0-3 mm. Fallet er mindre enn 1:50 i en avstand på 80 cm. Konsekvens vil være redusert avrenning til sluk. Tiltak: Etablere fall etter dagens standard. Tettesjiktet har en alder som tilsier at restlevetiden er usikker. Rommets lekkasjesikkerhet kan derfor ikke verifiseres. Det er hull etter tidligere innfestinger i dusjsonen. Det er ukjent om hvorvidt hullene er tilfredsstillende tettet. Konsekvens er økt fare for lekkasjer og uttettheter i tettesjiktet. Tiltak: Etablere nytt tettesjikt for å øke lekkasjesikkerheten.
- Kjøkken: Vannrørene er ikke plugget mot varerør. Av denne grunn kan eventuelt lekkasjevann fra rør-i-rør system forårsake følgeskader. Det er ikke montert automatisk lekkasjestopper for å begrense eventuelle lekkasjer fra vanninstallasjoner. Ved eventuelle lekkasjer fra vanninstallasjoner kan dette medføre følgeskader før det oppdages.
- Varmtvannsbereder pga. alder.
- Tekniske installasjoner: Det er registrert irr og forkalkning på endeplugg samlestokk i fordelerskap på bad. Forholdet indikerer utettheter i koblingen og kan medføre lekkasje og skade på rør. Tiltak: Endeplugg bør utbedres av rørlegger.
Det har tidligere vært påvist forekomst av skjeggkre i leiligheten. Det ble behandet to ganger med giftråte i alle boenhetene i bygget i 2022, med fem mnd. mellom hver runde. Behandlingen ble utført av Anticimex i regi av borettslaget. Ingen skjeggkre observert i etterkant av behandlingen. Kjøper overtar risikoen for at dette eventuelt kommer tilbake på et senere tidspunkt. Konferer med megler for ytterligere informasjon.
Interessenter må sette seg inn i byggemåte, tilstandsgrader og den tekniske tilstanden ved å lese den vedlagte tilstandsrapporten. Kjøper overtar fullt ansvar og risiko for dette.
Standard
En lys og moderne 2-roms leilighet fra 2006 med god planløsning. Leiligheten ligger i 1. etasje og har overbygget vestvendt terrasse på ca. 14 kvm. Gode solforhold og god plass til utemøbler og grill på terrassen. Nye terrassebord fra 2021 og det er lagt på tak under overliggende terrasse i 2021. Parkeringsplass og utebod på 5 kvm.
Egen inngang til leiligheten fra bakkeplan.
Entré:
Lys entré med plass til å henge fra seg yttertøy og sette fra seg sko. Videre inn til soverom og stue/kjøkken.
Stue:
Romslig stue med åpen kjøkkenløsning. God plass til sofagruppe, tv-møblement og kontorplass. Store vindusflater mot vest slipper inn godt med naturlig lys. Spisestuen er praktisk plassert mellom stue og kjøkken.
Kjøkken:
Kjøkkeninnredning fra Sigdal med glatte fronter og laminert benkeplate. Overskapsbelysning og stikkontakter på vegg over kjøkkenbenken. Nedfelt oppvaskkum i rustfritt stål. Integrert oppvaskmaskin, integrert stekeovn med keramisk platetopp og integrert kjøleskap med frysedel. Integrert ventilator med avtrekkskanal. Ventilatoren og ventilasjonsenhet blir byttet ut i slutten av januar/starten av februar 2026. Integrerte hvitevarer på kjøkkenet medfølger ved salg. Vannrør av typen rør-i-rør system. Godt med skapplass på kjøkkenet.
Baderom:
Flislagt bad fra byggeår med gulvvarme. Veggmontert innredning med heldekkende servant. Speil over servant med belysning og stikkontakt. Dusjnisje med glassdører. Gulvstående toalett. Opplegg for vaskemaskin på badet. Varmtvannsbereder på ca. 200 liter. Mekanisk avtrekksventil plassert i vegg.
Soverom:
Soverom med god plass til seng, nytt hjørneskap fra 2021 og plass til kommode. En vegg er nylig tapetsert. Det er satt inn ny dør til soverommet i 2024.
Gang:
I gangen utenfor badet er det et praktisk garderobeskap med godt med oppbevaringsplass.
Løsøre og tilbehør
Vi viser til liste fra Norges Eiendomsmeglerforbund som gjelder fra 01.01.2020 angående løsøre og tilbehør.
Følgende medfølger:
Alt av hvitevarer på kjøkkenet.
Følgende kan bli stående mot betaling:
- Vaskemaskin, spisegruppe med stoler og sofa.
Følgende medfølger ikke:
Nattbordslampe, hylle ved skrivepult, gardinstenger (stue og soverom), speil og lysholder ved spisebord, knaggrekke på soverom, 2 stk. trådkurvsystem i garderobeskap (både soverom og gang ved badet), diverse kroker i boden, reol i boden og hylle i boden.
Oppvarming
Varmekabler i gulv i hele leiligheten. Dersom beboelsesrom ikke har vegg- eller fastmonterte varmekilder ved visning følger dette heller ikke med.
Ferdigattest/brukstillatelse
Det foreligger ikke ferdigattest på eiendommen, men midlertidig brukstillatelse ble gitt 22.06.2007.
Normalt sett kreves ferdigattest for alle søknadspliktige tiltak som gjøres etter plan- og bygningsloven og siden dette er bygd og søkt om etter 1998 så kan borettslaget fortsatt søke om ferdigattest.
Kjøper overtar boligen slik den fremstår på visning.
Tinglyste heftelser og rettigheter
Utover andel fellesgjeld overdras leiligheten fri for pengeheftelser.
Borettslaget har legalpant for forfalte felleskostnader og andre krav som følger av borettslagsforholdet iht. burettslagsloven § 5-20. Pantet er begrenset oppad til 2G (G = folketrygdens grunnbeløp).
Det er tinglyst følgende servitutter på borettslagets eiendom.
Dagboknr 8433, tinglyst 11.07.2005, type heftelse: Bestemmelse om veg. Hjemmelshaver til gnr. 42, bnr 1 i Ås, Universitetet for miljø- og biovitenskap, gir den som til enhver tid er hjemmelshaver til gnr. 42, bnr. 284 i Ås veirett på regulert og godkjent adkomstvei over gnr. 42, bnr. 1 med innkjøring fra Herumveien og frem til gnr. 42, bnr. 284.
Servitutten vil følge eiendommen. Kjøpers bank vil få pant etter ovennevnte heftelser og servitutter.
Eventuell adgang til utleie
Andelseier kan ikke uten samtykke fra styret i borettslaget overlate bruken av boligen til andre. Med samtykke kan andelseier overlate boligen til andre i inntil tre år hvis andelseier har bodd i boligen i minst ett av de to siste år. Utleie i andre tilfeller kan godtas ved særlige grunner, jf. burettslagslova § 5-6. Utleie forutsetter at leiligheten har forsvarlige radonverdier. Se også borettslagets vedtekter og konferer megler ved spørsmål.
Det er krav til forsvarlige radonnivåer ved utleie. Det ble målt radonverdi i 2018 på 99 Bq/m3 og 111 Bq/m3 i leiligheten. 99 Bq/m3 er innenfor angitt grenseverdi. 111 Bq/m3 er over angitt tiltaksverdi. Borettslaget har konkludert med at hvis man passer på å lufte godt så er det tilstrekkelig nå. Det er ikke gjort tiltak utover det.
Beliggenhet og tomteforhold
Beliggenhet og tomteforhold
Beliggenhet
Velkommen til Kilehagen 69!
En moderne 2-roms leilighet i idylliske og rolige omgivelser. Borettslaget ble ferdigstilt i 2006 med attraktiv beliggenhet nær NMBU og Ås sentrum. Flotte turområder i nærheten. Om vinteren er det oppkjørte løyper like utenfor døren. Det er fine gang- og sykkelstier til NMBU (Norges miljø- og biovitenskapelige universitet). Her finner du flotte parkanlegg, turområder og lysløype. Eika Sportssenter ligger som en del av NMBU. Senteret består av idrettshall, gymnastikkhall, dansesal/aktivitetssal for gruppetrening, klatring, spinningssal og treningssenter.
Offentlig kommunikasjon med bussholdeplass noen minutter fra leiligheten med gode forbindelser til Ski og Drøbak. Togstasjon i sentrum med gode forbindelser til Ski, Oslo og Moss. Med Follobanen tar det kun 19 minutter fra Ås til Oslo S. Det er gangavstand til Ås sentrum med flere typer forretninger og servicetilbud som dagligvare, bank, bibliotek, offentlige kontorer, lege, tannlege, vinmonopol, apotek, restauranter og caféer.
Dersom man ønsker utvidet servicetilbud er det ca. 15 minutter til Ski. Ski er regionsenteret i Follo. I Ski sentrum finnes alt av forretninger, servicetilbud og offentlig kommunikasjon. Ski kan by på Ski storsenter med over 145 butikker og spisesteder, restauranter, caféer, bibliotek, bowlinghall, kinosenter og offentlige kontorer. Det er ca. 20 minutters kjøring til idylliske Drøbak med caféer, småbutikker, kunstgallerier, badepark og flotte badestrender. Det er ca. 30 minutter med bil til Oslo.
Adkomst
Fra E6: Ta av mot øst ved Korsegården. Følg Drøbakveien til du har NMBU på venstre hånd. Ta til høyre i rundkjøringen og fortsett på Herumveien. Kilehagen ligger inn andre vei til høyre. Følg veien helt ned. Det vil bli skiltet med Krogsveen visningsskilt ved fellesvisninger. Velkommen!
Barnehager, skoler og fritid
Nærhet til barnehager, barne- og ungdomsskole. Videregående skoler i Ås og Ski. Kort vei til NMBU.
Informasjon om tilhørende skolekretser er hentet fra Prognosesenteret som dataleverandør og tilhørigheten kan årlig endres av kommunen. Dersom skole- og barnehagetilbud er av betydning for kjøpet, ber vi om at det rettes en særskilt henvendelse til kommunen for oppdatert informasjon.
Beskrivelse av tomt
Eiet tomt på 8.418 kvm som tilhører borettslaget. Terrassen ved inngangspartiet anses som privat område.
Parkering
Leiligheten har rett på én parkeringsplass. Parkeringsplassene tildeles av styret etter behov for elbil-lading eller vanlig parkeringsplass. Leiligheten disponerer plass nr. 29 nå. Tildelt plass tilstrebes å være i nærheten av leiligheten. Plass nr. to kan avtales privat med andre beboere som evt. ikke har bil og leier ut sin plass. Borettslaget står for utbygging av ladestasjoner og ladeplassene eies av borettslaget. På plass nr. 29 er det elbil-lader, men den er ikke aktivert pr. nå. Dersom man benytter seg av elbil-lader skal det betales en årlig avgift på 5% av verdi på ladeboksen + strømforbruk. Dette betales ved en månedlig sum som legges på felleskostnadene. Borettslaget kan justere denne 2 ganger i året samt sende ut restfaktura ved utgangen av året. Fremtidig utbygging av ladestasjoner vil bli igangsatt dersom det er mer enn fire interessenter. Det er forbudt å lade elbil i private stikkontakter.
Vei, vann og avløp
Eiendommen har adkomst via privat vei med felles vedlikeholdsansvar for borettslaget.
Eiendommen er tilknyttet kommunalt ledningsnett via private stikkledninger. Borettslaget er ansvarlig for private stikkledninger til bygningen.
Regulerings-og arealplaner
Eiendommen er regulert til boligformål i henhold til reguleringsplan for områdene for Kilehagen- NLH med tilhørende reguleringsbestemmelser datert 22.10.1980.
Det foreligger endelig vedtatt arealplan for utbygging av Vollskogen. Vollskogen er skogsområdet vest for Kilehagen. Varslet planområde omfatter også Nedre Pentagonvei og tilknytningen til Herumveien. Utbygging av inntil 200 boliger med tilhørende leke- og uteoppholdsarealer, støttefunksjoner, teknisk infrastruktur og veisystem i deler av Vollskogen. Planen tilrettelegger for konsentrert og frittliggende småhusbebyggelse, i felt, med en variasjon av boligtypologier, som er tilpasset områdets beliggenhet og topografi.
Utsnitt av plan med tilhørende bestemmelser kan fås ved henvendelse til megler.
Økonomi
Økonomi
Boligens kostnader
Felleskostnadene er kr 7.109,- pr. mnd. og fordeles slik:
Avdrag felleslån: kr 164,-
Renter IN-lån: kr 1.999,-
Avdrag IN-lån: kr 2.267,-
Felleskostnader: kr 2.553,-
Renter felleslån: kr 126,-
Felleskostnadene inkluderer: Kommunale avgifter (inkl. eiendomsskatt), grunnpakke Viken fiber Altibox tv/bredbånd, felles bygningsforsikring, nedbetaling av andel fellesgjeld, drift og vedlikehold, snøbrøyting, forretningsførsel og styrehonorar.
Felleskostnadene justeres normalt en til to ganger årlig i forhold til borettslagets faktiske utgifter og ble sist justert 01.01.2026.
Nåværende eier har et strømforbruk som tilsvarer ca. kr 6.600,- pr. år. / ca. 3.700 kwh. pr. år.
Boligen er tilknyttet Viken Fiber Altibox som leverandør av tv og bredbånd. Grunnpakke er inkludert i felleskostnadene. Dekoder medfølger.
Utgiftene er basert på nåværende eiers forbruk. Kjøper må selv tegne innboforsikring.
Formuesverdi
Ved hjelp av skatteetatens boligkalkulator er boligens formuesverdi beregnet til kr 747.733,- for fjoråret når boligen benyttes som primærbolig.
Formuesverdien er en gitt prosent av den beregnede markedsverdien. Beregnet markedsverdi er basert på Statistisk sentralbyrå (SSB) sine opplysninger om omsatte boliger. I beregningen tas det hensyn til boligens beliggenhet, areal, byggeår og boligtype.
Det er eier av boligen som fastsetter formuesverdien, jf. skatteforvaltningsloven § 9-1 første ledd, men skattemyndighetene kan kontrollere at verdien er satt riktig.
Formuesverdi skal ikke overstige:
Primærbolig: 25 % av beregnet eller dokumentert markedsverdi opp til kr. 10 000 000, og deretter 70 % av den overskytende markedsverdi.
Sekundærbolig: 100 % av beregnet eller dokumentert markedsverdi.
Formuesverdier som overstiger disse grensene, kan kreves nedjustert av eier.
For mer informasjon se skatteetaten.no
Opplysninger om fellesgjeld
Andel formue er kr 17.245,- pr. 31.12.2024
Andel fellesgjeld er kr 512.688,- pr. 30.12.2025
Total fellesgjeld for boligselskapet er kr 18.261.718,- pr. 30.12.2025 og lånevilkårene er:
Lån 1, lånenummer: 50838121796.
Rentebetingelser: 5,04 %
Andel av saldo: kr 482.116,-
Lånets løpetid: 30.09.2038.
Lån 2, lånenummer 15161335174
Rentebetingelser: 5,04 %
Andel av saldo: kr 30.573,-
Lånets løpetid: 30.09.2035.
Borettslaget har tilrettelagt for individuell nedbetaling av andel fellesgjeld (IN-ordning) på lån 1. Det vil si at hver enkelt andelseier helt eller delvis kan velge å nedbetale sin andel av borettslagets fellesgjeld til boligbyggelaget. Det er anledning til å nedbetale på lånet 15. mars og 15. september, forutsatt flytende rente. Usbl må kontaktes senest to uker før nedbetaling.
Omkostninger
2 750 000,00 Prisantydning
512 688,00 Andel av fellesgjeld
--------------------------------------------------------
3 262 688,00 Pris inkl. fellesgjeld
Omkostninger
9 950,00 Gjensidige Boligkjøperpakke (valgfri)
545,00 Tinglysing hjemmel
545,00 Tinglysing panterettsdokument
--------------------------------------------------------
11 040,00 Omkostninger totalt
--------------------------------------------------------
3 273 728,00 Totalpris inkl. omkostninger
--------------------------------------------------------
Betalingsbetingelser
Kjøpesum inkludert omkostninger, samt pantedokument tilknyttet eventuelt lån, skal være disponibelt hos megler 2 virkedager før overtagelsen.
Annen viktig informasjon
Annen viktig informasjon
Eier
Cornelia Rognstad Karlsen
Informasjon om borettslaget
Leiligheten er tilknyttet Kilehagen borettslag.
Borettslaget består av 46 leiligheter.
Forretningsfører er USBL.
Dugnad må påregnes.
Dyrehold er tillatt, men styret skal orienteres skriftlig om dette. Dyreholdet skal ikke være til sjenanse, oppleves som trussel for andre eller medføre uhygieniske forhold i området.
Området i Kilehagen er delt opp i private-, halvprivate- og fellesområder. Terrassen utenfor leiligheten anses som et privat område, men andelseier kan ikke sette opp gjerder, levegger eller andre permanente innrettinger uten godkjenning av styret. Andelseier er selv ansvarlig for vedlikehold av terrassen. Andelseier skal ta vare på halvprivat område, dvs. plenklipping gjennom sesongen på plenen rett utenfor leiligheten. Området kan beplantes privat dersom beboer har et ønske om det etter godkjenning fra styret.
Foretatt påkostninger de senere år:
2025:
- Alle tak i borettslaget ble vasket, mose ble fjernet og takrenner spylt. Noe takstein ble byttet der det var nødvendig.
- Det ble montert musesperre langs alle yttervegger der dette manglet.
- Nye brannslukningsapparat.
2022:
- Det ble utført rensing av ventilasjonsanlegget.
- Utvendige vinduskarmer ble malt.
2019:
- Fått på plass ladesystem for elbil.
- Maling av bygningsmassen.
- Gjennomført kontroll av brannvarslere.
2018:
- Gjennomført radonmåling med oppfølgende målinger.
Det er ingen planlagte påkostninger utover bytte av kjøkkenventilator og ventilasjonsenhet i overskap på kjøkkenet. Dette blir utført i slutten av januar/starten av februar 2026.
På ekstraordinær generalforsamling høsten 2025 ble det bestemt at det er lov å installere varmepumpe. Styret ønsker å se nærmere på muligheten for felles innkjøp. Alle kostnader i forbindelse med installasjon av eventuell varmepumpe må bekostes av andelseier. Andelseier blir ansvarlig for vedlikehold og eventuelle skader på fasade.
I henhold til borettslagets vedtekter må kjøper godkjennes av styret som ny andelseier. Det er kjøpers ansvar at styregodkjenning blir gitt, men styret kan ikke nekte godkjenning uten saklig grunn. Iht. burettslagslova kan man bare eie en andel i borettslaget. Kun fysiske personer kan være andelseiere.
Øvrige andelseiere i borettslaget og eventuelt medlemmer av boligbyggelaget har forkjøpsrett. I henhold til burettslagslova tar dette 20 dager å avklare fra melding om salget er gitt borettslaget. Dersom boligen tas på forkjøpsrett løses kjøper fra avtalen.
Borettslaget er tilknyttet Borettslagenes Sikringsordning AS som dekker manglende innbetaling av felleskostnader fra øvrige andelseiere. Avtalen om sikring er gyldig til avtalen sies opp av en av partene. Oppsigelsesfrist er 1 desember med gyldighet fra førstkommende årsskifte.
Dokumenter for borettslaget kan fås ved henvendelse til megler.
Informasjon om forkjøpsrett
Ja
Overtakelse
Etter nærmere avtale.
Boligselgerforsikring
Selger har i forbindelse med salget tegnet boligselgerforsikring levert av Gjensidige.
Boligselgerforsikringen dekker selgers ansvar etter avhendingsloven begrenset oppad til kr 14 millioner. Dersom kjøper oppdager forhold ved eiendommen som hen mener utgjør en mangel ved eiendommen, vil Gjensidige behandle reklamasjonen på vegne av selger. Forsikringsvilkår kan fås ved henvendelse til megler.
Vedlagt salgsoppgaven følger selgers egenerklæringsskjema og tilstandsrapport. Interessenter må sette seg inn i dokumentene før bud inngis.
Boligkjøperforsikring
Innen kontraktsmøtet må kjøper ta stilling til om det ønskes å bestille Boligkjøperpakken gjennom Gjensidige. I denne gunstige pakken er boligen ferdig forsikret og inkluderer rettshjelpsforsikring, også kalt Boligkjøperforsikring. Rettshjelpsforsikring gir trygghet og tilgang på profesjonell juridisk hjelp dersom det oppdages uventede feil eller mangler det første året etter overtagelse. Forsikringsselskapet behandler i så fall ethvert mangelskrav kjøper måtte ha overfor selger.
Boligkjøperpakken inkluderer bygningsforsikring for hus og hytte, innboforsikring, flytteforsikring og dobbel rentedekning - i situasjoner hvor kjøper ikke får solgt nåværende primærbolig.
Kjøper mottar ingen særskilt faktura for Boligkjøperpakken da kostnaden det første året legges til kjøpesummen for boligen. Det gjøres oppmerksom på Krogsveen mottar et honorar for denne formidlingen.
Produktark for Boligkjøperpakken ligger vedlagt i salgsoppgaven.
Dersom ikke boligkjøperpakke ønskes kan kun rettshjelpsforsikring, også kalt boligkjøperforsikring, tegnes særskilt via megler. Rettshjelpsforsikringen varer i 5 år fra overtagelse og leveres gjennom Gjensidige. Ta kontakt med megler for ytterligere informasjon.
Selskap og privatpersoner som driver med kjøp/salg/utvikling som ledd i egen næringsvirksomhet kan ikke tegne boligkjøperpakke eller rettshjelpsforsikring.
Budgivning
Forbrukerinformasjon om budgivning er vedlagt denne salgsoppgaven og er også på vår hjemmeside Krogsveen.no. Alle bud og budforhøyelser må inngis skriftlig. I tillegg må legitimasjon være fremlagt sammen med signatur fra budgiver.
Vi oppfordrer til å gi bud elektronisk via GI BUD-knappen på eiendommens hjemmeside på Krogsveen.no. Da vil samtlige vilkår bli oppfylt.
Eventuelle forhøyelser eller endringer av budet kan bekreftes pr SMS eller på e-post. Vi oppfordrer alltid til å kontakte megler pr. telefon i tillegg da forsinkelser i SMS og e-post kan forekomme.
For at budene skal kunne bli behandlet og videreformidlet skriftlig til alle involverte parter, må alle bud ha en tilstrekkelig lang akseptfrist, jf. eiendomsmeglingsforskriften § 6-3.
Selger må også skriftlig akseptere budet før aksept kan formidles til budgiver. Akseptfrist bør derfor være på minimum 30 minutter, og budforhøyelser må derfor skje i god tid før fristens utløp.
Bud i forbrukerforhold kan uansett ikke settes med kortere frist enn kl. 12.00 første virkedag etter siste annonserte visning. I tillegg kan ikke budet ha forbehold om at det skal holdes hemmelig ovenfor øvrige interessenter. Megler har iht lov om eiendomsmegling ikke anledning til å videreformidle disse budene, og de vil dermed heller ikke bli journalført.
Etter at eiendommen er solgt vil kjøper og selger få tilsendt budjournal. Øvrige budgivere kan få utlevert kopi av budjournalen i anonymisert form.
Hvitvaskingsreglene
I henhold til lov om hvitvasking og terrorfinansiering har megler plikt til å gjennomføre kontrolltiltak overfor kunder, herunder fullmektiger. Dette innebærer bl.a. å bekrefte kunders og reelle rettighetshaveres identitet på bakgrunn av fremvist gyldig legitimasjon eller på annen godkjent måte, samt å innhente opplysninger om kundeforholdets formål og tilsiktede art.
Dersom slike kundetiltak ikke kan gjennomføres, kan megler ikke etablere kundeforholdet eller utføre transaksjonen.
Hvis kjøper ikke bidrar til gjennomføring av kundekontrollen og dette fører til at transaksjonen blir forsinket eller ikke kan gjennomføres, vil dette ansees som mislighold av avtalen og gi selger rettigheter etter avhendingslova kapittel 5. I tilfeller der selger ikke bidrar til gjennomføring av løpende kundekontroll underveis i oppdraget, er det selger som misligholder sine forpliktelser etter avtalen og gi kjøper rettigheter etter avhendingslovens kapittel 4. Partene er selv ansvarlige for eventuelle kostnader og ansvar dette kan medføre. Eiendomsmegleren eller eiendomsmeglingsforetaket kan ikke holdes ansvarlig for de konsekvenser dette vil kunne få for partene eller andre som har interesser i eiendomshandelen.
Kjøper oppfordres til å innbetale kjøpesummen som ikke kommer fra låneinstitusjon i én samlet innbetaling fra egen konto i norsk bank. Megler har plikt til å melde fra til Økokrim om eiendomshandler som fremstår som mistenkelige. Melding sendes Økokrim uten at partene varsles.
Personopplysningsloven
I henhold til personopplysningsloven gjør vi oppmerksom på at interessenter kan bli registrert for videre oppfølging.
Lovanvendelse
Generelle bestemmelser
Salgsoppgaven er basert på de opplysningene selger har gitt til megler, den bygningssakyndiges tilstandsrapport, samt opplysninger innhentet fra kommunen, Kartverket og andre tilgjengelige kilder. Det er viktig at kjøper setter seg grundig inn i alle salgsdokumentene, herunder salgsoppgave, tilstandsrapport og selgers egenerklæring. Kjøper anses kjent med forhold som er tydelig beskrevet i salgsdokumentene, og slike forhold kan ikke påberopes som mangler. Dette gjelder uavhengig av om kjøper har lest dokumentene. Alle interessenter oppfordres til å undersøke eiendommen nøye, gjerne sammen med fagkyndig før bud inngis. Kjøper som velger å kjøpe usett kan ikke gjøre gjeldende som mangel noe han burde blitt kjent med ved undersøkelsen.
Dersom det er behov for avklaringer, anbefaler vi at interessenter rådfører seg med eiendomsmegler eller egne rådgivere før det legges inn bud.
En bolig som har blitt brukt i en viss tid, har vanligvis blitt utsatt for slitasje og skader kan ha oppstått. Slik bruksslitasje må kjøper regne med, og det kan avdekkes enkelte forhold etter overtakelse som nødvendiggjør utbedringer. Normal slitasje og skader som nødvendiggjør utbedring, er innenfor hva kjøper må forvente og vil ikke utgjøre en mangel.
Kjøper og selgers rettigheter og plikter reguleres av avtalen mellom partene, samt informasjonen som har vært tilgjengelig for kjøperen i forbindelse med handelen. Avtalen utfylles av avhendingsloven, og det gjelder ulike avtalevilkår avhengig av om kjøper er forbrukerkjøper eller ikke. Dette er nærmere beskrevet nedenfor.
På grunn av ulike avtalevilkår kan selger vurdere bud fra en som ikke er forbruker, ulikt fra en forbrukers bud. Dersom kjøper ikke er forbruker, er selger sitt mulige mangelsansvar begrenset fordi eiendommen selges "som den er". Selger kan ikke ta «som den er»- forbehold overfor en forbrukerkjøper. Selv et lavere bud fra en som ikke er forbruker kan foretrekkes fordi begrensningen i mulig mangelsansvar kan ha egenverdi for selger. Selger står fritt til å forkaste eller akseptere ethvert bud, og er for eksempel ikke forpliktet til å akseptere høyeste bud.
Budgiver skal i budskjema avgi egenerklæring om budgiver er forbruker eller næringsdrivende/ person som hovedsakelig handler som ledd i næringsvirksomhet. Budgivere får informasjon dersom andre bud er inngitt av en som ikke er forbruker.
Forbrukerkjøp - definisjon
Med forbrukerkjøp menes kjøp av eiendom når kjøperen er en fysisk person som ikke hovedsakelig handler som ledd i næringsvirksomhet.
Forbruker – avtalevilkår
Eiendommen har en mangel dersom den ikke er i samsvar med kravene som følger av avtalen, eller det foreligger brudd på bestemmelsene i avhendingsloven §§ 3-2 til 3-8. Hvis eiendommen ikke er i samsvar med det kjøperen må kunne forvente ut ifra alder, type og synlig tilstand, kan det være grunnlag for mangelskrav. Det samme gjelder hvis det er holdt tilbake eller gitt uriktige opplysninger om eiendommen. Dette gjelder likevel bare dersom man kan gå ut ifra at det virket inn på avtalen at opplysningen ikke ble gitt eller at mangelskravet ikke blir rettet i tide på en tydelig måte.
Boligen kan ha en mangel etter avhendingsloven § 3-3 andre ledd, dersom det er avvik mellom opplyst og faktisk innvendig areal, forutsatt at avviket er på 2% eller mer og minimum 1 kvm.
Ved beregning av et eventuelt prisavslag eller erstatning må kjøper selv dekke tap/kostnader opptil et beløp på kr 10 000 (egenandel).
Ikke-forbruker (næringsdrivende) – definisjon
Hvis kjøper er en juridisk person, eller en fysisk person som hovedsakelig handler som ledd i næringsvirksomhet, vil kjøpet ikke anses som et forbrukerkjøp.
Ikke-forbruker – avtalevilkår
Eiendommen har en mangel dersom den ikke er i samsvar med kravene som følger av avtalen.
Eiendommen selges «som den er», og selgers ansvar utover det konkret avtalte er da begrenset etter avhendingsloven § 3-9, første ledd andre setning.
Avhendingsloven § 3-3 andre ledd fravikes, og hvorvidt boligens arealsvikt utgjør en mangel vurderes etter avhendingsloven § 3-8.
Informasjon om kjøpers undersøkelsesplikt, herunder oppfordringen om å undersøke eiendommen nøye, gjelder også for kjøpere som ikke anses som forbrukere.
Det forutsettes at hjemmel overføres til kjøper. Hvis kjøper ikke ønsker hjemmelsoverføring av eiendommen, må det tas forbehold om dette i budet.
Meglers vederlag
Meglers vederlag betales av selger og er avtalt til:
Fastpris: kr 35 000,-
Vederlag:
Kontroll av hjemmel og heftelser kr 2 900,00
Markedsføringspakke kr 27 400,00
Oppgjør kr 7 500,00
Tilrettelegging kr 17 000,00
Visninger pr stk / Overtagelse kr 2 900,00
Utlegg:
Eierskiftegebyr forretningsfører -Usbl kr 6 570,00
Innhenting av informasjon forretningsfører kr 4 914,00
Innhenting av offentlig opplysninger Ås kommune kr 4 027,00
Tinglysing sikring kr 545,00
Andre utgifter:
Fotopakke inkl. høydefoto kr 5 000,00
Tilstandsrapport fra bygningssakkyndig kr 8 990,00
Opplysninger om oppdraget
Oppdragsnummer 46-0216/25
Eiendomsmegler Krogsveen AS, avd. Ski
Kirkeveien 2A, 1400, SKI
950 007 613
Oppdragets KR-kode KR46.25216
Dato
Sist oppdatert: 23. februar 2026 kl. 15:46
Dokumenter
Dokumenter
PDF – 499 KB
PDF – 680 KB
PDF – 953 KB
PDF – 312 KB
PDF – 29 KB
PDF – 127 KB
PDF – 392 KB
Område
Legg til steder som er viktige for deg
Visning
For å delta på visning, ber vi om at du melder deg på. Kontakt megler dersom annet tidspunkt ønskes. Husk å lese salgsoppgaven før visningen, så du stiller forberedt. NB. Visning utgår dersom det ikke er noen påmeldte. Ønsker du kun å bli holdt orientert, kan du fra eiendommens hjemmeside få varsel om solgtpris, eller kontakte megler. Velkommen!
Lurer du på noe?
Unngå doble boligrenter
Vi tilbyr gunstig forsikring.
Vurderer du utleie?
Få et tilbud fra Utleie KrogsveenHva koster lånet?
Sjekk estimert lånekostnadVil du varsles om lignende boliger?
Ved å lagre ditt boligsøk hos oss får du beskjed når vi har en bolig som ligner denne, før den legges ut på markedet!

