Gjettumkollen 18F
5 200 000 kr
90 m²
1 soverom
Solgt

Enderekkehus over 2 plan med hage og garasje i et barnevennlig område. Oppussingsbehov!
Prisantydning
5 200 000 krOmkostninger
150 990 krTotalpris
5 350 990 kr
Pris
Bruksareal
94 m²BRA-I (internt bruksareal)
90 m²BRA-E (eksternt bruksareal)
4 m²TBA (terrasse-balkongareal)
22 m²
Areal
Etasje
2Byggeår
1961Soverom
1 soveromBad
1 badTomteareal
244 m² (eiet)Type
RekkehusEierform
EietFasiliteter
Garasje/P-plass og Balkong/TerrasseFellesutgifter
1 684 krEnergimerke
Rød D
Nøkkelinfo
Unngå doble boligrenter
Vi tilbyr gunstig forsikring.
Vurderer du utleie?
Få et tilbud fra Utleie KrogsveenHva koster lånet?
Sjekk estimert lånekostnadBeskrivelse
Kort om eiendommen
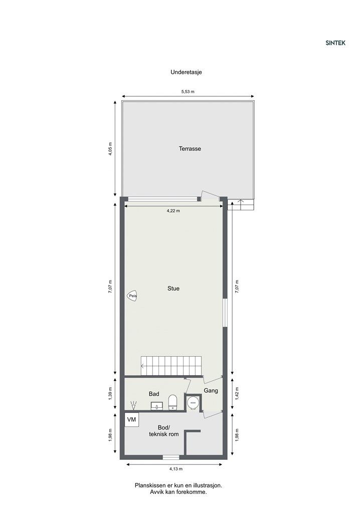
Eiendomsmegler Cecilie Muri ved Krogsveen Bekkestua har gleden av å ønske velkommen til et hyggelig enderekkehus i Gjettumkollen 18F. Boligen går over 2 plan og består av en entré, lyst kjøkken og soverom i 1. etasje, og en romslig stue med utgang til terrasse, baderom og teknisk rom/bod i underetasjen. Terrassen er sydøstvendt og solrik, og har videre utgang til en koselig hage. Huset har behov for oppussing og er et flott utgangspunkt for den som ønsker å skape sitt eget hjem.
Boligen har en attraktiv og barnevennlig beliggenhet på Gjettum med kort vei til skoler, barnehager, butikker, natur og fritidsaktiviteter. Det er også kort vei til T-banen.
Velkommen!
Område
Legg til steder som er viktige for deg
På flyttefot? Tenk kjøp og salg samtidig.
Få din egen rådgiver gjennom hele kjøps- og salgsprosessen. Det starter med en verdivurdering.
Unngå doble boligrenter
Vi tilbyr gunstig forsikring.
Vurderer du utleie?
Få et tilbud fra Utleie KrogsveenHva koster lånet?
Sjekk estimert lånekostnadVil du varsles om lignende boliger?
Ved å lagre ditt boligsøk hos oss får du beskjed når vi har en bolig som ligner denne, før den legges ut på markedet!

