Glengsgata 20
2 790 000 kr
62 m²
2 soverom
Komplett salgsoppgave

Sentrum
3-roms loftsleilighet med balkong, stor takhøyde og klassisk atmosfære! Flott utsikt. Egen parkeringsplass.
Prisantydning
2 790 000 krAndel fellesgjeld
356 566 krOmkostninger
89 690 krTotalpris
3 236 256 kr
Pris
Bruksareal
66 m²BRA-I (internt bruksareal)
62 m²BRA-E (eksternt bruksareal)
4 m²TBA (terrasse-balkongareal)
3 m²
Areal
Etasje
3Byggeår
1880Soverom
2 soveromBad
1 badType
EierleilighetEierform
EierseksjonFellesutgifter
6 495 krEnergimerke
Rød G
Nøkkelinfo
Unngå doble boligrenter
Vi tilbyr gunstig forsikring.
Vurderer du utleie?
Få et tilbud fra Utleie KrogsveenHva koster lånet?
Sjekk estimert lånekostnadBeskrivelse
Kort om eiendommen
- Privat balkong, solfylt første del av dagen
- Flott, langstrakt utsikt fra de fleste rom
- Velholdt standard fra den ble etablert rundt 2008
- Stilfullt, klassisk moderne kjøkken med hvitevarer
- Egen parkeringsplass på felles parkeringsområde
- Bod av god størrelse i kjeller
- Oversiktlig sameie i ett av byens vakreste bygg
- Idylliske tur- og aktivitetsområder i nærliggende Glengshølen
- Kun kort gangavstand til togstasjonen og sentrum for øvrig
Innhold og byggemåte
Innhold og byggemåte
Eiendommen
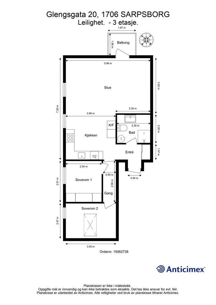
Glengsgata 20, 1706 SARPSBORG
Kommunenummer 3105, gårdsnummer 1, bruksnummer 1887, seksjonsnummer 8
Innhold
Totalt bruksareal BRA: 66 kvm
BRA-i:
3. etasje - 62 kvm: Entré, bad, gang, to soverom og stue med åpen kjøkkenløsning.
BRA-e:
Kjeller - 4 kvm: Bod
Åpent areal:
3. etasje - 3 kvm: Balkong
Boligen disponerer en bod i kjeller på 4 kvm (BRA-e). Det gjøres oppmerksom på at boligens eksterne boder tilhører sameiets fellesareal, og at boden således ikke eies av den enkelte sameier. Dette medfører at sameiet i fellesskap beslutter bruken, og at man ikke selv har eierrett og rettsvern for boden.
Vedlagte plantegninger er ikke målbare. De oppgitte arealer er hentet fra rapport datert 20.01.2026 utført av Anticimex. Arealene er beregnet og rom er definert etter dagens faktiske bruk, uavhengig av hva som er godkjent av bygningsmyndighetene.
Se punkt ferdigattest.
Byggemåte
Selger har fått utarbeidet en tilstandsrapport, dvs. en teknisk gjennomgang av boligen hvor eventuelle avvik, risiko for kjøper og prisoverslag for hva som bør gjøres av oppgradering, er skissert. Se særskilt TGIU (tilstandsgrad ikke undersøkt), samt TG2 og TG3 som viser hva som er avvik fra boligens normale slitasje, alder og type, eller som bør/må utbedres. Rapporten og selgers egenerklæring er en del av salgsoppgaven og må leses nøye før bud inngis. Kjøper overtar ansvaret for de opplysninger som fremkommer av salgsdokumentasjonen, og kan ikke gjøre gjeldende som mangel noe som burde vært kjent eller som ikke kan anses å ha betydning for avtalen.
Bygningen er iht. tilstandsrapporten oppført i mur. Boligbygg over tre etasjer samt kjeller. Støpt plate på mark. Grunnmur av naturstein og murkonstruksjoner. Etasjeskillere av treverk. Yttervegger av pussede og malte murkonstruksjoner. Takkonstruksjon av saltaksform utvendig tekket med takstein (taket er ikke besiktiget). Leiligheten har slett entrédør med brannklasse B30 og lydklasse 35dB. Balkongdør og vinduer med to-lags glass fra 2008. Les forøvrig mer om byggemåte og den tekniske tilstanden i rapporten.
Det er gitt 69% TG 1, 29% TG 2 og 2% TG IU.
Det er gitt tilstandsgrad 2 (TG 2) på bygningselementer i: våtrom - med adkomst fra entre, kjøkken, øvrige rom og teknisk anlegg/VVS anlegg.
Se supplerende tekst i tilstandsrapporten om rommet/badet/bygningsdelen/skjevheten/sluket etc. Kjøper overtar ansvar og risiko for dette.
Utdrag fra selger egenerklæringsskjema:
-Er det utført arbeid på tak, yttervegg, vindu eller annen fasade?
Ja. 2024. Faglært: Mestermur. Pusset opp fasade og tak. Har dokumentasjon på arbeidet.
Standard
Leiligheten ble etablert rundt 2008 da det ble utført renovering og ombygging av gården. Overflater, utstyr og faste innredninger er i stor grad fra dette året og velholdt, alderen tatt i betraktning.
Standarden var moderne for året og inkluderer blant annet gulv av tre-stavs eikeparkett i alle rom utenom badet. Vegger og himlinger er hovedsakelig utført med tidsaktuelle glatte flater, mens belistning langs himlinger og rundt vinduer er av kraftig dimensjon som fremmer et klassisk uttrykk.
Vel så klassisk og atmosfærefremmende er kjøkkenets innredning, som foruten sin rent praktiske funksjon også utgjør et stort dekorativt element. Innredningen er henvendt åpent mot stuen og omfatter et større antall skap og skuffer for utstyr til bruk i det daglige. Hvitevarene er integrert eller innbygget og medfølger.
På badet er både gulv og vegger utført med lyse fliser i samsvarende fargetoner som fremmer helhet. I likhet med leilighetens øvrige rom nyter badet også godt av stor takhøyde som positivt påvirker romfølelsen. Badet benyttes med dusjkabinett som begrenser vannpåkjenning på overflatene og inneholder for øvrig tidløse møbler med oppbevaringsmuligheter i både servant- og speilskap.
Overflater og innredninger:
Gulv: Parkett og fliser.
Innervegger: Malte glatte flater, tapet og fliser.
Himlinger: Malte glatte flater.
Kjøkken: Skapinnredning med profilerte beige fronter og vitrineskap. Grå benkeplater. Nedfelt stålvask med ett-greps blandebatteri. Integrert platetopp, stekeovn og kombiskap. Innbygget oppvaskmaskin. Ventilator i overskap.
Bad: Servantskap med glatte hvite fronter og heldekkende keramisk servant med ett-greps blandebatteri. Speilskap med overbelysning. Dusjkabinett. Gulvmontert klosett. Rør-opplegg til vaskemaskin. Veggmontert varmtvannsbereder.
Løsøre og tilbehør
Vi viser til liste fra Norges Eiendomsmeglerforbund som gjelder fra 01.01.2020 angående løsøre og tilbehør.
Oppvarming
Boligen er elektrisk oppvarmet.
Dersom beboelsesrom ikke har vegg- eller fastmonterte varmekilder ved visning, følger dette heller ikke med.
Ferdigattest/brukstillatelse
Det foreligger ferdigattest på bruksendring i 3.etasje, datert 21.12.2007. Denne kan fås ved henvendelse til megler.
Det gjøres oppmerksom på at det ikke foreligger ferdigattest på bygget fra byggeår.
Endringer fra mottatte byggetegninger:
- De to soverommene i leiligheten er ikke tegnet inn som egne rom. Bad og kjøkken samstemmer med dagens bruk. men rommene ellers er ikke definerte på tegningen. Bruken er rommene er derfor ikke kontrollert opp mot dagens bruk.
Kjøper overtar alt ansvar, kostnad og risiko for dette videre.
Tinglyste heftelser og rettigheter
Leiligheten overdras fri for pengeheftelser.
Sameiet har legalpant for krav mot sameieren som følger av sameieforholdet iht. eierseksjonsloven § 31. Pantet er begrenset oppad til 2G, (G = folketrygdens grunnbeløp).
Det er tinglyst 2 servitutter på sameiets eiendom. Denne omhandler blant annet bestemmelse om vann- og kloakkledning, samt bestemmelser om henting av avfall og grøntareal.
Servituttene vil følge eiendommen. Kjøpers bank vil få pant etter ovennevnte heftelser og servitutter.
Eventuell adgang til utleie
Leiligheten kan leies ut såfremt leiligheten har forsvarlige radonverdier. Leietaker må følge sameiets vedtekter og ordensregler på lik linje som eier.
Diverse
Vi er opptatt av verdiskapning, og har knyttet til oss samarbeidspartnere som skal sikre våre kunder de beste produkter og tjenester;
• Gjensidige leverer boligselgerforsikring og tilbyr bygningsforsikring
• Boligkjøperforsikring leveres av Hiscox og med Sedgwick som skadebehandler, og er formidlet gjennom Gjensidige.
• BN bank tilbyr finansieringsløsninger
• Vår avdeling Krogsveen Pluss tilbyr flyttetjenester som utvask, visningsvask, lager, tømming og transport av flyttelass, i tillegg til å formidle kontakt med Flip for overflateoppussing.
• I forbindelse med overtagelse av eiendommen tilbyr Overo avtale om strøm, alarm og bredbånd.
• Krogsveen er, sammen med øvrige bransjeaktører, medeier i den digitale annonseringsplattformen Hjem.
Beliggenhet og tomteforhold
Beliggenhet og tomteforhold
Beliggenhet
Med utgangspunkt i Glengsgata 20 er alle byens tilbud lett tilgjengelig. Til gågaten og byens store kjøpesenter tar det kun et fåtall minutter å gå. Spesielt verdt å fremheve er i tillegg leilighetens nær sagt umiddelbare nærhet til togstasjonen, med gode forbindelser videre i retning Oslo. Holdeplass for flere busslinjer finnes langs gatene i nabolaget.
Foruten den korte avstanden til bygatene, er det fra leiligheten også kort avstand til fine tur- og friluftsområder, blant annet i Kulåsparken og ikke minst i Glengshølen. Sistnevnte har store gressbakker, flott utsikt og flere aktivitetsmuligheter, inkludert discogolf-bane og treningsapparater. Bryggestien er en idyllisk turvei du kan følge videre langs vannet. Like nord for sentrum venter Sarpsborgmarka hvor det er lysløype og preparerte skispor når forholdene tillater.
Adkomst
Det vil bli skiltet med Krogsveen visningsskilt ved fellesvisninger.
Barnehager, skoler og fritid
Barnehager:
Fritznerbakken barnehage (0-5 år) 0.4 km
Askeladden barnehage (0-5 år) 0.4 km
Kulås barnehage (0-5 år) 0.9 km
Skoler:
Sandesundsveien barneskole (1-7 kl.) 1.1 km
Lande barneskole (1-7 kl.) 1.4 km
Kurland barneskole (1-7 kl.) 1.4 km
Kruseløkka ungdomsskole (8-10 kl.) 0.9 km
Hafslund ungdomsskole (8-10 kl.) 2.3 km
St. Olav videregående skole 0.9 km
Borg videregående skole 4.4 km
Informasjon om tilhørende skolekretser er hentet fra Prognosesenteret som dataleverandør, og tilhørigheten kan årlig endres av kommunen. Dersom skole- og barnehagetilbud er av betydning for kjøpet, ber vi om at det rettes en særskilt henvendelse til kommunen/bydelsadministrasjonen for oppdatert informasjon.
Beskrivelse av tomt
Eiertomt på 1 252 kvm som tilhører sameiet. Felles tomt for sameiet opparbeidet med asfaltert biloppstillingsplass.
Parkering
Det medfølger en parkeringsplass til hver seksjon, tilrettelagt for lading av elbil.
Det gjøres oppmerksom på at dagens parkeringsløsning er etablert på sameiets fellesareal, og at parkeringsplassene således ikke eies av den enkelte sameier. Dette medfører at sameiet i fellesskap beslutter bruken.
Etter eierseksjonsloven § 26 kan styret, etter krav fra en seksjonseier med nedsatt funksjonsevne, pålegge en annen seksjonseier uten behov for å tilrettelagt plass å bytte parkeringsplass. Dette gjelder kun dersom seksjonseieren med nedsatt funksjonsevne allerede disponerer en parkeringsplass i sameiet.
Vei, vann og avløp
Eiendommen har adkomst via kommunal vei.
Eiendommen er tilknyttet kommunalt ledningsnett via private stikkledninger. Sameiet er ansvarlig for private stikkledninger til bygningen.
Regulerings-og arealplaner
Eiendommen er regulert til gang- og sykkelveg i henhold til reguleringsplan Kvartal 62A datert 14.02.2002 med tilhørende reguleringsbestemmelser.
Eiendommen omfattes av kommunedelplanplan sentrum 2019-2031 datert 20.06.2019 med formål: veg nåværende, sentrumsformål nåværende.
Eiendommen ligger helt eller delvis innenfor et område med mulighet for marin leire, og grunnen kan derfor bestå av løsmasser, herunder kvikkleire.
Eiendommen er verneverdig/SEFRAK-registrert. Dette kan medføre at større endringer av bygningen må godkjennes av kommunen eller fylket før igangsetting
Utsnitt av plan med tilhørende bestemmelser kan fås ved henvendelse til megler.
Økonomi
Økonomi
Boligens kostnader
Kommunale avgifter er kr 8 616,- for inneværende år. I dette inngår gebyr for vann, avløp, renovasjon og feiing/tilsyn.
I tillegg kommer eiendomsskatt som utgjør årlig kr 6 591,-. Blir fakturert sammen med kommunale avgifter.
Fellesutgiftene er kr 6 495,- pr. mnd. og inkluderer: Kabel-tv og internett, felles bygningsforsikring, nedbetaling av fellesgjeld, forretningsfører, drift og vedlikehold av tomt, filter ventilasjon, mm.
Fellesutgiftene justeres normalt en til to ganger årlig i forhold til sameiets faktiske utgifter sist justert 1.1.2026. Det tas forbehold om at felleskostnadene kan justeres fortløpende pga renteøkninger.
Nåværende eier har ikke oppgitt årlig strømforbruk.
Boligen er tilknyttet kabel-tv og internett via sameiet og betales via felleskostnadene. Dekoder medfølger ikke.
Utgiftene er basert på nåværende eiers forbruk. Kjøper må selv tegne innboforsikring.
Formuesverdi
Formuesverdi for 2022 var kr 593 472,- ifølge skatteetaten. Beløpet forutsetter at eier bor fast i boligen (primærbolig).
Ved eventuell øvrig bruk av eiendommen (f.eks. fritidsbolig, pendlerbolig, utleieobjekt) var formuesverdien for 2022 kr 2 255 192,-.
Formuesverdien justeres normalt årlig. Se skatteetaten.no for mer informasjon om fastsettelse av formuesverdien.
Eiendomsskatt
Eiendomsskatten utgjør kr. 4.441,- pr år. Denne faktureres med de kommunale avgiftene.
Opplysninger om fellesgjeld
Andel formue er kr 368 867,- pr. 31.12.2023
Andel fellesgjeld er kr 356 566,- pr. 01.09.2024
Total fellesgjeld for sameiet er kr 4.437.261,- pr. 01.09.2024 og lånevilkårene er:
Rentebetingelser: flytende rente på 9,15%
Lånets innfrielsesår: 2043
Avdragsfrihet: Ingen
Omkostninger
2 790 000,00 Prisantydning
356 566,00 Andel av fellesgjeld
--------------------------------------------------------
3 146 566,00 Pris inkl. fellesgjeld
Omkostninger
78 650,00 Dokumentavgift til staten (2,5% av kjøpesum)
545,00 Tinglysing panterettsdokument
545,00 Tinglysing skjøte
9 950,00 Tryg Boligkjøperpakke (valgfri)
--------------------------------------------------------
89 690,00 Omkostninger totalt
--------------------------------------------------------
3 236 256,00 Totalpris inkl. omkostninger
--------------------------------------------------------
Tilbud om lånefinansiering
Megler formidler gjerne kontakt med rådgiver hos vår samarbeidspartner BN Bank. De har konkurransedyktige betingelser samt rask og løsningsorientert behandling av din lånesøknad. Krogsveen mottar et honorar for denne formidlingen.
Betalingsbetingelser
Kjøpesum inkludert omkostninger, samt pantedokument tilknyttet eventuelt lån, skal være disponibelt hos megler 2 virkedager før overtagelsen.
Annen viktig informasjon
Annen viktig informasjon
Eier
Lars Magnus Sterner
Informasjon om forkjøpsrett
Eiendommen er seksjonert, og leiligheten er tilknyttet sameie Glengsgaten 20, med sameiebrøk 63/784.
Sameiet består av 9 leiligheter og 2 næringsseksjoner.
Forretningsfører er Solibo AS.
Dugnad samt trappevask må påregnes.
Dyrehold er tillatt.
Foretatt påkostninger de senere år:
- 2023/2024: Rehabilitering av bygningsmassen. Det ble på ekstraordinær generalforsamling vedtatt et låneopptak på kr 4,5 million til finansiering av dette. Lånet er allerede tatt opp og er en del av oppgitt andel fellesgjeld.
Planlagte påkostninger:
Ingen planlagte påkostninger pr tid som vil øke fellesgjeld eller felleskostnader i følge styreleder.
Iht. sameiets vedtekter må kjøper godkjennes av styret som ny sameier. Det er kjøpers ansvar at styregodkjenning blir gitt, men styret kan ikke nekte godkjenning uten saklig grunn.
Vi gjør videre oppmerksom på at det iht. eierseksjonsloven ikke er anledning å erverve mer enn 2 seksjoner i sameiet, her teller også eierskap via. firma, nærstående og familie. Kjøper har risikoen for at overskjøting på denne bakgrunn kan nektes av Statens Kartverk. I så fall vil kjøper uansett være forpliktet til å gjennomføre handelen, og oppgjør til selger vil finne sted tross manglende overskjøting.
Konferer med megler for mer informasjon.
Dokumenter for sameiet og kopi av seksjonsbegjæringen kan fås ved henvendelse til megler.
Overtakelse
Etter nærmere avtale.
Boligselgerforsikring
Selger har i forbindelse med salget tegnet boligselgerforsikring levert av Gjensidige.
Boligselgerforsikringen dekker selgers ansvar etter avhendingsloven begrenset oppad til kr 14 millioner. Dersom kjøper oppdager forhold ved eiendommen som hen mener utgjør en mangel ved eiendommen, vil Gjensidige behandle reklamasjonen på vegne av selger. Forsikringsvilkår kan fås ved henvendelse til megler.
Vedlagt salgsoppgaven følger selgers egenerklæringsskjema og tilstandsrapport. Interessenter må sette seg inn i dokumentene før bud inngis.
Boligkjøperforsikring
Innen kontraktsmøtet må kjøper ta stilling til om det ønskes å bestille Boligkjøperpakken gjennom Gjensidige. I denne gunstige pakken er boligen ferdig forsikret og inkluderer rettshjelpsforsikring, også kalt Boligkjøperforsikring. Rettshjelpsforsikring gir trygghet og tilgang på profesjonell juridisk hjelp dersom det oppdages uventede feil eller mangler det første året etter overtagelse. Forsikringsselskapet behandler i så fall ethvert mangelskrav kjøper måtte ha overfor selger.
Boligkjøperpakken inkluderer bygningsforsikring for hus og hytte, innboforsikring, flytteforsikring og dobbel rentedekning - i situasjoner hvor kjøper ikke får solgt nåværende primærbolig.
Kjøper mottar ingen særskilt faktura for Boligkjøperpakken da kostnaden det første året legges til kjøpesummen for boligen. Det gjøres oppmerksom på Krogsveen mottar et honorar for denne formidlingen.
Produktark for Boligkjøperpakken ligger vedlagt i salgsoppgaven.
Dersom ikke boligkjøperpakke ønskes kan kun rettshjelpsforsikring, også kalt boligkjøperforsikring, tegnes særskilt via megler. Rettshjelpsforsikringen varer i 5 år fra overtagelse og leveres gjennom Gjensidige. Ta kontakt med megler for ytterligere informasjon.
Selskap og privatpersoner som driver med kjøp/salg/utvikling som ledd i egen næringsvirksomhet kan ikke tegne boligkjøperpakke eller rettshjelpsforsikring.
Budgivning
Forbrukerinformasjon om budgivning er vedlagt denne salgsoppgaven og er også på vår hjemmeside Krogsveen.no. Alle bud og budforhøyelser må inngis skriftlig. I tillegg må legitimasjon være fremlagt sammen med signatur fra budgiver.
Vi oppfordrer til å gi bud elektronisk via GI BUD-knappen på eiendommens hjemmeside på Krogsveen.no. Da vil samtlige vilkår bli oppfylt.
Eventuelle forhøyelser eller endringer av budet kan bekreftes pr SMS eller på e-post. Vi oppfordrer alltid til å kontakte megler pr. telefon i tillegg da forsinkelser i SMS og e-post kan forekomme.
For at budene skal kunne bli behandlet og videreformidlet skriftlig til alle involverte parter, må alle bud ha en tilstrekkelig lang akseptfrist, jf. eiendomsmeglingsforskriften § 6-3.
Selger må også skriftlig akseptere budet før aksept kan formidles til budgiver. Akseptfrist bør derfor være på minimum 30 minutter, og budforhøyelser må derfor skje i god tid før fristens utløp.
Bud i forbrukerforhold kan uansett ikke settes med kortere frist enn kl. 12.00 første virkedag etter siste annonserte visning. I tillegg kan ikke budet ha forbehold om at det skal holdes hemmelig ovenfor øvrige interessenter. Megler har iht lov om eiendomsmegling ikke anledning til å videreformidle disse budene, og de vil dermed heller ikke bli journalført.
Etter at eiendommen er solgt vil kjøper og selger få tilsendt budjournal. Øvrige budgivere kan få utlevert kopi av budjournalen i anonymisert form.
Hvitvaskingsreglene
I henhold til lov om hvitvasking og terrorfinansiering har megler plikt til å gjennomføre kontrolltiltak overfor kunder, herunder fullmektiger. Dette innebærer bl.a. å bekrefte kunders og reelle rettighetshaveres identitet på bakgrunn av fremvist gyldig legitimasjon eller på annen godkjent måte, samt å innhente opplysninger om kundeforholdets formål og tilsiktede art.
Dersom slike kundetiltak ikke kan gjennomføres, kan megler ikke etablere kundeforholdet eller utføre transaksjonen.
Hvis kjøper ikke bidrar til gjennomføring av kundekontrollen og dette fører til at transaksjonen blir forsinket eller ikke kan gjennomføres, vil dette ansees som mislighold av avtalen og gi selger rettigheter etter avhendingslova kapittel 5. I tilfeller der selger ikke bidrar til gjennomføring av løpende kundekontroll underveis i oppdraget, er det selger som misligholder sine forpliktelser etter avtalen og gi kjøper rettigheter etter avhendingslovens kapittel 4. Partene er selv ansvarlige for eventuelle kostnader og ansvar dette kan medføre. Eiendomsmegleren eller eiendomsmeglingsforetaket kan ikke holdes ansvarlig for de konsekvenser dette vil kunne få for partene eller andre som har interesser i eiendomshandelen.
Kjøper oppfordres til å innbetale kjøpesummen som ikke kommer fra låneinstitusjon i én samlet innbetaling fra egen konto i norsk bank. Megler har plikt til å melde fra til Økokrim om eiendomshandler som fremstår som mistenkelige. Melding sendes Økokrim uten at partene varsles.
Personopplysningsloven
I henhold til personopplysningsloven gjør vi oppmerksom på at interessenter kan bli registrert for videre oppfølging.
Lovanvendelse
Generelle bestemmelser
Salgsoppgaven er basert på de opplysningene selger har gitt til megler, den bygningssakyndiges tilstandsrapport, samt opplysninger innhentet fra kommunen, Kartverket og andre tilgjengelige kilder. Det er viktig at kjøper setter seg grundig inn i alle salgsdokumentene, herunder salgsoppgave, tilstandsrapport og selgers egenerklæring. Kjøper anses kjent med forhold som er tydelig beskrevet i salgsdokumentene, og slike forhold kan ikke påberopes som mangler. Dette gjelder uavhengig av om kjøper har lest dokumentene. Alle interessenter oppfordres til å undersøke eiendommen nøye, gjerne sammen med fagkyndig før bud inngis. Kjøper som velger å kjøpe usett kan ikke gjøre gjeldende som mangel noe han burde blitt kjent med ved undersøkelsen.
Dersom det er behov for avklaringer, anbefaler vi at interessenter rådfører seg med eiendomsmegler eller egne rådgivere før det legges inn bud.
En bolig som har blitt brukt i en viss tid, har vanligvis blitt utsatt for slitasje og skader kan ha oppstått. Slik bruksslitasje må kjøper regne med, og det kan avdekkes enkelte forhold etter overtakelse som nødvendiggjør utbedringer. Normal slitasje og skader som nødvendiggjør utbedring, er innenfor hva kjøper må forvente og vil ikke utgjøre en mangel.
Kjøper og selgers rettigheter og plikter reguleres av avtalen mellom partene, samt informasjonen som har vært tilgjengelig for kjøperen i forbindelse med handelen. Avtalen utfylles av avhendingsloven, og det gjelder ulike avtalevilkår avhengig av om kjøper er forbrukerkjøper eller ikke. Dette er nærmere beskrevet nedenfor.
På grunn av ulike avtalevilkår kan selger vurdere bud fra en som ikke er forbruker, ulikt fra en forbrukers bud. Dersom kjøper ikke er forbruker, er selger sitt mulige mangelsansvar begrenset fordi eiendommen selges "som den er". Selger kan ikke ta «som den er»- forbehold overfor en forbrukerkjøper. Selv et lavere bud fra en som ikke er forbruker kan foretrekkes fordi begrensningen i mulig mangelsansvar kan ha egenverdi for selger. Selger står fritt til å forkaste eller akseptere ethvert bud, og er for eksempel ikke forpliktet til å akseptere høyeste bud.
Budgiver skal i budskjema avgi egenerklæring om budgiver er forbruker eller næringsdrivende/ person som hovedsakelig handler som ledd i næringsvirksomhet. Budgivere får informasjon dersom andre bud er inngitt av en som ikke er forbruker.
Forbrukerkjøp - definisjon
Med forbrukerkjøp menes kjøp av eiendom når kjøperen er en fysisk person som ikke hovedsakelig handler som ledd i næringsvirksomhet.
Forbruker – avtalevilkår
Eiendommen har en mangel dersom den ikke er i samsvar med kravene som følger av avtalen, eller det foreligger brudd på bestemmelsene i avhendingsloven §§ 3-2 til 3-8. Hvis eiendommen ikke er i samsvar med det kjøperen må kunne forvente ut ifra alder, type og synlig tilstand, kan det være grunnlag for mangelskrav. Det samme gjelder hvis det er holdt tilbake eller gitt uriktige opplysninger om eiendommen. Dette gjelder likevel bare dersom man kan gå ut ifra at det virket inn på avtalen at opplysningen ikke ble gitt eller at mangelskravet ikke blir rettet i tide på en tydelig måte.
Boligen kan ha en mangel etter avhendingsloven § 3-3 andre ledd, dersom det er avvik mellom opplyst og faktisk innvendig areal, forutsatt at avviket er på 2% eller mer og minimum 1 kvm.
Ved beregning av et eventuelt prisavslag eller erstatning må kjøper selv dekke tap/kostnader opptil et beløp på kr 10 000 (egenandel).
Ikke-forbruker (næringsdrivende) – definisjon
Hvis kjøper er en juridisk person, eller en fysisk person som hovedsakelig handler som ledd i næringsvirksomhet, vil kjøpet ikke anses som et forbrukerkjøp.
Ikke-forbruker – avtalevilkår
Eiendommen har en mangel dersom den ikke er i samsvar med kravene som følger av avtalen.
Eiendommen selges «som den er», og selgers ansvar utover det konkret avtalte er da begrenset etter avhendingsloven § 3-9, første ledd andre setning.
Avhendingsloven § 3-3 andre ledd fravikes, og hvorvidt boligens arealsvikt utgjør en mangel vurderes etter avhendingsloven § 3-8.
Informasjon om kjøpers undersøkelsesplikt, herunder oppfordringen om å undersøke eiendommen nøye, gjelder også for kjøpere som ikke anses som forbrukere.
Det forutsettes at hjemmel overføres til kjøper. Hvis kjøper ikke ønsker hjemmelsoverføring av eiendommen, må det tas forbehold om dette i budet.
Rett til fritt å velge megler
Valg av eiendomsmeglingsforetak skal være frivillig. Eiendomsmeglingsforetak kan ikke inngå oppdrag om eiendomsmegling dersom inngåelsen av oppdraget er satt som vilkår i avtale om annet enn eiendomsmegling, f.eks. tilbud om lån eller andre banktjenester, jf. Lov om eiendomsmegling § 6-3 (3)
Meglers vederlag
Meglers vederlag betales av selger og er avtalt til:
Vederlag kr 50.000,-
Tilrettelegging fra kr 17.000,-
Oppgjør: kr 7.500,-
Markedspakke: kr 25.500,-
Oppslag eiendomsregister: kr 2.900,-
Megler har i tillegg krav på dekning av utlegg:
Innhenting av dokumenter/servitutter fra grunnboken kr 240 pr stk
Innhenting av offentlig opplysninger Sarpsborg komm. inkl tegn: kr 5 079,-
Tinglysing sikring: kr 500,-
Foto - Grunnpakke (tillegg for kveldsbilder kr 4200): kr 4 000,-
tillegg kommer kostnad til takstmann kr 9700 og valgfri boligselgerforsikring på 3,31 promille av salgssummen.
Opplysninger om oppdraget
Oppdragsnummer 67-0344/24
Eiendomsmegler Krogsveen AS, avd. Fredrikstad og Sarpsborg
Dikeveien 14, 1661, ROLVSØY
950 007 613
Oppdragets KR-kode KR67.24344
Dato
Sist oppdatert: 20. februar 2026 kl. 11:33
Dokumenter
Dokumenter
PDF – 7 MB
PDF – 656 KB
PDF – 943 KB
PDF – 379 KB
PDF – 312 KB
PDF – 29 KB
PDF – 127 KB
PDF – 392 KB
Område
Legg til steder som er viktige for deg
Visning
Passer ikke oppsatt visningstid? Kontakt megler for privatvisning. Husk å melde deg på om du skal delta på fellesvisning.
Lurer du på noe?
Unngå doble boligrenter
Vi tilbyr gunstig forsikring.
Vurderer du utleie?
Få et tilbud fra Utleie KrogsveenHva koster lånet?
Sjekk estimert lånekostnadVil du varsles om lignende boliger?
Ved å lagre ditt boligsøk hos oss får du beskjed når vi har en bolig som ligner denne, før den legges ut på markedet!

