Løkkestien 12
12 650 000 kr
210 m²
4 soverom
Komplett salgsoppgave

Stabekk
Pen og velholdt enebolig i blindvei med trivelige og solrike utearealer. Meget barnevennlig område. Jar skolekrets!
Prisantydning
12 650 000 krOmkostninger
337 240 krTotalpris
12 987 240 kr
Pris
Bruksareal
210 m²BRA-I (internt bruksareal)
210 m²TBA (terrasse-balkongareal)
34 m²
Areal
Etasje
2Byggeår
1979Soverom
4 soveromTomteareal
1 019 m² (eiet)Type
Enebolig - FrittliggendeEierform
EietFasiliteter
Balkong/Terrasse
Nøkkelinfo
Unngå doble boligrenter
Vi tilbyr gunstig forsikring.
Vurderer du utleie?
Få et tilbud fra Utleie KrogsveenHva koster lånet?
Sjekk estimert lånekostnadBeskrivelse
Kort om eiendommen
Eiendomsmegler Cecilie Muri har gleden av å ønske velkommen til Løkkestien 12, og en innbydende og velholdt familiebolig med solrike utearealer. Eneboligen har en attraktiv beliggenhet på Stabekk, i barnevennlige og hyggelige omgivelser. Her bor dere med nærhet til barnehager, skoler, offentlig kommunikasjon, fritidsaktiviteter og mye mer.
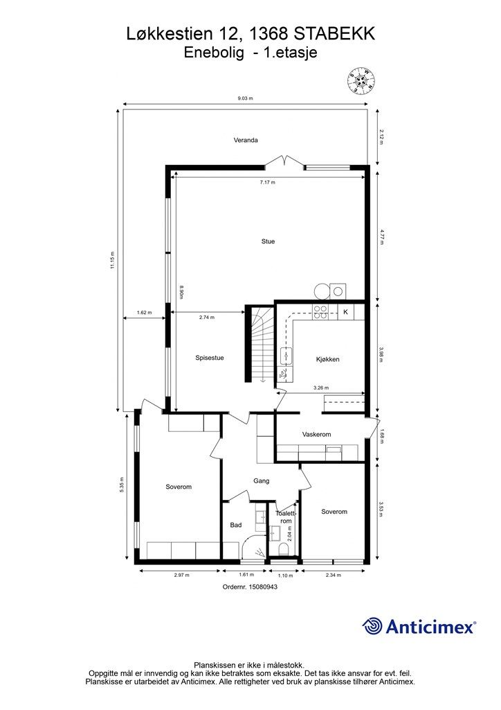
Boligen har en flott planløsning over to plan og inneholder entré, gang, toalettrom, dusjrom, badstue, to soverom, peisestue og fire boder i underetasjen, og gang, bad, toalettrom, to soverom, vaskerom, kjøkken, stue og spisestue i 1. etasjen. Utvendig byr boligen på nydelige uteplasser med en romslig veranda, platting med pergola og en hyggelig hage klar for lek og moro! Det er plass til flere biler på tomten. Det er montert elbil-lader på husvegg.
Innhold og byggemåte
Innhold og byggemåte
Eiendommen
Løkkestien 12, 1368 STABEKK
Kommunenummer 3201, gårdsnummer 17, bruksnummer 895
Innhold
Totalt bruksareal BRA: 210 kvm
BRA-i:
Enebolig:
Underetasje 101 kvm: Entré, gang, toalettrom, dusjrom, badstue, to soverom, peisestue og fire boder.
1. etasje 109 kvm: Gang, bad, toalettrom, to soverom, vaskerom, kjøkken, stue og spisestue.
Åpent areal:
Enebolig:
1. etasje 34 kvm: Veranda.
Vedlagte plantegninger er ikke målbare. De oppgitte arealer er hentet fra rapport med befaringsdato 09.04.2026 utført av Anticimex AS v/Henrik Huso. Arealene er beregnet og rom er definert etter dagens faktiske bruk, uavhengig av hva som er godkjent av bygningsmyndighetene.
Peisestuen er opprinnelig byggemeldt som "hobbyrom/sport" jf. byggetegninger og er ikke godkjent til varig opphold. Se pkt. ferdigattest.
Byggemåte
Selger har innhentet en tilstandsrapport av boligen/eiendommen. Av rapporten fremgår det at flere bygningsdeler har fått tilstandsgrad ikke undersøkt/ikke tilgjengelig for undersøkelse (TG IU), 2 (TG2) og/eller 3 (TG3). Rapporten beskriver også avvik på undersøkte bygningsdeler uten tilstandsgrad. Kjøper overtar ansvaret for de opplysninger som fremkommer av salgsdokumentasjonen, og kan ikke gjøre gjeldende som mangel noe som burde vært kjent eller som ikke kan anses å ha betydning for avtalen.
Bygningen er iht. tilstandsrapporten oppført i tre/betong. Les for øvrig mer om byggemåte og den tekniske tilstanden i rapporten.
- Grunnmur av lettklinkerblokker.
- Bærende konstruksjoner av trekonstruksjoner og lettklinkerblokker.
- Yttervegger i en kombinasjon av trekonstruksjoner og lettklinkerblokker. Utvendige fasader er kledd med stående trekledning og murpuss.
- Etasjeskillere av trekonstruksjoner.
- Yttertak av saltakskonstruksjon. Utvendig belagt med takstein fra 2016. Undertak fra , av duk. Pipe helkledd i metall. Renner og nedløp i metall.
- Entrédør med glassfelter og elektrisk kodelås. Verandadører med karm/ramme av tre (fra byggeår). Vinduer med karmer/ramme av tre (fra byggeår).
- Boligen ventileres hovedsakelig med naturlig ventilasjon gjennom vinduer og ventiler.
- Oppvarming av boligen skjer i en kombinasjon mellom bruk av panelovner (elektrisk oppvarming), gulvvarme/varmekabler i enkelte rom og vedfyring.
- Vannrør av kobber. Vanninntaksrør i kobber plassert i bod ved entré. Hovedstoppekran er plassert på vanninntaksrør. Synlige avløpsrør i plast. Stakeluke er plassert på toalettrom underetasje. Varmtvannsbereder på 198L fra 2002 plassert i bod ved entré.
- Uinnredet kaldt loft. Adkomst via takluke og stige. Synlige bjelker av treverk og isolasjon mot underliggende etasje. Gulvet er stedvis kledd med plater. Synlige taksperrer. Lufteluke i gavlvegg. Lufteåpninger mellom taksperrer (nedre del av taket).
- Elementpipe fra byggeår. Peisovn med glassdør i stue. Åpen peis i peisestue underetasje.
- Utgang fra stue og soverom til veranda på 34 m2. i trekonstruksjoner med rekkverk av tre. Rekkverkshøyde er målt til 0,91 meter. Gulvoverflater er belagt med terrassebord. Verandaen har markise, varmelampe, utvendig stikkontakt og utebelysning.
- Dreneringen er fra byggeår. Synlig utvendig fuktsperre. Nedløpsrør for takvann er avsluttet over bakkenivå. Svakt skrånende tomt i to nivåer.
- Forstøtningsmurer av naturstein på baksiden av boligen. Forstøtningsmur av treverk ved pergola.
- Boligen har private stikkledninger tilknyttet kommunalt vann og avløp. Utvendige vann- og avløpsledninger er fra byggeår.
- Inntakssikring er plassert i eget sikringsskap (skrusikringer) plassert på kaldtloft. Sikringsskap er plassert i entré. Anlegget er sikret med en kombinasjon mellom automatsikringer fra ca år 2010 og skrusikringer fra byggeår.
Det gjøres spesielt oppmerksom på:
TG2:
- Bad 1. etasje (veggoverflater, vanntett sjikt/membran i gulv/vegger, tettesjiktets tilslutning til sluk, ventilasjon og fagmessig utførelse).
- Vaskerom 1. etasje (lekkasjesikkerhet, tettesjiktets tilslutning til sluk, vannrør og ventilasjon).
- Kjøkken (innredning).
- Toalettrom 1. etasje (sanitærutstyr/innredning).
- Toalettrom underetasje (vannrør, avløpsrør og sanitærutstyr/innredning).
- Teknisk anlegg (vannrør, innvendig stoppekran, avløpsrør og varmtvannsbereder).
- Andre rom 1. etasje (veggoverflater).
- Rom under terreng (veggoverflater og kontroll i lukkede konstruksjoner).
- Loft (synlige overflater).
- Badstue (konstruksjonsoppbygging og teknisk anlegg).
- Yttervegger (fasader/konstruksjoner av mur, betong og lignende).
- Vinduer/ytterdører (vinduer/omramming og ytterdører/omramming).
- Balkong (tilstand på rekkverk og overflatematerialer)
- Grunnmur/fundament (grunnmur og fundament).
- Drenering (helhetsvurdering).
- Forstøtningsmur av treverk (tilstand).
- Stikkledninger/tanker (utvendige vannledninger og avløpsledninger).
TG3:
- Vaskerom 1. etasje: Vanntett sjikt har en alder som erfaringsmessig tilsier at fremtidig funksjon er svært usikker (gjelder for produkter/løsninger etablert før år 2000). Konsekvensen er at bygningsdelen erfaringsmessig har risiko for nedsatt funksjon, utettheter eller andre aldersrelaterte problemer. Fornying av tettesjikt krever i de fleste tilfeller tiltak som komplett utskiftning/renovering av våtrom. Bygningsdelen er skjult, så den faktiske tilstanden/dagens tettefunksjon er ukjent. TG3 er satt i henhold til NS 3600. Foreslått strakstiltak er videre undersøkelser for å kartlegge dagens tilstand og avdekke om det er behov for større inngrep og utskiftninger, eller om lokale utbedringer og lignende tiltak er tilstrekkelig. Det vurderes at det ikke er benyttet vanntett sjikt på våtrommets veggflater. Konsekvensen er at våtrom uten et fullverdig tettesjikt har høy risiko for skjulte fuktskader. Foreslått strakstiltak er at det gjennomføres ytterligere undersøkelser for å kartlegge omfang, eventuelle følgeskader og eksakt hvilke tiltak som er nødvendig. Følgende sjablongmessig prisanslag gjelder for komplett renovering av våtrommet da dette er i de fleste tilfeller er kreves ved fornying av tettesjikt. Sjablongmessig prisanslag: kr 100 000 - 300 000.
- Dusj underetasje: Basert på våtrommets samlede tilstandsbilde og hovedmomentene nevnt ovenfor, må det påregnes tiltak som totalrenovering innen kort tid på grunn av påviste skader og funksjonssvikt. Det er ukjent om tilstanden har ført til skjulte følgeskader, og erfaring viser at oppstart av utbedrings- og fornyelsesarbeider ofte avdekker flere forhold enn først antatt, noe det må tas høyde for i planlegging og kostnadsanslag. Følgende sjablongmessige prisanslag gjelder for totalrenovering av våtrommet. Sjablongmessig prisanslag Kr 100 000 - 300 000.
TGIU (ikke undersøkt):
- Bad 1. etasje (fallforhold rundt sluk).
- Vaskerom 1. etasje (fallforhold rundt sluk).
Se supplerende tekst i tilstandsrapporten om bygningsdelene. Kjøper overtar ansvar og risiko for dette.
Tilstandsrapporten er inntatt i salgsoppgaven. Rapporten inneholder informasjon om avvikene og konsekvensen av disse. For avvik som er gitt TG3 har den bygningssakkyndige i tillegg gitt et anslag på hva det vil koste å utbedre disse avvikene. Ettersom kjøper regnes å være kjent med forhold som tydelig fremgår av tilstandsrapporten, oppfordres du til å sette deg grundig inn i rapporten i sin helhet.
Standard
Underetasjen fremstår som en innholdsrik og fleksibel del av boligen. Her blir man møtt av en entré og gang som gir enkel tilgang til etasjens rom. Etasjen rommer to soverom, en lun peisestue (hobbyrom) som innbyr til hyggelige kvelder, samt hele fire boder som gir gode oppbevaringsmuligheter. I tillegg finnes eget toalettrom, dusjrom og en badstue som gir en ekstra komfort i hverdagen.
Hovedetasjen byr på en lys og trivelig atmosfære med gode oppholdsrom. Her finner du gang, to soverom, bad, separat toalettrom, vaskerom samt kjøkken i tilknytning til stue og spisestue. Kjøkkenet har en funksjonell utforming med god arbeidsplass, mens stue og spisestue danner et naturlig samlingspunkt for både hverdag og gjester. Planløsningen oppleves som gjennomtenkt og tilrettelagt for en komfortabel og praktisk bosituasjon.
Løsøre og tilbehør
Vi viser til liste fra Norges Eiendomsmeglerforbund som gjelder fra 01.01.2020 angående løsøre og tilbehør.
Følgende hvitevarer medfølger ikke:
Vaskemaskin, tørketrommel, kombiskap på vaskerom og fryseboks.
Oppvarming
Oppvarming av boligen skjer i en kombinasjon mellom bruk av panelovner (elektrisk oppvarming), gulvvarme/varmekabler i enkelte rom og vedfyring.
Dersom beboelsesrom ikke har vegg- eller fastmonterte varmekilder ved visning, følger dette heller ikke med.
Ferdigattest/brukstillatelse
Det foreligger ferdigattest på våningshus datert 14.08.1979 og garasje datert 14.04.1978. Disse kan fås ved henvendelse til megler.
Peisestuen er opprinnelig byggemeldt som "hobbyrom/sport" jf. byggetegninger og er ikke godkjent til varig opphold. Innredning av rommene til bruk for varig opphold er ikke bruksendret/omsøkt og er heller ikke godkjent av kommunen. Konsekvensen ved søknad kan være at rommet ikke godkjennes som varig opphold og at rommet da må brukes som bod/midlertidig oppbevaring. Kjøper overtar alt ansvar, kostnad og risiko for dette videre.
Tinglyste heftelser og rettigheter
Eiendommen overdras fri for pengeheftelser.
Det er tinglyst følgende servitutter på eiendommen:
- Dagboknr 10802, tinglyst 07.06.1979, type heftelse: Bestemmelse om adkomstrett: Gbnr. 17/28 (Løkkestien 16), 17/849 (Løkkestien 18) og gjenværende del av 17/846 (Løkkestien 14) har rett til kjørbar adkomst til Løkkestien samt gangadkomst og nødvendig rett til snuplass på gbnr. 17/895 (Løkkestien 12). Videre har eier av gjenværende del av gbnr. 17/846 rett til å være opp garasje og anlegge egne biloppstillingsplasser foran garasje, og gbnr. 17/28 har likeledes rett til å plassere garasje over delelinje og delvis inn på bnr (blank). Eier av gbnr. 17/28 og 17/846 har videre rett til vei fra sine garasjer og opp til bolighus. Veien skal ligge i 3 m bredde med 1,5 m på hver side av tomtegrensen mellom gbnr 17/28, 17/(blank) og 17/846. Bak garasjene skal dog veien ligge helt på gbnr. 17/(blank) i en slik lengde at en får en naturlig og nødvendig sving på veien.
Servituttene vil følge eiendommen. Kjøpers bank vil få prioritet etter ovennevnte heftelser og servitutter.
Eventuell adgang til utleie
Eiendommen har ikke separat utleieenhet. Det vil normalt være anledning til utleie av hele eiendommen eller enkeltrom, såfremt utleiearealet er bygningsmessig godkjent for varig opphold og har forsvarlige radonnivåer.
Beliggenhet og tomteforhold
Beliggenhet og tomteforhold
Beliggenhet
Eiendommen har en sentral, men samtidig tilbaketrukket beliggenhet mellom Stabekk og Bekkestua. Boligen ligger rolig, barnevennlig og solrikt til med flott utsyn over nærområdet. Området er kjent for sitt hyggelige nabofelleskap og er derfor også ansett som et svært populært boområde. Stabekk, Bekkestua, Jar nærsenter og CC-Vest - alle er områder med flere typer butikker, treningssentre mm. Stabekk og Bekkestua ligger begge i gangavstand fra boligen. På Bekkestua og Stabekk finner du et rikelig utvalg av forretninger og restauranter, banker, postkontor, vinmonopol, bibliotek, treningssenter og restauranter.
Området byr på utallige rekreasjonsmuligheter i gangavstand med bla. fotball- og tennisbaner og idylliske gangveier på Jarmyra og langs Lysakerelven. Lysakerelven danner grensen mellom Oslo og Bærum der den går fra Bogstadvannet og munner ut i Oslofjorden ved Lysaker brygge, som ligger mellom Bygdøy og Snarøya. Langs elven er det både hyggelige badeplasser og muligheter for fiske. På Lysaker Brygge er det treningssenter og hyggelige spisesteder. Det er kort vei til Fornebulandet med badestrand og et utall av turmuligheter.
Boligen ligger meget godt plassert i forhold til offentlig kommunikasjon; Det er busstopp i Storengveien (holdeplass Clausbakken). Tog på nedre Stabekk og T-bane fra både Bekkestua og Ringstabekk.
Adkomst
Veibeskrivelse se Google Maps - det er enkelt å finne frem i kartet.
Barnehager, skoler og fritid
- Miniputten familiebarnehage
- Sukkerspinn familiebarnehage
- Jar FUS barnehage
- Jar barneskole
- Ringstabekk ungdomsskole
Dersom skole- og barnehagetilbud er av betydning for kjøpet, ber vi om at det rettes en særskilt henvendelse til kommunen for oppdatert informasjon.
Beskrivelse av tomt
Eiertomt på 1 019 kvm. Tomt er opparbeidet med blant annet asfaltert innkjørsel, belegningsstein, diverse støttemurer, plenarealer og andre forskjellige beplantninger. Deler av tomten blir brukt av naboen etter tinglyst avtale.
Parkering
Parkering på egen tomt. Elbil-lader er montert på husvegg.
Vei, vann og avløp
Eiendommen har adkomst via kommunal vei.
Eiendommen er tilknyttet kommunalt ledningsnett via private stikkledninger. Eier er selv ansvarlig for private stikkledninger til boligen.
Økonomi
Økonomi
Kommunale utgifter
Kommunale avgifter er kr 24 349,- for inneværende år. I dette inngår gebyr for vann, avløp, renovasjon og feiing/tilsyn. Det tas forbehold om at kommunen kan justere gebyrene i løpet av året.
Nåværende eier har et strømforbruk som tilsvarer ca. 35.000 kwh. pr. år.
Boligen har en årlig forsikringspremie på kr 11.000,-.
Boligen er tilknyttet Altibox som leverandør av kabel-tv og har avgift på ca. kr. 1000,- pr. mnd. Tv-tuner/dekoder medfølger ikke.
Utgiftene er basert på nåværende eiers forbruk og avtaler.
Selger har avtalt Norgespris på strøm på eiendommen for 2026, og denne er pt på kr 50 øre inkl mva. Nettleie, avgifter og påslag fra kraftleverandøren kommer i tillegg.
Denne avtalen vil følge eiendommen i den avtalte perioden.
Les mer om Norgespris her: https://www.regjeringen.no/no/aktuelt/legg-fram-lov-om-norgespris-pa-straum-og-fjernvarme/id3102642/
Formuesverdi
Ved hjelp av skatteetatens boligkalkulator er boligens formuesverdi beregnet til kr. 4 965 522,- for fjoråret når boligen benyttes som primærbolig.
Formuesverdien er en gitt prosent av den beregnede markedsverdien. Beregnet markedsverdi er basert på Statistisk sentralbyrå (SSB) sine opplysninger om omsatte boliger. I beregningen tas det hensyn til boligens beliggenhet, areal, byggeår og boligtype.
Det er eier av boligen som fastsetter formuesverdien, jf. skatteforvaltningsloven § 9-1 første ledd, men skattemyndighetene kan kontrollere at verdien er satt riktig.
Formuesverdi skal ikke overstige:
Primærbolig: 25 % av beregnet eller dokumentert markedsverdi opp til kr. 10 000 000, og deretter 70 % av den overskytende markedsverdi.
Sekundærbolig: 100 % av beregnet eller dokumentert markedsverdi.
Formuesverdier som overstiger disse grensene, kan kreves nedjustert av eier.
Fra 2026 har Stortinget vedtatt en oppdatert modell for beregning av formuesverdi for primærbolig, så avvik kan forekomme.
For mer informasjon se skatteetaten.no
Omkostninger
12 650 000,00 Prisantydning
Omkostninger
316 250,00 Dokumentavgift til staten (2,5% av kjøpesum)
19 900,00 Gjensidige Boligkjøperpakke (valgfri)* (valgfritt)
545,00 Tinglysing panterettsdokument
545,00 Tinglysing skjøte
--------------------------------------------------------
317 340,00 (Omkostninger totalt (uten Gjensidige Boligkjøperpakke (valgfri)))
337 240,00 Omkostninger totalt (med Gjensidige Boligkjøperpakke (valgfri)))
--------------------------------------------------------
12 967 340,00 Totalpris inkl. omkostninger
12 987 240,00 Totalpris inkl. omkostninger (med Gjensidige Boligkjøperpakke (valgfri))
--------------------------------------------------------
Totalpris inkl. omkostninger forutsetter kjøp til prisantydning.
Det tas forbehold om endringer i avgifter og gebyrer.
Tilbud om lånefinansiering
Megler formidler gjerne kontakt med rådgiver hos vår samarbeidspartner BN Bank. De har konkurransedyktige betingelser samt rask og løsningsorientert behandling av din lånesøknad. Krogsveen mottar et honorar dersom lån opprettes.
Betalingsbetingelser
Kjøpesum inkludert omkostninger, samt pantedokument tilknyttet eventuelt lån, skal være disponibelt hos megler 2 virkedager før overtagelsen.
Annen viktig informasjon
Annen viktig informasjon
Eier
Gunnar Sitter og Nina Wigestrand Sitter
Overtakelse
Etter nærmere avtale.
Boligselgerforsikring
Selger har i forbindelse med salget tegnet boligselgerforsikring levert av Gjensidige.
Boligselgerforsikringen dekker selgers ansvar etter avhendingsloven begrenset oppad til kr 14 millioner. Dersom kjøper oppdager forhold ved eiendommen som hen mener utgjør en mangel ved eiendommen, vil Gjensidige behandle reklamasjonen på vegne av selger. Forsikringsvilkår kan fås ved henvendelse til megler.
Vedlagt salgsoppgaven følger selgers egenerklæringsskjema og tilstandsrapport. Interessenter må sette seg inn i dokumentene før bud inngis.
Boligkjøperforsikring
Innen kontraktsmøtet må kjøper ta stilling til om det ønskes å bestille Boligkjøperpakken gjennom Gjensidige. I denne gunstige pakken er boligen ferdig forsikret og inkluderer rettshjelpsforsikring, også kalt Boligkjøperforsikring. Rettshjelpsforsikring gir trygghet og tilgang på profesjonell juridisk hjelp dersom det oppdages uventede feil eller mangler det første året etter overtagelse. Forsikringsselskapet behandler i så fall ethvert mangelskrav kjøper måtte ha overfor selger.
Boligkjøperpakken inkluderer bygningsforsikring for hus og hytte, innboforsikring, flytteforsikring og dobbel rentedekning - i situasjoner hvor kjøper ikke får solgt nåværende primærbolig.
Kjøper mottar ingen særskilt faktura for Boligkjøperpakken da kostnaden det første året legges til kjøpesummen for boligen. Det gjøres oppmerksom på Krogsveen mottar et honorar for denne formidlingen.
Produktark for Boligkjøperpakken ligger vedlagt i salgsoppgaven.
Dersom ikke boligkjøperpakke ønskes kan kun rettshjelpsforsikring, også kalt boligkjøperforsikring, tegnes særskilt via megler. Rettshjelpsforsikringen varer i 5 år fra overtagelse og leveres gjennom Gjensidige. Ta kontakt med megler for ytterligere informasjon.
Selskap og privatpersoner som driver med kjøp/salg/utvikling som ledd i egen næringsvirksomhet kan ikke tegne boligkjøperpakke eller rettshjelpsforsikring.
Budgivning
Forbrukerinformasjon om budgivning er vedlagt denne salgsoppgaven og er også på vår hjemmeside Krogsveen.no. Alle bud og budforhøyelser må inngis skriftlig. I tillegg må legitimasjon være fremlagt sammen med signatur fra budgiver.
Vi oppfordrer til å gi bud elektronisk via GI BUD-knappen på eiendommens hjemmeside på Krogsveen.no. Da vil samtlige vilkår bli oppfylt.
Eventuelle forhøyelser eller endringer av budet kan bekreftes pr SMS eller på e-post. Vi oppfordrer alltid til å kontakte megler pr. telefon i tillegg da forsinkelser i SMS og e-post kan forekomme.
For at budene skal kunne bli behandlet og videreformidlet skriftlig til alle involverte parter, må alle bud ha en tilstrekkelig lang akseptfrist, jf. eiendomsmeglingsforskriften § 6-3.
Selger må også skriftlig akseptere budet før aksept kan formidles til budgiver. Akseptfrist bør derfor være på minimum 30 minutter, og budforhøyelser må derfor skje i god tid før fristens utløp.
Bud i forbrukerforhold kan uansett ikke settes med kortere frist enn kl. 12.00 første virkedag etter siste annonserte visning. I tillegg kan ikke budet ha forbehold om at det skal holdes hemmelig ovenfor øvrige interessenter. Megler har iht lov om eiendomsmegling ikke anledning til å videreformidle disse budene, og de vil dermed heller ikke bli journalført.
Etter at eiendommen er solgt vil kjøper og selger få tilsendt budjournal. Øvrige budgivere kan få utlevert kopi av budjournalen i anonymisert form.
Hvitvaskingsreglene
I henhold til lov om hvitvasking og terrorfinansiering har megler plikt til å gjennomføre kontrolltiltak overfor kunder, herunder fullmektiger. Dette innebærer bl.a. å bekrefte kunders og reelle rettighetshaveres identitet på bakgrunn av fremvist gyldig legitimasjon eller på annen godkjent måte, samt å innhente opplysninger om kundeforholdets formål og tilsiktede art.
Dersom slike kundetiltak ikke kan gjennomføres, kan megler ikke etablere kundeforholdet eller utføre transaksjonen.
Hvis kjøper ikke bidrar til gjennomføring av kundekontrollen og dette fører til at transaksjonen blir forsinket eller ikke kan gjennomføres, vil dette ansees som mislighold av avtalen og gi selger rettigheter etter avhendingslova kapittel 5. I tilfeller der selger ikke bidrar til gjennomføring av løpende kundekontroll underveis i oppdraget, er det selger som misligholder sine forpliktelser etter avtalen og gi kjøper rettigheter etter avhendingslovens kapittel 4. Partene er selv ansvarlige for eventuelle kostnader og ansvar dette kan medføre. Eiendomsmegleren eller eiendomsmeglingsforetaket kan ikke holdes ansvarlig for de konsekvenser dette vil kunne få for partene eller andre som har interesser i eiendomshandelen.
Kjøper oppfordres til å innbetale kjøpesummen som ikke kommer fra låneinstitusjon i én samlet innbetaling fra egen konto i norsk bank. Megler har plikt til å melde fra til Økokrim om eiendomshandler som fremstår som mistenkelige. Melding sendes Økokrim uten at partene varsles.
Personopplysningsloven
I henhold til personopplysningsloven gjør vi oppmerksom på at interessenter kan bli registrert for videre oppfølging.
Lovanvendelse
Generelle bestemmelser
Salgsoppgaven er basert på de opplysningene selger har gitt til megler, den bygningssakyndiges tilstandsrapport, samt opplysninger innhentet fra kommunen, Kartverket og andre tilgjengelige kilder. Det er viktig at kjøper setter seg grundig inn i alle salgsdokumentene, herunder salgsoppgave, tilstandsrapport og selgers egenerklæring. Kjøper anses kjent med forhold som er tydelig beskrevet i salgsdokumentene, og slike forhold kan ikke påberopes som mangler. Dette gjelder uavhengig av om kjøper har lest dokumentene. Alle interessenter oppfordres til å undersøke eiendommen nøye, gjerne sammen med fagkyndig før bud inngis. Kjøper som velger å kjøpe usett kan ikke gjøre gjeldende som mangel noe han burde blitt kjent med ved undersøkelsen.
Dersom det er behov for avklaringer, anbefaler vi at interessenter rådfører seg med eiendomsmegler eller egne rådgivere før det legges inn bud.
En bolig som har blitt brukt i en viss tid, har vanligvis blitt utsatt for slitasje og skader kan ha oppstått. Slik bruksslitasje må kjøper regne med, og det kan avdekkes enkelte forhold etter overtakelse som nødvendiggjør utbedringer. Normal slitasje og skader som nødvendiggjør utbedring, er innenfor hva kjøper må forvente og vil ikke utgjøre en mangel.
Kjøper og selgers rettigheter og plikter reguleres av avtalen mellom partene, samt informasjonen som har vært tilgjengelig for kjøperen i forbindelse med handelen. Avtalen utfylles av avhendingsloven, og det gjelder ulike avtalevilkår avhengig av om kjøper er forbrukerkjøper eller ikke. Dette er nærmere beskrevet nedenfor.
På grunn av ulike avtalevilkår kan selger vurdere bud fra en som ikke er forbruker, ulikt fra en forbrukers bud. Dersom kjøper ikke er forbruker, er selger sitt mulige mangelsansvar begrenset fordi eiendommen selges "som den er". Selger kan ikke ta «som den er»- forbehold overfor en forbrukerkjøper. Selv et lavere bud fra en som ikke er forbruker kan foretrekkes fordi begrensningen i mulig mangelsansvar kan ha egenverdi for selger. Selger står fritt til å forkaste eller akseptere ethvert bud, og er for eksempel ikke forpliktet til å akseptere høyeste bud.
Budgiver skal i budskjema avgi egenerklæring om budgiver er forbruker eller næringsdrivende/ person som hovedsakelig handler som ledd i næringsvirksomhet. Budgivere får informasjon dersom andre bud er inngitt av en som ikke er forbruker.
Forbrukerkjøp - definisjon
Med forbrukerkjøp menes kjøp av eiendom når kjøperen er en fysisk person som ikke hovedsakelig handler som ledd i næringsvirksomhet.
Forbruker – avtalevilkår
Eiendommen har en mangel dersom den ikke er i samsvar med kravene som følger av avtalen, eller det foreligger brudd på bestemmelsene i avhendingsloven §§ 3-2 til 3-8. Hvis eiendommen ikke er i samsvar med det kjøperen må kunne forvente ut ifra alder, type og synlig tilstand, kan det være grunnlag for mangelskrav. Det samme gjelder hvis det er holdt tilbake eller gitt uriktige opplysninger om eiendommen. Dette gjelder likevel bare dersom man kan gå ut ifra at det virket inn på avtalen at opplysningen ikke ble gitt eller at mangelskravet ikke blir rettet i tide på en tydelig måte.
Boligen kan ha en mangel etter avhendingsloven § 3-3 andre ledd, dersom det er avvik mellom opplyst og faktisk innvendig areal, forutsatt at avviket er på 2% eller mer og minimum 1 kvm.
Ved beregning av et eventuelt prisavslag eller erstatning må kjøper selv dekke tap/kostnader opptil et beløp på kr 10 000 (egenandel).
Ikke-forbruker (næringsdrivende) – definisjon
Hvis kjøper er en juridisk person, eller en fysisk person som hovedsakelig handler som ledd i næringsvirksomhet, vil kjøpet ikke anses som et forbrukerkjøp.
Ikke-forbruker – avtalevilkår
Eiendommen har en mangel dersom den ikke er i samsvar med kravene som følger av avtalen.
Eiendommen selges «som den er», og selgers ansvar utover det konkret avtalte er da begrenset etter avhendingsloven § 3-9, første ledd andre setning.
Avhendingsloven § 3-3 andre ledd fravikes, og hvorvidt boligens arealsvikt utgjør en mangel vurderes etter avhendingsloven § 3-8.
Informasjon om kjøpers undersøkelsesplikt, herunder oppfordringen om å undersøke eiendommen nøye, gjelder også for kjøpere som ikke anses som forbrukere.
Det forutsettes at hjemmel overføres til kjøper. Hvis kjøper ikke ønsker hjemmelsoverføring av eiendommen, må det tas forbehold om dette i budet.
Meglers vederlag
Meglers vederlag betales av selger og er avtalt til:
Vederlag: 0,60 % av salgssummen inkl. eventuell fellesgjeld.
Vederlag:
Foto Enebolig kr 6 500,00
Kontroll av hjemmel og heftelser kr 4 500,00
Markedsføringspakke kr 31 500,00
Oppgjør kr 8 900,00
Tilrettelegging kr 19 900,00
Visninger pr stk / Overtagelse kr 2 500,00
Utlegg:
Innhenting av offentlig opplysninger Bærum kommune kr 4 426,00
Tinglysing sikring kr 545,00
Andre utgifter:
AX tilstandsrapport enebolig kr 20 625,00
Boligselgerforsikring Gjensidige Eiet - regnes av prisantydning kr 65 000,00
Vi er opptatt av verdiskapning, og har knyttet til oss samarbeidspartnere som skal sikre våre kunder de beste produkter og tjenester;
• I forbindelse med forberedelse av salget, innhenter vi informasjon om eiendommen hovedsakelig fra vår samarbeidspartner Ambita.
• Gjensidige leverer boligselgerforsikring og tilbyr bygningsforsikring
• Boligkjøperforsikring leveres av Hiscox og med Sedgwick som skadebehandler, og er formidlet gjennom Gjensidige.
• BN bank tilbyr finansieringsløsninger
• Vår avdeling Krogsveen Pluss tilbyr flyttetjenester som utvask, visningsvask, lager, tømming og transport av flyttelass, i tillegg til å formidle kontakt med Flip for overflateoppussing.
• I forbindelse med overtagelse av eiendommen tilbyr Overo avtale om strøm, alarm og bredbånd.
• Krogsveen er, sammen med øvrige bransjeaktører, medeier i Bomega AS som tilbyr den digitale annonseringsplattformen Hjem.
Opplysninger om oppdraget
Oppdragsnummer 10-0136/26
Eiendomsmegler Krogsveen AS, avd. Bærum
Gml. Ringeriksvei 40, 1357, BEKKESTUA
950 007 613
Oppdragets KR-kode KR10.26136
Dato
Sist oppdatert: 17. april 2026 kl. 15:55
Dokumenter
Dokumenter
PDF – 962 KB
PDF – 5 MB
PDF – 950 KB
PDF – 167 KB
PDF – 1 MB
PDF – 1 MB
PDF – 312 KB
PDF – 29 KB
PDF – 127 KB
PDF – 392 KB
Område
Legg til steder som er viktige for deg
Visning
For å delta på visning, ber vi om at du melder deg på. Da sikrer vi at du får nødvendig informasjon og at det er satt av tilstrekkelig med tid. Kontakt megler dersom annet tidspunkt ønskes. Husk å lese salgsoppgaven før visningen, så du stiller forberedt.
Ønsker du kun å bli holdt orientert, kan du fra eiendommens hjemmeside få varsel om solgtpris, eller kontakte megler.
Lurer du på noe?
Unngå doble boligrenter
Vi tilbyr gunstig forsikring.
Vurderer du utleie?
Få et tilbud fra Utleie KrogsveenHva koster lånet?
Sjekk estimert lånekostnadVil du varsles om lignende boliger?
Ved å lagre ditt boligsøk hos oss får du beskjed når vi har en bolig som ligner denne, før den legges ut på markedet!




















































