Rovelstadgrenda 133
2 150 000 kr
104 m²
3 soverom
Komplett salgsoppgave
Bruvoll
Småbruk med tomt på 20 830 m² I Enebolig m/3 soverom I Fjøs, garasje og hagestue I Usjenert med skogen som nærmeste nabo
Prisantydning
2 150 000 krOmkostninger
74 740 krTotalpris
2 224 740 kr
Pris
Bruksareal
142 m²BRA-I (internt bruksareal)
104 m²BRA-E (eksternt bruksareal)
38 m²TBA (terrasse-balkongareal)
49 m²
Areal
Byggeår
1938Soverom
3 soveromBad
2 badTomteareal
20 830 m² (eiet)Type
Enebolig - FrittliggendeEierform
EietEnergimerke
Oransje G
Nøkkelinfo
Unngå doble boligrenter
Vi tilbyr gunstig forsikring.
Vurderer du utleie?
Få et tilbud fra Utleie KrogsveenHva koster lånet?
Sjekk estimert lånekostnadBeskrivelse
Kort om eiendommen
Innhold og byggemåte
Innhold og byggemåte
Eiendommen
Rovelstadgrenda 133, 2123 BRUVOLL
Kommunenummer 3414, gårdsnummer 23, bruksnummer 21, ideell andel 1/1
Innhold
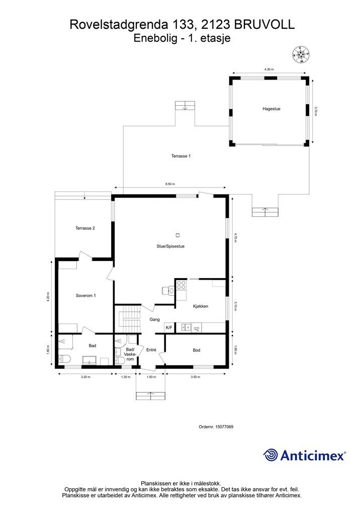
Totalt bruksareal BRA: 142 kvm
BRA-i:
Enebolig:
1. etasje 88 kvm: Entré, bod, bad/vaskerom, gang, bad, soverom, kjøkken og stue/spisestue.
2. etasje 16 kvm: Trappegang, to soverom og kott.
BRA-e:
Enebolig:
-1. etasje 5 kvm: Trappegang.
Garasje:
1. etasje 16 kvm: Garasje.
Hagestue :
1. etasje 17 kvm: Hagestue.
Åpent areal:
Enebolig:
1. etasje 49 kvm: To terrasser.
Boligen har følgende fordeling av primær- og sekundærareal: 96 m2 P-rom og 13 m2 S-rom.
Loftsetasjen har et totalt gulvareal (GUA) på 37 m2, men grunnet skråtak/lav takhøyde er kun 16 m2 av arealet måleverdig som bruksareal. De delene av arealene som har lav himlingshøyde (ALH) utgjør 21 m2.
Grovkjelleren (inkl. trappegangen) har et totalt gulvareal (GUA) på 20 m2, men grunnet lav takhøyde er kun 5 m2 av arealet måleverdig som bruksareal. De delene av arealene som har lav himlingshøyde (ALH) utgjør 15 m2.
Vedlagte plantegninger er ikke målbare. De oppgitte arealer er hentet fra rapport med befaringsdato 14.11.2025 utført av Anticimex AS. Arealene er beregnet og rom er definert etter dagens faktiske bruk, uavhengig av hva som er godkjent av bygningsmyndighetene. Se punkt om ferdigattest for mer informasjon.
Byggemåte
Selger har fått utarbeidet en tilstandsrapport, dvs. en teknisk gjennomgang av boligen hvor eventuelle avvik, risiko for kjøper og prisoverslag for hva som bør gjøres av oppgradering, er skissert. Se særskilt TGIU (tilstandsgrad ikke undersøkt), samt TG2 og TG3 som viser hva som er boligens normale slitasje, alder og type, hva som er avvik fra dette og hva som bør/må utbedres. Rapporten og selgers egenerklæring er en del av salgsoppgaven og må leses nøye før bud inngis. Kjøper overtar ansvaret for de opplysninger som fremkommer av salgsdokumentasjonen, og kan ikke gjøre gjeldende som mangel noe som burde vært kjent eller som ikke kan anses å ha betydning for avtalen.
Boligbygg oppført i 1938, med tilbygg fra 1978 og 2016 (basert på opplysninger fra tidligere tilstandsrapport).
Grunnmur av betong med sparestein og lettklinkerblokker. Deler av bygningen er oppført på pilarer av betong.
Fundamentert på ukjent byggegrunn.
Bygget er oppført med støpt gulv mot grunn, samt krypekjeller/åpent kryperom under deler av boligen.
Yttervegger av trekonstruksjoner. Fasaden er kledd med stående trekledning.
Etasjeskillere av betong og trekonstruksjoner.
Saltak og pulttak i trekonstruksjoner. Yttertaket er hovedsakelig tekket med metallplater, mens taket over trappegangen til grovkjelleren er tekket med shingel.
Les for øvrig mer om byggemåte og den tekniske tilstanden i rapporten.
Følgende bygningsdeler har fått TG2 (vesentlig avvik) i tilstandsrapporten:
Våtrom - Bad:
- Annet: Hulltaking i forbindelse med fuktmåling viser at konstruksjonen har en oppbygging som vurderes til å være en risikokonstruksjon. Det observeres innvendig dampsperre i veggkonstruksjonen, noe som erfaringsmessig er forbundet med forhøyet risiko for fuktproblematikk (innvendig dampsperre hindrer uttørking). Forholdet bør holdes under oppsikt.
Våtrom - Bad/vaskerom:
- Membran, tettesjikt og overgang til sluk.: På veggflatene registreres det sprekker og utettheter i overganger, samt hull etter tidligere innfestinger nær dusjsonen som ikke er tettet. Det observeres også forhold som gjør at utførelsen av rørgjennomføringer i dusjsonen virker usikker når det gjelder lekkasjesikkerhet. Det anbefales derfor ytterligere undersøkelser for å avklare hvilke tiltak som eventuelt er nødvendige.
- Vannrør: Se punkt "Vannrør" under avsnitt om tekniske anlegg.
- Avløpsrør (ink. sluk): Selv om det er gjort oppgraderinger på våtrommet, er sluket ikke skiftet. Selv om det ikke er observert noen synlige skader/svekkelser, er sluket er vurdert til å ha en alder som tilsier at anbefalt brukstid er passert. På bakgrunn av alderen er det grunn til å varsle om risiko for skjulte avvik, svekket funksjon, usikker restlevetid eller lignende forhold som utvikles over tid.
- Ventilasjon: Tilluftsspalte er ikke etablert. Forholdet fører til redusert ventilering av rommet når døren er lukket. Tilluftsspalte bør etableres.
Kjøkken:
- Vannrør: Se punkt "Vannrør" under avsnitt om teknisk anlegg.
- Ventilasjon og avtrekk: Ikke tilfredsstillende avtrekk. Det er ikke montert kjøkkenventilator, noe som påvirker ventilasjonen negativt. Utilstrekkelig ventilasjon kan medføre økt fuktbelastning og redusert luftkvalitet. Tiltak bør påregnes.
Øvrige rom - 1. etasje:
- Overflater vegger: Det registreres fuktmerker/svelleskade i veggoverflaten i boden. Huseier opplyser om at forholdet skyldes en tidligere lekkasje fra taket, som senere ble utbedret. Overflatesøk med fuktindikasjonsinstrument ble gjennomført i gjeldende område, uten at det ble registrert forhøyede verdier. Tilstanden inne i konstruksjonen er ukjent.
- Overflater gulv: Laminatgulvet viser stedvise tegn til svelleskader, spesielt i området rundt kjøleskapet, som har en pågående lekkasje. Den eksakte årsaken til øvrige tegn på svelling i skjøtene er ukjent, men gulvvask o.l. anses som en sannsynlig forklaring. Forholdet vurderes å ikke ha vesentlig praktisk betydning, så fremt forholdet rundt kjøleskapet ikke får utvikle seg videre. Laminatgulvet er ikke lagt i henhold til leggeanvisningen. Skjøtene er ikke forskjøvet tilstrekkelig, noe som kan medføre økt risiko for bevegelse, knirk og redusert stabilitet. Forholdet synes imidlertid ikke å ha medført merkbare skader eller vesentlige praktiske konsekvenser på nåværende tidspunkt.
- Ventilasjon: Kondens registrert på enkelte vinduer/balkongdører, noe som tyder på at ventilasjonen ikke er tilstrekkelig. Utilstrekkelig ventilasjon kan medføre økt fuktbelastning og redusert luftkvalitet. Jevnlig ettersyn anbefales slik at tiltak kan iverksettes ved behov.
Krypekjeller:
- Helhetsvurdering: Boligen har krypkjeller, men grunnet manglende tilkomstmulighet er bygningsdelen ikke undersøkt, med den risiko dette innebærer. Det gjøres oppmerksom på at en komplett undersøkelse og kartlegging av tilstanden til konstruksjonene ikke er mulig uten destruktive inngrep. Erfaringsmessig er trebjelkelag mot krypkjellere en risikokonstruksjon som er skadeutsatt. Basert på ovennevnte opplysninger, samt opplysninger gitt i avsnitt "Drenering", bør det gjennomføres ytterligere undersøkelser av fagkyndige for å kartlegge eksakt tilstand og hvilke tiltak som eventuelt skulle være nødvendig.
Loft - innredet - Loftsetasje:
- Konstruksjonsoppbygging: Takkonstruksjonen er i all hovedsak lukket, og det er ikke kjent hvordan oppbyggingen er utført. Erfaringsmessig betraktes slike konstruksjoner som fuktrisikokonstruksjoner. TG2 er valgt for å belyse risiko, selv om det ikke ble observert skader eller symptomer på skader.
- Ventilasjon: Kondens er registrert på vinduene, noe som tyder på at ventilasjonen ikke er tilstrekkelig. Utilstrekkelig ventilasjon kan medføre økt fuktbelastning og redusert luftkvalitet. Ventilering ved åpning av vinduer bør påregnes. Videre tiltak bør iverksettes ved behov.
Loft - uinnredet / råloft - Hoveddel:
- Kontroll av diffusjonssperre: Det er ikke etablert dampsperre mellom varm og kald sone, noe som øker risikoen for kondensdannelse og fuktbelastning på kaldloftet.
Innvendige trapper:
- Innvendige trapper: Trappen har ikke håndløper på begge sider. Trappen har stedvis fri ganghøyde lavere enn 2,0 m. Inntrinn er mindre enn 0,25 meter. Trappens håndløper er lavere enn 0,8 meter. Trappen vurderes som bratt. Basert på ovennevnte forhold oppfyller ikke trappen dagens krav til sikkerhet. Tilstandsgrad settes iht. NS3600. Om trappen vil oppfylle kravene som var gjeldene på oppføringstidspunktet eller ikke, er ikke videre undersøkt.
Etasjeskiller - 1. etasje:
- Skjevhetsmåling: Det er registrert skjevheter i stue/spisestue, hvor forskjellen mellom høyeste og laveste punkt er målt til 18 mm. Målinger er gjort på tilfeldig steder. Eksakt årsak til skjevhetene er ikke kjent. Til informasjon: Målingene er foretatt i en eldre bygning og bør ses i den sammenheng.
Etasjeskiller - Loftsetasje:
- Skjevhetsmåling: Det er registrert skjevheter på soverom 2 og soverom 3. Forskjellen mellom høyeste og laveste punkt er målt til 38 mm på soverom 2, og 60 mm på soverom 3. Målinger er gjort på tilfeldig steder. Eksakt årsak til skjevhetene er ikke kjent. Til informasjon: Målingene er foretatt i en eldre bygning og bør ses i den sammenheng.
Tekniske anlegg, VVS anlegg (Sjekkpunkter utover det som er inkludert i andre rom):
- Vannrør (Sjekkpunkter utover det som er inkludert i andre rom): Deler av boligens vannrør av kobber er vurdert til å ha en alder som tilsier at anbefalt brukstid er passert. På bakgrunn av alderen er det grunn til å varsle om risiko for skjulte avvik, svekket funksjon, usikker restlevetid eller lignende forhold som utvikles over tid. Det observeres uisolerte vannrør (eller uten varmetilførsel) i grovkjelleren, noe som kan medføre at vannrørene fryser dersom temperaturen blir lav. Forholdet kan i verste fall føre til frostsprengning. Tiltak anbefales.
- Avløpsrør. (Sjekkpunkter utover det som er inkludert i andre rom): Avløpsrør og sluk av støpejern er vurdert til å ha en alder som tilsier at anbefalt brukstid er passert. På bakgrunn av alderen er det grunn til å varsle om risiko for skjulte avvik, svekket funksjon, usikker restlevetid eller lignende forhold som utvikles over tid.
- Varmtvannsbereder (Sjekkpunkter utover det som er inkludert i andre rom): På bakgrunn av berederens alder er det grunn til å varsle om usikker restlevetid eller andre forhold som utvikles over tid. Jevnlig ettersyn anbefales slik at eventuelle tiltak kan iverksettes ved behov.
Radon:
- Radon: Det er ikke foretatt radonmåling i boligen og verdiene er derfor ukjent. For å kartlegge de faktiske forholdene, må det gjennomføres målinger.
Elektrisk anlegg:
- Forenklet vurdering av det elektriske anlegget: Det er kun fremlagt samsvarserklæring på deler av utførte arbeider på det elektriske anlegget. Huseier opplyser om at det hender at sikringen for kjøkkenkursen løses ut dersom flere elektriske kjøkkenapparater brukes samtidig. Det observeres en kabel på bad/vaskerom som ikke er tilstrekkelig festet. Med bakgrunn i TG2 bør det gjennomføres en utvidet el-kontroll av en kvalifisert elektrofaglig person.
Yttervegger inkl. fasader og konstruksjon:
- Helhetsvurdering: Det er valgt å vurdere yttervegger/utvendige fasader (og tilhørende bygningsdeler) med en samlet helhetsvurdering. Følgende hovedmomenter er lagt til grunn for vurderingen: Deler av bygningens ytterkledning/fasader har symptomer på slitasje og elde, og det registreres avskalling av maling på deler av ytterkleningen, samt undersiden av takutstikkene. Det registreres også stedvise råteskader i ytterkledningen, og det vurderes at andre deler av bygningsdelen kan utvikle lignende svekkelser i nær fremtid hvis ikke tiltak iverksettes. Det er ingen lufte-/dreneringsspalte bak trekledningen, noe som erfaringsmessig øker risikoen for skjulte skader og redusert levetid på kledningen. Basert på alle ovennevnte forhold bør det gjennomføres ytterligere undersøkelser for å kartlegge eksakt tilstand, om forholdene har ført til skjulte skader og hvilke tiltak som bør iverksettes.
Dører og vinduer:
- Vinduer: Deler av boligens vinduer bærer preg av slitasje/elde og avskalling av maling. Det er ikke observert synlige skader av større betydning, men basert på tilstanden er restlevetiden usikker. Tiltak bør påregnes.
- Dører: Balkongdøren i stua bærer preg av slitasje/elde og avskalling av maling. Det er ikke observert synlige skader av større betydning, men basert på tilstanden er restlevetiden usikker. Tiltak bør påregnes. Døren til grovkjelleren bærer preg av slitasje/elde, og det registreres råteskader på dørterskelen. Tiltak bør påregnes.
Yttertak - Boligen:
- Tekking (undertak, lekter og yttertekking): Avslutningen av takplatene mot takrennene, samt overgangen mellom tilbyggene, bærer ikke preg av god håndverksmessig utførelse. Takplatene stikker langt utenfor fotbeslaget, noe som kan medføre at vann renner utenfor takrennen ved større nedbørsmengder. I overgangen mellom tilbyggene er takrennen brutt og adskilt med vindski som er uheldig plassert under søkket i takplatene, og denne er ikke tildekket for å redusere fuktbelastningen på bygningsdelen. Tiltak anbefales.
- Beslag, renner, nedløp og snøfangere: Det er ikke etablert snøfangerutstyr, noe som øker risikoen for snøras fra taket. Tiltak anbefales.
Terrasser / platting på terreng - Terrasse 1 :
- Helhetsvurdering: Rekkverkshøyden er under 1,0 meter og oppfyller derfor ikke dagens krav til sikkerhet. Om terrassen vil oppfylle kravene som var gjeldene på oppføringstidspunktet eller ikke, er ikke videre undersøkt. Terrassen har synlige symptomer på slitasje/elde og det registreres enkelte råteskader på rekkverket. Deler av trappene ligger i direkte kontakt med terrengen, noe som kan gi forkortet levetid på de gjeldende bygningsdelene. Det er registrert skjevheter i bjelkelaget som kan tyde på at terrassen har vært utsatt for setninger. Eksakt årsak er ikke kjent, men forholdet kan henge sammen med fundamenteringen. For å kartlegge eksakt tilstand, årsakssammenhenger og hvilke tiltak som bør gjennomføres, bør det gjennomføres ytterligere undersøkelser.
Terrasser / platting på terreng - Terrasse 2:
- Terrasser på terreng (understøttet av bjelker / pilarer): Rekkverkshøyden er under 1,0 meter, utformet slik at klatring ikke hindres, og har åpninger som anses store nok til at barn kan krype gjennom. Basert på ovennevnte forhold oppfyller ikke terrassen dagens krav til sikkerhet. Om terrassen vil oppfylle kravene som var gjeldene på oppføringstidspunktet eller ikke, er ikke videre undersøkt. Deler av trappene ligger i direkte kontakt med terrengen, noe som kan gi forkortet levetid på de gjeldende bygningsdelene.
Grunnmur, fundamenter:
- Grunnmur: Enkelte skråriss/vertikalriss er observert på grunnmuren. Eksakt årsak er ukjent, men kan tyde på setninger/bevegelser i grunnmuren. Rissene er med høy sannsynlighet oppstått for lenge siden, men for å bekrefte eller avkrefte om det fortsatt er utvikling bør forholdet holdes under oppsikt. TGIU: Deler av grunnmuren er ikke tilgjengelig for undersøkelser på grunn av terrasse som er plassert mot grunnmuren.
Stikkledninger og tanker:
- Vann- og avløpsledninger (ink. stikkledninger): Utvendige avløpsrør har en alder som tilsier at anbefalt brukstid er passert. Konsekvens er usikker restlevetid.
Frittstående byggverk - Hagestue:
- Frittstående byggverk: Deler av ytterkledningen er avsluttet for nært/i kontakt med terrassegulvet, noe som kan gi forkortet levetid og økt behov for vedlikehold. Det registreres stedvise råteskader i ytterkledningen. Tiltak bør påregnes.
Frittstående byggverk - Garasje:
- Frittstående byggverk: Deler garasjens trekonstruksjoner er avsluttet for nært/i kontakt med terrenget, noe som kan gi forkortet levetid og økt behov for vedlikehold. Overgangen mellom takplatene på yttertaket er ikke lagt som tiltenkt, noe som skaper åpninger i overgangene. I kombinasjon med lav takvinkel vurderes forholdet å medføre risiko for fuktinntrengning. Ytterligere undersøkelser anbefales, slik at tiltak kan iverksettes ved behov.
Følgende bygningsdeler har fått TG3 (store eller alvorlige avvik) i tilstandsrapporten:
Rom under terreng (kjeller, underetasje, sokkeletasje) - Grovkjeller:
- Helhetsvurdering: Det er valgt å vurdere bygningsdelene med en samlet helhetsvurdering basert på tilstand, konstruksjonstype og risiko. Hovedmomenter for helhetsvurderingen er: Kjelleren har synlige betong/murvegger under bakkenivå. Hulltaking er ikke utført med bakgrunn i at gjeldende vegg/grunnmur er av mur/betong. "Kjellerlukt" registreres, noe som tyder på fuktproblematikk. Det registreres avskalling av maling på grunnmuren, og det observeres fritt vann på deler av gulvflaten (dette vurderes å være et resultat av fuktvandringer i konstruksjonen, og tyder på svakheter med dreneringen). Synlige fuktmerker og muggsopp observeres i himlingen/taktroen og på ytterkledningen i trappegangen, samt enkelte råteskader i himlingen inne i kjellerrommet. Det ble målt med pigg i himlingen i trappegangen, og det registreres høyt fuktinnhold (fibermetning). Det ble også målt betydelig høyt fuktinnhold i himlingen i kjellerrommet (piggmåling: 19,4 vektprosent). Det vurderes derfor at konstruksjonene har en pågående fuktskade som krever strakstiltak. Målingene gir kun et øyeblikksbilde av forholdene og kan for eksempel endre seg med årstider, fukt- og temperaturforhold. Skjulte eller bakenforliggende skader kan ikke avkreftes. Årsakene til fuktproblematikk er som regel sammensatte, men svakheter med dreneringen og lite ventilasjon vurderes til å være medvirkende årsaker. Se også punkt "Grunnmur" under avsnitt "Grunnmur, fundamenter". Det gjøres oppmerksom på at en komplett undersøkelse og kartlegging av tilstanden til konstruksjonene ikke er mulig uten større inngrep. Erfaringsmessig er konstruksjoner under bakkenivå en risikokonstruksjon som er skadeutsatt. Basert på alle ovennevnte opplysninger bør det gjennomføres ytterligere undersøkelser av fagkyndige for å kartlegge eksakt tilstand, årsakssammenhenger og hvilke tiltak som skulle være nødvendig. Tiltak bør påregnes. Underliggende sjablongmessig prisanslag gjelder for videre undersøkelser av fagkyndig.
Ildsteder / skorsteiner innvendig. (Omfatter ikke funksjonalitet og innvendig pipeløp):
- Ildsteder inne i boligen: Det er registrert at en ildfast plate i peisovnens forbrenningskammer er defekt. Dette medfører redusert evne til å beskytte brennkammeret mot høy temperatur. Det anbefales at en fagkyndig foretar ytterligere undersøkelser for å avklare nødvendig utbedringstiltak.
Drenering:
- Helhetsvurdering: Det er valgt å vurdere dreneringen med en samlet helhetsvurdering. Dreneringens tilstand og funksjon påvirker innvendige bruksområder og innvendige bygningsdelers tilstand. Følgende hovedmomenter er lagt til grunn for vurderingen: Bygningsdelen er nedgravd og skjult, noe som gjør at det er vanskelig å angi noen eksakt tilstand. Drenssystemet har passert estimert teknisk levetid, med den risiko dette innebærer. Deler av terrengfallet kan ikke undersøkes på tilstrekkelig måte, grunnet plassering av terrasse. Vann fra yttertaket er stedvis ikke ledet vekk fra bygningen i tilstrekkelig grad og det vurderes som sannsynlig at brorparten av grunnmuren (med unntak trappegangen til grovkjelleren) ikke har utvendig fuktsperre, noe som øker faren for fuktvandring og fuktbelastning i konstruksjoner under bakkenivå. Fra innsiden av grovkjelleren observeres det forhold som vurderes til å tyde på svakheter i dreneringens funksjon. Alle opplysninger gitt i dette punktet bør ses i sammenheng med avsnitt "Rom under terreng - Grovkjeller" og avsnitt "Krypekjeller". Basert på ovennevnte forhold vurderes dreneringen i denne bygningen til å være passert sin levetid, og det påvises tegn til funksjonssvikt. Det bør gjennomføres ytterligere undersøkelser av fagkyndige for å kartlegge eksakt tilstand, årsakssammenhenger og hvilke tiltak som skulle være nødvendig. Det bør påregnes kostnader for utbedringer. Underliggende sjablongmessig prisanslag gjelder for videre undersøkelser av fagkyndig.
Stikkledninger og tanker:
- Septiktank: Det foreligger ingen tilsynsrapport for septiktanken. Det foreligger imidlertid et vedtaksbrev fra Nord-Odal kommune (datert 12.05.2017) med pålegg om oppgradering av avløpsanlegget. Det fremkommer av vedtaksbrevet at nytt avløpsanlegg må omsøkes og godkjennes av kommunen. Tiltak må påregnes. Underliggende sjablongmessig prisanslag gjelder for oppgradering av avløpsanlegget (med alt dette innebærer) og omsøking av anlegget.
Yttertak - Trappegang for grovkjelleren:
- Helhetsvurdering: Se avsnitt "Rom under terreng - Grovkjeller".
Se supplerende tekst i tilstandsrapporten om overnevnte. Kjøper overtar ansvar og risiko for dette.
Sammendrag selgers egenerklæring:
Har det lekket vann utenfra og inn, eller er det sett andre tegn til fukt?
Ja. Det kom svelling på gipsvegg i gangen, yttertaket ble skiftet på bakgrunn av dette, har ikke sett noe etter taket ble skiftet. Det siger noe mistenkt grunnvann inn i kjeller i svært våte perioder, men det renner ut igjen gjennom slukordning i
gulvet.
Er det utført arbeid på tak, yttervegg, vindu eller annen fasade?
Ja, i 2024. Hele hovedtaket ble revet ned til undertak. Det er installert nytt undertak og takplater. Det ble utført av eier av huset, som jobber som tømrer, men på egen tid.
Er det observert vann eller fukt i kjeller, krypkjeller eller underetasje?
Ja. I veldig våte perioder siger det noe vann inn i uinnredet kjellerrom, men vannet render unna via sluk i gulvet.
Har det vært feil på utvendige eller innvendige avløpsrør eller vannrør?
Ja. Vannrør i kjeller frøys.
Er det utført arbeid på utvendige eller innvendige avløpsrør eller vannrør?
Ja, i 2024. Skiftet vannrør fra kjeller og utover og monterte ny stoppekran. Arbeidet ble utført av faglært, Juptjenn vannverk og det foreligger dokumentasjon på arbeidet.
Er det tegn på setningsskader eller sprekker i for eksempel grunnmur eller fliser?
Ja. Risninger i mur utvendig.
Har det vært feil eller gjort endringer på ildsted eller pipe?
Ja. Montert ny feieluke i 2024.
Har det vært skadedyr i boligen eller andre bygninger på eiendommen?
Ja. Det går mus i feller under trapp.
Er det andre forhold av betydning eller sjenanse for eiendommen eller nærområdet?
Ja. Pålegg fra kommunen om skifte av avløpstank.
Standard
Velkommen inn!
Når du kommer inn i boligen møtes du av en lys entré med laminat på gulv. Herfra har du praktisk tilgang til en romslig innvendig bod som gir gode oppbevaringsmuligheter for sko og yttertøy, samt et kombinert bad/vaskerom.
1. E T G:
S T U E
Stuen er boligens naturlige samlingspunkt – med lyse panelvegger og laminat på gulvet. Planløsningen gir gode og naturlige soner for møblering, med plass til en hyggelig sofagruppe og spisegruppe. Peis gir både varme og kos på kalde dager. Fra stuen er det terrassedør ut til den ene terrasseplatting. Her finner du en koselig hagestue med god plass til hagemøber og grill. Det er installert 2 varmelamper som bidrar til god varme.
K J Ø K K E N
Kjøkkenet har lyse, profilerte fronter samt laminat benkeplate. Rommet oppleves romslig og er praktisk utformet med en løsning som utnytter plassen godt. Et vindu gir rikelig med naturlig lys og skaper en hyggelig arbeidsplass. Det er kun frittstående hvitevarer på kjøkkenet, og disse medfølger ikke handelen.
B A D / V A S K E R O M
Badet ligger praktisk til ved entréen og er utstyrt med vinylgulv, servant, frittstående toalett, dusjhjørne med forheng og opplegg for vaskemaskin.
2. E T G:
S O V E R O M
Boligen har tre innbydende soverom. Rommene har god størrelse og fleksibilitet, enten de ønskes brukt som hovedsoverom, barnerom, gjesterom eller hjemmekontor. Fra hovedsoverommet er det utgang til veranda og bad, noe som gir en ekstra kvalitet til rommet. Ett av soverommene er utstyrt med garderobeskap med glatte fronter som gir praktiske oppbevaringsmuligheter.
B A D E R O M
Det andre badet er bra 2016 (basert på opplysninger fra forrige tilstandsrapport). Det er lagt gulvbelegg med gulvvarme, samt flislagte vegger. Rommet har baderomsinnredning med god oppbevaringsplass, samt en heldekkende benkeplate med integrert servant. I tillegg er det praktisk vegghengt veggskap, og dusjhjørne med innfellbare glassdører. Gulvstående toalett.
Løsøre og tilbehør
Vi viser til liste fra Norges Eiendomsmeglerforbund som gjelder fra 01.01.2020 angående løsøre og tilbehør.
Oppvarming
Boligen blir oppvarmet med varmekabler i det ene soverommet og på begge badene. Dersom beboelsesrom ikke har vegg- eller fastmonterte varmekilder ved visning, følger dette heller ikke med.
Ferdigattest/brukstillatelse
Eiendommen har vært brukt til boligformål siden 1936.
Etter samtale med kommunen 27.11.25 opplyser de at det ikke foreligger ferdigattest, midlertidig brukstillatelse eller vedtak/byggesøknad i forbindelse med huset. Det var ikke krav til ferdigattest eller midlertidig brukstillatelse på den tiden eiendommen ble oppført.
Det foreligger en ferdigattest på tilbygg og oppføring av garasje datert 29.03.2022. Det er også mottatt tegninger som er sendt inn i forbindelse med søknaden, som viser tilbygg som omfatter bad og soverom, samt garasje.
Det tas forbehold om at rommene i boligen brukes iht. godkjent formål, ettersom det ikke foreligger tegninger på hva som er godkjent. Konsekvensen ved en eventuell søknad kan f.eks. være at kommunen krever omgjøring av rommene. Det tas forbehold om at kommunen kan kreve andre endringer. Kjøper overtar alt ansvar, kostnad og risiko for dette videre.
Tinglyste heftelser og rettigheter
På eiendommen er det tinglyst følgende heftelser og rettigheter som følger eiendommens matrikkel ved overskjøting til ny hjemmelshaver:
Eiendommen overdras fri for pengeheftelser med unntak av:
3414/23/21:
05.08.1961 - Dokumentnr: 2140 - Erklæring/avtale
Rettighetshaver: Juptjenn vannverk
Gjelder denne registerenheten med flere
Servitutten omhandler Juptjenn vannverk sin rett til å legge vannverkets hovedvannledninger/sideledning med kummer over eiendommen. De har videre rett til å senere komme til denne for vedlikehold, ettersyn og fornyelse. Servitutten kan fås tilsendt ved henvendelse til megler.
15.11.2000 - Dokumentnr: 5785 - Grensejustering
Gjelder denne registerenheten med flere
Det ble holdt kartforretning med grensejustering. 306,3 m2 framåles gnr. 23 bnr. 21 og legges til gnr. 23 bnr. 41.
18.04.2006 - Dokumentnr: 200400 - Grensejustering
Gjelder denne registerenheten med flere
Denne eiendommen er tidligere utskilt fra gnr. 23, bnr. 1 (Hovedbølet). På denne eiendommen kan det følge servitutter som ble tinglyst før utskillelsestidspunktet. På Hovedbølet er det tinglyst følgende servitutter:
1923/57-1/13 20.04.1923 ERKLÆRING/AVTALE
Grensegangssak
GJELDER DENNE REGISTERENHETEN MED FLERE
1923/57-3/13 20.04.1923 BESTEMMELSE OM BEITERETT
RETTIGHETSHAVER: KNR: 3414 GNR: 23 BNR: 2
Servituttene fra hovedbølet omhandler grensejustering av 9/10-1923 hvorv. bnr. 14 er utskilt. Dokumentet er håndskrevet og vanskelig å tyde, men hefter i eiendommen. Kjøper overtar ansvaret for servitutten. Kopi av gammel grunnbok kan fås ved henvendelse til megler.
De overnevnte servituttene vil følge eiendommen. Kjøpers bank vil få prioritet etter ovennevnte heftelser og servitutter.
Eventuell adgang til utleie
Eiendommen har ikke separat utleieenhet. Det vil normalt være anledning til utleie av hele eiendommen eller enkeltrom, såfremt utleiearealet er bygningsmessig godkjent for varig opphold og har forsvarlige radonnivåer.
Beliggenhet og tomteforhold
Beliggenhet og tomteforhold
Beliggenhet
På Bruvollen befinner du deg i rolige og naturskjønne omgivelser. Nord-Odal er et attraktivt område for friluftsliv og aktivitet gjennom hele året. Kommunen har hele 115 innsjøer og vann, som gir gode muligheter for både fiske, bading og andre vannaktiviteter. I tillegg byr de skogkledde åsene på varierte turmuligheter for både korte og lengre turer.
Dagligvarehandelen kan gjøres på Kiwi Sand eller Coop Extra Sand, som ligger hhv. 10 - 11 minutters kjøring fra boligen. Det er kunstgressbane, ballbane og treningssenter mellom 5 - 25 minutters kjøring fra boligen.
Adkomst
Det vil bli skiltet med Krogsveen visningsskilt ved fellesvisninger.
Barnehager, skoler og fritid
Barnehager: (avstand med bil)
Sand barnehage (1-5 år): 11 min
Mo barnehage (1-5 år): 18 min
Oppstad Gårds- og naturbarnehage (1-5 år): 21 min
Skoler: (avstand med bil)
Sand sentralskole (1-7 kl.): 10 min
Mo barne- og ungdomsskole: 18 min
Stange videregående skole: 38 min
Informasjon om tilhørende skolekretser er hentet fra Prognosesenteret som dataleverandør, og tilhørigheten kan årlig endres av kommunen. Dersom skole- og barnehagetilbud er av betydning for kjøpet, ber vi om at det rettes en særskilt henvendelse til kommunen/bydelsadministrasjonen for oppdatert informasjon.
Beskrivelse av tomt
Parkering
Parkering i garasje og på egen tomt.
Vei, vann og avløp
Eiendommen har adkomst via privat vei. Det betales privat veiavgift. Pt. utgjør denne kr. 2.580,- per år. I tillegg er det privat brøyting. Pt. utgjør denne 1.500,- per år.
Det foreligger ingen tinglyst veirett inn til eiendommen. Selger opplyser at det betales inn en sum for felles vedlikehold osv. Kjøper overtar ansvaret for dette.
Eiendommen har ikke offentlig vann eller avløp, heller ikke privat septikanlegg.
Eiendommen har privat slamavskiller. Kommunen har sendt pålegg, se informasjon under punkt om kommunale avgifter. Ny eier må påregne kostnader for tilkobling, nye kommunale avgifter mm.
Regulerings-og arealplaner
Eiendommen ligger i et uregulert område. Iht. kommuneplanen er området avsatt til LNF- område med spredt boligbebyggelse - fremtidig. Kommuneplanen ikrafttrådte 30.08.2006. I kommuneplanens arealdel er det avmerket S-soner hvor ny spredt boligbebyggelse er tillatt. For området S2 Autvatn - Sannerudsgranda er det lagt inn 6 nye boliger/bruksendringer. Det er lagt inn enkelte begrensninger vedrørende nyoppføring og bruksendring i kommuneplanens bestemmelser som kan fås ved henvendelse til megler.
Utsnitt av plan med tilhørende bestemmelser kan fås ved henvendelse til megler.
Økonomi
Økonomi
Kommunale utgifter
Kommunale avgifter er kr 9.402,52 for 2024. I dette inngår gebyr for slam, renovasjon og feiing.
I prognose for 2025 er det lagt til grunn en kostnad på 13 763,90 kr inkl. eiendomsskatt. Prognosen for 2025 inneholder følgende kostnader:
Slam A: 5 233,65 kr
Feiing/Tilsyn, boliger: 585,00 kr
Eiendomsskatt Bolig: 4 144,00 kr
Renovasjon normalab: 4 376,25 kr
Samarbeid: -575,00 kr
Det har kommet varsel om pålegg om oppgradering av avløpsanlegg og varsel om tvangsmulkt. Som eier av mindre avløpsanlegg med utløp og Trautåa og Råsen mottok eierne nytt pålegg om oppgradering av avløpsanlegget med frist 31. desember 2026. Kommunen vil etter forurensningsloven kunne ilegge tvangsmulkt dersom pålegget ikke etterkommes innen fristen 31.12.2026.
Veiavgift er kr 2.580,- pr. år.
Privat brøyting er kr 1.500,- pr. år.
Boligen er tilknyttet fiber via Altibox. Eier har betalt kr. 929,- pr. mnd.
Utgiftene er basert på nåværende eiers forbruk og avtaler.
Omkostninger
2 150 000,00 Prisantydning
Omkostninger
53 750,00 Dokumentavgift til staten (2,5% av kjøpesum)
19 900,00 Gjensidige Boligkjøperpakke (valgfri)
545,00 Tinglysing panterettsdokument
545,00 Tinglysing skjøte
--------------------------------------------------------
74 740,00 Omkostninger totalt
--------------------------------------------------------
2 224 740,00 Totalpris inkl. omkostninger
--------------------------------------------------------
Totalpris inkl. omkostninger forutsetter kjøp til prisantydning. Det tas forbehold om endringer i avgifter og gebyrer. Boligkjøperforsikring omfatter våningshuset og/eller kårboligen med tilhørende garasje/den delen av eiendommen som er regulert til boligformål.
Tilbud om lånefinansiering
Megler formidler gjerne kontakt med rådgiver hos vår samarbeidspartner BN Bank. De har konkurransedyktige betingelser samt rask og løsningsorientert behandling av din lånesøknad. Krogsveen mottar et honorar dersom lån opprettes.
Annen viktig informasjon
Annen viktig informasjon
Eier
Victoria Negård
Overtakelse
Etter nærmere avtale.
Boligselgerforsikring
Selger har i forbindelse med salget tegnet boligselgerforsikring levert av Gjensidige.
Boligselgerforsikringen dekker selgers ansvar etter avhendingsloven begrenset oppad til kr 14 millioner. Dersom kjøper oppdager forhold ved eiendommen som hen mener utgjør en mangel ved eiendommen, vil Gjensidige behandle reklamasjonen på vegne av selger. Forsikringsvilkår kan fås ved henvendelse til megler.
Vedlagt salgsoppgaven følger selgers egenerklæringsskjema og tilstandsrapport. Interessenter må sette seg inn i dokumentene før bud inngis.
Selger har i forbindelse med salget tegnet Boligselgerforsikring levert av Gjensidige.
Boligselgerforsikringen dekker selgers ansvar etter avhendingsloven begrenset oppad til kr 14 millioner. Dersom kjøper oppdager forhold ved eiendommen som man mener utgjør en mangel ved eiendommen, vil Gjensidige behandle reklamasjonen på vegne av selger. Forsikringsvilkårene kan fås ved henvendelse til megler.
Boligselgerforsikring omfatter våningshuset og/eller kårboligen med tilhørende garasje og kun den delen av eiendommen som er regulert til boligformål.
Vedlagt salgsoppgaven følger selgers egenerklæringsskjema og tilstandsrapport. Interessenter må sette seg inn i dokumentene før bud inngis.
Boligkjøperforsikring
Innen kontraktsmøtet må kjøper ta stilling til om det ønskes å bestille Boligkjøperpakken gjennom Gjensidige. I denne gunstige pakken er boligen ferdig forsikret og inkluderer rettshjelpsforsikring, også kalt Boligkjøperforsikring. Rettshjelpsforsikring gir trygghet og tilgang på profesjonell juridisk hjelp dersom det oppdages uventede feil eller mangler det første året etter overtagelse. Forsikringsselskapet behandler i så fall ethvert mangelskrav kjøper måtte ha overfor selger.
Boligkjøperpakken inkluderer bygningsforsikring for hus og hytte, innboforsikring, flytteforsikring og dobbel rentedekning - i situasjoner hvor kjøper ikke får solgt nåværende primærbolig.
Kjøper mottar ingen særskilt faktura for Boligkjøperpakken da kostnaden det første året legges til kjøpesummen for boligen. Det gjøres oppmerksom på Krogsveen mottar et honorar for denne formidlingen.
Produktark for Boligkjøperpakken ligger vedlagt i salgsoppgaven.
Dersom ikke boligkjøperpakke ønskes kan kun rettshjelpsforsikring, også kalt boligkjøperforsikring, tegnes særskilt via megler. Rettshjelpsforsikringen varer i 5 år fra overtagelse og leveres gjennom Gjensidige. Ta kontakt med megler for ytterligere informasjon.
Selskap og privatpersoner som driver med kjøp/salg/utvikling som ledd i egen næringsvirksomhet kan ikke tegne boligkjøperpakke eller rettshjelpsforsikring.
NB!
Boligkjøperforsikring omfatter våningshuset og/eller kårboligen med tilhørende garasje/den delen av eiendommen som er regulert til boligformål.
Budgivning
Forbrukerinformasjon om budgivning er vedlagt denne salgsoppgaven og er også på vår hjemmeside Krogsveen.no. Alle bud og budforhøyelser må inngis skriftlig. I tillegg må legitimasjon være fremlagt sammen med signatur fra budgiver.
Vi oppfordrer til å gi bud elektronisk via GI BUD-knappen på eiendommens hjemmeside på Krogsveen.no. Da vil samtlige vilkår bli oppfylt.
Eventuelle forhøyelser eller endringer av budet kan bekreftes pr SMS eller på e-post. Vi oppfordrer alltid til å kontakte megler pr. telefon i tillegg da forsinkelser i SMS og e-post kan forekomme.
For at budene skal kunne bli behandlet og videreformidlet skriftlig til alle involverte parter, må alle bud ha en tilstrekkelig lang akseptfrist, jf. eiendomsmeglingsforskriften § 6-3.
Selger må også skriftlig akseptere budet før aksept kan formidles til budgiver. Akseptfrist bør derfor være på minimum 30 minutter, og budforhøyelser må derfor skje i god tid før fristens utløp.
Bud i forbrukerforhold kan uansett ikke settes med kortere frist enn kl. 12.00 første virkedag etter siste annonserte visning. I tillegg kan ikke budet ha forbehold om at det skal holdes hemmelig ovenfor øvrige interessenter. Megler har iht lov om eiendomsmegling ikke anledning til å videreformidle disse budene, og de vil dermed heller ikke bli journalført.
Etter at eiendommen er solgt vil kjøper og selger få tilsendt budjournal. Øvrige budgivere kan få utlevert kopi av budjournalen i anonymisert form.
Hvitvaskingsreglene
I henhold til lov om hvitvasking og terrorfinansiering har megler plikt til å gjennomføre kontrolltiltak overfor kunder, herunder fullmektiger. Dette innebærer bl.a. å bekrefte kunders og reelle rettighetshaveres identitet på bakgrunn av fremvist gyldig legitimasjon eller på annen godkjent måte, samt å innhente opplysninger om kundeforholdets formål og tilsiktede art.
Dersom slike kundetiltak ikke kan gjennomføres, kan megler ikke etablere kundeforholdet eller utføre transaksjonen.
Hvis kjøper ikke bidrar til gjennomføring av kundekontrollen og dette fører til at transaksjonen blir forsinket eller ikke kan gjennomføres, vil dette ansees som mislighold av avtalen og gi selger rettigheter etter avhendingslova kapittel 5. I tilfeller der selger ikke bidrar til gjennomføring av løpende kundekontroll underveis i oppdraget, er det selger som misligholder sine forpliktelser etter avtalen og gi kjøper rettigheter etter avhendingslovens kapittel 4. Partene er selv ansvarlige for eventuelle kostnader og ansvar dette kan medføre. Eiendomsmegleren eller eiendomsmeglingsforetaket kan ikke holdes ansvarlig for de konsekvenser dette vil kunne få for partene eller andre som har interesser i eiendomshandelen.
Kjøper oppfordres til å innbetale kjøpesummen som ikke kommer fra låneinstitusjon i én samlet innbetaling fra egen konto i norsk bank. Megler har plikt til å melde fra til Økokrim om eiendomshandler som fremstår som mistenkelige. Melding sendes Økokrim uten at partene varsles.
Personopplysningsloven
I henhold til personopplysningsloven gjør vi oppmerksom på at interessenter kan bli registrert for videre oppfølging.
Lovanvendelse
Generelle bestemmelser
Salgsoppgaven er basert på de opplysningene selger har gitt til megler, den bygningssakyndiges tilstandsrapport, samt opplysninger innhentet fra kommunen, Kartverket og andre tilgjengelige kilder. Det er viktig at kjøper setter seg grundig inn i alle salgsdokumentene, herunder salgsoppgave, tilstandsrapport og selgers egenerklæring. Kjøper anses kjent med forhold som er tydelig beskrevet i salgsdokumentene, og slike forhold kan ikke påberopes som mangler. Dette gjelder uavhengig av om kjøper har lest dokumentene. Alle interessenter oppfordres til å undersøke eiendommen nøye, gjerne sammen med fagkyndig før bud inngis. Kjøper som velger å kjøpe usett kan ikke gjøre gjeldende som mangel noe han burde blitt kjent med ved undersøkelsen.
Dersom det er behov for avklaringer, anbefaler vi at interessenter rådfører seg med eiendomsmegler eller egne rådgivere før det legges inn bud.
En bolig som har blitt brukt i en viss tid, har vanligvis blitt utsatt for slitasje og skader kan ha oppstått. Slik bruksslitasje må kjøper regne med, og det kan avdekkes enkelte forhold etter overtakelse som nødvendiggjør utbedringer. Normal slitasje og skader som nødvendiggjør utbedring, er innenfor hva kjøper må forvente og vil ikke utgjøre en mangel.
Kjøper og selgers rettigheter og plikter reguleres av avtalen mellom partene, samt informasjonen som har vært tilgjengelig for kjøperen i forbindelse med handelen. Avtalen utfylles av avhendingsloven, og det gjelder ulike avtalevilkår avhengig av om kjøper er forbrukerkjøper eller ikke. Dette er nærmere beskrevet nedenfor.
På grunn av ulike avtalevilkår kan selger vurdere bud fra en som ikke er forbruker, ulikt fra en forbrukers bud. Dersom kjøper ikke er forbruker, er selger sitt mulige mangelsansvar begrenset fordi eiendommen selges "som den er". Selger kan ikke ta «som den er»- forbehold overfor en forbrukerkjøper. Selv et lavere bud fra en som ikke er forbruker kan foretrekkes fordi begrensningen i mulig mangelsansvar kan ha egenverdi for selger. Selger står fritt til å forkaste eller akseptere ethvert bud, og er for eksempel ikke forpliktet til å akseptere høyeste bud.
Budgiver skal i budskjema avgi egenerklæring om budgiver er forbruker eller næringsdrivende/ person som hovedsakelig handler som ledd i næringsvirksomhet. Budgivere får informasjon dersom andre bud er inngitt av en som ikke er forbruker.
Forbrukerkjøp - definisjon
Med forbrukerkjøp menes kjøp av eiendom når kjøperen er en fysisk person som ikke hovedsakelig handler som ledd i næringsvirksomhet.
Forbruker – avtalevilkår
Eiendommen har en mangel dersom den ikke er i samsvar med kravene som følger av avtalen, eller det foreligger brudd på bestemmelsene i avhendingsloven §§ 3-2 til 3-8. Hvis eiendommen ikke er i samsvar med det kjøperen må kunne forvente ut ifra alder, type og synlig tilstand, kan det være grunnlag for mangelskrav. Det samme gjelder hvis det er holdt tilbake eller gitt uriktige opplysninger om eiendommen. Dette gjelder likevel bare dersom man kan gå ut ifra at det virket inn på avtalen at opplysningen ikke ble gitt eller at mangelskravet ikke blir rettet i tide på en tydelig måte.
Boligen kan ha en mangel etter avhendingsloven § 3-3 andre ledd, dersom det er avvik mellom opplyst og faktisk innvendig areal, forutsatt at avviket er på 2% eller mer og minimum 1 kvm.
Ved beregning av et eventuelt prisavslag eller erstatning må kjøper selv dekke tap/kostnader opptil et beløp på kr 10 000 (egenandel).
Ikke-forbruker (næringsdrivende) – definisjon
Hvis kjøper er en juridisk person, eller en fysisk person som hovedsakelig handler som ledd i næringsvirksomhet, vil kjøpet ikke anses som et forbrukerkjøp.
Ikke-forbruker – avtalevilkår
Eiendommen har en mangel dersom den ikke er i samsvar med kravene som følger av avtalen.
Eiendommen selges «som den er», og selgers ansvar utover det konkret avtalte er da begrenset etter avhendingsloven § 3-9, første ledd andre setning.
Avhendingsloven § 3-3 andre ledd fravikes, og hvorvidt boligens arealsvikt utgjør en mangel vurderes etter avhendingsloven § 3-8.
Informasjon om kjøpers undersøkelsesplikt, herunder oppfordringen om å undersøke eiendommen nøye, gjelder også for kjøpere som ikke anses som forbrukere.
Det forutsettes at hjemmel overføres til kjøper. Hvis kjøper ikke ønsker hjemmelsoverføring av eiendommen, må det tas forbehold om dette i budet.
Meglers vederlag
Meglers vederlag betales av selger og er avtalt til:
Vederlag: 2,00 % av salgssummen inkl. eventuell fellesgjeld.
Vederlag:
Kontroll av hjemmel og heftelser kr 2 900,00
Markedsføringspakke kr 27 400,00
Oppgjør kr 7 500,00
Tilrettelegging kr 17 000,00
Visninger pr stk / Overtagelse kr 4 000,00
Utlegg:
Innhenting av offentlig opplysninger kr 4 500,00
Tinglysing sikring kr 545,00
Andre utgifter:
AX tilstandsrapport enebolig kr 20 625,00
Boligselgerforsikring Gjensidige Eiet - regnes av prisantydning kr 12 276,50
Foto med drone (Kveldsfoto + 3.500) kr 6 000,00
Vi er opptatt av verdiskapning, og har knyttet til oss samarbeidspartnere som skal sikre våre kunder de beste produkter og tjenester;
• I forbindelse med forberedelse av salget, innhenter vi informasjon om eiendommen hovedsakelig fra vår samarbeidspartner Amibita.
• Gjensidige leverer boligselgerforsikring og tilbyr bygningsforsikring
• Boligkjøperforsikring leveres av Hiscox og med Sedgwick som skadebehandler, og er formidlet gjennom Gjensidige.
• BN bank tilbyr finansieringsløsninger
• Vår avdeling Krogsveen Pluss tilbyr flyttetjenester som utvask, visningsvask, lager, tømming og transport av flyttelass, i tillegg til å formidle kontakt med Flip for overflateoppussing.
• I forbindelse med overtagelse av eiendommen tilbyr Overo avtale om strøm, alarm og bredbånd.
• Krogsveen er, sammen med øvrige bransjeaktører, medeier i Bomega AS som tilbyr den digitale annonseringsplattformen Hjem.
Opplysninger om oppdraget
Oppdragsnummer 59-0145/25
Eiendomsmegler Krogsveen AS, avd. Skedsmokorset
Furuholtet 1, 2020, SKEDSMOKORSET
950 007 613
Oppdragets KR-kode KR59.25145
Dato
Sist oppdatert: 31. januar 2026 kl. 17:00
Dokumenter
Dokumenter
PDF – 940 KB
PDF – 822 KB
PDF – 746 KB
PDF – 312 KB
PDF – 29 KB
PDF – 127 KB
PDF – 392 KB
Område
Legg til steder som er viktige for deg
Visning
Det er ingen planlagte visninger. Meld deg på for å avtale en tid som passer.
Lurer du på noe?
Unngå doble boligrenter
Vi tilbyr gunstig forsikring.
Vurderer du utleie?
Få et tilbud fra Utleie KrogsveenHva koster lånet?
Sjekk estimert lånekostnadVil du varsles om lignende boliger?
Ved å lagre ditt boligsøk hos oss får du beskjed når vi har en bolig som ligner denne, før den legges ut på markedet!




