Austadgata 28
6 990 000 kr
276 m²
4 soverom
Komplett salgsoppgave

Strømsø
Hel horisontaldelt tomannsbolig med sentral beliggenhet. 4 soverom. Flotte uteområder med gode solforhold. Dobbelgarasje
Prisantydning
6 990 000 krOmkostninger
195 740 krTotalpris
7 185 740 kr
Pris
Bruksareal
308 m²BRA-I (internt bruksareal)
276 m²BRA-E (eksternt bruksareal)
32 m²TBA (terrasse-balkongareal)
23 m²
Areal
Etasje
2Byggeår
1936Soverom
4 soveromBad
3 badTomteareal
636 m² (eiet)Type
Hel 2-mannsboligEierform
EietFasiliteter
Garasje/P-plassEnergimerke
Oransje F
Nøkkelinfo
Unngå doble boligrenter
Vi tilbyr gunstig forsikring.
Vurderer du utleie?
Få et tilbud fra Utleie KrogsveenHva koster lånet?
Sjekk estimert lånekostnadBeskrivelse
Kort om eiendommen
Innhold og byggemåte
Innhold og byggemåte
Eiendommen
Austadgata 28, 3043 DRAMMEN
Kommunenummer 3301, gårdsnummer 110, bruksnummer 45
Innhold
Totalt bruksareal BRA: 276 kvm
BRA-i:
Tomannsbolig:
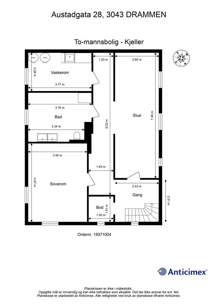
Kjeller: 82 kvm: Gang, bod, stue, soverom, vaskerom og bad.
1. etasje 88 kvm: To entreer, bad, kjøkken, stue og to soverom.
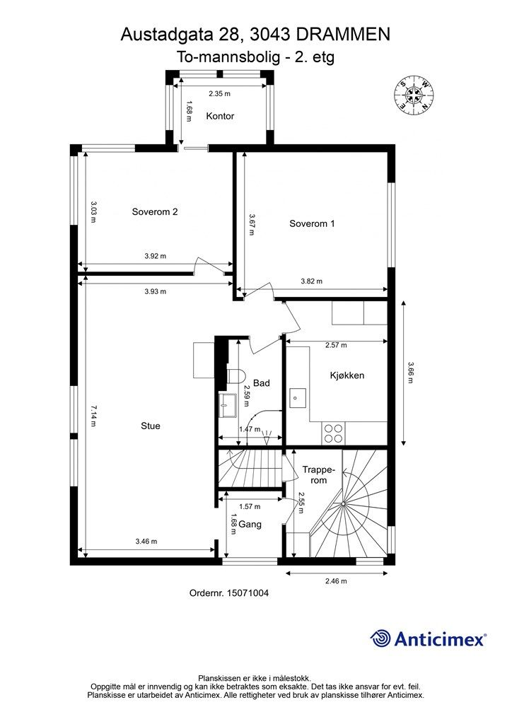
2. etasje 88 kvm: Trappegang, gang, stue, bad, kjøkken, kontor og to soverom.
3. etasje 18 kvm: Uinnredet kaldtloft.
BRA-e:
Garasje:
1. etasje 32 kvm: Garasje
Åpent areal:
Tomannsbolig:
1. etasje 23 kvm: Frittliggende platting med paviljong.
Kaldtloft har et totalt gulvareal (GUA) på 86 m2, men grunnet skråtak/lav takhøyde er kun 18 m2 av arealet måleverdig som bruksareal. De delene av arealene som har lav himlingshøyde (ALH) utgjør 68 m2.
Vedlagte plantegninger er ikke målbare. De oppgitte arealer er hentet fra rapport med befaringsdato 09.05.2025 utført av Anticimex v/Jarle Dalen Myrengen. Arealene er beregnet og rom er definert etter dagens faktiske bruk, uavhengig av hva som er godkjent av bygningsmyndighetene.
Byggemåte
Bygningen er iht. tilstandsrapport, oppført på støpt betong mot grunn. Grunnmur og yttervegger i mur/betong konstruksjoner. Fasade med murpuss. Valmet tak tekket med betongtakstein. Les forøvrig mer om byggemåte og den tekniske tilstanden i rapporten.
Tilstandsrapporten og selgers egenerklæring er vedlagt salgsoppgaven. Interessenter må sette seg inn i dokumentene før bud inngis.
Standard
2. etasje (egen enhet)
Entré: Flislagt gulv med gulvvarme og plass til garderobe. Lyse overflater og enkel tilgang til øvrige rom.
Stue: Lys og pen stue med store vindusflater som slipper inn rikelig med dagslys. Rommet har god plass til både sofagruppe og spisebord, og gir fleksible møbleringsmuligheter. Gulvet er belagt med parkett, himlingen er slett og malt, og har innfelte downlights som gir jevn belysning. Stuen er utstyrt med både varmepumpe og peis - perfekt for komfort gjennom alle årstider.
Kjøkken: Praktisk kjøkken med klassiske profilerte fronter kombinert med laminert benkeplate og nedsenket oppvaskkum i metall. Det er integrerte hvitevarer. Det er også avsatt plass og nisje for oppvaskmaskin. Rommet har laminatgulv, malte slette veggflater og himling med takbord.
Soverom 1 og 2: To soverom med parkett og malte flater. Hovedsoverommet har god plass til dobbeltseng og garderobeskap.
Bad: Stilrent og funksjonelt bad med flislagte gulv ned varme og vegger, samt himling med downlights. Rommet er utstyrt med moderne innredning, heldekkende servant, overskap med speil og vegghengt toalett. Dusjhjørnet har innfellbare glassdører og praktisk blandebatteri med hånddusj. Det er naturlig ventilasjon, opplegg for vaskemaskin
Terrasse: Solrik terrasse med god plass til utemøbler og utsyn over nærområdet.
1. etasje (egen enhet)
Entré: Enkel og funksjonell inngangssone med flislagt gulv og plass til oppbevaring av yttertøy.
Stue: Lys stue og romslig stue. God planløsning og plass til både sofagruppe og spisebord. Varmepumpe.
Kjøkken: Funksjonelt kjøkken med laminatgulv, kombinerte veggflater i flis og malte slette flater, samt himling med takbord. Innredningen har slette fronter og laminert benkeplate med nedsenket oppvaskkum i metall og ett-greps blandebatteri. Praktisk løsning med nisje for både oppvaskmaskin, kjøleskap og komfyr, samt integrert avtrekksvifte plassert i overskap.
Bad: Pent flislagt bad med gulvarme. Innredningen består av skap med ett-speils fronter, heldekkende servant med ett-greps blandebatteri, overskap og speil. Vegghengt toalett, dusjhjørne med innfellbare glassdører. Opplegg for vaskemaskin og mekanisk avtrekk.
Soverom 1 og 2: To soverom av normal størrelse, begge med parkett og plass til seng og garderobe. Ett rom har skap.
Bod: Lagringsplass tilgjengelig fra innvendig gang.
Underetasje (tilknyttet 2. etasje)
Stue: Romslig stue i underetasje oppgradert i 2025 med flislagtgulv, slette vegger og takbord. God plass til møbelering.
Bad: Moderne bad fra 2025 med fliser på gulv med varme og vegger. Nedfelt himling med downlights, dobbel servant med slette fronter, vegghengt toalett og dusjhjørne med innfellbare glassdører. Utført med rør-i-rør-system og plastavløp fra byggeår.
Vaskerom: Flislagt vaskerom med utslagsvask og opplegg for vaskemaskin. Greit med arbeidsplass og naturlig ventilasjon.
Disponibelt rom: Brukes i dag som bod, men egner seg godt til hobby eller lagring etter behov.
Generelt om boligen: Boligen har vannrør i rør-i-rør-system og avløpsrør i plast fra ulike årganger. Vannskapene er plassert på badet i både 1. og 2. etasje, samt på vaskerommet i kjelleren. På vaskerommet står to varmtvannsberedere: en Høiax Titanium ECO 200 fra 2024 og en OSO Super S200 fra 2012. Hovedstoppekranen er plassert på badet i kjelleren. Vinduer i 2-lags glass fra forskjellige årstall.
Selger har fått utarbeidet en tilstandsrapport for eiendommen, dvs. en teknisk gjennomgang av boligen hvor eventuelle avvik, risiko for kjøper og prisoverslag for hva som bør gjøres av oppgradering, er skissert. Se særskilt TGIU (tilstandsgrad ikke undersøkt), samt TG2 og TG3 som viser hva som er avvik fra boligens normale slitasje, alder og type, eller som bør/må utbedres. Rapporten og selgers egenerklæring er en del av salgsoppgaven og må leses nøye før bud inngis. Kjøper overtar ansvaret for de opplysninger som fremkommer av salgsdokumentasjonen, og kan ikke gjøre gjeldende som mangel noe som burde vært kjent eller som ikke kan anses å ha betydning for avtalen.
I rapporten fremkommer det som takstmannen mener kjøper må være særskilt oppmerksom på, dette gjelder blant annet (se utfyllende tekst i rapporten):
Følgende kontrollpunkter/forhold har blitt tildelt TG2:
- Bad (1. etasje): Badet har ventilasjon med registrert ulyd i avtrekksvifte. Det er ikke påvist drenering fra innebygget sisterne. Det er registrert misfarging og svertesopp i flisfuger samt enkelte sprukne veggfliser, og flisarbeid bærer preg av ufagmessig utførelse. Tettesjiktets alder tilsier usikker restlevetid og lekkasjesikkerhet. Lokalt fall i dusjsone er mindre enn anbefalt, og innerdør har svelleskader som følge av fuktpåvirkning.
- Bad (2. etasje): Badet har kun naturlig ventilasjon. Det er ikke registrert drenering fra innebygget sisterne, og toalett har mangelfull innfesting. Tettesjiktets alder gir usikker restlevetid og lekkasjesikkerhet. Lokalt fall i dusjsone er mindre enn anbefalt. Det er registrert misfarging og svertesopp i flisfuger samt svelleskader på innerdør.
- Bad i kjeller: Badet har kun naturlig ventilasjon. Utførelsen av tettesjikt og slukmansjett er uoversiktlig, og det kan ikke verifiseres at løsningen er fullgod og lekkasjesikker.
- Vaskerom i kjeller: Rommet har kun naturlig ventilasjon. Utførelsen av tettesjikt er uoversiktlig, og det kan ikke verifiseres at løsningen er fullgod og lekkasjesikker.
- Kjøkken (1. etasje): Vannrør er ikke plugget mot varerør. Det er registrert sprekker i veggoverflater samt svertesopp i elastisk fuge ved benkeplate, og sokkel fremstår løs.
- Kjøkken (2. etasje): Kjøkkeninnredningen har hakk og merker som følge av bruk og alder.
- Oppholdsrom i 1. og 2. etasje: Parkettgulv bærer preg av alder og slitasje.
- Rom under terreng: Det er registrert stedvise saltutslag på yttervegger, noe som indikerer fuktvandring i konstruksjonen.
Øvrige TG2-punkter i rapporten har blitt tildelt tilstandsgraden ut i fra alder og naturlig slitasje.
Følgende kontrollpunkter/forhold har blitt tildelt TG3:
- Bad i kjeller: Det er registrert lekkasje fra servant. Selger har utbedret punktet gjennom forsikringsselskap.
- Bad i 2. etasje – gulvoverflater: Det er påvist løse og/eller manglende mosaikkfliser i dusjsone.
- Skorsteiner: Det er registrert avvik ved skorsteiner som tilsier behov for utbedring.
- Etasjeskiller i kjeller: Det er registrert merkbare skjevheter i etasjeskiller i kjeller, med en målt høydeforskjell på inntil ca. 55 mm mellom høyeste og laveste punkt i rommet.
Følgende kontrollpunkter/forhold har blitt tildelt TGIU (tilstandsgrad ikke undersøkt):
- Bad i kjeller og vaskerom: Fukt i tilliggende konstruksjoner er ikke undersøkt med hulltaking eller målinger grunnet rommenes utforming
Det anbefales ytterligere undersøkelser av disse punktene.
Se vedlagt tilstandsrapport for supplerende informasjon vedrørende boligens tilstand.
Løsøre og tilbehør
Integrerte hvitevarer på kjøkkenet i 2.etg medfølger i handelen, dette gjelder kjøle-/fryseskap, integrert platetopp, integrert stekeovn, mikrobølgeovn og oppvaskmaskin.
Hvitevarer på kjøkkenet i 1.etg medfølger i handelen, dette gjelder, stekeovn med platetopp og oppvaskmaskin.
Videre vises det til liste fra Norges Eiendomsmeglerforbund angående løsøre og tilbehør. Produkter og installasjoner som medfølger overdras uten noen form for garantier, utover eventuell gjenværende leverandørgaranti.
Oppvarming
Boligen varmes opp med panelovner, varmekabler på bad og vedfyring. I tillegg er det installert en luft-til-luft varmepumpe fra 2023 i enheten i 1. etasje.
Det har blitt foretatt en kontroll av pipe og ildsted i Austadgata 28, utført av Drammensregionens brannvesen IKS. Følgende bemerkninger ble konstatert under tilsynet: Det ble avdekket at skorsteinen ikke fungerer som forutsatt. Skorsteinen er nær 90 år gammel, med slitasje og dårlige fuger, samt dårlig murverk etter gamle røykrør. Den er også tildekket på bad i både kjeller og 2. etasje. Det anbefales at skorsteinen rehabiliteres i hele sin høyde med riktig dimensjon og godkjent metode. I tillegg ble det bemerket at det mangler røykvarsling i kjeller og 1. etasje. Kjøper overtar alt ansvar og risiko for dette videre.
Ferdigattest/brukstillatelse
Eiendommen ble byggemeldt for tomannsbolig og gitt igangsettingstillatelse den 23. mai 1936. Det foreligger godkjente byggetegninger for opprinnelig bygning datert 19. mai 1936. Bygningen ble deretter
registrert tatt i bruk 1. mai 1937.
Det foreligger godkjente byggetegninger for oppføring av garasje, datert 24. juni 1958.
I henhold til gjeldende regelverk utstedes det ikke lenger ferdigattest for tiltak det ble søkt om før 1998. Kommunen vil derfor ikke kreve ferdigattest for disse, og søknader om ferdigattest vil avvises. Dette
innebærer likevel ikke at bygningen nødvendigvis er lovlig, men at kommunen ikke krever avslutning av slike saker.
Eiendommen er senere ombygget. Det ble gitt tillatelse til fasadeendringer, bruksendring fra tilleggsdel til hoveddel av kjeller, innkledning av balkonger og innkledning av inngangsparti 05.03.2021, med tilhørende godkjente tegninger for fasade og plantegninger datert 06.01.2021. Tiltakene er gjennomført, og dagens plantegning samsvarer i all vesentlighet med den godkjente søknaden fra 2021 (se avvik under). Alle søknadspliktige tiltak skal avsluttes med ferdigattest. Det er imidlertid ikke søkt ferdigattest for tiltaket, og det kan dermed ikke tas i lovlig bruk.
Det gjøres oppmerksom på følgende avvik mellom godkjente tegninger fra 2021 og dagens bruk:
- Vaskerom i underetasjen er søkt som soverom.
- Utforming og plassering av innvendig trapp avviker fra tegninger.
- Fire kjellervinduer skulle vært utskiftet til større vinduer.
Det understrekes at kjøper overtar eiendommen slik den fremstår ved visning, og overtar risiko og ansvar for alle tiltak som ikke er ferdigstilt, omsøkt eller godkjent, herunder eventuelle krav om bruksendring,
ferdigattest eller midlertidig brukstillatelse.
Tinglyste heftelser og rettigheter
Eiendommen overdras fri for pengeheftelser.
Det er ingen tinglyste servitutter på eiendommen.
Eventuell adgang til utleie
Eiendommen har to separate boenheter. Det vil normalt være anledning til å leie ut begge, såfremt utleiearealet er bygningsmessig godkjent for varig opphold og har forsvarlige radon nivåer.
Boenhet 1.etg er utleid i dag for kr 15.000,- per måned. Beløpet inkluderer: vann- og avløp. Leieforholdet har en oppsigelse på 3 måneder, dersom eiendom overtas før dette plikter kjøper å tre inn i selgers leiekontrakt.
Boenhet 2.etg er ikke utleid i dag, men har tidligere vært utleid for kr 15.500,- per måned. Beløpet inkluderte: vann- og avløp.
Diverse
Vi er opptatt av verdiskapning, og har knyttet til oss samarbeidspartnere som skal sikre våre kunder de beste produkter og tjenester;
• Gjensidige leverer boligselgerforsikring og tilbyr bygningsforsikring
• Boligkjøperforsikring leveres av Hiscox og med Sedgwick som skadebehandler, og er formidlet gjennom Gjensidige.
• BN bank tilbyr finansieringsløsninger
• Vår avdeling Krogsveen Pluss tilbyr flyttetjenester som utvask, visningsvask, lager, tømming og transport av flyttelass, i tillegg til å formidle kontakt med Flip for overflateoppussing.
• I forbindelse med overtagelse av eiendommen tilbyr Overo avtale om strøm, alarm og bredbånd.
• Krogsveen er, sammen med øvrige bransjeaktører, medeier i den digitale annonseringsplattformen Hjem.
Energimerking
Komplett energiattest inkludert oppvarmingskarakter fås ved henvendelse til megler eller lastes ned fra www.krogsveen.no.
Beliggenhet og tomteforhold
Beliggenhet og tomteforhold
Beliggenhet
Eiendommen har en fin beliggenhet i et veletablert og sentrumsnært boligområde. Det nærmeste området er bebygget med en kombinasjon av boliger, butikker og industri/næring. Kort gangavstand til Strømsø senter med flere butikker som matbutikk (Kiwi XL) og apotek samt legesenter, treningssenter (EVO) og frisør. Det er også kort gangavstand til store butikkjeder som Power, Jysk, Elkjøp og Elektroimportøren, i tillegg til treningssenter (SATS) og bowling. Gangavstand til Marienlystområdet med flere fritidstilbud samt tilhørende idrettsanlegg. Det er under 1 km fra eiendommen til flere barnehager, barneskole og ungdomsskole. Enkel påkjøring til E-18 og E-134 ved Bangeløkka.
Praktisk avstand til Strømsø torg som har et bredt utvalg av servicetilbud, bussknutepunkt og togstasjon. Gågatene på Bragernes torg kan friste med et stort utvalg av sentrumsfasiliteter som caféer, dagligvareforretninger, restauranter, nisjébutikker m.m., i tillegg er det kino, minigolf, skøytebane (vinterstid) og teater. Kort vei til strandpromenaden langs Drammenselva, som er pent opparbeidet med grøntområder, lekeplasser, volleyballbane og badeplass.
Drammen har en rekke fritids- og sportstilbud. Drammen Strong og Drammen Ballklubb er idrettslag i nærmiljøet med diverse tilbud. Ytterligere tilbud og anlegg på Marienlyst med kunstis og kunstgressbane, Drammensbadet, Marienlyst stadion, Turnhallen, etc.. Drammen slalåmklubb i Haukåsløypa slalåmbakke med egentrening og kurstilbud. Gangavstand til Bikkjestykket med hyggelige parkområder, discgolfbane og lekeplass. Nærhet til flotte turmuligheter samt rekreasjonsområder i Bragernesåsen, Drammensmarka og Elveparken. Det er kort vei til ski- og turmuligheter i Strømsøåsen med lysløyper Gangavstand til Drafnkollen med lysløype og flott turterreng. Sportsfiske på Sølvfastøya.
Gode bussforbindelser med hyppige avganger til Drammen sentrum, det er kort gangavstand til bussholdeplass (Folkestads gate), se www.brakar.no for rutetider. Ca. 15 minutters gange til togstasjonen med gode forbindelser mot Kongsberg, Oslo og Vestfold fra Drammen sentrum, se www.vy.no for avganger. Tidsmessig tar det ca. 30 minutter til Oslo med tog fra Drammen. Pga. ombygging av Drammen togstasjon vil det hovedsakelig være Flytogbuss fra togstasjonen til Gardermoen flyplass (i en periode), se www.flytoget.no for mer informasjon. Det gjøres oppmerksom på at regjeringen har signalisert en nedleggelse av Flytoget (uvisst om eksakt tidspunkt), hvor Vy vil overta trafikken på strekningene.
Adkomst
Det vil bli skiltet med Krogsveen visningsskilt ved fellesvisninger. Se kart i nettannonse eller Google Maps for nærmere veibeskrivelse. Velkommen til visning!
Barnehager, skoler og fritid
Godt sammensatt tilbud av private og offentlige barnehager.
Barnehager: Strømsø barnehage (0,3 km), Solstreif Rudolf Steiner barnehage (0,7 km), Bikkjestykket barnehage (0,7 km).
Skoler: Brandengen barneskole (1 km) og Marienlyst ungdomsskole (0,5 km).
Drammen kommune har tre private barne- og ungdomsskoler, Drammen Realfagsskole Heltberg, Norlights Montessoriskole Drammen og Rosendal skole (Mjøndalen).
Det ligger flere videregående skoler i Drammen og Lier, samt Universitetet i Sørøst-Norge som har campus på Papirbredden i Drammen, for mer informasjon se www.usn.no.
Dersom skole- og barnehagetilbud er av betydning for kjøpet, ber vi om at det rettes en særskilt henvendelse til kommunen for oppdatert informasjon.
Beskrivelse av tomt
Eiertomt på 636 kvm med tilnærmet flat tomt og meget lettstelt som er perfekt for både barnelek, hageaktiviteter og sosiale sammenkomster. Den er pent opparbeidet med gressplen, frukttrær og diverse beplantning som skaper en frodig og lun atmosfære.
Gårdsplassen er lagt med belegningsstein og gir et ryddig og innbydende førsteinntrykk, samtidig som den gir god plass til parkering. På eiendommen står det en frittliggende og overbygget paviljong på ca. 23 kvm, et nydelig samlingspunkt for måltider og avslapning i grønne omgivelser. Paviljongen er delikat integrert med grønn vinranke og gir både skygge og sjarm på varme sommerdager.
Det gjøres oppmerksom på at huset tangerer eiendommens grense mot øst, mens garasjen tangerer
grensen mot nord.
Parkering
Rikelig med parkeringsplass på egen, steinbelagt gårdsplass samt i en romslig dobbelgarasje med strømtilkobling. Mulighet for installasjon av elbillader i følge selger.
I tillegg er det mulighet for parkering i gate, i henhold til gjeldende bestemmelser for området.
Vei, vann og avløp
Eiendommen har adkomst via kommunal vei.
Eiendommen er tilknyttet kommunalt ledningsnett via private stikkledninger. Sameiet er ansvarlig for private stikkledninger til bygningen.
Regulerings-og arealplaner
Eiendommen er hovedsakelig regulert til boligformål, i henhold til reguleringsplan for Austadjordet øst for Austadgata datert 20.05.1939. Videre er eiendommen avsatt til boligbebyggelse ved kommuneplanens arealdel 2014-2036 datert 05.10.2015. Eiendommen omfattes i tillegg av Kommunedelplan Strømsø - gatebruk datert 22.06.2004 med tilhørende bestemmelser. Utsnitt av planer med tilhørende bestemmelser kan fås ved henvendelse til megler.
I nærområdet av eiendommen er det en reguleringsplan som er under arbeid, dette gjelder Områderegulering for Bangeløkka. I forslag til ny kommuneplan foreslås området avsatt til transformasjonsområde med kombinert bebyggelse og anleggsformål. Planområdet er på om lag 55 dekar og omfatter eiendommen gnr. 111/bnr. 45 m.fl. Foreløpig status for planen er "planlegging igangsatt" og det ble kunngjort oppstart av planarbeidet 21.12.2024, se kommunens hjemmeside for mer info. Tidshorisont og endelig utforming av prosjektet er pt. ikke klart, det må påregnes støy o.l. fra byggeprosjektet under utbyggingen (med forbehold om at planen blir vedtatt).
Økonomi
Økonomi
Kommunale utgifter
Kommunale avgifter (vann og avløp): kr 22 016,- pr. år (3 terminer), fakturert på eiendommen i 2024
Renovasjonskostnader: kr 11 831,- pr. år (2 terminer). Type renovasjonsordning: Samarbeid, 2025
Det opplyses om at Drammen kommune har varslet om en vesentlig fremtidig økning av kommunale avgifter.
I tillegg påløper det en kostnad på kr 578,- pr. år for boliger med minst ett aktivt røykrør (kostnad pr. 2025). Det påløper også kostnader for feiing av ildsted, kontroll av fyringsanlegg m.m. Frekvens på feiing samt tilsyn er avhengig av behov og vurderes av feieren.
Det må påregnes kostnader til strøm og nettleie, dette vil variere avhengig av strøm-/nettselskap. Nåværende eier har selv ikke bebodd eiendommen og har således ikke oversikt over strømforbruk.
Boligen har en årlig forsikringspremie via Gjensidige på kr 16.000,- pr. år.
Det må påregnes kostnader til innboforsikring.
Selger har ikke bebodd eiendommen og har således ikke kjennskap til øvrige løpende utgifter for eiendommen. Dette vil variere avhengig av antall beboere, ønsket innetemperatur, egne fordelsavtaler, kanalvalg, hastighet på bredbånd m.m.
Formuesverdi
Formuesverdi for 2023 var kr 1 368 885,- ifølge skatteetaten. Beløpet forutsetter at eier bor fast i boligen (primærbolig).
Ved eventuell øvrig bruk av eiendommen (f.eks. fritidsbolig, pendlerbolig, utleieobjekt) var formuesverdien for 2023 kr 5 475 541,-.
Formuesverdien justeres normalt årlig. Se skatteetaten.no for mer informasjon om fastsettelse av formuesverdien.
Eiendomsskatt
Det er p.t ikke vedtatt eiendomsskatt for eiendommer i kommunen.
Omkostninger
6 990 000,00 Prisantydning
Omkostninger
174 750,00 Dokumentavgift til staten (2,5% av kjøpesum)
19 900,00 Gjensidige Boligkjøperpakke (valgfri)
545,00 Tinglysing panterettsdokument
545,00 Tinglysing skjøte
--------------------------------------------------------
195 740,00 Omkostninger totalt
--------------------------------------------------------
7 185 740,00 Totalpris inkl. omkostninger
--------------------------------------------------------
Totalpris inkl. omkostninger forutsetter kjøp til prisantydning.
Det tas forbehold om endringer i avgifter og gebyrer.
Tilbud om lånefinansiering
Megler formidler gjerne kontakt med rådgiver hos vår samarbeidspartner BN Bank. De har konkurransedyktige betingelser samt rask og løsningsorientert behandling av din lånesøknad. Krogsveen mottar et honorar for denne formidlingen.
Betalingsbetingelser
Kjøpesum inkludert omkostninger, samt pantedokument tilknyttet eventuelt lån, skal være disponibelt hos megler 2 virkedager før overtagelsen.
Annen viktig informasjon
Annen viktig informasjon
Eier
Ali Kasap
Overtakelse
Etter nærmere avtale.
Boligselgerforsikring
Selger har i forbindelse med salget tegnet boligselgerforsikring levert av Gjensidige.
Boligselgerforsikringen dekker selgers ansvar etter avhendingsloven begrenset oppad til kr 14 millioner. Dersom kjøper oppdager forhold ved eiendommen som hen mener utgjør en mangel ved eiendommen, vil Gjensidige behandle reklamasjonen på vegne av selger. Forsikringsvilkår kan fås ved henvendelse til megler.
Vedlagt salgsoppgaven følger selgers egenerklæringsskjema og tilstandsrapport. Interessenter må sette seg inn i dokumentene før bud inngis.
Boligkjøperforsikring
Innen kontraktsmøtet må kjøper ta stilling til om det ønskes å bestille Boligkjøperpakken gjennom Gjensidige. I denne gunstige pakken er boligen ferdig forsikret og inkluderer rettshjelpsforsikring, også kalt Boligkjøperforsikring. Rettshjelpsforsikring gir trygghet og tilgang på profesjonell juridisk hjelp dersom det oppdages uventede feil eller mangler det første året etter overtagelse. Forsikringsselskapet behandler i så fall ethvert mangelskrav kjøper måtte ha overfor selger.
Boligkjøperpakken inkluderer bygningsforsikring for hus og hytte, innboforsikring, flytteforsikring og dobbel rentedekning - i situasjoner hvor kjøper ikke får solgt nåværende primærbolig.
Kjøper mottar ingen særskilt faktura for Boligkjøperpakken da kostnaden det første året legges til kjøpesummen for boligen. Det gjøres oppmerksom på Krogsveen mottar et honorar for denne formidlingen.
Produktark for Boligkjøperpakken ligger vedlagt i salgsoppgaven.
Dersom ikke boligkjøperpakke ønskes kan kun rettshjelpsforsikring, også kalt boligkjøperforsikring, tegnes særskilt via megler. Rettshjelpsforsikringen varer i 5 år fra overtagelse og leveres gjennom Gjensidige. Ta kontakt med megler for ytterligere informasjon.
Selskap og privatpersoner som driver med kjøp/salg/utvikling som ledd i egen næringsvirksomhet kan ikke tegne boligkjøperpakke eller rettshjelpsforsikring.
Budgivning
Forbrukerinformasjon om budgivning er vedlagt denne salgsoppgaven og er også på vår hjemmeside Krogsveen.no. Alle bud og budforhøyelser må inngis skriftlig. I tillegg må legitimasjon være fremlagt sammen med signatur fra budgiver.
Vi oppfordrer til å gi bud elektronisk via GI BUD-knappen på eiendommens hjemmeside på Krogsveen.no. Da vil samtlige vilkår bli oppfylt.
Eventuelle forhøyelser eller endringer av budet kan bekreftes pr SMS eller på e-post. Vi oppfordrer alltid til å kontakte megler pr. telefon i tillegg da forsinkelser i SMS og e-post kan forekomme.
For at budene skal kunne bli behandlet og videreformidlet skriftlig til alle involverte parter, må alle bud ha en tilstrekkelig lang akseptfrist, jf. eiendomsmeglingsforskriften § 6-3.
Selger må også skriftlig akseptere budet før aksept kan formidles til budgiver. Akseptfrist bør derfor være på minimum 30 minutter, og budforhøyelser må derfor skje i god tid før fristens utløp.
Bud i forbrukerforhold kan uansett ikke settes med kortere frist enn kl. 12.00 første virkedag etter siste annonserte visning. I tillegg kan ikke budet ha forbehold om at det skal holdes hemmelig ovenfor øvrige interessenter. Megler har iht lov om eiendomsmegling ikke anledning til å videreformidle disse budene, og de vil dermed heller ikke bli journalført.
Etter at eiendommen er solgt vil kjøper og selger få tilsendt budjournal. Øvrige budgivere kan få utlevert kopi av budjournalen i anonymisert form.
Hvitvaskingsreglene
I henhold til lov om hvitvasking og terrorfinansiering har megler plikt til å gjennomføre kontrolltiltak overfor kunder, herunder fullmektiger. Dette innebærer bl.a. å bekrefte kunders og reelle rettighetshaveres identitet på bakgrunn av fremvist gyldig legitimasjon eller på annen godkjent måte, samt å innhente opplysninger om kundeforholdets formål og tilsiktede art.
Dersom slike kundetiltak ikke kan gjennomføres, kan megler ikke etablere kundeforholdet eller utføre transaksjonen.
Hvis kjøper ikke bidrar til gjennomføring av kundekontrollen og dette fører til at transaksjonen blir forsinket eller ikke kan gjennomføres, vil dette ansees som mislighold av avtalen og gi selger rettigheter etter avhendingslova kapittel 5. I tilfeller der selger ikke bidrar til gjennomføring av løpende kundekontroll underveis i oppdraget, er det selger som misligholder sine forpliktelser etter avtalen og gi kjøper rettigheter etter avhendingslovens kapittel 4. Partene er selv ansvarlige for eventuelle kostnader og ansvar dette kan medføre. Eiendomsmegleren eller eiendomsmeglingsforetaket kan ikke holdes ansvarlig for de konsekvenser dette vil kunne få for partene eller andre som har interesser i eiendomshandelen.
Kjøper oppfordres til å innbetale kjøpesummen som ikke kommer fra låneinstitusjon i én samlet innbetaling fra egen konto i norsk bank. Megler har plikt til å melde fra til Økokrim om eiendomshandler som fremstår som mistenkelige. Melding sendes Økokrim uten at partene varsles.
Personopplysningsloven
I henhold til personopplysningsloven gjør vi oppmerksom på at interessenter kan bli registrert for videre oppfølging.
Lovanvendelse
Generelle bestemmelser
Salgsoppgaven er basert på de opplysningene selger har gitt til megler, den bygningssakyndiges tilstandsrapport, samt opplysninger innhentet fra kommunen, Kartverket og andre tilgjengelige kilder. Det er viktig at kjøper setter seg grundig inn i alle salgsdokumentene, herunder salgsoppgave, tilstandsrapport og selgers egenerklæring. Kjøper anses kjent med forhold som er tydelig beskrevet i salgsdokumentene, og slike forhold kan ikke påberopes som mangler. Dette gjelder uavhengig av om kjøper har lest dokumentene. Alle interessenter oppfordres til å undersøke eiendommen nøye, gjerne sammen med fagkyndig før bud inngis. Kjøper som velger å kjøpe usett kan ikke gjøre gjeldende som mangel noe han burde blitt kjent med ved undersøkelsen.
Dersom det er behov for avklaringer, anbefaler vi at interessenter rådfører seg med eiendomsmegler eller egne rådgivere før det legges inn bud.
En bolig som har blitt brukt i en viss tid, har vanligvis blitt utsatt for slitasje og skader kan ha oppstått. Slik bruksslitasje må kjøper regne med, og det kan avdekkes enkelte forhold etter overtakelse som nødvendiggjør utbedringer. Normal slitasje og skader som nødvendiggjør utbedring, er innenfor hva kjøper må forvente og vil ikke utgjøre en mangel.
Kjøper og selgers rettigheter og plikter reguleres av avtalen mellom partene, samt informasjonen som har vært tilgjengelig for kjøperen i forbindelse med handelen. Avtalen utfylles av avhendingsloven, og det gjelder ulike avtalevilkår avhengig av om kjøper er forbrukerkjøper eller ikke. Dette er nærmere beskrevet nedenfor.
På grunn av ulike avtalevilkår kan selger vurdere bud fra en som ikke er forbruker, ulikt fra en forbrukers bud. Dersom kjøper ikke er forbruker, er selger sitt mulige mangelsansvar begrenset fordi eiendommen selges "som den er". Selger kan ikke ta «som den er»- forbehold overfor en forbrukerkjøper. Selv et lavere bud fra en som ikke er forbruker kan foretrekkes fordi begrensningen i mulig mangelsansvar kan ha egenverdi for selger. Selger står fritt til å forkaste eller akseptere ethvert bud, og er for eksempel ikke forpliktet til å akseptere høyeste bud.
Budgiver skal i budskjema avgi egenerklæring om budgiver er forbruker eller næringsdrivende/ person som hovedsakelig handler som ledd i næringsvirksomhet. Budgivere får informasjon dersom andre bud er inngitt av en som ikke er forbruker.
Forbrukerkjøp - definisjon
Med forbrukerkjøp menes kjøp av eiendom når kjøperen er en fysisk person som ikke hovedsakelig handler som ledd i næringsvirksomhet.
Forbruker – avtalevilkår
Eiendommen har en mangel dersom den ikke er i samsvar med kravene som følger av avtalen, eller det foreligger brudd på bestemmelsene i avhendingsloven §§ 3-2 til 3-8. Hvis eiendommen ikke er i samsvar med det kjøperen må kunne forvente ut ifra alder, type og synlig tilstand, kan det være grunnlag for mangelskrav. Det samme gjelder hvis det er holdt tilbake eller gitt uriktige opplysninger om eiendommen. Dette gjelder likevel bare dersom man kan gå ut ifra at det virket inn på avtalen at opplysningen ikke ble gitt eller at mangelskravet ikke blir rettet i tide på en tydelig måte.
Boligen kan ha en mangel etter avhendingsloven § 3-3 andre ledd, dersom det er avvik mellom opplyst og faktisk innvendig areal, forutsatt at avviket er på 2% eller mer og minimum 1 kvm.
Ved beregning av et eventuelt prisavslag eller erstatning må kjøper selv dekke tap/kostnader opptil et beløp på kr 10 000 (egenandel).
Ikke-forbruker (næringsdrivende) – definisjon
Hvis kjøper er en juridisk person, eller en fysisk person som hovedsakelig handler som ledd i næringsvirksomhet, vil kjøpet ikke anses som et forbrukerkjøp.
Ikke-forbruker – avtalevilkår
Eiendommen har en mangel dersom den ikke er i samsvar med kravene som følger av avtalen.
Eiendommen selges «som den er», og selgers ansvar utover det konkret avtalte er da begrenset etter avhendingsloven § 3-9, første ledd andre setning.
Avhendingsloven § 3-3 andre ledd fravikes, og hvorvidt boligens arealsvikt utgjør en mangel vurderes etter avhendingsloven § 3-8.
Informasjon om kjøpers undersøkelsesplikt, herunder oppfordringen om å undersøke eiendommen nøye, gjelder også for kjøpere som ikke anses som forbrukere.
Det forutsettes at hjemmel overføres til kjøper. Hvis kjøper ikke ønsker hjemmelsoverføring av eiendommen, må det tas forbehold om dette i budet.
Meglers vederlag
Meglers vederlag betales av selger og er avtalt til:
Vederlag fastpris: kr 45.000,-
Tilrettelegging kr 17.000,-
Oppgjør: kr 7.500,-
Markedsføringspakke: kr 27.400,-
Visninger/overtagelse: kr 4.000,- pr. stk
Oppslag eiendomsregister: kr 2.900,-
Megler har i tillegg krav på dekning av følgende utlegg:
Innhenting av offentlig opplysninger Drammen tegninger og RFD kr 2 735.-
Innhenting av offentlig opplysninger Feierap Drammen brannvesen kr 551.-
Tinglysing sikring kr 500,-
Boligfotografering kr 5 000,-
Tilstandsrapport med målsatt plantegning kr 16 950,-
Opplysninger om oppdraget
Oppdragsnummer 20-0423/24
Eiendomsmegler Krogsveen AS, avd. Drammen
Nedre Storgate 16, 3015, DRAMMEN
950 007 613
Oppdragets KR-kode KR20.24423
Dato
Sist oppdatert: 20. februar 2026 kl. 15:29
Dokumenter
Dokumenter
PDF – 745 KB
PDF – 942 KB
PDF – 850 KB
PDF – 312 KB
PDF – 29 KB
PDF – 127 KB
PDF – 392 KB
Område
Legg til steder som er viktige for deg
Visning
For å delta på visning, ber vi om at du melder deg på. Da sikrer vi at du får nødvendig informasjon og at det er satt av tilstrekkelig med tid. Kontakt megler dersom annet tidspunkt ønskes. Husk å lese salgsoppgaven før visningen, så du stiller forberedt. Visning utgår dersom det ikke er noen påmeldte. Ønsker du kun å bli holdt orientert, kan du fra eiendommens hjemmeside få varsel om solgtpris, eller kontakte megler.
Lurer du på noe?
Unngå doble boligrenter
Vi tilbyr gunstig forsikring.
Vurderer du utleie?
Få et tilbud fra Utleie KrogsveenHva koster lånet?
Sjekk estimert lånekostnadVil du varsles om lignende boliger?
Ved å lagre ditt boligsøk hos oss får du beskjed når vi har en bolig som ligner denne, før den legges ut på markedet!

