Ballblomveien 7
2 200 000 kr
60 m²
1 soverom
Komplett salgsoppgave

Heimdalenga
Lys 2-roms endeleilighet med 2,6 m. himlingshøyde og mulighet for 2 sov. Sol fra tidlig til sent på svalgang og balkong.
Prisantydning
2 200 000 krAndel fellesgjeld
534 466 krOmkostninger
18 683 krTotalpris
2 753 149 kr
Pris
Bruksareal
65 m²BRA-I (internt bruksareal)
60 m²BRA-E (eksternt bruksareal)
5 m²TBA (terrasse-balkongareal)
4 m²
Areal
Etasje
2Byggeår
2002Soverom
1 soveromBad
1 badType
AndelsleilighetEierform
AndelFellesutgifter
8 651 krEnergimerke
Lysegrønn C
Nøkkelinfo
Unngå doble boligrenter
Vi tilbyr gunstig forsikring.
Vurderer du utleie?
Få et tilbud fra Utleie KrogsveenHva koster lånet?
Sjekk estimert lånekostnadBeskrivelse
Kort om eiendommen
- Frokost i morgensol på svalgangen, middag i kveldssol på balkongen
- Fint utsyn til velstelte grøntarealer med blomster og bjørketrær
- Effektiv og praktisk romløsning - mulighet for å re-etablere soverom II
- Ekstra himlingshøyde på 2,6 meter bidrar til at leiligheten oppleves større enn det faktiske arealet
- Én-stavs laminat nylig lagt i alle rom utenom bad og bod
- Luft-luft varmepumpe installert i 2025
- Stilfullt, malt og oppgradert IKEA-kjøkken fra byggeåret
- Bod tilknyttet bad oppgradert og tatt i bruk som vaskerom
- Utvendig sportsbod i felles rekke på bakkeplan
- Oppmerket biloppstillingsplass på felles parkeringsområde
- Barnehage i nabolaget, kort gangavstand til skoler
Innhold og byggemåte
Innhold og byggemåte
Eiendommen
Ballblomveien 7, 1529 MOSS
Kommunenummer 3103, gårdsnummer 169, bruksnummer 127, ideell andel 1/1
Andelsnummer 30, Heimdalenga Borettslag, organisasjonsnummer 984632134
Innhold
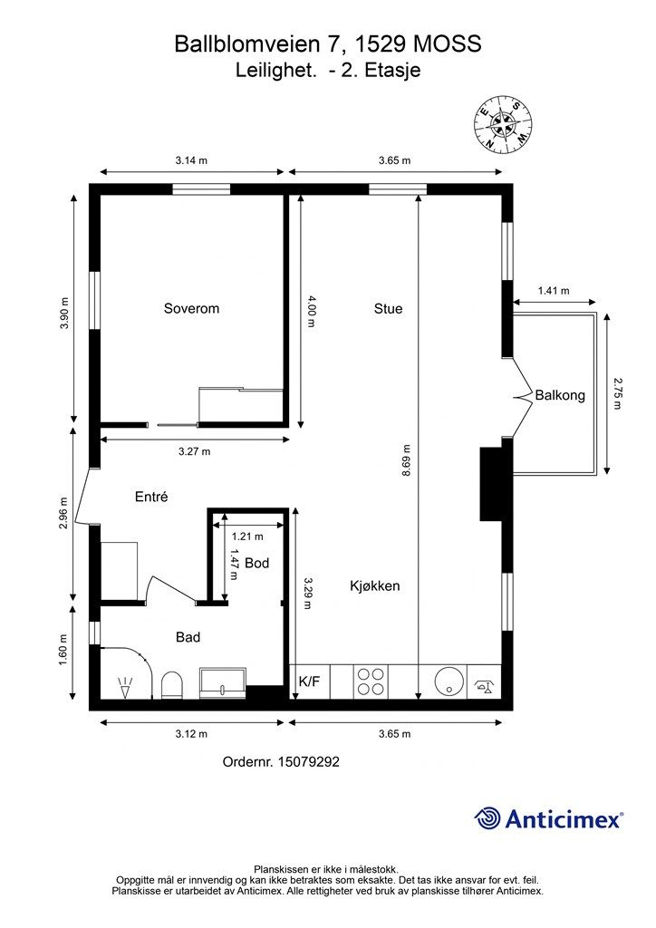
Totalt bruksareal BRA: 60 kvm.
BRA-i:
2. etasje: 60 kvm: Entré, bad, bod, stue, kjøkken og soverom.
BRA-e:
Bakkeplan: 5 kvm: Bod i frittstående bodbygg.
Åpent areal - Terrasse- og balkongareal (TBA):
2. etasje: 4 kvm: Balkong.
Vedlagte plantegninger er ikke målbare. De oppgitte arealer er hentet fra rapport med befaringsdato 17.02.2026 utført av Anticimex AS. Arealene er beregnet og rom er definert etter dagens faktiske bruk, uavhengig av hva som er godkjent av bygningsmyndighetene.
Det gjøres oppmerksom på at boligens eksterne boder tilhører borettslagets fellesareal, og at boden således ikke eies av den enkelte andelseier. Dette medfører at borettslaget i fellesskap beslutter bruken, og at man ikke selv har eierrett og rettsvern for boden. Borettslaget kan ved vedtak beslutte annet bruk av fellesarealet og disponering av bodarealet kan dermed opphøre.
Byggemåte
Selger har fått utarbeidet en tilstandsrapport, dvs. en teknisk gjennomgang av boligen hvor eventuelle avvik, risiko for kjøper og prisoverslag for hva som bør gjøres av oppgradering, er skissert. Se særskilt TGIU (tilstandsgrad ikke undersøkt), samt TG2 og TG3 som viser hva som er boligens normale slitasje, alder og type, hva som er avvik fra dette og hva som bør/må utbedres. Rapporten og selgers egenerklæring er en del av salgsoppgaven og må leses nøye før bud inngis. Kjøper overtar ansvaret for de opplysninger som fremkommer av salgsdokumentasjonen, og kan ikke gjøre gjeldende som mangel noe som burde vært kjent eller som ikke kan anses å ha betydning for avtalen.
Byggemåte iht. tilstandsrapporten:
Leilighetsbygg oppført i 2002. Gulv av betong mot grunn. Etasjeskiller i trekonstruksjon. Yttervegger i trekonstruksjon, utvendig kledd med stående
trekledning. Takkonstruksjon i saltaksform, utvendig tekket med takstein. Leiligheten har profilert entrédør med dørkikkert. Balkongdør med tre-lags glass
fra byggeår. Vinduer med to-lags glass fra byggeår.
Det gjøres spesielt oppmerksom på:
Våtrom - bad: Fallforhold utenfor sluksonen er vurdert opp mot preaksepterte ytelser i dagens byggteknisk forskrift, og vurderes ikke til å være tilstrekkelig for å lede eventuelt lekkasjevann til sluk. Det er ikke påvist at vanntett sjikt har tilstrekkelig oppkant ved dørterskel for å kompensere for dette. Konsekvens er at forholdet gir risiko for at vann kan renne ut i tilstøtende rom ved en lekkasje. Fordelerstokker for vannrør er plassert i vegg uten sikring mot lekkasje. Konsekvens er risiko for skader i konstruksjonen ved eventuell eventuell lekkasje fra rørsystemet. På grunn av våtrommets utforming og bruk er det ikke praktisk mulig å gjennomføre hulltaking og fuktmåling i et område som regelmessig utsettes for bruksvann, og som vurderes å være det området hvor skader erfaringsmessig forekommer. Det ble utført et overflatesøk med fuktindikator på utvalgte steder, uten funn som indikerer fuktskader, også i områdene hvor hulltaking ville vært mulig. TG:2.
Kjøkken: Det er registrert noe svelling i bunnplate i benkeskap under oppvaskkum. Konsekvens vurderes hovedsakelig til å være estetiske hensyn. TG:2.
Loft uinnredet: Luftespalter av papp i nedre del av taket har løsnet i innfestingen, og enkelte luftespalter presses opp mot undertaket. Dette fører til redusert luftgjennomstrømning. Utilstrekkelig ventilasjon kan føre til kondensproblematikk. Det er ikke registrert tegn til dette, men det anbefales å feste luftespaltene for å sørge for fri luftgjennomstrømning. TG:2.
Yttervegger inkl. fasader: Det er registrert enkelte mindre råteskader i ytterkledning på yttervegg mot sydøst og mot nordøst. TG:2.
Vinduer og dører: Ytterdørene viser begynnende tegn til utvendig slitasje. Konsekvens er redusert beskyttelse av materialene. Foreslått tiltak er overflatebehandling. TG:2.
Yttertak: Taktekkingen (med tilhørende beslag) er kun delvis fysisk undersøkt, og derfor delvis vurdert på bakgrunn av bygningsdelens alder, med den begrensning dette innebærer. Taksteinen viser tegn på slitasje. Undertaket har nådd en alder der fremtidig funksjon vurderes som usikker. Det mangler beslag mellom nedre del av taket og takrenner (bordtaksbeslag). Konsekvens kan være økt fuktbelastning på nedre del av undertaket. Konsekvens er at taket ikke oppfyller dagens krav til sikkerhet. Det var ikke krav til snøfangerutstyr på hele taket på oppføringstidspunktet. TG:2.
Ovennevnte er kun et utdrag fra rapporten. Se supplerende tekst i tilstandsrapporten for mer informasjon. For øvrige tilstandsgrader og tilstandsgrader grunnet høy alder og evt. slitasje, så henvises det til rapporten. Kjøper overtar ansvar og risiko for dette.
Selger opplyser at det er en sprekk i vindusglasset over ytterdøra, men at dette i utgangspunktet er borettslagets ansvar.
Standard
Leiligheten er siden 2023 tilført flere oppgraderinger. Overflatebehandling er utført i de fleste rom; vegger og himlinger er malt, i tillegg er én-stavs laminat lagt på alle gulv utenom badet og innvendig bod. I stuen ble ny luft-luft varmepumpe installert så sent som i 2025. Sentralt i stuen står i tillegg en innbygget gasspeis som er både varmende og stemningsfremmende.
Stuen er i tidligere år utvidet på bekostning av ett soverom som med forholdsvis enkle grep kan re-etableres. Utvidelsen innebærer at stuen foruten et større areal også har flere vinduer og dermed vesentlig bedre lysforhold. Atmosfærefremmende sprossevinduer i både sør- og vestveggen slipper solen inn fra midt på dagen. Verdt å fremheve er ikke minst også den ekstra gode himlingshøyden på luftige 2,6 meter som bidrar til at både stuen og leiligheten for øvrig oppleves som større enn det faktiske arealet.
Kjøkkeninnredningen er fra IKEA og leilighetens byggeår, men er nylig malt. Kjøkkenet er for øvrig også oppgradert med ny oppvaskmaskin og nytt blandebatteri. Ny kurs til stekeovn ble trukket opp i 2023. Innredningens skap og skuffer har både stilren fremtoning og flere oppbevaringsmuligheter for utstyr til bruk i det daglige.
Badet er fra byggeåret og fungerer godt i daglig bruk. Servantskapet er nylig pusset opp tilsvarende kjøkkeninnredningen. Sanitærutstyret inkluderer også et dusjkabinett som begrenser vann på overflatene. Gulvet og veggene opp til om lag to meters høyde er utført med fliser, gulvet har også elektrisk varme. Verdt å fremheve er også baderomsvinduene som er plassert høyt i ytterveggen og tilfører badet naturlig lys.
Soverommet er nylig helmalt i en mørk og varm tone som skaper et harmonisk sovemiljø. Sprossevinduer slipper naturlig lys inn fra to vinkler, uten sjenerende innsyn. Rommet har i tillegg en generøs størrelse som gir plass til både dobbeltseng, nattbord og garderobeskap.
Boden som er tilknyttet badet ble i 2023 tatt i bruk som et kombinert vaskerom og stellerom. Her finnes dedikert plass til de arealkrevende hvitevarene vaskemaskin og tørketrommel. Ny kurs til begge ble trukket opp. i 2023. Rør-arbeider ble samtidig utført, blant annet for varmtvannsbereder som er flyttet hit fra kjøkkenet. Gulvet ble påført smøremembran og flislagt.
Overflater og innredninger:
Gulv: Laminat og fliser.
Innervegger: Fliser og malte flater.
Himlinger: Foliere plater.
Kjøkken: Skapinnredning med glatte gråmalte fronter. Laminert grå benkeplate. Nedfelt stålvask med ett-greps blandebatteri. Integrert platetopp og stekeovn. Innbygget oppvaskmaskin. Avtrekksventilator i overskap.
Bad: Servantskap med glatte gråmalte fronter og heldekkende steinplate med underlimt servant og ett-greps blandebatteri. Veggmontert speil og belysning. Dusjkabinett. Gulvmontert klosett. Rør-opplegg til vaskemaskin i tilknyttet bod.
Løsøre og tilbehør
Vi viser til liste fra Norges Eiendomsmeglerforbund som gjelder fra 01.01.2020 angående løsøre og tilbehør.
Selger informerer om at stekeovnens undervarmefunksjon ikke fungerer.
Oppvarming
Oppvarming av boligen skjer i hovedsak ved bruk av elektrisitet, varmepumpe og gasspeis. Gulvvarme på badet.
Dersom beboelsesrom ikke har vegg- eller fastmonterte varmekilder ved visning, følger dette heller ikke med.
Selger informerer om følgende:
Det er montert varmepumpe i leiligheten med styrets godkjenning. Varmepumpen eies av andelseier, og ansvar for drift, service og vedlikehold overtas av ny eier. Det skal foreligge serviceavtale for løpende vedlikehold. Andelseier er ansvarlig for eventuelle skader eller bygningsmessige forhold som følge av installasjonen, herunder veggjennomføring og håndtering av kondensvann.
Eventuelle ekstra vedlikeholds- eller utbedringskostnader som borettslaget påføres som følge av varmepumpen, bæres av andelseier. Dersom det blir nødvendig i forbindelse med borettslagets vedlikehold eller modernisering av bygningen, kan varmepumpen kreves fjernet. Demontering og eventuell remontering må da bekostes av andelseier. Ved permanent fjerning plikter andelseier å tilbakeføre bygningen til opprinnelig og forsvarlig stand. Se for øvrig borettslagets vedtekter pkt.9-10 for komplett oversikt.
Ferdigattest/brukstillatelse
Det foreligger ferdigattest på eiendommen datert 08.08.2002. Denne kan fås ved henvendelse til megler.
Kjøper overtar boligen slik den fremstår på visning.
Tinglyste heftelser og rettigheter
Utover andel fellesgjeld overdras leiligheten fri for pengeheftelser.
Borettslaget har legalpant for forfalte felleskostnader og andre krav som følger av borettslagsforholdet iht. burettslagsloven § 5-20. Pantet er begrenset oppad til 2G (G = folketrygdens grunnbeløp).
Eventuell adgang til utleie
Andelseier kan ikke uten samtykke fra styret i borettslaget overlate bruken av boligen til andre. Med samtykke kan andelseier overlate boligen til andre i inntil tre år hvis andelseier har bodd i boligen i minst ett av de to siste år. Utleie i andre tilfeller kan godtas ved særlige grunner, jf. burettslagslova § 5-6. Utleie forutsetter at leiligheten har forsvarlige radonverdier. Se også borettslagets vedtekter og konferer megler ved spørsmål.
Beliggenhet og tomteforhold
Beliggenhet og tomteforhold
Beliggenhet
Heimdalenga er et yngre og utpreget familievennlig boligområde sentralt i Moss. Her bor du med praktisk nærhet til blant annet barne- og ungdomsskoler samt flere barnehager, den nærmeste allerede i nabolaget. I nærmiljøet finnes også dagligvareforretning, flere tilbud av helserelaterte tjenester samt treningssenter og kafé.
Et større tilbud av forretninger finnes i handelsområdet rundt Varnaveien, på kjøpesenteret Mosseporten og naturligvis i bykjernen. Alt innenfor en kort kjøretur på få minutter. Det er for øvrig kort vei til E6 ved den sydlige avkjøringen til Moss.
Holdeplass for flere busslinjer finnes få meter unna og gjør det enkelt å reise kollektivt i det daglige. Her stopper blant annet buss som kjører til sentrum på under 10 minutter. Tog fra Moss stasjon tar deg til hovedstaden på kun 30 minutter.
Vel så attraktivt som nærhet til alle tilbud hverdagen krever, er det med umiddelbar tilgang til omfangsrike turområder i det frodige Ryggelandet. Intime småveier i det vakre jordbrukslandskapet er ypperlige for rusleturer og treningsøkter. Ytterst langs kysten finner du besøksverdige perler som Larkollen og Fuglevik samt en rekke familievennlige badesteder.
Adkomst
Veibeskrivelse Se Google maps - det er enkelt å finne frem i kartet.
Det vil bli skiltet med Krogsveen visningsskilt ved fellesvisninger.
Barnehager, skoler og fritid
Informasjon om tilhørende skolekretser er hentet fra Prognosesenteret som dataleverandør, og tilhørigheten kan årlig endres av kommunen. Dersom skole- og barnehagetilbud er av betydning for kjøpet, ber vi om at det rettes en særskilt henvendelse til kommunen for oppdatert informasjon.
Beskrivelse av tomt
Eiet tomt på 7 286 kvm som tilhører borettslaget.
Parkering
Leiligheten disponerer en biloppstillingsplass merket med nr.7. Gjesteparkering er for gjester og skal ikke benyttes av beboere.
Vei, vann og avløp
Eiendommen har adkomst fra kommunal vei og videre inn på privat vei.
Eiendommen er tilknyttet kommunalt ledningsnett via private stikkledninger.
Borettslaget er ansvarlig for private stikkledninger til bygningen.
Regulerings-og arealplaner
I henhold til informasjon fra Moss kommune datert 09.02.2026 omfattes eiendommen av reguleringsplan M161 "Bebyggelsesplan for Heimdalenga felt B3" med formål
felles avkjørsel, felles parkeringsplass, boliger og felles lekeareal, vedtatt 12.06.2001. Reguleringsplan M126 "Heimdalenga" med formål annet
spesialområde (støyskjerming/skjermvegetasjon), offentlig friområde, kjørevei og gang-/sykkelvei, vedtatt 02.09.1999. I tillegg omfattes eiendommen av kommuneplan "Kommuneplanens arealdel 2021-2032" med formål boligbebyggelse nåværende, vedtatt 24.03.2021 med plannr.KP3002.
Eiendommen ligger i gul og rød støysone iht. T-1442 og i hensynssone for "nedslagsfelt drikkevann".
Utsnitt av plan med tilhørende bestemmelser kan fås ved henvendelse til megler.
Økonomi
Økonomi
Boligens kostnader
Felleskostnadene inkluderer: felles bygningsforsikring, kommunale avgifter, renter og avdrag fellesgjeld, årsavgift tv/internett (kun grunnpakke), vedlikehold bygg/elektro/vvs og utvendig anlegg, strøm fellesareal, leasing/leie av infrastruktur elbil-lading, styrehonorar, forretningsførsel, revisjon og andre driftskostnader.
Felleskostnadene justeres normalt en til to ganger årlig i forhold til borettslagets faktiske utgifter.
Det tas forbehold om at felleskostnadene kan justeres fortløpende pga. renteøkninger.
Felleskostnadene fordeles slik:
Renteutgifter kr 2.497,-
Avdrag kr 2.595,-
Driftsutgifter kr 3.559,-
Nåværende eier har et strømforbruk som tilsvarer ca. 8.800 kwh. pr. år. Det er tegnet Norgespris på strøm for perioden 25.10.2025 til og med 31.12.2026.
Boligen er tilknyttet Telenor som leverandør av tv/internett. Dekoder/tv-tuner medfølger.
Utgiftene er basert på nåværende eiers forbruk. Kjøper må selv tegne innboforsikring.
Formuesverdi
Formuesverdi for 2024 var kr 621 757,- ifølge selgers Skatteetaten. Beløpet forutsetter at eier bor fast i boligen (primærbolig).
Ved eventuell øvrig bruk av eiendommen (f.eks. fritidsbolig, pendlerbolig, utleieobjekt) var formuesverdien for 2023 kr 2 487 026,-.
Fra 2026 har Stortinget vedtatt en oppdatert modell for beregning av formuesverdi for primærbolig, så avvik kan forekomme.
For mer informasjon se skatteetaten.no
Opplysninger om fellesgjeld
Andel formue er kr 26 470,- pr. 31.12.2025.
Andel fellesgjeld er kr 534 466,- pr. 09.02.2026.
Total fellesgjeld for boligselskapet er kr 18.031.016,- pr. 09.02.2026 og lånevilkårene er:
Type A – Lån hvor det betales både renter og avdrag.
Annuitetslån.
Rente Pt.: 5,23 %.
Renter og avdrag pr.mnd. med dagens rente : kr 5.092,-, hvorav renter utgjør kr.2.497,- og avdrag utgjør kr.2.595,-.
Lånets løpetid: 2037.
Lånenr. NIBOR 67143608625.
Bankforbindelse: Nordea.
Dette borettslaget har ikke tilrettelagt for individuell nedbetaling av andel fellesgjeld (IN-ordning). Det vil si at hver enkelt andelseier, helt eller delvis, ikke kan velge å nedbetale sin andel av borettslagets fellesgjeld til boligbyggelaget.
Omkostninger
2 200 000,00 Prisantydning
534 466,00 Andel av fellesgjeld
--------------------------------------------------------
2 734 466,00 Pris inkl. fellesgjeld
Omkostninger
7 643,00 Gebyr forhåndsavklaring forkjøpsrett
9 950,00 Gjensidige Boligkjøperpakke (valgfri)
545,00 Tinglysing hjemmel
545,00 Tinglysing panterettsdokument
--------------------------------------------------------
18 683,00 Omkostninger totalt
--------------------------------------------------------
2 753 149,00 Totalpris inkl. omkostninger
--------------------------------------------------------
Dersom kjøper ikke er medlem av boligbyggelaget, må det påregnes en innmeldingsavgift og årlig medlemsgebyr pr. ny andelseier. Dette faktureres direkte fra boligbyggelaget.
Dersom borettslaget har fellesgjeld, vil leilighetens andel av fellesgjelden komme i tillegg til kjøpesummen. Denne gjelden skal ikke innbetales i oppgjøret, men følger leiligheten.
Det tas forbehold om endringer i avgifter og gebyrer.
Tilbud om lånefinansiering
Megler formidler gjerne kontakt med rådgiver hos vår samarbeidspartner BN Bank. De har konkurransedyktige betingelser samt rask og løsningsorientert behandling av din lånesøknad. Krogsveen mottar et honorar dersom lån opprettes.
Betalingsbetingelser
Kjøpesum inkludert omkostninger, samt pantedokument tilknyttet eventuelt lån, skal være disponibelt hos megler 2 virkedager før overtagelsen.
Annen viktig informasjon
Annen viktig informasjon
Eier
Jan Vetle Stadven og Oscar Stadven
Informasjon om forkjøpsrett
Leiligheten er tilknyttet Heimdalenga Borettslag.
Borettslaget består av 36 leiligheter.
Forretningsfører er Vansjø Boligbyggelag.
Dugnad må påregnes.
Dyrehold krever styrets samtykke. Det vises videre til borettslagets husordensregler for dyrehold som kan fås ved henvendelse til megler.
Selger informerer om følgende:
Man måker snø utenfor egen leilighet og bod i samarbeid med naboer. Ellers blir det brøytet gjennom borettslaget. Ytterdør vokses ca. annethvert år.
Enkelte saker som styret har jobbet med og vedlikehold som har vært utført i 2024:
Fellesboder ble oppgradert med nødvendig utstyr for sesongene.
Maling av rekkverk som ble skiftet ut i 2023.
Montert lyskaster på nordre parkeringsplass.
Ny strøkasse på nordre parkeringsplass.
2 utvendige kraner er blitt skiftet ut.
Service og rens av ventilasjonsanlegget i alle enheter.
Service på det elektriske anlegget for fellesområder er utført.
Alle utelamper langs grusvei og ved inngangsparti er skiftet ut.
Nye brannvarslere ble kjøpt inn og utlevert beboere.
Vedlikehold og nyanskaffelser som er ønskelig for 2025:
Male strøk nummer to på rekkverk og svalganger.
Service på vannskap og gasspeiser.
Vedlikehold av lekeplass.
Utskifting av varmtvannsberedere.
Borettslaget har fått utarbeidet en vedlikeholdsplan som blant annet tar for seg maling av husene hvert 10-12 år fremover, oljing av svalganger og trapper hvert 3-4 år, rensing av ventilasjonskanaler hvert 8-10 år. For noen type vedlikehold kan det være vanskeligere å anslå intervaller slik at jevnlig gjennomganger gjøres og vurderes i henhold til vedlikeholdsplanen.
Byningene ble sist malt i 2017, vasket i 2024 og ventilasjonsanlegget renset i 2024. Større vedlikehold skjer med ekstern bistand til innhenting av tilbud og oppfølging. Maling planlegges i 2028-2029, mulig noen vegger må males ved behov før planen.
I henhold til samtale med styrets leder 16.02.2026 skal det avholdes en generalforsamling 24.02.2026. Her vil det stemmes over om det skal installeres opplegg for elbil-lader på hver enkelt beboers parkeringsplass. Skulle forslaget bli vedtatt vil dette kunne øke den månedlige felleskostnaden med ca. kr 200,- pr. mnd. Det vil også fremmes forslag om økning av styrehonorar samt diverse vedlikehold for borettslaget. Skulle forslagene bli vedtatt kan dette medføre en økning av felleskostnader. Eksakt beløp er ikke kjent for ansvarlig megler pr 16.02.2026.
I henhold til borettslagets vedtekter må kjøper godkjennes av styret som ny andelseier. Det er kjøpers ansvar at styregodkjenning blir gitt, men styret kan ikke nekte godkjenning uten saklig grunn.
Iht. burettslagslova kan man bare eie én andel i borettslaget. Kun fysiske personer kan være andelseiere.
Øvrige andelseiere i borettslaget har forkjøpsrett. Andelen er forhåndsavklart på forkjøpsretten. Konf. megler ved spørsmål rundt denne.
Borettslaget er tilknyttet Borettslagenes Sikringsordning AS som dekker manglende innbetaling av felleskostnader fra øvrige andelseiere. Avtalen om sikring er gyldig til avtalen sies opp av en av partene. Oppsigelsesfrist er 1 desember med gyldighet fra førstkommende årsskifte.
Dokumenter for borettslaget kan fås ved henvendelse til megler.
Overtakelse
Etter nærmere avtale.
Overtakelse kan tidligst skje etter at forkjøpsretten for øvrige andelseiere i borettslaget og eventuelt medlemmer av boligbyggelaget er avklart, samt at styrets godkjennelse er avklart.
Boligselgerforsikring
Selger har i forbindelse med salget tegnet boligselgerforsikring levert av Gjensidige.
Boligselgerforsikringen dekker selgers ansvar etter avhendingsloven begrenset oppad til kr 14 millioner. Dersom kjøper oppdager forhold ved eiendommen som hen mener utgjør en mangel ved eiendommen, vil Gjensidige behandle reklamasjonen på vegne av selger. Forsikringsvilkår kan fås ved henvendelse til megler.
Vedlagt salgsoppgaven følger selgers egenerklæringsskjema og tilstandsrapport. Interessenter må sette seg inn i dokumentene før bud inngis.
Boligkjøperforsikring
Innen kontraktsmøtet må kjøper ta stilling til om det ønskes å bestille Boligkjøperpakken gjennom Gjensidige. I denne gunstige pakken er boligen ferdig forsikret og inkluderer rettshjelpsforsikring, også kalt Boligkjøperforsikring. Rettshjelpsforsikring gir trygghet og tilgang på profesjonell juridisk hjelp dersom det oppdages uventede feil eller mangler det første året etter overtagelse. Forsikringsselskapet behandler i så fall ethvert mangelskrav kjøper måtte ha overfor selger.
Boligkjøperpakken inkluderer bygningsforsikring for hus og hytte, innboforsikring, flytteforsikring og dobbel rentedekning - i situasjoner hvor kjøper ikke får solgt nåværende primærbolig.
Kjøper mottar ingen særskilt faktura for Boligkjøperpakken da kostnaden det første året legges til kjøpesummen for boligen. Det gjøres oppmerksom på Krogsveen mottar et honorar for denne formidlingen.
Produktark for Boligkjøperpakken ligger vedlagt i salgsoppgaven.
Dersom ikke boligkjøperpakke ønskes kan kun rettshjelpsforsikring, også kalt boligkjøperforsikring, tegnes særskilt via megler. Rettshjelpsforsikringen varer i 5 år fra overtagelse og leveres gjennom Gjensidige. Ta kontakt med megler for ytterligere informasjon.
Selskap og privatpersoner som driver med kjøp/salg/utvikling som ledd i egen næringsvirksomhet kan ikke tegne boligkjøperpakke eller rettshjelpsforsikring.
Budgivning
Forbrukerinformasjon om budgivning er vedlagt denne salgsoppgaven og er også på vår hjemmeside Krogsveen.no. Alle bud og budforhøyelser må inngis skriftlig. I tillegg må legitimasjon være fremlagt sammen med signatur fra budgiver.
Vi oppfordrer til å gi bud elektronisk via GI BUD-knappen på eiendommens hjemmeside på Krogsveen.no. Da vil samtlige vilkår bli oppfylt.
Eventuelle forhøyelser eller endringer av budet kan bekreftes pr SMS eller på e-post. Vi oppfordrer alltid til å kontakte megler pr. telefon i tillegg da forsinkelser i SMS og e-post kan forekomme.
For at budene skal kunne bli behandlet og videreformidlet skriftlig til alle involverte parter, må alle bud ha en tilstrekkelig lang akseptfrist, jf. eiendomsmeglingsforskriften § 6-3.
Selger må også skriftlig akseptere budet før aksept kan formidles til budgiver. Akseptfrist bør derfor være på minimum 30 minutter, og budforhøyelser må derfor skje i god tid før fristens utløp.
Bud i forbrukerforhold kan uansett ikke settes med kortere frist enn kl. 12.00 første virkedag etter siste annonserte visning. I tillegg kan ikke budet ha forbehold om at det skal holdes hemmelig ovenfor øvrige interessenter. Megler har iht lov om eiendomsmegling ikke anledning til å videreformidle disse budene, og de vil dermed heller ikke bli journalført.
Etter at eiendommen er solgt vil kjøper og selger få tilsendt budjournal. Øvrige budgivere kan få utlevert kopi av budjournalen i anonymisert form.
Hvitvaskingsreglene
I henhold til lov om hvitvasking og terrorfinansiering har megler plikt til å gjennomføre kontrolltiltak overfor kunder, herunder fullmektiger. Dette innebærer bl.a. å bekrefte kunders og reelle rettighetshaveres identitet på bakgrunn av fremvist gyldig legitimasjon eller på annen godkjent måte, samt å innhente opplysninger om kundeforholdets formål og tilsiktede art.
Dersom slike kundetiltak ikke kan gjennomføres, kan megler ikke etablere kundeforholdet eller utføre transaksjonen.
Hvis kjøper ikke bidrar til gjennomføring av kundekontrollen og dette fører til at transaksjonen blir forsinket eller ikke kan gjennomføres, vil dette ansees som mislighold av avtalen og gi selger rettigheter etter avhendingslova kapittel 5. I tilfeller der selger ikke bidrar til gjennomføring av løpende kundekontroll underveis i oppdraget, er det selger som misligholder sine forpliktelser etter avtalen og gi kjøper rettigheter etter avhendingslovens kapittel 4. Partene er selv ansvarlige for eventuelle kostnader og ansvar dette kan medføre. Eiendomsmegleren eller eiendomsmeglingsforetaket kan ikke holdes ansvarlig for de konsekvenser dette vil kunne få for partene eller andre som har interesser i eiendomshandelen.
Kjøper oppfordres til å innbetale kjøpesummen som ikke kommer fra låneinstitusjon i én samlet innbetaling fra egen konto i norsk bank. Megler har plikt til å melde fra til Økokrim om eiendomshandler som fremstår som mistenkelige. Melding sendes Økokrim uten at partene varsles.
Personopplysningsloven
I henhold til personopplysningsloven gjør vi oppmerksom på at interessenter kan bli registrert for videre oppfølging.
Lovanvendelse
Generelle bestemmelser
Salgsoppgaven er basert på de opplysningene selger har gitt til megler, den bygningssakyndiges tilstandsrapport, samt opplysninger innhentet fra kommunen, Kartverket og andre tilgjengelige kilder. Det er viktig at kjøper setter seg grundig inn i alle salgsdokumentene, herunder salgsoppgave, tilstandsrapport og selgers egenerklæring. Kjøper anses kjent med forhold som er tydelig beskrevet i salgsdokumentene, og slike forhold kan ikke påberopes som mangler. Dette gjelder uavhengig av om kjøper har lest dokumentene. Alle interessenter oppfordres til å undersøke eiendommen nøye, gjerne sammen med fagkyndig før bud inngis. Kjøper som velger å kjøpe usett kan ikke gjøre gjeldende som mangel noe han burde blitt kjent med ved undersøkelsen.
Dersom det er behov for avklaringer, anbefaler vi at interessenter rådfører seg med eiendomsmegler eller egne rådgivere før det legges inn bud.
En bolig som har blitt brukt i en viss tid, har vanligvis blitt utsatt for slitasje og skader kan ha oppstått. Slik bruksslitasje må kjøper regne med, og det kan avdekkes enkelte forhold etter overtakelse som nødvendiggjør utbedringer. Normal slitasje og skader som nødvendiggjør utbedring, er innenfor hva kjøper må forvente og vil ikke utgjøre en mangel.
Kjøper og selgers rettigheter og plikter reguleres av avtalen mellom partene, samt informasjonen som har vært tilgjengelig for kjøperen i forbindelse med handelen. Avtalen utfylles av avhendingsloven, og det gjelder ulike avtalevilkår avhengig av om kjøper er forbrukerkjøper eller ikke. Dette er nærmere beskrevet nedenfor.
På grunn av ulike avtalevilkår kan selger vurdere bud fra en som ikke er forbruker, ulikt fra en forbrukers bud. Dersom kjøper ikke er forbruker, er selger sitt mulige mangelsansvar begrenset fordi eiendommen selges "som den er". Selger kan ikke ta «som den er»- forbehold overfor en forbrukerkjøper. Selv et lavere bud fra en som ikke er forbruker kan foretrekkes fordi begrensningen i mulig mangelsansvar kan ha egenverdi for selger. Selger står fritt til å forkaste eller akseptere ethvert bud, og er for eksempel ikke forpliktet til å akseptere høyeste bud.
Budgiver skal i budskjema avgi egenerklæring om budgiver er forbruker eller næringsdrivende/ person som hovedsakelig handler som ledd i næringsvirksomhet. Budgivere får informasjon dersom andre bud er inngitt av en som ikke er forbruker.
Forbrukerkjøp - definisjon
Med forbrukerkjøp menes kjøp av eiendom når kjøperen er en fysisk person som ikke hovedsakelig handler som ledd i næringsvirksomhet.
Forbruker – avtalevilkår
Eiendommen har en mangel dersom den ikke er i samsvar med kravene som følger av avtalen, eller det foreligger brudd på bestemmelsene i avhendingsloven §§ 3-2 til 3-8. Hvis eiendommen ikke er i samsvar med det kjøperen må kunne forvente ut ifra alder, type og synlig tilstand, kan det være grunnlag for mangelskrav. Det samme gjelder hvis det er holdt tilbake eller gitt uriktige opplysninger om eiendommen. Dette gjelder likevel bare dersom man kan gå ut ifra at det virket inn på avtalen at opplysningen ikke ble gitt eller at mangelskravet ikke blir rettet i tide på en tydelig måte.
Boligen kan ha en mangel etter avhendingsloven § 3-3 andre ledd, dersom det er avvik mellom opplyst og faktisk innvendig areal, forutsatt at avviket er på 2% eller mer og minimum 1 kvm.
Ved beregning av et eventuelt prisavslag eller erstatning må kjøper selv dekke tap/kostnader opptil et beløp på kr 10 000 (egenandel).
Ikke-forbruker (næringsdrivende) – definisjon
Hvis kjøper er en juridisk person, eller en fysisk person som hovedsakelig handler som ledd i næringsvirksomhet, vil kjøpet ikke anses som et forbrukerkjøp.
Ikke-forbruker – avtalevilkår
Eiendommen har en mangel dersom den ikke er i samsvar med kravene som følger av avtalen.
Eiendommen selges «som den er», og selgers ansvar utover det konkret avtalte er da begrenset etter avhendingsloven § 3-9, første ledd andre setning.
Avhendingsloven § 3-3 andre ledd fravikes, og hvorvidt boligens arealsvikt utgjør en mangel vurderes etter avhendingsloven § 3-8.
Informasjon om kjøpers undersøkelsesplikt, herunder oppfordringen om å undersøke eiendommen nøye, gjelder også for kjøpere som ikke anses som forbrukere.
Det forutsettes at hjemmel overføres til kjøper. Hvis kjøper ikke ønsker hjemmelsoverføring av eiendommen, må det tas forbehold om dette i budet.
Meglers vederlag
Meglers vederlag betales av selger og er avtalt til:
Fastpris: kr 60 000,-
Vederlag:
Foto: kr 4 400,00
Markedsføringspakke: kr 29 900,00
Markedsføringspakke rabatt: kr 9 900,00
Kunderabatt: kr 6 508,00
Oppgjør: kr 8 900,00
Tilrettelegging inkl. alle visninger m/påmeldte: kr 12 000,00
Utlegg:
Eierskiftegebyr forretningsfører: kr 5 995,00
Innhenting av informasjon forretningsfører: kr 4 500,00
Innhenting av offentlige opplysninger: kr 3 500,00
Tinglysing sikring: kr 545,00
Andre utgifter:
AX tilstandsrapport leilighet: kr 10 750,00
Eventuell boligselgerforsikring Gjensidige - andel: kr 5 918,-
Vi er opptatt av verdiskapning, og har knyttet til oss samarbeidspartnere som skal sikre våre kunder de beste produkter og tjenester;
• I forbindelse med forberedelse av salget, innhenter vi informasjon om eiendommen hovedsakelig fra vår samarbeidspartner Amibita.
• Gjensidige leverer boligselgerforsikring og tilbyr bygningsforsikring
• Boligkjøperforsikring leveres av Hiscox og med Sedgwick som skadebehandler, og er formidlet gjennom Gjensidige.
• BN bank tilbyr finansieringsløsninger
• Vår avdeling Krogsveen Pluss tilbyr flyttetjenester som utvask, visningsvask, lager, tømming og transport av flyttelass, i tillegg til å formidle kontakt med Flip for overflateoppussing.
• I forbindelse med overtagelse av eiendommen tilbyr Overo avtale om strøm, alarm og bredbånd.
• Krogsveen er, sammen med øvrige bransjeaktører, medeier i Bomega AS som tilbyr den digitale annonseringsplattformen Hjem.
Opplysninger om oppdraget
Oppdragsnummer 30-0023/26
Eiendomsmegler Krogsveen AS, avd. Moss
Kongens gate 23, 1530, MOSS
950 007 613
Oppdragets KR-kode KR30.2623
Dato
Sist oppdatert: 23. februar 2026 kl. 05:49
Dokumenter
Dokumenter
PDF – 166 KB
PDF – 943 KB
PDF – 312 KB
PDF – 29 KB
PDF – 127 KB
PDF – 392 KB
Område
Legg til steder som er viktige for deg
Visning
For å delta på visning, ber vi om at du melder deg på. Da sikrer vi at du får nødvendig informasjon og at det er satt av tilstrekkelig med tid. Kontakt megler dersom annet tidspunkt ønskes.
Husk å lese salgsoppgaven før visningen, så du stiller forberedt. NB. Visning utgår dersom det ikke er noen påmeldte.
Ønsker du kun å bli holdt orientert, kan du fra eiendommens hjemmeside få varsel om solgtpris, eller kontakte megler.
Lurer du på noe?
Unngå doble boligrenter
Vi tilbyr gunstig forsikring.
Vurderer du utleie?
Få et tilbud fra Utleie KrogsveenHva koster lånet?
Sjekk estimert lånekostnadVil du varsles om lignende boliger?
Ved å lagre ditt boligsøk hos oss får du beskjed når vi har en bolig som ligner denne, før den legges ut på markedet!

