Prins Oscars gate 6B
7 490 000 kr
203 m²
3 soverom
Komplett salgsoppgave

Brakerøya
Sentrumsnær eiendom med kombinert bolig- og næringsbygning. 4-roms leilighet på loft og butikklokale i 1. etg. Parkering
Prisantydning
7 490 000 krOmkostninger
208 240 krTotalpris
7 698 240 kr
Pris
Bruksareal
203 m²BRA-I (internt bruksareal)
203 m²
Areal
Etasje
2Byggeår
1867Soverom
3 soveromBad
1 badTomteareal
258 m² (eiet)Type
Eiendom kombinert næringEierform
EietEnergimerke
Rød G
Nøkkelinfo
Unngå doble boligrenter
Vi tilbyr gunstig forsikring.
Vurderer du utleie?
Få et tilbud fra Utleie KrogsveenHva koster lånet?
Sjekk estimert lånekostnadBeskrivelse
Kort om eiendommen
Innhold og byggemåte
Innhold og byggemåte
Eiendommen
Prins Oscars gate 6B, 3012 DRAMMEN
Kommunenummer 3301, gårdsnummer 113, bruksnummer 1137, ideell andel 1/1
Innhold
BRA-i (internt bruksareal)
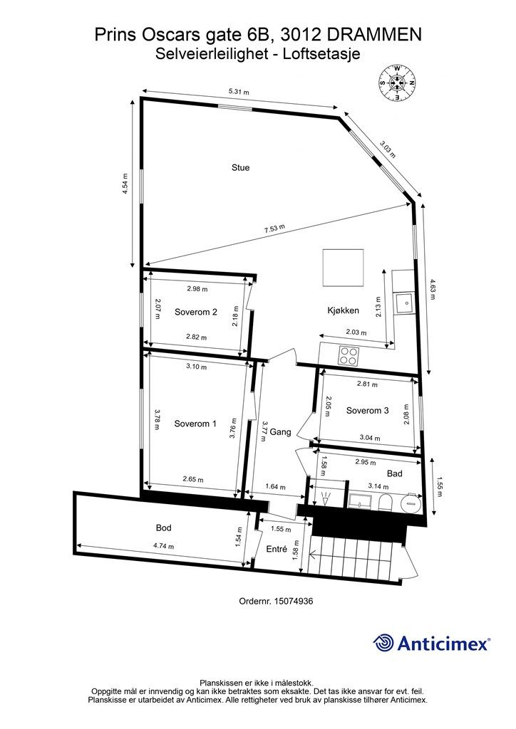
1. etasje:
2 kvm: Trapperom.
2. etasje:
81 kvm: Stue, kjøkken, gang, bad, 3 soverom, bod og entré.
Loftsetasjen har et totalt gulvareal (GUA) på 93 kvm, men grunnet skråtak/lav takhøyde er kun 81 kvm av arealet måleverdig som bruksareal. De delene av arealene som har lav himlingshøyde (ALH) utgjør 12 kvm.
Næringsdelen består av:
1. etasje. : Butikklokaler, toalettrom, kjøkken, lagerareal, garderoberom og renhold/utstyrsrom.
Det gjøres oppmerksom på at næringsdelen i 1. etasje ikke er tilstandsvurdert eller oppmålt i tilstandsrapporten. Næringsdelen var i drift på befaringsdagen som begrenset mulighet for sikker oppmåling av arealene. Arealet er estimert til ca. 120 kvm basert på plantegning fremlagt av selger. Kontrollmåling må påregnes. Det gjøres oppmerksom på at ved oppmåling av næringseiendom skal bruttoareal (BTA) benyttes, slik arealberegning er ikke utført ved dette salget.
De oppgitte arealer er hentet fra rapport utført av Petter Sem. Arealene er beregnet og rom er definert etter dagens faktiske bruk, uavhengig av hva som er godkjent av bygningsmyndighetene.
Byggemåte
Det gjøres oppmerksom på at næringsdelen i 1. etasje ikke er tilstandsvurdert eller oppmålt i tilstandsrapporten.
Boligen er iht. tilstandsrapport, oppført på grunnmurer av naturstein og betongkonstruksjoner. Støpt gulv mot grunn. Etasjeskiller av trekonstruksjon. Yttervegger av trekonstruksjon kledd med stående trekledning. Saltak av trekonstruksjon tekket med takstein (yttertaktekke fra ca. 2010). Helvalmet takflate mot vest. Leiligheten har slett ytterdør med 3-lags glassrute fra ukjent årstall. Karm og ramme av PVC. Vinduer med 2-lags glass fra 1995 og 2007. Karm og rammer av tre. Vindu med 2-lags glass fra 2014. Karm og ramme av PVC. Les forøvrig mer om byggemåte og den tekniske tilstanden i rapporten.
Næringsdelen er iht. tilstandsrapport, oppført på grunnmurer av betong og naturstein. Støpt gulv mot grunn. Yttervegger av tre- og betongkonstruksjoner kledd med stående trekledning. Pulttak av trekonstruksjon tekket med takstein. Ytterdør med 2-lags glass fra ukjent årstall. Vinduer med 2-lags glass fra 1983 og 2011. Karm og rammer av tre. Ståldør fra ukjent årstall.
Tilstandsrapporten og selgers egenerklæring er vedlagt salgsoppgaven. Interessenter må sette seg inn i dokumentene før bud inngis.
Moderniseringer og påkostninger
Bygningen ble tilbygget og ombygget i perioden 2010-2014 iflg. selger.
Standard
Leiligheten (loftetasjen ble innredet til leilighet i perioden 2010-2014)
Eget utvendig inngangsparti i 1. etasje med trapp opp til leilighetens entré.
Stue: Åpen kjøkken- og stueløsning med sofaområde. Laminat på gulv, malte vegger og malt himling med synlige knebukker.
Kjøkken: Profilert kjøkkeninnredning med over- og underskap. Praktisk kjøkkenøy med barløsning og underskap. Flislagt felt på vegg over benkeplater av laminat (2014). Videre er kjøkkenet utstyrt med oppvaskkum, ventilator, integrert platetopp og integrert stekeovn. Opplegg for oppvaskmaskin og frittstående kjøle-/fryseskap. Laminat på gulv, malte vegger og malt himling med synlige knebukker.
Gang: Garderobeløsning i hvit og glatt utførelse. Parkett på gulv, malte vegger og malt himling.
Bad: Badet er fra 2014. Heldekkende servant over servantskap i glatt utførelse. Videre er badet utstyrt med gulvstående toalett og dusjnisje med dusjvegg av glassbyggerstein samt skyvedør. Opplegg for vaskemaskin. Høiax varmtvannsbereder fra 2014. Gulvvarme. Fliser på gulv, fliser på vegger og malt himling. Rommet er iht. godkjente byggetegninger fra 2024 byggemeldt som gang.
Soverom 1: Parkett på gulv, malte vegger og malt himling.
Soverom 2: Parkett på gulv, malte vegger og malt himling.
Soverom 3: Parkett på gulv, malte vegger og malt himling.
Entré: Parkett på gulv, malte vegger og malt himling. Tilgang til bod. Sikringsskap med automatsikringer, plassert i boden.
Næringsdel (1. etasje)
Overflater opplyst av selger å være pusset opp og tilbygget i 2010. Gulvflater belagt med fliser og gulvbelegg. Vegger med slette malte flater og panel. Himling med panel, pusset overflate og malte flater. Stedvis synlige tredragere og eksponert bjelkelag mot overliggende konstruksjon. Profilerte innerdører, dør med glassfelt og fyllingsdør. Plastlameller mot lagerrom med kjøleaggregat. Balansert ventilasjonsanlegg. Kjøleaggregat og balansert ventilasjonsanlegg er ikke i bruk på befaringsdagen og ventilasjonskanaler er stedvis provisorisk tettet.
Kjøkken: Profilert kjøkkeninnredning med over- og underskap i hvit utførelse. Nedfelt oppvaskkum i benkeplate av laminat. Opplegg for benkekjøleskap under benkeplate. Oso varmtvannsbereder fra 2002. Vann og avløpsrør opplyst av selger å være fra 2010. Sikringsskap med automatsikringer. Fliser på gulv, malte vegger og malt himling.
Toalettrom: Vegghengt servant og gulvstående toalett. Veggmontert dusjarmatur (frakoblet). Rommet har sluk. Fliser på gulv, fliser på vegger og malt himling.
Det gjøres oppmerksom på at næringsdelen i 1. etasje ikke er tilstandsvurdert eller oppmålt i tilstandsrapporten. Selger har fått utarbeidet en tilstandsrapport for eiendommen, dvs. en teknisk gjennomgang av boligen hvor eventuelle avvik, risiko for kjøper og prisoverslag for hva som bør gjøres av oppgradering, er skissert. Se særskilt TGIU (tilstandsgrad ikke undersøkt), samt TG2 og TG3 som viser hva som er avvik fra boligens normale slitasje, alder og type, eller som bør/må utbedres. Rapporten og selgers egenerklæring er en del av salgsoppgaven og må leses nøye før bud inngis. Kjøper overtar ansvaret for de opplysninger som fremkommer av salgsdokumentasjonen, og kan ikke gjøre gjeldende som mangel noe som burde vært kjent eller som ikke kan anses å ha betydning for avtalen.
I rapporten fremkommer det som takstmannen mener kjøper må være særskilt oppmerksom på, dette gjelder blant annet (se utfyllende tekst i rapporten):
Følgende kontrollpunkter/forhold har blitt tildelt TG2. Noen punkter i rapporten er utbedret, ref. vedlegg i salgsoppgave utarbeidet av Werge Byggconsulting AS, de utbedrede punktene er ikke med i denne opplistingen:
- Bad: Manglende tilluftsspalte, marginal effekt på avtrekksvifte, isolert sluk i dusjsone, topp gulvprofil ligger høyere enn topp flislagt oppkant mot terskel, moderate tegn til bomlyd under enkelte gulvfliser, ikke fremlagt dokumentasjon på utførelse eller ivaretakelse av membran/tettesjikt ifbm. utskiftning av enkelte gulvfliser, lokalfall i dusjsone er mindre enn anbefalt, ingen dokumentasjon på utførelse av rommet og selger har fremlagt skaderapport fra 2022 ifbm. skade på vannrør av skadedyr (det er ikke fremlagt rapport for utbedring av skader og det er usikkert om det er utført tiltak ifbm. sikring av bygningen mot skadedyr - dog opplyser selger om at skaden er utbedret via forsikring).
- Loft (innredet): Stedvis ikke tilfredsstillende ventilasjon (men det er spalteventiler på alle soverom) stedvis knirk i gulv (bod/entré), stedvis moderate tegn på knirk i gulv (stue/kjøkken), lukket konstruksjon (ukjent konstruksjonsoppbygging).
- Loft (uinnredet/råloft): Tildelt tilstandsgraden ut i fra en helhetsvurdering pga. ingen tilkomst for inspeksjon, kun marginal ensidig lufting av kaldtloft via ventil i gavl mot øst, ukjent konstruksjonsoppbygging og risikokonstruksjon mtp. fukt-/kondensproblematikk etter erfaring, se rapport for nærmere detaljer.
- Innvendige trapper: Knirk i trapp.
- Etasjeskiller: Skjevhetsmåling - forskjell på 18 mm i entré, ca. 16 mm i stue/kjøkken og ca. 17 mm på soverom 1.
- Tekniske anlegg, VVS anlegg: Kun naturlig ventilasjon med mekanisk avtrekk fra bad samt kjøkken (avviker fra krav og uheldig), marginal effekt fra avtrekksvifte fra bad, ikke etablert tilluftsspalter, ingen luftespalte over/under innerdører.
- Radon: Ikke foretatt radonmåling i boligen.
- Elektrisk anlegg: Ikke fremlagt samsvarserklæring på anlegget, varmtvannsbereder har ikke fast tilkobling og det er ikke utført el-tilsyn i boligen i de siste fem årene.
- Yttervegger inkl. fasader og konstruksjon: Ingen luftespalte bak kledning, kledning ligger stedvis nært terreng, endeved er avsluttet tett ned mot vannbrett, skrudd beslag til panel mot sør, forholdene bærer preg av ufagmessig utførelse, terrassekonstruksjon på naboeiendom mot øst er avsluttet tett mot kledning og stedvis tørkesprekker i panel. Selger kommenterer pr. 23.09.2025: Inngang mot Engene 78 er utbedret og rettet opp det er fjernet lekter og beslag så nå er det tilfredsstillende lufting.
- Dører og vinduer: Stedvis vinduer pga. alder, det foreligger krav fra kommunen om støydempende vinduer i fasaden (kan ikke verifisere om vinduene tilfredsstiller kravene), innsettingsdetalj på vindu i stue mot sør har uheldig løsning og foring i underkant av vindu er lagt tilnærmet flatt (ikke beslått i underkant). Selger kommenterer pr. 23.09.2025: Vindu mot nabo i gårdsplass 2 etg er rettet opp og laget beslag. Utvendig innramming av vinduer på store soverom 1600/800 er malt og ferdigstilt.
- Yttertak: Mangelfull/liten ventilering av takkonstruksjon, vurderingene av yttertaket er gjort fra bakkeplan (med den begrensning dette innebærer), kan ikke verifisere at det er etablert tilstrekkelig lufting i/ved gesims, avflassing/slitasje på beslag i overgang vegg/tak på sørfasade og deformasjoner på nedløp mot vest. Selger kommenterer pr. 23.09.2025: Yttertak det er laget ventiler rundt hele gesimsen. Avflassing slitasje på beslag 2 etg utvending mot gårdsplass er utbedret.
- Utvendige trapper: Tildelt tilstandsgraden ut i fra en helhetsvurdering pga. bomlyd i enkelte gulvfliser og usikkert om hvordan overgang mellom yttervegg/kledning er ivaretatt se rapport for nærmere detaljer. Selger kommenterer pr. 23.09.2025: flisene er lagt på tregulv. Det er nå utbedret med innramming av imp materialer utvendig mellom gulv/vegg, smøremembran.
- Drenering: Tildelt tilstandsgraden ut i fra en helhetsvurdering pga. det er usikkert om bygge er drenert, foreligger ingen informasjon om drenering, kan ikke verifisere om grunnmuren har utvendig fuktsperre og vann fra yttertak er ikke ledet vekk fra bygningen/grunnmuren i tilstrekkelig grad, se rapport for nærmere detaljer.
- Stikkledninger og tanker: Ukjent alder på stikkledninger og stikkledning for avløp er ikke tilgjengelig for inspeksjon.
Følgende kontrollpunkter/forhold har blitt tildelt TG3:
Det er ingen punkter som har blitt tildelt TG3.
Følgende kontrollpunkter/forhold har blitt tildelt TGIU (tilstandsgrad ikke undersøkt):
- Tekniske anlegg, VVS anlegg: Avløpsrør er skjult og evt. stakeluke er ikke lokalisert.
- Yttertak: Tekking (undertak, lekter og yttertekking) og detaljer inn mot tilstøtende konstruksjoner er vurdert fra bakkeplan.
- Grunnmur, fundamenter: Grunnmurt er primært ikke tilgjengelig for inspeksjon, fundamenter er naturgitt skjult og byggegrunnens beskaffenhet er ukjent.
Det anbefales ytterligere undersøkelser av disse punktene.
Se vedlagt tilstandsrapport for supplerende informasjon vedrørende boligens tilstand.
Løsøre og tilbehør
Integrerte hvitevarer på kjøkkenet (boligdelen - loftetasje) medfølger i handelen, dette gjelder platetopp og stekeovn
Videre vises det til liste fra Norges Eiendomsmeglerforbund angående løsøre og tilbehør. Produkter og installasjoner som medfølger overdras uten noen form for garantier, utover eventuell gjenværende leverandørgaranti.
Oppvarming
Boligdelen: Gulvvarme på bad. Videre er boligen basert på elektrisk oppvarming ved evt. panelovner.
Næringsdelen: Bygningsdelen er basert på elektrisk oppvarming ved evt. panelovner.
Dersom det ikke er vegg- eller fastmonterte varmekilder i rom ved visning, følger dette heller ikke med.
Ferdigattest/brukstillatelse
Drammen kommune opplyser om at det ikke foreligger ferdigattest eller midlertidig brukstillatelse for opprinnelig bygning i deres arkiv. I henhold til matrikkelen for eiendommen, er bygningen først registrert tatt i bruk i år 1867. Bygningen er også i henhold til matrikkelen, registrert som butikk/forretningsbygning hvorav del av bygningen har blitt ombygget til bolig.
Det er gitt ferdigattest for tilbygg mot sør samt øst, fasadeendring og bruksendring av 2. etasje som resulterer i opprettelse av ny boenhet datert 10.01.2025. I tillegg er det tilhørende godkjente byggetegninger fra 2024.
Megler anfører at det ikke foreligger godkjente byggetegninger på opprinnelig bygning i kommunens arkiv. Det er da usikkert om rom, areal og evt. senere utførte tiltak, foruten byggesøkte endringer fra 2024/2025, er godkjent av kommunen. Kjøper overtar risiko og ansvaret for eventuelle pålegg fra kommunen samt kostnader forbundet med dette.
Iht. tilstandsrapporten tilfredsstiller ikke vinduene i boligen funksjonskravene i teknisk forskrift og annethvert rom for varig opphold har ikke rømningsmulighet. Det er også registrert manglende brannskillende konstruksjon i deler av etasjeskiller mot næringsdel og i trapp. Kjøper overtar risiko og ansvaret for eventuelle pålegg fra kommunen samt kostnader forbundet med dette.
Selger opplyser om at det er planlagt oppføring av felles dobbelgarasje i bakgården med naboeiendommen (Prins Oscars gate 6), det er i denne forbindelse støpt plate med klargjorte rørføringer. Det er sendt inn melding om oppføring av garasje til kommunen i mai 2025, utfallet av søknaden vites ikke. I tillegg foreligger det tegninger for garasjen. Kjøper overtar ansvar samt kostnader for videre søknadsprosess for tiltaket og kostnader ifbm. oppføring av garasjen, med forbehold om at tiltaket godkjennes. Det er tinglyst en skriftlig avtale på eiendommen, ifbm. kostnader til søknad, vedlikehold m.m.
Kjøper overtar eiendommen slik den framstår på visning.
Tinglyste heftelser og rettigheter
Eiendommen overdras fri for pengeheftelser.
Dagboknummer: 23517
Tinglysningsdato: 23.12.2003
Servitutten omhandler: Denne eiendommen og naboeiendommen (gnr. 113/bnr. 472, Prins Oscars gate 6) har felles adkomst fra Prins Oscars gate. Adkomsten ligger med ca. en halvdel på hver eiendom. Rettighetshaver gnr. 113/bnr. 472 og rettigheten hefter i gnr. 113/bnr. 472.
Dagboknummer: 648967
Tinglysningsdato: 10.06.2025
Servitutten omhandler: Planlagt bygging av en dobbelgarasje med Prins Oscars gate 6, som vil bli plassert med en ideell halvpart på begge eiendommene. Kostnadene ved søknad til kommunen vil bli delt med en halvpart mellom partene. Eier av Prins Oscars gate 6 dekker alle kostnadene ifbm. innkjøp av betong og materialer til dekke på garasjen. Fremtidig vedlikehold/utbedringer skal dekkes med sin ideelle halvpart av begge eiendommene.
Servituttene vil følge eiendommen. Kjøpers bank vil få pant etter ovennevnte heftelser og servitutter som ikke skal slettes ved overdragelse.
Eventuell adgang til utleie
Eiendommen kan leies ut.
Leiligheten i loftetasjen er utleid i dag for kr 15.000,- per måned.
Leieforholdet er per dags dato ikke sagt opp. Leieforholdet har en gjensidig oppsigelsestid på 3 måneder (regnet fra den 1. i påfølgende måned).
Næringslokalet i 1. etasje er ikke utleid, disponeres i dag av selger.
Det gjøres oppmerksom på at ved dette salget er det ikke utregnet leieinntekt for eiendommen.
Diverse
Selger har ikke bebodd eiendommen og har derfor ikke kunnskap om eiendommens tilstand.
Tilbud av produkter og tjenester fra våre samarbeidspartnere
VI er opptatt av verdiskapning, og har knyttet til oss samarbeidspartnere som skal sikre våre kunder de beste produkter og tjenester;
• Gjensidige leverer boligselgerforsikring og tilbyr bygningsforsikring
• Boligkjøperforsikring leveres av Hiscox og med Sedgwick som skadebehandler, og er formidlet gjennom Gjensidige.
• BN bank tilbyr finansieringsløsninger
• Vår avdeling Krogsveen Pluss tilbyr flyttetjenester som utvask, visningsvask, lager, tømming og transport av flyttelass, i tillegg til å formidle kontakt med Flip for overflateoppussing.
• I forbindelse med overtagelse av eiendommen tilbyr Overo avtale om strøm, alarm og bredbånd.
• Krogsveen er, sammen med øvrige bransjeaktører, medeier i den digitale annonseringsplattformen Hjem.
Energimerking
Komplett energiattest inkludert oppvarmingskarakter fås ved henvendelse til megler eller lastes ned fra www.krogsveen.no.
Beliggenhet og tomteforhold
Beliggenhet og tomteforhold
Beliggenhet
Eiendommen består av kombinert bolig og næring, fordelt på én bygning. God hjørneplassering av bygningen mtp. profilering ut mot Engene og Prins Oscars gate. Sentralt beliggende i et område som har mye å tilby og et rikt tilbud av service- og underholdningstilbud. CC Drammen kjøpesenter ligger innen kort gangavstand fra eiendommen, i tillegg til Torget Vest og Magasinet i nærheten. Gågatene i byen kan friste med et stort utvalg av sentrumsfasiliteter som caféer, dagligvareforretninger, restauranter, nisjébutikker m.m., i tillegg er det kino, minigolf, skøytebane (vinterstid) og teater. Kort vei til strandpromenaden langs Drammenselva, som er pent opparbeidet med grøntområder, lekeplasser, volleyballbane og badeplass. Det blir også kort vei til den nye Fjordbyen med et urbant sjøliv og helseparken med nytt sykehus.
Nærområdet forventes løftet i forbindelse med igangsettelse av utviklingsprosjekt i nabokvartalet, nedenfor eiendommen. Her planlegges tomten omdisponert fra næring til et prosjekt med ca. 80 boliger og noe forretning.
Drammen har en rekke fritids- og sportstilbud. Drammen Strong og Drammen Ballklubb er idrettslag i nærmiljøet med diverse tilbud. Ytterligere tilbud og anlegg på Marienlyst med kunstis og kunstgressbane, Drammensbadet, Marienlyst stadion, Turnhallen, etc.. Drammen slalåmklubb i Haukåsløypa slalåmbakke med egentrening og kurstilbud. Kort vei til flotte turmuligheter samt rekreasjonsområder i Bragernesåsen med lysløype, Drammensmarka og Elveparken.
Meget godt kollektivtilbud i form av buss, umiddelbar nærhet til bussholdeplass, se www.brakar.no for rutetider. Kun ca. 10 minutters gange til Brakerøya togstasjon og nærhet til Drammen togstasjon, gode togforbindelser mot Kongsberg, Oslo og Sandefjord, tidsmessig tar det ca. 30 minutter til Oslo, se www.vy.no for avganger. Det gjøres oppmerksom på at regjeringen har signalisert en nedleggelse av Flytoget (uvisst om eksakt tidspunkt), hvor Vy vil overta trafikken på strekningene.
Adkomst
Det vil bli skiltet med Krogsveen visningsskilt ved fellesvisninger. Se kart i nettannonse eller Google Maps for nærmere veibeskrivelse. Velkommen til visning!
Barnehager, skoler og fritid
Godt sammensatt tilbud av private og offentlige barnehager.
Barnehager: Bragernes Strand barnehage (0,4 km), Brannposten barnehage (0,7 km), Fjellheim velkomstbarnehage (0,8 km).
Skoler: Bragernes barneskole (0,4 km) og Børresen ungdomsskole (1, 9km).
Drammen kommune har tre private barne- og ungdomsskoler, Drammen Realfagsskole Heltberg, Norlights Montessoriskole Drammen og Rosendal skole (Mjøndalen).
Det ligger flere videregående skoler i Drammen og Lier, samt Universitetet i Sørøst-Norge som har campus på Papirbredden i Drammen, for mer informasjon se www.usn.no.
Dersom skole- og barnehagetilbud er av betydning for kjøpet, ber vi om at det rettes en særskilt henvendelse til kommunen for oppdatert informasjon.
Beskrivelse av tomt
Eiertomt på 258 kvm. Gruset innkjørsel og delvis støpt dekke på gårdsplass.
Det opplyses om at innkjørselen og gårdsplassen deles med naboeiendommen (Prins Oscars gate 6) iht. tinglyst servitutt.
Parkering
Parkering i gruset og delvis støpt bakgård.
Parkeringsområdet deles med naboeiendommen (Prins Oscars gate 6) iht. tinglyst servitutt.
Det planlegges oppføring av en felles dobbelgarasje med naboeiendommen (Prins Oscars gate 6). Se mer informasjon om punkt under ferdigattest.
Vei, vann og avløp
Eiendommen har adkomst via kommunal vei.
Eiendommen er tilknyttet kommunalt ledningsnett via private stikkledninger. Eier er selv ansvarlig for private stikkledninger til boligen.
Regulerings-og arealplaner
Eiendommen ligger i et uregulert område men er avsatt til bevaring av kulturmiljø og kombinert bebyggelse samt anleggsformål med krav til miljøkvalitet, estetikk, natur, landskap og grønnstruktur ved kommuneplanens arealdel for Drammen kommune 2025-2037 datert 18.06.2025. Eiendommen omfattes i tillegg av Kommunedelplan sentrum datert 30.05.2006 med tilhørende bestemmelser. Utsnitt av planer med tilhørende bestemmelser kan fås ved henvendelse til megler.
I henhold til kommuneplanen er en liten del av eiendommen (nordvestrehjørne av tomten) innenfor et område med flomfare. Dette kan legge begrensninger for evt. utbygging, påbygg/tilbygg og andre terrenginngrep som på et generelt grunnlag er tillatt ifølge kommuneplanen. Konferer med megler dersom dette er aktuelt.
Eiendommen er beliggende innenfor et område med et kulturmiljø av høy verneverdi. Kulturmiljø er områder hvor kulturminner inngår som del av en større helhet eller sammenheng.
Bygningen på eiendommen er et lokalt registrert kulturminne av middels bevaringsverdiklasse C. Verneklasse C (middels verneverdi) er kulturminner som hver for seg ikke er spesielt interessante eller verdifulle, men som er viktige for å helheten i verneverdig miljø selv om de er ombygde. Dette kan medføre begrensninger eller/og retningslinjer for byggtekniske endringer av boligen fra kommunen eller fylket.
Eiendommen er SEFRAK-registrert, gjeldende bygning på eiendommen er et ikke-meldepliktig bygg. SEFRAK-registrerte bygninger gjelder bygg (i hovedsak eldre enn år 1900) som er registrert som kulturminne i det såkalte SEFRAK-registeret, men som ikke er fredet etter Kulturminnelova.
Det er etter info fra Drammen kommune registrert en vedtatt detaljreguleringsplan i nærområdet av eiendommen, dette gjelder Detaljregulering for kvartalet Prins Oscars gate, Nedre Storgate, Omstedgata og Tomtegata datert 12.12.2022. Hovedformålet med planen er å legge til rette for ca. 80 nye boliger og delvis forretning i første etasje. Salgsstart for prosjektet var andre kvartal i 2025, med estimert innflytting i 2027. Se https://www.oxer.no/prosjekt/farveriet/ for mer informasjon. Det må påregnes støy o.l. fra byggeprosjektet under utbyggingen.
Økonomi
Økonomi
Kommunale utgifter
Kommunale avgifter (vann og avløp): kr 5.161,- pr. år (3 terminer), årsprognose på eiendommen for både bolig- og næringsdelen i 2025. Avgiften tilsvarer et lavt forbruk ifht. hva man kan forvente, det må påregnes en høyere kostnad ved bruk av bolig-/næringsdelen.
Renovasjonskostnader: kr 4.930,- pr. år (2 terminer). Type renovasjonsordning: Standard renovasjon, 2025.
Det opplyses om at Drammen kommune har varslet om en vesentlig fremtidig økning av kommunale avgifter.
Selger har ikke bebodd boligdelen og har således ikke kjennskap til eller opplyst om øvrige løpende utgifter for bygningen.
Det må påregnes kostnader til strøm inkl. nettleie, bygningsforsikring, innboforsikring og evt. tv/internett.
Ovenstående er basert på nåværende eier/husstands senere års forbruk/utgifter. Dette vil variere avhengig av antall beboere, ønsket innetemperatur, egne fordelsavtaler, kanalvalg, hastighet på bredbånd m.m.
Formuesverdi
Hvis næringsarealet utgjør 50 prosent eller mer av eiendommens areal, verdsettes hele eiendommen etter reglene for næringseiendommer. Med hele eiendommen menes areal både til bolig- og næringsformål.
Utgjør boligarealet mer enn halvparten av eiendommens areal, verdsettes hele eiendommen etter reglene for bolig. Eventuelt P-rom i næringsdelen skal føres opp som P-rom på boligen.
Butikk, frisørsalong, hjemmekontor og annet kontorareal, er rom som typisk er egnet til varig opphold, og vil derfor falle inn under definisjonen for P-rom. Areal som utelukkende brukes som lager eller lignende, vil derimot normalt anses som sekundærrom og skal ikke tas med i formuesberegning.
Formuesverdien av næringseiendom skal for inntektsåret 2024 som hovedregel fastsettes til 80 prosent av beregnet utleieverdi. Dette gjelder uavhengig av om eiendommen er utleid eller ikke.
Se skatteetaten.no for mer informasjon om fastsettelse av formuesverdien.
Omkostninger
7 490 000,00 Prisantydning
Omkostninger
187 250,00 Dokumentavgift til staten (2,5% av kjøpesum)
19 900,00 Gjensidige Boligkjøperpakke (valgfri)
545,00 Tinglysing panterettsdokument
545,00 Tinglysing skjøte
--------------------------------------------------------
208 240,00 Omkostninger totalt
--------------------------------------------------------
7 698 240,00 Totalpris inkl. omkostninger
--------------------------------------------------------
Boligselgerforsikring omfatter kun den delen av bygningen/eiendommen som er regulert til boligformål.
Totalpris inkl. omkostninger forutsetter kjøp til prisantydning.
Det tas forbehold om endringer i avgifter og gebyrer.
Tilbud om lånefinansiering
Megler formidler gjerne kontakt med rådgiver hos vår samarbeidspartner BN Bank. De har konkurransedyktige betingelser samt rask og løsningsorientert behandling av din lånesøknad. Krogsveen mottar et honorar for denne formidlingen.
Betalingsbetingelser
Kjøpesum inkludert omkostninger, samt pantedokument tilknyttet eventuelt lån, skal være disponibelt hos megler 2 virkedager før overtagelsen.
Annen viktig informasjon
Annen viktig informasjon
Eier
Nouriddine Ben Ali Riahi
Overtakelse
Etter nærmere avtale.
Boligselgerforsikring
Selger har i forbindelse med salget tegnet Boligselgerforsikring levert av Gjensidige.
Boligselgerforsikringen dekker selgers ansvar etter avhendingsloven begrenset oppad til kr 14 millioner. Dersom kjøper oppdager forhold ved eiendommen som man mener utgjør en mangel ved eiendommen, vil Gjensidige behandle reklamasjonen på vegne av selger. Forsikringsvilkårene kan fås ved henvendelse til megler.
Boligselgerforsikring omfatter kun den delen av bygningen/eiendommen som er regulert til boligformål.
Vedlagt salgsoppgaven følger selgers egenerklæringsskjema og tilstandsrapport. Interessenter må sette seg inn i dokumentene før bud inngis.
Boligkjøperforsikring
Innen kontraktsmøtet må kjøper ta stilling til om det ønskes å bestille Boligkjøperpakken gjennom Gjensidige. I denne gunstige pakken er boligen ferdig forsikret og inkluderer rettshjelpsforsikring, også kalt Boligkjøperforsikring. Rettshjelpsforsikring gir trygghet og tilgang på profesjonell juridisk hjelp dersom det oppdages uventede feil eller mangler det første året etter overtagelse. Forsikringsselskapet behandler i så fall ethvert mangelskrav kjøper måtte ha overfor selger.
Boligkjøperpakken inkluderer bygningsforsikring for hus og hytte, innboforsikring, flytteforsikring og dobbel rentedekning - i situasjoner hvor kjøper ikke får solgt nåværende primærbolig.
Kjøper mottar ingen særskilt faktura for Boligkjøperpakken da kostnaden det første året legges til kjøpesummen for boligen. Det gjøres oppmerksom på Krogsveen mottar et honorar for denne formidlingen.
Produktark for Boligkjøperpakken ligger vedlagt i salgsoppgaven.
Dersom ikke boligkjøperpakke ønskes kan kun rettshjelpsforsikring, også kalt boligkjøperforsikring, tegnes særskilt via megler. Rettshjelpsforsikringen varer i 5 år fra overtagelse og leveres gjennom Gjensidige. Ta kontakt med megler for ytterligere informasjon.
Selskap og privatpersoner som driver med kjøp/salg/utvikling som ledd i egen næringsvirksomhet kan ikke tegne boligkjøperpakke eller rettshjelpsforsikring.
NB! Boligkjøperforsikring omfatter kun den delen av bygningen/eiendommen som er regulert til boligformål.
Budgivning
Forbrukerinformasjon om budgivning er vedlagt denne salgsoppgaven og er også på vår hjemmeside Krogsveen.no. Alle bud og budforhøyelser må inngis skriftlig. I tillegg må legitimasjon være fremlagt sammen med signatur fra budgiver.
Vi oppfordrer til å gi bud elektronisk via GI BUD-knappen på eiendommens hjemmeside på Krogsveen.no. Da vil samtlige vilkår bli oppfylt.
Eventuelle forhøyelser eller endringer av budet kan bekreftes pr SMS eller på e-post. Vi oppfordrer alltid til å kontakte megler pr. telefon i tillegg da forsinkelser i SMS og e-post kan forekomme.
For at budene skal kunne bli behandlet og videreformidlet skriftlig til alle involverte parter, må alle bud ha en tilstrekkelig lang akseptfrist, jf. eiendomsmeglingsforskriften § 6-3.
Selger må også skriftlig akseptere budet før aksept kan formidles til budgiver. Akseptfrist bør derfor være på minimum 30 minutter, og budforhøyelser må derfor skje i god tid før fristens utløp.
Bud i forbrukerforhold kan uansett ikke settes med kortere frist enn kl. 12.00 første virkedag etter siste annonserte visning. I tillegg kan ikke budet ha forbehold om at det skal holdes hemmelig ovenfor øvrige interessenter. Megler har iht lov om eiendomsmegling ikke anledning til å videreformidle disse budene, og de vil dermed heller ikke bli journalført.
Etter at eiendommen er solgt vil kjøper og selger få tilsendt budjournal. Øvrige budgivere kan få utlevert kopi av budjournalen i anonymisert form.
Hvitvaskingsreglene
I henhold til lov om hvitvasking og terrorfinansiering har megler plikt til å gjennomføre kontrolltiltak overfor kunder, herunder fullmektiger. Dette innebærer bl.a. å bekrefte kunders og reelle rettighetshaveres identitet på bakgrunn av fremvist gyldig legitimasjon eller på annen godkjent måte, samt å innhente opplysninger om kundeforholdets formål og tilsiktede art.
Dersom slike kundetiltak ikke kan gjennomføres, kan megler ikke etablere kundeforholdet eller utføre transaksjonen.
Hvis kjøper ikke bidrar til gjennomføring av kundekontrollen og dette fører til at transaksjonen blir forsinket eller ikke kan gjennomføres, vil dette ansees som mislighold av avtalen og gi selger rettigheter etter avhendingslova kapittel 5. I tilfeller der selger ikke bidrar til gjennomføring av løpende kundekontroll underveis i oppdraget, er det selger som misligholder sine forpliktelser etter avtalen og gi kjøper rettigheter etter avhendingslovens kapittel 4. Partene er selv ansvarlige for eventuelle kostnader og ansvar dette kan medføre. Eiendomsmegleren eller eiendomsmeglingsforetaket kan ikke holdes ansvarlig for de konsekvenser dette vil kunne få for partene eller andre som har interesser i eiendomshandelen.
Kjøper oppfordres til å innbetale kjøpesummen som ikke kommer fra låneinstitusjon i én samlet innbetaling fra egen konto i norsk bank. Megler har plikt til å melde fra til Økokrim om eiendomshandler som fremstår som mistenkelige. Melding sendes Økokrim uten at partene varsles.
Personopplysningsloven
I henhold til personopplysningsloven gjør vi oppmerksom på at interessenter kan bli registrert for videre oppfølging.
Lovanvendelse
Generelle bestemmelser
Salgsoppgaven er basert på de opplysningene selger har gitt til megler, den bygningssakyndiges tilstandsrapport, samt opplysninger innhentet fra kommunen, Kartverket og andre tilgjengelige kilder. Det er viktig at kjøper setter seg grundig inn i alle salgsdokumentene, herunder salgsoppgave, tilstandsrapport og selgers egenerklæring. Kjøper anses kjent med forhold som er tydelig beskrevet i salgsdokumentene, og slike forhold kan ikke påberopes som mangler. Dette gjelder uavhengig av om kjøper har lest dokumentene. Alle interessenter oppfordres til å undersøke eiendommen nøye, gjerne sammen med fagkyndig før bud inngis. Kjøper som velger å kjøpe usett kan ikke gjøre gjeldende som mangel noe han burde blitt kjent med ved undersøkelsen.
Dersom det er behov for avklaringer, anbefaler vi at interessenter rådfører seg med eiendomsmegler eller egne rådgivere før det legges inn bud.
En bolig som har blitt brukt i en viss tid, har vanligvis blitt utsatt for slitasje og skader kan ha oppstått. Slik bruksslitasje må kjøper regne med, og det kan avdekkes enkelte forhold etter overtakelse som nødvendiggjør utbedringer. Normal slitasje og skader som nødvendiggjør utbedring, er innenfor hva kjøper må forvente og vil ikke utgjøre en mangel.
Kjøper og selgers rettigheter og plikter reguleres av avtalen mellom partene, samt informasjonen som har vært tilgjengelig for kjøperen i forbindelse med handelen. Avtalen utfylles av avhendingsloven, og det gjelder ulike avtalevilkår avhengig av om kjøper er forbrukerkjøper eller ikke. Dette er nærmere beskrevet nedenfor.
På grunn av ulike avtalevilkår kan selger vurdere bud fra en som ikke er forbruker, ulikt fra en forbrukers bud. Dersom kjøper ikke er forbruker, er selger sitt mulige mangelsansvar begrenset fordi eiendommen selges "som den er". Selger kan ikke ta «som den er»- forbehold overfor en forbrukerkjøper. Selv et lavere bud fra en som ikke er forbruker kan foretrekkes fordi begrensningen i mulig mangelsansvar kan ha egenverdi for selger. Selger står fritt til å forkaste eller akseptere ethvert bud, og er for eksempel ikke forpliktet til å akseptere høyeste bud.
Budgiver skal i budskjema avgi egenerklæring om budgiver er forbruker eller næringsdrivende/ person som hovedsakelig handler som ledd i næringsvirksomhet. Budgivere får informasjon dersom andre bud er inngitt av en som ikke er forbruker.
Forbrukerkjøp - definisjon
Med forbrukerkjøp menes kjøp av eiendom når kjøperen er en fysisk person som ikke hovedsakelig handler som ledd i næringsvirksomhet.
Forbruker – avtalevilkår
Eiendommen har en mangel dersom den ikke er i samsvar med kravene som følger av avtalen, eller det foreligger brudd på bestemmelsene i avhendingsloven §§ 3-2 til 3-8. Hvis eiendommen ikke er i samsvar med det kjøperen må kunne forvente ut ifra alder, type og synlig tilstand, kan det være grunnlag for mangelskrav. Det samme gjelder hvis det er holdt tilbake eller gitt uriktige opplysninger om eiendommen. Dette gjelder likevel bare dersom man kan gå ut ifra at det virket inn på avtalen at opplysningen ikke ble gitt eller at mangelskravet ikke blir rettet i tide på en tydelig måte.
Boligen kan ha en mangel etter avhendingsloven § 3-3 andre ledd, dersom det er avvik mellom opplyst og faktisk innvendig areal, forutsatt at avviket er på 2% eller mer og minimum 1 kvm.
Ved beregning av et eventuelt prisavslag eller erstatning må kjøper selv dekke tap/kostnader opptil et beløp på kr 10 000 (egenandel).
Ikke-forbruker (næringsdrivende) – definisjon
Hvis kjøper er en juridisk person, eller en fysisk person som hovedsakelig handler som ledd i næringsvirksomhet, vil kjøpet ikke anses som et forbrukerkjøp.
Ikke-forbruker – avtalevilkår
Eiendommen har en mangel dersom den ikke er i samsvar med kravene som følger av avtalen.
Eiendommen selges «som den er», og selgers ansvar utover det konkret avtalte er da begrenset etter avhendingsloven § 3-9, første ledd andre setning.
Avhendingsloven § 3-3 andre ledd fravikes, og hvorvidt boligens arealsvikt utgjør en mangel vurderes etter avhendingsloven § 3-8.
Informasjon om kjøpers undersøkelsesplikt, herunder oppfordringen om å undersøke eiendommen nøye, gjelder også for kjøpere som ikke anses som forbrukere.
Det forutsettes at hjemmel overføres til kjøper. Hvis kjøper ikke ønsker hjemmelsoverføring av eiendommen, må det tas forbehold om dette i budet.
Meglers vederlag
Meglers vederlag betales av selger og er avtalt til:
Vederlag: 1,00 % av salgssummen
Minimumsprovisjon er kr 60 000,00
Vederlag
Kontroll av hjemmel og heftelser kr 2 900,00
Markedsføringspakke kr 27 400,00
Oppgjør kr 7 500,00
Tilrettelegging kr 17 000,00
Visninger pr. stk. (gjelder fellesvisninger eller privatvisninger etter kl16/helgedag) kr 3 000,00
Utlegg
Innhenting av off. oppl. Drammen kommune inkl. tegninger og RFD kr 2 833,00
Tinglysing sikring kr 545,00
Andre utgifter
Boligfotografering kr 6 000,00
Tilstandsrapport fra Anticimex kr 15 000,00
Opplysninger om oppdraget
Oppdragsnummer 20-0296/25
Eiendomsmegler Krogsveen AS, avd. Drammen
Nedre Storgate 16, 3015, DRAMMEN
950 007 613
Oppdragets KR-kode KR20.25296
Dato
Sist oppdatert: 20. januar 2026 kl. 14:32
Dokumenter
Dokumenter
PDF – 946 KB
PDF – 518 KB
PDF – 746 KB
PDF – 435 KB
PDF – 201 KB
PDF – 610 KB
PDF – 312 KB
PDF – 29 KB
PDF – 127 KB
PDF – 392 KB
Område
Legg til steder som er viktige for deg
Visning
Husk å lese salgsoppgaven før påmelding, så du stiller forberedt. Visning holdes etter avtale. For å delta på visning, ber vi om at du melder deg på.
Ønsker du kun å bli holdt orientert, kan du fra eiendommens hjemmeside få varsel om solgtpris, eller kontakte megler.
Lurer du på noe?
Unngå doble boligrenter
Vi tilbyr gunstig forsikring.
Vurderer du utleie?
Få et tilbud fra Utleie KrogsveenHva koster lånet?
Sjekk estimert lånekostnadVil du varsles om lignende boliger?
Ved å lagre ditt boligsøk hos oss får du beskjed når vi har en bolig som ligner denne, før den legges ut på markedet!

