Svensenga 46
10 500 000 kr
125 m²
3 soverom
Solgt

Presenteres av
Hanne PettersenSvensenga v/marka
SKAP DIN DRØMMEBOLIG! Sjelden mulighet innerst i blindvei - Moderniseringsbehov - Idyllisk - Familievennlig småhusområde
Prisantydning
10 500 000 krAndel fellesgjeld
38 333 krOmkostninger
284 440 krTotalpris
10 822 773 kr
Pris
Bruksareal
125 m²BRA-I (internt bruksareal)
125 m²TBA (terrasse-balkongareal)
35 m²
Areal
Byggeår
1984Soverom
3 soveromBad
1 badType
RekkehusEierform
EierseksjonFasiliteter
Garasje/P-plass og Balkong/TerrasseFellesutgifter
2 057 krEnergimerke
Rød E
Nøkkelinfo
Unngå doble boligrenter
Vi tilbyr gunstig forsikring.
Vurderer du utleie?
Få et tilbud fra Utleie KrogsveenHva koster lånet?
Sjekk estimert lånekostnadBeskrivelse
Kort om eiendommen
Drømmer du om å skape din egen boligdrøm? Her kan du gjøre akkurat det!
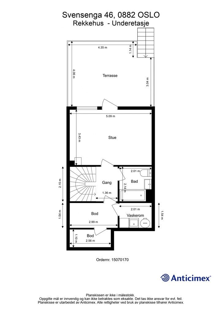
Romslig rekkehus fra 1984 over tre plan med 3 soverom, 2 stuer, kjøkken, vaskerom, baderom og wc samt 2 boder.
Her bor man barnevennlig og lettvint til i et veletablert rekkehusområde i populære Svensenga, et trygt sted å vokse opp for barn, med bilfrie fellesområder og lekeplasser. Her er det hyggelige tradisjoner som bla felles julegrantenning og 17. mailunsj.
Bo i et rolig, etablert rekkehusområde med hyggelig naboskap!
Oppussingsobjekt med enormt potensiale
Eiertomt på hele 150 kvm som byr på god plass til store og små, for ikke å glemme god plass til trampoline!
Boligen for deg som ønsker deg mye boltreplass, både inne og ute for både to- og firbente
Lukket garasje med elbillader
3 terrasser
Område
Legg til steder som er viktige for deg
På flyttefot? Tenk kjøp og salg samtidig.
Få din egen rådgiver gjennom hele kjøps- og salgsprosessen. Det starter med en verdivurdering.
Unngå doble boligrenter
Vi tilbyr gunstig forsikring.
Vurderer du utleie?
Få et tilbud fra Utleie KrogsveenHva koster lånet?
Sjekk estimert lånekostnadVil du varsles om lignende boliger?
Ved å lagre ditt boligsøk hos oss får du beskjed når vi har en bolig som ligner denne, før den legges ut på markedet!
På flyttefot? Slik gjør vi det enklere for deg
Skreddersydd flyttepakke
Vi fikser håndverkere, vask, pakking, lagring og transport, og legger ut for utgiftene underveis.
Hjelp med både kjøp og salg
Hos oss har du din egen rådgiver gjennom hele kjøps- og salgsprosessen.
Hjelp til finansiering
Vårt samarbeid med BN Bank sikrer deg rask og løsningsorientert hjelp, til konkurransedyktige betingelser.

