Tørreidveien 17
4 750 000 kr
89 m²
4 soverom
Komplett salgsoppgave
Bamble-Sekkekilen
Trivsel på toppen - usjenert, solrikt og med utsikt
Prisantydning
4 750 000 krOmkostninger
139 740 krTotalpris
4 889 740 kr
Pris
Bruksareal
119 m²BRA-I (internt bruksareal)
89 m²BRA-E (eksternt bruksareal)
30 m²TBA (terrasse-balkongareal)
82 m²
Areal
Byggeår
1998Soverom
4 soveromBad
1 badTomteareal
780 m² (eiet)Type
Fritidseiendom ved sjøenEierform
EietEnergimerke
Rød D
Nøkkelinfo
Vurderer du utleie?
Få et tilbud fra Utleie KrogsveenHva koster lånet?
Sjekk estimert lånekostnadBeskrivelse
Kort om eiendommen
Innhold og byggemåte
Innhold og byggemåte
Eiendommen
Tørreidveien 17, 3967 STATHELLE
Kommunenummer 4012, gårdsnummer 85, bruksnummer 370, ideell andel 1/1
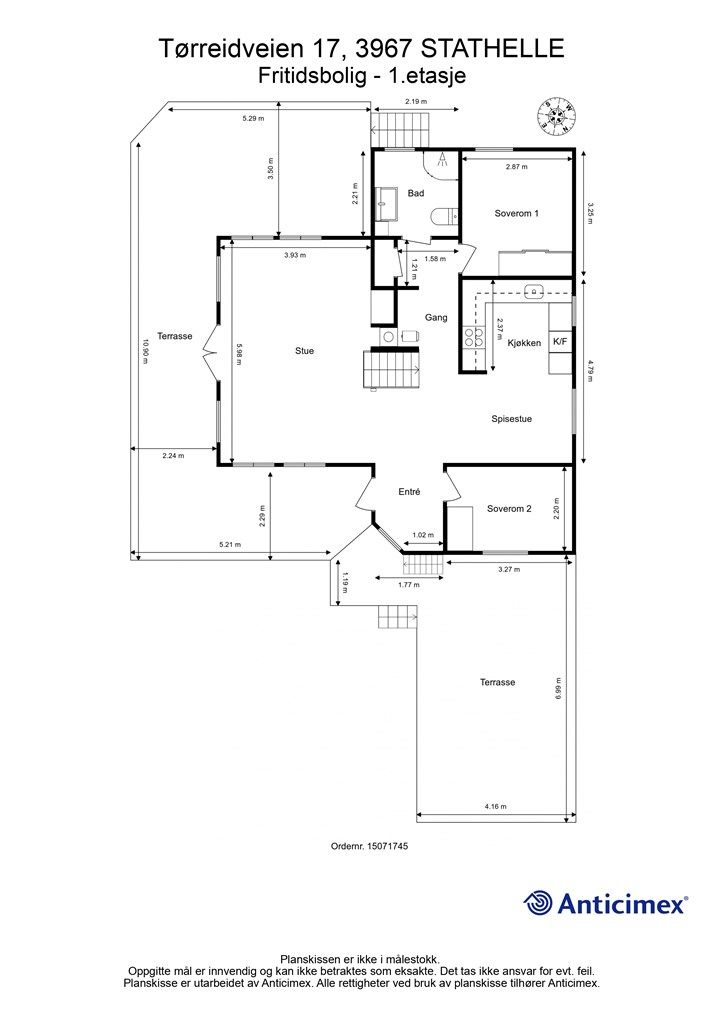
Innhold
Totalt bruksareal BRA: 119 kvm
BRA-i:
1. etasje 79 kvm: Entré, gang, stue, kjøkken, spisestue, bad og to soverom.
2. etasje 10 kvm: Gang og to soverom.
BRA-e:
Kjeller: 30 kvm: Hobbyrom og teknisk rom.
Terrasseareal: 82 kvm
2. etasje har et totalt gulvareal (GUA) på 43 kvm, men grunnet skråtak/lav takhøyde er kun 10 kvm av arealet måleverdig som bruksareal. De delene
av arealene som har lav himlingshøyde (ALH) utgjør 33 kvm. Arealet i bod med utvendig adkomst måles til 17 kvm (ALH), men grunnet lav takhøyde er ingen deler av arealet måleverdig som bruksareal.
Vedlagte plantegninger er ikke målbare. De oppgitte arealer er hentet fra rapport med befaringsdato 21.05.2025 utført av Anticimex Sandefjord AS.
Byggemåte
Selger har fått utarbeidet en tilstandsrapport, dvs. en teknisk gjennomgang av boligen hvor eventuelle avvik, risiko for kjøper og prisoverslag for hva som bør gjøres av oppgradering, er skissert. Se særskilt TGIU (tilstandsgrad ikke undersøkt), samt TG2 og evt. TG3 som viser hva som er boligens normale slitasje, alder og type, hva som er avvik fra dette og hva som bør/må utbedres. Rapporten og selgers egenerklæring er en del av salgsoppgaven og må leses nøye før bud inngis. Kjøper overtar ansvaret for de opplysninger som fremkommer av salgsdokumentasjonen, og kan ikke gjøre gjeldende som mangel noe som burde vært kjent eller som ikke kan anses å ha betydning for avtalen.
Hytta er bygget i 1998 og er iht. til tilstandsrapport oppført på støpt betong mot grunn. Grunnmur i betong- og lettklinkerkonstruksjon. Yttervegger, etasjeskiller og tak i trekonstruksjoner. Fasader med liggende trekledning. Saltak tekket med betongtakstein. Vinduer og terrassedører med to-lags glass. Ytterdør i sandwichkonstruksjon
med glassfelt.
Les forøvrig mer om byggemåte og den tekniske tilstanden i rapporten.
Det gjøres spesielt oppmerksom på:
Bad fra byggeår har fått TG2 på grunn av alder. Det er ikke forhøyede fuktverdier ved hulltagning.
Det er observert fuktmerker/saltutslag på vegger i kjeller.
Det er registrert bomlyd (løse fliser) på vaskerom/teknisk rom.
Fuktproblematikk i krypkjeller. Ventilering av krypkjeller er vurdert til å være mangelfull. Anbefales utbedret.
Varmtvannsbereder har TG2 på grunn av alder.
Det har ikke vært el-tilsyn de siste 5 år. Det anbefales derfor på generelt grunnlag at el-anlegget sjekkes av fagperson.
Aldersslitasje på kledning. Det er ikke montert musesperre i ytterhjørner.
Taktekking har TG2 på grunn av alder.
Det er ikke etablert snøfangerutstyr på taket.
Avskalling av puss på grunnmur. Kan skyldes fukt ved kapillært oppsug og dette bør holdes under oppsyn.
Drenering er nedgravd og skjult, vurdering er TG2 ut fra alder. Grunnmur mangler fuktsperre.
Takvann og avløpsvann er samlet og det bør påregnes og separere de to.
TGIU (ikke undersøkt):
Gjennomføring tilknyttet avtrekksvifte på kjøkken er ikke undersøkt grunnet manglende tilkomst.
Evt. stakeluke er ikke lokalisert.
Takgjennomføringer og skorstein er ikke undersøkt.
Se supplerende tekst i tilstandsrapporten om ovennevnte forhold og andre elementer ved hytta. Kjøper overtar ansvar og risiko for dette.
Standard
Hytta er velbygget med god planløsning og påkostede detaljer. Gulv har belegg for enkelt vedlikehold, for øvrig flis på baderom og i kjeller. Teppe på ett soverom. Kjøkken med åpen løsning mot stua har innredning med profilerte fronter og integrert komfyr koketopp. Oppvaskmaskin og kjøleskap medfølger også. Det gjøres oppmerksom på at hvitevarene er kjøpt for noen år tilbake, og kjøper må forvente slitasje som følge alder og normal bruk. Badet er utstyrt med wc, dusjhjørne og servant i seksjon med overskap og speil.
Løsøre og tilbehør
Vi viser til liste fra Norges Eiendomsmeglerforbund som gjelder fra 01.01.2020 angående løsøre og tilbehør.
Oppvarming
Peis med innsats i stua og vedovn i gangen. Ellers elekstrisk oppvarming. Dersom beboelsesrom ikke har vegg- eller fastmonterte varmekilder ved visning, følger dette heller ikke med.
Ferdigattest/brukstillatelse
Det foreligger ferdigattest på fritidsboligen, datert 12.02.2003. Denne kan fås ved henvendelse til megler.
Ferdigattesten omfatter ikke terrasse på nordøstsiden av hytta. Det vites ikke om denne er omsøkt til kommunen. Terrasse mot sør er dratt litt lenger ut fra hytteveggen enn hva bygningstegninger viser. I ytterste konsekvens kan kommunen kreve tilbakeføring av ikke omsøkte tiltak.
Kjøper overtar alt ansvar, kostnad og risiko for dette videre.
Tinglyste heftelser og rettigheter
Eiendommen overdras fri for pengeheftelser.
Det er ingen tinglyste servitutter på eiendommen.
Eiendommen har tinglyst rett til båtplass, brønnvann og veirett. Rettigheten er tinglyst på gnr. 85, bnr. 5, 455, 481, 482, 485, 486 og 487med dagboknr. 20729, tinglyst 16.12.2005.
Diverse
I skjøtet, tinglyst 16.12.2005 er det beskrevet en tilleggstomt som følger eiendommen. Tomten er på 616 kvm og ligger mellom tomta og veien.
Vi er opptatt av verdiskapning, og har knyttet til oss samarbeidspartnere som skal sikre våre kunder de beste produkter og tjenester;
• Gjensidige leverer boligselgerforsikring og tilbyr bygningsforsikring
• Boligkjøperforsikring leveres av Hiscox og med Sedgwick som skadebehandler, og er formidlet gjennom Gjensidige.
• BN bank tilbyr finansieringsløsninger
• Vår avdeling Krogsveen Pluss tilbyr flyttetjenester som utvask, visningsvask, lager, tømming og transport av flyttelass, i tillegg til å formidle kontakt med Flip for overflateoppussing.
• I forbindelse med overtagelse av eiendommen tilbyr Overo avtale om strøm, alarm og bredbånd.
• Krogsveen er, sammen med øvrige bransjeaktører, medeier i den digitale annonseringsplattformen Hjem.
Beliggenhet og tomteforhold
Beliggenhet og tomteforhold
Beliggenhet
Eiendommen ligger usjenert og solrikt til med noe utsikt mot fjorden og havet. Det er kort avstand til sjøen med båtplass i felles bryggeanlegg i havna nedenfor. Gangavstand til fine badeplasser like i nærheten og Sjøterrassen restaurant. Skjærgården i området er variert og vakker med Tonerleia på utsiden av Melbyfjorden, eller mer skjermet farvann inne i Trosbyfjorden. Korte båtturer til sommersteder som Valle, Kragerø og Langesund. Ytterst i havet ligger kjente øyer som Jomfruland og Stråholmen. Det er 4 km. til nærbutikk og gatekjøkken på Trosby. Ca. 3 km. til golfbane og 3 km. til Valle hvor det er restauranter, diverse butikker, dagligvarebutikk og et yrende liv sommerstid. Det er ca. 20 min. med bil til Stathelle hvor det bl.a. finnes stort kjøpesenter.
Adkomst
Ta av fra E-18 syd for Grenlandsbrua og følg gamle E-18 mot Valle. Ta av til Valle, ca. 2 km. etter Bamble kirke. Følg Valleveien ca. 8 km. Ta til venstre ved skilt merket Sjøterrassen/Fjordglimt. Følg Grunnsundveien med båthavna og sjøen på venstre side. Ta så Tørreidveien opp til høyre før Fjordglimt leirsted. Følg denne veien oppover og ta asfaltert bakke opp til høyre hvor hytte ligger på venstre side. Det vil bli skiltet med Krogsveen visningsskilt ved fellesvisninger
Beskrivelse av tomt
Eiet tomt på 779 kvm. Tomten består av en del naturtomt, men adkomst og parkeringsområde foran hytta er asfaltert. Terrassen strekker seg rundt hyttekroppen og vender mot syd øst og vest. Det er også en egen terrasse nedenfor med plass til langbord. Selger har også kjøpt en tilleggstomt på ca. 616 kvm.
Parkering
Parkering på egen tomt.
Vei, vann og avløp
Eiendommen har adkomst via privat vei med felles vedlikeholdsansvar.
Eiendommen er tilknyttet kommunalt ledningsnett via private stikkledninger. Eier er selv ansvarlig for private stikkledninger til boligen.
Regulerings-og arealplaner
Eiendommen ligger i et uregulert område, men er i kommuneplan datert 16.04.2024 (revidert) avsatt til: Landbruk, natur og friluftsområde, samt gårdstilknyttet næringsdrift.
Kommunens arealplan kan lastes ned på Bamble kommune sine nettsider.
Utsnitt av plan med tilhørende bestemmelser kan fås ved henvendelse til megler.
Økonomi
Økonomi
Kommunale utgifter
Kommunale avgifter er kr. 22.748,- for inneværende år. I dette inngår gebyr for vann, avløp, hytterenovasjon, eiendomsskatt og feiing/tilsyn.
Brannvesenet er pålagt å føre tilsyn med, og å feie pipeløp i alle fritidseiendommer. Det vil kunne medføre kostnader for kjøper til utbedring av evt. fremtidige pålegg og anmerkninger.
Nåværende eier har et strømforbruk som tilsvarer ca. 14 182 kwh pr. år.
Boligen har en årlig forsikringspremie på kr 4 492,-.
Veiavgift er kr 750,- pr. år som inkl. brøyting.
Boligen er tilknyttet parabolantenne for tv-signaler. Tv-tuner/dekoder medfølger ikke.
Boligen er tilknyttet Alarm service Kragerø, som koster ca kr 5 000,- pr. år. Kan medfølge om ønskelig.
Utgiftene er basert på nåværende eiers forbruk og avtaler.
Formuesverdi
Formuesverdi for 2024 var kr 550 000,- ifølge skatteetaten.
Formuesverdien justeres normalt årlig.
For mer informasjon se skatteetaten.no
Omkostninger
4 750 000,00 Prisantydning
Omkostninger
118 750,00 Dokumentavgift til staten (2,5% av kjøpesum)
545,00 Tinglysing panterettsdokument
545,00 Tinglysing skjøte
19 900,00 Tryg Boligkjøperpakke (valgfri)
--------------------------------------------------------
139 740,00 Omkostninger totalt
--------------------------------------------------------
4 889 740,00 Totalpris inkl. omkostninger
--------------------------------------------------------
Totalpris inkl. omkostninger forutsetter kjøp til prisantydning.
Det tas forbehold om endringer i avgifter og gebyrer.
Tilbud om lånefinansiering
Megler formidler gjerne kontakt med rådgiver hos vår samarbeidspartner BN Bank. De har konkurransedyktige betingelser samt rask og løsningsorientert behandling av din lånesøknad. Krogsveen mottar et honorar for denne formidlingen.
Betalingsbetingelser
Kjøpesum inkludert omkostninger, samt pantedokument tilknyttet eventuelt lån, skal være disponibelt hos megler 2 virkedager før overtagelsen.
Annen viktig informasjon
Annen viktig informasjon
Eier
Thorvald Mathisen og Odny Mathisen
Konsesjon
Eiendommen er ikke konsesjonspliktig, men det er boplikt i Bamble kommune. For at eiendommen skal kunne overskjøtes må kjøper signere på egenerklæring om konsesjonsfrihet om at boplikten ikke gjelder for denne eiendommen.
Overtakelse
Etter nærmere avtale.
Boligselgerforsikring
Selger har i forbindelse med salget tegnet boligselgerforsikring levert av Gjensidige.
Boligselgerforsikringen dekker selgers ansvar etter avhendingsloven begrenset oppad til kr 14 millioner. Dersom kjøper oppdager forhold ved eiendommen som hen mener utgjør en mangel ved eiendommen, vil Gjensidige behandle reklamasjonen på vegne av selger. Forsikringsvilkår kan fås ved henvendelse til megler.
Vedlagt salgsoppgaven følger selgers egenerklæringsskjema og tilstandsrapport. Interessenter må sette seg inn i dokumentene før bud inngis.
Boligkjøperforsikring
Innen kontraktsmøtet må kjøper ta stilling til om det ønskes å bestille Boligkjøperpakken gjennom Gjensidige. I denne gunstige pakken er boligen ferdig forsikret og inkluderer rettshjelpsforsikring, også kalt Boligkjøperforsikring. Rettshjelpsforsikring gir trygghet og tilgang på profesjonell juridisk hjelp dersom det oppdages uventede feil eller mangler det første året etter overtagelse. Forsikringsselskapet behandler i så fall ethvert mangelskrav kjøper måtte ha overfor selger.
Boligkjøperpakken inkluderer bygningsforsikring for hus og hytte, innboforsikring, flytteforsikring og dobbel rentedekning - i situasjoner hvor kjøper ikke får solgt nåværende primærbolig.
Kjøper mottar ingen særskilt faktura for Boligkjøperpakken da kostnaden det første året legges til kjøpesummen for boligen. Det gjøres oppmerksom på Krogsveen mottar et honorar for denne formidlingen.
Produktark for Boligkjøperpakken ligger vedlagt i salgsoppgaven.
Dersom ikke boligkjøperpakke ønskes kan kun rettshjelpsforsikring, også kalt boligkjøperforsikring, tegnes særskilt via megler. Rettshjelpsforsikringen varer i 5 år fra overtagelse og leveres gjennom Gjensidige. Ta kontakt med megler for ytterligere informasjon.
Selskap og privatpersoner som driver med kjøp/salg/utvikling som ledd i egen næringsvirksomhet kan ikke tegne boligkjøperpakke eller rettshjelpsforsikring.
Budgivning
Forbrukerinformasjon om budgivning er vedlagt denne salgsoppgaven og er også på vår hjemmeside Krogsveen.no. Alle bud og budforhøyelser må inngis skriftlig. I tillegg må legitimasjon være fremlagt sammen med signatur fra budgiver.
Vi oppfordrer til å gi bud elektronisk via GI BUD-knappen på eiendommens hjemmeside på Krogsveen.no. Da vil samtlige vilkår bli oppfylt.
Eventuelle forhøyelser eller endringer av budet kan bekreftes pr SMS eller på e-post. Vi oppfordrer alltid til å kontakte megler pr. telefon i tillegg da forsinkelser i SMS og e-post kan forekomme.
For at budene skal kunne bli behandlet og videreformidlet skriftlig til alle involverte parter, må alle bud ha en tilstrekkelig lang akseptfrist, jf. eiendomsmeglingsforskriften § 6-3.
Selger må også skriftlig akseptere budet før aksept kan formidles til budgiver. Akseptfrist bør derfor være på minimum 30 minutter, og budforhøyelser må derfor skje i god tid før fristens utløp.
Bud i forbrukerforhold kan uansett ikke settes med kortere frist enn kl. 12.00 første virkedag etter siste annonserte visning. I tillegg kan ikke budet ha forbehold om at det skal holdes hemmelig ovenfor øvrige interessenter. Megler har iht lov om eiendomsmegling ikke anledning til å videreformidle disse budene, og de vil dermed heller ikke bli journalført.
Etter at eiendommen er solgt vil kjøper og selger få tilsendt budjournal. Øvrige budgivere kan få utlevert kopi av budjournalen i anonymisert form.
Hvitvaskingsreglene
I henhold til lov om hvitvasking og terrorfinansiering har megler plikt til å gjennomføre kontrolltiltak overfor kunder, herunder fullmektiger. Dette innebærer bl.a. å bekrefte kunders og reelle rettighetshaveres identitet på bakgrunn av fremvist gyldig legitimasjon eller på annen godkjent måte, samt å innhente opplysninger om kundeforholdets formål og tilsiktede art.
Dersom slike kundetiltak ikke kan gjennomføres, kan megler ikke etablere kundeforholdet eller utføre transaksjonen.
Hvis kjøper ikke bidrar til gjennomføring av kundekontrollen og dette fører til at transaksjonen blir forsinket eller ikke kan gjennomføres, vil dette ansees som mislighold av avtalen og gi selger rettigheter etter avhendingslova kapittel 5. I tilfeller der selger ikke bidrar til gjennomføring av løpende kundekontroll underveis i oppdraget, er det selger som misligholder sine forpliktelser etter avtalen og gi kjøper rettigheter etter avhendingslovens kapittel 4. Partene er selv ansvarlige for eventuelle kostnader og ansvar dette kan medføre. Eiendomsmegleren eller eiendomsmeglingsforetaket kan ikke holdes ansvarlig for de konsekvenser dette vil kunne få for partene eller andre som har interesser i eiendomshandelen.
Kjøper oppfordres til å innbetale kjøpesummen som ikke kommer fra låneinstitusjon i én samlet innbetaling fra egen konto i norsk bank. Megler har plikt til å melde fra til Økokrim om eiendomshandler som fremstår som mistenkelige. Melding sendes Økokrim uten at partene varsles.
Personopplysningsloven
I henhold til personopplysningsloven gjør vi oppmerksom på at interessenter kan bli registrert for videre oppfølging.
Lovanvendelse
Generelle bestemmelser
Salgsoppgaven er basert på de opplysningene selger har gitt til megler, den bygningssakyndiges tilstandsrapport, samt opplysninger innhentet fra kommunen, Kartverket og andre tilgjengelige kilder. Det er viktig at kjøper setter seg grundig inn i alle salgsdokumentene, herunder salgsoppgave, tilstandsrapport og selgers egenerklæring. Kjøper anses kjent med forhold som er tydelig beskrevet i salgsdokumentene, og slike forhold kan ikke påberopes som mangler. Dette gjelder uavhengig av om kjøper har lest dokumentene. Alle interessenter oppfordres til å undersøke eiendommen nøye, gjerne sammen med fagkyndig før bud inngis. Kjøper som velger å kjøpe usett kan ikke gjøre gjeldende som mangel noe han burde blitt kjent med ved undersøkelsen.
Dersom det er behov for avklaringer, anbefaler vi at interessenter rådfører seg med eiendomsmegler eller egne rådgivere før det legges inn bud.
En bolig som har blitt brukt i en viss tid, har vanligvis blitt utsatt for slitasje og skader kan ha oppstått. Slik bruksslitasje må kjøper regne med, og det kan avdekkes enkelte forhold etter overtakelse som nødvendiggjør utbedringer. Normal slitasje og skader som nødvendiggjør utbedring, er innenfor hva kjøper må forvente og vil ikke utgjøre en mangel.
Kjøper og selgers rettigheter og plikter reguleres av avtalen mellom partene, samt informasjonen som har vært tilgjengelig for kjøperen i forbindelse med handelen. Avtalen utfylles av avhendingsloven, og det gjelder ulike avtalevilkår avhengig av om kjøper er forbrukerkjøper eller ikke. Dette er nærmere beskrevet nedenfor.
På grunn av ulike avtalevilkår kan selger vurdere bud fra en som ikke er forbruker, ulikt fra en forbrukers bud. Dersom kjøper ikke er forbruker, er selger sitt mulige mangelsansvar begrenset fordi eiendommen selges "som den er". Selger kan ikke ta «som den er»- forbehold overfor en forbrukerkjøper. Selv et lavere bud fra en som ikke er forbruker kan foretrekkes fordi begrensningen i mulig mangelsansvar kan ha egenverdi for selger. Selger står fritt til å forkaste eller akseptere ethvert bud, og er for eksempel ikke forpliktet til å akseptere høyeste bud.
Budgiver skal i budskjema avgi egenerklæring om budgiver er forbruker eller næringsdrivende/ person som hovedsakelig handler som ledd i næringsvirksomhet. Budgivere får informasjon dersom andre bud er inngitt av en som ikke er forbruker.
Forbrukerkjøp - definisjon
Med forbrukerkjøp menes kjøp av eiendom når kjøperen er en fysisk person som ikke hovedsakelig handler som ledd i næringsvirksomhet.
Forbruker – avtalevilkår
Eiendommen har en mangel dersom den ikke er i samsvar med kravene som følger av avtalen, eller det foreligger brudd på bestemmelsene i avhendingsloven §§ 3-2 til 3-8. Hvis eiendommen ikke er i samsvar med det kjøperen må kunne forvente ut ifra alder, type og synlig tilstand, kan det være grunnlag for mangelskrav. Det samme gjelder hvis det er holdt tilbake eller gitt uriktige opplysninger om eiendommen. Dette gjelder likevel bare dersom man kan gå ut ifra at det virket inn på avtalen at opplysningen ikke ble gitt eller at mangelskravet ikke blir rettet i tide på en tydelig måte.
Boligen kan ha en mangel etter avhendingsloven § 3-3 andre ledd, dersom det er avvik mellom opplyst og faktisk innvendig areal, forutsatt at avviket er på 2% eller mer og minimum 1 kvm.
Ved beregning av et eventuelt prisavslag eller erstatning må kjøper selv dekke tap/kostnader opptil et beløp på kr 10 000 (egenandel).
Ikke-forbruker (næringsdrivende) – definisjon
Hvis kjøper er en juridisk person, eller en fysisk person som hovedsakelig handler som ledd i næringsvirksomhet, vil kjøpet ikke anses som et forbrukerkjøp.
Ikke-forbruker – avtalevilkår
Eiendommen har en mangel dersom den ikke er i samsvar med kravene som følger av avtalen.
Eiendommen selges «som den er», og selgers ansvar utover det konkret avtalte er da begrenset etter avhendingsloven § 3-9, første ledd andre setning.
Avhendingsloven § 3-3 andre ledd fravikes, og hvorvidt boligens arealsvikt utgjør en mangel vurderes etter avhendingsloven § 3-8.
Informasjon om kjøpers undersøkelsesplikt, herunder oppfordringen om å undersøke eiendommen nøye, gjelder også for kjøpere som ikke anses som forbrukere.
Det forutsettes at hjemmel overføres til kjøper. Hvis kjøper ikke ønsker hjemmelsoverføring av eiendommen, må det tas forbehold om dette i budet.
Meglers vederlag
Meglers vederlag betales av selger og er avtalt til:
Vederlag: 3,75 % av salgssummen.
Vederlag
Kontroll av hjemmel og heftelser kr 2 900,-
Markedsføringspakke Fritid kr 27 400,-
Oppgjør kr 7 500,-
Tilrettelegging kr 17 000,-
Utlegg
Innhenting av offentlig opplysninger Bamble kommune kr 3 934,-
Tinglysing sikring kr 545,-
Andre utgifter
Boligselgerforsikring Gjensidige inkl. tilstandsrapport Anticimex kr 49 068,- (Forutsatt salg til prisantydning)
Foto - inkl. drone kr 5 000,-
Opplysninger om oppdraget
Oppdragsnummer 28-0047/25
Eiendomsmegler Krogsveen AS, avd. Bamble og Porsgrunn
Strandgata 22, 3960, STATHELLE
950 007 613
Oppdragets KR-kode KR28.2547
Dato
Sist oppdatert: 24. mars 2026 kl. 10:56
Dokumenter
Dokumenter
PDF – 960 KB
PDF – 656 KB
PDF – 964 KB
PDF – 312 KB
PDF – 29 KB
PDF – 127 KB
PDF – 392 KB
Område
Legg til steder som er viktige for deg
Visning
For å delta på visning, ber vi om at du melder deg på. Da sikrer vi at du får nødvendig informasjon og at det er satt av tilstrekkelig med tid. Kontakt megler dersom annet tidspunkt ønskes. Husk å lese salgsoppgaven før visningen, så du stiller forberedt.
Ønsker du kun å bli holdt orientert, kan du fra eiendommens hjemmeside få varsel om solgtpris, eller kontakte megler.
Lurer du på noe?
Vurderer du utleie?
Få et tilbud fra Utleie KrogsveenHva koster lånet?
Sjekk estimert lånekostnadVil du varsles om lignende boliger?
Ved å lagre ditt boligsøk hos oss får du beskjed når vi har en bolig som ligner denne, før den legges ut på markedet!













































