Silovegen 27 og 29
5 600 000 kr
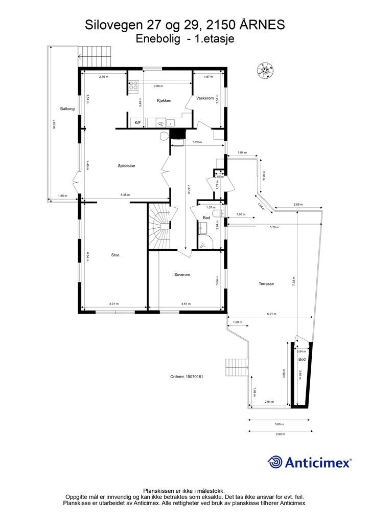
317 m²
5 soverom
Solgt

Fin enebolig med godkjent utleieleilighet – Skattefri leieinntekt – Sentralt og rolig nær Årnes sentrum
Prisantydning
5 600 000 krOmkostninger
160 990 krTotalpris
5 760 990 kr
Pris
Bruksareal
317 m²BRA-I (internt bruksareal)
317 m²TBA (terrasse-balkongareal)
102 m²
Areal
Etasje
3Byggeår
1965Soverom
5 soveromBad
2 badTomteareal
1 017 m² (eiet)Type
Enebolig med utleiedelEierform
EietFasiliteter
Garasje/P-plass og Balkong/TerrasseEnergimerke
Oransje F
Nøkkelinfo
Unngå doble boligrenter
Vi tilbyr gunstig forsikring.
Vurderer du utleie?
Få et tilbud fra Utleie KrogsveenHva koster lånet?
Sjekk estimert lånekostnadBeskrivelse
Kort om eiendommen
Velkommen til Silovegen 27 og 29 – en innbydende enebolig med attraktiv beliggenhet i et rolig og barnevennlig område nær Årnes sentrum og Glomma.
Her bor du med kort vei til skoler, butikker (Rema 1000 et steinkast unna), kollektivtransport og flotte rekreasjonsmuligheter. Boligen har en gjennomtenkt planløsning med fire soverom, samt et lyst og moderne kjøkken med rikelig skap- og benkeplass. Store vinduer gir gode lysforhold. På baksiden finner du en solrik og skjermet terrasse. Boligen har også en godkjent utleieleilighet med ett soverom som gir skattefri leieinntekt på kr 9500 pr. mnd. Perfekt for deg som ønsker et hjem med ekstra inntektspotensial!
Velkommen til visning.
Område
Legg til steder som er viktige for deg
På flyttefot? Tenk kjøp og salg samtidig.
Få din egen rådgiver gjennom hele kjøps- og salgsprosessen. Det starter med en verdivurdering.
Unngå doble boligrenter
Vi tilbyr gunstig forsikring.
Vurderer du utleie?
Få et tilbud fra Utleie KrogsveenHva koster lånet?
Sjekk estimert lånekostnadVil du varsles om lignende boliger?
Ved å lagre ditt boligsøk hos oss får du beskjed når vi har en bolig som ligner denne, før den legges ut på markedet!

