Øvre Damveg 2
6 500 000 kr
175 m²
2 soverom
Solgt

Jessheim
Enebolig over to plan med attraktiv tomt og pent opparbeidet hage | Familievenlig beliggenhet | Solrikt | Dobbeltgarasje
Prisantydning
6 500 000 krOmkostninger
183 490 krTotalpris
6 683 490 kr
Pris
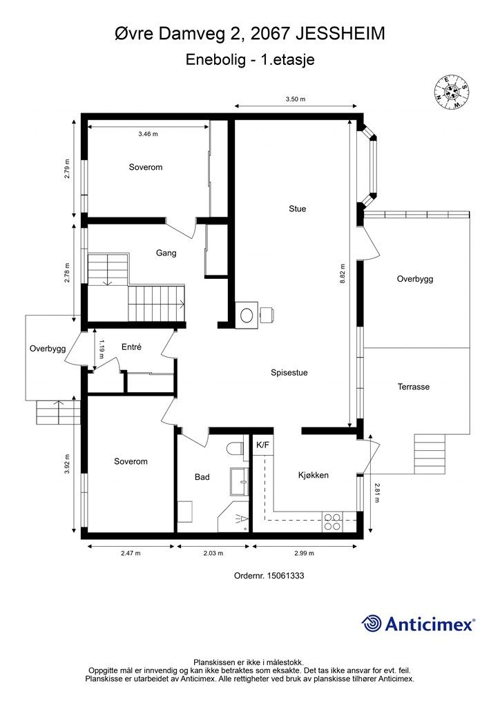
Bruksareal
216 m²BRA-I (internt bruksareal)
175 m²BRA-E (eksternt bruksareal)
41 m²TBA (terrasse-balkongareal)
39 m²
Areal
Etasje
1Byggeår
1968Soverom
2 soveromBad
2 badTomteareal
849 m² (eiet)Type
Enebolig - FrittliggendeEierform
EietFasiliteter
Garasje/P-plass og Balkong/TerrasseEnergimerke
Gul F
Nøkkelinfo
Unngå doble boligrenter
Vi tilbyr gunstig forsikring.
Vurderer du utleie?
Få et tilbud fra Utleie KrogsveenHva koster lånet?
Sjekk estimert lånekostnadBeskrivelse
Kort om eiendommen
Innholdsrik, velholdt og attraktiv enebolig med gjennomgående god standard og mange muligheter. Boligen har en funksjonell planløsning med første etasje og underetasje som inneholder følgende: entré, kjøkken, spisestue/stue, to soverom, to bad (bad i underetasjen er ikke bruksendret/omsøkt), vaskerom og god plass i underetasjen. Badet i 1 et. er pusset opp i 2020, utført av firma med dokumentasjon.
Flott og solrik tomt som er pent opparbeidet og med skjermet bakhage, og stor gressplen på framsiden. Tomten er vesentlig påkostet med beleggningsstein og støttemur utført av firma. God plass til barnelek og moro - perfekt familiebolig med nok boltreplass både inne og ute.
Parkering i dobbeltgarasje med montert elbil-lader og rikelig med parkeringsplass utenfor på belegningsstein.
Område
Legg til steder som er viktige for deg
På flyttefot? Tenk kjøp og salg samtidig.
Få din egen rådgiver gjennom hele kjøps- og salgsprosessen. Det starter med en verdivurdering.
Unngå doble boligrenter
Vi tilbyr gunstig forsikring.
Vurderer du utleie?
Få et tilbud fra Utleie KrogsveenHva koster lånet?
Sjekk estimert lånekostnadVil du varsles om lignende boliger?
Ved å lagre ditt boligsøk hos oss får du beskjed når vi har en bolig som ligner denne, før den legges ut på markedet!

