Kjosveien 2
5 980 000 kr
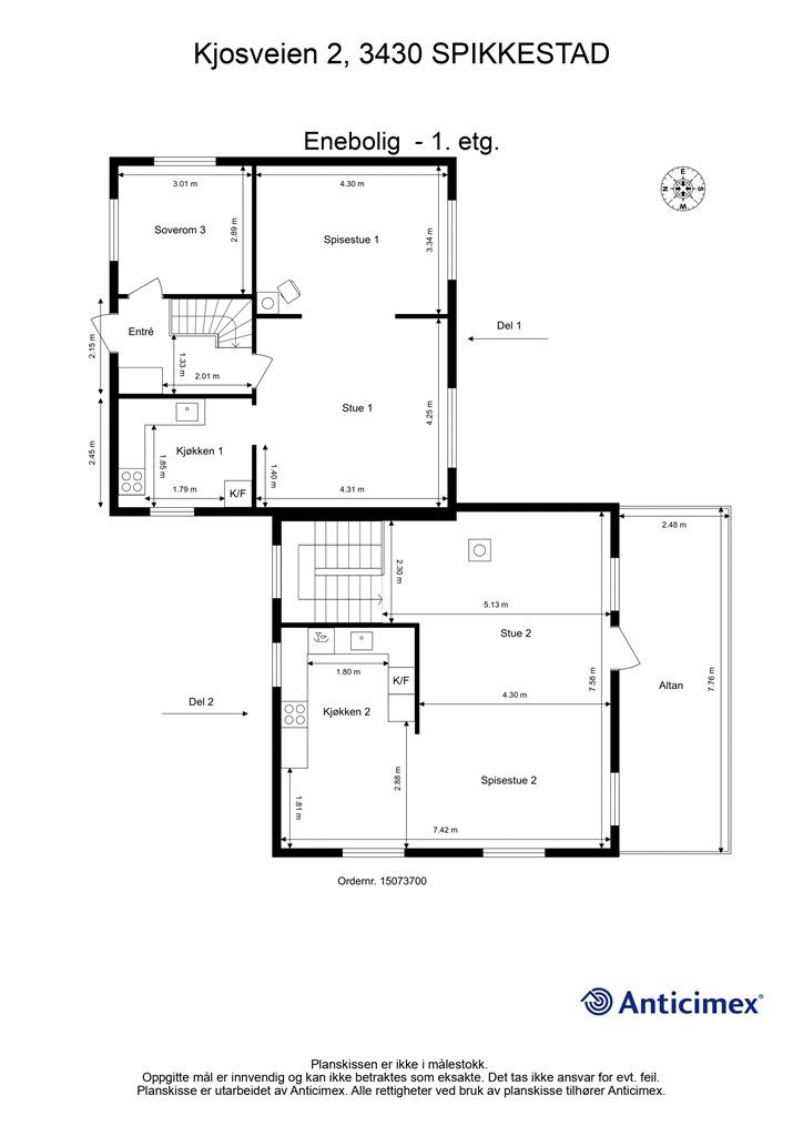
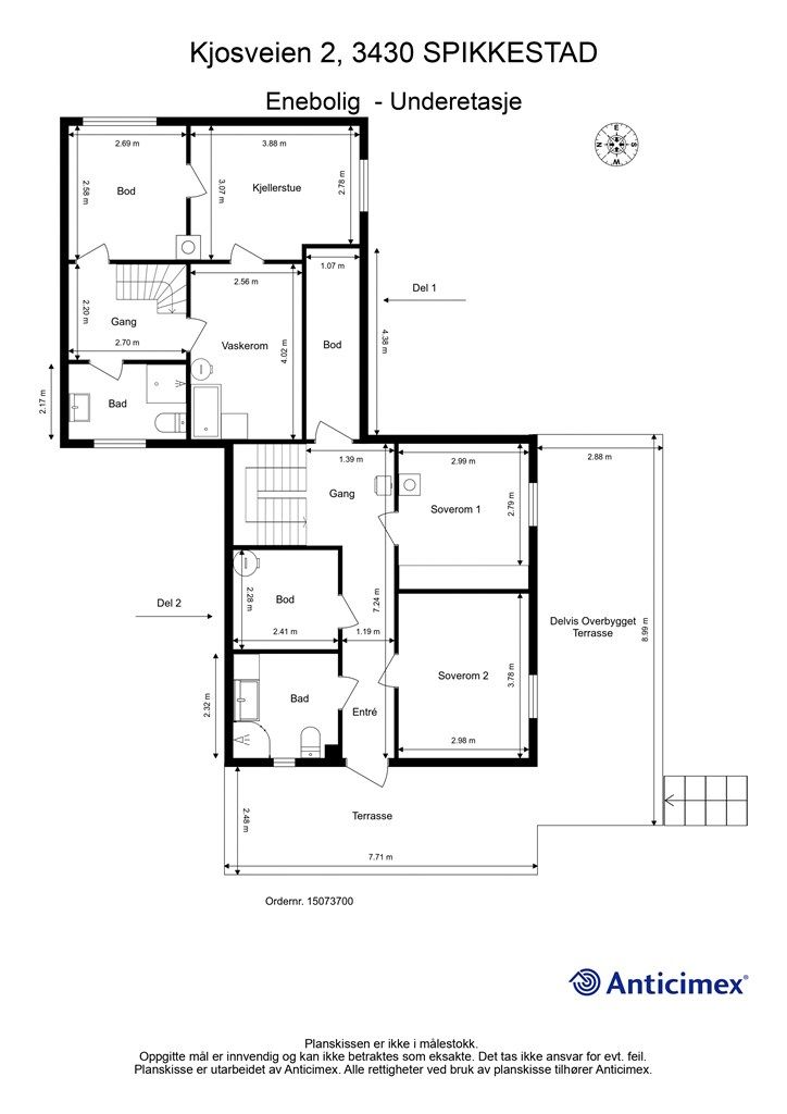
216 m²
3 soverom
Solgt

Spikkestad
Stor familiebolig - Dbl garasje og stor gårdsplass - Stor tomt og hybel
Prisantydning
5 980 000 krOmkostninger
170 490 krTotalpris
6 150 490 kr
Pris
Bruksareal
272 m²BRA-I (internt bruksareal)
216 m²BRA-E (eksternt bruksareal)
56 m²TBA (terrasse-balkongareal)
64 m²
Areal
Byggeår
1964Soverom
3 soveromBad
2 badTomteareal
3 229 m² (eiet)Type
Enebolig - FrittliggendeEierform
EietFasiliteter
Garasje/P-plass og Balkong/TerrasseÅrlig velavgift
100 krEnergimerke
Oransje F
Nøkkelinfo
Unngå doble boligrenter
Vi tilbyr gunstig forsikring.
Vurderer du utleie?
Få et tilbud fra Utleie KrogsveenHva koster lånet?
Sjekk estimert lånekostnadBeskrivelse
Kort om eiendommen
Velkommen til Kjosveien 2!
Stor familiebolig med mange muligheter. Enebolig med hybeldel og usjenert beliggenhet. Opprinnelig enebolig fra ca 1964 ble påbygget med ekstra del i ca 1984. Her kan du lett benytte hele boligen selv og få mange soverom og stuer eller leie ut en del. Boligen ligger få minutters gange fra togstasjonen, barne- og ungdomsskole. Området byr på flotte turstier om sommeren og meget god lysløype om vinteren i kort avstand fra boligen! Eiendommen har flott opparbeidet hage og stor gårdsplass til flere biler. Det er også en dobbelgarasje med lagringsloft.
- Mulighet for utleie
- Gåavstand til barneskole og togstasjon
- Turstier i øyeblikkelig nærhet
- Dobbelgarasje med loft
- Pent opparbeidet tomt
- Kan lett etableres flere soverom i boligen om man vil bruke hele
Område
Legg til steder som er viktige for deg
På flyttefot? Tenk kjøp og salg samtidig.
Få din egen rådgiver gjennom hele kjøps- og salgsprosessen. Det starter med en verdivurdering.
Unngå doble boligrenter
Vi tilbyr gunstig forsikring.
Vurderer du utleie?
Få et tilbud fra Utleie KrogsveenHva koster lånet?
Sjekk estimert lånekostnadVil du varsles om lignende boliger?
Ved å lagre ditt boligsøk hos oss får du beskjed når vi har en bolig som ligner denne, før den legges ut på markedet!

