Kjetilskotvegen 198
3 950 000 kr
119 m²
4 soverom
Komplett salgsoppgave

Vrådal Panorama
Hytte m/ 4 sov, 2 bad og badstue | Stor terrasse på 61 m² og usjenert beliggenhet | Ski inn/ut
Prisantydning
3 950 000 krOmkostninger
119 740 krTotalpris
4 069 740 kr
Pris
Bruksareal
135 m²BRA-I (internt bruksareal)
119 m²BRA-E (eksternt bruksareal)
16 m²TBA (terrasse-balkongareal)
69 m²
Areal
Etasje
2Byggeår
2007Soverom
4 soveromBad
2 badTomteareal
930 m² (eiet)Type
Fritidseiendom på fjelletEierform
EietEnergimerke
C
Nøkkelinfo
Vurderer du utleie?
Få et tilbud fra Utleie KrogsveenHva koster lånet?
Sjekk estimert lånekostnadBeskrivelse
Kort om eiendommen
Krogsveen v/Vindum ønsker velkommen til Kjetilskotvegen 198!
Denne hytta i Vrådal byr på en kombinasjon av panoramautsikt, skjermet beliggenhet og gode uteplasser – perfekt for deg som vil nyte fjellet året rundt.
Høydepunkter:
- Fantastisk utsikt og solrik beliggenhet
- Usjenert tomt inntil skogen, uten innsyn fra naboer
- Skjermet for vind og lune uteplasser
- 4 soverom og 2 stuer
- 2 bad hvorav ett med badstue [ ett i hver etasje ]
- Frittliggende utebod/smørebod på ca 16 kvm
- Godt med oppbevaringsplass
- Stor skiferbelagt uteplass med gode solforhold og heltusjenert
- God parkeringsplass som er singlet
- Hytten selges møblert, slik at man kan flytte rett inn og nyte late hyttedager
Her får du alt – utsikt, ro og ekte hyttekos.
Innhold og byggemåte
Innhold og byggemåte
Eiendommen
Kjetilskotvegen 198, 3853 VRÅDAL
Kommunenummer 4028, gårdsnummer 1, bruksnummer 125, ideell andel 1/1
Innhold
Totalt bruksareal BRA: 135 kvm
BRA-i:
Fritidsbolig:
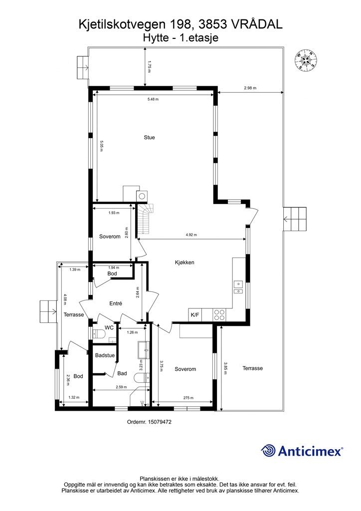
1. etasje 89 kvm: Entre, bod, bad med badstue, toalettrom, stue, kjøkken og to soverom.
Loft 30 kvm: Loftstue, bad og to soverom.
BRA-e:
Bod:
1. etasje 16 kvm: Bod.
Åpent areal:
1. etasje 61 kvm: Terrasser.
Loft 8 kvm: Balkong.
Arealet i bod med inngang fra utsiden måles til 3 m2 (ALH), men grunnet lav takhøyde er ingen deler av arealet måleverdig som bruksareal.
Loftsetasjen har et totalt gulvareal (GUA) på 48 m2, men grunnet skråtak/lav takhøyde er kun 30 m2 av arealet måleverdig som bruksareal. De delene av arealene som har lav himlingshøyde (ALH) utgjør 18 m2. Arealet på krypehems måles til 10 m2 (ALH) og inngår i overnevnte oppgitte arealer.
Takhøyder ble målt til 2,21 meter på kjøkken. Loftstue og stue har skrånet himling der høyeste punkt under dragere ble målt til 3,30 meter i stue og 2,40 meter i loftstue.
Vedlagte plantegninger er ikke målbare. De oppgitte arealer er hentet fra rapport med befaringsdato 25.02.2026 utført av Anticimex AS v/Sindre Anholt Andersen. Arealene er beregnet og rom er definert etter dagens faktiske bruk, uavhengig av hva som er godkjent av bygningsmyndighetene.
Byggemåte
Selger har innhentet en tilstandsrapport av eiendommen. Dersom det er registrert avvik, er disse klassifisert med tilstandsgrader (TGIU, TG2 og/eller TG3). Kjøper overtar ansvaret for de opplysninger som fremkommer av salgsdokumentasjonen, og kan ikke gjøre gjeldende som mangel noe som burde vært kjent eller som ikke kan anses å ha betydning for avtalen.
Bygningen er iht. tilstandsrapport en fritidsbolig oppført i 2007. Bygget er en trekonstruksjon over to etasjer (1. etasje og loft) og er oppført med krypkjeller på grunnmur av lettklinkerblokker. Etasjeskillere er av trekonstruksjoner. Yttervegger er av trekonstruksjoner med utvendige fasader kledd med både liggende og stående trekledning. Taket er en saltakskonstruksjon i tre, tekket med torv fra byggeår. Selger opplyser at taket ble utbedret med ny torv sommeren 2025, og at underlagspappen ble kontrollert av faglærte. Boligen har vinduer og balkong-/terrassedører med karmer/ramme av tre og 2-lags glass fra byggeår, samt en entrédør med glassfelter og profilerte innerdører. Det er en elementpipe fra byggeår med peis med innsats montert i stue. Det er utgang til en nordvendt overbygget balkong på 8 m² fra loftstuen, og en terrasse på 61 m², begge i trekonstruksjoner.
I tillegg er det en frittstående utebod oppført i 2018, ifølge selger. Bygningen er en uisolert trekonstruksjon med fasade kledd med stående og liggende trekledning, og har et saltak i tre tekket med torv.
Det elektriske anlegget er fra byggeår, med sikringsskap plassert i bod og automatsikringer. Det mangler samsvarserklæring for anlegget, og kursfortegnelse er registrert. Det er registrert forhold som tyder på behov for en utvidet kontroll av anlegget utført av en kvalifisert elektrofaglig person.
Boligen har godkjent slukkeutstyr og tilstrekkelig med røykvarslere.
Følgende bygningsdeler er gitt Tilstandsgrad 2 (TG2) — Avvik som kan kreve tiltak:
Våtrom - Bad loft
- Lekkasjesikkerhet: Fallforhold utenfor sluksonen vurderes ikke til å være tilstrekkelig for å lede eventuelt lekkasjevann til sluk, og det er ikke påvist at vanntett sjikt har tilstrekkelig oppkant ved dørterskel for å kompensere for dette. Det registreres forøvrig motfall på deler av gulvflater utenfor sluksonen.
- Vanntett sjikt / membran i gulv og vegger: Vanntett sjikt på gulv har en alder som tilsier at fremtidig funksjon er usikker. Bygningsdelen er skjult, så den faktiske tilstanden og dagens tettefunksjon er ukjent. Det er ikke etablert membran på veggflater i våtsonen, noe som i utgangspunktet medfører mangel med hensyn til våtrommets vanntette sjikt. Siden det benyttes dusjkabinett, vurderes forholdet til å ikke medføre nevneverdige konsekvenser så lenge denne løsningen videreføres.
Våtrom - Bad 1.etasje
- Lekkasjesikkerhet: Fallforhold utenfor sluksonen vurderes ikke til å være tilstrekkelig for å lede eventuelt lekkasjevann til sluk, og det er ikke påvist at vanntett sjikt har tilstrekkelig oppkant ved dørterskel for å kompensere for dette. Det registreres forøvrig motfall på deler av gulvflater utenfor sluksonen.
- Vanntett sjikt / membran i gulv og vegger: Vanntett sjikt på gulv har en alder som tilsier at fremtidig funksjon er usikker. Bygningsdelen er skjult, så den faktiske tilstanden og dagens tettefunksjon er ukjent. Det er ikke etablert membran på veggflater i våtsonen, noe som i utgangspunktet medfører mangel med hensyn til våtrommets vanntette sjikt. Siden det benyttes dusjkabinett, vurderes forholdet til å ikke medføre nevneverdige konsekvenser så lenge denne løsningen videreføres.
Andre rom - 1.etasje
- Overflate gulv: Det er registrert bom (hulrom og riss/sprekker i flisfuger) i enkelte gulvfliser. Dette kan skyldes bakenforliggende forhold som ikke lar seg avdekke ved visuell inspeksjon. Det er registrert knirk i deler av gulvet. Eksakt årsak er ukjent, men dette kan tyde på underliggende forhold som ikke lar seg fastslå ved visuell inspeksjon alene.
- Innerdører: Dørbladet på dør til toalettrom kommer i kontakt med karmen slik at døren ikke kan åpnes og lukkes som normalt.
Loft - innredet
- Konstruksjonsoppbygging: Etasjens skråtak er en lukket konstruksjon som ikke lar seg kontrollere. Det ble registrert fra utvendig side rim og isdannelser ved utluftning fra konstruksjonen som kan tyde på feil ved oppbygningen.
- Statikk og bærekonstruksjon: Synlig drager i loftstue har noe nedbøyninger og en synlig vertikal sprekk. Selger opplyser om at sprekk i tak bjelke har blitt tatt opp med utbygger når hytta ble kjøpt, og har blitt fulgt opp jevnlig uten at endringer i sprekken har blitt identifisert.
Spesialrom - Badstue
- Avløpsrør (inkludert sluk): Badstuen har ikke etablert sluk og rommet er avgrenset med en oppkant.
- Ventilasjon: Ventilasjonen vurderes som utilstrekkelig på bakgrunn av manglende ventiler i badstuen. Selger opplyser om at ventilasjon ikke har blitt identifisert som noe problem, den elektriske vifta på badet viser seg å gi tilstrekkelig utlufting.
- Tekniske anlegg (kjøleaggregat, badstueovn med mer): På bakgrunn av alderen til det tekniske utstyret som tilhører rommet vurderes det at fremtidig funksjon er usikker.
Etasjeskiller og gulv på grunn
- Loft: På loft er det på tilfeldige punkter målt lokale høydeforskjeller opptil 35mm i loftstue og 20mm på soverom. Stikkprøvene som er utført har avdekket vesentlige/merkbare skjevheter. Eksakt årsak er ikke kjent.
- 1.etasje: Det er på tilfeldige punkter målt lokale høydeforskjeller opptil 15mm i stue og 17mm på kjøkken. Stikkprøvene som er utført har avdekket stedvise vesentlige skjevheter. Eksakt årsak er ikke kjent.
Yttervegger inkl. fasader
- Ytterkledning (fasademateriale, vannbord, utvendig listverk, o.l.): Ytterkledningens materialer viser tegn til elde, med symptomer på begynnende råteskader i nærhet av takrenner. Vurderingen er begrenset til det som er synlig fra bakkenivå, med den begrensing dette innebærer. Stikktaking er utført på typiske skadesteder som var tilgjengelig uten bruk av stige.
Vinduer og ytterdører
- Ytterdører og omramming: Det er ikke montert beslag i underkant av dørene.
Yttertak - Hovedtak
- Takkonstruksjon: På bakgrunn av at ventilasjonen av takkonstruksjonen ikke kan kartlegges og undersøkes fra innsiden, foreligger det en usikkerhet om hvordan/om denne funksjonen er ivaretatt. Forholdet kan ikke kartlegges fra utsiden alene. Det ble registrert rim og isdannelser ved luftespalter, noe som kan indikere varmetap og kondensproblematikk.
- Undertak (inkluderer sløyfer, lekter og innfestninger): Undertaket har alder som tilsier at fremtidig funksjon er usikker. Bygningsdelen er skjult, så den faktiske tilstanden er ukjent.
- Takrenner og utvendige nedløp: Takrenner viser begynnende tegn til slitasje og elde. Selger opplyser om at det er lagt membran i alle takrenner for lengre levetid.
Grunnmur, fundament
- Grunnmur og fundament: Det registreres enkelte moderate tegn til riss i overflaten til grunnmuren. Eksakt årsak er ukjent.
Drenering
- Fuktsikring av grunnmur: Det kan ikke verifiseres at grunnmuren har utvendig fuktsperre. Selger opplyser om at det er drenerende masser under hele hytten.
Følgende bygningsdeler er ikke undersøkt (TGIU):
Våtrom - Bad loft
- Tettesjiktets tilslutning til sluk: Grunnet plassering av dusjkabinett er det ikke mulig å foreta en fullgod undersøkelse av sluket.
- Fallforhold rundt sluk: Det er ikke mulig å vurdere fallforholdene i sluksonen på en tilfredsstillende måte på grunn av plasseringen av dusjkabinettet.
Våtrom - Bad 1.etasje
- Tettesjiktets tilslutning til sluk: Grunnet plassering av dusjkabinett er det ikke mulig å foreta en fullgod undersøkelse av sluket.
- Fallforhold rundt sluk: Det er ikke mulig å vurdere fallforholdene i sluksonen på en tilfredsstillende måte på grunn av plasseringen av dusjkabinettet.
Tekniske anlegg
- Avløprør (utover det som nevnes under andre sjekkpunkter): Det har ikke vært mulig å verifisere hvilken løsning som er valgt for lufting av avløpssystemet.
Krypkjeller
- Helhetsvurdering: Det var ikke tilkomstmulighet til krypkjelleren på befaringsdagen på grunn av manglende luke. Basert på at selger har utført noen ytterligere undersøkelser ved å demontere ventilrist, er det valgt å vurdere dette avsnittet som TGIU. Selger opplyser om at hytte tomta er sprengt ut av fjellet og hytta står på stor stein fylling som gir veldig god drenering.
Yttervegger inkl. fasader
- Lufting av ytterkledning: Det er ikke mulig å kontrollere om ytterkledningen har tilstrekkelig lufte- og drensspalte der inspeksjonsområdene er skjult av andre bygningsdeler.
Yttertak - Hovedtak
- Inspeksjonsmulighet: Taket er ikke fysisk inspisert grunnet is og snø (sikkerhetsmessige forhold).
Terrasse / platting
- Tilstand på rekkverk og overflatematerialer: Grunnet snøforholdene på befaringsdagen var det ikke mulig å foreta tilstrekkelige undersøkelser av bygningsdelen. Tilstanden er derfor ukjent.
Drenering
- Terrengfall fra grunnmur: Terrengfallet kan ikke undersøkes på tilstrekkelig måte, grunnet snøforhold og plassering av terrasse.
Andre byggverk - Bod
- Yttertak og takkonstruksjon: Taket er ikke fysisk inspisert grunnet is og snø (sikkerhetsmessige forhold).
Helse, miljø og sikkerhet
Rekkverkshøyder, lysåpninger, håndløper og andre sikkerhetsmessige forhold er kontrollert opp mot dagens gjeldende byggtekniske forskrift, selv om denne ikke har tilbakevirkende kraft. Det er registrert at trappen ikke har håndløper på begge sider, inntrinn er mindre enn 0,25 meter, og trappen vurderes som bratt. På balkongen er rekkverkshøyden under 1,0 meter. Basert på disse forholdene oppfyller ikke trappen og balkongen dagens krav til sikkerhet. Om de oppfylte kravene som var gjeldende på oppføringstidspunktet eller ikke, er ikke tatt stilling til.
Tilstandsrapporten er inntatt i salgsoppgaven. Rapporten inneholder informasjon om eventuelle avvik og konsekvensen av disse. Dersom det er registrert avvik med TG3, har den bygningssakkyndige i tillegg gitt et anslag på hva det vil koste å utbedre disse. Ettersom kjøper regnes å være kjent med forhold som tydelig fremgår av tilstandsrapporten, oppfordres du til å sette deg grundig inn i rapporten i sin helhet.
Selger beskriver også i egenerklæringsskjema:
Det er utført arbeid på tak, yttervegg og fasade. Torv på taket ble byttet og underlagspappen sjekket av faglærte i 2025. Det er også utført diverse vedlikehold, utbedring og utskifting av slitte terrassebord, rekkverk og noen utvendige panelbord i 2023/24. Utskifting ble utført av faglærte, mens beising ble utført av selger.
Moderniseringer og påkostninger
Følgende moderniseringer er foretatt de senere år:
2025:
- Utbedring av tak med ny torv og kontroll av underlagspapp.
2023/2024:
- Utskifting av terrassebord, rekkverk og utvendige panelbord.
2018:
- Oppføring av ny frittstående utebod.
Standard
Velkommen til Kjetilskotvegen 198!
Frittliggende hytte som er oppført i 2007. Bygget over to plan, med alle bruksrom på en flate slik at man kan unngå trapper i det daglige men likevel ha god plass til gjester og familie.
Hytten ligger usjenert til på eiet tomt. Lettholdt tomt med naturlig vegetasjon og noe fjell. Gruset gårdsplass med gode parkeringsmuligheter. Stensatt uteplass i tilknytning til inngangspartiet.
Gode solforhold på den store, og delvis overbygde, terrassen. Man nyter også en flott utsikt over omkringliggende fjellkjeder og området for øvrig. Denne fritidsboligen tilbyr en tradisjonell ramme med ski inn/ut til Vrådal Panorama Skisenter.
Hytta byr på den ekte fjellhytte følelsen med gjennomgående bruk av treverk, synlige bjelker og lune materialvalg. Furugulv i oppholdsrommene gir en varm og koselig atmosfære – godt å gå på, og med den klassiske hyttefølelsen.
Du ønskes velkommen inn i en romslig hall med flislagt gulv og gulvvarme. Downlights i tak.
Med inngang fra hallen har man et praktisk toalettrom, med servant og toalett. I tillegg er det et garderobe- og tørkerom med varmekabler og avtrekksvifte, med god plass til å hegne fra seg yttertøy.
Baderommet i første etasje har flislagt gulv med gulvvarme og downlights i tak. Her finner du servant i innredning, dusjkabinett, toalett og opplegg for vaskemaskin. Deilig med direkte tilgang til badstuen, som har flislagt gulv og elektrisk badstueovn. En nydelig avslutning på en dag ute i frisk luft!
Kjøkkenet har åpen løsning mot stuen, men også svært god plass til spisestuen, noe som gjør det enkelt å samle familie og venner rundt matlaging og måltider.
Kjøkkenet har innredning fra byggeår med profilerte fronter og benkeplate av tre. Integrerte hvitevarer inkluderer stekeovn, platetopp, oppvaskmaskin og kjøleskap med fryser. Det er godt med skapplass, integrerte hvitevarer og en funksjonell løsning som gir moderne komfort i lune hytterammer.
Fra kjøkkenet har man utgang til stor terrasse, som er delvis overbygget. Solen og utsikten kan man nyte i rolige og usjenerte omgivelser.
Stuen er lys og romslig med mange vindusflater, som slipper naturen og lysets inn. Stuen har en skrånet himling med et høyeste punkt på 3,30 meter, som gir en luftig romfølelse.
Peisovn i stuen, som ikke bare gir god varme, men også setter stemningen på mørke vinterkvelder.
De to soverommene i første etasje og tar vi turen opp i 2. etasje er det innredet med ytterligere to soverom. Totalt er det innredet med 8 sengeplasser pr idag.
Loftsetasjen er også innredet med en koselig loftstue med utgang til en overbygget balkong, hvor man har en flott utsikt. Fullt utstyrt baderom med flislagt glv med gulvvarme, servant i innredning, dusjkabinett og toalett. I tillegg til et lite kott.
Fra loftstuen er det tilgang til en kryphems på 11,7 kvm, som gir romslig med plass til lagring og oppbevaring, eller eventuelt kan benyttes som et ekstra soverom (ikke godkjent til varig opphold).
I tillegg har man en isolert bod ved inngangspartiet.
Den frittstående uteboden er på 16 m², oppført i 2018, er perfekt for lagring av fritidsutstyr og fungerer utmerket som smørebod.
Løsøre og tilbehør
Vi viser til liste fra Norges Eiendomsmeglerforbund som gjelder fra 01.01.2020 angående løsøre og tilbehør.
Hytten selges møblert.
Oppvarming
Oppvarming skjer med panelovner, elektrisk gulvvarme i entré og på begge badene samt peisovn med innsats i stuen.
Dersom beboelsesrom ikke har vegg- eller fastmonterte varmekilder ved visning, følger dette heller ikke med.
Kviteseid kommune opplyser at siste feiing og tilsyn ble gjennomført 06.02.2024. Videre opplyses om følgende anmerkning fra tilsyn: sotluke er plassert for nært brennbart materiale. Kjøper overtar ansvaret for dette.
Ferdigattest/brukstillatelse
Det er utstedt ferdigattest for fritidsbustad datert 08.04.2009. Denne kan fås ved henvendelse til megler.
Det er registrert en garasje/uthus/anneks til fritidsbolig i 2018 (utebod). Denne bygningen er ikke byggesøkt, men matrikkelen viser at den er registrert som "Fritatt for søknadsplikt".
Det foreligger godkjente og byggemeldte tegninger for hytten datert 18.05.2005. Disse kan fås ved henvendelse til megler. Tegningene samsvarer for det meste med dagens bruk, foruten noen mindre endringer i planløsning i første og andre etasje, samt innredning av et ekstra soverom i andre etasje.
Kommunen har i e-post datert 16.03.2026 avklart at avvik i adresse på ferdigattesten skyldes en adresseendring i 2012. Videre bekrefter de at avvik mellom opprinnelige byggetegninger og nylig innsendte "as-built" tegninger er av en slik grad at de ville blitt godkjent, og at det ikke er noe problem.
Kjøper overtar ansvar, risiko og eventuell oppfølging fra kommen vedr. de ovenfor nevnte forhold.
Tinglyste heftelser og rettigheter
Eiendommen overdras fri for pengeheftelser
Kommunen har legalpant i eiendommen for forfalte krav på eiendomsskatt og kommunale avgifter/gebyrer.
Det er ingen tinglyste servitutter på eiendommen.
Eventuell adgang til utleie
Fritidseiendommen har ikke separat utleiedel. Det vil normalt være anledning til utleie av hele eiendommen eller enkeltrom, såfremt utleiearealet er bygningsmessig godkjent for varig opphold.
Energimerking
Denne eiendommen er energimerket. På en skala fra A til G, der A er best, har denne boligen oppnådd Grønn C (en normalbolig vil gjerne ligge i området C-F). Kopi av energiattest ligger vedlagt i salgsoppgaven eller kan fås ved henvendelse til megler.
Beliggenhet og tomteforhold
Beliggenhet og tomteforhold
Beliggenhet
Vrådal – Et helårsparadis midt i Telemarks vakre natur!
Velkommen til Vrådal – et idyllisk og attraktivt feriested som har vokst i popularitet de siste årene, og det med god grunn. Her får du ekte fjell- og naturopplevelser kombinert med et imponerende aktivitetstilbud, året rundt.
Når snøen smelter, våkner Vrådal til liv med et rikt tilbud for både store og små. Utforsk storslått natur og milevis med merkede turstier i fjellet – perfekt både for barnefamilier og erfarne turgåere. Besøk den flotte 9-hulls golfbanen, nyt lunsj på kaféen med utsikt over innsjøen eller ta turen ned til den vakre, opparbeidede badestranden med brygge og vannleker. For de minste er det lekeplass med hoppepute, klatrestativ, fotballøkke og en skaterampe – alt innrammet av natur og trygghet. Båtplasser og mulighet for padling eller fisking i innsjøen gjør oppholdet komplett.
Når snøen legger seg som et teppe over landskapet, forvandles Vrådal til et vintereventyr. Her finner du et moderne skisenter med hele 18 nedfarter og 8 heiser, inkludert en komfortabel 8-seters stolheis.
For langrennsentusiaster venter oppkjørte løyper på fjellet – både korte og lengre runder.
Vrådal byr også på ski-in/ski-out-muligheter fra mange av hyttene. Og med kafeteria og afterski like ved bakken, er det enkelt å kombinere aktivitet med hygge.
Unike opplevelser hele året
• Toppturer og storslått utsikt fra Vrådal Panorama
• Saunaopplevelse med bademulighet i fjellvann på toppen
• Sykling i fjellterreng og rolige grusveier
• Båtturer med veteranbåten MS Fram på Nisser
• Skianlegg og fjellturer rett utenfor døren
• Lokale spisesteder og dagligvare for en enkel hyttehverdag
Enten du søker roen ved vannet, spenning i skibakken eller gode stunder rundt bålpanna, så finner du det i Vrådal.
Dette er stedet for deg som ønsker noe mer enn bare en hytte – her får du et helårssted du vil trives.
Velkommen til Vrådal – her skapes ferieminner for livet.
Adkomst
For veibeskrivelse, se Google maps - det er enkelt å finne frem i kartet.
Beskrivelse av tomt
Eiertomt på 929,9 kvm.
Tomten er opparbeidet med gruset gårdsplass, naturtomt med noe fjell og naturlig vegetasjon. Flott utsiktstomt med gode solforhold.
Selger opplyser at hyttetomten er sprengt ut av fjellet og at hytta står på en stor steinfylling, noe som gir god drenering.
Oppgitt tomteareal er hentet fra digitalt eiendomskart fra Kviteseid kommune. Oppgitt/anslått areal kan derfor avvike fra nøyaktig areal.
Parkering
Parkeringsplassen foran uteboden er singlet.
Det er mulighet for montering av ladeboks ved uteboden, med ladepunkt 2 meter unna.
Vei, vann og avløp
Eiendommen har adkomst via privat vei med felles vedlikeholdsansvar. Eiendommen er tilknyttet kommunalt ledningsnett via private stikkledninger. Eier er selv ansvarlig for private stikkledninger til boligen. Det er ikke registrert vannmåler på eiendommen.
Regulerings-og arealplaner
Eiendommen er regulert til byggeområde for fritidsbusetnad, iht. reguleringsplan 2000009 "Vrådal skisenter felt B1-B2" med tilhørende bestemmelser.
Bestemmelsene tillater oppføring av fritidsbolig med sadeltak med takvinkel mellom 22 og 30 grader. Maksimal mønehøyde fra ferdig terreng til overkant tak skal ikke overstige 7,5 meter, og maksimal gesimshøyde er 5,0 meter. Sokkelhøyden skal ikke overstige 70 cm.
I kommuneplanens arealdel er eiendommen avsatt til fritidsbusetnad. I kommuneplanen er eiendommen underlagt detaljeringssone H910 som innebærer at den eldre reguleringsplanen gjelder foran kommuneplanen. Kommuneplanen presiserer et unntak fra dette: "tilknytingsplikt for eksisterande fritidsbustader til offentleg vatn- og avløpsanlegg".
Reguleringskart ligger vedlagt salgsoppgaven.
Økonomi
Økonomi
Kommunale utgifter
Kommunale avgifter for 2025 var 14 448,97. Dette inkluderer vann, avløp, feiing og renovasjon. Kommunens prognose for 2026 er kr 13 724,13.
Det er ikke registrert vannmåler på eiendommen. Gebyrene er basert på stipulert forbruk.
Andre løpende kostnader opplyst av selger:
- Bygningsforsikring: kr 11 000,- per år
- Strømforbruk: ca. kr 12 000,- per år
- TV/Internett: Telia Mobile ruter
- Velavgift til Vrådal velforening er kr 300 pr. år. Valgfritt!
- Avgift til Vrådal panorama er kr. XXXX. Dette er for drift, vedlikehold, snøbrøyting m.m. Det inkluderer også bompassering for to registrerte biler. Dette gjøres i App.
- Brøyting av gårdsplass, skjer etter avtale med Vrådal Panorama og deres satser. Pr ,2024/2025 kostet det kr 2.925,- for 5 klipp. Ytterligere kjøpes ved behov, og bestilles i App.
Utgiftene er basert på nåværende eiers forbruk og avtaler.
Formuesverdi
Formuesverdi for 2024 var kr 603 941,- ifølge selgers Skatteetaten.
Eiendomsskatt
Det er p.t ikke vedtatt eiendomsskatt for eiendommer i kommunen.
Omkostninger
3 950 000,00 Prisantydning
Omkostninger
98 750,00 Dokumentavgift til staten (2,5% av kjøpesum)
19 900,00 Gjensidige Boligkjøperpakke (valgfri)
545,00 Tinglysing panterettsdokument
545,00 Tinglysing skjøte
--------------------------------------------------------
119 740,00 Omkostninger totalt
--------------------------------------------------------
4 069 740,00 Totalpris inkl. omkostninger
--------------------------------------------------------
Totalpris inkl. omkostninger forutsetter kjøp til prisantydning. Det tas forbehold om endringer i avgifter og gebyrer.
Tilbud om lånefinansiering
Megler formidler gjerne kontakt med rådgiver hos vår samarbeidspartner BN Bank. De har konkurransedyktige betingelser samt rask og løsningsorientert behandling av din lånesøknad. Krogsveen mottar et honorar dersom lån opprettes.
Betalingsbetingelser
Kjøpesum inkludert omkostninger, samt pantedokument tilknyttet eventuelt lån, skal være disponibelt hos megler 2 virkedager før overtagelsen.
Annen viktig informasjon
Annen viktig informasjon
Eier
Ingun Margrethe Kagnes og Stein Erik Kagnes
Konsesjon
Eiendommen er ikke konsesjonspliktig, men det er boplikt i Kviteseid kommune. For at eiendommen skal kunne overskjøtes må kjøper signere på egenerklæring om konsesjonsfrihet om at boplikten ikke gjelder for denne eiendommen.
Overtakelse
Etter nærmere avtale.
Boligselgerforsikring
Selger har i forbindelse med salget tegnet boligselgerforsikring levert av Gjensidige.
Boligselgerforsikringen dekker selgers ansvar etter avhendingsloven begrenset oppad til kr 14 millioner. Dersom kjøper oppdager forhold ved eiendommen som hen mener utgjør en mangel ved eiendommen, vil Gjensidige behandle reklamasjonen på vegne av selger. Forsikringsvilkår kan fås ved henvendelse til megler.
Vedlagt salgsoppgaven følger selgers egenerklæringsskjema og tilstandsrapport. Interessenter må sette seg inn i dokumentene før bud inngis.
Boligkjøperforsikring
Innen kontraktsmøtet må kjøper ta stilling til om det ønskes å bestille Boligkjøperpakken gjennom Gjensidige. I denne gunstige pakken er boligen ferdig forsikret og inkluderer rettshjelpsforsikring, også kalt Boligkjøperforsikring. Rettshjelpsforsikring gir trygghet og tilgang på profesjonell juridisk hjelp dersom det oppdages uventede feil eller mangler det første året etter overtagelse. Forsikringsselskapet behandler i så fall ethvert mangelskrav kjøper måtte ha overfor selger.
Boligkjøperpakken inkluderer bygningsforsikring for hus og hytte, innboforsikring, flytteforsikring og dobbel rentedekning - i situasjoner hvor kjøper ikke får solgt nåværende primærbolig.
Kjøper mottar ingen særskilt faktura for Boligkjøperpakken da kostnaden det første året legges til kjøpesummen for boligen. Det gjøres oppmerksom på Krogsveen mottar et honorar for denne formidlingen.
Produktark for Boligkjøperpakken ligger vedlagt i salgsoppgaven.
Dersom ikke boligkjøperpakke ønskes kan kun rettshjelpsforsikring, også kalt boligkjøperforsikring, tegnes særskilt via megler. Rettshjelpsforsikringen varer i 5 år fra overtagelse og leveres gjennom Gjensidige. Ta kontakt med megler for ytterligere informasjon.
Selskap og privatpersoner som driver med kjøp/salg/utvikling som ledd i egen næringsvirksomhet kan ikke tegne boligkjøperpakke eller rettshjelpsforsikring.
Budgivning
Forbrukerinformasjon om budgivning er vedlagt denne salgsoppgaven og er også på vår hjemmeside Krogsveen.no. Alle bud og budforhøyelser må inngis skriftlig. I tillegg må legitimasjon være fremlagt sammen med signatur fra budgiver.
Vi oppfordrer til å gi bud elektronisk via GI BUD-knappen på eiendommens hjemmeside på Krogsveen.no. Da vil samtlige vilkår bli oppfylt.
Eventuelle forhøyelser eller endringer av budet kan bekreftes pr SMS eller på e-post. Vi oppfordrer alltid til å kontakte megler pr. telefon i tillegg da forsinkelser i SMS og e-post kan forekomme.
For at budene skal kunne bli behandlet og videreformidlet skriftlig til alle involverte parter, må alle bud ha en tilstrekkelig lang akseptfrist, jf. eiendomsmeglingsforskriften § 6-3.
Selger må også skriftlig akseptere budet før aksept kan formidles til budgiver. Akseptfrist bør derfor være på minimum 30 minutter, og budforhøyelser må derfor skje i god tid før fristens utløp.
Bud i forbrukerforhold kan uansett ikke settes med kortere frist enn kl. 12.00 første virkedag etter siste annonserte visning. I tillegg kan ikke budet ha forbehold om at det skal holdes hemmelig ovenfor øvrige interessenter. Megler har iht lov om eiendomsmegling ikke anledning til å videreformidle disse budene, og de vil dermed heller ikke bli journalført.
Etter at eiendommen er solgt vil kjøper og selger få tilsendt budjournal. Øvrige budgivere kan få utlevert kopi av budjournalen i anonymisert form.
Hvitvaskingsreglene
I henhold til lov om hvitvasking og terrorfinansiering har megler plikt til å gjennomføre kontrolltiltak overfor kunder, herunder fullmektiger. Dette innebærer bl.a. å bekrefte kunders og reelle rettighetshaveres identitet på bakgrunn av fremvist gyldig legitimasjon eller på annen godkjent måte, samt å innhente opplysninger om kundeforholdets formål og tilsiktede art.
Dersom slike kundetiltak ikke kan gjennomføres, kan megler ikke etablere kundeforholdet eller utføre transaksjonen.
Hvis kjøper ikke bidrar til gjennomføring av kundekontrollen og dette fører til at transaksjonen blir forsinket eller ikke kan gjennomføres, vil dette ansees som mislighold av avtalen og gi selger rettigheter etter avhendingslova kapittel 5. I tilfeller der selger ikke bidrar til gjennomføring av løpende kundekontroll underveis i oppdraget, er det selger som misligholder sine forpliktelser etter avtalen og gi kjøper rettigheter etter avhendingslovens kapittel 4. Partene er selv ansvarlige for eventuelle kostnader og ansvar dette kan medføre. Eiendomsmegleren eller eiendomsmeglingsforetaket kan ikke holdes ansvarlig for de konsekvenser dette vil kunne få for partene eller andre som har interesser i eiendomshandelen.
Kjøper oppfordres til å innbetale kjøpesummen som ikke kommer fra låneinstitusjon i én samlet innbetaling fra egen konto i norsk bank. Megler har plikt til å melde fra til Økokrim om eiendomshandler som fremstår som mistenkelige. Melding sendes Økokrim uten at partene varsles.
Personopplysningsloven
I henhold til personopplysningsloven gjør vi oppmerksom på at interessenter kan bli registrert for videre oppfølging.
Lovanvendelse
Generelle bestemmelser
Salgsoppgaven er basert på de opplysningene selger har gitt til megler, den bygningssakyndiges tilstandsrapport, samt opplysninger innhentet fra kommunen, Kartverket og andre tilgjengelige kilder. Det er viktig at kjøper setter seg grundig inn i alle salgsdokumentene, herunder salgsoppgave, tilstandsrapport og selgers egenerklæring. Kjøper anses kjent med forhold som er tydelig beskrevet i salgsdokumentene, og slike forhold kan ikke påberopes som mangler. Dette gjelder uavhengig av om kjøper har lest dokumentene. Alle interessenter oppfordres til å undersøke eiendommen nøye, gjerne sammen med fagkyndig før bud inngis. Kjøper som velger å kjøpe usett kan ikke gjøre gjeldende som mangel noe han burde blitt kjent med ved undersøkelsen.
Dersom det er behov for avklaringer, anbefaler vi at interessenter rådfører seg med eiendomsmegler eller egne rådgivere før det legges inn bud.
En bolig som har blitt brukt i en viss tid, har vanligvis blitt utsatt for slitasje og skader kan ha oppstått. Slik bruksslitasje må kjøper regne med, og det kan avdekkes enkelte forhold etter overtakelse som nødvendiggjør utbedringer. Normal slitasje og skader som nødvendiggjør utbedring, er innenfor hva kjøper må forvente og vil ikke utgjøre en mangel.
Kjøper og selgers rettigheter og plikter reguleres av avtalen mellom partene, samt informasjonen som har vært tilgjengelig for kjøperen i forbindelse med handelen. Avtalen utfylles av avhendingsloven, og det gjelder ulike avtalevilkår avhengig av om kjøper er forbrukerkjøper eller ikke. Dette er nærmere beskrevet nedenfor.
På grunn av ulike avtalevilkår kan selger vurdere bud fra en som ikke er forbruker, ulikt fra en forbrukers bud. Dersom kjøper ikke er forbruker, er selger sitt mulige mangelsansvar begrenset fordi eiendommen selges "som den er". Selger kan ikke ta «som den er»- forbehold overfor en forbrukerkjøper. Selv et lavere bud fra en som ikke er forbruker kan foretrekkes fordi begrensningen i mulig mangelsansvar kan ha egenverdi for selger. Selger står fritt til å forkaste eller akseptere ethvert bud, og er for eksempel ikke forpliktet til å akseptere høyeste bud.
Budgiver skal i budskjema avgi egenerklæring om budgiver er forbruker eller næringsdrivende/ person som hovedsakelig handler som ledd i næringsvirksomhet. Budgivere får informasjon dersom andre bud er inngitt av en som ikke er forbruker.
Forbrukerkjøp - definisjon
Med forbrukerkjøp menes kjøp av eiendom når kjøperen er en fysisk person som ikke hovedsakelig handler som ledd i næringsvirksomhet.
Forbruker – avtalevilkår
Eiendommen har en mangel dersom den ikke er i samsvar med kravene som følger av avtalen, eller det foreligger brudd på bestemmelsene i avhendingsloven §§ 3-2 til 3-8. Hvis eiendommen ikke er i samsvar med det kjøperen må kunne forvente ut ifra alder, type og synlig tilstand, kan det være grunnlag for mangelskrav. Det samme gjelder hvis det er holdt tilbake eller gitt uriktige opplysninger om eiendommen. Dette gjelder likevel bare dersom man kan gå ut ifra at det virket inn på avtalen at opplysningen ikke ble gitt eller at mangelskravet ikke blir rettet i tide på en tydelig måte.
Boligen kan ha en mangel etter avhendingsloven § 3-3 andre ledd, dersom det er avvik mellom opplyst og faktisk innvendig areal, forutsatt at avviket er på 2% eller mer og minimum 1 kvm.
Ved beregning av et eventuelt prisavslag eller erstatning må kjøper selv dekke tap/kostnader opptil et beløp på kr 10 000 (egenandel).
Ikke-forbruker (næringsdrivende) – definisjon
Hvis kjøper er en juridisk person, eller en fysisk person som hovedsakelig handler som ledd i næringsvirksomhet, vil kjøpet ikke anses som et forbrukerkjøp.
Ikke-forbruker – avtalevilkår
Eiendommen har en mangel dersom den ikke er i samsvar med kravene som følger av avtalen.
Eiendommen selges «som den er», og selgers ansvar utover det konkret avtalte er da begrenset etter avhendingsloven § 3-9, første ledd andre setning.
Avhendingsloven § 3-3 andre ledd fravikes, og hvorvidt boligens arealsvikt utgjør en mangel vurderes etter avhendingsloven § 3-8.
Informasjon om kjøpers undersøkelsesplikt, herunder oppfordringen om å undersøke eiendommen nøye, gjelder også for kjøpere som ikke anses som forbrukere.
Det forutsettes at hjemmel overføres til kjøper. Hvis kjøper ikke ønsker hjemmelsoverføring av eiendommen, må det tas forbehold om dette i budet.
Meglers vederlag
Meglers vederlag betales av selger og er avtalt til:
Vederlag: 1,50 % av salgssummen inkl. eventuell fellesgjeld. Minimumsprovisjon er kr 48 000,00
Vederlag:
Fotopakke inkl drone kr 5 200,00
Kontroll av hjemmel og heftelser kr 3 900,00
Markedsføringspakke Fritid kr 29 900,00
Oppgjør kr 8 900,00
Tilrettelegging kr 19 900,00
Visninger pr stk / Overtagelse kr 2 900,00
Utlegg:
Innhenting av offentlig opplysninger Kviteseid kr 2 200,00
Tinglysing sikring kr 545,00
Andre utgifter:
AX tilstandsrapport Hytte under 150 kvm kr 17 500,00
Boligselgerforsikring Gjensidige Tomt/Fritid regnes av prisant. kr 24 924,50
Vi er opptatt av verdiskapning, og har knyttet til oss samarbeidspartnere som skal sikre våre kunder de beste produkter og tjenester;
• I forbindelse med forberedelse av salget, innhenter vi informasjon om eiendommen hovedsakelig fra vår samarbeidspartner Ambita.
• Gjensidige leverer boligselgerforsikring og tilbyr bygningsforsikring
• Boligkjøperforsikring leveres av Hiscox og med Sedgwick som skadebehandler, og er formidlet gjennom Gjensidige.
• BN bank tilbyr finansieringsløsninger
• Vår avdeling Krogsveen Pluss tilbyr flyttetjenester som utvask, visningsvask, lager, tømming og transport av flyttelass, i tillegg til å formidle kontakt med Flip for overflateoppussing.
• I forbindelse med overtagelse av eiendommen tilbyr Overo avtale om strøm, alarm og bredbånd.
• Krogsveen er, sammen med øvrige bransjeaktører, medeier i den digitale annonseringsplattformen Hjem som eies av Bomega AS.
Opplysninger om oppdraget
Oppdragsnummer 22-0042/26
Eiendomsmegler Krogsveen AS, avd. Sandefjord
Jernbanealléen 13, 3210, SANDEFJORD
950 007 613
Oppdragets KR-kode KR22.2642
Dato
Sist oppdatert: 20. april 2026 kl. 14:24
Dokumenter
Dokumenter
PDF – 821 KB
PDF – 168 KB
PDF – 3 MB
PDF – 581 KB
PDF – 4 MB
PDF – 312 KB
PDF – 29 KB
PDF – 127 KB
PDF – 392 KB
Område
Legg til steder som er viktige for deg
Visning
For å delta på visning, ber vi om at du melder deg på. Da sikrer vi at du får nødvendig informasjon og at det er satt av tilstrekkelig med tid. Kontakt megler dersom annet tidspunkt ønskes. Husk å lese salgsoppgaven før visningen, så du stiller forberedt. NB. Visning utgår dersom det ikke er noen påmeldte.
Ta kontakt med megler for avtale om privatvisning.
Ønsker du kun å bli holdt orientert, kan du fra eiendommens hjemmeside få varsel om solgtpris, eller kontakte megler.
Lurer du på noe?
Vurderer du utleie?
Få et tilbud fra Utleie KrogsveenHva koster lånet?
Sjekk estimert lånekostnadVil du varsles om lignende boliger?
Ved å lagre ditt boligsøk hos oss får du beskjed når vi har en bolig som ligner denne, før den legges ut på markedet!




















































