Vestvang 8
5 790 000 kr
134 m²
4 soverom
Komplett salgsoppgave

Gjerdrum / Ask
Innholdsrik og gjennomgående 5-roms selveier over 2 plan. Garasjeplass med lader, 3 boder og flere solrike uteplasser
Prisantydning
5 790 000 krAndel fellesgjeld
13 410 krOmkostninger
155 790 krTotalpris
5 959 200 kr
Pris
Bruksareal
149 m²BRA-I (internt bruksareal)
134 m²BRA-E (eksternt bruksareal)
15 m²TBA (terrasse-balkongareal)
27 m²
Areal
Etasje
2Byggeår
2016Soverom
4 soveromBad
2 badType
EierleilighetEierform
EierseksjonFasiliteter
Garasje/P-plass, Heis og Balkong/TerrasseFellesutgifter
4 670 krEnergimerke
Rød C
Nøkkelinfo
Unngå doble boligrenter
Vi tilbyr gunstig forsikring.
Vurderer du utleie?
Få et tilbud fra Utleie KrogsveenHva koster lånet?
Sjekk estimert lånekostnadBeskrivelse
Kort om eiendommen
Innhold og byggemåte
Innhold og byggemåte
Eiendommen
Vestvang 8, 2022 GJERDRUM
Kommunenummer 3230, gårdsnummer 42, bruksnummer 95, seksjonsnummer 56, ideell andel 1/1
Kommunenummer 3230, gårdsnummer 42, bruksnummer 16, ideell andel 134/19165
Innhold
Totalt bruksareal BRA: 149 m²
BRA-i:
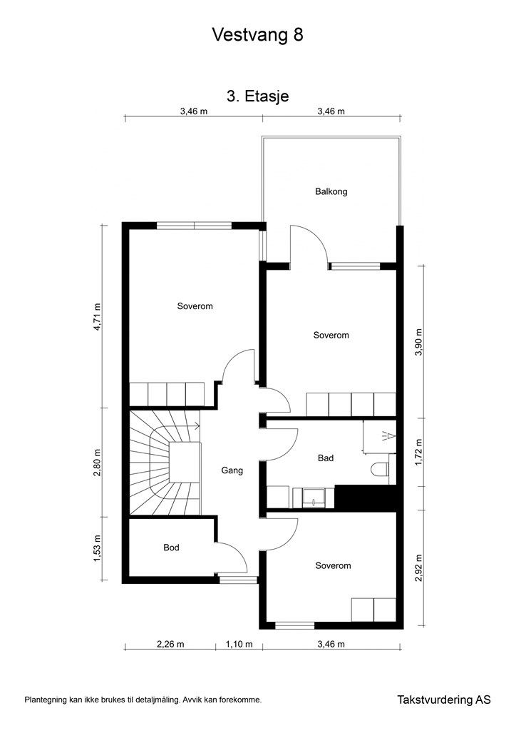
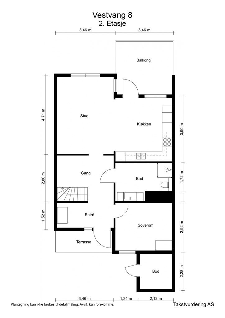
2. etasje 67 m²: Entré, gang, stue, kjøkken, soverom og badeværelse.
3. etasje 67 m²: 3 soverom, gang, badeværelse og bod.
BRA-e:
Kjeller: 10 m²: Kjellerbod.
2. etasje 5 m²: Bod.
Åpent areal:
2. etasje 16 m²: Balkong.
3. etasje 11 m²: Balkong.
Boligen disponerer 2 boder, en kjellerbod og en ved inngangen til leiligheten. Boden er tinglyst som en tilleggsdel til seksjonen.
De oppgitte arealer er hentet fra rapport med befaringsdato 04.09.2025 utført av Cristopher Hummervoll.
Byggemåte
Selger har fått utarbeidet en tilstandsrapport, dvs. en teknisk gjennomgang av boligen hvor eventuelle avvik, risiko for kjøper og prisoverslag for hva som bør gjøres av oppgradering, er skissert. Se særskilt TGIU (tilstandsgrad ikke undersøkt), samt TG2 og TG3 som viser hva som er boligens normale slitasje, alder og type, hva som er avvik fra dette og hva som bør/må utbedres.
Rapporten og selgers egenerklæring er en del av salgsoppgaven og må leses nøye før bud inngis. Kjøper overtar ansvaret for de opplysninger som fremkommer av salgsdokumentasjonen, og kan ikke gjøre gjeldende som mangel noe som burde vært kjent eller som ikke kan anses å ha betydning for avtalen.
Bygningen er iht. tilstandsrapporten oppført med grunnmur/dekke i betong og yttervegger i bindingsverk kledd med panel og fasadeplater.. Les forøvrig mer om byggemåte og den tekniske tilstanden i rapporten.
Følgende forhold gjøres spesielt oppmerksom på og har fått tilstandsgrad 2 (TG2):
Dører:
- Det er påvist dører som er vanskelig å åpne eller lukke. Det ble registrert ytterdør som tar i karmen. Dette kan gi økt slitasje over tid og gjøre døren hard å åpne eller lukke. Pakning rundt dør er løsnet. Justeringer anbefales.
Balkong:
- Rekkverket på balkongene er for lavt i forhold til dagens krav på rekkverkshøyde. Det er ikke krav om utbedring av rekkverkshøyde opp til dagens forskriftskrav.
- Det er registrert sprekker i treverket i terrassebord. Sprekker skyldes normalt værslitasje og uttørking, og kan medføre behov for økt vedlikehold.
- Det er registrert råteskade i kledning på balkongen i 2.etg. Det må gjøres ytterligere undersøkelser med sameie angående råteskade på kledning og utbedre skaden.
Følgende forhold er ikke undersøkt og har fått TGIU:
-Det er ikke foretatt hulltaking og fuktmåling på badene da våtrommene er prefabrikkerte våtromskabiner, hvor dette i henhold til forskrift ikke skal foretas.
Det er gjennomført fuktsøk med overflateindikator på utsiden av veggene, uten at det ble avdekket indikasjoner på fuktskade. Det understrekes imidlertid at denne metoden har begrenset evne til å avdekke skjulte fuktskader, og resultatene må derfor ikke tolkes som en garanti mot slike skader.
For øvrig har resten av boligen fått TG0/TG1. Se supplerende tekst i tilstandsrapporten. Kjøper overtar ansvar og risiko for dette.
Standard
2. ETASJE
E N T R É / G A N G:
Lys og innbydende entré / gang som leder videre inn i en sosial stue- og kjøkkensone.
I entreen er det god plass til oppbevaring av sko- og yttertøy. Det er fliser og gulvarme i første del av gangen, og parkett videre innover i leiligheten. Ellers downlights i nedsenket himling og lysmalte slette vegg- og takflater.
S T U E / B A L K O N G:
Stuen har god møbleringsfrihet for både sofagruppe og spisebord, og store vindusflater gir rikelig med dagslys og en luftig romfølelse.
Fra stuen er det utgang til en solvennlig balkong på 16 m² – en forlengelse av oppholdsrommet i sommerhalvåret.
K J Ø K K E N:
Kjøkkenet har en tidløs innredning med profilerte fronter og laminat benkeplate. Funksjonelle arbeidsflater og smarte oppbevaringsløsninger, samt integrerte hvitevarer som kjøl/frys, oppvaskmaskin, komfyr og platetopp. Her er det også komfyrvakt og vannstoppsystem for ekstra trygghet. Balansert ventilasjon bidrar til et godt inneklima.
B A D E V Æ R E L S E I:
Lyst og delikat badeværelse med vegghengte innfellbare dusjdører i herdet glass. Rikelig med oppbevaring i flere skap. Vegghengt speil med lys over. Vegghengt toalett med innbygd sisterne. Fliser på gulv og vegger. Varmekabler i gulv og downlights i nedsenket himling.
S O V E R O M I / GJESTEROM:
Lyst soverom med god plass til dobbeltseng, rikelig med oppbevaringsplass i flere garderobeskap, samt god plass til arbeidsbord.
Parkett på gulv og lysmalte slett vegg- og takflater.
Ved inngangspartiet er det også en bod på 5 m², som gir praktisk ekstra oppbevaring i tilknytning til leiligheten.
3. ETASJE
Opp trappen kommer du til en privat soveavdeling med tre soverom av god størrelse – ideelt for barnefamilier, hjemmekontor eller gjester. Etasjen har en sentral gang med adkomst til en praktisk innvendig bod og et nyttig bad nummer to.
S O V E R O M II / H O V E D S O V E R O M:
Stort soverom med god plass til dobbeltseng og nattbord på hver side. Rikelig med oppbevaringsplass i dobbelt garderobeskap. Parkett på gulv og lysmalte slette vegg- og takflater.
S O V E R O M III / B A R N E R O M:
Lyst soverom med god plass til dobbeltseng, rikelig med oppbevaringsplass i flere garderobeskap, samt god plass til arbeidsbord/tv-benk. Parkett på gulv og lysmalte slett vegg- og takflater.
Utgang til en fantastisk solvennlig balkong på 11 m² – perfekt for en rolig kaffestund eller lune kvelder.
S O V E R O M IIII / B A R N E R O M:
Lyst soverom med god plass til dobbeltseng, rikelig med oppbevaringsplass i garderobeskap, samt god plass til arbeidsbord.
Parkett på gulv og lysmalte slett vegg- og takflater.
B A D E V Æ R E L S E II:
Lyst og delikat badeværelse med vegghengte innfellbare dusjdører i herdet glass. Heldekkende servant med underskap, vegghengt speil med lys over. Vegghengt toalett med innbygd sisterne. Opplegg for vaskemaskin. Fliser på gulv og vegger. Varmekabler i gulv og downlights i nedsenket himling.
Kjekt å vite:
- Flott og lun uteplass like utenfor inngangspartiet til leiligheten
- Balansert ventilasjon i leiligheten sikrer gjennomgående frisk luft
- Elektriske varmekabler i flere gulv
- Downlights i flere nedsenkede himlinger
- Sameiet oppleves å være veldrevet med god økonomi og vedlikeholdshistorikk
- Svært kort vei til matbutikker, restauranter, cafeer, kollektivtransport og flere turområder, m.m.
Løsøre og tilbehør
Vi viser til liste fra Norges Eiendomsmeglerforbund som gjelder fra 01.01.2020 angående løsøre og tilbehør.
Elektrisk peis, kjøl/frys, vaskemaskin, tørketrommel, grill, bilder og vegghyller medfølger ikke.
Oppvarming
Boligen har elektrisk oppvarming via panelovner på vegg, samt elektriske varmekabler på baderommene.
Dersom beboelsesrom ikke har vegg- eller fastmonterte varmekilder ved visning, følger dette heller ikke med.
Ferdigattest/brukstillatelse
Det foreligger ferdigattest på boligen, datert 24.11.2017. Denne kan fås ved henvendelse til megler.
Det er uvisst om det er gjort endringer etter at ferdigattest ble gitt, men selger opplyser at det ikke er foretatt endringer i selgers eiertid.
Kjøper overtar alt ansvar, kostnad og risiko for dette videre.
Tinglyste heftelser og rettigheter
Utover andel fellesgjeld overdras leiligheten fri for pengeheftelser.
Sameiet har legalpant for krav mot sameieren som følger av sameieforholdet iht. eierseksjonsloven § 31. Pantet er begrenset oppad til 2G, (G = folketrygdens grunnbeløp).
I tillegg har sameiet tinglyst panterett som nevnt over.
Det er tinglyst 5 servitutter på sameiets eiendom. Disse omhandler blant annet forbud mot støyende produksjon mv., drift og vedlikehold av nettstasjon, bestemmelse om bebyggelse, vann/kloakkledninger, adkomstrett, beplantning og rettigheter og plikter ved bygging.
Servituttene vil følge eiendommen. Kjøpers bank vil få prioritet etter ovennevnte heftelser og servitutter.
Eventuell adgang til utleie
Leiligheten kan leies ut såfremt leiligheten har forsvarlige radonverdier. Leietaker må følge sameiets vedtekter og ordensregler på lik linje som eier.
Diverse
Solkart er kun ment som en illustrasjon over solforholdene midtsommers (21.6). Teknologien som brukes kan slå feil pga. kalibrering e.l. Solforhold må derfor også kontrolleres selv ved hjelp av kompass, kart eller egen app hvis dette er av betydning.
Tilbud av produkter og tjenester fra våre samarbeidspartnere
Vi er opptatt av verdiskapning, og har knyttet til oss samarbeidspartnere som skal sikre våre kunder de beste produkter og tjenester;
• Gjensidige leverer boligselgerforsikring og tilbyr bygningsforsikring
• Boligkjøperforsikring leveres av Hiscox og med Sedgwick som skadebehandler, og er formidlet gjennom Gjensidige.
• BN bank tilbyr finansieringsløsninger
• Vår avdeling Krogsveen Pluss tilbyr flyttetjenester som utvask, visningsvask, lager, tømming og transport av flyttelass, i tillegg til å formidle kontakt med Flip for overflateoppussing.
• I forbindelse med overtagelse av eiendommen tilbyr Overo avtale om strøm, alarm og bredbånd.
• Krogsveen er, sammen med øvrige bransjeaktører, medeier i den digitale annonseringsplattformen Hjem.
Beliggenhet og tomteforhold
Beliggenhet og tomteforhold
Beliggenhet
Leiligheten er beliggende midt i Ask i sentrum av Gjerdrum. På Ask finner du blant annet dagligvarehandel, restauranter, bibliotek, post, apotek og vinmonopol.
På Ask er det mye å finne på for store og små til alle årstider. Med markagrensen i gangavstand er turmulighetene mange. Her finner du flotte turforhold i Romeriksåsen hele året. Det er fine lysløyper om vinteren, og når sommeren kommer kan man ta en løpetur på en av de oppmerkede turstiene. Stolpejakt er også en fin mulighet til å gjøre seg kjent i nærområdet - les mer på stolpejakten.no
Lysdammen ligger skjermet til i Gjerdrums skoger, og er en idyllisk perle og et meget populært badested. En varm sommerkveld er det fint å sykle hit for et kveldsbad.
Det er ski- og aktivitetspark for barn og ungdom i Gjerdrum kommune. Alpinbakken har kveldsåpent ukedager til kl 21.00, med en nedfart på 500 meter.
Gjerdrum er en idretts glad bygd med mye aktivitet for store og små. Kommunen tilbyr et bredt utvalg av idretter, bl.a: langrenn, skiskyting, alpint, håndball, taekwondo, innebandy, idrettsskole og fotball. Fotballbanen som ligger et steinkast unna har undervarme, og kan dermed benyttes året rundt.
Det er gangavstand til både barnehage, barne- og ungdomsskole. Gjerdrum ungdomsskole ble nyåpnet til skolestart i 2009, og ble senere tildelt statens byggeskikkpris. Gjerdrum kommune har også en populær fritidsklubb som holder til på ungdomsskolen.
Med bil fra Ask tar det ca. 8 min til Skedsmokorset, 10 min til Kløfta, 20 min til Strømmen/Lillestrøm, 15-20 min til Oslo lufthavn, samt ca. 40 min til Oslo S.
Adkomst
Fra Skedsmokorset: Følg veien til Gjerdrum/Nannestad.
Det vil bli skiltet med Krogsveen visningsskilt ved fellesvisninger.
Barnehager, skoler og fritid
Barnehager:
- Gjerdrum barnehage (1-5 år) 1.1 km
- Espira brådalsfjellet barnehage (0-6 år) 2.1 km
- Grønlund barnehage (1-5 år) 3.1 km
Skoler:
- Gjerdrum barneskole (1-7 kl.) 0.7 km
- Gjerdrum ungdomsskole (8-10 kl.) 1.1 km
- OKS Videregående skole 12 km
- Lillestrøm videregående skole 13.8 km
Informasjon om tilhørende skolekretser er hentet fra Prognosesenteret som dataleverandør, og tilhørigheten kan årlig endres av kommunen. Dersom skole- og barnehagetilbud er av betydning for kjøpet, ber vi om at det rettes en særskilt henvendelse til kommunen for oppdatert informasjon.
Beskrivelse av tomt
Pent opparbeidet felles eiertomt på 5 630 m² med blant annet asfaltert adkomst, gressplen, trær, prydbusker og diverse beplantning.
Parkeringsplassen i garasjen har eget gårds og bruksnummer og har et eget sameie med eierbrøk 1/73.
Realsameie med gårdsnummer 42 bruksnummer 16 er gjesteparkering.
Parkering
Leiligheten disponerer 1 biloppstillingsplass med elbil-lader i felles garasjekjeller med plass nr. 32. Garasjeplassen er et realsameie av seksjonsnummer 62, hvor 1/73 tilsvarer 1 biloppstillingsplass. Ellers parkering etter områdets bestemmelser.
Ved eierskifte skal selger betale kr 1.650,- for dokumentbehandling til forretningsfører for parkeringsplassen.
Etter eierseksjonsloven § 26 kan styret, etter krav fra en seksjonseier med nedsatt funksjonsevne, pålegge en annen seksjonseier uten behov for å tilrettelagt plass å bytte parkeringsplass. Dette gjelder kun dersom seksjonseieren med nedsatt funksjonsevne allerede disponerer en parkeringsplass i sameiet.
Med samtykke fra styret kan en seksjonseier anlegge ladepunkt for elbil og ladbare hybrider ved parkeringsplassen som seksjonen disponerer, eller andre steder som styret anviser. Styret kan bare nekte å samtykke dersom det foreligger en saklig grunn, jf. eierseksjonsloven § 25.
Vei, vann og avløp
Eiendommen har adkomst via offentlig veg eller gate. Eiendommen er tilknyttet offentlig vannforsyning via private stikkledninger. Eiendommen er tilknyttet offentlig avløpsnett via private stikkledninger. Sameiet er ansvarlig for private stikkledninger til bygningen.
Regulerings-og arealplaner
Eiendommen er regulert til bolig-, forretning og kontorformål i henhold til reguleringsplan for Vestvang datert 21.11.2023 med tilhørende reguleringsbestemmelser.
I henhold til reguleringsplanen ligger leiligheten i faresone for ras og skred. I 2020 var det et ras i Gjerdrum, men området leiligheten ligger i ble ikke påvirket. Det er påvist kvikkleire i området med lav faregrad basert på NVE sine vurderinger. Se for øvrig NVE sine nettsider for mer informasjon.
I henholt til kommuneplanen er området regulert til sentrumsformål. Et lite området på 20 kvm er regulert til nåværende grøntstruktur.
Økonomi
Økonomi
Boligens kostnader
Fellesutgiftene er kr 4.670,- pr. mnd. og inkluderer bredbånd og kabel-tv, kapitalkostnader felles lån, forretningsførsel, felles bygningsforsikring, drift- og vedlikehold m.m.
Fellesutgiftene justeres normalt en til to ganger årlig i forhold til sameiets faktiske utgifter.
Garasjeplass faktureres separat kr 287,- pr mnd. for drift og vedlikehold.
De årlige kommunale kostnadene for boligen ligger normalt rundt kr 19.000,- for en gjennomsnittlig husholdning. Det høyere beløpet på kr 27.140,- reflekterer forbruket til en fempersoners familie som bor her. For mindre husholdninger, par eller enslige, vil de faktiske kostnadene derfor være betydelig lavere.
Nåværende eier har hatt et strømforbruk som utgjorde kr 16.216,-. Dette tilsvarte et for forbruk på 20 270 kwh for hele 2024. Utgiftene er basert på nåværende eiers forbruk.
Selger har ikke avtale om Norgespris på strøm.
Les mer om Norgespris her: https://www.regjeringen.no/no/aktuelt/legg-fram-lov-om-norgespris-pa-straum-og-fjernvarme/id3102642/
Boligen er tilknyttet Altibox som leverandør av tv/internett og er inkludert i felleskostnadene. Tv-tuner/dekoder medfølger.
Kjøper må selv tegne innboforsikring.
Kommunale utgifter
Kommunale avgifter er kr 27.140,- for hele inneværende år. I dette inngår gebyr for a-konto vann og avløp, samt renovasjon.
De årlige kommunale kostnadene for boligen ligger normalt rundt kr 19.000,- for en gjennomsnittlig husholdning. Det høyere beløpet på kr 27.140,- reflekterer forbruket til en fempersoners familie som bor her. For mindre husholdninger, par eller enslige, vil de faktiske kostnadene derfor være betydelig lavere.
Boligen er utstyrt med moderne og energieffektive løsninger, inkludert oppvarming og varmtvann, som bidrar til å holde løpende kostnader nede. Dette gir et realistisk bilde av kostnader, samtidig som det viser at boligen er både praktisk og økonomisk for ulike husholdningsstørrelser.
Formuesverdi
Formuesverdi for 2023 var kr 1.639.393,- ifølge skatteetaten. Beløpet forutsetter at eier bor fast i boligen (primærbolig).
Ved eventuell øvrig bruk av eiendommen (f.eks. fritidsbolig, pendlerbolig, utleieobjekt) var formuesverdien for 2023 kr 6.557.573,-
Formuesverdien justeres normalt årlig. Se skatteetaten.no for mer informasjon om fastsettelse av formuesverdien.
Eiendomsskatt
Det er p.t ikke vedtatt eiendomsskatt for eiendommer i kommunen.
Opplysninger om fellesgjeld
Andel formue er kr 12.289,- pr. 31.12.2024
Andel fellesgjeld er kr 13.410,- pr. 21.08.2025
Total fellesgjeld for sameiet er kr 761.957,- pr. 21.08.2025 og lånevilkårene er:
Lånenummer: 98207942316
Type lån: Annuitetslån
Rente: 7,65% flytende
Andel restsaldo: kr 13.410,-
Innfrielsesdato: 30.09.2029
IN-ordning: Nei
Avdragsfrihet: Nei
Omkostninger
5 790 000,00 Prisantydning
Omkostninger:
145 000,00 Dokumentavgift til staten (2,5% av kjøpesum)
545,00 Tinglysing hjemmel
545,00 Tinglysing panterettsdokument
9 950,00 Tryg Boligkjøperpakke (valgfri)
--------------------------------------------------------
155 790,00 Omkostninger totalt
--------------------------------------------------------
--------------------------------------------------------
5 945 790,00 Totalpris inkl. omkostninger
--------------------------------------------------------
Tilbud om lånefinansiering
Megler formidler gjerne kontakt med rådgiver hos vår samarbeidspartner BN Bank. De har konkurransedyktige betingelser samt rask og løsningsorientert behandling av din lånesøknad. Krogsveen mottar et honorar for denne formidlingen.
Betalingsbetingelser
Kjøpesum inkludert omkostninger, samt pantedokument tilknyttet eventuelt lån, skal være disponibelt hos megler 2 virkedager før overtagelsen.
Annen viktig informasjon
Annen viktig informasjon
Eier
Filip Cubra og Marijana Cubra
Informasjon om sameiet
Eiendommen er seksjonert, og leiligheten er tilknyttet Sameiet Vestvang, med sameiebrøk 134/7666.
Sameiet består av 60 leiligheter og 3 næringsseksjoner.
Forretningsfører er OBOS Eiendomsforvaltning AS, tlf. 22 98 14 64
Dugnad må påregnes.
Dyrehold er tillatt.
Vi gjør videre oppmerksom på at det iht. eierseksjonsloven ikke er anledning å erverve mer enn 2 seksjoner i sameiet, her teller også eierskap via. firma, nærstående og familie. Kjøper har risikoen for at overskjøting på denne bakgrunn kan nektes av Statens Kartverk. I så fall vil kjøper uansett være forpliktet til å gjennomføre handelen, og oppgjør til selger vil finne sted tross manglende overskjøting. Konferer med megler for mer informasjon.
Dokumenter for sameiet og kopi av seksjonsbegjæringen kan fås ved henvendelse til megler.
Overtakelse
Etter nærmere avtale.
Boligselgerforsikring
Det gjøres oppmerksom på at selger ikke har tegnet boligselgerforsikring som dekker selgers ansvar etter avhendingsloven. Likevel foreligger selgers egenerklæring og godkjent tilstandsrapport som interessenter må sette seg inn i før bud inngis. Eventuelle reklamasjoner må rettes direkte til selger.
Boligkjøperforsikring
Innen kontraktsmøtet må kjøper ta stilling til om det ønskes å bestille Boligkjøperpakken gjennom Gjensidige. I denne gunstige pakken er boligen ferdig forsikret og inkluderer rettshjelpsforsikring, også kalt Boligkjøperforsikring. Rettshjelpsforsikring gir trygghet og tilgang på profesjonell juridisk hjelp dersom det oppdages uventede feil eller mangler det første året etter overtagelse. Forsikringsselskapet behandler i så fall ethvert mangelskrav kjøper måtte ha overfor selger.
Boligkjøperpakken inkluderer bygningsforsikring for hus og hytte, innboforsikring, flytteforsikring og dobbel rentedekning - i situasjoner hvor kjøper ikke får solgt nåværende primærbolig.
Kjøper mottar ingen særskilt faktura for Boligkjøperpakken da kostnaden det første året legges til kjøpesummen for boligen. Det gjøres oppmerksom på Krogsveen mottar et honorar for denne formidlingen.
Produktark for Boligkjøperpakken ligger vedlagt i salgsoppgaven.
Dersom ikke boligkjøperpakke ønskes kan kun rettshjelpsforsikring, også kalt boligkjøperforsikring, tegnes særskilt via megler. Rettshjelpsforsikringen varer i 5 år fra overtagelse og leveres gjennom Gjensidige. Ta kontakt med megler for ytterligere informasjon.
Selskap og privatpersoner som driver med kjøp/salg/utvikling som ledd i egen næringsvirksomhet kan ikke tegne boligkjøperpakke eller rettshjelpsforsikring.
Budgivning
Forbrukerinformasjon om budgivning er vedlagt denne salgsoppgaven og er også på vår hjemmeside Krogsveen.no. Alle bud og budforhøyelser må inngis skriftlig. I tillegg må legitimasjon være fremlagt sammen med signatur fra budgiver.
Vi oppfordrer til å gi bud elektronisk via GI BUD-knappen på eiendommens hjemmeside på Krogsveen.no. Da vil samtlige vilkår bli oppfylt.
Eventuelle forhøyelser eller endringer av budet kan bekreftes pr SMS eller på e-post. Vi oppfordrer alltid til å kontakte megler pr. telefon i tillegg da forsinkelser i SMS og e-post kan forekomme.
For at budene skal kunne bli behandlet og videreformidlet skriftlig til alle involverte parter, må alle bud ha en tilstrekkelig lang akseptfrist, jf. eiendomsmeglingsforskriften § 6-3.
Selger må også skriftlig akseptere budet før aksept kan formidles til budgiver. Akseptfrist bør derfor være på minimum 30 minutter, og budforhøyelser må derfor skje i god tid før fristens utløp.
Bud i forbrukerforhold kan uansett ikke settes med kortere frist enn kl. 12.00 første virkedag etter siste annonserte visning. I tillegg kan ikke budet ha forbehold om at det skal holdes hemmelig ovenfor øvrige interessenter. Megler har iht lov om eiendomsmegling ikke anledning til å videreformidle disse budene, og de vil dermed heller ikke bli journalført.
Etter at eiendommen er solgt vil kjøper og selger få tilsendt budjournal. Øvrige budgivere kan få utlevert kopi av budjournalen i anonymisert form.
Hvitvaskingsreglene
I henhold til lov om hvitvasking og terrorfinansiering har megler plikt til å gjennomføre kontrolltiltak overfor kunder, herunder fullmektiger. Dette innebærer bl.a. å bekrefte kunders og reelle rettighetshaveres identitet på bakgrunn av fremvist gyldig legitimasjon eller på annen godkjent måte, samt å innhente opplysninger om kundeforholdets formål og tilsiktede art.
Dersom slike kundetiltak ikke kan gjennomføres, kan megler ikke etablere kundeforholdet eller utføre transaksjonen.
Hvis kjøper ikke bidrar til gjennomføring av kundekontrollen og dette fører til at transaksjonen blir forsinket eller ikke kan gjennomføres, vil dette ansees som mislighold av avtalen og gi selger rettigheter etter avhendingslova kapittel 5. I tilfeller der selger ikke bidrar til gjennomføring av løpende kundekontroll underveis i oppdraget, er det selger som misligholder sine forpliktelser etter avtalen og gi kjøper rettigheter etter avhendingslovens kapittel 4. Partene er selv ansvarlige for eventuelle kostnader og ansvar dette kan medføre. Eiendomsmegleren eller eiendomsmeglingsforetaket kan ikke holdes ansvarlig for de konsekvenser dette vil kunne få for partene eller andre som har interesser i eiendomshandelen.
Kjøper oppfordres til å innbetale kjøpesummen som ikke kommer fra låneinstitusjon i én samlet innbetaling fra egen konto i norsk bank. Megler har plikt til å melde fra til Økokrim om eiendomshandler som fremstår som mistenkelige. Melding sendes Økokrim uten at partene varsles.
Personopplysningsloven
I henhold til personopplysningsloven gjør vi oppmerksom på at interessenter kan bli registrert for videre oppfølging.
Lovanvendelse
Generelle bestemmelser
Salgsoppgaven er basert på de opplysningene selger har gitt til megler, den bygningssakyndiges tilstandsrapport, samt opplysninger innhentet fra kommunen, Kartverket og andre tilgjengelige kilder. Det er viktig at kjøper setter seg grundig inn i alle salgsdokumentene, herunder salgsoppgave, tilstandsrapport og selgers egenerklæring. Kjøper anses kjent med forhold som er tydelig beskrevet i salgsdokumentene, og slike forhold kan ikke påberopes som mangler. Dette gjelder uavhengig av om kjøper har lest dokumentene. Alle interessenter oppfordres til å undersøke eiendommen nøye, gjerne sammen med fagkyndig før bud inngis. Kjøper som velger å kjøpe usett kan ikke gjøre gjeldende som mangel noe han burde blitt kjent med ved undersøkelsen.
Dersom det er behov for avklaringer, anbefaler vi at interessenter rådfører seg med eiendomsmegler eller egne rådgivere før det legges inn bud.
En bolig som har blitt brukt i en viss tid, har vanligvis blitt utsatt for slitasje og skader kan ha oppstått. Slik bruksslitasje må kjøper regne med, og det kan avdekkes enkelte forhold etter overtakelse som nødvendiggjør utbedringer. Normal slitasje og skader som nødvendiggjør utbedring, er innenfor hva kjøper må forvente og vil ikke utgjøre en mangel.
Kjøper og selgers rettigheter og plikter reguleres av avtalen mellom partene, samt informasjonen som har vært tilgjengelig for kjøperen i forbindelse med handelen. Avtalen utfylles av avhendingsloven, og det gjelder ulike avtalevilkår avhengig av om kjøper er forbrukerkjøper eller ikke. Dette er nærmere beskrevet nedenfor.
På grunn av ulike avtalevilkår kan selger vurdere bud fra en som ikke er forbruker, ulikt fra en forbrukers bud. Dersom kjøper ikke er forbruker, er selger sitt mulige mangelsansvar begrenset fordi eiendommen selges "som den er". Selger kan ikke ta «som den er»- forbehold overfor en forbrukerkjøper. Selv et lavere bud fra en som ikke er forbruker kan foretrekkes fordi begrensningen i mulig mangelsansvar kan ha egenverdi for selger. Selger står fritt til å forkaste eller akseptere ethvert bud, og er for eksempel ikke forpliktet til å akseptere høyeste bud.
Budgiver skal i budskjema avgi egenerklæring om budgiver er forbruker eller næringsdrivende/ person som hovedsakelig handler som ledd i næringsvirksomhet. Budgivere får informasjon dersom andre bud er inngitt av en som ikke er forbruker.
Forbrukerkjøp - definisjon
Med forbrukerkjøp menes kjøp av eiendom når kjøperen er en fysisk person som ikke hovedsakelig handler som ledd i næringsvirksomhet.
Forbruker – avtalevilkår
Eiendommen har en mangel dersom den ikke er i samsvar med kravene som følger av avtalen, eller det foreligger brudd på bestemmelsene i avhendingsloven §§ 3-2 til 3-8. Hvis eiendommen ikke er i samsvar med det kjøperen må kunne forvente ut ifra alder, type og synlig tilstand, kan det være grunnlag for mangelskrav. Det samme gjelder hvis det er holdt tilbake eller gitt uriktige opplysninger om eiendommen. Dette gjelder likevel bare dersom man kan gå ut ifra at det virket inn på avtalen at opplysningen ikke ble gitt eller at mangelskravet ikke blir rettet i tide på en tydelig måte.
Boligen kan ha en mangel etter avhendingsloven § 3-3 andre ledd, dersom det er avvik mellom opplyst og faktisk innvendig areal, forutsatt at avviket er på 2% eller mer og minimum 1 kvm.
Ved beregning av et eventuelt prisavslag eller erstatning må kjøper selv dekke tap/kostnader opptil et beløp på kr 10 000 (egenandel).
Ikke-forbruker (næringsdrivende) – definisjon
Hvis kjøper er en juridisk person, eller en fysisk person som hovedsakelig handler som ledd i næringsvirksomhet, vil kjøpet ikke anses som et forbrukerkjøp.
Ikke-forbruker – avtalevilkår
Eiendommen har en mangel dersom den ikke er i samsvar med kravene som følger av avtalen.
Eiendommen selges «som den er», og selgers ansvar utover det konkret avtalte er da begrenset etter avhendingsloven § 3-9, første ledd andre setning.
Avhendingsloven § 3-3 andre ledd fravikes, og hvorvidt boligens arealsvikt utgjør en mangel vurderes etter avhendingsloven § 3-8.
Informasjon om kjøpers undersøkelsesplikt, herunder oppfordringen om å undersøke eiendommen nøye, gjelder også for kjøpere som ikke anses som forbrukere.
Det forutsettes at hjemmel overføres til kjøper. Hvis kjøper ikke ønsker hjemmelsoverføring av eiendommen, må det tas forbehold om dette i budet.
Meglers vederlag
Meglers vederlag betales av selger og er avtalt til:
Vederlag: 1% av salgssummen
Tilrettelegging: kr 18.750,-
Oppgjør: kr 7.500,-
Markedspakke: kr 28.250,-
Visning: kr 3.500,-
Oppslag eiendomsregister: kr 2.900,-
Megler har i tillegg krav på dekning av følgende utlegg:
Eierskiftegebyr forretningsfører - OBOS: kr 6.570,-
Informasjon fra forretningsfører - OBOS (liten pakke): kr 2.750,-
Boligens visittkort: kr 600,-
Foto inkl. møblerte plantegninger: kr 5.900,-
Tilstandsrapport fra bygningssakkyndig: kr 9.700,-
Opplysninger om oppdraget
Oppdragsnummer 54-0084/25
Eiendomsmegler Krogsveen AS, avd. Løren
Lørenveien 50, 0585, OSLO
950 007 613
Oppdragets KR-kode KR54.2584
Dato
Sist oppdatert: 23. februar 2026 kl. 09:49
Dokumenter
Dokumenter
PDF – 1000 KB
PDF – 743 KB
PDF – 2 MB
PDF – 312 KB
PDF – 29 KB
PDF – 127 KB
PDF – 392 KB
Område
Legg til steder som er viktige for deg
Visning
Kontakt megler på telefon eller via linken «visningspåmelding» for å avtale tidspunkt. Det vil ikke bli avholdt visning uten påmelding.
Husk også å lese salgsoppgaven før visningen.
Lurer du på noe?
Unngå doble boligrenter
Vi tilbyr gunstig forsikring.
Vurderer du utleie?
Få et tilbud fra Utleie KrogsveenHva koster lånet?
Sjekk estimert lånekostnadVil du varsles om lignende boliger?
Ved å lagre ditt boligsøk hos oss får du beskjed når vi har en bolig som ligner denne, før den legges ut på markedet!

