Børjerlia 59
16 000 000 kr
305 m²
5 soverom
Solgt
LOMMEDALEN
Eksklusiv arkitekttegnet enebolig i blindvei. 5 soverom, fantastisk utsikt, innbydende hage og nærhet til marka
Prisantydning
16 000 000 krOmkostninger
420 990 krTotalpris
16 420 990 kr
Pris
Bruksareal
350 m²BRA-I (internt bruksareal)
305 m²BRA-E (eksternt bruksareal)
45 m²TBA (terrasse-balkongareal)
111 m²
Areal
Byggeår
1970Soverom
5 soveromBad
3 badTomteareal
1 446 m² (eiet)Type
Enebolig - FrittliggendeEierform
EietFasiliteter
Garasje/P-plass og Balkong/TerrasseEnergimerke
Oransje E
Nøkkelinfo
Unngå doble boligrenter
Vi tilbyr gunstig forsikring.
Vurderer du utleie?
Få et tilbud fra Utleie KrogsveenHva koster lånet?
Sjekk estimert lånekostnadBeskrivelse
Kort om eiendommen
Velkommen til Børjerlia 59, og et av Lommedalens fineste og mest gjennomførte hus. Eneboligen har en nydelig beliggenhet i et attraktivt boligområde med nærhet til barnehager, skoler, buss, butikk, fritidsaktiviteter, skibakke og vakre turområder.
Boligen inneholder:
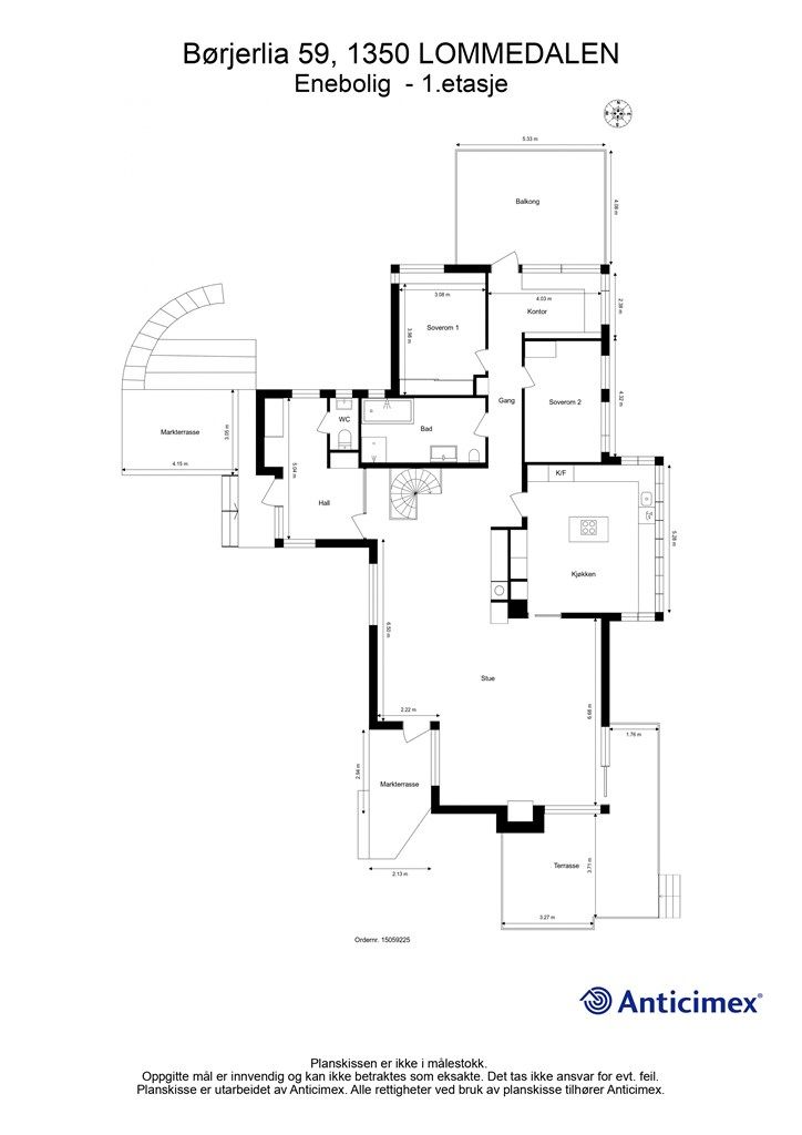
-Underetasje 131 kvm: Entré, trappegang, 3 soverom hvorav den ene innredet som trimrom, TV stue, bad med jacuzzi, badstue, vaskerom og 2 boder
-1. etasje 174 kvm: Hall, stue, kjøkken, bad, to soverom, toalettrom og kontor
Høydepunkter:
-Særdeles flott arkitekttegnet bolig med gjennomførte, gode valg
- Dobbelt garasje
-Nydelige uteområder, hage og fantastisk utsikt
-Kvänumkjøkken (2022) med Miele/Gaggenau hvitevarer
-3 ildsteder
-Balansert ventilasjon m/varmegjenvinning, to varmepumper
-Barnevennlig og hyggelig område
Område
Legg til steder som er viktige for deg
På flyttefot? Tenk kjøp og salg samtidig.
Få din egen rådgiver gjennom hele kjøps- og salgsprosessen. Det starter med en verdivurdering.
Unngå doble boligrenter
Vi tilbyr gunstig forsikring.
Vurderer du utleie?
Få et tilbud fra Utleie KrogsveenHva koster lånet?
Sjekk estimert lånekostnadVil du varsles om lignende boliger?
Ved å lagre ditt boligsøk hos oss får du beskjed når vi har en bolig som ligner denne, før den legges ut på markedet!




