Nybrottveien 33C
6 350 000 kr
140 m²
3 soverom
Solgt

Hebekk/Ski
Lekkert nyoppusset rekkehus med meget gode solforhold. 2 nye bad, nytt kjøkken++. Barnevennlig og populært boligområde.
Prisantydning
6 350 000 krAndel fellesgjeld
85 531 krOmkostninger
181 860 krTotalpris
6 617 391 kr
Pris
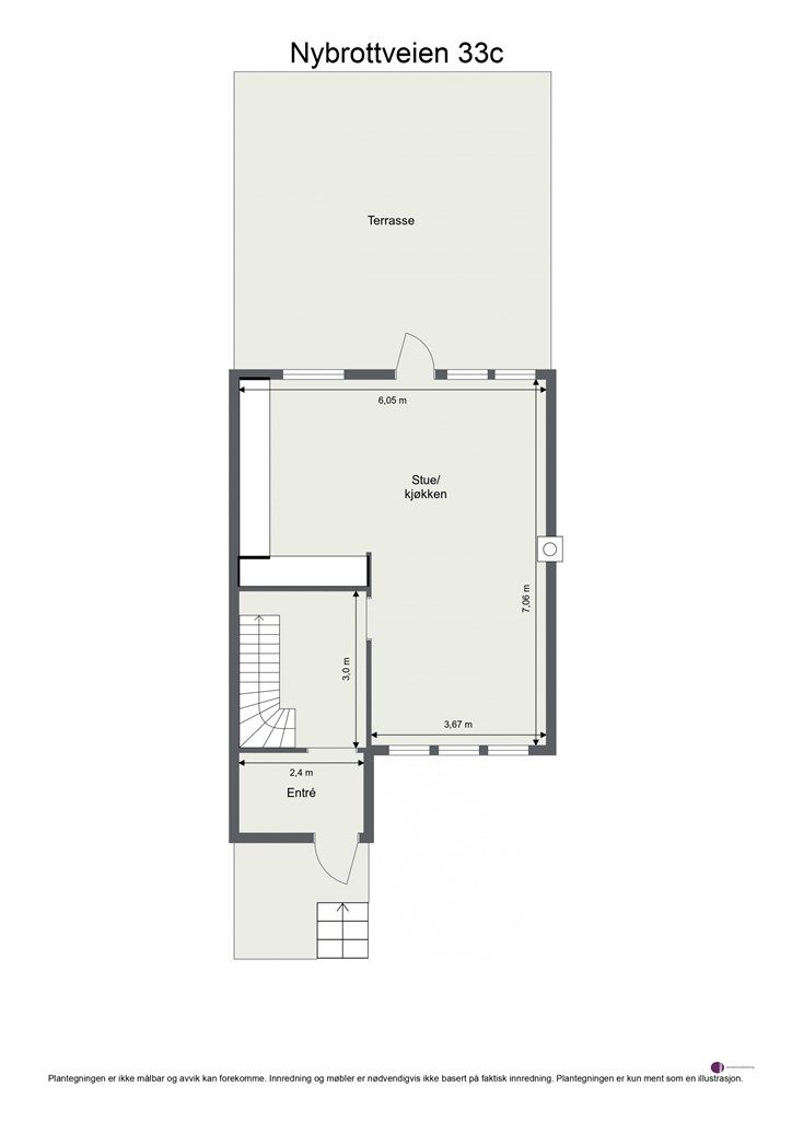
Bruksareal
162 m²BRA-I (internt bruksareal)
140 m²BRA-E (eksternt bruksareal)
22 m²TBA (terrasse-balkongareal)
34 m²
Areal
Byggeår
1968Soverom
3 soveromBad
2 badType
RekkehusEierform
EierseksjonFasiliteter
Garasje/P-plass og Balkong/TerrasseFellesutgifter
3 033 krEnergimerke
Oransje F
Nøkkelinfo
Unngå doble boligrenter
Vi tilbyr gunstig forsikring.
Vurderer du utleie?
Få et tilbud fra Utleie KrogsveenHva koster lånet?
Sjekk estimert lånekostnadBeskrivelse
Kort om eiendommen
- Området er svært barnevennlig. Her har du lekeplasser, barnehager, barneskole, ungdomsskole, Hebekkskogen og matbutikker innenfor gangavstand.
- Ca 15-20 minutter å gå til sentrum Eventuelt er det 1 minutt å gå til bussen som har forbindelse til Ski sentrum og Follobanen. Follobanen bruker 11-12 minutter til Oslo S med 6 avganger i timen.
- Boligen har nylig blitt vesentlig pusset opp. Det er 2 nye bad. Nytt Epoq kjøkken med integrerte hvitevarer. Mye nytt elektrisk. 4 nye vinduer. Ny vestvendt terrasse. Nye innerdører. Nye gulv. Nymalt kledning foran og bak.
- Gulvvarme i hele 1. etasje samt gang kjeller og begge bad.
- Garasje med elektrisk port og el-bil lader.
- Uteplassen på baksiden er vestvendt med svært gode solforhold.
- Lekker bolig som bør ses. Velkommen til visning!
Område
Legg til steder som er viktige for deg
På flyttefot? Tenk kjøp og salg samtidig.
Få din egen rådgiver gjennom hele kjøps- og salgsprosessen. Det starter med en verdivurdering.
Unngå doble boligrenter
Vi tilbyr gunstig forsikring.
Vurderer du utleie?
Få et tilbud fra Utleie KrogsveenHva koster lånet?
Sjekk estimert lånekostnadVil du varsles om lignende boliger?
Ved å lagre ditt boligsøk hos oss får du beskjed når vi har en bolig som ligner denne, før den legges ut på markedet!

