Sagstugrenda 10
3 850 000 kr
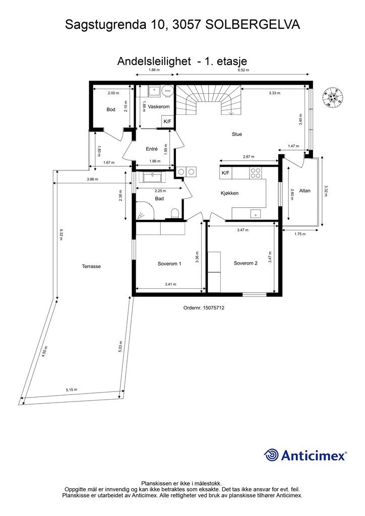
108 m²
3 soverom
Solgt

Presenteres av
Turid BorgersenSolbergelva
Innholdsrik leilighet over to plan beliggende i blindgate. Tre soverom. Gangavstand til matbutikk, barnehage og skoler.
Prisantydning
3 850 000 krAndel fellesgjeld
40 058 krOmkostninger
19 252 krTotalpris
3 909 310 kr
Pris
Bruksareal
112 m²BRA-I (internt bruksareal)
108 m²BRA-E (eksternt bruksareal)
4 m²TBA (terrasse-balkongareal)
51 m²
Areal
Etasje
2Byggeår
1992Soverom
3 soveromBad
1 badType
AndelsleilighetEierform
AndelFasiliteter
Balkong/TerrasseFellesutgifter
5 751 krEnergimerke
Rød D
Nøkkelinfo
Unngå doble boligrenter
Vi tilbyr gunstig forsikring.
Vurderer du utleie?
Få et tilbud fra Utleie KrogsveenHva koster lånet?
Sjekk estimert lånekostnadBeskrivelse
Kort om eiendommen
Innholdsrik leilighet over to plan beliggende i blindgate
- Stor terrasseplatting fra 2020 på ca. 45 kvm med god plass til utemøbler
Flislagt bad fra 2014 med gulvvarme - Pent kjøkken med profilert innredning fra 2011
- Nye hvitevarer i 2023 (bortsett fra kjøleskapet)
- Vinduer i boligen ble byttet i 2024 i regi av borettslaget
- Altan på ca. 6 kvm med adkomst fra stuen
- Utvendig bod ved inngangsparti på 4 kvm
- Kun 900 meter til barne- og ungdomskole, idrettsanlegg og Solbersenteret med Kiwi
- Kort vei til flott turterreng, sommer og vinter, med turstier og lysløyper
- Lekeplass oppdatert 2020 med nytt gulv og nye lekeapparater ved siden av boligen
Område
Legg til steder som er viktige for deg
På flyttefot? Tenk kjøp og salg samtidig.
Få din egen rådgiver gjennom hele kjøps- og salgsprosessen. Det starter med en verdivurdering.
Unngå doble boligrenter
Vi tilbyr gunstig forsikring.
Vurderer du utleie?
Få et tilbud fra Utleie KrogsveenHva koster lånet?
Sjekk estimert lånekostnadVil du varsles om lignende boliger?
Ved å lagre ditt boligsøk hos oss får du beskjed når vi har en bolig som ligner denne, før den legges ut på markedet!
På flyttefot? Slik gjør vi det enklere for deg
Skreddersydd flyttepakke
Vi fikser håndverkere, vask, pakking, lagring og transport, og legger ut for utgiftene underveis.
Hjelp med både kjøp og salg
Hos oss har du din egen rådgiver gjennom hele kjøps- og salgsprosessen.
Hjelp til finansiering
Vårt samarbeid med BN Bank sikrer deg rask og løsningsorientert hjelp, til konkurransedyktige betingelser.

