Styrmoes vei 3B
5 490 000 kr
187 m²
4 soverom
Komplett salgsoppgave

Danvik
Stor & familievennlig halvpart av vertikaldelt bolig. Fine uteplasser med flott byutsikt. Danvik skolekrets. Garasje.
Prisantydning
5 490 000 krOmkostninger
158 240 krTotalpris
5 648 240 kr
Pris
Bruksareal
225 m²BRA-I (internt bruksareal)
187 m²BRA-E (eksternt bruksareal)
38 m²TBA (terrasse-balkongareal)
29 m²
Areal
Etasje
3Byggeår
1999Soverom
4 soveromBad
1 badTomteareal
347 m² (eiet)Type
Halvpart vertikaldelt boligEierform
EietFasiliteter
Garasje/P-plass og Balkong/Terrasse
Nøkkelinfo
Unngå doble boligrenter
Vi tilbyr gunstig forsikring.
Vurderer du utleie?
Få et tilbud fra Utleie KrogsveenHva koster lånet?
Sjekk estimert lånekostnadBeskrivelse
Kort om eiendommen
Innhold og byggemåte
Innhold og byggemåte
Eiendommen
Styrmoes vei 3B, 3043 DRAMMEN
Kommunenummer 3301, gårdsnummer 18, bruksnummer 26
Innhold
Totalt bruksareal BRA: 225 kvm
BRA-i:
Underetasje:
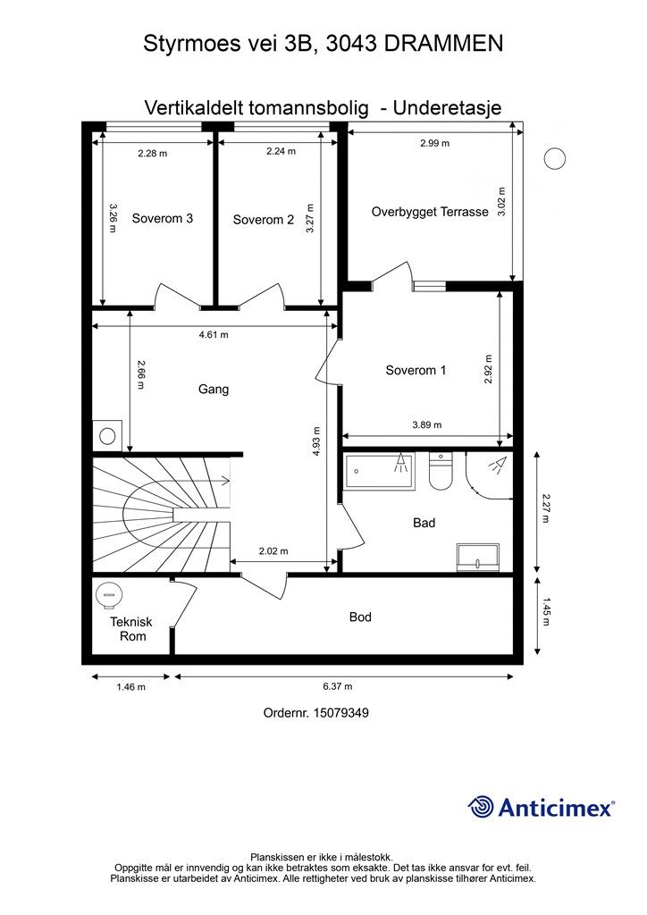
70 kvm: Bad, gang, tre soverom, bod og teknisk rom.
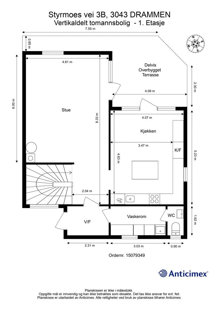
1. etasje:
72 kvm: Vindfang, vaskerom, toalettrom, stue og kjøkken.
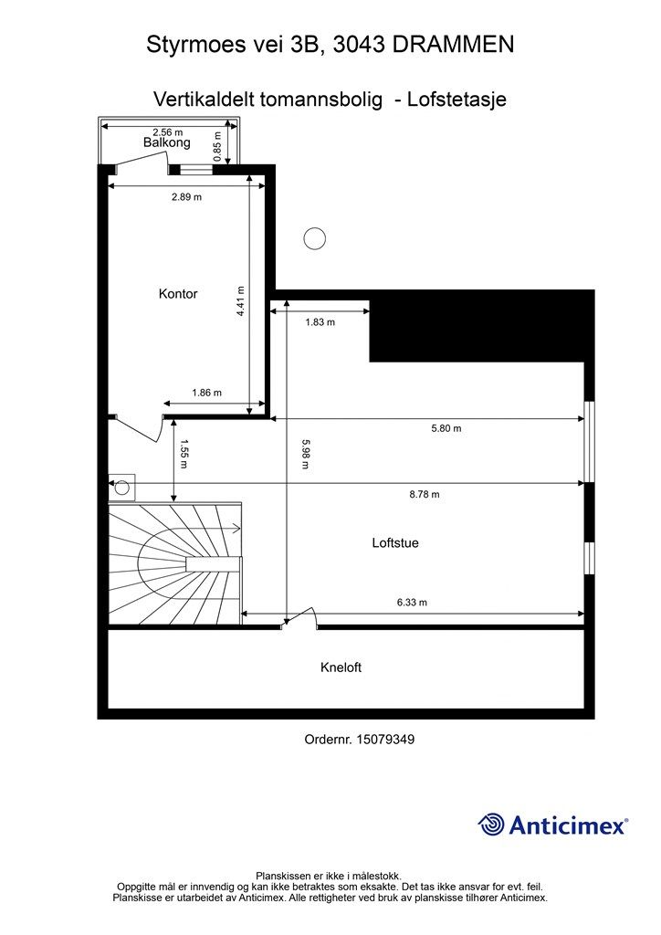
Loftetasje:
45 kvm: Loftstue og kontor/soverom.
BRA-e:
Halvpart av vertikaldelt garasje - Kjeller:
18 kvm: Bod.
Halvpart av vertikaldelt garasje - 1. etasje:
20 kvm: Garasje.
TBA (terrasse- og balkongareal)
Underetasje:
9 kvm: Overbygget uteplass.
1. etasje:
18 kvm: Delvis overbygget veranda.
Loftetasje:
2 kvm: Balkong.
Loftsetasjen har et totalt gulvareal (GUA) på 57 kvm, men grunnet skråtak/lav takhøyde er kun 45 kvm av arealet måleverdig som bruksareal. De delene av arealene som har lav himlingshøyde (ALH) utgjør 12 kvm.
De oppgitte arealer er hentet fra rapport med befaringsdato 20.02.2026 utført av Anticimex AS v/Nils Magnus Graff Fossnes. Arealene er beregnet og rom er definert etter dagens faktiske bruk, uavhengig av hva som er godkjent av bygningsmyndighetene.
Byggemåte
Selger har innhentet en tilstandsrapport av boligen/eiendommen. Dersom det er registrert avvik, er disse klassifisert med tilstandsgrader (TGIU, TG2 og/eller TG3). Kjøper overtar ansvaret for de opplysninger som fremkommer av salgsdokumentasjonen, og kan ikke gjøre gjeldende som mangel noe som burde vært kjent eller som ikke kan anses å ha betydning for avtalen.
Bygningen er iht. tilstandsrapport en vertikaldelt tomannsbolig oppført i 1999 med underetasje, 1. etasje og loftetasje. Primærkonstruksjonen er trekonstruksjoner på grunnmur av betong, med etasjeskillere av tre. Yttervegger er av trekonstruksjoner kledd med liggende trekledning. Bygningen har et saltak i trekonstruksjon, tekket med takstein fra byggeår. Knuste takstein ble byttet i 2023, og luftehatter på taket ble utbedret og tettet i 2024. Renner og nedløp er i metall fra byggeår. Boligen har vinduer med karmer og rammer av tre, samt entrédør med glassfelter og elektrisk kodelås, og balkong- og terrassedører i tre, alt fra byggeår.
Til eiendommen hører det med en halvpart av en frittstående, vertikaldelt garasje oppført ca. 1999. Bygningen er i mur- og trekonstruksjoner med fasade kledd i stående trekledning. Den har saltak i trekonstruksjon, tekket med takstein. Det er en kjellerbod under garasjen.
Det elektriske anlegget er fra byggeår, med mindre arbeider utført i ettertid. Sikringsskapet er plassert i bod/teknisk rom. Det mangler samsvarserklæring for anlegget fra byggeår. Eier opplyser at sikringer i noen tilfeller har løst ut, men dette har kun vært ved bruk av flere strømkrevende komponenter på samme tid. Dette gjelder sikringene for stekovn.
Det gjøres spesielt oppmerksom på at følgende bygningsdeler er gitt Tilstandsgrad 3 (TG3) — Store eller alvorlige avvik:
Våtrom
- Bad - Helhetsvurdering: Det er registrert riss/sprekk i flis. Lokalfallet i sluksonen er mindre enn anbefalt. På bakgrunn av alder og observerte symptomer på tilstøtende vegg på soverom mot dusjsonen vurderes det vanntette sjiktet til å være utett, noe som erfaringsmessig peker på behov for full utskifting/renovering av våtrom. Overgang mellom sluk og vanntett sjikt er uoversiktlig. Enkelte skruer i klemringen mangler. Vannrør av kobber har en alder som tilsier at fremtidig funksjon er usikker. Sluk under dusjkabinett er ikke lett tilgjengelig for rengjøring. Våtrommet har kun naturlig ventilasjon. Innredningen bærer preg av slitasje og enkelte mindre skader. Det ble gjennomført et overflatesøk med fuktindikator som ikke kunne utelukke skjulte fuktskader.
- Vaskerom - Helhetsvurdering: Lokalfallet i sluksonen er mindre enn anbefalt. Vanntett sjikt har en alder som erfaringsmessig tilsier at fremtidig funksjon er svært usikker. Våtrommet har kun naturlig ventilasjon. Det ble registrert drypplekkasje fra utslagsvask.
Følgende bygningsdeler er gitt Tilstandsgrad 2 (TG2) — Avvik som kan kreve tiltak:
Kjøkken
- Overflate gulv: Synlige deler av gulvets overflatemateriale bærer preg av slitasje med enkelte riper og hakk. Forholdet vurderes i hovedsak til å være av estetisk betydning, men riper og hakk av en viss dybde kan gjøre at fuktighet som for eksempel fra rengjøring forårsaker misfarging eller lignende konsekvenser.
- Vannrør: Vannrørene er ikke plugget mot varerør.
Toalettrom
- Vannrør: Vannrør av kobber (og tilhørende komponenter) har en alder som tilsier at fremtidig funksjon er usikker.
Tekniske anlegg
- Vannrør (utover det som nevnes under andre sjekkpunkter): Boligens vannrør av kobber (og tilhørende komponenter) har en alder som tilsier at fremtidig funksjon er usikker.
- Avløprør (utover det som nevnes under andre sjekkpunkter): Luftingen til avløpssystemet er ikke ført over tak, men ser ut til å være løst med bruk av en vakuumventil på vaskerom.
- Varmtvannsbereder: På bakgrunn av berederens alder vurderes det at fremtidig funksjon er usikker.
1. Etasje
- Overflate gulv: Synlige deler av gulvets overflatemateriale bærer preg av slitasje med enkelte riper og hakk.
- Innerdører: Dørbladet mellom vindfang og stue kommer i kontakt med karmen slik at døren ikke kan åpnes og lukkes som normalt.
Rom under terreng
- Overflate gulv: Synlige deler av tregulvets overflatemateriale bærer preg av slitasje med enkelte riper og hakk. Det observeres tegn til sprekker i enkelte gulvfliser.
- Innerdører: Dørbladet på innerdør mellom bod og gang kommer i kontakt med karmen slik at døren ikke kan åpnes og lukkes som normalt.
Loft - innredet
- Overflate vegg: Det observeres sprekk i veggflate over dør mellom kontor og loftstue.
- Overflate gulv: Synlige deler av gulvets overflatemateriale bærer preg av slitasje med enkelte riper og hakk. Selger opplyser om vannskade i gulv i loftstuen.
- Annet: Det er etablert plastfolie/dampsperre i deler av kneloft. Dette kan føre til kondensproblematikk i veggkonstruksjonen mot loftstuen.
Innvendige trapper
- Tilstand: Trappen bærer samlet sett preg av aldersrelatert slitasje og enkelte skader.
Yttervegger inkl. fasader
- Overflatebehandling: Svertesopp er observert på deler av ytterkledningen.
- Lufting av ytterkledning: Det er vurdert å være begrenset spalte for lufting og drenering bak ytterkledningen.
- Gnagersikring: Det har ikke vært mulig å kontrollere om alle deler av ytterkledningen er sikret mot inntrekk av gnagere, ettersom det aktuelle inspeksjonsområdet stedvis er skjult av andre bygningsdeler. Det ble registrert hull og utettheter i netting over luftespalte i gesims, noe som øker risiko for inndriv av gnagere og insekter.
Vinduer og ytterdører
- Vinduer og omramming: Enkelte vinduer viser begynnende tegn til slitasje på overflatebehandling, og har en alder der fremtidig funksjon vurderes som usikker. Det er liten klaring mellom utvendig listverk og vannbord under vinduet. Innsettingsdetaljer rundt vinduer bærer ikke preg av faglig god utførelse. Det er ikke etablert metallbeslag mellom vannbord og vinduer.
- Ytterdører og omramming: Ytterdøren viser begynnende tegn til utvendig slitasje. Det er derimot ikke registrert synlige skader av vesentlig betydning.
Yttertak
- Inspeksjonsmulighet: Taket er ikke fysisk inspisert grunnet is og snø (sikkerhetsmessige forhold).
- Tekking (med tilhørende beslag): Taktekkingen (med tilhørende beslag) er ikke fysisk undersøkt, og derfor kun vurdert på bakgrunn av bygningsdelens alder, med den begrensning dette innebærer. Taktekkingen har nådd en alder og tilstand der fremtidig funksjon vurderes som usikker.
- Undertak (inkluderer sløyfer, lekter og innfestninger): Undertaket (inkluderer sløyfer, lekter, innfestninger og lignende) med tilhørende komponenter har en alder som tilsier at fremtidig funksjon er usikker.
- Vannbord, vindskier, gesimskasser og lignende: Vindskier viser begynnende tegn til slitasje og elde.
- Takrenner og utvendige nedløp: Takrenner og nedløp viser begynnende tegn til slitasje og elde.
Balkonger
- Tilstand på rekkverk og overflatematerialer: Store deler av balkongen var is/snødekket på befaringsdagen og kunne ikke undersøkes. Det ble ikke registrert negative symptomer på synlige deler. Rekkverk har symptomer på slitasje/elde.
Terrasse / platting (1. etasje)
- Tilstand på rekkverk og overflatematerialer: Store deler av terrassen var is/snødekket og det var plassert tildekkede utemøbler som gjorde undersøkelser og inspeksjon begrenset. Rekkverk har symptomer på slitasje/elde.
Drenering
- Alder: Drenering har en alder som tilsier at fremtidig funksjon er usikker.
- Fuktsikring av grunnmur: Det kan ikke verifiseres at grunnmuren har utvendig fuktsperre.
Garasje
- Veggkonstruksjon og fasadematerialer: Fasadematerialer har slitt overflatebehandling. Det er derimot ikke registrert synlige skader av større betydning. Svertesopp er observert på deler av ytterkledningen.
- Innvendige forhold: Det ble registrert kalk/saltutslag på himling og vegg i kjellerbod. Det ble utført overflatesøk med fuktindikasjonsinstrument som viser indikasjoner på forhøyede fuktverdier. Selger opplyser at de har etablert avfukter i rommet.
Følgende bygningsdeler er ikke undersøkt (TGIU):
Yttertak
- Takkonstruksjon: På bakgrunn av at hele ventilasjonen av takkonstruksjonen ikke kan kartlegges og undersøkes fra innsiden, foreligger det en usikkerhet om hvordan/om denne funksjonen er ivaretatt. Forholdet kan ikke kartlegges fra utsiden alene.
- Takgjennomføringer (takhatter o.l.): Ikke undersøkt grunnet is/snødekkede flater.
- Skorsteiner (over tak): Ikke undersøkt grunnet is/snødekkede flater.
Terrasse / platting (Underetasje)
- Konstruksjon og fundamenter: Fundament/såle var ikke tilgjengelige for undersøkelser da det er lagt trefliser over konstruksjonen, noe som gjorde at utførelsen/tilstanden ikke lot seg kontrollere.
Utvendig trapp
- Utvendig trapp: Trappen kunne ikke undersøkes grunnet is/snødekkede flater.
Drenering
- Terrengfall fra grunnmur: Terrengfallet kan ikke undersøkes på tilstrekkelig måte, grunnet snøforhold.
Garasje
- Yttertak og takkonstruksjon: Taket er ikke fysisk inspisert grunnet is og snø (sikkerhetsmessige forhold).
Helse, miljø og sikkerhet
Innvendige trapper - Rekkverk og håndløper
- Deler av trappen har ikke håndløper på begge sider. Basert på dette oppfyller ikke trappen dagens krav til sikkerhet.
Balkonger - Rekkverkshøyde og lysåpninger
- Rekkverkshøyden er under 1,0 meter. Basert på dette oppfyller ikke balkongen dagens krav til sikkerhet.
Terrasse / platting (1. etasje) - Rekkverkshøyde og lysåpninger
- Rekkverkshøyden er under 1,0 meter. Basert på dette oppfyller ikke rekkverket dagens krav til sikkerhet.
I tillegg opplyses det om følgende i rapporten:
- Geologiske forhold: Eiendommen ligger i et aktsomhetsområde for overvann.
Tilstandsrapporten er inntatt i salgsoppgaven. Rapporten inneholder informasjon om eventuelle avvik og konsekvensen av disse. Dersom det er registrert avvik med TG3, har den bygningssakkyndige i tillegg gitt et anslag på hva det vil koste å utbedre disse. Ettersom kjøper regnes å være kjent med forhold som tydelig fremgår av tilstandsrapporten, oppfordres du til å sette deg grundig inn i rapporten i sin helhet.
Selger beskriver også i egenerklæringsskjema:
Det er sprekk i en flis i dusjområdet på badet og i fliser i gangen i underetasjen. Selger opplyser at det har vært lekkasje rundt luftepipen på vaskerommet og ned ved peispipen. I forbindelse med lekkasjen på vaskerommet, løste jordfeilbryteren ut. Det er utført flere arbeider på eiendommen. I 2024 ble det montert undertetting mot luftehatt, tørket område, kontrollert for fukt og lagt nytt innvendig tak på vaskerom av faglærte. Samme år fikset faglærte det elektriske anlegget etter jordfeilen. I 2023 byttet faglærte knuste takstein. I 2020 ble det installert en utvendig blikk-hette på pipen av faglærte. I 2019 ble det installert varmepumpe med strømtilførsel av faglærte. Selger har selv satt inn dusjkabinett på badet i 2026.
Moderniseringer og påkostninger
Følgende moderniseringer er foretatt de senere år:
2026:
- Elektrisk arbeid: Bytte av dimmer og downlights på bad i kjeller, kjøkken og loftstue, skifte av alle spotter i huset (til LED) og brytere, lagt inn nye kontakter på vaskerom og i gang, bytte av termostater i gang og bad i underetasje. Utført av Wilh. Kolstad AS. Samsvarserklæring foreligger.
2021:
- Elektrisk arbeid: Installasjon av elbillader (utført av Roar Andersen Elektro AS). Samsvarserklæring foreligger.
2019:
- Montering av varmepumpe, inkludert elektrisk arbeid (utført av Assistent Parter AS, Buskerud Varmepumpeservice AS). Samsvarserklæring foreligger.
Ukjent årstall:
- Oppgradert kjøkken med nyere benkeplater, kjøkkenvask og noe mer innredning.
Ifølge selgers egenerklæring er følgende arbeid utført:
2026:
- Satt inn dusjkabinett.
2024:
- Montering av undertetting mot luftehatt, demontering og remontering av takstein, tørking av område med tørker, kontroll av fukt og legging av nytt innvendig tak på vaskerom (utført av Buskerud blikk, Recover AS).
Standard
Løsøre og tilbehør
Hvitevarer på kjøkkenet medfølger i handelen. Dette gjelder kjøleskap, komfyr, oppvaskmaskin. Mikrobølgeovn følger ikke
Vaskemaskin og tørketrommel på vaskerom kan medfølge om ønskelig.
Skap på de to minste soverommene i underetasjen og tv-benk i stue medfølger ikke.
Videre vises det til liste fra Norges Eiendomsmeglerforbund angående løsøre og tilbehør. Produkter og installasjoner som medfølger overdras uten noen form for garantier, utover eventuell gjenværende leverandørgaranti.
Oppvarming
Oppvarming med elektrisitet, varmepumpe og ved. Det er gulvvarme i enkelte rom, inkludert på bad og i gang i underetasje. Luft-til-luft varmepumper er plassert i stuen og loftstuen. Peisovn med glassdør i stue.
Det har blitt foretatt en kontroll av pipe og ildsted i 2025, utført av Drammensregionens brannvesen IKS og alt er funnet i orden.
Siste feiing ble utført 30.03.2022.
Dersom beboelsesrom ikke har vegg- eller fastmonterte varmekilder ved visning, følger dette heller ikke med.
Ferdigattest/brukstillatelse
Drammen kommune opplyser om at det ikke foreligger ferdigattest for oppføring av bygningen, men midlertidig brukstillatelse ble gitt for bolig med to leiligheter datert 28.06.2000. Følgende arbeid gjenstod iht. tillatelsen: Vestre leilighet og mindre vesentlige mangler (ikke angitt i tillatelsen). Ferdigattest utstedes mot dokumentasjon på at arbeidet er ferdigstilt. Kjøper sammen med naboeiendom (den andre halvparten) overtar risiko og ansvaret for eventuelle pålegg fra kommunen samt kostnader forbundet med manglende ferdigattest (evt. må det søkes på nytt iht. dagens kav, hvis dette kreves).
Det er utstedt godkjente byggetegninger datert 19.02.1998 og 09.04.1999, tilknyttet tillatelsen.
Det er gitt melding om mindre byggearbeider, herunder innredning av loftetasje, godkjent av kommunen den 29.01.2003. Kommunen anfører at det skal meldes kommunen ved ferdigstillelse av tiltaket, det vites ikke om dette er utført. Det stilles ikke krav til ferdigattest fra kommunen ved innsendelse av melding.
Det anføres i tilstandsrapporten at loftetasjen ikke har utgang direkte til sikkert sted, eller tilstrekkelig antall alternative rømningsveier som rømningsvinduer eller lignende. Kjøper overtar risiko og ansvaret for dette.
Kjøper overtar eiendommen slik den framstår på visning.
Tinglyste heftelser og rettigheter
Eiendommen overdras fri for pengeheftelser
Kommunen har legalpant i eiendommen for forfalte krav på eiendomsskatt og kommunale avgifter/gebyrer.
Dagboknummer: 10480
Tinglysningsdato: 23.10.1987
Servitutten omhandler: Erklæringen gir eiere av to parseller utskilt fra gnr. 18/bnr. 26 rett til å legge og vedlikeholde vannledning over eiendommen (gnr. 18/bnr. 26). De to parsellene har felles ansvar for den felles delen av vannledningen, og har rett til adgang for nødvendig reparasjon og tilsyn.
Dagboknummer: 1434
Tinglysningsdato: 11.02.1988
Servitutten omhandler: Eiendommen må tåle at det legges elektriske ledninger, telefonledninger, vann- og kloakkledninger samt elektriske kabler over og i grunnen. Ledningenes eier har rett til ettersyn, reparasjon og omlegging. Kommunen er fritatt for gjerdeplikt og kan vederlagsfritt legge skjærings- og fyllingsskråninger der arealet grenser til vei. Eier er ansvarlig for renhold av veigrøft. Trær på eiendommen kan ikke hogges uten parksjefens samtykke. Drammen oppmålingsvesen har rett til å ha og benytte polygonpunkt på arealet.
Dagboknummer: 13267
Tinglysningsdato: 17.08.2000
Servitutten omhandler: Felles dobbelgarasje vil etter deling av tomt bli stående på gnr. 18/bnr. 26 (Styrmoes vei 3B), men eier av gnr. 18/bnr. 207 (Styrmoes vei 3A) har eksklusiv rett til bruk av garasje mot øst med tilhørende bod under samt adkomstarealer til garasje og bod. Eier av gnr. 18/bnr. 207 (Styrmoes vei 3A) forplikter seg til å være ansvarlig for drift og vedlikehold av sin garasje/bod og adkomstarealer. Det er felles kloakkpumpe for Styrmoes vei 3A og 3B som står på eiendommen til Styrmoes vei 3A (gnr. 18/bnr. 207). 3A forplikter seg til å ha en tilgjengelig nøkkel for 3B ved behov for adkomst til pumpen. Utgifter til drift og vedlikehold fordeles likt mellom eiendommene. Felles vann-/avløpsledning går ut til offentlig påkobling over 3A, men 3B har gjensidig rett til reparasjon og vedlikehold av ledningene. Utgiftene fordeles likt mellom partene. Rettighetshaver er gnr. 18/bnr. 26. Rettigheten hefter i gnr. 18/bnr. 26.
Dagboknummer: 900095
Tinglysningsdato: 07.04.1913
Servitutten omhandler: Bestemmelse om adkomstrett og vann-/kloakkledning. Rettigheten hefter i gnr. 18/bnr. 1.
Servituttene vil følge eiendommen. Kjøpers bank vil få prioritet etter ovennevnte heftelser og servitutter.
Eventuell adgang til utleie
Eiendommen har ikke separat utleieenhet. Det vil normalt være anledning til utleie av hele eiendommen eller enkeltrom, såfremt utleiearealet er bygningsmessig godkjent for varig opphold og har forsvarlige radonnivåer.
Energimerking
Komplett energiattest inkludert oppvarmingskarakter fås ved henvendelse til megler eller lastes ned fra www.krogsveen.no.
Beliggenhet og tomteforhold
Beliggenhet og tomteforhold
Beliggenhet
Danvik er en av de eldste bydelene i Drammen, beliggende på sydsiden av Drammenselva mellom Gulskogen og Austad/Fjell/Tangen. Kort gangavstand til Bikkjestykket med hyggelige parkområder, discgolfbane og lekeplass. I tillegg er det kort gangavstand til Austad Gård (del av Drammens Museum), dagligvarebutikk (Coop Extra) og blomsterbutikk. Fra eiendommen er det kort vei til barnehage, barneskole, ungdomsskole og idrettsanlegg på Marienlyst. Bortsett fra et område i Strømsåsen, består bydelen av tettbebyggelse, hvorav mye med sentrumsstruktur. Danvik har gode rekreasjonsområder i Strømsåsen, men kanskje like viktig er turveiene langs elva. I bydelen er det gode bussforbindelser med resten av byen. Drammen togstasjon og bussknutepunkt for rutebusser ligger sentralt plassert ved Strømsø Torg.
De fleste fritidstilbud i Drammen. Skiold ski- og ballklubb som er en aktiv og allsidig idrettsforening. De har eget treningsanlegg med kunstgressbane på Marienlyst, kunstisbane på vinterstid. Drammen turnforening med egen hall og mange aktiviteter, for mer informasjon se www.drammenturn.no. Drammen slalåmklubb i Haukåsløypa slalåmbakke med egentrening og kurstilbud. Drammensbadet sentralt på Marienlyst har helårsanlegg med badeland og treningstilbud. Drammen Cykleklubb for landeveisyklister og terrengsyklister er nært beliggende. For øvrig kort vei til ski- og turmuligheter i Strømsøåsen med lysløyper, og gangavstand til Drafnkollen med lysløype og flott turterreng.
Kort gangavstand til bussholdeplass langs Styrmoes vei (Åsveien) med forbindelser til Drammen sentrum, se www.brakar.no for rutetider. Gode togforbindelser mot Kongsberg, Oslo og Tønsberg fra Drammen sentrum, tidsmessig tar det ca. 30 minutter til Oslo, se www.vy.no for avganger. Kort vei til påkjøring på E-18 og E-134 ved Bangeløkka.
Adkomst
Det vil bli skiltet med Krogsveen visningsskilt ved fellesvisninger. Se kart i nettannonse eller Google Maps for nærmere veibeskrivelse. Velkommen til visning!
Barnehager, skoler og fritid
Godt og variert tilbud av private og offentlige barnehager.
Barnehager: Danvik barnehage (0,4 km), Bikkjestykket barnehage (0,6 km), Lassebakken barnehage (0,8 km).
Skoler: Danvik barneskole (0,4 km) og Marienlyst ungdomsskole (0,6 km).
Drammen kommune har tre private barne- og ungdomsskoler, Drammen Realfagsskole Heltberg, Norlights Montessoriskole Drammen og Rosendal skole (Mjøndalen).
Det ligger flere videregående skoler i Drammen og Lier, samt Universitetet i Sørøst-Norge som har campus på Papirbredden i Drammen, for mer informasjon se www.usn.no.
Dersom skole- og barnehagetilbud er av betydning for kjøpet, ber vi om at det rettes en særskilt henvendelse til kommunen for oppdatert informasjon.
Beskrivelse av tomt
Eiertomt på 347 kvm. Skrånende tomt i to nivåer. Grøntarealer med gressplen, hekk og diverse beplantninger. Gruset område ved boligen på oversiden og asfaltert område foran garasjen.
Parkering
Parkeringsplass på ca. 20 kvm i halvpart av en felles dobbelgarasje. Montert lader for el-bil i 2021.
Tilgang til en romslig bod på ca. 18 kvm under garasjen med utvendig adkomst.
Forøvrig er det parkeringsplass foran egen garasje.
Vei, vann og avløp
Eiendommen har adkomst via kommunal vei.
Eiendommen er tilknyttet kommunalt ledningsnett via private stikkledninger. Eier er selv ansvarlig for private stikkledninger til boligen.
Regulerings-og arealplaner
Eiendommen ligger i et uregulert område men er avsatt til boligbebyggelse med hensyn på miljøkvalitet, estetikk, natur, landskap og grønnstruktur ved kommuneplanens arealdel for Drammen kommune datert 18.06.2025. Utsnitt av planer med tilhørende bestemmelser kan fås ved henvendelse til megler.
I henhold til kommuneplanen er eiendommen innenfor et område med ras- og skredfare. Dette kan legge begrensninger for evt. utbygging, påbygg/tilbygg og andre terrenginngrep som på et generelt grunnlag er tillatt ifølge kommuneplanen. Konferer med megler dersom dette er aktuelt.
Det foreligger en igangsatt planlegging av ny kommuneplan for Drammen kommune 2027-2039, se kommunens hjemmeside for mer info.
Naboeiendommen gnr. 18/bnr. 204 (eies av naboeiendommen - Styrmoes vei 1) på nedsiden av boligen, er per dags dato ubebygd og består av hageareal. Iht. kommuneplanen datert 18.06.2025 er området avsatt til boligbebyggelse. Selger har ikke mottatt nabovarsel eller kjenner til eventuelle utbyggingsplaner for eiendommen.
Økonomi
Økonomi
Kommunale utgifter
Kommunale avgifter (vann og avløp): kr 15.799,- pr. år (3 terminer), fakturert på eiendommen i 2025. Avgiftene vil variere etter forbruket i boligen.
Renovasjonskostnader: kr 5.201,- pr. år (2 terminer). Type renovasjonsordning: Standard renovasjon, 2026.
Det opplyses om at Drammen kommune har varslet om en vesentlig fremtidig økning av kommunale avgifter.
I tillegg påløper det en kostnad på kr 608,- pr. år for boliger med minst ett aktivt røykrør (kostnad pr. 2026). Det påløper også kostnader for feiing av ildsted, kontroll av fyringsanlegg m.m. Frekvens på feiing samt tilsyn er avhengig av behov og vurderes av feieren.
Det må påregnes kostnader til strøm og nettleie, dette vil variere avhengig av strøm-/nettselskap. Nåværende eier har et strømforbruk på ca. 22.000 kWh pr. år.
For denne boligen er det inngått avtale om Norgespris i stedet for strømstøtte, avtalen på kr 50 øre inkl. mva følger eiendommen og har en bindingstid frem til 31.12.2026. Nettleie, avgifter og påslag fra kraftleverandøren kommer i tillegg. Les mer om Norgespris her: https://www.regjeringen.no/no/aktuelt/legg-fram-lov-om-norgespris-pa-straum-og-fjernvarme/id3102642/
Boligen har en årlig forsikringspremie via Gjensidige på kr 11.400,- pr. år.
Boligen er tilknyttet Global Connect som leverandør av fiber og har kostet ca. kr 699,- pr. mnd avhengig av hastighet på nettet.
Selger opplyser om at det også er kabel i vegg.
Det må påregnes kostnader til innboforsikring.
Ovenstående er basert på nåværende eier/husstands senere års forbruk/utgifter. Dette vil variere avhengig av antall beboere, ønsket innetemperatur, egne fordelsavtaler, kanalvalg, hastighet på bredbånd m.m.
Formuesverdi
Formuesverdi for 2024 var kr 1 532 541,- ifølge Skatteetaten. Beløpet forutsetter at eier bor fast i boligen (primærbolig).
Ved eventuell øvrig bruk av eiendommen (f.eks. fritidsbolig, pendlerbolig, utleieobjekt) var formuesverdien for 2024 kr 6 130 163,-.
Fra 2026 har Stortinget vedtatt en oppdatert modell for beregning av formuesverdi for primærbolig, så avvik kan forekomme.
For mer informasjon se skatteetaten.no.
Omkostninger
5 490 000,00 Prisantydning
Omkostninger
137 250,00 Dokumentavgift til staten (2,5% av kjøpesum)
19 900,00 Gjensidige Boligkjøperpakke* (valgfritt)
545,00 Tinglysing panterettsdokument
545,00 Tinglysing skjøte
--------------------------------------------------------
138 340,00 (Omkostninger totalt (uten Gjensidige Boligkjøperpakke))
158 240,00 Omkostninger totalt (med Gjensidige Boligkjøperpakke))
--------------------------------------------------------
5 628 340,00 Totalpris inkl. omkostninger
5 648 240,00 Totalpris inkl. omkostninger (med Gjensidige Boligkjøperpakke)
--------------------------------------------------------
Totalpris inkl. omkostninger forutsetter kjøp til prisantydning.
Det tas forbehold om endringer i avgifter og gebyrer.
Tilbud om lånefinansiering
Megler formidler gjerne kontakt med rådgiver hos vår samarbeidspartner BN Bank. De har konkurransedyktige betingelser samt rask og løsningsorientert behandling av din lånesøknad. Krogsveen mottar et honorar dersom lån opprettes.
Betalingsbetingelser
Kjøpesum inkludert omkostninger, samt pantedokument tilknyttet eventuelt lån, skal være disponibelt hos megler 2 virkedager før overtagelsen.
Annen viktig informasjon
Annen viktig informasjon
Eier
Lars Vråle og Sol Trogstad Vråle
Overtakelse
Etter nærmere avtale.
Boligselgerforsikring
Selger har i forbindelse med salget tegnet boligselgerforsikring levert av Gjensidige.
Boligselgerforsikringen dekker selgers ansvar etter avhendingsloven begrenset oppad til kr 14 millioner. Dersom kjøper oppdager forhold ved eiendommen som hen mener utgjør en mangel ved eiendommen, vil Gjensidige behandle reklamasjonen på vegne av selger. Forsikringsvilkår kan fås ved henvendelse til megler.
Vedlagt salgsoppgaven følger selgers egenerklæringsskjema og tilstandsrapport. Interessenter må sette seg inn i dokumentene før bud inngis.
Boligkjøperforsikring
Innen kontraktsmøtet må kjøper ta stilling til om det ønskes å bestille Boligkjøperpakken gjennom Gjensidige. I denne gunstige pakken er boligen ferdig forsikret og inkluderer rettshjelpsforsikring, også kalt Boligkjøperforsikring. Rettshjelpsforsikring gir trygghet og tilgang på profesjonell juridisk hjelp dersom det oppdages uventede feil eller mangler det første året etter overtagelse. Forsikringsselskapet behandler i så fall ethvert mangelskrav kjøper måtte ha overfor selger.
Boligkjøperpakken inkluderer bygningsforsikring for hus og hytte, innboforsikring, flytteforsikring og dobbel rentedekning - i situasjoner hvor kjøper ikke får solgt nåværende primærbolig.
Kjøper mottar ingen særskilt faktura for Boligkjøperpakken da kostnaden det første året legges til kjøpesummen for boligen. Det gjøres oppmerksom på Krogsveen mottar et honorar for denne formidlingen.
Produktark for Boligkjøperpakken ligger vedlagt i salgsoppgaven.
Dersom ikke boligkjøperpakke ønskes kan kun rettshjelpsforsikring, også kalt boligkjøperforsikring, tegnes særskilt via megler. Rettshjelpsforsikringen varer i 5 år fra overtagelse og leveres gjennom Gjensidige. Ta kontakt med megler for ytterligere informasjon.
Selskap og privatpersoner som driver med kjøp/salg/utvikling som ledd i egen næringsvirksomhet kan ikke tegne boligkjøperpakke eller rettshjelpsforsikring.
Budgivning
Forbrukerinformasjon om budgivning er vedlagt denne salgsoppgaven og er også på vår hjemmeside Krogsveen.no. Alle bud og budforhøyelser må inngis skriftlig. I tillegg må legitimasjon være fremlagt sammen med signatur fra budgiver.
Vi oppfordrer til å gi bud elektronisk via GI BUD-knappen på eiendommens hjemmeside på Krogsveen.no. Da vil samtlige vilkår bli oppfylt.
Eventuelle forhøyelser eller endringer av budet kan bekreftes pr SMS eller på e-post. Vi oppfordrer alltid til å kontakte megler pr. telefon i tillegg da forsinkelser i SMS og e-post kan forekomme.
For at budene skal kunne bli behandlet og videreformidlet skriftlig til alle involverte parter, må alle bud ha en tilstrekkelig lang akseptfrist, jf. eiendomsmeglingsforskriften § 6-3.
Selger må også skriftlig akseptere budet før aksept kan formidles til budgiver. Akseptfrist bør derfor være på minimum 30 minutter, og budforhøyelser må derfor skje i god tid før fristens utløp.
Bud i forbrukerforhold kan uansett ikke settes med kortere frist enn kl. 12.00 første virkedag etter siste annonserte visning. I tillegg kan ikke budet ha forbehold om at det skal holdes hemmelig ovenfor øvrige interessenter. Megler har iht lov om eiendomsmegling ikke anledning til å videreformidle disse budene, og de vil dermed heller ikke bli journalført.
Etter at eiendommen er solgt vil kjøper og selger få tilsendt budjournal. Øvrige budgivere kan få utlevert kopi av budjournalen i anonymisert form.
Hvitvaskingsreglene
I henhold til lov om hvitvasking og terrorfinansiering har megler plikt til å gjennomføre kontrolltiltak overfor kunder, herunder fullmektiger. Dette innebærer bl.a. å bekrefte kunders og reelle rettighetshaveres identitet på bakgrunn av fremvist gyldig legitimasjon eller på annen godkjent måte, samt å innhente opplysninger om kundeforholdets formål og tilsiktede art.
Dersom slike kundetiltak ikke kan gjennomføres, kan megler ikke etablere kundeforholdet eller utføre transaksjonen.
Hvis kjøper ikke bidrar til gjennomføring av kundekontrollen og dette fører til at transaksjonen blir forsinket eller ikke kan gjennomføres, vil dette ansees som mislighold av avtalen og gi selger rettigheter etter avhendingslova kapittel 5. I tilfeller der selger ikke bidrar til gjennomføring av løpende kundekontroll underveis i oppdraget, er det selger som misligholder sine forpliktelser etter avtalen og gi kjøper rettigheter etter avhendingslovens kapittel 4. Partene er selv ansvarlige for eventuelle kostnader og ansvar dette kan medføre. Eiendomsmegleren eller eiendomsmeglingsforetaket kan ikke holdes ansvarlig for de konsekvenser dette vil kunne få for partene eller andre som har interesser i eiendomshandelen.
Kjøper oppfordres til å innbetale kjøpesummen som ikke kommer fra låneinstitusjon i én samlet innbetaling fra egen konto i norsk bank. Megler har plikt til å melde fra til Økokrim om eiendomshandler som fremstår som mistenkelige. Melding sendes Økokrim uten at partene varsles.
Personopplysningsloven
I henhold til personopplysningsloven gjør vi oppmerksom på at interessenter kan bli registrert for videre oppfølging.
Lovanvendelse
Generelle bestemmelser
Salgsoppgaven er basert på de opplysningene selger har gitt til megler, den bygningssakyndiges tilstandsrapport, samt opplysninger innhentet fra kommunen, Kartverket og andre tilgjengelige kilder. Det er viktig at kjøper setter seg grundig inn i alle salgsdokumentene, herunder salgsoppgave, tilstandsrapport og selgers egenerklæring. Kjøper anses kjent med forhold som er tydelig beskrevet i salgsdokumentene, og slike forhold kan ikke påberopes som mangler. Dette gjelder uavhengig av om kjøper har lest dokumentene. Alle interessenter oppfordres til å undersøke eiendommen nøye, gjerne sammen med fagkyndig før bud inngis. Kjøper som velger å kjøpe usett kan ikke gjøre gjeldende som mangel noe han burde blitt kjent med ved undersøkelsen.
Dersom det er behov for avklaringer, anbefaler vi at interessenter rådfører seg med eiendomsmegler eller egne rådgivere før det legges inn bud.
En bolig som har blitt brukt i en viss tid, har vanligvis blitt utsatt for slitasje og skader kan ha oppstått. Slik bruksslitasje må kjøper regne med, og det kan avdekkes enkelte forhold etter overtakelse som nødvendiggjør utbedringer. Normal slitasje og skader som nødvendiggjør utbedring, er innenfor hva kjøper må forvente og vil ikke utgjøre en mangel.
Kjøper og selgers rettigheter og plikter reguleres av avtalen mellom partene, samt informasjonen som har vært tilgjengelig for kjøperen i forbindelse med handelen. Avtalen utfylles av avhendingsloven, og det gjelder ulike avtalevilkår avhengig av om kjøper er forbrukerkjøper eller ikke. Dette er nærmere beskrevet nedenfor.
På grunn av ulike avtalevilkår kan selger vurdere bud fra en som ikke er forbruker, ulikt fra en forbrukers bud. Dersom kjøper ikke er forbruker, er selger sitt mulige mangelsansvar begrenset fordi eiendommen selges "som den er". Selger kan ikke ta «som den er»- forbehold overfor en forbrukerkjøper. Selv et lavere bud fra en som ikke er forbruker kan foretrekkes fordi begrensningen i mulig mangelsansvar kan ha egenverdi for selger. Selger står fritt til å forkaste eller akseptere ethvert bud, og er for eksempel ikke forpliktet til å akseptere høyeste bud.
Budgiver skal i budskjema avgi egenerklæring om budgiver er forbruker eller næringsdrivende/ person som hovedsakelig handler som ledd i næringsvirksomhet. Budgivere får informasjon dersom andre bud er inngitt av en som ikke er forbruker.
Forbrukerkjøp - definisjon
Med forbrukerkjøp menes kjøp av eiendom når kjøperen er en fysisk person som ikke hovedsakelig handler som ledd i næringsvirksomhet.
Forbruker – avtalevilkår
Eiendommen har en mangel dersom den ikke er i samsvar med kravene som følger av avtalen, eller det foreligger brudd på bestemmelsene i avhendingsloven §§ 3-2 til 3-8. Hvis eiendommen ikke er i samsvar med det kjøperen må kunne forvente ut ifra alder, type og synlig tilstand, kan det være grunnlag for mangelskrav. Det samme gjelder hvis det er holdt tilbake eller gitt uriktige opplysninger om eiendommen. Dette gjelder likevel bare dersom man kan gå ut ifra at det virket inn på avtalen at opplysningen ikke ble gitt eller at mangelskravet ikke blir rettet i tide på en tydelig måte.
Boligen kan ha en mangel etter avhendingsloven § 3-3 andre ledd, dersom det er avvik mellom opplyst og faktisk innvendig areal, forutsatt at avviket er på 2% eller mer og minimum 1 kvm.
Ved beregning av et eventuelt prisavslag eller erstatning må kjøper selv dekke tap/kostnader opptil et beløp på kr 10 000 (egenandel).
Ikke-forbruker (næringsdrivende) – definisjon
Hvis kjøper er en juridisk person, eller en fysisk person som hovedsakelig handler som ledd i næringsvirksomhet, vil kjøpet ikke anses som et forbrukerkjøp.
Ikke-forbruker – avtalevilkår
Eiendommen har en mangel dersom den ikke er i samsvar med kravene som følger av avtalen.
Eiendommen selges «som den er», og selgers ansvar utover det konkret avtalte er da begrenset etter avhendingsloven § 3-9, første ledd andre setning.
Avhendingsloven § 3-3 andre ledd fravikes, og hvorvidt boligens arealsvikt utgjør en mangel vurderes etter avhendingsloven § 3-8.
Informasjon om kjøpers undersøkelsesplikt, herunder oppfordringen om å undersøke eiendommen nøye, gjelder også for kjøpere som ikke anses som forbrukere.
Det forutsettes at hjemmel overføres til kjøper. Hvis kjøper ikke ønsker hjemmelsoverføring av eiendommen, må det tas forbehold om dette i budet.
Meglers vederlag
Meglers vederlag betales av selger og er avtalt til:
Vederlag: 1,00 % av salgssummen
Minimumsprovisjon er kr 50 000,00
Vederlag:
Kontroll av hjemmel og heftelser kr 2 900,00
Markedsføringspakke ink rådgivningstime med stylist. kr 27 400,00
Oppgjør kr 7 500,00
Tilrettelegging kr 17 000,00
Visninger kr 4.000,-. 1 visning er inkludert. Privatvisninger før kl 16 hverdag er vederlagsfrie. kr 0,00
Utlegg:
Innhenting av feierrapport fra Drammensreg. Brannvesen kr 573,00
Innhenting av off. oppl. Drammen kommune inkl. tegninger og RFD kr 2 833,00
Tinglysing sikring kr 545,00
Andre utgifter:
Boligfotografering m/drone kr 6 500,00
Tilstandsrapport Vertikaldelt bolig - faktura til megler kr 14 950,00
Valgfritt, men anbefales: Boligselgerforsikring Gjensidige kr 31 405,00
Vi er opptatt av verdiskapning, og har knyttet til oss samarbeidspartnere som skal sikre våre kunder de beste produkter og tjenester;
• I forbindelse med forberedelse av salget, innhenter vi informasjon om eiendommen hovedsakelig fra vår samarbeidspartner Ambita.
• Gjensidige leverer boligselgerforsikring og tilbyr bygningsforsikring
• Boligkjøperforsikring leveres av Hiscox og med Sedgwick som skadebehandler, og er formidlet gjennom Gjensidige.
• BN bank tilbyr finansieringsløsninger
• Vår avdeling Krogsveen Pluss tilbyr flyttetjenester som utvask, visningsvask, lager, tømming og transport av flyttelass, i tillegg til å formidle kontakt med Flip for overflateoppussing.
• I forbindelse med overtagelse av eiendommen tilbyr Overo avtale om strøm, alarm og bredbånd.
• Krogsveen er, sammen med øvrige bransjeaktører, medeier i den digitale annonseringsplattformen Hjem som eies av Bomega AS.
Opplysninger om oppdraget
Oppdragsnummer 20-0401/25
Eiendomsmegler Krogsveen AS, avd. Drammen
Nedre Storgate 16, 3015, DRAMMEN
950 007 613
Oppdragets KR-kode KR20.25401
Dato
Sist oppdatert: 24. april 2026 kl. 16:55
Dokumenter
Dokumenter
PDF – 1014 KB
PDF – 6 MB
PDF – 168 KB
PDF – 13 MB
PDF – 312 KB
PDF – 29 KB
PDF – 127 KB
PDF – 392 KB
Område
Legg til steder som er viktige for deg
Visning
For å delta på visning, ber vi om at du melder deg på. Da sikrer vi at du får nødvendig informasjon og at det er satt av tilstrekkelig med tid. Kontakt megler dersom annet tidspunkt ønskes. Husk å lese salgsoppgaven før visningen, så du stiller forberedt.
Ønsker du kun å bli holdt orientert, kan du fra eiendommens hjemmeside få varsel om solgtpris, eller kontakte megler.
Lurer du på noe?
Unngå doble boligrenter
Vi tilbyr gunstig forsikring.
Vurderer du utleie?
Få et tilbud fra Utleie KrogsveenHva koster lånet?
Sjekk estimert lånekostnadVil du varsles om lignende boliger?
Ved å lagre ditt boligsøk hos oss får du beskjed når vi har en bolig som ligner denne, før den legges ut på markedet!











































