Bolstadhagen 73
8 500 000 kr
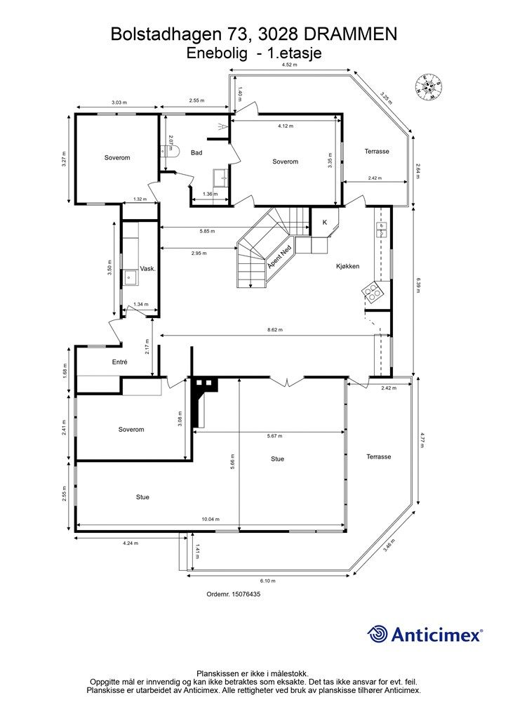
285 m²
3 soverom
Solgt

Presenteres av
Arild KnudsenÅssiden
Delikat og romslig bolig i et familievennlig område. Radiatorer. Flott utsikt m/fritt utsyn. Over 1 mål tomt. Dblgarasje
Prisantydning
8 500 000 krOmkostninger
233 490 krTotalpris
8 733 490 kr
Pris
Bruksareal
317 m²BRA-I (internt bruksareal)
285 m²BRA-E (eksternt bruksareal)
32 m²TBA (terrasse-balkongareal)
58 m²
Areal
Etasje
2Byggeår
1970Soverom
3 soveromBad
2 badTomteareal
1 356 m² (eiet)Type
Enebolig - FrittliggendeEierform
EietFasiliteter
Garasje/P-plass og Balkong/TerrasseEnergimerke
Rød G
Nøkkelinfo
Unngå doble boligrenter
Vi tilbyr gunstig forsikring.
Vurderer du utleie?
Få et tilbud fra Utleie KrogsveenHva koster lånet?
Sjekk estimert lånekostnadBeskrivelse
Kort om eiendommen
Delikat og romslig enebolig med 2 etasjer
- Luftig stue med store vindusflater og peis
- Romslig spisestue/hall med peis og åpen løsning mot kjøkkenet
- Pent og profilert Sivesind-kjøkken med integrerte hvitevarer
- Moderne og stilrent bad fra 2020 i 1. etg med dusjnisje
- Praktisk vaskerom med innredning i 1. etg og bad i u. etg
- Oppvarming med radiatorer tilknyttet oljefyr (tilrettelagt for HVO)
- Dobbelgarasje på ca. 30 kvm med lader for el-bil
- Flere solrike uteplasser og romslig hage med god boltreplass
- Flott utsikt fra høyden med fritt utsyn over bl.a. Drammensdalen, elva og Eikerbygdene
- Beliggende i en blindvei med generelt lite trafikk
- Fin beliggenhet i et attraktivt og barnevennlig boligområde
- Kort gangavstand til barnehage, barneskole, buss, alpinanlegg og marka
Område
Legg til steder som er viktige for deg
På flyttefot? Tenk kjøp og salg samtidig.
Få din egen rådgiver gjennom hele kjøps- og salgsprosessen. Det starter med en verdivurdering.
Unngå doble boligrenter
Vi tilbyr gunstig forsikring.
Vurderer du utleie?
Få et tilbud fra Utleie KrogsveenHva koster lånet?
Sjekk estimert lånekostnadVil du varsles om lignende boliger?
Ved å lagre ditt boligsøk hos oss får du beskjed når vi har en bolig som ligner denne, før den legges ut på markedet!
På flyttefot? Slik gjør vi det enklere for deg
Skreddersydd flyttepakke
Vi fikser håndverkere, vask, pakking, lagring og transport, og legger ut for utgiftene underveis.
Hjelp med både kjøp og salg
Hos oss har du din egen rådgiver gjennom hele kjøps- og salgsprosessen.
Hjelp til finansiering
Vårt samarbeid med BN Bank sikrer deg rask og løsningsorientert hjelp, til konkurransedyktige betingelser.

