Birgitte Hammers vei 17
17 000 000 kr
205 m²
5 soverom
Solgt
Nordstrand
Solrik arkitekttegnet enebolig på ett plan | Fjordutsikt | Stor tomt | Blindvei
Prisantydning
17 000 000 krOmkostninger
445 990 krTotalpris
17 445 990 kr
Pris
Bruksareal
227 m²BRA-I (internt bruksareal)
205 m²BRA-E (eksternt bruksareal)
22 m²TBA (terrasse-balkongareal)
49 m²
Areal
Byggeår
1965Soverom
5 soveromBad
2 badTomteareal
1 514 m² (eiet)Type
Enebolig - FrittliggendeEierform
EietFasiliteter
Garasje/P-plass og Balkong/TerrasseEnergimerke
Rød G
Nøkkelinfo
Unngå doble boligrenter
Vi tilbyr gunstig forsikring.
Vurderer du utleie?
Få et tilbud fra Utleie KrogsveenHva koster lånet?
Sjekk estimert lånekostnadBeskrivelse
Kort om eiendommen
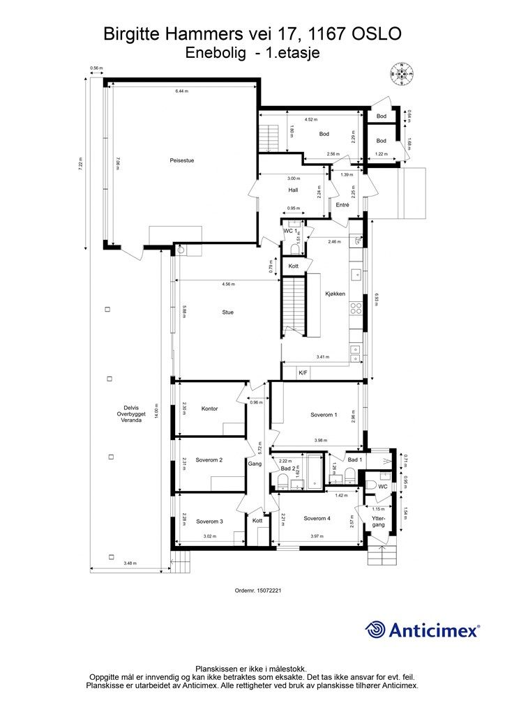
Velkommen til Birgitte Hammers vei 17, en stor og innholdsrik enebolig med flott fjordutsikt. En arkitekttegnet enebolig med hele 185 kvm på ett plan med store glassflater mot vest og utsikten, stedvis gode takhøyder, store sosiale oppholdsrom og egen tilbaketrukket fløy med 5 soverom og 2 bad, samt 2 ekstra toalettrom. Villaen ligger på toppen av en høyde, godt tilpasset terrenget og omgivelsene, i frodige omgivelser med lite innsyn og flott utsikt. Stor vestvendt skrånende tomt på over 1,5 mål. Eiendommen ligger flott til i en liten blindvei, i et særdeles barnevennlig boområde med kort vei til bl.a. stort friområde, Nordstrand barne- og ungdomsskole, kollektivtransport og servicetilbud.
Område
Legg til steder som er viktige for deg
På flyttefot? Tenk kjøp og salg samtidig.
Få din egen rådgiver gjennom hele kjøps- og salgsprosessen. Det starter med en verdivurdering.
Unngå doble boligrenter
Vi tilbyr gunstig forsikring.
Vurderer du utleie?
Få et tilbud fra Utleie KrogsveenHva koster lånet?
Sjekk estimert lånekostnadVil du varsles om lignende boliger?
Ved å lagre ditt boligsøk hos oss får du beskjed når vi har en bolig som ligner denne, før den legges ut på markedet!




