Kirkeveien 38
2 900 000 kr
42 m²
1 soverom
Komplett salgsoppgave

Hokksund
Stilren og moderne 2-roms eierleilighet fra 2022. Vannbåren varme. Rett ved Hokksund sentrum
Prisantydning
2 900 000 krOmkostninger
83 540 krTotalpris
2 983 540 kr
Pris
Bruksareal
47 m²BRA-I (internt bruksareal)
42 m²BRA-E (eksternt bruksareal)
5 m²TBA (terrasse-balkongareal)
11 m²
Areal
Etasje
5Byggeår
2022Soverom
1 soveromBad
1 badType
EierleilighetEierform
EierseksjonFasiliteter
Heis og Balkong/TerrasseFellesutgifter
1 949 krEnergimerke
Grønn B
Nøkkelinfo
Unngå doble boligrenter
Vi tilbyr gunstig forsikring.
Vurderer du utleie?
Få et tilbud fra Utleie KrogsveenHva koster lånet?
Sjekk estimert lånekostnadBeskrivelse
Kort om eiendommen
Innhold og byggemåte
Innhold og byggemåte
Eiendommen
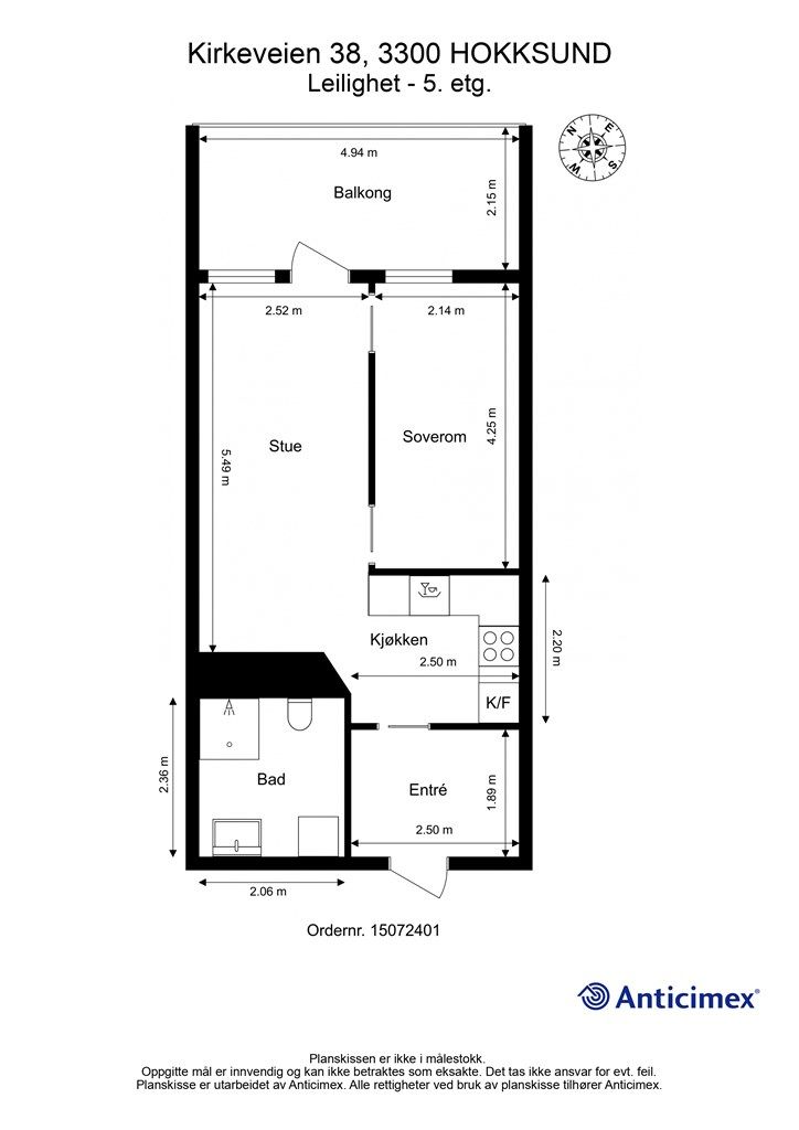
Kirkeveien 38, 3300 HOKKSUND
Kommunenummer 3314, gårdsnummer 77, bruksnummer 106, seksjonsnummer 97
Innhold
Totalt bruksareal BRA: 47 kvm
BRA-i:
5. etasje 42 kvm: Entré, et bad, kjøkken, stue og et soverom.
BRA-e:
Kjeller: 5 kvm: Bod
Åpent areal:
5. etasje 11 kvm: Balkong
Leiligheten har en egen bod i kjelleretasjen (markert med seksjonsnummer), boden er tinglyst som tilleggsdel til seksjonen.
Vedlagte plantegninger er ikke målbare. De oppgitte arealer er hentet fra tilstandsrapporten, utført av Anticimex v/Simon Pedersen.
Byggemåte
Leilighetsbygg oppført i betongkonstruksjoner. Grunnmur og bærende konstruksjoner i hovedsak av betong, fundamentert på ukjent byggegrunn. Bygget er oppført med parkeringsanlegg i nederste etasje. Yttervegger av betong/trekonstruksjoner. Fasaden er kledd med fasadeplater, skiferstein og stående trekledning. Etasjeskillere av betong. Tilnærmet flatt tak (ikke besiktiget). Leiligheten har entrédør med brannklasse EI30 og lydklasse RW40dB. Vinduer og balkongdør med karmer av tre, og tre-lags glass. Les forøvrig mer om byggemåte og den tekniske tilstanden i rapporten.
Tilstandsrapporten og selgers egenerklæring er vedlagt salgsoppgaven. Interessenter må sette seg inn i dokumentene før bud inngis.
Standard
Felles inngangsparti med videre heis- og trappeadkomst til leilighetens etasjeplan i 5. etasje. Beboerne har tilgang til sykkelparkering, treningsrom og stor takterrasse med felles møbler.
Stue: Åpen kjøkken- og stueløsning med sofaområde. Store vindusflater som gir godt med naturlig lys. Vannbåren gulvvarme. Parkett på gulv, malte vegger og malt himling. Utgang til romslig nord-vestvendt balkong på ca. 11 kvm i betongkonstruksjoner med rekkverk av metall, plateemner og glass. Gulvoverflater er belagt med treheller.
Kjøkken: Åpen kjøkkenløsning. Innredningen er fra byggeår med glatte fronter. Benkeplate av laminat. Nedfelt oppvaskkum med ett-greps kjøkkenarmatur. Benkeskapsbelysning og stikkontakter over kjøkkenbenk. Integrert stekeovn, platetopp, oppvaskmaskin og kjøleskap med fryser. Ventilator i overskap med komfyrvakt. Vannrør av typen rør-i-rør system.
Bad: Bad fra byggeår. Flislagt gulv med gulvvarme og flislagte vegger. Malte flater i himling med downlights. Vegghengt servantinnredning med skuffer. Ovenpåliggende servant med ett-greps armatur. Speil med sidelys og stikkontakt over servant. Dusjhjørne med dører. Vegghengt dusjarmatur. Vegghengt toalett. Vannrør av typen rør-i-rør system. Synlige avløpsrør av plast og støpejern. Avtrekksventil i himling. Opplegg for vaskemaskin. Fordeler skap for rør-i-rør system.
Entré: Dørcallinganlegg med åpner funksjon. Vannbåren gulvvarme. Parkett på gulv, malte vegger og malt himling. Ventilasjonsaggregat plassert i himling i entréen.
Øvrige rom: Gulvflater belagt med parkett. Gulvvarme i entré, kjøkken og stue med vannbårenvarme. Glatte innerdører. Balansert ventilasjon.
Selger har fått utarbeidet en tilstandsrapport for eiendommen, dvs. en teknisk gjennomgang av boligen hvor eventuelle avvik, risiko for kjøper og prisoverslag for hva som bør gjøres av oppgradering, er skissert. Se særskilt TGIU (tilstandsgrad ikke undersøkt), samt TG2 og TG3 som viser hva som er avvik fra boligens normale slitasje, alder og type, eller som bør/må utbedres. Rapporten og selgers egenerklæring er en del av salgsoppgaven og må leses nøye før bud inngis. Kjøper overtar ansvaret for de opplysninger som fremkommer av salgsdokumentasjonen, og kan ikke gjøre gjeldende som mangel noe som burde vært kjent eller som ikke kan anses å ha betydning for avtalen.
I rapporten fremkommer det som takstmannen mener kjøper må være særskilt oppmerksom på, dette gjelder blant annet (se utfyllende tekst i rapporten):
Følgende kontrollpunkter/forhold har blitt tildelt TG2:
Våtrom - Bad:
- Fallforhold (gulv): Gulvflater utenfor dusjsonen er tilnærmet flate. Det er ikke mulig å verifisere om det er tilstrekkelig oppkant på tettesjikt/membran ved dørterskel (bør være 15 mm). Dette kan ha betydning for rommets lekkasjesikkerhet.
Til informasjon: Nivåforskjell fra døråpning på topp overflate gulv og til hovedsluk er på tilfeldig sted målt til ca. 23 mm. Lokalfallet i dusjsonen er vurdert til å være tilfredsstillende.
Kjøkken:
- Overflater gulv: Det registreres stedvise riper/hakk/merker i gulvets overflatemateriale. Tiltak kan iverksettes ved behov.
Øvrige rom:
- Overflater gulv: Det registreres stedvise riper/hakk/merker i gulvets overflatemateriale. Tiltak kan iverksettes ved behov.
Følgende kontrollpunkter/forhold har blitt tildelt TG3:
Det er ingen punkter som har blitt tildelt TG3.
Følgende kontrollpunkter/forhold har blitt tildelt TGIU (tilstandsgrad ikke undersøkt):
Våtrom - Bad:
- Innfelte/gjennomgående installasjoner: Det er ikke foretatt demontering av downlights.
- Fukt i tilliggende konstruksjoner: På grunn av plassering av det som vurderes å være en sjakt (brannskiller) samt våtrommets utforming og bruk er det ikke praktisk mulig å gjennomføre hulltaking og fuktmåling i de mest fuktutsatte delene av våtsonen, som erfaringsmessig er områdene der skader forekommer. Hulltaking og fuktmåling i lukkede konstruksjoner er derfor ikke utført. Det ble derimot gjennomført et overflatesøk med fuktindikator, uten at det ble påvist indikasjoner som tyder på fuktskader.
Øvrige rom:
- Innfelte/gjennomgående installasjoner: Det er ikke foretatt demontering av downlights.
Tekniske anlegg, VVS anlegg:
- Ventilasjon: Det var begrenset tilgang til å åpne luken til ventilasjonsaggregatet for å inspisere filter osv. Tilstanden er derfor ukjent. Selger er usikker når filteret sist ble skiftet.
- Varmtvannsbereder: Leiligheten er tilkoblet felles varmtvann. Anlegget er ikke videre undersøkt.
- Stakeluke: Avløpsrørene er skjult og eventuell stakeluke er ikke lokalisert.
Se vedlagt tilstandsrapport for supplerende informasjon vedrørende boligens tilstand.
Løsøre og tilbehør
Vi viser til liste fra Norges Eiendomsmeglerforbund som gjelder fra 01.01.2020 angående løsøre og tilbehør. Hvitevarer på kjøkkenet medfølger i handelen, dette gjelder Kjøleskap, oppvaskmaskin, stekeovn og koketopp.
Oppvarming
Balansert ventilasjonsanlegg i leiligheten. Vannbåren gulvvarme i stue, kjøkken og i entré. Varmekabler på bad.
Dersom det ikke er vegg- eller fastmonterte varmekilder i beboelsesrom ved visning, følger dette heller ikke med.
Ferdigattest/brukstillatelse
Det foreligger ferdigattest på eiendommen datert 21.12.2022, som omfatter oppføring av 3 boligblokker og parkeringskjeller. I tillegg er det tilhørende godkjente byggetegninger fra 2021.
Kjøper overtar eiendommen slik den framstår på visning.
Tinglyste heftelser og rettigheter
Leiligheten overdras fri for pengeheftelser, med unntak av sameiets tinglyste panterett:
De andre seksjonseierne har lovbestemt panterett i seksjonen for krav mot seksjonseieren som følger av sameieforholdet, jf. eierseksjonslovens § 31. Pantet er begrenset oppad til 2G, (G = folketrygdens grunnbeløp).
Tinglyst seksjoneringsbegjæring
Dagboknummer: 77391
Tinglysningsdato: 20.01.2022
Omhandler seksjonering av eiendommen. Bod er tinglyst som tilleggsdeler til seksjonen.
Seksjonsnummer 97, sameiebrøk 41/6452
Det er tinglyst 2 servitutter på sameiets eiendom i 1918. Disse omhandler blant annet bestemmelser om skjønn ifbm. ekspropriasjonsforr. Vedrørende NSB m.m.
Ingen av disse har direkte betydning for bruken av denne boligen.
Servituttene vil følge eiendommen. Kjøpers bank vil få pant etter ovennevnte heftelser og servitutter som ikke skal slettes ved overdragelse.
Eventuell adgang til utleie
Leiligheten kan leies ut såfremt leiligheten har forsvarlige radonverdier. Leietaker må følge sameiets vedtekter og ordensregler på lik linje som eier. Sameiets styre skal underrettes skriftlig om alle leieforhold.
Diverse
Vi er opptatt av verdiskapning, og har knyttet til oss samarbeidspartnere som skal sikre våre kunder de beste produkter og tjenester;
• Gjensidige leverer boligselgerforsikring og tilbyr bygningsforsikring
• Boligkjøperforsikring leveres av Hiscox og med Sedgwick som skadebehandler, og er formidlet gjennom Gjensidige.
• BN bank tilbyr finansieringsløsninger
• Vår avdeling Krogsveen Pluss tilbyr flyttetjenester som utvask, visningsvask, lager, tømming og transport av flyttelass, i tillegg til å formidle kontakt med Flip for overflateoppussing.
• I forbindelse med overtagelse av eiendommen tilbyr Overo avtale om strøm, alarm og bredbånd.
• Krogsveen er, sammen med øvrige bransjeaktører, medeier i den digitale annonseringsplattformen Hjem.
Energimerking
Komplett energiattest inkludert oppvarmingskarakter fås ved henvendelse til megler eller lastes ned fra www.krogsveen.no.
Beliggenhet og tomteforhold
Beliggenhet og tomteforhold
Beliggenhet
Leiligheten har en sentral beliggenhet i et etablert område. Kort gangavstand til nærmeste matbutikk, togstasjon og Hokksund sentrum med flere servicetilbud - blant annet flere koselige cafe/restauranter, butikker, bank, vinmonopol, lege, apotek, ungdomsskole m.m. Kort vei til fine turmuligheter langs elven både sommer og vinter. I tillegg er det kort vei til marka med enormt mange turmuligheter i flott terreng.
Kort vei til barnehager og flott idrettsanlegg (flerbrukshall/turnhall, bordtennis, fotballhall, kunstgressbane, sandvolleyball- og sandhåndballbaner).
Det er over 200 lag og foreninger i Øvre Eiker. På Øvre Eiker Kommunes internettsider. I Hokksund finnes det tilbud om bla. fotball, håndball, kor, musikkorps, pistolklubb, ski, speider, teater, tensing, skitrekk/tautrekk og turn. I Hokksund er det også svømmehall, bibliotek, fotballbaner (gress og kunstgress med undervarme), friidrettsbane, treningssenteret, Kurbadet og ett rikt utvalg av forretninger m.m.
Ca. 1 minutters gangavstand til Hokksund stasjon med avganger til Oslo og Kongsberg. Toget tar ca. 50 minutter til Oslo og ca. 25 minutter til Kongsberg, se www.vy.no for avganger. Enkel adkomst til hovedvei med ca. 20 minutter kjøring til Drammen og Kongsberg, 55 minutter til Hønefoss og 1 time til Oslo sentrum. Enkel adkomst til E-134 til Drammen/Oslo og Kongsberg.
Adkomst
Det vil bli skiltet med Krogsveen visningsskilt ved fellesvisninger. Se kart i nettannonse eller Google Maps for nærmere veibeskrivelse. Velkommen til visning!
Barnehager, skoler og fritid
Maurtua barnehage (1-5 år) 0.5 km
Sundbakken Solkollen barnehage 1 km
Lyngstua barnehage (1-5 år) 1.2 km
Hokksund barneskole (1-7 kl.) 1,6 km
Hokksund ungdomsskole (8-10 kl.) 0,8 km
Eiker videregående skole 1.1 km
Dersom skole- og barnehagetilbud er av betydning for kjøpet, ber vi om at det rettes en særskilt henvendelse til kommunen for oppdatert informasjon.
Beskrivelse av tomt
Eiertomt på 2 872 kvm som tilhører sameiet. Tomten er fellesareal. Hyggelig felles gårdsrom i midten av bygningene, som er pent beplantet og har sittegrupper samt lekeplass. Gårdsrommet er belagt med belegningsstein og betongheller.
Parkering
Denne leiligheten har ingen medfølgende garasjeplass.
Det er flere garasjeplasser for salg og til leie i Hokksund Stasjonsby Garasjesameie.
- Pris for kjøp av garasjeplass: Fastpris kr 290.000,- + omk. kr. 8.842,- per plass.
- Pris for leie av garasjeplass: Fastpris kr 1.200,- pr. mnd. pr. plass.
- I tillegg må det påregnes en månedlig felleskostnad på kr 150,- pr. mnd pr. plass.
Kostnadene/pris er hentet fra salgsannonsene for garasjeplassene den 16.06.2025, se mer informasjon: https://www.finn.no/realestate/homes/ad.html?finnkode=265460752
Vei, vann og avløp
Eiendommen har adkomst via kommunal vei.
Eiendommen er tilknyttet kommunalt ledningsnett via private stikkledninger. Sameiet er ansvarlig for private stikkledninger til bygningen.
Regulerings-og arealplaner
Eiendommen er regulert til boligbebyggelse - blokkbebyggelse, i henhold til Detaljregulering for Kirkeveien 36, Hokksund, gbnr. 77/106 datert 13.12.2017. Videre er eiendommen avsatt til sentrumsformål ved kommuneplanen datert 02.09.2015. Utsnitt av plan med tilhørende bestemmelser kan fås ved henvendelse til megler.
Det foreligger en igangsatt planlegging av ny kommuneplan for Øvre Eiker kommune 2024-2036, se kommunens hjemmeside for mer info.
Det opplyses om at naboeiendommen mot nord/nordøst er regulert til jernbane iht. reguleringsplanen. Per dags dato består eiendommen av Hokksund togstasjon og parkeringsplasser.
Det opplyses om at naboeiendommen mot nordvest består av Vy Buss Hokksund (bussterminal). Eiendommen er uregulert - i dag p-plass for buss.
Sameiet ble informert av Øvre Eiker kommune den, 21.02.2025 om endelig vedtak for bygging på naboeiendommen 77/70, 77/925, 77/926,77/8623, 77/865, 77/ 427og 77/8679 Byggingen omfatter blokkbebyggelse på 7 etasjer. Det må påregnes støy o.l. fra byggeprosjektet under utbyggingen.
Økonomi
Økonomi
Boligens kostnader
Felleskostnadene inkluderer bla. renovasjon, internett grunnpakke, felles vedlikehold, felles driftskostnader, sommer-/vintervedlikehold, strøm i fellesarealer, renholdstjenester, vaktmestertjenester, forretningsførsel, revisjon- og administrasjonskostnader, styrehonorar, felles bygningsforsikring m.m.. Felleskostnadene justeres normalt en til to ganger årlig i forhold til sameiets faktiske utgifter.
Felleskostnadene pr. mnd fordeles slik:
Felleskostnader kr 1.148,-
Renovasjon kr 411,-
Internett kr 390,-
Det gjøres oppmerksom på at posten for internett vil øke til kr 465,- pr. mnd fra og med 01.08.2025.
Kommunale avgifter (vann og avløp): kr 7 284,- pr. år (3 terminer), fakturert på eiendommen i 2024.
Det opplyses om at Øvre Eiker kommune har varslet om en vesentlig fremtidig økning av kommunale avgifter.
Kostnader forbundet med oppvarming av varmt tappevann og oppvarming av vann til gulvvarme blir belastet hver måned direkte til seksjonseier fra Lyse. Det er installert forbruksmåler og kostnad vil variere etter forbruk. Det må
i tillegg påregnes et administrasjonsgebyr fra Lyse på ca. kr 160.- pr. mnd.
Det må påregnes kostnader til strøm og nettleie, dette vil variere avhengig av strøm-/nettselskap. Nåværende eier har et strømforbruk som tilsvarer ca. kr 7.000 pr år.
Boligen er tilknyttet internett, Telenor grunnpakke er inkludert i felleskostnadene.
Det må påregnes kostnader til innboforsikring.
Ovenstående er basert på nåværende eier/husstands senere års forbruk/utgifter. Dette vil variere avhengig av antall beboere, ønsket innetemperatur, egne fordelsavtaler, kanalvalg, hastighet på bredbånd osv.
Formuesverdi
Formuesverdi for 2023 var kr 748 543,- ifølge skatteetaten. Beløpet forutsetter at eier bor fast i boligen (primærbolig).
Ved eventuell øvrig bruk av eiendommen (f.eks. fritidsbolig, pendlerbolig, utleieobjekt) var formuesverdien for 2023 kr 2 994 173,-
Formuesverdien justeres normalt årlig. Se skatteetaten.no for mer informasjon om fastsettelse av formuesverdien.
Opplysninger om fellesgjeld
Andel formue er kr 12 841,- pr. 31.12.2024.
Andel fellesgjeld er kr 0,- pr. 11.06.2025.
Sameiet har ingen fellesgjeld pr. dags dato.
Omkostninger
2 900 000,00 Prisantydning
Omkostninger
72 500,00 Dokumentavgift til staten (2,5% av kjøpesum)
9 950,00 Gjensidige Boligkjøperpakke (valgfri)
545,00 Tinglysing panterettsdokument
545,00 Tinglysing skjøte
--------------------------------------------------------
83 540,00 Omkostninger totalt
--------------------------------------------------------
2 983 540,00 Totalpris inkl. omkostninger
--------------------------------------------------------
Totalpris inkl. omkostninger forutsetter kjøp til prisantydning.
Det tas forbehold om endringer i avgifter og gebyrer.
Tilbud om lånefinansiering
Megler formidler gjerne kontakt med rådgiver hos vår samarbeidspartner BN Bank. De har konkurransedyktige betingelser samt rask og løsningsorientert behandling av din lånesøknad. Krogsveen mottar et honorar for denne formidlingen.
Betalingsbetingelser
Kjøpesum inkludert omkostninger, samt pantedokument tilknyttet eventuelt lån, skal være disponibelt hos megler 2 virkedager før overtagelsen.
Annen viktig informasjon
Annen viktig informasjon
Eier
Anette Yenika Engwari
Informasjon om sameiet
Eiendommen er seksjonert og leiligheten er tilknyttet Sameiet Hokksund Stasjonsby.
Sameiet består av 112 boligseksjoner og 1 næringsseksjon (106 parkeringsplasser).
Forretningsfører er Obos Eiendomsforvaltning.
Sameiets årsregnskap for 2024 viser et overskudd på kr 203.971,-.
Dugnader tilknyttet sameiet må påregnes.
Dyrehold er tillatt, med mindre det er til sjenanse for øvrige beboere.
Sameiet/seksjonseierne parkeringsplasser er organisert som en egen næringsseksjon (snr. 113) og består av 106 parkeringsplasser med egne vedtekter - Hokksund Stasjonsby Garasjesameie. Hokksund Stasjonsby Sameiet har drift- og vedlikeholdsansvaret for garasjeanlegget.
Det ble gitt tillatelse til kameraovervåking på sameiets fellesområder, som vil bli inntatt i vedtektene for sameiet. Videre ble det godkjent husordensregler for sameiet.
Det har blitt utført 1-års befaring av fellesarealer i 2023, styret har fulgt opp dette.
Seksjonseieren disponerer fritt over egen seksjon med de begrensninger som følger av sameieforholdet og eierseksjonsloven. Seksjonseieren kan fritt selge, pantsette og leie ut sin egen seksjon. Sameiets styre skal underrettes skriftlig om alle overdragelser og leieforhold.
Ingen kan kjøpe eller på annen måte erverve flere enn to boligseksjoner i sameiet i henhold til lov om eierseksjoner. Dette gjelder ikke for kjøp og erverv av fritidsboliger, erverv ved ekspropriasjon, arv eller forskudd på arv til livsarving eller en kreditors erverv for å redde en fordring som er sikret med pant i en seksjon.
Sameiets bygningsmasse er fullverdiforsikret i Tryg Forsikring, polisenr.: 8082222.
Dokumenter vedrørende sameiet kan fås ved henvendelse til megler.
Overtakelse
Etter nærmere avtale.
Boligselgerforsikring
Selger har i forbindelse med salget tegnet boligselgerforsikring levert av Gjensidige.
Boligselgerforsikringen dekker selgers ansvar etter avhendingsloven begrenset oppad til kr 14 millioner. Dersom kjøper oppdager forhold ved eiendommen som hen mener utgjør en mangel ved eiendommen, vil Gjensidige behandle reklamasjonen på vegne av selger. Forsikringsvilkår kan fås ved henvendelse til megler.
Vedlagt salgsoppgaven følger selgers egenerklæringsskjema og tilstandsrapport. Interessenter må sette seg inn i dokumentene før bud inngis.
Boligkjøperforsikring
Innen kontraktsmøtet må kjøper ta stilling til om det ønskes å bestille Boligkjøperpakken gjennom Gjensidige. I denne gunstige pakken er boligen ferdig forsikret og inkluderer rettshjelpsforsikring, også kalt Boligkjøperforsikring. Rettshjelpsforsikring gir trygghet og tilgang på profesjonell juridisk hjelp dersom det oppdages uventede feil eller mangler det første året etter overtagelse. Forsikringsselskapet behandler i så fall ethvert mangelskrav kjøper måtte ha overfor selger.
Boligkjøperpakken inkluderer bygningsforsikring for hus og hytte, innboforsikring, flytteforsikring og dobbel rentedekning - i situasjoner hvor kjøper ikke får solgt nåværende primærbolig.
Kjøper mottar ingen særskilt faktura for Boligkjøperpakken da kostnaden det første året legges til kjøpesummen for boligen. Det gjøres oppmerksom på Krogsveen mottar et honorar for denne formidlingen.
Produktark for Boligkjøperpakken ligger vedlagt i salgsoppgaven.
Dersom ikke boligkjøperpakke ønskes kan kun rettshjelpsforsikring, også kalt boligkjøperforsikring, tegnes særskilt via megler. Rettshjelpsforsikringen varer i 5 år fra overtagelse og leveres gjennom Gjensidige. Ta kontakt med megler for ytterligere informasjon.
Selskap og privatpersoner som driver med kjøp/salg/utvikling som ledd i egen næringsvirksomhet kan ikke tegne boligkjøperpakke eller rettshjelpsforsikring.
Budgivning
Forbrukerinformasjon om budgivning er vedlagt denne salgsoppgaven og er også på vår hjemmeside Krogsveen.no. Alle bud og budforhøyelser må inngis skriftlig. I tillegg må legitimasjon være fremlagt sammen med signatur fra budgiver.
Vi oppfordrer til å gi bud elektronisk via GI BUD-knappen på eiendommens hjemmeside på Krogsveen.no. Da vil samtlige vilkår bli oppfylt.
Eventuelle forhøyelser eller endringer av budet kan bekreftes pr SMS eller på e-post. Vi oppfordrer alltid til å kontakte megler pr. telefon i tillegg da forsinkelser i SMS og e-post kan forekomme.
For at budene skal kunne bli behandlet og videreformidlet skriftlig til alle involverte parter, må alle bud ha en tilstrekkelig lang akseptfrist, jf. eiendomsmeglingsforskriften § 6-3.
Selger må også skriftlig akseptere budet før aksept kan formidles til budgiver. Akseptfrist bør derfor være på minimum 30 minutter, og budforhøyelser må derfor skje i god tid før fristens utløp.
Bud i forbrukerforhold kan uansett ikke settes med kortere frist enn kl. 12.00 første virkedag etter siste annonserte visning. I tillegg kan ikke budet ha forbehold om at det skal holdes hemmelig ovenfor øvrige interessenter. Megler har iht lov om eiendomsmegling ikke anledning til å videreformidle disse budene, og de vil dermed heller ikke bli journalført.
Etter at eiendommen er solgt vil kjøper og selger få tilsendt budjournal. Øvrige budgivere kan få utlevert kopi av budjournalen i anonymisert form.
Hvitvaskingsreglene
I henhold til lov om hvitvasking og terrorfinansiering har megler plikt til å gjennomføre kontrolltiltak overfor kunder, herunder fullmektiger. Dette innebærer bl.a. å bekrefte kunders og reelle rettighetshaveres identitet på bakgrunn av fremvist gyldig legitimasjon eller på annen godkjent måte, samt å innhente opplysninger om kundeforholdets formål og tilsiktede art.
Dersom slike kundetiltak ikke kan gjennomføres, kan megler ikke etablere kundeforholdet eller utføre transaksjonen.
Hvis kjøper ikke bidrar til gjennomføring av kundekontrollen og dette fører til at transaksjonen blir forsinket eller ikke kan gjennomføres, vil dette ansees som mislighold av avtalen og gi selger rettigheter etter avhendingslova kapittel 5. I tilfeller der selger ikke bidrar til gjennomføring av løpende kundekontroll underveis i oppdraget, er det selger som misligholder sine forpliktelser etter avtalen og gi kjøper rettigheter etter avhendingslovens kapittel 4. Partene er selv ansvarlige for eventuelle kostnader og ansvar dette kan medføre. Eiendomsmegleren eller eiendomsmeglingsforetaket kan ikke holdes ansvarlig for de konsekvenser dette vil kunne få for partene eller andre som har interesser i eiendomshandelen.
Kjøper oppfordres til å innbetale kjøpesummen som ikke kommer fra låneinstitusjon i én samlet innbetaling fra egen konto i norsk bank. Megler har plikt til å melde fra til Økokrim om eiendomshandler som fremstår som mistenkelige. Melding sendes Økokrim uten at partene varsles.
Personopplysningsloven
I henhold til personopplysningsloven gjør vi oppmerksom på at interessenter kan bli registrert for videre oppfølging.
Lovanvendelse
Generelle bestemmelser
Salgsoppgaven er basert på de opplysningene selger har gitt til megler, den bygningssakyndiges tilstandsrapport, samt opplysninger innhentet fra kommunen, Kartverket og andre tilgjengelige kilder. Det er viktig at kjøper setter seg grundig inn i alle salgsdokumentene, herunder salgsoppgave, tilstandsrapport og selgers egenerklæring. Kjøper anses kjent med forhold som er tydelig beskrevet i salgsdokumentene, og slike forhold kan ikke påberopes som mangler. Dette gjelder uavhengig av om kjøper har lest dokumentene. Alle interessenter oppfordres til å undersøke eiendommen nøye, gjerne sammen med fagkyndig før bud inngis. Kjøper som velger å kjøpe usett kan ikke gjøre gjeldende som mangel noe han burde blitt kjent med ved undersøkelsen.
Dersom det er behov for avklaringer, anbefaler vi at interessenter rådfører seg med eiendomsmegler eller egne rådgivere før det legges inn bud.
En bolig som har blitt brukt i en viss tid, har vanligvis blitt utsatt for slitasje og skader kan ha oppstått. Slik bruksslitasje må kjøper regne med, og det kan avdekkes enkelte forhold etter overtakelse som nødvendiggjør utbedringer. Normal slitasje og skader som nødvendiggjør utbedring, er innenfor hva kjøper må forvente og vil ikke utgjøre en mangel.
Kjøper og selgers rettigheter og plikter reguleres av avtalen mellom partene, samt informasjonen som har vært tilgjengelig for kjøperen i forbindelse med handelen. Avtalen utfylles av avhendingsloven, og det gjelder ulike avtalevilkår avhengig av om kjøper er forbrukerkjøper eller ikke. Dette er nærmere beskrevet nedenfor.
På grunn av ulike avtalevilkår kan selger vurdere bud fra en som ikke er forbruker, ulikt fra en forbrukers bud. Dersom kjøper ikke er forbruker, er selger sitt mulige mangelsansvar begrenset fordi eiendommen selges "som den er". Selger kan ikke ta «som den er»- forbehold overfor en forbrukerkjøper. Selv et lavere bud fra en som ikke er forbruker kan foretrekkes fordi begrensningen i mulig mangelsansvar kan ha egenverdi for selger. Selger står fritt til å forkaste eller akseptere ethvert bud, og er for eksempel ikke forpliktet til å akseptere høyeste bud.
Budgiver skal i budskjema avgi egenerklæring om budgiver er forbruker eller næringsdrivende/ person som hovedsakelig handler som ledd i næringsvirksomhet. Budgivere får informasjon dersom andre bud er inngitt av en som ikke er forbruker.
Forbrukerkjøp - definisjon
Med forbrukerkjøp menes kjøp av eiendom når kjøperen er en fysisk person som ikke hovedsakelig handler som ledd i næringsvirksomhet.
Forbruker – avtalevilkår
Eiendommen har en mangel dersom den ikke er i samsvar med kravene som følger av avtalen, eller det foreligger brudd på bestemmelsene i avhendingsloven §§ 3-2 til 3-8. Hvis eiendommen ikke er i samsvar med det kjøperen må kunne forvente ut ifra alder, type og synlig tilstand, kan det være grunnlag for mangelskrav. Det samme gjelder hvis det er holdt tilbake eller gitt uriktige opplysninger om eiendommen. Dette gjelder likevel bare dersom man kan gå ut ifra at det virket inn på avtalen at opplysningen ikke ble gitt eller at mangelskravet ikke blir rettet i tide på en tydelig måte.
Boligen kan ha en mangel etter avhendingsloven § 3-3 andre ledd, dersom det er avvik mellom opplyst og faktisk innvendig areal, forutsatt at avviket er på 2% eller mer og minimum 1 kvm.
Ved beregning av et eventuelt prisavslag eller erstatning må kjøper selv dekke tap/kostnader opptil et beløp på kr 10 000 (egenandel).
Ikke-forbruker (næringsdrivende) – definisjon
Hvis kjøper er en juridisk person, eller en fysisk person som hovedsakelig handler som ledd i næringsvirksomhet, vil kjøpet ikke anses som et forbrukerkjøp.
Ikke-forbruker – avtalevilkår
Eiendommen har en mangel dersom den ikke er i samsvar med kravene som følger av avtalen.
Eiendommen selges «som den er», og selgers ansvar utover det konkret avtalte er da begrenset etter avhendingsloven § 3-9, første ledd andre setning.
Avhendingsloven § 3-3 andre ledd fravikes, og hvorvidt boligens arealsvikt utgjør en mangel vurderes etter avhendingsloven § 3-8.
Informasjon om kjøpers undersøkelsesplikt, herunder oppfordringen om å undersøke eiendommen nøye, gjelder også for kjøpere som ikke anses som forbrukere.
Det forutsettes at hjemmel overføres til kjøper. Hvis kjøper ikke ønsker hjemmelsoverføring av eiendommen, må det tas forbehold om dette i budet.
Meglers vederlag
Meglers vederlag betales av selger og er avtalt til:
Vederlag: kr 45.000,-
Tilrettelegging kr 17.000,-
Oppgjør: kr 7.500,-
Markedsføringspakke: kr 27.400,-
Visninger: kr 3.500,- pr. stk Første visning gratis
Oppslag eiendomsregister: kr 2.900,-
Megler har i tillegg krav på dekning av utlegg:
Eierskiftegebyr forretningsfører NBBO: kr 6.570
Innhenting av informasjon forretningsfører NBBO: kr 4.947
Innhenting av off. opplysninger Øvre Eiker - byggetegn.+ Rfd: kr 4.900
Tinglysing sikring: kr 545
Boligselgerforsikring Gjensidige 4,42 promille av salgssum
Fotopakke: kr 4.500
Tilstandsrapport: kr 9.700
Opplysninger om oppdraget
Oppdragsnummer 20-0202/25
Eiendomsmegler Krogsveen AS, avd. Drammen
Nedre Storgate 16, 3015, DRAMMEN
950 007 613
Oppdragets KR-kode KR20.25202
Dato
Sist oppdatert: 19. januar 2026 kl. 16:58
Dokumenter
Dokumenter
PDF – 406 KB
PDF – 655 KB
PDF – 2 MB
PDF – 312 KB
PDF – 29 KB
PDF – 127 KB
PDF – 392 KB
Område
Legg til steder som er viktige for deg
Visning
For å delta på visning, ber vi om at du melder deg på. Da sikrer vi at du får nødvendig informasjon og at det er satt av tilstrekkelig med tid. Kontakt megler dersom annet tidspunkt ønskes. Husk å lese salgsoppgaven før visningen, så du stiller forberedt.
Ønsker du kun å bli holdt orientert, kan du fra eiendommens hjemmeside få varsel om solgtpris, eller kontakte megler.
Lurer du på noe?
Unngå doble boligrenter
Vi tilbyr gunstig forsikring.
Vurderer du utleie?
Få et tilbud fra Utleie KrogsveenHva koster lånet?
Sjekk estimert lånekostnadVil du varsles om lignende boliger?
Ved å lagre ditt boligsøk hos oss får du beskjed når vi har en bolig som ligner denne, før den legges ut på markedet!

