Østreheimsveien 29
7 890 000 kr
86 m²
2 soverom
Solgt

Presenteres av
Hanne PettersenVED FOTEN AV LILLOMARKA
UNIK MULIGHET I MARKAGRENSEN! Lekker familiebolig over to plan m/ solrik balkong på 9 kvm, garasje og stort fellesareal
Prisantydning
7 890 000 krAndel fellesgjeld
54 000 krOmkostninger
209 640 krTotalpris
8 153 640 kr
Pris
Bruksareal
95 m²BRA-I (internt bruksareal)
86 m²BRA-E (eksternt bruksareal)
9 m²TBA (terrasse-balkongareal)
9 m²
Areal
Etasje
2Byggeår
1955Soverom
2 soveromBad
1 badType
EierleilighetEierform
EierseksjonFasiliteter
Garasje/P-plass og Balkong/TerrasseFellesutgifter
6 486 krEnergimerke
Grønn G
Nøkkelinfo
Unngå doble boligrenter
Vi tilbyr gunstig forsikring.
Vurderer du utleie?
Få et tilbud fra Utleie KrogsveenHva koster lånet?
Sjekk estimert lånekostnadBeskrivelse
Kort om eiendommen
Øverst i en av Årvolls fineste gater finner du Østreheimsveien 29.
Dette er boligen for deg om ønsker å bo i en leilighet med rekkehusfølelse.
Her har du egen garasje, balkong, felles hage og lekeplass til barna.
Du kan ta på joggesko, langrennsski eller kaste alpint-skiene på skulderen og gå de 100 meterne det er til markagrensen og Oslo skisenter.
Du kan også ta et kveldsbad på Trollvann eller en rusletur opp til Grefsenkollen med uteservering og konserter som "over Oslo".
Dette objektet ansees som en perle og en sjelden mulighet i området!
Vestvendt balkong med skjermet beliggenhet på enden
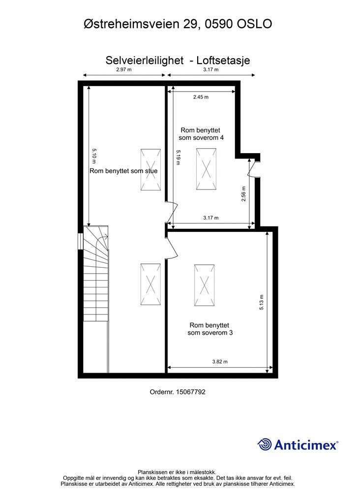
Loftsetasjen har et totalt gulvareal på 66 kvm
Fyring og varmtvann er inkl. i felleskostn.
2 boder i kjeller
Garasje m/ mulighet for lader, samt 1 oppstillingsplass foran
Område
Legg til steder som er viktige for deg
På flyttefot? Tenk kjøp og salg samtidig.
Få din egen rådgiver gjennom hele kjøps- og salgsprosessen. Det starter med en verdivurdering.
Unngå doble boligrenter
Vi tilbyr gunstig forsikring.
Vurderer du utleie?
Få et tilbud fra Utleie KrogsveenHva koster lånet?
Sjekk estimert lånekostnadVil du varsles om lignende boliger?
Ved å lagre ditt boligsøk hos oss får du beskjed når vi har en bolig som ligner denne, før den legges ut på markedet!
På flyttefot? Slik gjør vi det enklere for deg
Skreddersydd flyttepakke
Vi fikser håndverkere, vask, pakking, lagring og transport, og legger ut for utgiftene underveis.
Hjelp med både kjøp og salg
Hos oss har du din egen rådgiver gjennom hele kjøps- og salgsprosessen.
Hjelp til finansiering
Vårt samarbeid med BN Bank sikrer deg rask og løsningsorientert hjelp, til konkurransedyktige betingelser.

