Orresvingen 4
3 950 000 kr
185 m²
3 soverom
Solgt

Innholdsrik enebolig med solrik hage på Fenstad | Badstue | Dobbelgarasje | Stor tomt
Prisantydning
3 950 000 krOmkostninger
119 740 krTotalpris
4 069 740 kr
Pris
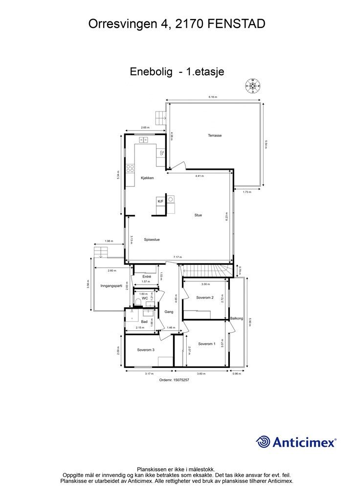
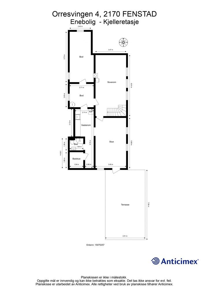
Bruksareal
230 m²BRA-I (internt bruksareal)
185 m²BRA-E (eksternt bruksareal)
45 m²TBA (terrasse-balkongareal)
90 m²
Areal
Etasje
2Byggeår
1980Soverom
3 soveromBad
2 badTomteareal
1 346 m² (eiet)Type
Enebolig - FrittliggendeEierform
EietFasiliteter
Garasje/P-plassEnergimerke
Gul F
Nøkkelinfo
Unngå doble boligrenter
Vi tilbyr gunstig forsikring.
Vurderer du utleie?
Få et tilbud fra Utleie KrogsveenHva koster lånet?
Sjekk estimert lånekostnadBeskrivelse
Kort om eiendommen
Velkommen til en romslig og innbydende enebolig som byr på alt en familie kan ønske seg. Her får du en lys stue med vedovn, varmepumpe og utgang til stor terrasse, et fint kjøkken med spiseplass og tre gode soverom – hvor hovedsoverommet har egen balkong. Boligen har to bad, separat wc, praktisk vaskerom og en koselig kjellerstue perfekt for lek og hygge. I kjelleren finner du også badstue og ekstra oppholdsrom. Ute venter en stor, solrik tomt på 1345 kvm, pent opparbeidet med gressplen, frukttrær, terrasse og drivhus. Her er det god plass til både lek, avslapning og sosiale stunder. Eiendommen har dobbelgarasje med lagringsplass og mulighet for elbillader.
Dette er et hjem som virkelig har alt – plass, sjarm, funksjonalitet og unike uteområder.
Område
Legg til steder som er viktige for deg
På flyttefot? Tenk kjøp og salg samtidig.
Få din egen rådgiver gjennom hele kjøps- og salgsprosessen. Det starter med en verdivurdering.
Unngå doble boligrenter
Vi tilbyr gunstig forsikring.
Vurderer du utleie?
Få et tilbud fra Utleie KrogsveenHva koster lånet?
Sjekk estimert lånekostnadVil du varsles om lignende boliger?
Ved å lagre ditt boligsøk hos oss får du beskjed når vi har en bolig som ligner denne, før den legges ut på markedet!

