Brobekkveien 30
7 200 000 kr
111 m²
3 soverom
Komplett salgsoppgave

Brobekk/Vollebekk
Rålekker 4-roms (111 kvm) med høy standard - Pusset opp av fagfolk i 2022 - Hjørneleilighet - 2 balkonger - Peis
Prisantydning
7 200 000 krOmkostninger
191 040 krTotalpris
7 391 040 kr
Pris
Bruksareal
113 m²BRA-I (internt bruksareal)
111 m²BRA-E (eksternt bruksareal)
2 m²TBA (terrasse-balkongareal)
20 m²
Areal
Etasje
2Byggeår
1968Soverom
3 soveromBad
1 badType
EierleilighetEierform
EierseksjonFasiliteter
Balkong/TerrasseFellesutgifter
4 596 krEnergimerke
Oransje E
Nøkkelinfo
Unngå doble boligrenter
Vi tilbyr gunstig forsikring.
Vurderer du utleie?
Få et tilbud fra Utleie KrogsveenHva koster lånet?
Sjekk estimert lånekostnadBeskrivelse
Kort om eiendommen
Velkommen til Brobekkveien 30 - en rålekker 4-roms hjørneleilighet på hele 111 kvm! Boligen ble pusset opp av fagfolk i 2022 og holder en høy standard. Her får du blant annet en meget romslig stue med flere soner, balkong og peis, stort og lekkert kjøkken fra Kvik, meget delikat bad og toalettrom, tre gode soverom (hvorav ett har egen balkong) samt en praktisk entré med innvendig bod. Denne boligen bør virkelig oppleves!
- Rålekker og påkostet 4-roms pusset opp i 2022 av fagfolk
- 111 kvadratmeter!
- Tre soverom
- Stor stue med peis og varmepumpe
- 2 balkonger på tilsammen 20 kvm
- Innvendig bod pluss kjellerbod
- Lave felleskostnader
- Kort vei til kollektivtransport, butikk, treningssenter, kjøpesenter m.m.
- Mulighet for leie av p-plass/garasje etter venteliste
- Gratis beboerparkering
Innhold og byggemåte
Innhold og byggemåte
Eiendommen
Brobekkveien 30, 0598 OSLO
Kommunenummer 301, gårdsnummer 123, bruksnummer 775, seksjonsnummer 68, ideell andel 1/1
Innhold
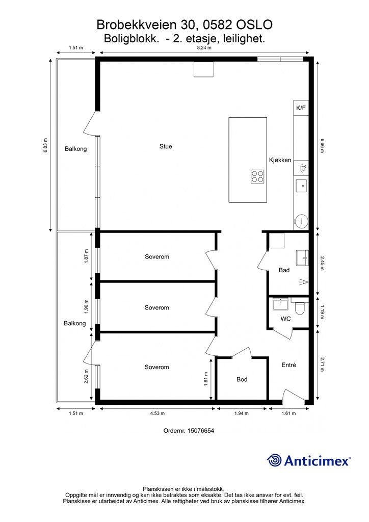
Totalt bruksareal BRA: 113 kvm
BRA-i:
2. etasje 111 kvm: Entré, bad, toalettrom, innvendig bod, tre soverom, stue og kjøkken.
BRA-e:
-1. etasje 2 kvm: Kjellerbod
Åpent areal:
2. etasje 20 kvm: To balkonger
Boligen disponerer en kjellerbod på 2 kvm.
Det gjøres oppmerksom på at boligens eksterne boder tilhører sameiets fellesareal, og at boden således ikke eies av den enkelte sameier. Dette medfører at sameiet i fellesskap beslutter bruken, og at man ikke selv har eierrett og rettsvern for boden. Sameiet kan ved vedtak beslutte annet bruk av fellesarealet og disponering av bodarealet kan dermed opphøre.
Vedlagte plantegninger er ikke målbare. De oppgitte arealer er hentet fra rapport med befaringsdato 17.10.2025 utført av Anticimex v/Owe Fagerlund Leret.
Byggemåte
Selger har fått utarbeidet en tilstandsrapport, dvs. en teknisk gjennomgang av boligen hvor eventuelle avvik, risiko for kjøper og prisoverslag for hva som bør gjøres av oppgradering, er skissert. Se særskilt TGIU (tilstandsgrad ikke undersøkt), samt TG2 og TG3 som viser hva som er boligens normale slitasje, alder og type, hva som er avvik fra dette og hva som bør/må utbedres. Rapporten og selgers egenerklæring er en del av salgsoppgaven og må leses nøye før bud inngis. Kjøper overtar ansvaret for de opplysninger som fremkommer av salgsdokumentasjonen, og kan ikke gjøre gjeldende som mangel noe som burde vært kjent eller som ikke kan anses å ha betydning for avtalen.
Boligblokk over 5.etasjer, samt kjeller. Grunnmur, bærende konstruksjoner og etasjeskiller hovedsakelig av betong. Takkonstruksjon utvendig tekket med papp (ikke besiktiget). Utvendige fasader forblendet i pusset mur. Leiligheten har entrédør i brannklasse B30 og lydklasse 40dB med kikkehull og sikkerhetslås. Balkongdører og vinduer med 2-lags glass fra 1986. Oppvarming via elektrisitet og vedfyring. Les for øvrig mer om byggemåte og den tekniske tilstanden i rapporten.
Følgende forhold har fått tilstandsgrad 2:
- Ventilasjon og avtrekk på kjøkken (kullfilter, ikke separat avtrekk.)
- Vannrør (grunnet alder)
- Ytterdør og vinduer (preg av slitasje og elde. Det er ikke observert synlige skader av større betydning.)
- Balkong (for lav rekkverkshøyde)
Selger har i tillegg informer om at det i 2021 ble observert maur i leiligheten. Det ble gjennomført tiltak i regi av sameiet og det er ikke observert maur siden.
Standard
Velkommen til Brobekkveien 30 - en rålekker 4-roms hjørneleilighet på hele 111 kvm! Boligen ble pusset opp av fagfolk i 2022 og holder en høy standard. Her får du blant annet en meget romslig stue med flere soner, balkong og peis, stort og lekkert kjøkken fra Kvik, meget delikat bad og toalettrom, tre gode soverom (hvorav ett har egen balkong) samt en praktisk entré med innvendig bod. Denne boligen bør virkelig oppleves!
Entré/gang:
Innbydende entré med en praktisk og gjennomtenkt planløsning som gjør hverdagen litt enklere. Her er det god plass til både skohylle og oppheng for ytterklær, samt flere kommoder. Fra entréen har du også direkte tilgang til en innvendig bod som gir ekstra oppbevaringsmuligheter.
Stue:
Romslig stue som fremstår som et lyst og imøtekommende samlingspunkt, godt hjulpet av store vindusflater som slipper rikelig med dagslys. Den generøse romfølelsen gir mulighet for flere soner, slik at du enkelt kan innrede både en komfortabel sofagruppe, et romslig spisebord og en egen, hyggelig lesekrok. Stuen har i tillegg til varmepumpe, en stemningsskapende peis som blir et naturlig midtpunkt og gir rommet en varm og innbydende atmosfære på vinterhalvåret. Fra stuen har du utgang til en østvendt balkong på hele 10 kvm.
Kjøkken:
Boligen har en åpen kjøkkenløsning med et flott Kvik-kjøkken fra 2022, med stilrent design. Kjøkkenet har meget bra med skap- og benkeplass som gir gode arbeidsforhold. Hvitevarene medfølger og består av integrert stekeovn, kombiovn, platetopp med integrert ventilator, oppvaskmaskin og kjøleskap med frysedel. Det er montert komfyrvakt og waterguard.
Bad:
Delikat bad fra 2022 med gulvarme og downlights. Badet inneholder servant med ett-greps blandebatteri, ovenpåliggende vask og speil, samt dusjhjørne med innfellbare dusjdører. Badet har opplegg for vaskemaskin.
Toalett:
Separat toalettrom fra 2022, pusset opp i samme stil som badet. Toalettrommet har servant med ett-greps blandebatteri og ovenpåliggende vask, samt vegghengt toalett med innebygget sisterne.
Hovedsoverom:
Romslig hovedsoverom med god plass til dobbeltseng med tilhørende nattbord, samt stort garderobeskap. Fra hovedsoverommet går det dør ut til en østvendt balkong på 10 kvm.
Soverom II og III:
Boligen øvrige soverom er av tilnærmet lik størrelse og passer perfekt som barnerom, gjesterom eller kontor.
Løsøre og tilbehør
Vi viser til liste fra Norges Eiendomsmeglerforbund som gjelder fra 01.01.2020 angående løsøre og tilbehør.
I tillegg medfølger integrerte hvitevarer på kjøkkenet.
Oppvarming
Oppvarming via elektrisitet og vedfyring.
Dersom beboelsesrom ikke har vegg- eller fastmonterte varmekilder ved visning, følger dette heller ikke med.
Det er ikke tegnet Norgespris per i dag.
Ferdigattest/brukstillatelse
Det foreligger ferdigattest på boligblokk datert 17.04.1970. Denne kan fås ved henvendelse til megler.
Det gjøres oppmerksom på at det ikke lenger utstedes ferdigattest på tiltak det er søkt om før 1998 jf. plan- og bygningsloven § 21-10. Kommunen vil ikke kreve ferdigattest for disse tiltakene og vil avvise eventuelle søknader. Bestemmelsen innebærer ikke at tiltak med manglende søknad blir lovlige, men at man ikke trenger å avslutte gamle byggesaker. Normalt sett kreves ferdigattest for alle søknadspliktige tiltak som gjøres etter plan- og bygningsloven.
Tinglyste heftelser og rettigheter
Leiligheten overdras fri for pengeheftelser med unntak av:
Dagboknr 27665, tinglyst 27.09.1983, type heftelse: erklæring/avtale. Panterett uten opptrinnsrett til sameiet for NOK 15.000,-.
Sameiet har legalpant for krav mot sameieren som følger av sameieforholdet iht. eierseksjonsloven § 31. Pantet er begrenset oppad til 2G, (G = folketrygdens grunnbeløp).
I tillegg har sameiet tinglyst panterett som nevnt over.
Det er tinglyst seks servitutter på sameiets eiendom. Disse omhandler blant annet 5 erklæring/avtale (vedtak av visse vilkår vedr. utskillelse/bebyggelse av denne eiendom, vedtak av Oslo kommunes vann- og kloakkreglement, bestemmelse om trafostasjon/kiosk) og 1 bestemmelse om vann/kloakkledning.
Servituttene vil følge eiendommen. Kjøpers bank vil få pant etter ovennevnte heftelser og servitutter.
Eventuell adgang til utleie
Leiligheten kan leies ut såfremt leiligheten har forsvarlige radonverdier. Leietaker må følge sameiets vedtekter og ordensregler på lik linje som eier. Sameier plikter å informere styret om hvem som til enhver tid bor i seksjonen. Informasjonen skal inneholde navn og kontaktinfo til ansvarlig eier og leietaker(e). Ved utleie av seksjon, skal det sendes søknad om godkjenning av leietaker(e) før leieperioden starter. Søknaden skal inneholde korrekt info i henhold til tekst i fastsatt søknadsskjema og signeres av sameier og leietaker. Styret kan bare nekte godkjenning dersom det foreligger en saklig grunn. Ved endring av beboer(e) / leietaker(e), skal sameier betale vederlag for utgifter ved navneendring og endring av kontaktinfo. Per 1/1-2022 er beløpet kr. 500,-. Dersom sameier ikke sender søknad, må purres opp eller oppgir feil informasjon i søknad slik at dette fører til ekstra arbeid for styret og forretningsfører, vil dette kunne medføre pålagt betaling for dekning av merarbeid. Korttidsutleie (type AIRBNB) er ikke tillatt. Leietaker(e) har ikke rett til videre fremleie av seksjonen.
Diverse
Tilbud av produkter og tjenester fra våre samarbeidspartnere
Vi er opptatt av verdiskapning, og har knyttet til oss samarbeidspartnere som skal sikre våre kunder de beste produkter og tjenester;
• Gjensidige leverer boligselgerforsikring og tilbyr bygningsforsikring
• Boligkjøperforsikring leveres av Hiscox og med Sedgwick som skadebehandler, og er formidlet gjennom Gjensidige.
• BN bank tilbyr finansieringsløsninger
• Vår avdeling Krogsveen Pluss tilbyr flyttetjenester som utvask, visningsvask, lager, tømming og transport av flyttelass, i tillegg til å formidle kontakt med Flip for overflateoppussing.
• I forbindelse med overtagelse av eiendommen tilbyr Overo avtale om strøm, alarm og bredbånd.
• Krogsveen er, sammen med øvrige bransjeaktører, medeier i den digitale annonseringsplattformen Hjem som eies av Bomega AS.
Beliggenhet og tomteforhold
Beliggenhet og tomteforhold
Beliggenhet
Boligen har en svært attraktiv og sentral beliggenhet på Brobekk/Vollebekk - et område i sterk utvikling. Her bor du i rolige, grønne omgivelser, samtidig som du har kort vei til byens pulserende tilbud. Nabolaget er et meget godt egnet sted for deg som ønsker å bo tilbaketrukket fra storbyen, samtidig som du har kort vei til blant annet dagligvarebutikker, kafeer, kollektivtrafikk og byens servicetilbud. Sameiet har store frodige utearealer med plener og pen beplantning som gir en følelse av å bo i en grønn oase i byen. Her finner du sittegrupper, lekeplasser og fin akebakke for de små om vinteren.
Et område i sterk utvikling:
Vollebekk transformeres nå til et urbant og moderne nabolag med nye boliger, parker, torg, gågater og møteplasser. Her får du både trygghet, trivsel og et område i vekst. Utbyggingen og moderniseringen av områdene er godt i gang. Hittil har Vollebekk vært mest kjent som et industriområde, men området endres nå til å bli et urbant og grønt sted å leve og bo. Store deler av området skal bygges opp helt på nytt. I tillegg til boliger og næringslokaler skal det bygges gågate, parker, torg og leke- og møteplasser.
Alt du trenger i hverdagen:
Det er flere dagligvarebutikker innen gangavstand; Rema1000, Kiwi og Meny Vollebekk i Brobekkveien. Meny har ferskvaredisk og bakeri. I samme bygg er det også Europris og apotek. 5-10 minutters gange fra boligen er det også flere hyggelige spisesteder som blant annet Compho og Håndbakt, samt treningssentere som Evo og Feel24.
Kort vei til både Linderud senter, Alna senter, Storo senter og Løren senter med bl.a. lege, tannlege, frisør, post/bank, restauranter og for øvrig rikelig med butikker, restauranter og servicetilbud.
Bjerkedalen park – nabolagets perle:
Flotte Bjerkedalen park ligger rett i nærheten. Parken er på ca. 40 mål består av tursti/joggeløype, andedam, sandstrand, basketbane, volleyballbane og store grøntområder. Hovinbekken har blitt åpnet og renner gjennom parken. På vinteren er det skøytebane og akebakke. Parken vant Oslo bys arkitekturpris i 2015!
Brobekk skolehage:
Parsellhagen ligger 400 meter unna, her kan privatpersoner som ønsker å dyrke egen mat leie parsell. Det arrangeres flere markedsdager i løpet av året hvor du kan kjøpe blant annet frukt, urter, grønnsaker, eplemost samt hjemmelaget mat, syltetøy og andre delikatesser. Les mer på: https://www.brobekk.skolehage.org/
Nærhet til natur og rekreasjon:
Nærhet til Lillomarka som representerer en fantastisk mulighet til rekreasjon, sport og lek. Lysløyper, Grefsenkleiva og flotte turstier - sommer som vinter!
Kort vei til offentlig kommunikasjon (buss/t-bane).
Kollektivtransport i nærområdet:
T-bane linje 4 og 5 fra Vollebekk (ca. 7 minutters gange)
Buss nr 31 fra Bjerke eller Øvre Lunden (ca. 10 minutters gange)
Buss nr 60 fra Linne hotell (ca. 6 minutters gange)
Buss nr 58 fra Økernbråten (1 minutts gange)
Det går Flybuss fra Bjerke og Trondheimsveien, ca. 10 minutters gange fra leiligheten.
Adkomst
Direkte adkomst fra Brobekkveien. Det vil bli skiltet med Krogsveen visningsskilt ved fellesvisninger.
Barnehager, skoler og fritid
Boligen sogner til Linderud skole.
Kort vei til Vollebekk skole (500 meter)
Det er flere barnehager i området, blant annet:
Bjerkedalen barnehage (0-6 år): 0.2 km
Sofus barnehage (1-6 år): 0.4 km
Informasjon om tilhørende skolekretser er hentet fra Prognosesenteret som dataleverandør, og tilhørigheten kan årlig endres av kommunen. Dersom skole- og barnehagetilbud er av betydning for kjøpet, ber vi om at det rettes en særskilt henvendelse til kommunen/bydelsadministrasjonen for oppdatert informasjon.
Beskrivelse av tomt
Eiertomt på 11.948 kvm som tilhører sameiet. Pent opparbeidet fellesareal med gressplen, prydbusker, hekker, trær, benker, bord og asfalterte gangveier.
Parkering
Sameiet har flere garasje- og parkeringsplasser som kan leies, etter ventelisteprinsippet.
Sameiet har også 10 frie plasser som seksjonseierne kan benytte. Hver eierseksjon har fått tildelt ett parkeringsbevis for bruk av plassene.
Bruk av de frie p-plassene er begrenset inntil 72 timer/3 døgn. Deretter må bil fjernes i minst 24 timer før retur til sameiets p-plasser (karantenetid).
I tillegg så har er det innført gratis beboerparkering i dette området. Dette betyr at du kan parkere fritt døgnet rundt på parkeringsplassene regulert til beboerparkering i området rundt din bolig.
Vei, vann og avløp
Eiendommen har adkomst via kommunal vei og via privat vei med felles vedlikeholdsansvar for sameiet.
Eiendommen er tilknyttet kommunalt ledningsnett via private stikkledninger. Sameiet er ansvarlig for private stikkledninger til bygningen.
Regulerings-og arealplaner
Eiendommen er regulert til byggeområde for boliger i henhold til reguleringsplan 35267 (S-944) datert 23.08.1967 med tilhørende reguleringsbestemmelser.
Eiendommen inngår i "Strategisk plan for Hovinbyen".
Utsnitt av plan med tilhørende bestemmelser kan fås ved henvendelse til megler.
Det foreligger et planprogram for Vollebekk som legger til rette for at Vollebekk utvikles til et tett og mangfoldig byområde med blandet arealbruk. Oslo kommune ønsker å utvikle Vollebekk til et aktivt og mangfoldig byområde med parker og friområder. Planprogrammet ligger til grunn for videre planarbeid i området. Det vil bli fulgt opp gjennom flere detaljreguleringsplaner. Byggeaktivitet i området må påregnes i årene fremover.
Brobekkveien 31:
Detaljregulering til offentlig ettersyn, bolig, forretning og bevertning, reguleringssak med saksnummer 201818294. Fredensborg bolig AS foreslår å omregulere Brobekkveien 31 fra bolig og nærsenter til bolig og bevertning og forretningsarealer. Det foreslås boliger i 5-9 etasjer og det legges til rette for ca. 46 nye boliger. Eksisterende boligblokk blir stående med sine 9 etasjer, ny bebyggelse mot Refstadveien og Martin Borrebekkens vei får 5 etasjer. Alle bygg får takterrasser. Forslaget inneholder også torg, møteplass og fortau. Detaljreguleringen ble godkjent av bystyret 30.08.2023. Når prosjektet settes i gang må det forventes byggestøy.
Brobekkveien:
Opparbeidelse av vei, fortau og sykkelvei, reguleringssak med saksnummer 201619425. Saken omhandler også Vollebekkveien, som strekker seg mellom Brobekkveien og Lunden.
Bystyret vedtok 30. august 2023 å omregulere Brobekkveien og Vollebekkveien fra kjørevei og fortau til å også inkludere sykkelfelt, holdeplass/gangareal og grøntareal. Brobekkveien og Vollebekkveien skal bli mer bymessig og endres fra vei til gate. Det skal også etableres et tosidig sykkelfelt og fortau langs Brobekkveien. Dette prosjektet kan medføre støy og anleggsarbeid.
Brobekkveien 54:
Oppføring av bolig og næringsbygg med saksnummer 202508267.
Refstadveien:
Tilrettelegging for kollektiv og gang-sykkelvei med saksnummer 202315585.
Økonomi
Økonomi
Boligens kostnader
Fellesutgiftene er kr 4 596,- pr. mnd. og inkluderer: kabel-tv og internett (grunnpakke), trappevask, vaktmestertjenester, felles bygningsforsikring, kommunale avgifter, forretningsførsel, drift, vedlikehold mv.
Fellesutgiftene justeres normalt en til to ganger årlig i forhold til sameiets faktiske utgifter og ble sist justert 1. mars 2026.
Nåværende eier har et strømforbruk som tilsvarer ca. kr 8 779,- pr. år. / 9 307 kwh. pr. år.
Boligen er tilknyttet Telia som leverandør av kabel-tv. Tv-tuner/dekoder medfølger ikke.
Utgiftene er basert på nåværende eiers forbruk. Kjøper må selv tegne innboforsikring.
Formuesverdi
Formuesverdi for 2024 var kr 1 813 661,- ifølge Skatteetaten. Beløpet forutsetter at eier bor fast i boligen (primærbolig).
Ved eventuell øvrig bruk av eiendommen (f.eks. fritidsbolig, pendlerbolig, utleieobjekt) var formuesverdien for 2024 kr. 7 254 642,-.
Fra 2026 har Stortinget vedtatt en oppdatert modell for beregning av formuesverdi for primærbolig, så avvik kan forekomme.
For mer informasjon se skatteetaten.no
Eiendomsskatt
Eiendomsskatten utgjorde i fjor kr. 434,-.
Opplysninger om fellesgjeld
Andel formue er kr 54 762,- pr. 31.12.2025.
Andel fellesgjeld er kr 0,- pr. 31.12.2025
Omkostninger
7 200 000,00 Prisantydning
Omkostninger
180 000,00 Dokumentavgift til staten (2,5% av kjøpesum)
9 950,00 Gjensidige Boligkjøperpakke (valgfri)
545,00 Tinglysing panterettsdokument
545,00 Tinglysing skjøte
--------------------------------------------------------
191 040,00 Omkostninger totalt
--------------------------------------------------------
7 391 040,00 Totalpris inkl. omkostninger
--------------------------------------------------------
Totalpris inkl. omkostninger forutsetter kjøp til prisantydning.
Det tas forbehold om endringer i avgifter og gebyrer.
Tilbud om lånefinansiering
Megler formidler gjerne kontakt med rådgiver hos vår samarbeidspartner BN Bank. De har konkurransedyktige betingelser samt rask og løsningsorientert behandling av din lånesøknad. Krogsveen mottar et honorar dersom lån opprettes.
Betalingsbetingelser
Kjøpesum inkludert omkostninger, samt pantedokument tilknyttet eventuelt lån, skal være disponibelt hos megler 2 virkedager før overtagelsen.
Annen viktig informasjon
Annen viktig informasjon
Eier
Karl Martin Sonley og Victoria Louise Sonley
Informasjon om sameiet
Eiendommen er seksjonert, og leiligheten er tilknyttet Brobekkveien 26-28-30 Boligsameie , med sameiebrøk 156/9999.
Sameiet består av 81 seksjoner.
Forretningsfører er Nordberg Eiendomsforvaltning, tlf. 22 64 61 20.
Vaktmesteravtale med Gårdreform AS som har ukentlig inspeksjon samt gressklipping og måking/strøing av gangveier samt strøing av kjøreareal ved garasjer.
Dugnad må påregnes og avholdes normalt hver vår.
Dyrehold er tillatt. Dyreholdet må ikke være til sjenanse for de øvrige brukerne av eiendommen.
Planlagte påkostninger:
Det er planlagt rehabilitering av gavlvegger samt oppgradering uteområder. Kostnadsoverslag inntil ca. kr 1,5 millioner. I følge styreleder dekkes dette av sameiets økonomi og vil ikke føre til økte fellesutgifter eller fellesgjeld.
Sameiet planlegger i tillegg å oppgradere uteområdene over de neste par årene. Dette vil i følge styreleder også dekkes av sameiets økonomi.
Foretatt påkostninger de senere år:
2024 – 2024 Montert rottestoppere i bunnledninger i alle blokkene. Montert varmekabler ved kjellerdører. Ferdigstilt infrastruktur ladeanlegg. Rep. av feieluker.
2023 – 2023 Etablering infrastruktur for lading av bil, 44 plasser forberedt. Oppgradert el-anlegg nedre garasjer ved 26.
2022 – 2022 Rehabilitering enkeltgarasjer, panel, takpapp, takrenner, belysning samt vanlig el-anlegg. Bytte av skumslokkere i seksjoner.
2021 – 2021 Rehabilitering av utvendige gang- og kjørearealer, utskifting av underlag og kumlokk, etablert trekkerør for el-tilkobling mellom garasjer.
2020 – 2020 Etablering utvendig belysning nordre gavlvegger blokker. Forsterket infrastruktur for el-anlegg garasje ved nr. 26. Flislegging inngangsparti nr. 26.
2019 – 2019 Reparasjon av verandafronter og tilliggende betongskader, vask, rep. og maling av overflateskader gavlvegger, maling av fronter og montering av beslag. Montering av utebelysning for gangveier mellom blokkene.
2018 – 2018 Montering brannvarslingssystem i vaskerom, kjellerrom og oppganger.
Maling/ny skilting av postkasser.
Etablering av mulige ladeplasser for bil, grunnleggende infrastruktur er ferdig.
2017 – 2017 Maling av gangarealet i kjellere. Montert dørpumper på inngangsdører i kjellere. Montert skumslukkere i vaskerom samt delt ut skumslukkere til samtlige boenheter.
2016 – 2016 Montering frostfrie utekraner, montert LED-belysning utvendig på enkeltgarasjer.
2015 – 2015 Opparbeidet ny lekeplass med nye apparater og fallmatter. Nytt elektrisk opplegg til takvifter.
2014 – 2014 Ny belysning (LED-lamper) med automatikk montert innvendig i fellesareal og utvendig på blokkene.
Rehabilitert kjøkkenavløp (strømpetrekking) i 4-roms leiligheter.
2013 – 2013 Bytte av panel, takpapp, beslag, takrenner, sikringsskap og belysning (LED) på dobbeltgarasjene.
Bygget nye ekstra boder i kjellere for utleie.
Ny belysning med automatikk i vaskerom.
2012 – 2012 Oppgradering av utearealer; utvidelse av antall p-plasser, nytt låssystem for fellesarealer.
Byttet varmtvannsberedere i vaskerom.
2011 – 2011 Takpapp, beslag og takrenner byttet på alle blokkene.
Samtlige gavlvegger vasket, reparert og malt, gavlvinduer gitt et oppfriskningsstrøk.
Inngangsdører til alle boenheter er byttet.
2009 – 2009 Oppgradering av hovedtavlene i alle blokkene
Byttet hovedkraner og etablert forgreningskraner i alle blokkene.
2008 - 2008 Drenering av 2 sider rundt nr 26 mot kum bak blokken, samt fundamentering av 2 stk pipeløp samme side
Iht. sameiets vedtekter må kjøper godkjennes av styret som ny sameier. Det er kjøpers ansvar at styregodkjenning blir gitt, men styret kan ikke nekte godkjenning uten saklig grunn.
Vi gjør videre oppmerksom på at det iht. eierseksjonsloven ikke er anledning å erverve mer enn 2 seksjoner i sameiet, her teller også eierskap via. firma, nærstående og familie. Kjøper har risikoen for at overskjøting på denne bakgrunn kan nektes av Statens Kartverk. I så fall vil kjøper uansett være forpliktet til å gjennomføre handelen, og oppgjør til selger vil finne sted tross manglende overskjøting. Konferer med megler for mer informasjon.
I tillegg følger det av sameiets vedtekter at juridiske personer (selskaper) ikke kan eie seksjoner i sameiet.
Dokumenter for sameiet og kopi av seksjonsbegjæringen kan fås ved henvendelse til megler.
Overtakelse
Etter nærmere avtale.
Boligselgerforsikring
Selger har i forbindelse med salget tegnet boligselgerforsikring levert av Gjensidige.
Boligselgerforsikringen dekker selgers ansvar etter avhendingsloven begrenset oppad til kr 14 millioner. Dersom kjøper oppdager forhold ved eiendommen som hen mener utgjør en mangel ved eiendommen, vil Gjensidige behandle reklamasjonen på vegne av selger. Forsikringsvilkår kan fås ved henvendelse til megler.
Vedlagt salgsoppgaven følger selgers egenerklæringsskjema og tilstandsrapport. Interessenter må sette seg inn i dokumentene før bud inngis.
Boligkjøperforsikring
Innen kontraktsmøtet må kjøper ta stilling til om det ønskes å bestille Boligkjøperpakken gjennom Gjensidige. I denne gunstige pakken er boligen ferdig forsikret og inkluderer rettshjelpsforsikring, også kalt Boligkjøperforsikring. Rettshjelpsforsikring gir trygghet og tilgang på profesjonell juridisk hjelp dersom det oppdages uventede feil eller mangler det første året etter overtagelse. Forsikringsselskapet behandler i så fall ethvert mangelskrav kjøper måtte ha overfor selger.
Boligkjøperpakken inkluderer bygningsforsikring for hus og hytte, innboforsikring, flytteforsikring og dobbel rentedekning - i situasjoner hvor kjøper ikke får solgt nåværende primærbolig.
Kjøper mottar ingen særskilt faktura for Boligkjøperpakken da kostnaden det første året legges til kjøpesummen for boligen. Det gjøres oppmerksom på Krogsveen mottar et honorar for denne formidlingen.
Produktark for Boligkjøperpakken ligger vedlagt i salgsoppgaven.
Dersom ikke boligkjøperpakke ønskes kan kun rettshjelpsforsikring, også kalt boligkjøperforsikring, tegnes særskilt via megler. Rettshjelpsforsikringen varer i 5 år fra overtagelse og leveres gjennom Gjensidige. Ta kontakt med megler for ytterligere informasjon.
Selskap og privatpersoner som driver med kjøp/salg/utvikling som ledd i egen næringsvirksomhet kan ikke tegne boligkjøperpakke eller rettshjelpsforsikring.
Budgivning
Forbrukerinformasjon om budgivning er vedlagt denne salgsoppgaven og er også på vår hjemmeside Krogsveen.no. Alle bud og budforhøyelser må inngis skriftlig. I tillegg må legitimasjon være fremlagt sammen med signatur fra budgiver.
Vi oppfordrer til å gi bud elektronisk via GI BUD-knappen på eiendommens hjemmeside på Krogsveen.no. Da vil samtlige vilkår bli oppfylt.
Eventuelle forhøyelser eller endringer av budet kan bekreftes pr SMS eller på e-post. Vi oppfordrer alltid til å kontakte megler pr. telefon i tillegg da forsinkelser i SMS og e-post kan forekomme.
For at budene skal kunne bli behandlet og videreformidlet skriftlig til alle involverte parter, må alle bud ha en tilstrekkelig lang akseptfrist, jf. eiendomsmeglingsforskriften § 6-3.
Selger må også skriftlig akseptere budet før aksept kan formidles til budgiver. Akseptfrist bør derfor være på minimum 30 minutter, og budforhøyelser må derfor skje i god tid før fristens utløp.
Bud i forbrukerforhold kan uansett ikke settes med kortere frist enn kl. 12.00 første virkedag etter siste annonserte visning. I tillegg kan ikke budet ha forbehold om at det skal holdes hemmelig ovenfor øvrige interessenter. Megler har iht lov om eiendomsmegling ikke anledning til å videreformidle disse budene, og de vil dermed heller ikke bli journalført.
Etter at eiendommen er solgt vil kjøper og selger få tilsendt budjournal. Øvrige budgivere kan få utlevert kopi av budjournalen i anonymisert form.
Hvitvaskingsreglene
I henhold til lov om hvitvasking og terrorfinansiering har megler plikt til å gjennomføre kontrolltiltak overfor kunder, herunder fullmektiger. Dette innebærer bl.a. å bekrefte kunders og reelle rettighetshaveres identitet på bakgrunn av fremvist gyldig legitimasjon eller på annen godkjent måte, samt å innhente opplysninger om kundeforholdets formål og tilsiktede art.
Dersom slike kundetiltak ikke kan gjennomføres, kan megler ikke etablere kundeforholdet eller utføre transaksjonen.
Hvis kjøper ikke bidrar til gjennomføring av kundekontrollen og dette fører til at transaksjonen blir forsinket eller ikke kan gjennomføres, vil dette ansees som mislighold av avtalen og gi selger rettigheter etter avhendingslova kapittel 5. I tilfeller der selger ikke bidrar til gjennomføring av løpende kundekontroll underveis i oppdraget, er det selger som misligholder sine forpliktelser etter avtalen og gi kjøper rettigheter etter avhendingslovens kapittel 4. Partene er selv ansvarlige for eventuelle kostnader og ansvar dette kan medføre. Eiendomsmegleren eller eiendomsmeglingsforetaket kan ikke holdes ansvarlig for de konsekvenser dette vil kunne få for partene eller andre som har interesser i eiendomshandelen.
Kjøper oppfordres til å innbetale kjøpesummen som ikke kommer fra låneinstitusjon i én samlet innbetaling fra egen konto i norsk bank. Megler har plikt til å melde fra til Økokrim om eiendomshandler som fremstår som mistenkelige. Melding sendes Økokrim uten at partene varsles.
Personopplysningsloven
I henhold til personopplysningsloven gjør vi oppmerksom på at interessenter kan bli registrert for videre oppfølging.
Lovanvendelse
Generelle bestemmelser
Salgsoppgaven er basert på de opplysningene selger har gitt til megler, den bygningssakyndiges tilstandsrapport, samt opplysninger innhentet fra kommunen, Kartverket og andre tilgjengelige kilder. Det er viktig at kjøper setter seg grundig inn i alle salgsdokumentene, herunder salgsoppgave, tilstandsrapport og selgers egenerklæring. Kjøper anses kjent med forhold som er tydelig beskrevet i salgsdokumentene, og slike forhold kan ikke påberopes som mangler. Dette gjelder uavhengig av om kjøper har lest dokumentene. Alle interessenter oppfordres til å undersøke eiendommen nøye, gjerne sammen med fagkyndig før bud inngis. Kjøper som velger å kjøpe usett kan ikke gjøre gjeldende som mangel noe han burde blitt kjent med ved undersøkelsen.
Dersom det er behov for avklaringer, anbefaler vi at interessenter rådfører seg med eiendomsmegler eller egne rådgivere før det legges inn bud.
En bolig som har blitt brukt i en viss tid, har vanligvis blitt utsatt for slitasje og skader kan ha oppstått. Slik bruksslitasje må kjøper regne med, og det kan avdekkes enkelte forhold etter overtakelse som nødvendiggjør utbedringer. Normal slitasje og skader som nødvendiggjør utbedring, er innenfor hva kjøper må forvente og vil ikke utgjøre en mangel.
Kjøper og selgers rettigheter og plikter reguleres av avtalen mellom partene, samt informasjonen som har vært tilgjengelig for kjøperen i forbindelse med handelen. Avtalen utfylles av avhendingsloven, og det gjelder ulike avtalevilkår avhengig av om kjøper er forbrukerkjøper eller ikke. Dette er nærmere beskrevet nedenfor.
På grunn av ulike avtalevilkår kan selger vurdere bud fra en som ikke er forbruker, ulikt fra en forbrukers bud. Dersom kjøper ikke er forbruker, er selger sitt mulige mangelsansvar begrenset fordi eiendommen selges "som den er". Selger kan ikke ta «som den er»- forbehold overfor en forbrukerkjøper. Selv et lavere bud fra en som ikke er forbruker kan foretrekkes fordi begrensningen i mulig mangelsansvar kan ha egenverdi for selger. Selger står fritt til å forkaste eller akseptere ethvert bud, og er for eksempel ikke forpliktet til å akseptere høyeste bud.
Budgiver skal i budskjema avgi egenerklæring om budgiver er forbruker eller næringsdrivende/ person som hovedsakelig handler som ledd i næringsvirksomhet. Budgivere får informasjon dersom andre bud er inngitt av en som ikke er forbruker.
Forbrukerkjøp - definisjon
Med forbrukerkjøp menes kjøp av eiendom når kjøperen er en fysisk person som ikke hovedsakelig handler som ledd i næringsvirksomhet.
Forbruker – avtalevilkår
Eiendommen har en mangel dersom den ikke er i samsvar med kravene som følger av avtalen, eller det foreligger brudd på bestemmelsene i avhendingsloven §§ 3-2 til 3-8. Hvis eiendommen ikke er i samsvar med det kjøperen må kunne forvente ut ifra alder, type og synlig tilstand, kan det være grunnlag for mangelskrav. Det samme gjelder hvis det er holdt tilbake eller gitt uriktige opplysninger om eiendommen. Dette gjelder likevel bare dersom man kan gå ut ifra at det virket inn på avtalen at opplysningen ikke ble gitt eller at mangelskravet ikke blir rettet i tide på en tydelig måte.
Boligen kan ha en mangel etter avhendingsloven § 3-3 andre ledd, dersom det er avvik mellom opplyst og faktisk innvendig areal, forutsatt at avviket er på 2% eller mer og minimum 1 kvm.
Ved beregning av et eventuelt prisavslag eller erstatning må kjøper selv dekke tap/kostnader opptil et beløp på kr 10 000 (egenandel).
Ikke-forbruker (næringsdrivende) – definisjon
Hvis kjøper er en juridisk person, eller en fysisk person som hovedsakelig handler som ledd i næringsvirksomhet, vil kjøpet ikke anses som et forbrukerkjøp.
Ikke-forbruker – avtalevilkår
Eiendommen har en mangel dersom den ikke er i samsvar med kravene som følger av avtalen.
Eiendommen selges «som den er», og selgers ansvar utover det konkret avtalte er da begrenset etter avhendingsloven § 3-9, første ledd andre setning.
Avhendingsloven § 3-3 andre ledd fravikes, og hvorvidt boligens arealsvikt utgjør en mangel vurderes etter avhendingsloven § 3-8.
Informasjon om kjøpers undersøkelsesplikt, herunder oppfordringen om å undersøke eiendommen nøye, gjelder også for kjøpere som ikke anses som forbrukere.
Det forutsettes at hjemmel overføres til kjøper. Hvis kjøper ikke ønsker hjemmelsoverføring av eiendommen, må det tas forbehold om dette i budet.
Meglers vederlag
Meglers vederlag betales av selger og er avtalt til:
Vederlag: 0,75 % av salgssummen inkl. eventuell fellesgjeld.
Vederlag:
Kontroll av hjemmel og heftelser kr 2 900
Markedsføringspakke kr 28 250
Oppgjør kr 7 500
Tilrettelegging kr 15 000
Visninger pr stk / Overtagelse kr 2 900
Utlegg:
Eierskiftegebyr forretningsfører (selger) kr 6 570
Innhenting av informasjon forretningsfører kr 4 000
Tinglysing sikring kr 545
Andre utgifter:
Foto - leilighet med collage Lasse Lerdahl kr 5 550
Tilstandsrapport Anticimex kr 9 950
Opplysninger om oppdraget
Oppdragsnummer 39-0195/25
Eiendomsmegler Krogsveen AS, avd. Årvoll
Lofthusveien 66, 0588, OSLO
950 007 613
Oppdragets KR-kode KR39.25195
Dato
Sist oppdatert: 01. mars 2026 kl. 14:33
Dokumenter
Dokumenter
PDF – 1016 KB
PDF – 343 KB
PDF – 164 KB
PDF – 312 KB
PDF – 29 KB
PDF – 127 KB
PDF – 392 KB
Område
Legg til steder som er viktige for deg
Visning
Unngå doble boligrenter
Vi tilbyr gunstig forsikring.
Vurderer du utleie?
Få et tilbud fra Utleie KrogsveenHva koster lånet?
Sjekk estimert lånekostnadVil du varsles om lignende boliger?
Ved å lagre ditt boligsøk hos oss får du beskjed når vi har en bolig som ligner denne, før den legges ut på markedet!

