Traverveien 27
5 480 000 kr
66 m²
2 soverom
Solgt

Presenteres av
Hanne PettersenDISEN/ÅRVOLL
RÅLEKKER TOPPLEILIGHET! 3-roms med meget god beliggenhet - Vestvendt, solrik balkong med flott utsikt - Modernisert 2021
Prisantydning
5 480 000 krAndel fellesgjeld
271 525 krOmkostninger
18 978 krTotalpris
5 770 503 kr
Pris
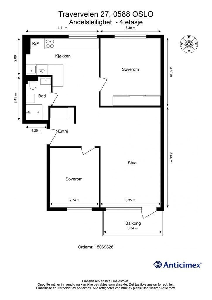
Bruksareal
73 m²BRA-I (internt bruksareal)
66 m²BRA-E (eksternt bruksareal)
7 m²TBA (terrasse-balkongareal)
5 m²
Areal
Etasje
4Byggeår
1955Soverom
2 soveromBad
1 badType
AndelsleilighetEierform
AndelFasiliteter
Balkong/TerrasseFellesutgifter
5 562 krEnergimerke
Grønn F
Nøkkelinfo
Unngå doble boligrenter
Vi tilbyr gunstig forsikring.
Vurderer du utleie?
Få et tilbud fra Utleie KrogsveenHva koster lånet?
Sjekk estimert lånekostnadBeskrivelse
Kort om eiendommen
Traverveien 27 har en fin beliggenhet innerst i blindvei og er omkranset av store grøntarealer.
Blokken ligger ved et lite, bilfritt tun med lekestativ og huske.
Her møtes store og små til lek og en kaffekopp.
På forsiden av blokken er det satt ut sittegrupper som innbyr til grilling, mens barna sparkesykler eller hopper paradis.
Skiløypene/turstiene starter rett utenfor blokken og fører opp i Lillomarka.
Lekkert kjøkken fra 2021 med integrerte hvitevarer
Gjennomgående enstavs eikeparkett
Helsparklede vegger malt i en lun fargepalett
Vestvendt balkong med sol fra kl.13-solnedgang og fantastisk utsikt
Nye vinduer- og balkongdør fra 2025
Kjellerbod- og loftsbod m/gulvareal på 3 og 13 kvm
Varmtvann og fyring inkl. i felleskostn.
Forhåndsutlyst forkjøpsrett
Område
Legg til steder som er viktige for deg
På flyttefot? Tenk kjøp og salg samtidig.
Få din egen rådgiver gjennom hele kjøps- og salgsprosessen. Det starter med en verdivurdering.
Unngå doble boligrenter
Vi tilbyr gunstig forsikring.
Vurderer du utleie?
Få et tilbud fra Utleie KrogsveenHva koster lånet?
Sjekk estimert lånekostnadVil du varsles om lignende boliger?
Ved å lagre ditt boligsøk hos oss får du beskjed når vi har en bolig som ligner denne, før den legges ut på markedet!
På flyttefot? Slik gjør vi det enklere for deg
Skreddersydd flyttepakke
Vi fikser håndverkere, vask, pakking, lagring og transport, og legger ut for utgiftene underveis.
Hjelp med både kjøp og salg
Hos oss har du din egen rådgiver gjennom hele kjøps- og salgsprosessen.
Hjelp til finansiering
Vårt samarbeid med BN Bank sikrer deg rask og løsningsorientert hjelp, til konkurransedyktige betingelser.

