Harstadrøet 105D
3 250 000 kr
66 m²
2 soverom
Solgt

Moderne og tiltalende 3-R eierleilighet på enden 1. et. | Populært, barnevennlig og rolig område | Carport og terrasse
Prisantydning
3 250 000 krOmkostninger
92 290 krTotalpris
3 342 290 kr
Pris
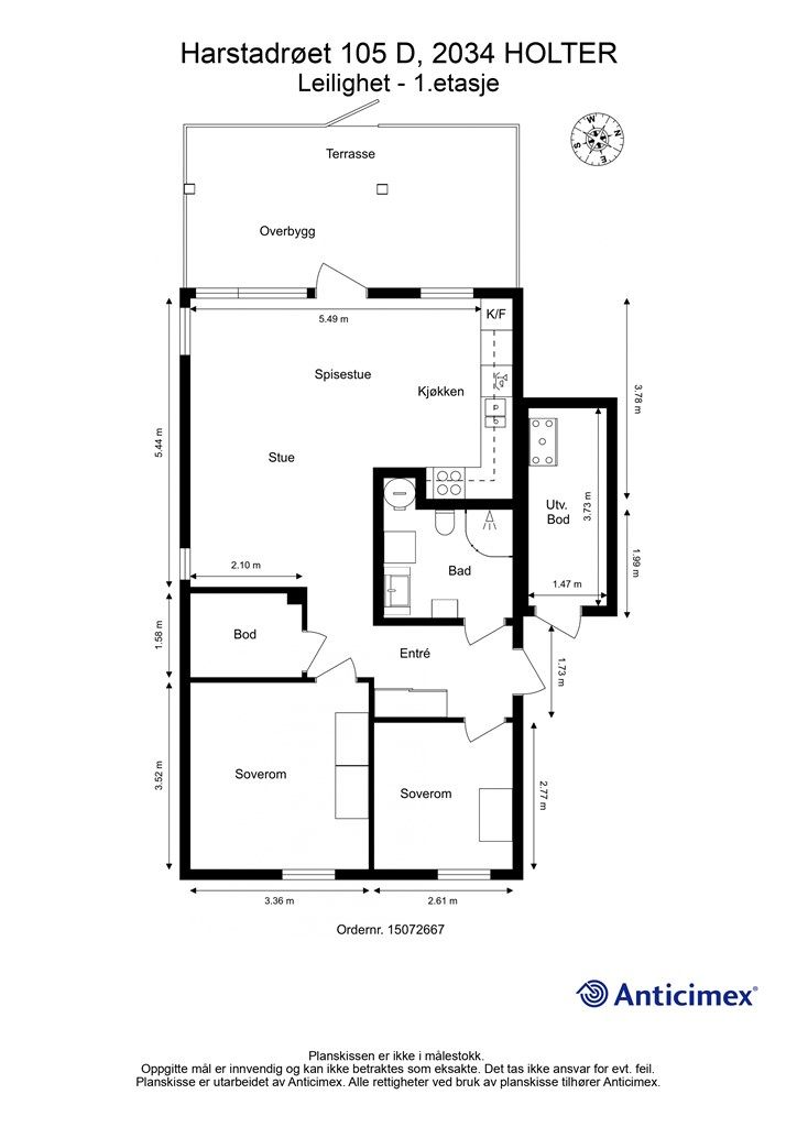
Bruksareal
73 m²BRA-I (internt bruksareal)
66 m²BRA-E (eksternt bruksareal)
7 m²TBA (terrasse-balkongareal)
19 m²
Areal
Etasje
1Byggeår
2018Soverom
2 soveromBad
1 badType
EierleilighetEierform
EierseksjonFasiliteter
Balkong/TerrasseFellesutgifter
2 500 krEnergimerke
Rød C
Nøkkelinfo
Unngå doble boligrenter
Vi tilbyr gunstig forsikring.
Vurderer du utleie?
Få et tilbud fra Utleie KrogsveenHva koster lånet?
Sjekk estimert lånekostnadBeskrivelse
Kort om eiendommen
Eiendommen ligger rolig og barnevennlig til på Lyngåsen i Holter - her bor du stille og rolig med kort vei til mye
Moderne, tiltalende og gjennomgående 3-roms eierleilighet i 1. etasje med god standard og som er godt ivaretatt. Boligen er en del av åttemannsbolig som ble ferdigstilt i 2018, her kan du flytte rett inn!
Fornuftig og arealeffektiv planløsning med god utnyttelse av bruksarealet, kjøkken i åpen løsning mot stuen med plass til spisebord mellom kjøkken- og stuedelen. Leiligheten ligger på enden og har fordelen med ekstra vindusflater på kortveggen, godt med naturlig lys og god romfølelse. Fra stuen er det direkte utgang til stor og vestvendt terrasse på 19 kvm. som er delvis overbygd og med terrasseport ut til fellesområdet.
Utebod (ca. 5 kvm.) og parkering i carport.
Område
Legg til steder som er viktige for deg
På flyttefot? Tenk kjøp og salg samtidig.
Få din egen rådgiver gjennom hele kjøps- og salgsprosessen. Det starter med en verdivurdering.
Unngå doble boligrenter
Vi tilbyr gunstig forsikring.
Vurderer du utleie?
Få et tilbud fra Utleie KrogsveenHva koster lånet?
Sjekk estimert lånekostnadVil du varsles om lignende boliger?
Ved å lagre ditt boligsøk hos oss får du beskjed når vi har en bolig som ligner denne, før den legges ut på markedet!

