Islands gate 14B
6 750 000 kr
60 m²
2 soverom
Solgt
Rolig på Vålerenga
Rålekker & påkostet 3R toppleilighet m/ 2 balkonger - Totaloppusset 2022 - Attraktivt bomiljø - Idyllisk beliggenhet
Prisantydning
6 750 000 krAndel fellesgjeld
63 153 krOmkostninger
20 520 krTotalpris
6 833 673 kr
Pris
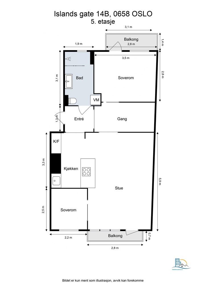
Bruksareal
69 m²BRA-I (internt bruksareal)
60 m²BRA-E (eksternt bruksareal)
9 m²TBA (terrasse-balkongareal)
6 m²
Areal
Etasje
5Byggeår
1936Soverom
2 soveromBad
1 badType
AksjeleilighetEierform
AksjeFasiliteter
Balkong/TerrasseFellesutgifter
5 791 krEnergimerke
Rød G
Nøkkelinfo
Unngå doble boligrenter
Vi tilbyr gunstig forsikring.
Vurderer du utleie?
Få et tilbud fra Utleie KrogsveenHva koster lånet?
Sjekk estimert lånekostnadBeskrivelse
Kort om eiendommen
Tom Martinsen v/ Krogsveen har gleden av å presentere Islands gate 14B!
En meget lekker 3-roms aksjeleilighet beliggende på idylliske Vålerenga. Her bor man i harmoniske og rolige omgivelser med parker rett rundt hjørnet, samtidig er det er lett å komme seg rundt i byen med et godt kollektivtilbud. Boligen har to flotte balkonger, samt en god og gjennomgående planløsning med masse naturlig lys og gode oppbevaringsløsninger. God intern beliggenhet i byggets 5. etasje med flott utsikt!
Høydepunkter:
- Delikat bad og moderne kjøkken med eksklusive hvitevarer
- Nærhet til flere parker og turområder
- Gode kollektivtilbud like i nærheten
- Smartstyring av lys og varme
- Varmekabler/folie i alle gulv
- Lave omk. og ingen forkjøp
- Totaloppusset i 2022
- 9 kvm bodplass
- Internett inkl.
Område
Legg til steder som er viktige for deg
På flyttefot? Tenk kjøp og salg samtidig.
Få din egen rådgiver gjennom hele kjøps- og salgsprosessen. Det starter med en verdivurdering.
Unngå doble boligrenter
Vi tilbyr gunstig forsikring.
Vurderer du utleie?
Få et tilbud fra Utleie KrogsveenHva koster lånet?
Sjekk estimert lånekostnadVil du varsles om lignende boliger?
Ved å lagre ditt boligsøk hos oss får du beskjed når vi har en bolig som ligner denne, før den legges ut på markedet!




