Christian Michelsens gate 32
5 790 000 kr
63 m²
2 soverom
Komplett salgsoppgave
Rodeløkka kolonihager
Luftig og romslig leilighet med gjennomgående planløsning | Generøs takhøyde og gode lysforhold | Sentral beliggenhet
Prisantydning
5 790 000 krAndel fellesgjeld
82 594,19 krOmkostninger
25 145 krTotalpris
5 897 739,19 kr
Pris
Bruksareal
69 m²BRA-I (internt bruksareal)
63 m²BRA-E (eksternt bruksareal)
6 m²
Areal
Etasje
2Byggeår
1933Soverom
2 soveromBad
1 badType
AksjeleilighetEierform
AksjeFellesutgifter
3 827,58 krEnergimerke
Rød F
Nøkkelinfo
Unngå doble boligrenter
Vi tilbyr gunstig forsikring.
Vurderer du utleie?
Få et tilbud fra Utleie KrogsveenHva koster lånet?
Sjekk estimert lånekostnadBeskrivelse
Kort om eiendommen
Innhold og byggemåte
Innhold og byggemåte
Eiendommen
Christian Michelsens gate 32, 0568 OSLO
Kommunenummer 301, gårdsnummer 227, bruksnummer 43, ideell andel 1/1
Aksjenummer 1502-1520, Dæhlenengen Byggeselskap AS, organisasjonsnummer 933893863
Innhold
Totalt bruksareal BRA: 69 kvm
BRA-i:
Aksjeleilighet:
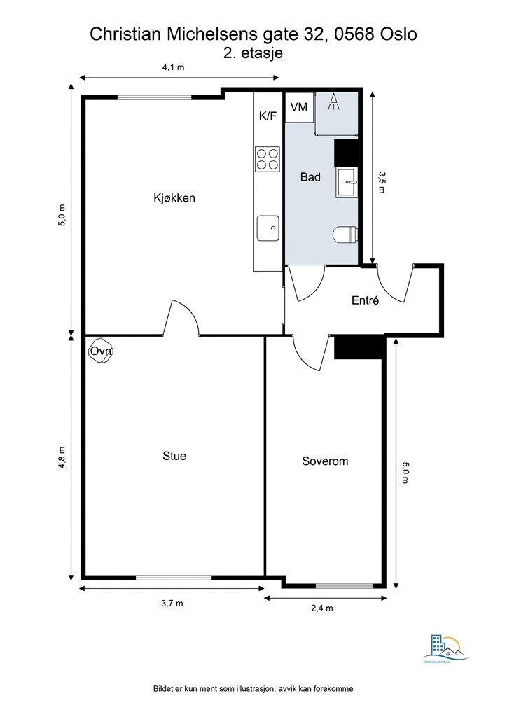
2. etasje 63 kvm: Entré, bad, soverom, kjøkken og stue.
BRA-e:
Kjeller 6 kvm: Bod.
De byggemeldte tegningene stemmer ikke med dagens bruk. Tidligere kjøkken er i dag innredet og benyttet som soverom. Dagens bad er utvidet utover en bod. Se pkt. ferdigattest for nærmere informasjon.
Vedlagte plantegninger er ikke målbare. De oppgitte arealer er hentet fra rapport med befaringsdato 16.04.2026 utført av Takstkonsulent1 AS v/Ole-Christian Eng. Arealene er beregnet og rom er definert etter dagens faktiske bruk, uavhengig av hva som er godkjent av bygningsmyndighetene.
Byggemåte
Selger har innhentet en tilstandsrapport av boligen/eiendommen. Dersom det er registrert avvik, er disse klassifisert med tilstandsgrader (TGIU, TG2 og/eller TG3). Kjøper overtar ansvaret for de opplysninger som fremkommer av salgsdokumentasjonen, og kan ikke gjøre gjeldende som mangel noe som burde vært kjent eller som ikke kan anses å ha betydning for avtalen.
Bygningen er iht. tilstandsrapport en boligblokk oppført i 1933. Bygningen antas fundamentert med betong til stedlige masser og har grunnmur av betong. Yttervegger antas oppført i murverk, utvendig forblendet med teglstein, og etasjeskillere er av betong. Takkonstruksjonen er en flat konstruksjon, antatt tekket med asfalttakbelegg/takfolie e.l. (ikke besiktiget). Leiligheten har vinduer med 3-lags glass fra 1983, en brann- og lydklassifisert entrédør og innerdører med 4-speil. Det er mursteinpipe med vedovn i stuen.
Det elektriske anlegget har automatsikringer, og sikringsskapet er plassert i entréen. Det ble utført tilsyn av anlegget 09.04.2026, og saken er avsluttet.
Det er montert komfyrvakt på kjøkkenet.
Følgende bygningsdeler er gitt Tilstandsgrad 2 (TG2) — Avvik som kan kreve tiltak:
Bad
- Overflater vegger og himling: Det registreres krakelering/riss i overflaten på flis i dusjsone.
- Overflater Gulv: Det er påvist sprekker i fliser. Ufagmessig utførelse på silikonfuger i dusjsone.
- Sluk, membran og tettesjikt: Membran kan ikke konstateres (ikke synlig og det foreligger heller ikke dokumentasjon).
- Ventilasjon: Rommet har kun naturlig ventilasjon. Våtrommet mangler tilluftsventilering, f.eks. spalte/ventil ved dør.
Kjøkken
- Avtrekk: Det er kun kullfilterventilator på kjøkkenet.
Tekniske installasjoner
- Vannledninger: Det er påvist at eventuelt lekkasjevann fra rør i rør system ikke ledes til sluk eller annen kompenserende løsning. Fordelerskap/fordelerstokker er plassert i himling på bad. Plasseringen innebærer at eventuelle lekkasjer ikke nødvendigvis blir synlige umiddelbart, og vann kan spre seg til tilstøtende konstruksjoner før det oppdages.
- Ventilasjon: Det er påvist mangelfull ventilasjon på ett eller flere rom i boligen. Det registreres kun ventil i vindu på soverom, dette anses å være for lite.
Det gis TG 2 grunne alder og/eller slitasje på vinduer og badets overflater.
Følgende bygningsdeler er ikke undersøkt (TGIU):
Innvendig
- Pipe og ildsted: Vedovn i stuen. Mursteinpipe. Pipe og ildsted er begrenset, visuelt kontrollert av takstmannen. Dette anbefales gjort av brann- og feiervesen før bruk.
Bad
- Tilliggende konstruksjoner våtrom: Hulltaking er ikke foretatt da det ikke er fysisk mulig pga tilliggende konstruksjoner.
Tekniske installasjoner
- Varmtvannstank: Sentralt varmtvannsberedning.
Selger beskriver også i egenerklæringsskjema:
Jording på stikkontakter på kjøkken er utbedret i 2026 og tilsynssak er avsluttet fra Elvia. Det informeres også om at det har vært svertesopp på silikonfugene i dusjen, hvor de berørte fugene er blitt kuttet bort og erstattet med nye. Videre er det observert enkelte sølvkre med flere måneders mellomrom.
Moderniseringer og påkostninger
Følgende moderniseringer er foretatt de senere år:
2026:
- Arbeider på det elektriske anlegget utført. Samsvarserklæring foreligger.
2016:
- Nytt kjøkken med ny innredning, benkeplate og integrerte hvitevarer. Komfyrvakt og vannstoppsystem montert.
Vedlikeholdshistorikk borettslaget:
2018:
- Oppussing av trappeoppganger, finansiert via lån på kr 8.000.000.
2005:
- Våtromsrenovering i regi av boligselskapet.
Standard
Dette er en leilighet i en klassisk bygård fra 1933, sentralt plassert mellom Carl Berners plass og Grünerløkka. Boligen har en god takhøyde, som i stuen måler opptil 2,68 meter, og 1-stavs parkett på gulvet i flere rom. Boligen byr på et romslig soverom, stue, separat kjøkken, pent flislagt bad og en innbydende entré.
Nærmere innhold:
Entré:
Den brann- og lydklassifiserte entrédøren åpner inn til en gang med innfelte downlights i himlingen. Herfra er det tilgang til leilighetens øvrige rom. Sikringsskapet med automatsikringer er plassert her.
Stue:
Stuen har en takhøyde på opptil 2,68 meter, som sammen med 1-stavs parkett på gulvet skaper en god base for rommet. Det er god plass til sofagruppe med tilhørende salongbord og annet ønskelig stuemøblement. Peisovnen sørger for varme og god atmosfære på kalde vinterkvelder.
Kjøkken:
Kjøkkenet fra 2016 har en innredning med glatte fronter og laminatbenkeplate med nedfelt vaskekum. Av utstyr finnes integrert kjøl/fryseskap, oppvaskmaskin, induksjonstopp og stekeovn. En kullfilterventilator er plassert over kokesonen. For ekstra sikkerhet er det montert komfyrvakt og vannstoppsystem. Kjøkkenets gode størrelse gjør det enkelt å innrede med et romslig spisebord der venner og familie kan inviteres på besøk.
Soverom:
Leilighetens soverom er romslig og kan enkelt innredes med dobbeltseng og tilhørende nattbord. Det er også god plass til ønsket oppbevaringsmøblement.
Bad:
Badet har flislagte overflater med elektrisk gulvvarme og innfelte downlights i taket. Rommet er innredet med toalett, servant nedfelt i en baderomsinnredning og et dusjhjørne med skyvedører i glass. Det er opplegg for vaskemaskin.
Overflater:
Gulv: 1-stavs parkett og fliser.
Vegger: Malte plater, panel og malt mur/betong, samt fliser.
Himling: Malte plater og malt betong.
Lagring:
Leiligheten disponerer en kjellerbod på ca. 6 m² og en loftsbod med skråtak og et gulvareal på ca. 12 m².
For fullstendig teknisk informasjon om boligen, se punktet Byggemåte i salgsoppgaven.
Løsøre og tilbehør
Vi viser til liste fra Norges Eiendomsmeglerforbund som gjelder fra 01.01.2020 angående løsøre og tilbehør.
- Vegghengt hyller på kjøkken medfølger ikke.
- Alle hvitevarer kan medfølge.
Oppvarming
Boligen varmes opp med vedfyring og elektrisk oppvarming. Det er elektrisk gulvvarme på kjøkken, bad og gang, samt vedovn i stuen.
Dersom beboelsesrom ikke har vegg- eller fastmonterte varmekilder ved visning, følger dette heller ikke med.
Ferdigattest/brukstillatelse
Det foreligger et Expeditions-Dokument (Ferdig attestert) datert 07.11.1932 som gjelder oppføring av våningshus. Dette er den originale attesten for bygget. Dokumentet kan fås ved henvendelse til megler. Et ekspedisjonsdokument er en forløper til ferdigattest.
Det foreligger i tillegg følgende dokumentasjon:
- Ferdigattest datert 25.04.2007 som gjelder 'Endring av bygningstekniske installasjoner (rehabilitering av bad og sanitæranlegg)'.
- Ferdigattest datert 08.05.2024 som gjelder 'Oppføring av balkonger'.
Tidligere kjøkken er i dag innredet og benyttet som soverom. Dagens bad er utvidet utover en bod.
Deler av dagens bad er opprinnelig byggemeldt som boder jf. byggetegninger og er ikke godkjent til varig opphold. Innredning av rommet til bruk for varig opphold er ikke bruksendret/omsøkt og er heller ikke godkjent av kommunen. Konsekvensen ved søknad kan være at rommet ikke godkjennes som varig opphold og at rommet da må brukes som bod/midlertidig oppbevaring.
Kjøper overtar alt ansvar, kostnad og risiko for dette videre.
Tinglyste heftelser og rettigheter
Utover andel fellesgjeld overdras leiligheten fri for pengeheftelser.
Borettslaget har legalpant for forfalte felleskostnader og andre krav som følger av borettslagsforholdet iht. burettslagsloven § 5-20. Pantet er begrenset oppad til 2G (G = folketrygdens grunnbeløp).
Det er tinglyst følgende servitutter på borettslagets eiendom:
1932/901298-2/105 25.10.1932 ERKLÆRING/AVTALE
Begrensning i råderett
Forbud mot salg på bestemte vilkår
Bestemmelse om vann- og kloakkledning for Oslo kommune
Med flere bestemmelser
GJELDER DENNE REGISTERENHETEN MED FLERE
Servituttene vil følge eiendommen. Kjøpers bank vil få prioritet etter ovennevnte heftelser og servitutter.
Eventuell adgang til utleie
Utleie reguleres av selskapets vedtekter og borettslagslovens bestemmelser anvendes normalt tilsvarende. Utleie forutsetter at leiligheten har forsvarlige radonverdier. Se vedtektene for eventuelle avvikende bestemmelser og konferer megler ved spørsmål.
Selskapets vedtekter forutsetter at kjøper skal bebo leiligheten selv. Styret har avdekket flere leieforhold som ikke er i tråd med reglene og har startet en kartlegging av disse. Styret vil utrede praktiseringen av langtidsutleie og legge frem resultatet for generalforsamlingen i 2026.
Diverse
Tilbud av produkter og tjenester fra våre samarbeidspartnere
Vi er opptatt av verdiskapning, og har knyttet til oss samarbeidspartnere som skal sikre våre kunder de beste produkter og tjenester;
• Gjensidige leverer boligselgerforsikring og tilbyr bygningsforsikring
• Boligkjøperforsikring leveres av Hiscox og med Sedgwick som skadebehandler, og er formidlet gjennom Gjensidige.
• BN bank tilbyr finansieringsløsninger
• Vår avdeling Krogsveen Pluss tilbyr flyttetjenester som utvask, visningsvask, lager, tømming og transport av flyttelass, i tillegg til å formidle kontakt med Flip for overflateoppussing.
• I forbindelse med overtagelse av eiendommen tilbyr Overo avtale om strøm, alarm og bredbånd.
• Krogsveen er, sammen med øvrige bransjeaktører, medeier i den digitale annonseringsplattformen Hjem.
Beliggenhet og tomteforhold
Beliggenhet og tomteforhold
Beliggenhet
Leiligheten ligger sentralt plassert mellom Carl Berners plass og Grünerløkka, i et område som kombinerer roen fra Rodeløkkas sjarmerende gater med umiddelbar nærhet til byens puls. Her bor du tilbaketrukket fra den travleste trafikken, men har likevel alt du trenger innen få minutters gange.
Kollektivtilbudet er et av områdets store fordeler. Fra busstoppet i Københavngata, kun tre minutter unna, går et titalls busslinjer. Carl Berners plass er et knutepunkt for både T-bane og trikk, og ligger bare en kort spasertur unna. Dette gir en effektiv reisevei til studiestedene på Blindern og BI, samt resten av byen.
De daglige ærendene er enkle. Både Spar og Kiwi ligger i nabolaget for raske innkjøp på vei hjem. På Carl Berner Torg finner du apotek, vinmonopol og andre servicetilbud. For trening er SATS og Fresh Fitness lett tilgjengelig til fots. Når du vil koble av, er veien kort til Grünerløkkas yrende kafé- og restaurantliv, Sofienbergparken og de mange butikkene langs Markveien og Thorvald Meyers gate.
Området har også flere barnehager, som Sophies Hage og Konfektfabrikken, i gangavstand. For rekreasjon og fritid er Dælenenga idrettsplass og de idylliske kolonihagene på Rodeløkka fine turmål.
Adkomst
Det vil bli skiltet med Krogsveen visningsskilt ved fellesvisninger.
Beskrivelse av tomt
Eiertomt som tilhører selskapet. Tomten er opparbeidet med asfalterte gangveier, plenarealer og beplantning. Selskapet har en hagegruppe som jobber med å utvikle hageanleggene, og det er anlagt en ny sti i midtparken.
Parkering
Det er innført beboerparkering i dette området (indre by). Dette betyr at du kan parkere fritt døgnet rundt på parkeringsplassene regulert til beboerparkering i området rundt din bolig for kun kr. 3.850,- pr. år for fossile biler, dieselbil, hybridbil, ladbar hybrid.
Har du el-bil så betaler du kr. 1.300,- pr år, hydrogenbil og el-varebil er gratis.
Motorsykkel og moped kr 1.925,- pr år.
El-motorsykkel og el-moped kr 650,- pr år.
Se Oslo kommune sine nettsider for mer informasjon og priser for ytre by.
Vei, vann og avløp
Eiendommen har adkomst via kommunal vei. Eiendommen er tilknyttet kommunalt ledningsnett via private stikkledninger. Borettslaget er ansvarlig for private stikkledninger til bygningen.
Regulerings-og arealplaner
Eiendommen er regulert til boligformål i henhold til reguleringsplan S-2255 datert 28.07.1977 med tilhørende reguleringsbestemmelser.
Planen er helt eller delvis opphevet som følge av bystyrets vedtak "Kommuneplan 2015 - Oslo mot 2030 - Smart, trygg og grønn." Området blir berørt av endringer i reguleringsplan for Oslo Sentrum og indre sone i Oslo kommune som følge av dette. Denne nye planen får betydning for en rekke vedtatte reguleringsplaner i Oslo. Henviser til kommunens nettsider for ytterligere informasjon.
Utdrag av planer iht. saksinnsyn på Plan- og bygningsetatens hjemmeside:
Saksnummer 201901778 - Reguleringssak - Oppføring av omsorgsboliger i Dælenenggata. Det foreslås å omregulere dagens parkområde ved Dælenenggata og en del av Dælenenggata, for å legge til rette for 12 omsorgsboliger for personer med kognitiv svikt, sikre dagens parkområde med gangvei og å oppgradere deler av Dælenenggata til gatetun. Forslaget åpner for et nytt bygg med 6 etasjer i forlengelse av Fagerheimgata 11. Grøntarealet mellom Ring 2 og Dælenenggata reguleres til park, og mellom Fagerheimgata og Københavngata reguleres Dælenenggata til gatetun. Det forventes at oppdatert planforslag mottas innen 15.03.2025.
Saksnummer: 202205720 - Byggesak - Marstrandgata 9 - 11 - Stockholmgata 18 - 20 - Oppføring av boligbygg på seks etasjer og riving av eksisterende bygninger. Igangsettelsestillatelse gitt 21.01.2025. Nytt saksnummer 2025/14380. Det ble gitt igangsettingstillatelse 190.8.2025. Tiltaket omfatter riving av eksisterende bygninger på eiendommene og oppføring av et kombinert bolig- og næringsbygg på 6 etasjer på hjørnet mot Marstrandgata og Stockholmgata. Det etableres felles utearealer i bakgården og på takterrasser.
Saksnummer 202318725 - Byggesak - Marstrandgata 10 - Oppføring av bolig og næringsbygg. Rammetillatelse gitt 10.01.2025. Tiltaket omfatter oppføring av et nytt bolig- og næringsbygg. Det vil etableres 15 leiligheter, samt næringslokaler i 1. etasje ut mot gate. Bygningen plasserer seg som en infill mellom eksisterende bygningsmasse. Kvartalet har originalt vært en del av Bergene Chokoladefabrikk, men består i dag av både nyere og eldre bebyggelse.
Saksnummer 202458063 - Byggesak - Stockholmgata 25 - Gøteborggata 42 - 44 - Bruksendring av næringsbygg til studentboliger og oppføring av bygg med seks leiligheter - Campus Grünerløkka. Det ble gitt midlertidig brukstillatelse 28.01.2026, noe arbeider kan gjenstå. Nytt saksnummer: 2025/10235.
Saksnummer 2025/07830 - Byggesak. Stockholmgata 23 - bruksendring av lokale i 1. etasje fra næring til bolig. Saken ble satt i bero 02.12.2025.
Saksnummer 202552040 - Byggesak - Gøteborggata 38 - Bruksendring og utvidelse av boliger og fasadeendringer. Det ble søkt om rammetillatelse 05.03.2025.
Saksnummer 2025/11194 - Byggesak. Jørgen Løvlands gate 9 - gjenoppføring og ombygging - Villa Sorgenfri. Det ble gitt igangsettingstillatelse 12.02.2026.
Saksnummer 202551933 og 202551898 vedrørende oppføring av balkonger i Dælenenggata 31 og 33. Det ble gitt tillatelse til tiltak 19.03.2025 vedrørende oppføringen i nr. 33. Nr. 31 fikk avslag 29.08.2025.
Eiendommen er oppført på Byantikvarens Gule liste som bevaringsverdig. Dette kan medføre at større endringer av bygningen må godkjennes av kommunen eller byantikvaren før igangsetting.
Utsnitt av plan med tilhørende bestemmelser kan fås ved henvendelse til megler.
Økonomi
Økonomi
Boligens kostnader
Husleien er kr 3 827,58 pr. mnd. og inkluderer: Varmtvann, grunnpakke internett, vaktmestertjenester, kommunale avgifter, gartnertjenester, vedlikehold av fellesvaskeri, smørebod og snekkerbod for beboerne.
Husleien er fordelt slik:
Lån nr: 9820744910; IN lån 1 - Akonto renter: kr 154,08
Lån nr: 9820744910; IN lån 1 - Akonto avdrag: kr 667,50
Felleskostnader: kr 3 006,-
Det er vedtatt IN-ordning for aksjelagets lån. Innbetaling av lån vil redusere felleskostnader med kr 821,58,-. Innbetaling kan foretas to ganger pr. år ved terminforfall 30.04 og 30.10. Beløpet må væ re innbetalt senest 10 dager før terminforfall, og forretningsfører må derfor informeres ca. 30 dager før ved ønske om innbetaling.
Husleien justeres normalt en til to ganger årlig i forhold til aksjelagets faktiske utgifter.
Selger informerer om et årlig strømforbruk på ca. 7 000 kr / 5 925 kWh årlig.
Utgiftene er basert på nåværende eiers forbruk. Kjøper må selv tegne innboforsikring.
Selger har avtalt Norgespris på strøm på eiendommen for perioden frem til 31.12.2026, og denne er pt på 50 øre inkl mva. Nettleie, avgifter og påslag fra kraftleverandøren kommer i tillegg. Er det fjernvarme vil det også komme kostnader i tillegg.
Denne avtalen vil følge eiendommen i den avtalte perioden.
Les mer om Norgespris her: https://www.regjeringen.no/no/aktuelt/legg-fram-lov-om-norgespris-pa-straum-og-fjernvarme/id3102642/
Formuesverdi
Ved hjelp av skatteetatens boligkalkulator er boligens formuesverdi beregnet til kr 1 567 877,- for fjoråret når boligen benyttes som primærbolig.
Formuesverdien er en gitt prosent av den beregnede markedsverdien. Beregnet markedsverdi er basert på Statistisk sentralbyrå (SSB) sine opplysninger om omsatte boliger. I beregningen tas det hensyn til boligens beliggenhet, areal, byggeår og boligtype.
Det er eier av boligen som fastsetter formuesverdien, jf. skatteforvaltningsloven § 9-1 første ledd, men skattemyndighetene kan kontrollere at verdien er satt riktig.
Formuesverdi skal ikke overstige:
Primærbolig: 25 % av beregnet eller dokumentert markedsverdi opp til kr. 10 000 000, og deretter 70 % av den overskytende markedsverdi.
Sekundærbolig: 100 % av beregnet eller dokumentert markedsverdi.
Formuesverdier som overstiger disse grensene, kan kreves nedjustert av eier.
Fra 2026 har Stortinget vedtatt en oppdatert modell for beregning av formuesverdi for primærbolig, så avvik kan forekomme.
For mer informasjon se skatteetaten.no
Opplysninger om fellesgjeld
Andel formue er kr 5 323,- pr. 31.12.2025.
Andel fellesgjeld er kr 82 594,19 pr. 16.04.2026.
Total fellesgjeld for selskapet er kr 27 976 111,- pr. 16.04.2026 og lånevilkårene er:
Bank: OBOS-banken AS
Lånenummer: 98207449113
Type: Annuitetslån, 12 terminer i året
Restsaldo pr. 16.04.2026: kr 3 658 356,-
Andel av saldo: kr 0,-
Innfrielsesdato: 30.05.2030
Type Rente: Flytende rente
Rente: 5,54%
Bank: OBOS-banken AS
Lånenummer: 98207449105
Type: Serielån, 12 terminer i året
Restsaldo pr. 16.04.2026: kr 9 307 759,-
Andel av saldo: kr 32 707,50
Innfrielsesdato: 30.05.2030
Type Rente: Flytende rente
Rente: 5,54%
Bank: OBOS-banken AS
Lånenummer: 98208026062
Type: Annuitetslån, 12 terminer i året
Restsaldo pr. 16.04.2026: kr 15 009 996,-
Andel av saldo: kr 49 886,69
Innfrielsesdato: 30.06.2042
Type Rente: Flytende rente
Rente: 5,54%
Mulighet for individuell nedbetaling på hele eller deler av fellesgjeld (IN-lån). Lånene OBOS01 (98207449113) og OBOS02 (98207449105) er tilknyttet IN-ordningen. Innbetaling kan foretas to ganger per år, ved terminforfall 30.04 og 30.10. Beløpet må være innbetalt senest 10 dager før terminforfall, og forretningsfører må informeres ca. 30 dager før. Aksjonær må kontakte Obos minimum en måned før terminforfall for å opprette avtale.
Omkostninger
5 790 000,00 Prisantydning
82 594,19 Andel av fellesgjeld
--------------------------------------------------------
5 872 594,19 Pris inkl. fellesgjeld
Omkostninger
10 500,00 Eierskiftegebyr AKSJE (kjøper)
9 950,00 Gjensidige Boligkjøperpakke* (valgfritt)
4 150,00 Pantenoteringsgebyr til forretningsfører (aksje)
545,00 Tinglysing panterettsdokument
--------------------------------------------------------
15 195,00 Omkostninger totalt (uten Gjensidige Boligkjøperpakke)
25 145,00 Omkostninger totalt (med Gjensidige Boligkjøperpakke)
--------------------------------------------------------
5 887 789,19 Totalpris inkl. omkostninger
5 897 739,19 Totalpris inkl. omkostninger (med Gjensidige Boligkjøperpakke)
--------------------------------------------------------
Dersom aksjelaget har fellesgjeld, vil aksjens andel av fellesgjelden komme i tillegg til kjøpesummen. Denne gjelden skal ikke innbetales i oppgjøret, men følger aksjen.
Det tas forbehold om endringer i avgifter og gebyrer.
Tilbud om lånefinansiering
Megler formidler gjerne kontakt med rådgiver hos vår samarbeidspartner BN Bank. De har konkurransedyktige betingelser samt rask og løsningsorientert behandling av din lånesøknad. Krogsveen mottar et honorar dersom lån opprettes.
Betalingsbetingelser
Kjøpesum inkludert omkostninger, samt pantedokument tilknyttet eventuelt lån, skal være disponibelt hos megler 2 virkedager før overtagelsen.
Annen viktig informasjon
Annen viktig informasjon
Eier
Oda Johanne Rød og Nikolai Czajkowski
Informasjon om aksjelaget
Leiligheten er tilknyttet DÆHLENENGEN BYGGESELSKAP AS.
- Boligaksjeselskapet består av 285 enheter.
- Forretningsfører er OBOS Eiendomsforvaltning AS.
- Aksjelaget er forsikret i Gjensidige Forsikring Asa, polisenr. 80486474.
- Selskapet har egen hjemmeside: www.selskapet.com.
- Bygningene er oppført på Byantikvarens Gule Liste.
Dugnad må påregnes.
Dyrehold er tillatt i henhold til husordensreglene. For tiden har beboerne registrert 13 katter, 17 hunder og to marsvin.
Selskapet har 16 vaskekjellere, og det er mulighet for å leie ekstra bod.
Det arrangeres sosiale sammenkomster som 17. mai-feiring, Pride-frokost og julegrantenning.
Kun fysiske personer kan være aksjonærer, og det forutsettes at kjøper skal bebo leiligheten selv.
Foretatt påkostninger de senere år:
- Fullstendig spyling av samtlige avløpsrør i selskapet (2024).
- Oppussing av trappeoppganger (2018), finansiert med lån.
- Renovering av bad i regi av boligselskapet (2005).
Planlagte påkostninger:
- Styret utreder en ny driftsmodell for vaskeriene, som kan inkludere leie av maskiner og en nettbasert booking- og betalingsløsning.
- Styret skal utrede praktiseringen av langtidsutleie og legge frem resultatet for generalforsamlingen i 2026.
- Styret jobber med å løse problemer med callingsystemet og dørlåser.
- Styret informerer pr. 24.04.2026 at det ikke foreligger planlagte påkostninger. Generalforsamling for 2026 avholdes 28.04.2026.
Kjøper skal godkjennes av styret i aksjelaget. Dette kan ikke nektes uten saklig grunn. Søknad om godkjenning av ny aksjonær sendes til styret. Kjøper har ikke rett til å ta boligen i bruk før søknaden er godkjent. Godkjenning kan ta inntil 2 måneder. Styret vil nekte samtykke til aksjeerverv hvis det er grunn til å tro at ervervet er motivert av profitt ved videresalg ('flipping').
Aksjelaget er tilknyttet OBOS Factoring sikringsordning som dekker manglende innbetaling av felleskostnader. OBOS Factoring garanterer for overførsel til aksjelaget hver måned og overtar risikoen for eventuell manglende innbetaling.
Selskapet er i en tvist med en tidligere aksjonær angående et erstatningskrav. Saken omhandler at styret mener de ble forledet til å godkjenne et erverv under falske forutsetninger, hvor intensjonen var videresalg for profitt fremfor egen beboelse. Rettslige skritt er under forberedelse.
Dokumenter for aksjelaget kan fås ved henvendelse til megler.
Overtakelse
Etter nærmere avtale.
Boligselgerforsikring
Selger har i forbindelse med salget tegnet boligselgerforsikring levert av Gjensidige.
Boligselgerforsikringen dekker selgers ansvar etter avhendingsloven begrenset oppad til kr 14 millioner. Dersom kjøper oppdager forhold ved eiendommen som hen mener utgjør en mangel ved eiendommen, vil Gjensidige behandle reklamasjonen på vegne av selger. Forsikringsvilkår kan fås ved henvendelse til megler.
Vedlagt salgsoppgaven følger selgers egenerklæringsskjema og tilstandsrapport. Interessenter må sette seg inn i dokumentene før bud inngis.
Boligkjøperforsikring
Innen kontraktsmøtet må kjøper ta stilling til om det ønskes å bestille Boligkjøperpakken gjennom Gjensidige. I denne gunstige pakken er boligen ferdig forsikret og inkluderer rettshjelpsforsikring, også kalt Boligkjøperforsikring. Rettshjelpsforsikring gir trygghet og tilgang på profesjonell juridisk hjelp dersom det oppdages uventede feil eller mangler det første året etter overtagelse. Forsikringsselskapet behandler i så fall ethvert mangelskrav kjøper måtte ha overfor selger.
Boligkjøperpakken inkluderer bygningsforsikring for hus og hytte, innboforsikring, flytteforsikring og dobbel rentedekning - i situasjoner hvor kjøper ikke får solgt nåværende primærbolig.
Kjøper mottar ingen særskilt faktura for Boligkjøperpakken da kostnaden det første året legges til kjøpesummen for boligen. Det gjøres oppmerksom på Krogsveen mottar et honorar for denne formidlingen.
Produktark for Boligkjøperpakken ligger vedlagt i salgsoppgaven.
Dersom ikke boligkjøperpakke ønskes kan kun rettshjelpsforsikring, også kalt boligkjøperforsikring, tegnes særskilt via megler. Rettshjelpsforsikringen varer i 5 år fra overtagelse og leveres gjennom Gjensidige. Ta kontakt med megler for ytterligere informasjon.
Selskap og privatpersoner som driver med kjøp/salg/utvikling som ledd i egen næringsvirksomhet kan ikke tegne boligkjøperpakke eller rettshjelpsforsikring.
Budgivning
Forbrukerinformasjon om budgivning er vedlagt denne salgsoppgaven og er også på vår hjemmeside Krogsveen.no. Alle bud og budforhøyelser må inngis skriftlig. I tillegg må legitimasjon være fremlagt sammen med signatur fra budgiver.
Vi oppfordrer til å gi bud elektronisk via GI BUD-knappen på eiendommens hjemmeside på Krogsveen.no. Da vil samtlige vilkår bli oppfylt.
Eventuelle forhøyelser eller endringer av budet kan bekreftes pr SMS eller på e-post. Vi oppfordrer alltid til å kontakte megler pr. telefon i tillegg da forsinkelser i SMS og e-post kan forekomme.
For at budene skal kunne bli behandlet og videreformidlet skriftlig til alle involverte parter, må alle bud ha en tilstrekkelig lang akseptfrist, jf. eiendomsmeglingsforskriften § 6-3.
Selger må også skriftlig akseptere budet før aksept kan formidles til budgiver. Akseptfrist bør derfor være på minimum 30 minutter, og budforhøyelser må derfor skje i god tid før fristens utløp.
Bud i forbrukerforhold kan uansett ikke settes med kortere frist enn kl. 12.00 første virkedag etter siste annonserte visning. I tillegg kan ikke budet ha forbehold om at det skal holdes hemmelig ovenfor øvrige interessenter. Megler har iht lov om eiendomsmegling ikke anledning til å videreformidle disse budene, og de vil dermed heller ikke bli journalført.
Etter at eiendommen er solgt vil kjøper og selger få tilsendt budjournal. Øvrige budgivere kan få utlevert kopi av budjournalen i anonymisert form.
Hvitvaskingsreglene
I henhold til lov om hvitvasking og terrorfinansiering har megler plikt til å gjennomføre kontrolltiltak overfor kunder, herunder fullmektiger. Dette innebærer bl.a. å bekrefte kunders og reelle rettighetshaveres identitet på bakgrunn av fremvist gyldig legitimasjon eller på annen godkjent måte, samt å innhente opplysninger om kundeforholdets formål og tilsiktede art.
Dersom slike kundetiltak ikke kan gjennomføres, kan megler ikke etablere kundeforholdet eller utføre transaksjonen.
Hvis kjøper ikke bidrar til gjennomføring av kundekontrollen og dette fører til at transaksjonen blir forsinket eller ikke kan gjennomføres, vil dette ansees som mislighold av avtalen og gi selger rettigheter etter avhendingslova kapittel 5. I tilfeller der selger ikke bidrar til gjennomføring av løpende kundekontroll underveis i oppdraget, er det selger som misligholder sine forpliktelser etter avtalen og gi kjøper rettigheter etter avhendingslovens kapittel 4. Partene er selv ansvarlige for eventuelle kostnader og ansvar dette kan medføre. Eiendomsmegleren eller eiendomsmeglingsforetaket kan ikke holdes ansvarlig for de konsekvenser dette vil kunne få for partene eller andre som har interesser i eiendomshandelen.
Kjøper oppfordres til å innbetale kjøpesummen som ikke kommer fra låneinstitusjon i én samlet innbetaling fra egen konto i norsk bank. Megler har plikt til å melde fra til Økokrim om eiendomshandler som fremstår som mistenkelige. Melding sendes Økokrim uten at partene varsles.
Personopplysningsloven
I henhold til personopplysningsloven gjør vi oppmerksom på at interessenter kan bli registrert for videre oppfølging.
Lovanvendelse
Salg av aksjeleiligheter reguleres av kjøpsloven, men avhendingslovens bestemmelser legges til grunn så langt de passer.
Det forutsettes at aksjene transporteres til kjøper.
Generelle bestemmelser
Salgsoppgaven er basert på de opplysningene selger har gitt til megler, den bygningssakyndiges tilstandsrapport, samt opplysninger innhentet fra kommunen, Kartverket og andre tilgjengelige kilder. Det er viktig at kjøper setter seg grundig inn i alle salgsdokumentene, herunder salgsoppgave, tilstandsrapport og selgers egenerklæring. Kjøper anses kjent med forhold som er tydelig beskrevet i salgsdokumentene, og slike forhold kan ikke påberopes som mangler. Dette gjelder uavhengig av om kjøper har lest dokumentene. Alle interessenter oppfordres til å undersøke eiendommen nøye, gjerne sammen med fagkyndig før bud inngis. Kjøper som velger å kjøpe usett kan ikke gjøre gjeldende som mangel noe han burde blitt kjent med ved undersøkelsen.
Dersom det er behov for avklaringer, anbefaler vi at interessenter rådfører seg med eiendomsmegler eller egne rådgivere før det legges inn bud.
En bolig som har blitt brukt i en viss tid, har vanligvis blitt utsatt for slitasje og skader kan ha oppstått. Slik bruksslitasje må kjøper regne med, og det kan avdekkes enkelte forhold etter overtakelse som nødvendiggjør utbedringer. Normal slitasje og skader som nødvendiggjør utbedring, er innenfor hva kjøper må forvente og vil ikke utgjøre en mangel.
Kjøper og selgers rettigheter og plikter reguleres av avtalen mellom partene, samt informasjonen som har vært tilgjengelig for kjøperen i forbindelse med handelen. Avtalen utfylles av avhendingsloven, og det gjelder ulike avtalevilkår avhengig av om kjøper er forbrukerkjøper eller ikke. Dette er nærmere beskrevet nedenfor.
På grunn av ulike avtalevilkår kan selger vurdere bud fra en som ikke er forbruker, ulikt fra en forbrukers bud. Dersom kjøper ikke er forbruker, er selger sitt mulige mangelsansvar begrenset fordi eiendommen selges "som den er". Selger kan ikke ta «som den er» forbehold ovenfor en forbrukerkjøper. Selv et lavere bud fra en som ikke er forbruker kan foretrekkes fordi begrensningen i mulig mangelsansvar kan ha egenverdi for selger. Selger står fritt til å forkaste eller akseptere ethvert bud, og er for eksempel ikke forpliktet til å akseptere høyeste bud.
Budgiver skal i budskjema avgi egenerklæring om budgiver er forbruker eller næringsdrivende/ person som hovedsakelig handler som ledd i næringsvirksomhet. Budgivere får informasjon dersom andre bud er inngitt av en som ikke er forbruker.
Forbrukerkjøp - definisjon
Med forbrukerkjøp menes kjøp av eiendom når kjøperen er en fysisk person som ikke hovedsakelig handler som ledd i næringsvirksomhet.
Forbruker – avtalevilkår
Eiendommen har en mangel dersom den ikke er i samsvar med kravene som følger av avtalen, eller det foreligger brudd på bestemmelsene i avhendingsloven §§ 3-2 til 3-8. Hvis eiendommen ikke er i samsvar med det kjøperen må kunne forvente ut ifra alder, type og synlig tilstand, kan det være grunnlag for mangelskrav. Det samme gjelder hvis det er holdt tilbake eller gitt uriktige opplysninger om eiendommen. Dette gjelder likevel bare dersom man kan gå ut ifra at det virket inn på avtalen at opplysningen ikke ble gitt eller at mangelskravet ikke blir rettet i tide på en tydelig måte.
Boligen kan ha en mangel etter avhendingsloven § 3-3 andre ledd dersom det er avvik mellom opplyst og faktisk innvendig areal, forutsatt at avviket er på 2% eller mer og minimum 1 kvm.
Ved beregning av et eventuelt prisavslag eller erstatning må kjøper selv dekke tap/kostnader opptil et beløp på kr 10 000 (egenandel).
Ikke-forbruker (næringsdrivende) – definisjon
Hvis kjøper er en juridisk person, eller en fysisk person som hovedsakelig handler som ledd i næringsvirksomhet, vil kjøpet ikke anses som et forbrukerkjøp.
Ikke-forbruker – avtalevilkår
Eiendommen har en mangel dersom den ikke er i samsvar med kravene som følger av avtalen.
Eiendommen selges «som den er», og selgers ansvar utover det konkret avtalte er da begrenset etter avhendingsloven § 3-9, første ledd andre setning.
Avhendingsloven § 3-3 andre ledd fravikes, og hvorvidt boligens arealsvikt utgjør en mangel vurderes etter avhendingsloven § 3-8.
Informasjon om kjøpers undersøkelsesplikt, herunder oppfordringen om å undersøke eiendommen nøye, gjelder også for kjøpere som ikke anses som forbrukere.
Meglers vederlag
Meglers vederlag betales av selger og er avtalt til:
Vederlag: 1,00 % av salgssummen inkl. eventuell fellesgjeld. Minimumsprovisjon er kr 50 000,00
Vederlag:
Kontroll av hjemmel og heftelser kr 4 500,00
Markedsføringspakke kr 30 900,00
Oppgjør kr 8 900,00
Tilrettelegging kr 19 900,00
Visninger a 4 000,- 2 inkl. kr 0,00
Utlegg:
Innhenting av informasjon forretningsfører kr 3 848,00
Pantenoterings-/sperregebyr til forretningsfører aksje kr 3 313,00
Andre utgifter:
Boligselgerforsikring Gjensidige Andel/Aksje regnes av prisant. kr 15 871,00
Foto kr 5 500,00
Tilstandsrapport fra bygningssakkyndig - faktura til kunde kr 9 000,00
Vi er opptatt av verdiskapning, og har knyttet til oss samarbeidspartnere som skal sikre våre kunder de beste produkter og tjenester;
• I forbindelse med forberedelse av salget, innhenter vi informasjon om eiendommen hovedsakelig fra vår samarbeidspartner Ambita.
• Gjensidige leverer boligselgerforsikring og tilbyr bygningsforsikring
• Boligkjøperforsikring leveres av Hiscox og med Sedgwick som skadebehandler, og er formidlet gjennom Gjensidige.
• BN bank tilbyr finansieringsløsninger
• Vår avdeling Krogsveen Pluss tilbyr flyttetjenester som utvask, visningsvask, lager, tømming og transport av flyttelass, i tillegg til å formidle kontakt med Flip for overflateoppussing.
• I forbindelse med overtagelse av eiendommen tilbyr Overo avtale om strøm, alarm og bredbånd.
• Krogsveen er, sammen med øvrige bransjeaktører, medeier i den digitale annonseringsplattformen Hjem som eies av Bomega AS.
Opplysninger om oppdraget
Oppdragsnummer 37-0146/26
Eiendomsmegler Krogsveen AS, avd. Hasle
Valle View, Innspurten 11D, 0663, OSLO
950007613
Oppdragets KR-kode KR37.26146
Dato
Sist oppdatert: 28. april 2026 kl. 18:02
Dokumenter
Dokumenter
PDF – 916 KB
PDF – 627 KB
PDF – 2 MB
PDF – 13 MB
PDF – 12 MB
PDF – 312 KB
PDF – 29 KB
PDF – 127 KB
PDF – 392 KB
Område
Legg til steder som er viktige for deg
Visning
Unngå doble boligrenter
Vi tilbyr gunstig forsikring.
Vurderer du utleie?
Få et tilbud fra Utleie KrogsveenHva koster lånet?
Sjekk estimert lånekostnadVil du varsles om lignende boliger?
Ved å lagre ditt boligsøk hos oss får du beskjed når vi har en bolig som ligner denne, før den legges ut på markedet!







































