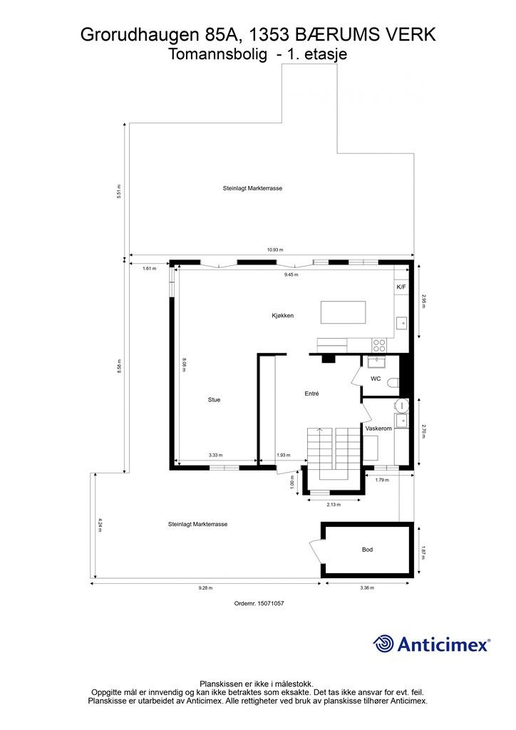
Grorudhaugen 85A
9 500 000 kr
154 m²
3 soverom
Solgt

Bærums Verk
Lekker, moderne og svært innbydende bolig med skjermet og unik tomt/hage, sol fra morgen til kveld og garasje med el!
Prisantydning
9 500 000 krOmkostninger
258 490 krTotalpris
9 758 490 kr
Pris
Bruksareal
183 m²BRA-I (internt bruksareal)
154 m²BRA-E (eksternt bruksareal)
29 m²TBA (terrasse-balkongareal)
116 m²
Areal
Byggeår
2003Soverom
3 soveromTomteareal
642 m² (eiet)Type
Halvpart vertikaldelt boligEierform
EietFasiliteter
Garasje/P-plass og Balkong/TerrasseEnergimerke
Rød E
Nøkkelinfo
Unngå doble boligrenter
Vi tilbyr gunstig forsikring.
Vurderer du utleie?
Få et tilbud fra Utleie KrogsveenHva koster lånet?
Sjekk estimert lånekostnadBeskrivelse
Kort om eiendommen
Velkommen til Grorudhaugen 85A – en moderne og innbydende halvpart av tomannsbolig med eneboligfølelse i et attraktivt og familievennlig område. Her får du en lys og romslig bolig med praktisk planløsning over to etasjer, perfekt for familielivet.
Boligen har en sosial og luftig stue med åpen kjøkkenløsning, samt toalettrom og vaskerom i første etasje. I andre etasje finner du tre gode soverom, et stilfullt baderom og en ekstra stue – ideelt for avslapning. Utvendig kan du nyte en fantastisk markterrasse og solrik hage, samt en balkong i andre etasje.
Beliggenheten er optimal med kort vei til barnehager, skoler, kollektivtransport og gode shoppingmuligheter på Bærums Verk. I tillegg har du umiddelbar tilgang til flotte turområder i Bærumsmarka, perfekt for friluftsliv året rundt.
Område
Legg til steder som er viktige for deg
På flyttefot? Tenk kjøp og salg samtidig.
Få din egen rådgiver gjennom hele kjøps- og salgsprosessen. Det starter med en verdivurdering.
Unngå doble boligrenter
Vi tilbyr gunstig forsikring.
Vurderer du utleie?
Få et tilbud fra Utleie KrogsveenHva koster lånet?
Sjekk estimert lånekostnadVil du varsles om lignende boliger?
Ved å lagre ditt boligsøk hos oss får du beskjed når vi har en bolig som ligner denne, før den legges ut på markedet!

