Sandefjordgata 3C
5 200 000 kr
52 m²
1 soverom
Komplett salgsoppgave

Sagene
Gjennomgående og lys 2-roms med varmt vann og fyring inkludert. Attraktiv beliggenhet med grønne parker i nærområdet.
Prisantydning
5 200 000 krAndel fellesgjeld
190 966 krOmkostninger
11 040 krTotalpris
5 402 006 kr
Pris
Bruksareal
61 m²BRA-I (internt bruksareal)
52 m²BRA-E (eksternt bruksareal)
9 m²
Areal
Etasje
4Byggeår
1940Soverom
1 soveromBad
1 badType
AndelsleilighetEierform
AndelFellesutgifter
5 403 krEnergimerke
Grønn F
Nøkkelinfo
Unngå doble boligrenter
Vi tilbyr gunstig forsikring.
Vurderer du utleie?
Få et tilbud fra Utleie KrogsveenHva koster lånet?
Sjekk estimert lånekostnadDette liker selger best ved boligen
Gjennomgående og trivelig leilighet med god takhøyde og rikelig med oppbevaringsplass både i leiligheten og i boder på loft og i kjeller. Felles, gratis vaskerom som er gratis i bruk og enkelt å booke. Varmtvann og sentralvarme inkludert i felleskostnadene, lave strømkostnader. Praktisk med separat kjøkken. Rolig og veldrevet borettslag. Borettslaget har hyggelig og møblert bakgård som kan benyttes til avslapping i solen eller til sammenkomster. Her har det blitt feiret både bursdager og dåp. Borettslaget ligger sentralt plassert på Sagene. Trivelig område med stor variasjon av tilbud, nærhet til flere parker, Akerselva, Marka, men også relativt sentralt i Oslo. Hobbyrom i kjeller.
Beskrivelse
Kort om eiendommen
Velkommen til Sandefjordgata 3C – med beliggenhet på beste Sagene!
Denne lyse og hyggelige 2-roms leiligheten ligger fredelig til i grønne, skjermede omgivelser, samtidig som man har alt man trenger rett i nærheten. Leiligheten ligger i 4. etasje og har en luftig, gjennomgående planløsning med store vinduer som gir rikelig med naturlig lys og et hyggelig utsyn.
Her bor man med en perfekt kombinasjon av byliv og naturnær ro. Like utenfor døren finner man både idylliske parker og pulserende kaféliv – alt innen kort gangavstand.
- Fyring, vv og internett inkl.
- Leiligheten disponerer to boder
- Felles vaskerom
- Tilbaketrukket beliggenhet
- Veldrevet borettslag med hyggelige fellesarealer
- Kort vei til kafeer, butikker og kollektivtransport
Velkommen til hyggelig visning.
Innhold og byggemåte
Innhold og byggemåte
Eiendommen
Sandefjordgata 3C, 0464 OSLO
Kommunenummer 301, gårdsnummer 221, bruksnummer 180, ideell andel 1/1
Andelsnummer 64, Borettslaget Sandefjordgata 3, organisasjonsnummer 951921181
Innhold
Totalt bruksareal BRA: 61 kvm
BRA-i:
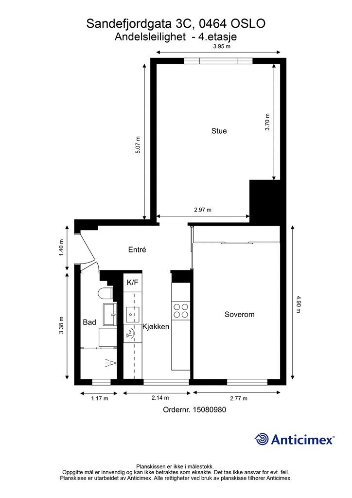
4. etasje 52 kvm: Entré, bad, kjøkken, soverom og stue.
BRA-e:
Kjeller: 4 kvm: Kjellerbod
6. etasje 5 kvm: Loftsbod
Boligen disponerer to boder, en i kjeller på 4kvm og en på loft på 5kvm. Det gjøres oppmerksom på at boligens eksterne boder tilhører borettslagets fellesareal, og at boden således ikke eies av den enkelte andelseier. Dette medfører at sameiet/borettslaget i fellesskap beslutter bruken, og at man ikke selv har eierrett og rettsvern for boden. Borettslaget kan ved vedtak beslutte annet bruk av fellesarealet og disponering av bodarealet kan dermed opphøre.
Loftsboden har et totalt gulvareal (GUA) på 11 m2, men grunnet skråtak/lav takhøyde er kun 5 m2 av arealet måleverdig som bruksareal. De delene av arealene som har lav himlingshøyde (ALH) utgjør 6 m2.
Vedlagte plantegninger er ikke målbare. De oppgitte arealer er hentet fra rapport med befaringsdato 08.04.2026 utført av Anticimex AS.
Byggemåte
Selger har innhentet en tilstandsrapport av boligen. Av rapporten fremgår det at flere bygningsdeler har fått tilstandsgrad ikke undersøkt/ikke tilgjengelig for undersøkelse (TG IU), 2 (TG2) og/eller 3 (TG3). Rapporten beskriver også avvik på undersøkte bygningsdeler uten tilstandsgrad. Kjøper overtar ansvaret for de opplysninger som fremkommer av salgsdokumentasjonen, og kan ikke gjøre gjeldende som mangel noe som burde vært kjent eller som ikke kan anses å ha betydning for avtalen.
Boligen har iht. tilstandsrapporten grunnmur og bærende konstruksjoner i hovedsak av betong/murkonstruksjoner. Bygget er oppført med kjeller. Yttervegger i hovedsak av tegl-/murverk. Utvendige fasader av synlig murverk. Etasjeskillere av betong. Halvvalmtak i trekonstruksjoner. Yttertak er belagt med takstein (taket er ikke besiktiget). Boligen har entrédør med brannklasse B30 og lydklasse db35. Vinduer med karmer av tre.
I tilstandsrapporten for leiligheten er det ikke gitt TG3, men det gjøres spesielt oppmerksom på at 5 bygningsdeler har fått tilstandsgrad 2, og dette gjelder følgende:
Våtrom:
- Vindu er plassert i våtsonen, noe som anses som uheldig. Konsekvens er at forholdet medfører risiko for fuktskader på både vinduet og tilstøtende veggkonstruksjon. Det er i tillegg registrert riss i fliser ved vinduet, eksakt årsak er ukjent og det anbefales å gjøre nøyere undersøkelser og eventuelle forbedringer.
- Fallforhold utenfor sluksonen vurderes ikke til å være tilstrekkelig for å lede eventuelt lekkasjevann til sluk, og det er ikke påvist at vanntett sjikt har tilstrekkelig oppkant ved dørterskel for å kompensere for dette.
- Vanntett sjikt har en alder som tilsier at fremtidig funksjon er usikker, risiko for nedsatt funksjon.
- Våtrommet har kun naturlig ventilasjon.
Øvrig:
- Synlige deler av gulvets overflatemateriale har åpninger/glipe mellom bordene på soverom.
Det gjøres videre oppmerksom på at følgende bygningsdeler ikke har blitt undersøkt tilstrekkelig, og dermed har fått TGIU:
- Våtrommets vegger av mur/betong gjør at hulltaking ikke er mulig. Tilstand inne i konstruksjon er ukjent, men overflatesøk med fuktindikator ga ikke utslag på indikasjoner om fuktskader.
- Innvendig stakeluke er ikke påvist inne i boenheten. Det vurderes at boenheten likevel har tilgjengelige stakepunkter gjennom sluk og øvrige komponenter tilknyttet avløpssystemet, men hvordan disse vil fungere i en faktisk brukssituasjon er ikke kjent.
Forenklet vurdering av det tekniske anlegget:
Det er registrert forhold som tyder på behov for at en kvalifisert elektrofaglig person gjennomfører en utvidet kontroll av det elektriske anlegget. Det er kun en slik tilleggsundersøkelse som kan gi en fullstendig oversikt over tilstanden, eventuelle feil og mangler, og hvilke tiltak som kan være nødvendige.
Se supplerende tekst i tilstandsrapporten. Kjøper overtar ansvar og risiko iht. tilfellene angitt i rapporten.
Tilstandsrapporten er inntatt i salgsoppgaven. Rapporten inneholder informasjon om avvikene og konsekvensen av disse. Ettersom kjøper regnes å være kjent med forhold som tydelig fremgår av tilstandsrapporten, oppfordres du til å sette deg grundig inn i rapporten i sin helhet.
Sammendrag av selgers egenerklæring:
I egenerklæringsskjemaet til selger opplyses det også om at noen fliser ved vinduet i dusjen har sprekker og bør skiftes ut, i tillegg til krymping/svinnsprekker mellom gipsplater i stue, som i følge selger antakelig er pga. uttørking.
Videre fremkommer det at det i 2022 ble utført en rekke større arbeider i regi av borettslaget, blant annet utskiftning av tak samt maling av vinduer innvendig.
Standard
Entré:
Velkommen inn! Hyggelig og lys entré med god plass til oppbevaring av sko i skoskap, og yttertøy i garderobeskap mot soverommet.
Stue:
Lys og romslig stue med god plass til sofa, tv-møbler og spisegruppe. De store vindusflatene gir rikelig med naturlig belysning, hyggelig utsikt mot rolige gate. I stuen er det et praktisk, innebygd skap - perfekt for pynt, bøker og ytterligere oppbevaringsplass.
Kjøkken:
Kjøkkenet oppleves som lyst og innbydende, og har rikelig med oppbevaringsplass i under- og overskap. Kjøkkeninnredningen er fra 2008, og består av profilerte fronter, benkeplater av tre, nedfelt kjøkkenvask med armatur m.m. Det er også integrert stekeovn, platetopp, oppvaskmaskin, mikrobølgeovn og kjøleskap med fryser. Benkeskapsbelysning samt stikkontakter over kjøkkenbenk.
Soverom:
Soverom av god størrelse, med god plass til dobbeltseng med tilhørende nattbord. Rommet vender ut mot rolig bakgård, og har store innebygde garderobeskap med skyvedører.
Bad:
Baderom fra 2006/2007 som ble renovert i regi av borettslaget. Badet har flislagt gulv med gulvvarme og flislagte vegger, vegghengt servant, vegghengt toalett, speil med overlys og dusjhjørne med glassdør. Det er opplegg for vaskemaskin på badet. Downlights i himling.
Løsøre og tilbehør
Vi viser til liste fra Norges Eiendomsmeglerforbund som gjelder fra 01.01.2020 angående løsøre og tilbehør.
Oppvarming
Oppvarming av boligen skjer i en kombinasjon mellom bruk av radiatorer/vannbåren varme (tilkoblet varmesentral) og gulvvarme/varmekabler på bad. Naturlig ventilasjon.
Selger har avtalt Norgespris på strøm på eiendommen frem til 31.12.2026, og denne er pt på 50 øre inkl mva. Nettleie, avgifter og påslag fra kraftleverandøren kommer i tillegg. Er det fjernvarme vil det også komme kostnader i tillegg.
Denne avtalen vil følge eiendommen i den avtalte perioden. Les mer om Norgespris her: https://www.regjeringen.no/no/aktuelt/legg-fram-lov-om-norgespris-pa-straum-og-fjernvarme/id3102642/
Dersom beboelsesrom ikke har vegg- eller fastmonterte varmekilder ved visning, følger dette heller ikke med.
Ferdigattest/brukstillatelse
Eiendommen har vært brukt til boligformål siden byggeår.
Det foreligger et uattestert ekspedisjonsdokument for oppføring av våningshus innlevert i 1936.
Et ekspedisjonsdokument er forløperen til ferdigattest. I Oslo kommune må dokumentet være attestert for at det kan anses som en ferdigattest. Det at ekspedisjonsdokumentet foreligger, gir ingen garanti for at bygget er oppført i henhold til tillatelsen og dagjeldende regelverk. Videre gir det ingen garanti for at det ikke er utført arbeid på bygget i ettertid som er søknadspliktig. Selger opplyser at det ikke er gjort endringer i selgers eiertid.
Det gjøres oppmerksom på at det ikke lenger utstedes ferdigattest på tiltak det er søkt om før 1998 jf. plan- og bygningsloven § 21-10. Kommunen vil ikke kreve ferdigattest for disse tiltakene og vil avvise eventuelle søknader. Bestemmelsen innebærer ikke at tiltak med manglende søknad blir lovlige, men at man ikke trenger å avslutte gamle byggesaker. Normalt sett kreves ferdigattest for alle søknadspliktige tiltak som gjøres etter plan- og bygningsloven.
Det foreligger også ferdigattest fra 2007 på rehabilitering av 81 bad, samt ferdigattest fra 2021 på installasjon av brannalarmanlegg. Dokumentene ligger vedlagt i salgsoppgaven.
Kjøper overtar alt ansvar, kostnad og risiko for dette videre.
Tinglyste heftelser og rettigheter
Utover andel fellesgjeld overdras leiligheten fri for pengeheftelser.
Borettslaget har legalpant for forfalte felleskostnader og andre krav som følger av borettslagsforholdet iht. burettslagsloven § 5-20. Pantet er begrenset oppad til 2G (G = folketrygdens grunnbeløp).
Det er tinglyst 3 servitutter på borettslagets eiendom. Disse omhandler festeavtalen, bestemmelse om trafostasjon og bestemmelser om benyttelse.
Servituttene vil følge eiendommen. Kjøpers bank vil få prioritet etter ovennevnte heftelser og servitutter.
Eventuell adgang til utleie
Andelseier kan ikke uten samtykke fra styret i borettslaget overlate bruken av boligen til andre. Med samtykke kan andelseier overlate boligen til andre i inntil tre år hvis andelseier har bodd i boligen i minst ett av de to siste år. Utleie i andre tilfeller kan godtas ved særlige grunner, jf. burettslagslova § 5-6. Utleie forutsetter at leiligheten har forsvarlige radonverdier. Se også borettslagets vedtekter og konferer megler ved spørsmål.
Beliggenhet og tomteforhold
Beliggenhet og tomteforhold
Beliggenhet
Leiligheten ligger meget godt til på Sagene og byr på følelsen av å bo sentralt, men samtidig tilbaketrukket i nydelige omgivelser.
Et par minutters gange fra leiligheten ligger det flere koselige kafeer og restauranter som Kaffebrenneriet, Sagene lunsjbar, Tiffany's, Bamboo (Asiatisk) og Saigon Sushi (Sushi/ Asiatisk) m.m. Rema 1000, Coop Extra Sagene, døgnåpent Joker og andre matvareforretninger ligger i umiddelbar nærhet. Det finnes også klesbutikker, hudpleiesalonger, apotek m.m. i området. Det er også kort vei til Storo storsenter med sitt brede utvalg av forretninger og servicetilbud.
Bydelen kan by på flere fantastiske grøntområder som Akerselva Miljøpark, Myraløkka, Sagene parken, Torshovparken, Bjølsenparken og Voldsløkka. Voldsløkka er et aktivt friområde med kunstgressbane, ballbinge, sandvolleyballbaner, turstier m.m. Like ved leiligheten ligger Bjølsenparken med idylliske Bjølsen Kolonihage med koselige Portveien 2.
Av treningstilbud finner du bl.a. SATS ca. 7 minutters gange fra døren, og ellers i nærområdet finner du Sagene Squash i Mølleparken og Myrens sportssenter på Torshov. Her har man tilgang til treningssenteret, OsloSquash, Klatreverket og Golfsenteret. Utdanningsinstitusjoner som Universitetet i Oslo (Blindern), BI i Nydalen, Høyskolen i Oslo, Tannlegehøyskolen, Veterinærhøyskolen, Sykepleierskolen på Lovisenberg og Arkitekthøyskolen er i nærheten.
I umiddelbar nærhet til leiligheten har du tilgang til et svært godt kollektivtilbud med bl.a. buss 20, 34, 37 og 54, i tillegg til buss nr. 28 mellom Fornebu og Helsfyr fra Arkitekt Rivertz plass i rushtiden, samt trikk 12, 15 og 18 fra Vogts gate på Torshov som tar deg raskt rundt til store deler av byen.
Adkomst
Det vil bli skiltet med Krogsveen visningsskilt ved fellesvisninger.
Beskrivelse av tomt
Tomten er pent opparbeidet med en flott bakgård. Sykkelparkering og flere sittegrupper på området.
Festet tomt på 2.188 kvm.
Festeavgiften er kr 82.560 pr. år for hele borettslaget.
Festeavtalen utløper 01.09.2069.
Grunneier, Oslo Kommune, har ikke forkjøpsrett til denne leiligheten. Samtykke til overdragelse fra grunneier kreves ikke. Iht. festekontrakten kan tomten innløses. Kopi av lov om tomtefeste kan fåes ved henvendelse til megler.
Parkering
Det er innført beboerparkering i dette området (indre by). Dette betyr at du kan parkere fritt døgnet rundt på parkeringsplassene regulert til beboerparkering i området rundt din bolig for kun kr. 3.850- pr. år for fossile biler, dieselbil, hybridbil, ladbar hybrid.
Har du el-bil så betaler du kr. 1.300,- pr år, hydrogenbil og el-varebil er gratis.
Motorsykkel og moped kr 1.925,- pr år.
El-motorsykkel og el-moped kr 650,- pr år.
Se Oslo kommune sine nettsider for mer informasjon og priser for ytre by.
Vei, vann og avløp
Eiendommen har adkomst via kommunal vei.
Eiendommen er tilknyttet kommunalt ledningsnett via private stikkledninger.
Borettslaget er ansvarlig for private stikkledninger til bygningen.
Økonomi
Økonomi
Boligens kostnader
Felleskostnadene er kr 5 403,- pr. mnd. og inkluderer: varmtvann og oppvarming (radiator v. fjernvarme), internett (Telia), porttelefonissystem (Defigo), trappevask, vaktmestertjenester, felles forsikring, kommunale avgifter, drift og vedlikehold, betjening av andel fellesgjeld og forretningsførsel.
Felleskostnadene justeres normalt en til to ganger årlig i forhold til borettslagets faktiske utgifter.
Felleskostnadene fordeles slik:
Internett 275,-
Felleskostnader 5 128,-
Nåværende eier har et strømforbruk som tilsvarer ca. kr 1 500,- pr. år.
Boligen er tilknyttet Telia som leverandør av internett. Avtalen med Telia gjelder kun internett, ikke TV. Beboere må selv tegne egen TV-avtale ved individuelt behov
Utgiftene er basert på nåværende eiers forbruk. Kjøper må selv tegne innboforsikring.
Formuesverdi
Ved hjelp av skatteetatens boligkalkulator er boligens formuesverdi beregnet til kr. 1 599 372,- for fjoråret når boligen benyttes som primærbolig.
Formuesverdien er en gitt prosent av den beregnede markedsverdien. Beregnet markedsverdi er basert på Statistisk sentralbyrå (SSB) sine opplysninger om omsatte boliger. I beregningen tas det hensyn til boligens beliggenhet, areal, byggeår og boligtype.
Det er eier av boligen som fastsetter formuesverdien, jf. skatteforvaltningsloven § 9-1 første ledd, men skattemyndighetene kan kontrollere at verdien er satt riktig.
Formuesverdi skal ikke overstige:
Primærbolig: 25 % av beregnet eller dokumentert markedsverdi opp til kr. 10 000 000, og deretter 70 % av den overskytende markedsverdi.
Sekundærbolig: 100 % av beregnet eller dokumentert markedsverdi.
Formuesverdier som overstiger disse grensene, kan kreves nedjustert av eier.
Fra 2026 har Stortinget vedtatt en oppdatert modell for beregning av formuesverdi for primærbolig, så avvik kan forekomme.
For mer informasjon se skatteetaten.no
Opplysninger om fellesgjeld
Andel formue er kr 26 653,- pr. 31.12.2025
Andel fellesgjeld er kr 190 966,- pr. 08.04.2026
Total fellesgjeld for boligselskapet er kr 14 318 198,- pr. 31.12.2025 og lånevilkårene er:
Bank: OBOS Boligkreditt AS
Lånenr.: 98207391697
Lånetype: Annuitetslån
Rentesats: 5,25%
Restsaldo 1 295 051,00
Innfrielsesdato: 30.12.2039
Type rente: Flytende rente
Terminer i året: 12
IN-avtale: Nei
Bank: OBOS-banken AS
Lånenr.: 98208015141
Lånetype: Annuitetslån
Rentesats: 5,25%
Restsaldo 6 045 591,00
Innfrielsesdato: 30.05.2052
Type rente: Flytende rente
Terminer i året: 12
IN-avtale: Nei
Bank: OBOS-banken AS
Lånenr.: 98208201956
Lånetype: Annuitetslån
Rentesats: 5,25%
Restsaldo 6 977 556,00
Innfrielsesdato: 30.08.2038
Type rente: Flytende rente
Terminer i året: 12
IN-avtale: Nei
Det er ikke tilrettelagt for individuell nedbetaling av fellesgjeld.
Omkostninger
5 200 000,00 Prisantydning
190 966,00 Andel av fellesgjeld
--------------------------------------------------------
5 390 966,00 Pris inkl. fellesgjeld
Omkostninger
9 950,00 Gjensidige Boligkjøperpakke* (valgfritt)
545,00 Tinglysing hjemmel
545,00 Tinglysing panterettsdokument
--------------------------------------------------------
1 090,00 (Omkostninger totalt (uten Gjensidige Boligkjøperpakke))
11 040,00 Omkostninger totalt (med Gjensidige Boligkjøperpakke))
--------------------------------------------------------
5 392 056,00 Totalpris inkl. omkostninger
5 402 006,00 Totalpris inkl. omkostninger (med Gjensidige Boligkjøperpakke)
--------------------------------------------------------
Tilbud om lånefinansiering
Megler formidler gjerne kontakt med rådgiver hos vår samarbeidspartner BN Bank. De har konkurransedyktige betingelser samt rask og løsningsorientert behandling av din lånesøknad. Krogsveen mottar et honorar dersom lån opprettes.
Betalingsbetingelser
Kjøpesum inkludert omkostninger, samt pantedokument tilknyttet eventuelt lån, skal være disponibelt hos megler 2 virkedager før overtagelsen.
Annen viktig informasjon
Annen viktig informasjon
Eier
Ernst Inge Dahl Espeland
Informasjon om borettslaget
Leiligheten er tilknyttet Sandefjordgata 3 borettslag. Orgnr: 951921181
Borettslagsmodellen innebærer at borettslaget eier eiendommen, mens andelseierne eier andeler i borettslaget, som gir andelseier borett til en bestemt bolig.
Borettslaget består av 81 leiligheter.
Forretningsfører er OBOS Eiendomsforvaltning AS.
Dugnad må påregnes.
Dyrehold er absolutt lov i Sandefjordgata, men styret skal orienteres på forhånd. Styret kan ikke avslå en søknad om husdyr uten særskilt grunn.
Foretatte påkostninger og vedlikehold de senere år:
2022: Omtekking av tak, ommuring av piper, overflatebehandling av vinduer og gesimser, rehabilitering av balkonger, maling av fasade på lavblokken mot Mogata. Utført av Front Entreprenør AS. Prosjektleder: OBOS Prosjekt.
2020 – 2021: Nytt callinganlegg. Oppussing av portrom. Utført av Defigo. Utført av Vaktmester Andersen.
2014 – 2014: Skiftet vinduer. Utført av Palmgren AS.
2013 – 2014: Modernisering fyrrom. Installert frekvensstyrt sirkulasjonspumpe, mikrobobleutskiller og innregulering av radiatoranlegget. Utført av Tore Orvei AS.
2011 – 2011: Rehabilitering av trappeorm. Malt alle trappeløp og lagt fliser i trappene. Utført av Miljømalern AS.
2006 – 2007: Totalrehabilitering våtrom. Soilrør skiftet ut samt lagt fliser på gulv og vegger. Arbeidet utført av firmaet Andenæs VVS AS.
2004 – 2004: Fasadeoppussing. Utført av Alfa Malemesterfirma.
2000 – 2000: Oppussing av trappeoppgang. Skiftet dører og malt trappeoppganger.
1997 – 1997: Varmtvannsrør. Skiftet ut varmtvannsrør og sirkulasjonssløyfe.
Planlagte påkostninger:
Utover normal drift og vedlikehold opplyser styret at det per. 14.05.2025 ikke er vedtatt noen større vedlikehold som vil påvirke økonomien.
Borettslaget har legalpant for forfalte felleskostnader og andre krav som følger av lagsforholdet iht. burettslagsloven § 5-20. Pantet er begrenset oppad til 2G (G = folketrygdens grunnbeløp).
I henhold til borettslagets vedtekter må kjøper godkjennes av styret som ny andelseier. Det er kjøpers ansvar at styregodkjenning blir gitt, men styret kan ikke nekte godkjenning uten saklig grunn.
Dokumenter for borettslaget kan fås ved henvendelse til megler.
Overtakelse
Etter nærmere avtale. Overtakelse kan tidligst skje etter at styrets godkjennelse er avklart.
Boligselgerforsikring
Selger har i forbindelse med salget tegnet boligselgerforsikring levert av Gjensidige.
Boligselgerforsikringen dekker selgers ansvar etter avhendingsloven begrenset oppad til kr 14 millioner. Dersom kjøper oppdager forhold ved eiendommen som hen mener utgjør en mangel ved eiendommen, vil Gjensidige behandle reklamasjonen på vegne av selger. Forsikringsvilkår kan fås ved henvendelse til megler.
Vedlagt salgsoppgaven følger selgers egenerklæringsskjema og tilstandsrapport. Interessenter må sette seg inn i dokumentene før bud inngis.
Boligkjøperforsikring
Innen kontraktsmøtet må kjøper ta stilling til om det ønskes å bestille Boligkjøperpakken gjennom Gjensidige. I denne gunstige pakken er boligen ferdig forsikret og inkluderer rettshjelpsforsikring, også kalt Boligkjøperforsikring. Rettshjelpsforsikring gir trygghet og tilgang på profesjonell juridisk hjelp dersom det oppdages uventede feil eller mangler det første året etter overtagelse. Forsikringsselskapet behandler i så fall ethvert mangelskrav kjøper måtte ha overfor selger.
Boligkjøperpakken inkluderer bygningsforsikring for hus og hytte, innboforsikring, flytteforsikring og dobbel rentedekning - i situasjoner hvor kjøper ikke får solgt nåværende primærbolig.
Kjøper mottar ingen særskilt faktura for Boligkjøperpakken da kostnaden det første året legges til kjøpesummen for boligen. Det gjøres oppmerksom på Krogsveen mottar et honorar for denne formidlingen.
Produktark for Boligkjøperpakken ligger vedlagt i salgsoppgaven.
Dersom ikke boligkjøperpakke ønskes kan kun rettshjelpsforsikring, også kalt boligkjøperforsikring, tegnes særskilt via megler. Rettshjelpsforsikringen varer i 5 år fra overtagelse og leveres gjennom Gjensidige. Ta kontakt med megler for ytterligere informasjon.
Selskap og privatpersoner som driver med kjøp/salg/utvikling som ledd i egen næringsvirksomhet kan ikke tegne boligkjøperpakke eller rettshjelpsforsikring.
Budgivning
Forbrukerinformasjon om budgivning er vedlagt denne salgsoppgaven og er også på vår hjemmeside Krogsveen.no. Alle bud og budforhøyelser må inngis skriftlig. I tillegg må legitimasjon være fremlagt sammen med signatur fra budgiver.
Vi oppfordrer til å gi bud elektronisk via GI BUD-knappen på eiendommens hjemmeside på Krogsveen.no. Da vil samtlige vilkår bli oppfylt.
Eventuelle forhøyelser eller endringer av budet kan bekreftes pr SMS eller på e-post. Vi oppfordrer alltid til å kontakte megler pr. telefon i tillegg da forsinkelser i SMS og e-post kan forekomme.
For at budene skal kunne bli behandlet og videreformidlet skriftlig til alle involverte parter, må alle bud ha en tilstrekkelig lang akseptfrist, jf. eiendomsmeglingsforskriften § 6-3.
Selger må også skriftlig akseptere budet før aksept kan formidles til budgiver. Akseptfrist bør derfor være på minimum 30 minutter, og budforhøyelser må derfor skje i god tid før fristens utløp.
Bud i forbrukerforhold kan uansett ikke settes med kortere frist enn kl. 12.00 første virkedag etter siste annonserte visning. I tillegg kan ikke budet ha forbehold om at det skal holdes hemmelig ovenfor øvrige interessenter. Megler har iht lov om eiendomsmegling ikke anledning til å videreformidle disse budene, og de vil dermed heller ikke bli journalført.
Etter at eiendommen er solgt vil kjøper og selger få tilsendt budjournal. Øvrige budgivere kan få utlevert kopi av budjournalen i anonymisert form.
Hvitvaskingsreglene
I henhold til lov om hvitvasking og terrorfinansiering har megler plikt til å gjennomføre kontrolltiltak overfor kunder, herunder fullmektiger. Dette innebærer bl.a. å bekrefte kunders og reelle rettighetshaveres identitet på bakgrunn av fremvist gyldig legitimasjon eller på annen godkjent måte, samt å innhente opplysninger om kundeforholdets formål og tilsiktede art.
Dersom slike kundetiltak ikke kan gjennomføres, kan megler ikke etablere kundeforholdet eller utføre transaksjonen.
Hvis kjøper ikke bidrar til gjennomføring av kundekontrollen og dette fører til at transaksjonen blir forsinket eller ikke kan gjennomføres, vil dette ansees som mislighold av avtalen og gi selger rettigheter etter avhendingslova kapittel 5. I tilfeller der selger ikke bidrar til gjennomføring av løpende kundekontroll underveis i oppdraget, er det selger som misligholder sine forpliktelser etter avtalen og gi kjøper rettigheter etter avhendingslovens kapittel 4. Partene er selv ansvarlige for eventuelle kostnader og ansvar dette kan medføre. Eiendomsmegleren eller eiendomsmeglingsforetaket kan ikke holdes ansvarlig for de konsekvenser dette vil kunne få for partene eller andre som har interesser i eiendomshandelen.
Kjøper oppfordres til å innbetale kjøpesummen som ikke kommer fra låneinstitusjon i én samlet innbetaling fra egen konto i norsk bank. Megler har plikt til å melde fra til Økokrim om eiendomshandler som fremstår som mistenkelige. Melding sendes Økokrim uten at partene varsles.
Personopplysningsloven
I henhold til personopplysningsloven gjør vi oppmerksom på at interessenter kan bli registrert for videre oppfølging.
Lovanvendelse
Generelle bestemmelser
Salgsoppgaven er basert på de opplysningene selger har gitt til megler, den bygningssakyndiges tilstandsrapport, samt opplysninger innhentet fra kommunen, Kartverket og andre tilgjengelige kilder. Det er viktig at kjøper setter seg grundig inn i alle salgsdokumentene, herunder salgsoppgave, tilstandsrapport og selgers egenerklæring. Kjøper anses kjent med forhold som er tydelig beskrevet i salgsdokumentene, og slike forhold kan ikke påberopes som mangler. Dette gjelder uavhengig av om kjøper har lest dokumentene. Alle interessenter oppfordres til å undersøke eiendommen nøye, gjerne sammen med fagkyndig før bud inngis. Kjøper som velger å kjøpe usett kan ikke gjøre gjeldende som mangel noe han burde blitt kjent med ved undersøkelsen.
Dersom det er behov for avklaringer, anbefaler vi at interessenter rådfører seg med eiendomsmegler eller egne rådgivere før det legges inn bud.
En bolig som har blitt brukt i en viss tid, har vanligvis blitt utsatt for slitasje og skader kan ha oppstått. Slik bruksslitasje må kjøper regne med, og det kan avdekkes enkelte forhold etter overtakelse som nødvendiggjør utbedringer. Normal slitasje og skader som nødvendiggjør utbedring, er innenfor hva kjøper må forvente og vil ikke utgjøre en mangel.
Kjøper og selgers rettigheter og plikter reguleres av avtalen mellom partene, samt informasjonen som har vært tilgjengelig for kjøperen i forbindelse med handelen. Avtalen utfylles av avhendingsloven, og det gjelder ulike avtalevilkår avhengig av om kjøper er forbrukerkjøper eller ikke. Dette er nærmere beskrevet nedenfor.
På grunn av ulike avtalevilkår kan selger vurdere bud fra en som ikke er forbruker, ulikt fra en forbrukers bud. Dersom kjøper ikke er forbruker, er selger sitt mulige mangelsansvar begrenset fordi eiendommen selges "som den er". Selger kan ikke ta «som den er»- forbehold overfor en forbrukerkjøper. Selv et lavere bud fra en som ikke er forbruker kan foretrekkes fordi begrensningen i mulig mangelsansvar kan ha egenverdi for selger. Selger står fritt til å forkaste eller akseptere ethvert bud, og er for eksempel ikke forpliktet til å akseptere høyeste bud.
Budgiver skal i budskjema avgi egenerklæring om budgiver er forbruker eller næringsdrivende/ person som hovedsakelig handler som ledd i næringsvirksomhet. Budgivere får informasjon dersom andre bud er inngitt av en som ikke er forbruker.
Forbrukerkjøp - definisjon
Med forbrukerkjøp menes kjøp av eiendom når kjøperen er en fysisk person som ikke hovedsakelig handler som ledd i næringsvirksomhet.
Forbruker – avtalevilkår
Eiendommen har en mangel dersom den ikke er i samsvar med kravene som følger av avtalen, eller det foreligger brudd på bestemmelsene i avhendingsloven §§ 3-2 til 3-8. Hvis eiendommen ikke er i samsvar med det kjøperen må kunne forvente ut ifra alder, type og synlig tilstand, kan det være grunnlag for mangelskrav. Det samme gjelder hvis det er holdt tilbake eller gitt uriktige opplysninger om eiendommen. Dette gjelder likevel bare dersom man kan gå ut ifra at det virket inn på avtalen at opplysningen ikke ble gitt eller at mangelskravet ikke blir rettet i tide på en tydelig måte.
Boligen kan ha en mangel etter avhendingsloven § 3-3 andre ledd, dersom det er avvik mellom opplyst og faktisk innvendig areal, forutsatt at avviket er på 2% eller mer og minimum 1 kvm.
Ved beregning av et eventuelt prisavslag eller erstatning må kjøper selv dekke tap/kostnader opptil et beløp på kr 10 000 (egenandel).
Ikke-forbruker (næringsdrivende) – definisjon
Hvis kjøper er en juridisk person, eller en fysisk person som hovedsakelig handler som ledd i næringsvirksomhet, vil kjøpet ikke anses som et forbrukerkjøp.
Ikke-forbruker – avtalevilkår
Eiendommen har en mangel dersom den ikke er i samsvar med kravene som følger av avtalen.
Eiendommen selges «som den er», og selgers ansvar utover det konkret avtalte er da begrenset etter avhendingsloven § 3-9, første ledd andre setning.
Avhendingsloven § 3-3 andre ledd fravikes, og hvorvidt boligens arealsvikt utgjør en mangel vurderes etter avhendingsloven § 3-8.
Informasjon om kjøpers undersøkelsesplikt, herunder oppfordringen om å undersøke eiendommen nøye, gjelder også for kjøpere som ikke anses som forbrukere.
Det forutsettes at hjemmel overføres til kjøper. Hvis kjøper ikke ønsker hjemmelsoverføring av eiendommen, må det tas forbehold om dette i budet.
Meglers vederlag
Meglers vederlag betales av selger og er avtalt til:
Vederlag: 0,90 % av salgssummen
Vederlag:
Kontroll av hjemmel og heftelser kr 3 900,00
Markedsføringspakke kr 30 900,00
Oppgjør kr 8 900,00
Tilrettelegging kr 19 900,00
Visninger pr stk. 4 500,- (første visning vederlagsfri)
Utlegg:
Eierskiftegebyr forretningsfører kr 6 725,00
Innhenting av informasjon forretningsfører kr 3 150,00
Tinglysing sikring kr 545,00
Andre utgifter:
Boligselgerforsikring regnes av prisantydning kr 13 988,00
Foto kr 5 000,00
Tilstandsrapport leilighet kr 9 950,00
Vi er opptatt av verdiskapning, og har knyttet til oss samarbeidspartnere som skal sikre våre kunder de beste produkter og tjenester;
• I forbindelse med forberedelse av salget, innhenter vi informasjon om eiendommen hovedsakelig fra vår samarbeidspartner Ambita.
• Gjensidige leverer boligselgerforsikring og tilbyr bygningsforsikring
• Boligkjøperforsikring leveres av Hiscox og med Sedgwick som skadebehandler, og er formidlet gjennom Gjensidige.
• BN bank tilbyr finansieringsløsninger
• Vår avdeling Krogsveen Pluss tilbyr flyttetjenester som utvask, visningsvask, lager, tømming og transport av flyttelass, i tillegg til å formidle kontakt med Flip for overflateoppussing.
• I forbindelse med overtagelse av eiendommen tilbyr Overo avtale om strøm, alarm og bredbånd.
• Krogsveen er, sammen med øvrige bransjeaktører, medeier i Bomega AS som tilbyr den digitale annonseringsplattformen Hjem.
Opplysninger om oppdraget
Oppdragsnummer 52-0055/26
Eiendomsmegler Krogsveen AS, avd. Grünerløkka og Sagene
Maridalsveien 157, 0461, OSLO
950007613
Oppdragets KR-kode KR52.2655
Dato
Sist oppdatert: 11. april 2026 kl. 18:56
Dokumenter
Dokumenter
PDF – 916 KB
PDF – 628 KB
PDF – 3 MB
PDF – 5 MB
PDF – 166 KB
PDF – 8 MB
PDF – 167 KB
PDF – 312 KB
PDF – 29 KB
PDF – 127 KB
PDF – 392 KB
Område
Legg til steder som er viktige for deg
Visning
Unngå doble boligrenter
Vi tilbyr gunstig forsikring.
Vurderer du utleie?
Få et tilbud fra Utleie KrogsveenHva koster lånet?
Sjekk estimert lånekostnadVil du varsles om lignende boliger?
Ved å lagre ditt boligsøk hos oss får du beskjed når vi har en bolig som ligner denne, før den legges ut på markedet!

