Sverrestien 26
17 500 000 kr
195 m²
4 soverom
Solgt
BLOMMENHOLM
Rålekker arkitekttegnet funkisbolig med fantastisk utsikt og sen kveldssol. God standard, dobbelgarasje, super sentralt
Prisantydning
17 500 000 krOmkostninger
458 490 krTotalpris
17 958 490 kr
Pris
Bruksareal
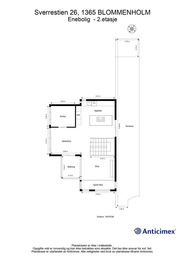
226 m²BRA-I (internt bruksareal)
195 m²BRA-E (eksternt bruksareal)
31 m²TBA (terrasse-balkongareal)
63 m²
Areal
Byggeår
2003Soverom
4 soveromBad
3 badTomteareal
900 m² (eiet)Type
Enebolig - FrittliggendeEierform
EietFasiliteter
Garasje/P-plass og Balkong/TerrasseEnergimerke
Gul B
Nøkkelinfo
Unngå doble boligrenter
Vi tilbyr gunstig forsikring.
Vurderer du utleie?
Få et tilbud fra Utleie KrogsveenHva koster lånet?
Sjekk estimert lånekostnadBeskrivelse
Kort om eiendommen
Arkitekttegnet funkisbolig med gjennomført design, flott utsikt og romslige uteplasser. Boligen er fordelt over tre etasjer med flere oppholdsrom, tre soverom, kontor/soverom og tre baderom. I toppetasjen finner man en stor terrasse og balkong på ca. 59 kvm, i tillegg til en mindre terrasse i 1. etasje. Vannbåren gulvvarme og gasspeis gir god komfort. Parkering i dobbelgarasje og på gårdsplass. Eiendommen har en attraktiv og sentral beliggenhet rett ved Sandvika, med korte avstander til barnehager, skoler og flotte rekreasjonsområder. I Sandvika sentrum er det også et bredt utvalg av butikker, servicetilbud, kulturtilbud og svært gode kollektivforbindelser med tog og buss like i nærheten.
Område
Legg til steder som er viktige for deg
På flyttefot? Tenk kjøp og salg samtidig.
Få din egen rådgiver gjennom hele kjøps- og salgsprosessen. Det starter med en verdivurdering.
Unngå doble boligrenter
Vi tilbyr gunstig forsikring.
Vurderer du utleie?
Få et tilbud fra Utleie KrogsveenHva koster lånet?
Sjekk estimert lånekostnadVil du varsles om lignende boliger?
Ved å lagre ditt boligsøk hos oss får du beskjed når vi har en bolig som ligner denne, før den legges ut på markedet!




