Anna Haarsakers veg 3
1 750 000 kr
53 m²
1 soverom
Solgt

2- roms omsorgsbolig - Nybygget 2021 - Heis - innglasset balkong | Romslig fellesarealer
Prisantydning
1 750 000 krAndel fellesgjeld
392 542 krOmkostninger
15 146 krTotalpris
2 157 688 kr
Pris
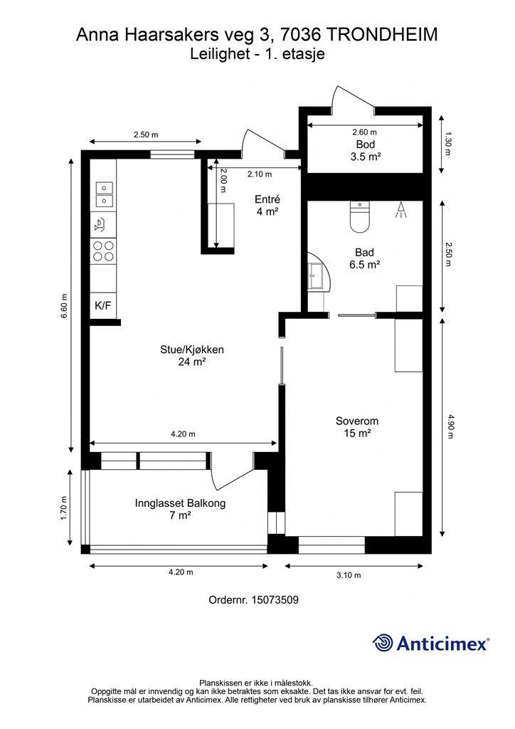
Bruksareal
71 m²BRA-I (internt bruksareal)
53 m²BRA-E (eksternt bruksareal)
9 m²
Areal
Etasje
1Byggeår
2021Soverom
1 soveromBad
1 badType
AndelsleilighetEierform
AndelFasiliteter
Heis og Balkong/TerrasseFellesutgifter
7 599 krEnergimerke
Grønn C
Nøkkelinfo
Unngå doble boligrenter
Vi tilbyr gunstig forsikring.
Vurderer du utleie?
Få et tilbud fra Utleie KrogsveenHva koster lånet?
Sjekk estimert lånekostnadBeskrivelse
Kort om eiendommen
Verdt å nevne:
- Vestvendt beliggenhet på hjørnet av bygget
- Beliggende i 1. etasje
- Bygg oppført i 2021 med god standard
- Praktisk planløsning med utstrakte vindusflater som sikrer rikelig med naturlig dagslys
- Åpen stue- og kjøkkenløsning med plass til ønsket møblement og utgang til innglasset balkong
- Pent flislagt bad med varme i gulv
- Stort soverom med plass til garderobe
- To boder med rikelig oppbevaringsmuligheter - Utenfor leiligheten og en bod i kjeller
- Heis
Område
Legg til steder som er viktige for deg
På flyttefot? Tenk kjøp og salg samtidig.
Få din egen rådgiver gjennom hele kjøps- og salgsprosessen. Det starter med en verdivurdering.
Unngå doble boligrenter
Vi tilbyr gunstig forsikring.
Vurderer du utleie?
Få et tilbud fra Utleie KrogsveenHva koster lånet?
Sjekk estimert lånekostnadVil du varsles om lignende boliger?
Ved å lagre ditt boligsøk hos oss får du beskjed når vi har en bolig som ligner denne, før den legges ut på markedet!

