Lina Nordbys veg 12
5 390 000 kr
198 m²
4 soverom
Solgt

Holter/Eltonåsen
Innholdsrik enebolig i barnevennlig og populært område | Hybel i underetasjen | Gangavstand til barnehage og barneskole
Prisantydning
5 390 000 krOmkostninger
155 740 krTotalpris
5 545 740 kr
Pris
Bruksareal
245 m²BRA-I (internt bruksareal)
198 m²BRA-E (eksternt bruksareal)
47 m²TBA (terrasse-balkongareal)
40 m²
Areal
Etasje
2Byggeår
1989Soverom
4 soveromBad
3 badTomteareal
656 m² (eiet)Type
Enebolig - FrittliggendeEierform
EietFasiliteter
Garasje/P-plass og Balkong/TerrasseEnergimerke
Rød E
Nøkkelinfo
Unngå doble boligrenter
Vi tilbyr gunstig forsikring.
Vurderer du utleie?
Få et tilbud fra Utleie KrogsveenHva koster lånet?
Sjekk estimert lånekostnadBeskrivelse
Kort om eiendommen
Attraktiv og innholdsrik enebolig med gjennomgående normalt god standard og hybel i underetasjen som genererer utleieinntekter om ønskelig.
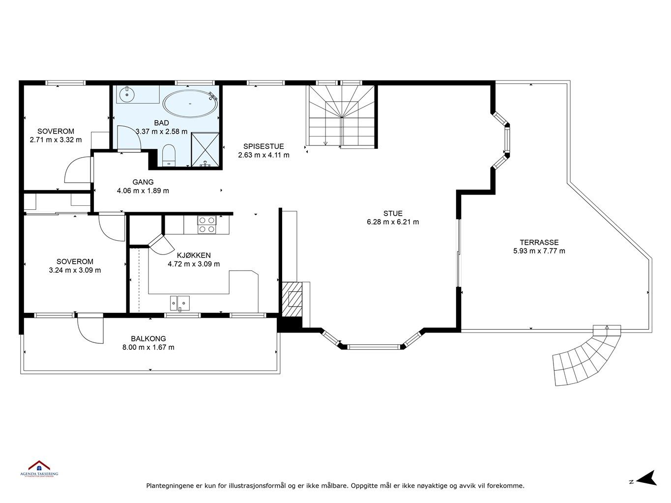
Boligen har en god og praktisk planløsning over to plan med tre(fire) soverom, tre bad, vaskerom, to kjøkken og tre stuer - perfekt familiebolig med nok boltreplass både inne og ute. Godt med lagringsplass. Har man behov for mer plass, er hybelen en ypperlig ungdomsavdeling. Opprinnelig var det et soverom til ved trappeoppgangen i 1. etasjen og kjellerstuen kan gjøres om til soverom.
Lufteveranda i tilknytning til hovedsoverommet, perfekt for morgenkaffen. Fra stuen er det utgang til stor og skjermet terrasse som utnytter de gode solforholdene og blir en naturlig forlengelse av boligen sommertid. Fra terrassen er det trapp ned til uteområdet.
Område
Legg til steder som er viktige for deg
På flyttefot? Tenk kjøp og salg samtidig.
Få din egen rådgiver gjennom hele kjøps- og salgsprosessen. Det starter med en verdivurdering.
Unngå doble boligrenter
Vi tilbyr gunstig forsikring.
Vurderer du utleie?
Få et tilbud fra Utleie KrogsveenHva koster lånet?
Sjekk estimert lånekostnadVil du varsles om lignende boliger?
Ved å lagre ditt boligsøk hos oss får du beskjed når vi har en bolig som ligner denne, før den legges ut på markedet!

