Hjeramoen 24G
2 790 000 kr
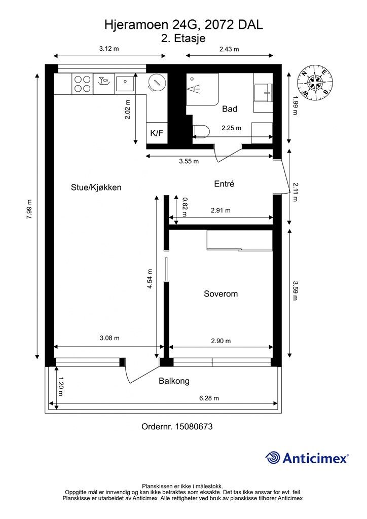
49 m²
1 soverom
Komplett salgsoppgave

Dal
Tiltalende og moderne 2-R eierl. (2020) med arealeffektiv planløsning | Balkong | Garasje med lader |
Prisantydning
2 790 000 krOmkostninger
80 790 krTotalpris
2 870 790 kr
Pris
Bruksareal
51 m²BRA-I (internt bruksareal)
49 m²BRA-E (eksternt bruksareal)
2 m²TBA (terrasse-balkongareal)
8 m²
Areal
Etasje
2Byggeår
2020Soverom
1 soveromBad
1 badType
EierleilighetEierform
EierseksjonFasiliteter
Garasje/P-plass og Balkong/TerrasseFellesutgifter
1 799 kr
Nøkkelinfo
Unngå doble boligrenter
Vi tilbyr gunstig forsikring.
Vurderer du utleie?
Få et tilbud fra Utleie KrogsveenHva koster lånet?
Sjekk estimert lånekostnadBeskrivelse
Kort om eiendommen
Leiligheten ligger på Dal i Eidsvoll kommune - attraktivt område med gangavstand til servicetilbud og togstasjonen med gode forbindelser til hovedstaden.
Tiltalende og moderne 2-roms eierleilighet i andre etasje fra 2020 med gjennomgående god standard. Meget god og arealeffektiv planløsning som utnytter plassen godt, videre har boligen mange gode løsninger. Åpen kjøkkenløsning mot stuen gjennomført på en god måte og god plass til spisebord mellom rommene. Leiligheten har lyse og tidsriktige farger, samt store vindusflater i stuen som slipper inn rikelig med naturlig lys og bidrar til en god romfølelse. Fra stuen er det direkte utgang til balkong, som blir en naturlig forlengelse av stuen på sommertid.
Biloppstillingsplass i parkeringskjeller med elbil-lader og bod på ca. 2 kvm.
Innhold og byggemåte
Innhold og byggemåte
Eiendommen
Hjeramoen 24G, 2072 DAL
Kommunenummer 3240, gårdsnummer 92, bruksnummer 161, seksjonsnummer 88, ideell andel 1/1
Innhold
Totalt bruksareal BRA: 51 kvm
BRA-i:
2. etasje 49 kvm: Entré, bad, stue med åpen kjøkkenløsning og soverom.
BRA-e:
1. etasje 2 kvm: Bod.
Åpent areal:
2. etasje 8 kvm: Balkong.
Det gjøres oppmerksom på at boligens eksterne boder tilhører sameiets fellesareal, og at boden således ikke eies av den enkelte sameier. Dette medfører at sameiet i fellesskap beslutter bruken, og at man ikke selv har eierrett og rettsvern for boden. Sameiet kan ved vedtak beslutte annet bruk av fellesarealet og disponering av bodarealet kan dermed opphøre.
Vedlagte plantegninger er ikke målbare. De oppgitte arealer er hentet fra rapport med befaringsdato 27.03.2026 utført av Anticimex AS.
Byggemåte
Selger har innhentet en tilstandsrapport av boligen/eiendommen. Av rapporten fremgår det at flere bygningsdeler har fått tilstandsgrad ikke undersøkt/ikke tilgjengelig for undersøkelse (TG IU), 2 (TG2) og/eller 3 (TG3). Rapporten beskriver også avvik på undersøkte bygningsdeler uten tilstandsgrad. Kjøper overtar ansvaret for de opplysninger som fremkommer av salgsdokumentasjonen, og kan ikke gjøre gjeldende som mangel noe som burde vært kjent eller som ikke kan anses å ha betydning for avtalen.
Bygningen er iht. tilstandsrapporten oppført med grunnmur av betong. Bygget er oppført med støpt gulv mot grunn. Yttervegger av trekonstruksjoner. Utvendige fasader er kledd med liggende trekledning. Etasjeskillere av betong. Flatt tak. Yttertak er belagt med asfaltpapp . Les for øvrig mer om byggemåte og den tekniske tilstanden i rapporten.
Det gjøres spesielt oppmerksom på TG2:
Våtrom:
- Overflater vegger. Det er hull etter tidligere innfestinger i dusjsonen. Hullene er tettet med tettemasse, men det kan ikke verifiseres ved visuell inspeksjon alene om løsningen gir tilstrekkelig fuktsikkerhet.
Balkong:
- Tilstand på rekkverk og overflatematerialer. Overflatematerialer på balkongen viser tegn til slitasje.
Følgende har fått TGIU:
Våtrom:
- Kontroll i tilliggende konstruksjon ikke utført. På grunn av plassering av det som vurderes å væ re en sjakt (brannskiller) og våtrommets utforming er det ikke praktisk mulig å gjennomføre fuktmåling/hulltaking i et område der det erfaringsmessig forekommer skader. Det ble derimot gjennomført et overflatesøk med fuktindikator, uten at det ble påvist indikasjoner som tyder på fuktskader.
Tekniske anlegg:
- Innvendig stakeluke. Innvendig stakeluke er ikke påvist inne i boenheten.
Loft:
- Det vurderes at boligens uinnredede loft er bygget uten tiltenkt tilkomstmulighet, en løsning som er vanlig på mange nyere boliger.
Yttertak:
- På bakgrunn av at ventilasjonen av takkonstruksjonen ikke kan kartlegges og undersøkes fra innsiden, foreligger det en usikkerhet om hvordan/om denne funksjonen er ivaretatt.
Se supplerende tekst i tilstandsrapporten. Kjøper overtar ansvar og risiko for dette.
Tilstandsrapporten er inntatt i salgsoppgaven. Rapporten inneholder informasjon om avvikene og konsekvensen av disse. For avvik som er gitt TG3 har den bygningssakkyndige i tillegg gitt et anslag på hva det vil koste å utbedre disse avvikene. Ettersom kjøper regnes å være kjent med forhold som tydelig fremgår av tilstandsrapporten, oppfordres du til å sette deg grundig inn i rapporten i sin helhet.
Selger opplyser videre:
- Det har vært en liten lekkasje fra regndusj-rør. Selger informerer om at det er utbedret.
- Periodisk kontroll av varmepumpe i 2023, 2024 og 2025. Da har det blitt gjort innvendig og utvendig vask av varmepumpe. Arbeidene er utført av Evendo Teknikk AS.
- Foretatt ventilajsonsrens og filterbytte i desember 2025. Arbeidene er utført av TryggVent.
- Små tegn til sprekker i skille mellom tak og vegg. Noe sprekker i vinduskarm soverom og kjøkken grunnet tidligere kondens men vi har kun opplevd det første vinteren og ikke slitt med det siden.
- Byggene skal males utvendig. Her diskuteres det flere muligheter hvor ett av dem kan føre til økning i felleskostnader / fellesgjeld.
- Det kan dryppe av og til i fra vasken på kjøkkenet.
Standard
Tiltalende og moderne 2-roms eierleilighet i andre etasje fra 2020 med gjennomgående god standard. Meget god og arealeffektiv planløsning som utnytter plassen godt, videre har boligen mange gode løsninger. Åpen kjøkkenløsning mot stuen gjennomført på en god måte og god plass til spisebord mellom rommene. Leiligheten har lyse og tidsriktige farger, samt store vindusflater i stuen som slipper inn rikelig med naturlig lys og bidrar til en god romfølelse. Fra stuen er det direkte utgang til balkong, som blir en naturlig forlengelse av stuen på sommertid.
Kjøkken:
Moderne kjøkken i åpen løsning mot stuen gjennomført på en god måte med plass til kjøkkenbord mellom rommene. Glatte fronter og benkeplate med laminert overflate med nedfelt kjøkkenvask med armatur. Stikkontakt og belysning over kjøkkenbenk. Integrert stekeovn, platetopp, oppvaskmaskin og kjøleskap med fryser. Ventilator i overskap. Komfyrvakt og waterguard. Det er kun de hvitevarene som er listet opp som følger med. Disse hvitevarene følger med: Oppvaskmaskin og stekeovn.
Det gjøres oppmerksom på at hvitevarene er kjøpt for noen år tilbake, og kjøper må forvente slitasje som følge alder og normal bruk.
Bad:
Delikat bad med flislagt gulv med gulvvarme og flislagte vegger, samt malte flater i himling. Vegghengt servantinnredning og ovenpåliggende servant med armatur. Speil med sidelys og stikkontakt over servant. Dusjhjørne med dører og vegghengt dusjarmatur (hånddusj og regndusj). Vegghengt toalett. Mekanisk avtrekk med ventil i vegg. Opplegg for vaskemaskin.
Løsøre og tilbehør
Vi viser til liste fra Norges Eiendomsmeglerforbund som gjelder fra 01.01.2020 angående løsøre og tilbehør.
Oppvarming
Leiligheten varmes opp med varmepumpe og gulvvarme på bad og i entré.
Dersom beboelsesrom ikke har vegg- eller fastmonterte varmekilder ved visning, følger dette heller ikke med.
Ferdigattest/brukstillatelse
Det foreligger ferdigattest på 3 leilighetsbygg samt tilhørende garasjeanlegg/utearealer, datert 14.11.2023. Denne kan fås ved henvendelse til megler.
Tinglyste heftelser og rettigheter
Leiligheten overdras fri for pengeheftelser.
Sameiet har legalpant for krav mot sameieren som følger av sameieforholdet iht. eierseksjonsloven § 31. Pantet er begrenset oppad til 2G, (G = folketrygdens grunnbeløp).
I tillegg har sameiet tinglyst panterett som nevnt over.
Det er tinglyst 2 servitutter på sameiets eiendom fra 1947 og 1949. Disse omhandler blant annet at det er gjerdeplikt omkring eiendommen.
Dagboknr 252, tinglyst 31.01.1951, type heftelse: Bestemmelse om veg. Vegvesenets betingelser vedtatt.
Dagboknr 253, tinglyst 31.01.1951, type heftelse: Bestemmelse om vannledning.
Det er gitt tillatelse av vegvesenet til å legge vannledning gjennom riksveg. Eieren er ansvarlig for skade som ved anlegget måtte påføres vegområdet eller tredjemann. Eieren er forpliktet til på egen kostnad å foreta de endringer med anlegget evt. fjerne det som vegvesenet seinere måtte finne nødvendig.
Dagboknr 8892, tinglyst 05.10.1990, type heftelse: Bestemmelse om veg.
Det er gitt vegrett over eiendommen til gnr. 92, bnr 167,232 og 591.
Dagboknr 6341, tinglyst 26.08.1992, type heftelse: Erklæring/avtale. Bestemmelse om vann/kloakkledning.
Eidsvoll kommune er gitt rett til anleggelse av kloakkledning med tilhørende kummer over eiendommen, samt uhindret adgang til når som helst å foreta nødvendig graving, reparasjon og ettersyn av ledningen(ene). Erstatning for skader og ulemper anlegget måtte føre med seg, skal søkes ordnet i minnelighet mellom grunneier og kommunen. Eier er pliktig til å ta hensyn til ledningene ved bebyggelse og disponering av grunnen.
Dagboknr 7053, tinglyst 21.09.1992, type heftelse: Bestemmelse om veg samt best om vedlikehold.
Eierne av gnr. 92 bnr 227, 231 er gitt veirett over eiendommen. Kostnadene med vedlikeholdet av veien dekkes forholdsmessig etter bruken for eiendommene gnr. 92 bnr 167, 161, 227 og 231.
Dagboknr 1169480, tinglyst 04.10.2019, type heftelse: Bestemmelse om nettstasjon.
Hafslund nett as er gitt evigvarende rett til plassering av nettstasjon på eiendommen, og har rett til nødvendig fremkomst over eiendommen for utøvelse av vedlikehold. Grunneier har ikke rett til oppføring av noen form for bebyggelse, beplantning eller oppfylling av masse som kan være til skade eller til hinder for drift og vedlikehold av nettstasjonen med tilhørende kabelanlegg. Grunneier må innhente skriftlig tillatelse av Netteier for å iverksette byggetiltak nærmere nettstasjonen enn 5 meter. Dette for at nødvendige forskriftsmessige tiltak kan iverksettes før bygging påbegynnes. Det tillates derimot ikke byggetiltak nærmere nettstasjonen enn 1,5 meter.
Servituttene vil følge eiendommen. Kjøpers bank vil få prioritet etter ovennevnte heftelser og servitutter.
Eventuell adgang til utleie
Leiligheten kan leies ut såfremt leiligheten har forsvarlige radonverdier. Leietaker må følge sameiets vedtekter og ordensregler på lik linje som eier.
Diverse
Tilbud av produkter og tjenester fra våre samarbeidspartnere
VI er opptatt av verdiskapning, og har knyttet til oss samarbeidspartnere som skal sikre våre kunder de beste produkter og tjenester;
• Gjensidige leverer boligselgerforsikring og tilbyr bygningsforsikring
• Boligkjøperforsikring levers av Hiscox og med Sedgwick som skadebehandler, og er formidlet gjennom Gjensidige.
• BN bank tilbyr finansieringsløsninger
• Vår avdeling Krogsveen Pluss tilbyr flyttetjenester som utvask, visningsvask, lager, tømming og transport av flyttelass, i tillegg til å formidle kontakt med Flip for overflateoppussing.
• I forbindelse med overtagelse av eiendommen tilbyr Overo avtale om strøm, alarm og bredbånd.
• Krogsveen er, sammen med øvrige bransjeaktører, medeier i den digitale annonseringsplattformen Hjem.
Beliggenhet og tomteforhold
Beliggenhet og tomteforhold
Beliggenhet
Eiendommen ligger på Dal i Eidsvoll kommune; et barnevennlig og trivelig område med kort vei til mye og alt du trenger i hverdagen. Leiligheten har en god beliggenhet på feltet med grøntområde/lekeplass på framsiden. Fra boligen er det gangavstand til Dal barneskole og barnehager (Læringsverkstedet Bjørnsrud skog og Læringsversktedet Dal), offentlig kommunikasjon med gode forbindelser (tog og buss), Kiwi og Letohallen med treningssenter og padelbane.
Kollektiv transport
Området gir mulighet for offentlig kommunikasjon via buss og tog som forenkler et aktivt liv uten bil. Kort vei til Dal og Eidsvoll verk-togstasjon, noe som gir gode pendlermuligheter inn mot Oslo og Gardermoen. Fra Eidsvoll Verk stasjon tar det kun ca. 30 min. til Oslo S og ca. 5 min. til Gardermoen. For mer informasjon besøk: www.ruter.no
Rekreasjonsområder
Området har kort vei til lekeplass, fotballbane, skiløyper, golfbane, idrettshall, svømmehall, ridesenter, treningssenter, kino og bibliotek og mer. Eiendommen har også nærhet til flotte tur- og friluftsområder som gir gode rekreasjonsmuligheter både sommer og vinter. I vest har Hurdalssjøen flere badeplasser, samt egen småbåthavn med båtslipp, noe som fører til et yrende båt- og badeliv om sommeren. Kort vei til Mistberget som ligger 663 moh., er den nest høyeste toppen i Eidsvoll kommune. Mistberget er synlig fra de fleste steder på Romerike.
Råholt
Dagligvarehandelen gjøres på Kiwi som er i gangavstand fra leiligheten. Ønsker du ytterligere servicetilbud har Råholt et variert utvalg med blant annet flere dagligvarebutikker, post, bank, apotek, mote, interiør, blomster, frisør, kafé/restaurant, lege og tannlege mm. Råholt kjøpesenter åpnet dørene våren 2014 og har ca. 45 butikker. Videre er det kort vei til Jessheim med alt av bymessige fasiliteter.
Nyere svømmehall på Råholt med 25 m. basseng med 6 baner, terapibasseng, stupetårn med høyde 5 meter, vannsklie med tidtakning, kaldkulp, plaskebasseng for barn, boblebad, badstue og steambad. Morgen- og kveldsåpent.
Avstander med bil
Råholt ca. 5 min.
Jessheim ca. 15 min.
Oslo Lufthavn ca. 15 min.
Oslo ca. 35-40 min.
Kollektiv transport:
ca. 15 minutter gange til Dal Stasjon
Adkomst
Det vil bli skiltet med Krogsveen visningsskilt ved fellesvisninger.
Barnehager, skoler og fritid
Dersom skole- og barnehagetilbud er av betydning for kjøpet, ber vi om at det rettes en særskilt henvendelse til kommunen for oppdatert informasjon.
Beskrivelse av tomt
Eiertomt på 12 895 kvm som tilhører sameiet. Tomten er fellesareal. Felles tomt opparbeidet med blant annet asfalterte veier, diverse støttemurer, lekeplass, blomster kasser, biloppstillingsplass, sittegrupper, plen arealer og andre forskjellige beplantninger.
Parkering
Leiligheten disponerer en parkeringsplass med elbil-lader i sameiets felles garasjeanlegg.
Vei, vann og avløp
Eiendommen har adkomst via kommunal vei.
Eiendommen er tilknyttet kommunalt ledningsnett via private stikkledninger. Sameiet er ansvarlig for private stikkledninger til bygningen.
Regulerings-og arealplaner
Eiendommen er regulert til Bolibebyggelse-blokkbebyggelse, i henhold til reguleringsplan "Del av Mo gård, gbnr 92/161" datert 10.04.2018.
Utsnitt av plan med tilhørende bestemmelser kan fås ved henvendelse til megler.
Økonomi
Økonomi
Boligens kostnader
Kommunale avgifter er kr 15 693,- for inneværende år. I dette inngår gebyr for vann, avløp og renovasjon. Det tas forbehold om at kommunen kan justere gebyrene i løpet av året.
Eiendomsskatten utgjør kr. 2 670 pr år.
Fellesutgiftene er kr 1 799,- pr. mnd. og inkluderer: Forretningsførsel, vaktmestertjenester, bygningsforsikring, drift- og vedlikehold, fellesanlegg, TV/Internett og andre driftskostnader.
Fellesutgiftene justeres normalt en til to ganger årlig i forhold til sameiets faktiske utgifter.
Nåværende eier har et strømforbruk som tilsvarer ca. kr 7 500,- pr. år. / 7 850 kwh. pr. år.
Boligen er tilknyttet Altibox som leverandør av kabel-tv og er inkludert i felleskostnader. Tv-tuner/dekoder medfølger.
Boligen er tilknyttet alarmselskap. Abonnement medfølger ikke.
Utgiftene er basert på nåværende eiers forbruk. Kjøper må selv tegne innboforsikring.
Formuesverdi
Formuesverdi for 2024 var kr 678 037,- ifølge Skatteetaten. Beløpet forutsetter at eier bor fast i boligen (primærbolig).
Ved eventuell øvrig bruk av eiendommen (f.eks. fritidsbolig, pendlerbolig, utleieobjekt) var formuesverdien for 2023 kr 2 712 148,-.
Fra 2026 har Stortinget vedtatt en oppdatert modell for beregning av formuesverdi for primærbolig, så avvik kan forekomme.
For mer informasjon se skatteetaten.no
Omkostninger
2 790 000,00 Prisantydning
Omkostninger
69 750,00 Dokumentavgift til staten (2,5% av kjøpesum)
9 950,00 Gjensidige Boligkjøperpakke (valgfri)* (valgfritt)
545,00 Tinglysing panterettsdokument
545,00 Tinglysing skjøte
--------------------------------------------------------
70 840,00 (Omkostninger totalt (uten Gjensidige Boligkjøperpakke (valgfri)))
80 790,00 Omkostninger totalt (med Gjensidige Boligkjøperpakke (valgfri)))
--------------------------------------------------------
141 680,00 Totalpris inkl. omkostninger (uten Gjensidige Boligkjøperpakke (valgfri))
151 630,00 Totalpris inkl. omkostninger (med Gjensidige Boligkjøperpakke (valgfri))
--------------------------------------------------------
Totalpris inkl. omkostninger forutsetter kjøp til prisantydning.
Det tas forbehold om endringer i avgifter og gebyrer.
Tilbud om lånefinansiering
Megler formidler gjerne kontakt med rådgiver hos vår samarbeidspartner BN Bank. De har konkurransedyktige betingelser samt rask og løsningsorientert behandling av din lånesøknad. Krogsveen mottar et honorar dersom lån opprettes.
Betalingsbetingelser
Kjøpesum inkludert omkostninger, samt pantedokument tilknyttet eventuelt lån, skal være disponibelt hos megler 2 virkedager før overtagelsen.
Annen viktig informasjon
Annen viktig informasjon
Eier
Ida Marie Houmsmoen og Thomas Louthander Haug
Informasjon om sameiet
Eiendommen er seksjonert, og leiligheten er tilknyttet Sameiet Hjeratunet, med sameiebrøk 48/4956.
Sameiet består av 88 boligseksjoner.
Forretningsfører er Solibo AS.
Dugnad må påregnes.
Dyrehold er tillatt så lenge det ikke er til sjenanse for øvrige beboere.
Foretatt påkostninger de senere år: Generelt vedlikehold
Planlagte påkostninger: Det er planlagt maling av byggetrinnene. Trinn 1 og 2 skal males i løpet av 2026, og trinn 3og 4 skal males i løpet av 2027. Arbeidet skal utføres på dugnad av beboerne.
Fra vedtekter:
Den enkelte seksjonseieren skal betale et akontobeløp som fastsettes av seksjonseierne på årsmøtet, eller av styret, for å dekke sin andel av felleskostnadene. Akontobeløpet kan også dekke avsetning av midler til fremtidig vedlikehold, påkostninger eller andre fellestiltak på eiendommen dersom årsmøtet har vedtatt slik avsetning. Endring av akontobeløp kan tidligst tre i kraft etter en måneds varsel.
Fra ordensregler:
Beboerne skal sørge for:
- Ytre bygningsmessige endringer, som for eksempel oppsett av platting, levegg, bod etc. krever skriftlig søknad til styret. Det gjelder også ved ønske om montering av varmepumpe. Dersom en borettshaver foretar endringer som nevnt ovenfor uten styrets godkjenning, kan styret fatte vedtak om riving. Godkjente søknader av alle typer skal iverksettes senest 2 mnd. etter godkjenning fra styret og gjennomføres innen rimelig tid fra oppstart. Hvis dette ikke overholdes, må det søkes styret på nytt for tillatelse.
- Det er retningslinjer for styrets vurdering av søknaden for montering av varmepumpe som ny eier må sette seg inn i. Styret vil foreta en individuell vurdering av hver enkelt søknad. Installasjonen skal kun foretas av kvalifisert personell med nødvendig opplæring innen installasjon og service på produktet som leveres.
Vi gjør videre oppmerksom på at det iht. eierseksjonsloven ikke er anledning å erverve mer enn 2 seksjoner i sameiet, her teller også eierskap via. firma, nærstående og familie. Kjøper har risikoen for at overskjøting på denne bakgrunn kan nektes av Statens Kartverk. I så fall vil kjøper uansett være forpliktet til å gjennomføre handelen, og oppgjør til selger vil finne sted tross manglende overskjøting. Konferer med megler for mer informasjon.
Dokumenter for sameiet og kopi av seksjonsbegjæringen kan fås ved henvendelse til megler.
Overtakelse
Etter nærmere avtale.
Boligselgerforsikring
Selger har i forbindelse med salget tegnet boligselgerforsikring levert av Gjensidige.
Boligselgerforsikringen dekker selgers ansvar etter avhendingsloven begrenset oppad til kr 14 millioner. Dersom kjøper oppdager forhold ved eiendommen som hen mener utgjør en mangel ved eiendommen, vil Gjensidige behandle reklamasjonen på vegne av selger. Forsikringsvilkår kan fås ved henvendelse til megler.
Vedlagt salgsoppgaven følger selgers egenerklæringsskjema og tilstandsrapport. Interessenter må sette seg inn i dokumentene før bud inngis.
Boligkjøperforsikring
Innen kontraktsmøtet må kjøper ta stilling til om det ønskes å bestille Boligkjøperpakken gjennom Gjensidige. I denne gunstige pakken er boligen ferdig forsikret og inkluderer rettshjelpsforsikring, også kalt Boligkjøperforsikring. Rettshjelpsforsikring gir trygghet og tilgang på profesjonell juridisk hjelp dersom det oppdages uventede feil eller mangler det første året etter overtagelse. Forsikringsselskapet behandler i så fall ethvert mangelskrav kjøper måtte ha overfor selger.
Boligkjøperpakken inkluderer bygningsforsikring for hus og hytte, innboforsikring, flytteforsikring og dobbel rentedekning - i situasjoner hvor kjøper ikke får solgt nåværende primærbolig.
Kjøper mottar ingen særskilt faktura for Boligkjøperpakken da kostnaden det første året legges til kjøpesummen for boligen. Det gjøres oppmerksom på Krogsveen mottar et honorar for denne formidlingen.
Produktark for Boligkjøperpakken ligger vedlagt i salgsoppgaven.
Dersom ikke boligkjøperpakke ønskes kan kun rettshjelpsforsikring, også kalt boligkjøperforsikring, tegnes særskilt via megler. Rettshjelpsforsikringen varer i 5 år fra overtagelse og leveres gjennom Gjensidige. Ta kontakt med megler for ytterligere informasjon.
Selskap og privatpersoner som driver med kjøp/salg/utvikling som ledd i egen næringsvirksomhet kan ikke tegne boligkjøperpakke eller rettshjelpsforsikring.
Budgivning
Forbrukerinformasjon om budgivning er vedlagt denne salgsoppgaven og er også på vår hjemmeside Krogsveen.no. Alle bud og budforhøyelser må inngis skriftlig. I tillegg må legitimasjon være fremlagt sammen med signatur fra budgiver.
Vi oppfordrer til å gi bud elektronisk via GI BUD-knappen på eiendommens hjemmeside på Krogsveen.no. Da vil samtlige vilkår bli oppfylt.
Eventuelle forhøyelser eller endringer av budet kan bekreftes pr SMS eller på e-post. Vi oppfordrer alltid til å kontakte megler pr. telefon i tillegg da forsinkelser i SMS og e-post kan forekomme.
For at budene skal kunne bli behandlet og videreformidlet skriftlig til alle involverte parter, må alle bud ha en tilstrekkelig lang akseptfrist, jf. eiendomsmeglingsforskriften § 6-3.
Selger må også skriftlig akseptere budet før aksept kan formidles til budgiver. Akseptfrist bør derfor være på minimum 30 minutter, og budforhøyelser må derfor skje i god tid før fristens utløp.
Bud i forbrukerforhold kan uansett ikke settes med kortere frist enn kl. 12.00 første virkedag etter siste annonserte visning. I tillegg kan ikke budet ha forbehold om at det skal holdes hemmelig ovenfor øvrige interessenter. Megler har iht lov om eiendomsmegling ikke anledning til å videreformidle disse budene, og de vil dermed heller ikke bli journalført.
Etter at eiendommen er solgt vil kjøper og selger få tilsendt budjournal. Øvrige budgivere kan få utlevert kopi av budjournalen i anonymisert form.
Hvitvaskingsreglene
I henhold til lov om hvitvasking og terrorfinansiering har megler plikt til å gjennomføre kontrolltiltak overfor kunder, herunder fullmektiger. Dette innebærer bl.a. å bekrefte kunders og reelle rettighetshaveres identitet på bakgrunn av fremvist gyldig legitimasjon eller på annen godkjent måte, samt å innhente opplysninger om kundeforholdets formål og tilsiktede art.
Dersom slike kundetiltak ikke kan gjennomføres, kan megler ikke etablere kundeforholdet eller utføre transaksjonen.
Hvis kjøper ikke bidrar til gjennomføring av kundekontrollen og dette fører til at transaksjonen blir forsinket eller ikke kan gjennomføres, vil dette ansees som mislighold av avtalen og gi selger rettigheter etter avhendingslova kapittel 5. I tilfeller der selger ikke bidrar til gjennomføring av løpende kundekontroll underveis i oppdraget, er det selger som misligholder sine forpliktelser etter avtalen og gi kjøper rettigheter etter avhendingslovens kapittel 4. Partene er selv ansvarlige for eventuelle kostnader og ansvar dette kan medføre. Eiendomsmegleren eller eiendomsmeglingsforetaket kan ikke holdes ansvarlig for de konsekvenser dette vil kunne få for partene eller andre som har interesser i eiendomshandelen.
Kjøper oppfordres til å innbetale kjøpesummen som ikke kommer fra låneinstitusjon i én samlet innbetaling fra egen konto i norsk bank. Megler har plikt til å melde fra til Økokrim om eiendomshandler som fremstår som mistenkelige. Melding sendes Økokrim uten at partene varsles.
Personopplysningsloven
I henhold til personopplysningsloven gjør vi oppmerksom på at interessenter kan bli registrert for videre oppfølging.
Lovanvendelse
Generelle bestemmelser
Salgsoppgaven er basert på de opplysningene selger har gitt til megler, den bygningssakyndiges tilstandsrapport, samt opplysninger innhentet fra kommunen, Kartverket og andre tilgjengelige kilder. Det er viktig at kjøper setter seg grundig inn i alle salgsdokumentene, herunder salgsoppgave, tilstandsrapport og selgers egenerklæring. Kjøper anses kjent med forhold som er tydelig beskrevet i salgsdokumentene, og slike forhold kan ikke påberopes som mangler. Dette gjelder uavhengig av om kjøper har lest dokumentene. Alle interessenter oppfordres til å undersøke eiendommen nøye, gjerne sammen med fagkyndig før bud inngis. Kjøper som velger å kjøpe usett kan ikke gjøre gjeldende som mangel noe han burde blitt kjent med ved undersøkelsen.
Dersom det er behov for avklaringer, anbefaler vi at interessenter rådfører seg med eiendomsmegler eller egne rådgivere før det legges inn bud.
En bolig som har blitt brukt i en viss tid, har vanligvis blitt utsatt for slitasje og skader kan ha oppstått. Slik bruksslitasje må kjøper regne med, og det kan avdekkes enkelte forhold etter overtakelse som nødvendiggjør utbedringer. Normal slitasje og skader som nødvendiggjør utbedring, er innenfor hva kjøper må forvente og vil ikke utgjøre en mangel.
Kjøper og selgers rettigheter og plikter reguleres av avtalen mellom partene, samt informasjonen som har vært tilgjengelig for kjøperen i forbindelse med handelen. Avtalen utfylles av avhendingsloven, og det gjelder ulike avtalevilkår avhengig av om kjøper er forbrukerkjøper eller ikke. Dette er nærmere beskrevet nedenfor.
På grunn av ulike avtalevilkår kan selger vurdere bud fra en som ikke er forbruker, ulikt fra en forbrukers bud. Dersom kjøper ikke er forbruker, er selger sitt mulige mangelsansvar begrenset fordi eiendommen selges "som den er". Selger kan ikke ta «som den er»- forbehold overfor en forbrukerkjøper. Selv et lavere bud fra en som ikke er forbruker kan foretrekkes fordi begrensningen i mulig mangelsansvar kan ha egenverdi for selger. Selger står fritt til å forkaste eller akseptere ethvert bud, og er for eksempel ikke forpliktet til å akseptere høyeste bud.
Budgiver skal i budskjema avgi egenerklæring om budgiver er forbruker eller næringsdrivende/ person som hovedsakelig handler som ledd i næringsvirksomhet. Budgivere får informasjon dersom andre bud er inngitt av en som ikke er forbruker.
Forbrukerkjøp - definisjon
Med forbrukerkjøp menes kjøp av eiendom når kjøperen er en fysisk person som ikke hovedsakelig handler som ledd i næringsvirksomhet.
Forbruker – avtalevilkår
Eiendommen har en mangel dersom den ikke er i samsvar med kravene som følger av avtalen, eller det foreligger brudd på bestemmelsene i avhendingsloven §§ 3-2 til 3-8. Hvis eiendommen ikke er i samsvar med det kjøperen må kunne forvente ut ifra alder, type og synlig tilstand, kan det være grunnlag for mangelskrav. Det samme gjelder hvis det er holdt tilbake eller gitt uriktige opplysninger om eiendommen. Dette gjelder likevel bare dersom man kan gå ut ifra at det virket inn på avtalen at opplysningen ikke ble gitt eller at mangelskravet ikke blir rettet i tide på en tydelig måte.
Boligen kan ha en mangel etter avhendingsloven § 3-3 andre ledd, dersom det er avvik mellom opplyst og faktisk innvendig areal, forutsatt at avviket er på 2% eller mer og minimum 1 kvm.
Ved beregning av et eventuelt prisavslag eller erstatning må kjøper selv dekke tap/kostnader opptil et beløp på kr 10 000 (egenandel).
Ikke-forbruker (næringsdrivende) – definisjon
Hvis kjøper er en juridisk person, eller en fysisk person som hovedsakelig handler som ledd i næringsvirksomhet, vil kjøpet ikke anses som et forbrukerkjøp.
Ikke-forbruker – avtalevilkår
Eiendommen har en mangel dersom den ikke er i samsvar med kravene som følger av avtalen.
Eiendommen selges «som den er», og selgers ansvar utover det konkret avtalte er da begrenset etter avhendingsloven § 3-9, første ledd andre setning.
Avhendingsloven § 3-3 andre ledd fravikes, og hvorvidt boligens arealsvikt utgjør en mangel vurderes etter avhendingsloven § 3-8.
Informasjon om kjøpers undersøkelsesplikt, herunder oppfordringen om å undersøke eiendommen nøye, gjelder også for kjøpere som ikke anses som forbrukere.
Det forutsettes at hjemmel overføres til kjøper. Hvis kjøper ikke ønsker hjemmelsoverføring av eiendommen, må det tas forbehold om dette i budet.
Meglers vederlag
Meglers vederlag betales av selger og er avtalt til:
Fastpris: 30 101,-
Vederlag:
Kontroll av hjemmel og heftelser kr 2 900,00
Markedsføringspakke kr 27 400,00
Oppgjør kr 7 500,00
Tilrettelegging kr 15 000,00
Visninger pr stk. 2.500,- (2. stk. inkl.)
Utlegg:
Eierskiftegebyr forretningsfører kr 6 570,00
Innhenting av informasjon forretningsfører kr 5 250,00
Innhenting av offentlig opplysninger kr 4 994,00
Tinglysing sikring kr 545,00
Andre utgifter:
Foto kr 4 190,00
Opplysninger om oppdraget
Oppdragsnummer 63-0209/25
Eiendomsmegler Krogsveen AS, avd. Jessheim
Skovly Promenade 10, 2066, JESSHEIM
950 007 613
Oppdragets KR-kode KR63.25209
Dato
Sist oppdatert: 10. april 2026 kl. 12:41
Dokumenter
Dokumenter
PDF – 965 KB
PDF – 163 KB
PDF – 312 KB
PDF – 29 KB
PDF – 127 KB
PDF – 392 KB
Område
Legg til steder som er viktige for deg
Visning
Unngå doble boligrenter
Vi tilbyr gunstig forsikring.
Vurderer du utleie?
Få et tilbud fra Utleie KrogsveenHva koster lånet?
Sjekk estimert lånekostnadVil du varsles om lignende boliger?
Ved å lagre ditt boligsøk hos oss får du beskjed når vi har en bolig som ligner denne, før den legges ut på markedet!

