Branderudveien 103
5 750 000 kr
95 m²
3 soverom
Komplett salgsoppgave
Leirsund
Oppgradert enebolig på koselig tun | Landlig og barnevennlig på Leirsund | Ny fasade og vinduer fra 2024 | Garasje
Prisantydning
5 750 000 krOmkostninger
164 740 krTotalpris
5 914 740 kr
Pris
Bruksareal
143 m²BRA-I (internt bruksareal)
95 m²BRA-E (eksternt bruksareal)
48 m²TBA (terrasse-balkongareal)
47 m²
Areal
Byggeår
1912Soverom
3 soveromBad
1 badTomteareal
865 m² (eiet)Type
Enebolig - FrittliggendeEierform
EietFasiliteter
Garasje/P-plass og Balkong/TerrasseEnergimerke
Oransje F
Nøkkelinfo
Unngå doble boligrenter
Vi tilbyr gunstig forsikring.
Vurderer du utleie?
Få et tilbud fra Utleie KrogsveenHva koster lånet?
Sjekk estimert lånekostnadBeskrivelse
Kort om eiendommen
- Oppgradert i 2024 med ny kledning, isolasjon og nye vinduer.
- Ny, stor veranda/terrasse på 47 m² bygget i 2025.
- Energieffektiv varmepumpe fra 2022.
- Tre soverom i andre etasje.
- Gangavstand til Asak skole og barnehage.
- Garasje/uthus
Innhold og byggemåte
Innhold og byggemåte
Eiendommen
Branderudveien 103, 2015 LEIRSUND
Kommunenummer 3205, gårdsnummer 8, bruksnummer 23, ideell andel 1/1
Innhold
Totalt bruksareal BRA: 143 kvm
BRA-i:
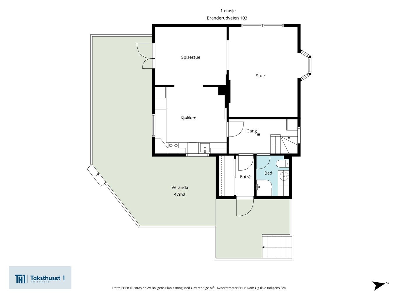
1. etasje 57 kvm: Entré, bad, gang, kjøkken, spisestue og stue.
2. etasje 38 kvm: Gang og tre soverom (soverom, soverom 2, soverom 3).
BRA-e:
Bod 7 kvm.
Garasje/Uthus 41 kvm.
Terrasse- og balkongareal (TBA):
1. etasje 47 kvm: Veranda.
I andre etasje er det 13 kvm med areal med lav himlingshøyde (ALH) som ikke er medregnet i bruksarealet. Gulvarealet (GUA) for etasjen er 51 kvm, mens det måleverdige bruksarealet (BRA-i) er 38 kvm.
Vedlagte plantegninger er ikke målbare. De oppgitte arealer er hentet fra rapport med befaringsdato 06.01.2026 utført av Taksthuset 1 AS v/Kenneth Andre Sørlie.
Byggemåte
Selger har fått utarbeidet en tilstandsrapport, dvs. en teknisk gjennomgang av boligen hvor eventuelle avvik, risiko for kjøper og prisoverslag for hva som bør gjøres av oppgradering, er skissert. Se særskilt TGIU (tilstandsgrad ikke undersøkt), samt TG2 og TG3 som viser hva som er boligens normale slitasje, alder og type, eller som bør/må utbedres. Rapporten og selgers egenerklæring er en del av salgsoppgaven og må leses nøye før bud inngis. Kjøper overtar ansvaret for de opplysninger som fremkommer av salgsdokumentasjonen, og kan ikke gjøre gjeldende som mangel noe som burde vært kjent eller som ikke kan anses å ha betydning for avtalen.
Bygningen er iht. tilstandsrapport en enebolig over to plan, opprinnelig oppført i 1912. Den er generelt oppført i trekonstruksjoner med bindingsverk i veggene og trebjelkelag som etasjeskillere. Fundamenteringen består av pilarer med betongdragere. I 2024 ble ytterveggene oppgradert ved å bli lektet ut, påforet med 10 cm isolasjon og fikk ny stående bordkledning. Takkonstruksjonen er en sperrekonstruksjon, og taket er tekket med betongtakstein fra 1991. Bygningen har malte trevinduer med 3-lags glass, samt malt hovedytterdør og balkongdør i tre, alt fra 2024.
Det er gitt TG2 for følgende:
Utvendig:
- Nedløp og beslag
Innvendig:
- Overflater
- Etasjeskille/gulv mot grunn
- Pipe og ildsted
- Innvendige trapper og dører
- Vannledninger
- Avløpsrør
- Varmtvannstank
- Grunnmur og fundamenter
- Utvendige vann- og avløpsledninger
Bad:
- Overflater vegger og himling
- Overflater Gulv Gå til side
- Sluk, membran og tettesjikt
- Sanitærutstyr og innredning
Kjøkken:
- Overflater og innredning
Ovennevnte er kun et utdrag fra rapporten. Se supplerende tekst i tilstandsrapporten for mer informasjon. Kjøper overtar ansvar og risiko for dette.
Standard
Eiendommen har gjennomgått flere oppgraderinger.
2024: Yttervegger lektet ut og påforet med 10 cm isolasjon, ny kledning, samt bytte av alle vinduer og dører.
2025: Ny veranda på ca. 47 m² med impregnert bjelkelag og terrassebord. Gulv i kjøkken, gang og yttergang fornyet, og vegger i stue/spisestue malt.
2024: Vegger i soverommene i 2. etasje malt.
2022: Laminatgulv i stue lagt og varmepumpe installert.
S t u e
Romslig og lun stue med god plass til sofa og spisegruppe.
Spisestuen ligger i praktisk tilknytning til kjøkkenet og har utgang til uteområdet.
I stuen ble det montert varmepumpe i 2022 som sørger for en jevn og god innetemperatur året rundt.
Det er i tillegg varmefolie i alle gulv i 1.etg.
Boligen har pipeløp uten etablert ildsted.
K j ø k k e n
Kjøkkenet har åpen løsning mot spisestuen.
Klassisk innredning med profilerte fronter, laminat benkeplate og frittstående hvitevarer som kjøl/fryseskap, komfyr, samt opplegg for oppvaskmaskin.
Kjøkkenventilator med avtrekk ut gir god ventilasjon.
B a d
Badet har flislagt gulv med varmekabler, baderomsplater på vegger og malt tak med downlights montert.
Innredning består av servantskap og opplegg til vaskemaskin i nisje under benkeplate.
Gulvstående toalett og dusjhjørne med innfellbare glassdører.
S o v e r o m
Boligen innehar 3 soverom der alle er plassert på samme plan i 2.etg.
Hovedsoverommet er romslig med god plass til dobbeltseng og tilhørende møblement.
Det tredje soverommet har en smart løsning med sovealkove og en egen kontor- eller lekesone.
Det medfølger ingen hvitevarer til handelen.
Oppvarming
Boligen varmes opp med elektrisitet og vedfyring. Det er en varmepumpe i stuen, installert i 2022. I tillegg er det varmefolie i gulv i 1. etasje og elektriske varmekabler på badet. Boligen har pipe.
Dersom beboelsesrom ikke har vegg- eller fastmonterte varmekilder ved visning følger dette heller ikke med.
Ferdigattest/brukstillatelse
Eiendommen har vært brukt til boligformål siden ca 1947.
Kommunen opplyser at det ikke foreligger ferdigattest eller midlertidig brukstillatelse for eiendommen fra den tiden.
- Det er utstedt ferdigattest for bruksendring fra tilleggsdel til hoveddel og endring av fasade datert 20.03.2025.
- Det foreligger byggetillatelse for oppførelse av uthus datert 21.08.1946, men det er ikke utstedt ferdigattest.
- Det foreligger ikke byggetillatelse eller ferdigattest for frittstående bod.
- Det foreligger ikke ferdigattest for terrasse/veranda.
Det foreligger byggetegninger for 2. etasje og uthus, men det mangler tegninger for 1. etasje i kommunens arkiv.
Uthuset som er tegnet som "Vedskjul & Grisehus" er i dag i bruk som garasje/uthus.
Det er i tillegg oppført en frittstående bod og en terrasse/veranda som ikke fremgår av de godkjente tegningene. Deler av terrassen er høyere enn 0,5 meter over bakken og er dermed søknadspliktig.
Konsekvens kan være at kommunen krever riving.
Kjøper overtar eiendommen slik den fremstår på visning med risiko og ansvaret for eventuelle pålegg fra kommunen og kostnader forbundet med dette.
Det gjøres oppmerksom på at det ikke lenger utstedes ferdigattest på tiltak det er søkt om før 1998 jf. plan- og bygningsloven § 21-10. Kommunen vil ikke kreve ferdigattest for disse tiltakene og vil avvise eventuelle søknader. Bestemmelsen innebærer ikke at tiltak med manglende søknad blir lovlige, men at man ikke trenger å avslutte gamle byggesaker. Normalt sett kreves ferdigattest for alle søknadspliktige tiltak som gjøres etter plan- og bygningsloven.
Tinglyste heftelser og rettigheter
Eiendommen overdras fri for pengeheftelser.
Det er ingen tinglyste servitutter på eiendommen.
Det er tinglyst følgende rettigheter:
Dagboknr 102463, tinglyst 23.08.1943, type heftelse: Rett til å grave vannkum nederst i Tranbærmyra og legge rørledning derfra til sin eiendom.
Dagboknr 104774, tinglyst 13.07.1983, type heftelse: Tinglyst veirett over gnr 8, bnr 6.
Rettighetene vil følge eiendommen. Kjøpers bank vil få prioritet etter ovennevnte heftelser og servitutter.
Eventuell adgang til utleie
Eiendommen har ikke separat utleieenhet. Det vil normalt være anledning til utleie av hele eiendommen eller enkeltrom, såfremt utleiearealet er bygningsmessig godkjent for varig opphold og har forsvarlige radonnivåer.
Beliggenhet og tomteforhold
Beliggenhet og tomteforhold
Beliggenhet
Velkommen til Branderudveien 103! Eiendommen ligger i et veletablert og rolig boligområde på Leirsund, preget av eneboliger og noe gårdsbebyggelse, og en umiddelbar nærhet til skog og mark. Her kan man nyte en fredelig atmosfære med god plass, samtidig som Lillestrøms byliv og servicefasiliteter kun er en kort kjøretur unna. Utsikten fra eiendommen over det omkringliggende landskapet, som vist på bildene, understreker den landlige, men likevel sentrale beliggenheten.
Hverdagslivet for en familie er spesielt godt tilrettelagt. Med kort gangavstand på kun noen minutter til Asak skole, som dekker 1. til 10. trinn, og Asak kommunale barnehage, blir logistikken med henting og bringing svært enkel. Dagligvarehandelen kan gjøres hos Kiwi eller Rema 1000, begge innen en kort kjøretur. For et bredere utvalg av butikker og tjenester er Skedsmo senter og Lillestrøm Torv lett tilgjengelige.
Fritiden byr på rike muligheter for aktivitet og naturopplevelser. Rett i nærheten finner man turstier i Asakmarka og langs Leira, perfekt for turer til fots eller på ski. Leirsund Idrettslag fungerer som et sosialt samlingspunkt og tilbyr et variert aktivitetstilbud for alle aldre, fra fotball til allidrett. Lokalsamfunnet styrkes ytterligere gjennom arrangementer som Leirsund-dagen, som skaper et godt og inkluderende nabolag.
Beliggenheten er også praktisk for pendlere. Leirsund stasjon er kun en kort kjøretur unna, og herfra tar toget deg til Oslo S på under en halvtime. For de som reiser med fly, er det kun en kjøretur på rundt 20 minutter til Oslo lufthavn Gardermoen. Området kombinerer dermed landlig ro med effektiv tilgang til både hovedstaden og resten av verden.
Barnehager, skoler og fritid
Asak skole (1-10 kl.)
Lillestrøm videregående skole
Skedsmo videregående skole
Asak Kommunal barnehage (1-5 år)
Frogner aktivitetsbarnehage (0-5 år)
Frogner barnehage (1-5 år)
Informasjon om tilhørende skolekretser er hentet fra Prognosesenteret som dataleverandør, og tilhørigheten kan årlig endres av kommunen. Dersom skole- og barnehagetilbud er av betydning for kjøpet, ber vi om at det rettes en særskilt henvendelse til kommunen for oppdatert informasjon.
Beskrivelse av tomt
Eiertomt på 865 kvm. Det gjøres oppmerksom på at deler av hagen og utearealet, samt uthus og deler av hekk er oppført utenfor eiendommens tomtegrense.
Parkering
Parkering i carport og på egen gårdsplass.
Vei, vann og avløp
Eiendommen har adkomst via privat vei med felles vedlikeholdsansvar.
Adkomst til eiendommen går over gnr. 8, bnr 6.
Gnr 8, bnr 6 tilhører grunneier i området og er benyttet av Branderudveien 103 siden år 2000 uten innvendinger fra grunneier.
Det antas at dette tidligere var beitemark til gården.
Eiendommen er tilknyttet kommunalt ledningsnett via private stikkledninger. Eier er selv ansvarlig for private stikkledninger til boligen.
Regulerings-og arealplaner
Eiendommen er regulert til frittliggende småhus i henhold til reguleringsplan for Veslefjellet -Asak området gnr 8, bnr 6 m.fl. med tilhørende reguleringsbestemmelser.
Eiendommen ligger innenfor gul og litt av rød støysone fra Branderudveien.
Eiendommen ligger i et område der grunnen er under marine grense, og har stor mulighet for marin leire. Eiendommen ligger i et aktsomhetsområde for kvikkleireskred.
Utsnitt av plan med tilhørende bestemmelser kan fås ved henvendelse til megler.
Uthuset og hekken bak garasjen står midt i tomtegrensen og tilhører naboeiendommen.
Økonomi
Økonomi
Kommunale utgifter
Kommunale avgifter er kr xxx,- for inneværende år. I dette inngår gebyr for vann, avløp, renovasjon og feiing/tilsyn.
Nåværende eier har et strømforbruk som tilsvarer ca. kr 0,- pr. år. / 0 kwh. pr. år.
I selgers husstand har det bodd XX mennesker og det opplyses om at strømforbruket har vært ca XX kwh pr år.
Boligen har en årlig forsikringspremie på kr XXX.
Velavgift er kr XXX pr. år.
Boligen er tilknyttet ... som leverandør av kabel-tv og har avgift på kr XXX pr. mnd. Tv-tuner/dekoder medfølger ikke.
Boligen er tilknyttet ... alarmselskap som koster kr XXX pr. år. (AVKLAR OM ALARM KAN MEDFØLGE ELLER IKKE)
(OPPLYS OM ALLE KOSTNADER KJØPER SKAL OVERTA)
Utgiftene er basert på nåværende eiers forbruk og avtaler.
Formuesverdi
Formuesverdi for 2024 var kr 1 301 000,- ifølge skatteetaten. Beløpet forutsetter at eier bor fast i boligen (primærbolig).
Ved eventuell øvrig bruk av eiendommen (f.eks. fritidsbolig, pendlerbolig, utleieobjekt) var formuesverdien for 2023 kr 5 204 000,-.
Formuesverdien justeres normalt årlig. Se skatteetaten.no for mer informasjon om fastsettelse av formuesverdien.
Omkostninger
5 750 000,00 Prisantydning
Omkostninger
143 750,00 Dokumentavgift til staten (2,5% av kjøpesum)
19 900,00 Gjensidige Boligkjøperpakke (valgfri)
545,00 Tinglysing panterettsdokument
545,00 Tinglysing skjøte
--------------------------------------------------------
164 740,00 Omkostninger totalt
--------------------------------------------------------
5 914 740,00 Totalpris inkl. omkostninger
--------------------------------------------------------
Totalpris inkl. omkostninger forutsetter kjøp til prisantydning.
Det tas forbehold om endringer i avgifter og gebyrer.
Tilbud om lånefinansiering
Megler formidler gjerne kontakt med rådgiver hos Trøgstad Sparebank. De har konkurransedyktige betingelser samt rask og løsningsorientert behandling av din lånesøknad.
Betalingsbetingelser
Kjøpesum inkludert omkostninger, samt pantedokument tilknyttet eventuelt lån, skal være disponibelt hos megler 2 virkedager før overtagelsen.
Annen viktig informasjon
Annen viktig informasjon
Eier
Karoline Heggedal og Jonas Kristoffer Østby
Overtakelse
Etter nærmere avtale.
Boligselgerforsikring
Selger har i forbindelse med salget tegnet boligselgerforsikring levert av Gjensidige.
Boligselgerforsikringen dekker selgers ansvar etter avhendingsloven begrenset oppad til kr 14 millioner. Dersom kjøper oppdager forhold ved eiendommen som hen mener utgjør en mangel ved eiendommen, vil Gjensidige behandle reklamasjonen på vegne av selger. Forsikringsvilkår kan fås ved henvendelse til megler.
Vedlagt salgsoppgaven følger selgers egenerklæringsskjema og tilstandsrapport. Interessenter må sette seg inn i dokumentene før bud inngis.
Boligkjøperforsikring
Innen kontraktsmøtet må kjøper ta stilling til om det ønskes å bestille Boligkjøperpakken gjennom Gjensidige. I denne gunstige pakken er boligen ferdig forsikret og inkluderer rettshjelpsforsikring, også kalt Boligkjøperforsikring. Rettshjelpsforsikring gir trygghet og tilgang på profesjonell juridisk hjelp dersom det oppdages uventede feil eller mangler det første året etter overtagelse. Forsikringsselskapet behandler i så fall ethvert mangelskrav kjøper måtte ha overfor selger.
Boligkjøperpakken inkluderer bygningsforsikring for hus og hytte, innboforsikring, flytteforsikring og dobbel rentedekning - i situasjoner hvor kjøper ikke får solgt nåværende primærbolig.
Kjøper mottar ingen særskilt faktura for Boligkjøperpakken da kostnaden det første året legges til kjøpesummen for boligen. Det gjøres oppmerksom på Krogsveen mottar et honorar for denne formidlingen.
Produktark for Boligkjøperpakken ligger vedlagt i salgsoppgaven.
Dersom ikke boligkjøperpakke ønskes kan kun rettshjelpsforsikring, også kalt boligkjøperforsikring, tegnes særskilt via megler. Rettshjelpsforsikringen varer i 5 år fra overtagelse og leveres gjennom Gjensidige. Ta kontakt med megler for ytterligere informasjon.
Selskap og privatpersoner som driver med kjøp/salg/utvikling som ledd i egen næringsvirksomhet kan ikke tegne boligkjøperpakke eller rettshjelpsforsikring.
Budgivning
Forbrukerinformasjon om budgivning er vedlagt denne salgsoppgaven og er også på vår hjemmeside Krogsveen.no. Alle bud og budforhøyelser må inngis skriftlig. I tillegg må legitimasjon være fremlagt sammen med signatur fra budgiver.
Vi oppfordrer til å gi bud elektronisk via GI BUD-knappen på eiendommens hjemmeside på Krogsveen.no. Da vil samtlige vilkår bli oppfylt.
Eventuelle forhøyelser eller endringer av budet kan bekreftes pr SMS eller på e-post. Vi oppfordrer alltid til å kontakte megler pr. telefon i tillegg da forsinkelser i SMS og e-post kan forekomme.
For at budene skal kunne bli behandlet og videreformidlet skriftlig til alle involverte parter, må alle bud ha en tilstrekkelig lang akseptfrist, jf. eiendomsmeglingsforskriften § 6-3.
Selger må også skriftlig akseptere budet før aksept kan formidles til budgiver. Akseptfrist bør derfor være på minimum 30 minutter, og budforhøyelser må derfor skje i god tid før fristens utløp.
Bud i forbrukerforhold kan uansett ikke settes med kortere frist enn kl. 12.00 første virkedag etter siste annonserte visning. I tillegg kan ikke budet ha forbehold om at det skal holdes hemmelig ovenfor øvrige interessenter. Megler har iht lov om eiendomsmegling ikke anledning til å videreformidle disse budene, og de vil dermed heller ikke bli journalført.
Etter at eiendommen er solgt vil kjøper og selger få tilsendt budjournal. Øvrige budgivere kan få utlevert kopi av budjournalen i anonymisert form.
Hvitvaskingsreglene
I henhold til lov om hvitvasking og terrorfinansiering har megler plikt til å gjennomføre kontrolltiltak overfor kunder, herunder fullmektiger. Dette innebærer bl.a. å bekrefte kunders og reelle rettighetshaveres identitet på bakgrunn av fremvist gyldig legitimasjon eller på annen godkjent måte, samt å innhente opplysninger om kundeforholdets formål og tilsiktede art.
Dersom slike kundetiltak ikke kan gjennomføres, kan megler ikke etablere kundeforholdet eller utføre transaksjonen.
Hvis kjøper ikke bidrar til gjennomføring av kundekontrollen og dette fører til at transaksjonen blir forsinket eller ikke kan gjennomføres, vil dette ansees som mislighold av avtalen og gi selger rettigheter etter avhendingslova kapittel 5. I tilfeller der selger ikke bidrar til gjennomføring av løpende kundekontroll underveis i oppdraget, er det selger som misligholder sine forpliktelser etter avtalen og gi kjøper rettigheter etter avhendingslovens kapittel 4. Partene er selv ansvarlige for eventuelle kostnader og ansvar dette kan medføre. Eiendomsmegleren eller eiendomsmeglingsforetaket kan ikke holdes ansvarlig for de konsekvenser dette vil kunne få for partene eller andre som har interesser i eiendomshandelen.
Kjøper oppfordres til å innbetale kjøpesummen som ikke kommer fra låneinstitusjon i én samlet innbetaling fra egen konto i norsk bank. Megler har plikt til å melde fra til Økokrim om eiendomshandler som fremstår som mistenkelige. Melding sendes Økokrim uten at partene varsles.
Personopplysningsloven
I henhold til personopplysningsloven gjør vi oppmerksom på at interessenter kan bli registrert for videre oppfølging.
Lovanvendelse
Generelle bestemmelser
Salgsoppgaven er basert på de opplysningene selger har gitt til megler, den bygningssakyndiges tilstandsrapport, samt opplysninger innhentet fra kommunen, Kartverket og andre tilgjengelige kilder. Det er viktig at kjøper setter seg grundig inn i alle salgsdokumentene, herunder salgsoppgave, tilstandsrapport og selgers egenerklæring. Kjøper anses kjent med forhold som er tydelig beskrevet i salgsdokumentene, og slike forhold kan ikke påberopes som mangler. Dette gjelder uavhengig av om kjøper har lest dokumentene. Alle interessenter oppfordres til å undersøke eiendommen nøye, gjerne sammen med fagkyndig før bud inngis. Kjøper som velger å kjøpe usett kan ikke gjøre gjeldende som mangel noe han burde blitt kjent med ved undersøkelsen.
Dersom det er behov for avklaringer, anbefaler vi at interessenter rådfører seg med eiendomsmegler eller egne rådgivere før det legges inn bud.
En bolig som har blitt brukt i en viss tid, har vanligvis blitt utsatt for slitasje og skader kan ha oppstått. Slik bruksslitasje må kjøper regne med, og det kan avdekkes enkelte forhold etter overtakelse som nødvendiggjør utbedringer. Normal slitasje og skader som nødvendiggjør utbedring, er innenfor hva kjøper må forvente og vil ikke utgjøre en mangel.
Kjøper og selgers rettigheter og plikter reguleres av avtalen mellom partene, samt informasjonen som har vært tilgjengelig for kjøperen i forbindelse med handelen. Avtalen utfylles av avhendingsloven, og det gjelder ulike avtalevilkår avhengig av om kjøper er forbrukerkjøper eller ikke. Dette er nærmere beskrevet nedenfor.
På grunn av ulike avtalevilkår kan selger vurdere bud fra en som ikke er forbruker, ulikt fra en forbrukers bud. Dersom kjøper ikke er forbruker, er selger sitt mulige mangelsansvar begrenset fordi eiendommen selges "som den er". Selger kan ikke ta «som den er»- forbehold overfor en forbrukerkjøper. Selv et lavere bud fra en som ikke er forbruker kan foretrekkes fordi begrensningen i mulig mangelsansvar kan ha egenverdi for selger. Selger står fritt til å forkaste eller akseptere ethvert bud, og er for eksempel ikke forpliktet til å akseptere høyeste bud.
Budgiver skal i budskjema avgi egenerklæring om budgiver er forbruker eller næringsdrivende/ person som hovedsakelig handler som ledd i næringsvirksomhet. Budgivere får informasjon dersom andre bud er inngitt av en som ikke er forbruker.
Forbrukerkjøp - definisjon
Med forbrukerkjøp menes kjøp av eiendom når kjøperen er en fysisk person som ikke hovedsakelig handler som ledd i næringsvirksomhet.
Forbruker – avtalevilkår
Eiendommen har en mangel dersom den ikke er i samsvar med kravene som følger av avtalen, eller det foreligger brudd på bestemmelsene i avhendingsloven §§ 3-2 til 3-8. Hvis eiendommen ikke er i samsvar med det kjøperen må kunne forvente ut ifra alder, type og synlig tilstand, kan det være grunnlag for mangelskrav. Det samme gjelder hvis det er holdt tilbake eller gitt uriktige opplysninger om eiendommen. Dette gjelder likevel bare dersom man kan gå ut ifra at det virket inn på avtalen at opplysningen ikke ble gitt eller at mangelskravet ikke blir rettet i tide på en tydelig måte.
Boligen kan ha en mangel etter avhendingsloven § 3-3 andre ledd, dersom det er avvik mellom opplyst og faktisk innvendig areal, forutsatt at avviket er på 2% eller mer og minimum 1 kvm.
Ved beregning av et eventuelt prisavslag eller erstatning må kjøper selv dekke tap/kostnader opptil et beløp på kr 10 000 (egenandel).
Ikke-forbruker (næringsdrivende) – definisjon
Hvis kjøper er en juridisk person, eller en fysisk person som hovedsakelig handler som ledd i næringsvirksomhet, vil kjøpet ikke anses som et forbrukerkjøp.
Ikke-forbruker – avtalevilkår
Eiendommen har en mangel dersom den ikke er i samsvar med kravene som følger av avtalen.
Eiendommen selges «som den er», og selgers ansvar utover det konkret avtalte er da begrenset etter avhendingsloven § 3-9, første ledd andre setning.
Avhendingsloven § 3-3 andre ledd fravikes, og hvorvidt boligens arealsvikt utgjør en mangel vurderes etter avhendingsloven § 3-8.
Informasjon om kjøpers undersøkelsesplikt, herunder oppfordringen om å undersøke eiendommen nøye, gjelder også for kjøpere som ikke anses som forbrukere.
Det forutsettes at hjemmel overføres til kjøper. Hvis kjøper ikke ønsker hjemmelsoverføring av eiendommen, må det tas forbehold om dette i budet.
Meglers vederlag
Meglers vederlag betales av selger og er avtalt til:
Vederlag: 1,00 % av salgssummen inkl. eventuell fellesgjeld.
Vederlag:
Kontroll av hjemmel og heftelser kr 3 900,-
Markedsføringspakke kr 29 900,-
Oppgjør kr 8 900,-
Tilrettelegging kr 19 900,-
Visninger pr stk / Overtagelse kr 4 500,-
Utlegg:
Innhenting av offentlig opplysninger kr 5 135,-
Tinglysing sikring kr 545,-
Andre utgifter:
AX tilstandsrapport enebolig kr 20 625,-
Boligens visittkort kr 600,-
Foto kr 4 000,-
Valgfri Boligselgerforsikring Gjensidige Eiet - kr 32 832,50
Vi er opptatt av verdiskapning, og har knyttet til oss samarbeidspartnere som skal sikre våre kunder de beste produkter og tjenester;
• I forbindelse med forberedelse av salget, innhenter vi informasjon om eiendommen hovedsakelig fra vår samarbeidspartner Amibita.
• Gjensidige leverer boligselgerforsikring og tilbyr bygningsforsikring
• Boligkjøperforsikring leveres av Hiscox og med Sedgwick som skadebehandler, og er formidlet gjennom Gjensidige.
• BN bank tilbyr finansieringsløsninger
• Vår avdeling Krogsveen Pluss tilbyr flyttetjenester som utvask, visningsvask, lager, tømming og transport av flyttelass, i tillegg til å formidle kontakt med Flip for overflateoppussing.
• I forbindelse med overtagelse av eiendommen tilbyr Overo avtale om strøm, alarm og bredbånd.
• Krogsveen er, sammen med øvrige bransjeaktører, medeier i Bomega AS som tilbyr den digitale annonseringsplattformen Hjem.
Opplysninger om oppdraget
Oppdragsnummer 60-0001/26
Eiendomsmegler Krogsveen AS, avd. Lillestrøm
Adolph Tidemands gate 38, 2000, LILLESTRØM
950 007 613
Oppdragets KR-kode KR60.261
Dato
Sist oppdatert: 12. februar 2026 kl. 14:01
Dokumenter
Dokumenter
PDF – 1008 KB
PDF – 138 KB
PDF – 5 MB
PDF – 312 KB
PDF – 29 KB
PDF – 127 KB
PDF – 392 KB
Område
Legg til steder som er viktige for deg
Visning
Det er ingen planlagte visninger. Meld deg på for å avtale en tid som passer.
Lurer du på noe?
Unngå doble boligrenter
Vi tilbyr gunstig forsikring.
Vurderer du utleie?
Få et tilbud fra Utleie KrogsveenHva koster lånet?
Sjekk estimert lånekostnadVil du varsles om lignende boliger?
Ved å lagre ditt boligsøk hos oss får du beskjed når vi har en bolig som ligner denne, før den legges ut på markedet!




