Komplett salgsoppgave

Tassebekkveien 5A

3 090 000 kr
65 m²
3 soverom
Stue/kjøkken i åpen løsning
Stue/kjøkken i åpen løsning
Kart
Redesign på Hjem.no
Del
Eirik Varmo
Presenteres av
Eirik Varmo
Stokke
Romslig og sentralt beliggende selveierleilighet i 1.etg! 3 sov - innredet underetasje - garasje - stor solrik terrasse

Unngå doble boligrenter

Vi tilbyr gunstig forsikring.
Sjekk estimert lånekostnad

    Pris

  • Prisantydning
    3 090 000 kr
  • Andel fellesgjeld
    149 653 kr
  • Omkostninger
    96 610 kr
  • Totalpris
    3 336 263 kr

    Areal

  • BRUKSAREAL
    110 m²
  • BRA-I (internt bruksareal)
    65 m²
  • BRA-E (eksternt bruksareal)
    45 m²
  • TBA (terrasse-balkongareal)
    24 m²

    Nøkkelinfo

  • Etasje
    1
  • Byggeår
    1987
  • Soverom
    3 soverom
  • Bad
    1 bad
  • Type
    Eierleilighet
  • Eierform
    Eierseksjon
  • Fasiliteter
    Garasje/P-plass og Balkong/Terrasse
  • Fellesutgifter
    3 705 kr
  • Energimerke
    Oransje E

Visning

For å delta på visning, ber vi om at du melder deg på. Da sikrer vi at du får nødvendig informasjon og at det er satt av tilstrekkelig med tid. Kontakt megler dersom annet tidspunkt ønskes. Husk å lese salgsoppgaven før visningen, så du stiller forberedt. NB. Visning utgår dersom det ikke er noen påmeldte.
Ønsker du kun å bli holdt orientert, kan du fra eiendommens hjemmeside få varsel om solgtpris, eller kontakte megler.
Lurer du på noe?

Beskrivelse

Kort om eiendommen

Velkommen til Tassebekkveien 5A!
Dette er den perfekte leilighet for deg som ønsker å flytte til et rolig og koselig bomiljø. Tiltalende leilighet som er oppmalt i en moderne fargepalett med en god planløsning. Leiligheten ligger i byggets 1.etasje med adkomst fra bakkeplan og er inndelt med entré, kombinert kjøkken/stue med utgang til romslig terrasse, 2 soverom og bad. Underetasjen er innredet med kjellerstue/soverom, vaskerom og bodplass. Biloppstillingsplass i felles garasjerekke.
Her bor du sentralt til i Stokke sentrum med enkel tilgang til forretninger, jernbanestasjonen og gode bussforbindelser. Gangavstand til barneskole og ungdomsskole. Flotte turområder er det også i nærområdet som Bokemoa skogen og Storås.
Velkommen til en hyggelig visning!

Innhold og byggemåte

Eiendommen

Tassebekkveien 5A, 3160 STOKKE
Kommunenummer 3907, gårdsnummer 422, bruksnummer 1, festenummer 1, seksjonsnummer 2, ideell andel 1/1

Innhold

Totalt bruksareal BRA: 110 kvm
BRA-i:
Leilighet:
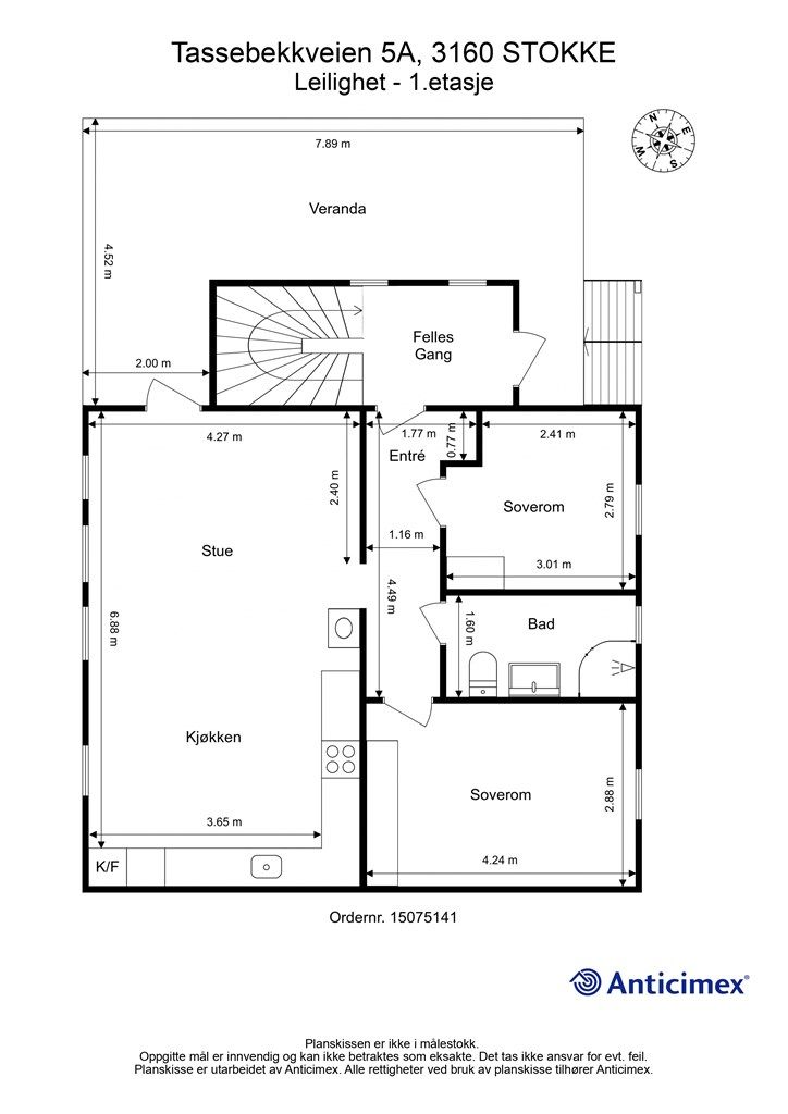
1. etasje 65 kvm: Entre, to soverom, bad, kjøkken og stue.
BRA-e:
1. etasje 17 kvm: Garasje.
Leilighet:
Kjeller 28 kvm: Gang, to boder, vaskerom og kjellerstue/soverom.
Åpent areal:
Leilighet:
1. etasje 24 kvm: Veranda.
Vedlagte plantegninger er ikke målbare. De oppgitte arealer er hentet fra rapport med befaringsdato 27.08.2025 utført av Anticimex Sandefjord AS. Arealene er beregnet og rom er definert etter dagens faktiske bruk, uavhengig av hva som er godkjent av bygningsmyndighetene.

Byggemåte

Selger har fått utarbeidet en tilstandsrapport, dvs. en teknisk gjennomgang av boligen hvor eventuelle avvik, risiko for kjøper og prisoverslag for hva som bør gjøres av oppgradering, er skissert. Se særskilt TGIU (tilstandsgrad ikke undersøkt), samt TG2 og TG3 som viser hva som er boligens normale slitasje, alder og type, hva som er avvik fra dette og hva som bør/må utbedres. Rapporten og selgers egenerklæring er en del av salgsoppgaven og må leses nøye før bud inngis. Kjøper overtar ansvaret for de opplysninger som fremkommer av salgsdokumentasjonen, og kan ikke gjøre gjeldende som mangel noe som burde vært kjent eller som ikke kan anses å ha betydning for avtalen.  
Bygningen er iht. tilstandsrapporten oppført med grunnmur av lettklinker og mur-/betongkonstruksjon og gulv mot grunn av betong. Etasjeskillere av tre- og murkonstruksjoner. Yttervegger i trekonstruksjon med utvendig stående trekledning. Yttertak med halvvalms taksform av trekonstruksjon tekket med takstein. Entredør med profilerte flater. Vinduer og terrasse-/balkongdør med karmer/rammer av tre med to- og tre-lags glass. Les for øvrig mer om byggemåte og den tekniske tilstanden i rapporten.
Oppgraderinger:
2021 Kjøkken, gulver, lister, maling vegger samtlige rom vindu på det minste soverommet, nytt hovedsikringskap nede og ny kurser på kjøkken og utebelysning, ble også montert varmepumpe. Ble montert nye avtrekksvifter på vaskerom som har fuktsensor.
2022. Nytt elanlegg garasje og ny liftmaster portåpner garasje. Ble montert nye stikkontakter i kjellerstue bak tv.
2023 Delvis ny kledning utvendig der det var behov pluss nymalt hus utvendig.
2024 Nye vinduer i stue/kjøkken inkluder terassedør og vindu hovedsoverom, Nytt terrassebord på hele terassen og nytt rekkverk som også ble malt. Montert nye baderomsmøbler og dusjkabinett pluss nytt strømanlegg med nye kurser til bad ble også nymalt. Ble også montert bryter ved kontakt varmtvannstank.
2025 Nye vinduer i kjeller og ny malt kjellerstue/soverom og søkt bruksendring. Nytt yttertak. Ble montert nye avtrekksvifter på bad.
Sammendrag av Eiendommens tilstandsgrad:
TG1 : 61 % | TG2 : 33 % | TG3 : 0 % | TGIU: 6 %
Rapporten er en teknisk gjennomgang av boligen og angir eventuelle byggetekniske avvik. I rapportens sammendrag fremkommer det som takstmannen mener kjøper må være særskilt oppmerksom på, utover normal elde og slitasje, herunder:
* TGIU
- Yttertak er under omlegging/rehabilitering på befaringstidspunktet og ikke undersøkt.
- Fundamenter er naturgitt skjult, og det er for øvrig ingen sikre og dokumenterte opplysninger om type fundamenter som huset har.
- Byggegrunnens beskaffenhet er ukjent.
*TG2
- Bad: TG 2 er valgt på hele våtrommet på grunn av alder og/eller slitasjegrad. Det er blant annet registrert følgende avvik: Sprekker og løse fliser i dusjsonen. Det kan ikke verifiseres om det er benyttet tilstrekkelig tettesjikt på våtrommets gulvflater/veggflater. Tettedetaljer ved rørgjennomføring tilknyttet servant er usikker. Fare for fukt i konstruksjon ved en eventuell lekkasje. Vinduets plassering i våtsone er uegnet.
- Kjøkken: Det er kun kullfilter og ikke separat avtrekk fra rommet. Det anbefales å ha mekanisk avtrekk ut av boligen. Det bør monteres automatisk lekkasjestopper for å begrense eventuelle lekkasjer fra vanninstallasjoner. Det er observert stedvise gliper i laminatskjøter kjøkken/stue.
- Øvrige rom: Ventilasjonen vurderes til å ikke være tilfredsstillende. Det er ikke registrert ventiler i vegger eller vinduer.
- Kjeller: Vaskerom er ikke innredet som et våtrom og tilfredsstiller ikke kravene for lekkasjesikkerhet. Bruk av vann bør gjøres med forsiktighet.
- Innvendige trapper: Trappen har åpninger på mer enn 10 cm. Målt til 15 cm mellom trinn. Basert på ovennevnte forhold oppfyller ikke trappene dagens krav til sikkerhet.
- Radon: Det er ukjent om det er foretatt radonmålinger i boligen og verdien er derfor ukjent. For å kartlegge de faktiske forholdene, må det gjennomføres målinger.
- Elektrisk anlegg: Det er kun fremlagt samsvarserklæring på deler av utførte arbeider på det elektriske anlegget.
- Grunnmur: Sprekk i grunnmur observert i vaskerom. Det er ikke kjent om forholdet er under utvikling eller om situasjonen er stabilisert.
- Drenering: TG2 er valgt for å belyse at dreneringen har nådd en alder der funksjonssvikt ikke kan utelukkes.
Se supplerende tekst i tilstandsrapporten og selgers egenerklæring om leiligheten. Kjøper overtar ansvar og risiko for dette. 

Standard

Eiendomsmegler Krogsveen V/ Eirik Varmo presenterer Tassebekkveien 5A!
Leiligheten er lys og innbydende beliggende meget sentralt i Stokke sentrum. Her har du alle fasiliteter rett utenfor døren!
Leiligheten fremstår som vedlikeholdt og oppgradert så her kan man flytte inn i et godt bomiljø.
Man entrer boligen i entreen der det er plass for å henge av yttertøyet. Videre kommer du inn til leilighetens stue og kjøkken som er i åpen løsning ut mot terrassen. Kjøkkeninnredning i slett utførelse med benkeplate av laminat og nedfelt oppvaskkum med ett-greps armatur.
Stor og romslig stue som har godt lysinslipp med utgang til terrassen, disse store naturlige lyskildene gir leiligheten et lyst, luftig og åpent preg.
Leiligheten har 2 soverom som liger i 1.etg praktisk plassert på hver sin side av baderommet. Badet har flislagt gulv, dusjkabinett og servant i innredning.
I leilighetens underetasje er det innredet med kjellerstue som også er godkjent som soverom, vaskerom og bod nylig godkjent for varig opphold av Sandefjord Kommune.
Kort oppsummert:
- Lettstelt sentrumsleilighet
- Store vindusflater som slipper inn godt med naturlig lys
- Effektiv og god planløsning.
- Terrasse mot vest
- Nyere kjøkken
- 3 soverom
- Garasjeplass i felles rekke
- Umiddelbar nærhet til alle sentrumsfunksjoner samt buss og togstasjon
- Nærhet til fine turområdet i Bokemoa og Storås
Velkommen til visning og velkommen hjem!

Løsøre og tilbehør

Vi viser til liste fra Norges Eiendomsmeglerforbund som gjelder fra 01.01.2020 angående løsøre og tilbehør. Vinskap på kjøkken medfølger ikke.

Oppvarming

Boligen oppvarmes via varmepumpe fra 2021 plassert i stuen og panelovner.
Boligen har naturlig ventilasjon i kombinasjon med mekanisk avtrekk på bad og vaskerom.
Dersom beboelsesrom ikke har vegg- eller fastmonterte varmekilder ved visning, følger dette heller ikke med. 

Ferdigattest/brukstillatelse

Det foreligger ferdigattest på leiligheten, datert 14.10.1987 Denne kan fås ved henvendelse til megler.
Det foreligger ferdigattest for prosjektet som omfatter oppføring av garasjer. Ferdigattesten er datert 16.11.2004.
I senere tid har det blitt gjennomført en bruksendring på eiendommen, der en tidligere bod er omgjort til soverom. Ferdigattest ble gitt 10.09.2025.

Tinglyste heftelser og rettigheter

Utover andel fellesgjeld overdras leiligheten fri for pengeheftelser med unntak av:
Sameiet har legalpant for krav mot sameieren som følger av sameieforholdet iht. eierseksjonsloven § 31. Pantet er begrenset oppad til 2G, (G = folketrygdens grunnbeløp). 
Det er tinglyst følgende servitutter på sameiets eiendom.
Dagboknr 9000009, tinglyst 18.11.1915, type heftelse: Festekontrakt. Dokumentet er håndskrevet og vanskelig å tyde, men hefter i sameiets eiendom. Kjøper overtar ansvaret for servitutten. Kopi av dokumentet kan fås ved henvendelse til megler.
Dagboknr 900031, tinglyst 18.11.1915, type heftelse: Bestemmelse om bebyggelse: Dokumentet er eldre og ikke mulig å innhente fra kartverket eller funnet i digitalarkivet, men hefter i sameiets eiendom.
Dagboknr 9000014, tinglyst 23.02.1948, type heftelse: Elektriske kraftlinjer: Dokumentet er eldre og ikke mulig å innhente fra kartverket eller funnet i digitalarkivet, men hefter i sameiets eiendom.
I tillegg har sameiet tinglyst panterett som nevnt over.
Servituttene vil følge eiendommen. Kjøpers bank vil få prioritet etter ovennevnte heftelser og servitutter. 
Eiendommen har tinglyst rett til å anlegge vann og kloakkledninger frem til tilknytningspuinkt for kommunal hovedkloakk over eiendommen gnr 22 bnr 1 i Stokke, samt rett til å foreta tilsyn, utbedring og vedlikehold.
Rettigheten er tinglyst på gnr 422 bnr 311, dagboknr 90007427 og 9000743, tinglyst 11.04.1986.

Eventuell adgang til utleie

Leiligheten kan leies ut såfremt leiligheten har forsvarlige radonverdier. Leietaker må følge sameiets vedtekter og ordensregler på lik linje som eier.

Diverse

Tilbud av produkter og tjenester fra våre samarbeidspartnere
Vi er opptatt av verdiskapning, og har knyttet til oss samarbeidspartnere som skal sikre våre kunder de beste produkter og tjenester;
• Gjensidige leverer boligselgerforsikring og tilbyr bygningsforsikring
• Boligkjøperforsikring leveres av Hiscox og med Sedgwick som skadebehandler, og er formidlet gjennom Gjensidige.
• BN bank tilbyr finansieringsløsninger
• Vår avdeling Krogsveen Pluss tilbyr flyttetjenester som utvask, visningsvask, lager, tømming og transport av flyttelass, i tillegg til å formidle kontakt med Flip for overflateoppussing.
• I forbindelse med overtagelse av eiendommen tilbyr Overo avtale om strøm, alarm og bredbånd.
• Krogsveen er, sammen med øvrige bransjeaktører, medeier i den digitale annonseringsplattformen Hjem.

Beliggenhet og tomteforhold

Beliggenhet

Eiendommen ligger sentralt i Stokke sentrum. Området preges av flotte naturomgivelser med nærhet til både skog og sjø. Like i nærheten finner du også flere turstier og turområder, perfekt for deg som liker å være aktiv og ute i naturen. Samtidig er det kun få meter til Stokke sentrum og alle dets fasiliteter, samt nærhet til E18 som gir enkel tilgang til både Tønsberg, Sandefjord og Torp flyplass. Beliggenheten gir deg dermed alt du trenger innen rekkevidde.

Adkomst

Veibeskrivelse Se Google maps - det er enkelt å finne frem i kartet.
Det vil bli skiltet med Krogsveen visningsskilt ved fellesvisninger.

Barnehager, skoler og fritid

Bokemoa barneskole (1-7) og Stokke ungdomsskole. Dersom skole- og barnehagetilbud er av betydning for kjøpet, ber vi om at det rettes en særskilt henvendelse til kommunen for oppdatert informasjon.

Beskrivelse av tomt

Festetomt på 1 650 kvm som tilhører sameiet. Tomten er fellesareal.

Regulering av feste

Festeavgiften for sameiet er kr 15.810 pr. år. men innkreves grunnet instruks om tomtefeste inntil videre med 2037 pr.år. og er inkludert i fellesutgiftene Festeavtalen utløper 01.01.2066. 
Grunneier, Allstad Grunneiendom AS.
Samtykke til overdragelse fra grunneier kreves
Festeavgiften reguleres hvert 10 år iht konsumprisindeksen
Siste regulering av festeavgift: 20.10.2009 og neste ordinære avgiftsregulering foretas i 2036 etter siste informasjon fremlagt fra Styret.
Kopi av lov om tomtefeste kan fåes ved henvendelse til megler. 
Når festeavtalen utløper kan avtalen kreves forlenget. Fester kan alternativt kreve tomten innløst dersom vilkårene for innløsning i tomtefesteloven er oppfylt (finnes unntak fra innløsningsretten). Ved en evt. forlengelse løper festeforholdet videre på samme vilkår, men bortfester har rett til å kreve et "engangsløft" av festeavgift regulert til 2 % av råtomteverdien, maksimalt på kr. 15.558,- i år 2025 pr. dekar tomt. Beløpet reguleres årlig iht. KPI. Grunneier har rett til ny justering hvert 30.år med 2 % av tomteverdien.
Kontakt megler for nærmere informasjon.

Parkering

Parkering i garasje beliggende i felles garasjerekke og 1 egen plass til uteparkering.

Vei, vann og avløp

Eiendommen har adkomst via kommunal vei.
Eiendommen er tilknyttet kommunalt ledningsnett via private stikkledninger.
Borettslaget/Sameiet/Aksjelaget er ansvarlig for private stikkledninger til bygningen.

Regulerings-og arealplaner

Eiendommen ligger i et uregulert område, men er i kommuneplan datert 21.09.2023 avsatt til boligbebyggelse. kommunen opplyser også at område er innenfor hensynssonene gul sone iht. T-1442, andre sikringssoner og hensyn landskap.
Vi opplyser at det Ca 100 meter nord for eiendommen pågår det et reguleringsarbeid for Stokke kommunehus. Formålet med reguleringsarbeidet er å tilrettelegge for omsorgsboliger, bibliotek, helsestasjon, næringsvirksomhet og boliger. Samt forbedre offentlige rom og regulere en gang og sykkelvei fra Frydenbergsletta til Fredrik Stangs gate.
Det er i kommunedelplanen båndlegging for regulering etter pbl iht ny jernbanetrase. BaneNor jobber for tiden med planer for nytt dobbeltspor gjennom Vestfold, og på sikt vil deler av eksisterende jernbanespor i Sandefjord legges ned. Byggeforbudssonen vil bestå inntil ny jernbane er tatt i bruk, og eksisterende anlegg lagt ned. Ny jernbanetrase er foreslått lagt fra Stokke stasjon via vestsiden av Torp flyplass (ny Torp stasjon) til ny Sandefjord stasjon ved SVGS. Syd for SVGS følges i hovedsak dagens trase. For mer informasjon vises til: http://www.banenor.no/Prosjekter/prosjekter/vestfoldbanen/tonsberg-skien/ Kart over korridoren kan sees på: http://asplanviak.maps.arcgis.com/apps/webappviewer/index.html?id=76880ca5ab664db480caacfffb1656a5
Utsnitt av plan med tilhørende bestemmelser kan fås ved henvendelse til megler.

Økonomi

Boligens kostnader

Kommunale avgifter er kr 14 476,- for inneværende år. I dette inngår gebyr for vann, avløp, renovasjon og feiing/tilsyn.
Fellesutgiftene er kr 3 705,- pr. mnd. og inkluderer: Forsikring på bygning og garasje, Tv/internett, festeavgift, felles strøm garasje, brøyting, DnB regnskap og lån.
Fellesutgiftene justeres normalt en til to ganger årlig i forhold til sameiets faktiske utgifter og ble sist justert 01.10.2025
Nåværende eier har et strømforbruk som tilsvarer ca. kr 10 000,- pr. år. / 12 400 kwh. pr. år.
Boligen er tilknyttet Altibox som leverandør av tv/internett grunnpakke og er inkludert i felleskostnadene. Tv-tuner/dekoder medfølger ikke.
Utgiftene er basert på nåværende eiers forbruk. Kjøper må selv tegne innboforsikring.

Formuesverdi

Formuesverdi for 2023 var kr 619 609,- ifølge skatteetaten. Beløpet forutsetter at eier bor fast i boligen (primærbolig).
Ved eventuell øvrig bruk av eiendommen (f.eks. fritidsbolig, pendlerbolig, utleieobjekt) var formuesverdien for 2023 kr 2 478 437,-.
Formuesverdien justeres normalt årlig. Se skatteetaten.no for mer informasjon om fastsettelse av formuesverdien.

Opplysninger om fellesgjeld

Andel fellesgjeld er kr 149 653,- pr. 25.09.2025
Total fellesgjeld for sameiet er kr 1.047.576,- pr. 05.09.2025 og lånevilkårene er:
Rentebetingelser: 7,4%
Lånets løpetid: 20 år
Styreleder informerer om at det ligger an til å nedbetale 268.000,- av den totale gjelden med oppspart kapital. Endelig fellesgjeld pr enhet blir da redusert fordelt på andeler.

Omkostninger

3 090 000,00 Prisantydning
149 653,00 Andel av fellesgjeld
--------------------------------------------------------
3 239 653,00 Pris inkl. fellesgjeld
Omkostninger
80 970,00  Dokumentavgift til staten (2,5% av kjøpesum)
9 950,00  Gjensidige Boligkjøperpakke (valgfri)
4 600,00  Overføring av festerett
545,00  Tinglysing panterettsdokument
545,00  Tinglysing skjøte
--------------------------------------------------------
96 610,00 Omkostninger totalt
--------------------------------------------------------
3 336 263,00 Totalpris inkl. omkostninger
--------------------------------------------------------

Tilbud om lånefinansiering

Megler formidler gjerne kontakt med rådgiver hos vår samarbeidspartner BN Bank. De har konkurransedyktige betingelser samt rask og løsningsorientert behandling av din lånesøknad. Krogsveen mottar et honorar for denne formidlingen.

Betalingsbetingelser

Kjøpesum inkludert omkostninger, samt pantedokument tilknyttet eventuelt lån, skal være disponibelt hos megler 2 virkedager før overtagelsen.

Annen viktig informasjon

Eier

Tor-Arne Pedersen og Heidi Egren

Informasjon om sameiet

Eiendommen er seksjonert, og leiligheten er tilknyttet Byggelaget Tassebekkveien 5 sameie, med sameiebrøk 120/912.
Sameiet består av 7 leiligheter
Dugnad samt trappevask må påregnes.
Dyrehold er tillatt
Foretatt påkostninger de senere år: Nytt tak i 2025
Vi gjør videre oppmerksom på at det iht. eierseksjonsloven ikke er anledning å erverve mer enn 2 seksjoner i sameiet, her teller også eierskap via. firma, nærstående og familie. Kjøper har risikoen for at overskjøting på denne bakgrunn kan nektes av Statens Kartverk. I så fall vil kjøper uansett være forpliktet til å gjennomføre handelen, og oppgjør til selger vil finne sted tross manglende overskjøting.
Konferer med megler for mer informasjon.

Overtakelse

Etter nærmere avtale.

Boligselgerforsikring

Selger har i forbindelse med salget tegnet boligselgerforsikring levert av Gjensidige.  
Boligselgerforsikringen dekker selgers ansvar etter avhendingsloven begrenset oppad til kr 14 millioner. Dersom kjøper oppdager forhold ved eiendommen som hen mener utgjør en mangel ved eiendommen, vil Gjensidige behandle reklamasjonen på vegne av selger. Forsikringsvilkår kan fås ved henvendelse til megler.  
Vedlagt salgsoppgaven følger selgers egenerklæringsskjema og tilstandsrapport. Interessenter må sette seg inn i dokumentene før bud inngis. 

Boligkjøperforsikring

Innen kontraktsmøtet må kjøper ta stilling til om det ønskes å bestille Boligkjøperpakken gjennom Gjensidige. I denne gunstige pakken er boligen ferdig forsikret og inkluderer rettshjelpsforsikring, også kalt Boligkjøperforsikring. Rettshjelpsforsikring gir trygghet og tilgang på profesjonell juridisk hjelp dersom det oppdages uventede feil eller mangler det første året etter overtagelse. Forsikringsselskapet behandler i så fall ethvert mangelskrav kjøper måtte ha overfor selger. 
Boligkjøperpakken inkluderer bygningsforsikring for hus og hytte, innboforsikring, flytteforsikring og dobbel rentedekning - i situasjoner hvor kjøper ikke får solgt nåværende primærbolig.   
Kjøper mottar ingen særskilt faktura for Boligkjøperpakken da kostnaden det første året legges til kjøpesummen for boligen. Det gjøres oppmerksom på Krogsveen mottar et honorar for denne formidlingen.
Produktark for Boligkjøperpakken ligger vedlagt i salgsoppgaven.  
Dersom ikke boligkjøperpakke ønskes kan kun rettshjelpsforsikring, også kalt boligkjøperforsikring, tegnes særskilt via megler. Rettshjelpsforsikringen varer i 5 år fra overtagelse og leveres gjennom Gjensidige. Ta kontakt med megler for ytterligere informasjon. 
Selskap og privatpersoner som driver med kjøp/salg/utvikling som ledd i egen næringsvirksomhet kan ikke tegne boligkjøperpakke eller rettshjelpsforsikring. 

Budgivning

Forbrukerinformasjon om budgivning er vedlagt denne salgsoppgaven og er også på vår hjemmeside Krogsveen.no. Alle bud og budforhøyelser må inngis skriftlig. I tillegg må legitimasjon være fremlagt sammen med signatur fra budgiver.
Vi oppfordrer til å gi bud elektronisk via GI BUD-knappen på eiendommens hjemmeside på Krogsveen.no. Da vil samtlige vilkår bli oppfylt.  
Eventuelle forhøyelser eller endringer av budet kan bekreftes pr SMS eller på e-post. Vi oppfordrer alltid til å kontakte megler pr. telefon i tillegg da forsinkelser i SMS og e-post kan forekomme.
For at budene skal kunne bli behandlet og videreformidlet skriftlig til alle involverte parter, må alle bud ha en tilstrekkelig lang akseptfrist, jf. eiendomsmeglingsforskriften § 6-3.
Selger må også skriftlig akseptere budet før aksept kan formidles til budgiver. Akseptfrist bør derfor være på minimum 30 minutter, og budforhøyelser må derfor skje i god tid før fristens utløp.
Bud i forbrukerforhold kan uansett ikke settes med kortere frist enn kl. 12.00 første virkedag etter siste annonserte visning. I tillegg kan ikke budet ha forbehold om at det skal holdes hemmelig ovenfor øvrige interessenter. Megler har iht lov om eiendomsmegling ikke anledning til å videreformidle disse budene, og de vil dermed heller ikke bli journalført.
Etter at eiendommen er solgt vil kjøper og selger få tilsendt budjournal. Øvrige budgivere kan få utlevert kopi av budjournalen i anonymisert form.

Hvitvaskingsreglene

I henhold til lov om hvitvasking og terrorfinansiering har megler plikt til å gjennomføre kontrolltiltak overfor kunder, herunder fullmektiger. Dette innebærer bl.a. å bekrefte kunders og reelle rettighetshaveres identitet på bakgrunn av fremvist gyldig legitimasjon eller på annen godkjent måte, samt å innhente opplysninger om kundeforholdets formål og tilsiktede art.
Dersom slike kundetiltak ikke kan gjennomføres, kan megler ikke etablere kundeforholdet eller utføre transaksjonen.
Hvis kjøper ikke bidrar til gjennomføring av kundekontrollen og dette fører til at transaksjonen blir forsinket eller ikke kan gjennomføres, vil dette ansees som mislighold av avtalen og gi selger rettigheter etter avhendingslova kapittel 5. I tilfeller der selger ikke bidrar til gjennomføring av løpende kundekontroll underveis i oppdraget, er det selger som misligholder sine forpliktelser etter avtalen og gi kjøper rettigheter etter avhendingslovens kapittel 4. Partene er selv ansvarlige for eventuelle kostnader og ansvar dette kan medføre. Eiendomsmegleren eller eiendomsmeglingsforetaket kan ikke holdes ansvarlig for de konsekvenser dette vil kunne få for partene eller andre som har interesser i eiendomshandelen.
Kjøper oppfordres til å innbetale kjøpesummen som ikke kommer fra låneinstitusjon i én samlet innbetaling fra egen konto i norsk bank. Megler har plikt til å melde fra til Økokrim om eiendomshandler som fremstår som mistenkelige. Melding sendes Økokrim uten at partene varsles. 

Personopplysningsloven

I henhold til personopplysningsloven gjør vi oppmerksom på at interessenter kan bli registrert for videre oppfølging.

Lovanvendelse

Generelle bestemmelser
Salgsoppgaven er basert på de opplysningene selger har gitt til megler, den bygningssakyndiges tilstandsrapport, samt opplysninger innhentet fra kommunen, Kartverket og andre tilgjengelige kilder. Det er viktig at kjøper setter seg grundig inn i alle salgsdokumentene, herunder salgsoppgave, tilstandsrapport og selgers egenerklæring. Kjøper anses kjent med forhold som er tydelig beskrevet i salgsdokumentene, og slike forhold kan ikke påberopes som mangler. Dette gjelder uavhengig av om kjøper har lest dokumentene. Alle interessenter oppfordres til å undersøke eiendommen nøye, gjerne sammen med fagkyndig før bud inngis. Kjøper som velger å kjøpe usett kan ikke gjøre gjeldende som mangel noe han burde blitt kjent med ved undersøkelsen. 
Dersom det er behov for avklaringer, anbefaler vi at interessenter rådfører seg med eiendomsmegler eller egne rådgivere før det legges inn bud.
En bolig som har blitt brukt i en viss tid, har vanligvis blitt utsatt for slitasje og skader kan ha oppstått. Slik bruksslitasje må kjøper regne med, og det kan avdekkes enkelte forhold etter overtakelse som nødvendiggjør utbedringer. Normal slitasje og skader som nødvendiggjør utbedring, er innenfor hva kjøper må forvente og vil ikke utgjøre en mangel.
Kjøper og selgers rettigheter og plikter reguleres av avtalen mellom partene, samt informasjonen som har vært tilgjengelig for kjøperen i forbindelse med handelen. Avtalen utfylles av avhendingsloven, og det gjelder ulike avtalevilkår avhengig av om kjøper er forbrukerkjøper eller ikke.  Dette er nærmere beskrevet nedenfor. 
På grunn av ulike avtalevilkår kan selger vurdere bud fra en som ikke er forbruker, ulikt fra en forbrukers bud. Dersom kjøper ikke er forbruker, er selger sitt mulige mangelsansvar begrenset fordi eiendommen selges "som den er".  Selger kan ikke ta «som den er»- forbehold overfor en forbrukerkjøper. Selv et lavere bud fra en som ikke er forbruker kan foretrekkes fordi begrensningen i mulig mangelsansvar kan ha egenverdi for selger. Selger står fritt til å forkaste eller akseptere ethvert bud, og er for eksempel ikke forpliktet til å akseptere høyeste bud.
Budgiver skal i budskjema avgi egenerklæring om budgiver er forbruker eller næringsdrivende/ person som hovedsakelig handler som ledd i næringsvirksomhet. Budgivere får informasjon dersom andre bud er inngitt av en som ikke er forbruker. 
Forbrukerkjøp - definisjon
Med forbrukerkjøp menes kjøp av eiendom når kjøperen er en fysisk person som ikke hovedsakelig handler som ledd i næringsvirksomhet.
Forbruker – avtalevilkår
Eiendommen har en mangel dersom den ikke er i samsvar med kravene som følger av avtalen, eller det foreligger brudd på bestemmelsene i avhendingsloven §§ 3-2 til 3-8. Hvis eiendommen ikke er i samsvar med det kjøperen må kunne forvente ut ifra alder, type og synlig tilstand, kan det være grunnlag for mangelskrav. Det samme gjelder hvis det er holdt tilbake eller gitt uriktige opplysninger om eiendommen. Dette gjelder likevel bare dersom man kan gå ut ifra at det virket inn på avtalen at opplysningen ikke ble gitt eller at mangelskravet ikke blir rettet i tide på en tydelig måte.
Boligen kan ha en mangel etter avhendingsloven § 3-3 andre ledd, dersom det er avvik mellom opplyst og faktisk innvendig areal, forutsatt at avviket er på 2% eller mer og minimum 1 kvm.
Ved beregning av et eventuelt prisavslag eller erstatning må kjøper selv dekke tap/kostnader opptil et beløp på kr 10 000 (egenandel).
Ikke-forbruker (næringsdrivende) – definisjon 
Hvis kjøper er en juridisk person, eller en fysisk person som hovedsakelig handler som ledd i næringsvirksomhet, vil kjøpet ikke anses som et forbrukerkjøp. 
Ikke-forbruker – avtalevilkår
Eiendommen har en mangel dersom den ikke er i samsvar med kravene som følger av avtalen.
Eiendommen selges «som den er», og selgers ansvar utover det konkret avtalte er da begrenset etter avhendingsloven § 3-9, første ledd andre setning. 
Avhendingsloven § 3-3 andre ledd fravikes, og hvorvidt boligens arealsvikt utgjør en mangel vurderes etter avhendingsloven § 3-8. 
Informasjon om kjøpers undersøkelsesplikt, herunder oppfordringen om å undersøke eiendommen nøye, gjelder også for kjøpere som ikke anses som forbrukere.
Det forutsettes at hjemmel overføres til kjøper. Hvis kjøper ikke ønsker hjemmelsoverføring av eiendommen, må det tas forbehold om dette i budet.

Meglers vederlag

Meglers vederlag betales av selger og er avtalt til:
Fastpris: 40 000,-
Vederlag
Fotopakke  kr 4 000
Kontroll av hjemmel og heftelser  kr 2 900
Markedsføringspakke  kr 27 400
Oppgjør  kr 7 500,00
Tilrettelegging  kr 17 000,00
Visninger pr stk   kr 2 000,00
Utlegg
Innhenting av offentlig opplysninger Sandefjord - Norkart   kr 3 166,00
Tinglysing sikring  kr 545,00
Andre utgifter
AX tilstandsrapport leilighet  kr 10 750,00
Boligselgerforsikring Gjensidige Seksjoner  kr 13 282,00

Opplysninger om oppdraget

Oppdragsnummer 22-0331/25
Eiendomsmegler Krogsveen AS, avd. Sandefjord
Jernbanealléen 13, 3210, SANDEFJORD
950 007 613
Oppdragets KR-kode KR22.25331

Dato

Sist oppdatert: 10. desember 2025 kl. 12:19

Dokumenter

Utskriftsvennlig salgsoppgave

Område

Legg til steder som er viktige for deg

Prisutvikling for området

Kvadratmeterpris
0 kr/m²
Endring
↘︎ % ()

Visning

For å delta på visning, ber vi om at du melder deg på. Da sikrer vi at du får nødvendig informasjon og at det er satt av tilstrekkelig med tid. Kontakt megler dersom annet tidspunkt ønskes. Husk å lese salgsoppgaven før visningen, så du stiller forberedt. NB. Visning utgår dersom det ikke er noen påmeldte.
Ønsker du kun å bli holdt orientert, kan du fra eiendommens hjemmeside få varsel om solgtpris, eller kontakte megler.
Lurer du på noe?

Vil du varsles om lignende boliger?

Ved å lagre ditt boligsøk hos oss får du beskjed når vi har en bolig som ligner denne, før den legges ut på markedet!

På flyttefot? Slik gjør vi det enklere for deg

Skreddersydd flyttepakke

Vi fikser håndverkere, vask, pakking, lagring og transport, og legger ut for utgiftene underveis.

Hjelp med både kjøp og salg

Hos oss har du din egen rådgiver gjennom hele kjøps- og salgsprosessen.

Hjelp til finansiering

Vårt samarbeid med BN Bank sikrer deg rask og løsningsorientert hjelp, til konkurransedyktige betingelser.