Nina Griegs veg 16
11 990 000 kr
251 m²
8 soverom
Solgt

Persaunet/Strindheim
Meget innbydende enebolig i et attraktivt område | Garasje | Leieinntekt kr. 28 250,- pr.mnd | Solrike uteplasser
Prisantydning
11 990 000 krOmkostninger
320 740 krTotalpris
12 310 740 kr
Pris
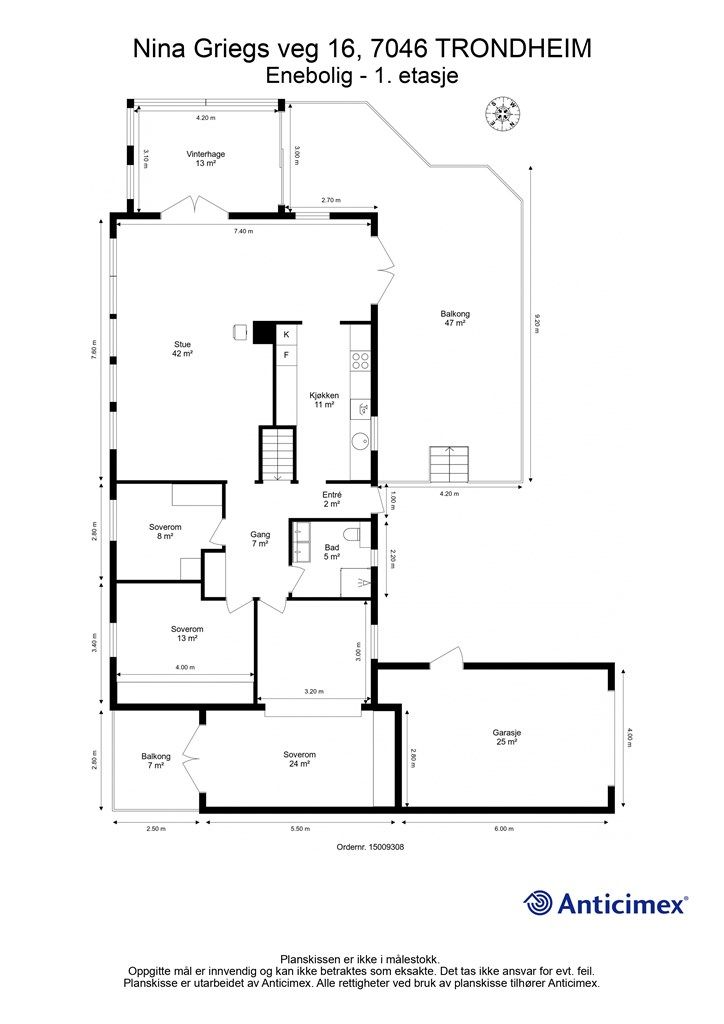
Bruksareal
296 m²BRA-I (internt bruksareal)
251 m²BRA-E (eksternt bruksareal)
45 m²TBA (terrasse-balkongareal)
54 m²
Areal
Etasje
2Byggeår
1966Soverom
8 soveromBad
3 badTomteareal
895 m² (festet)Type
Enebolig - FrittliggendeEierform
EietFasiliteter
Garasje/P-plass og Balkong/TerrasseEnergimerke
Gul F
Nøkkelinfo
Unngå doble boligrenter
Vi tilbyr gunstig forsikring.
Vurderer du utleie?
Få et tilbud fra Utleie KrogsveenHva koster lånet?
Sjekk estimert lånekostnadBeskrivelse
Kort om eiendommen
Velkommen til Nina Griegs veg 16 - en unik og moderne enebolig med hybelleilighet i et rolig og familievennlig område på Persaunet/Strindheim! Her bor du med kort avstand til alle hverdagslige servicetilbud, gode kollektivmuligheter og fantastiske turområder.
Verdt å nevne:
- Nydelig IKEA-kjøkken med integrerte hvitevarer og rikelig plass.
- Lys og luftig stue med vinterhage og gode lysforhold.
- To terrasser med flotte solforhold.
- Pent flislagt bad med varme i gulv og separat vaskerom fra 2024
- Tre romslige soverom med plass til garderobe
- Garasje med elbillader og og flere biloppstillingsplasser.
- Sokkellleilighet med stue, kjøkken, bad, toalettrom, gang og fem soverom. Leieinntekter på kr 28.250,- per måned.
- Romslig og pent opparbeidet tomt med beplantninger og plen i blindgate.
Område
Legg til steder som er viktige for deg
På flyttefot? Tenk kjøp og salg samtidig.
Få din egen rådgiver gjennom hele kjøps- og salgsprosessen. Det starter med en verdivurdering.
Unngå doble boligrenter
Vi tilbyr gunstig forsikring.
Vurderer du utleie?
Få et tilbud fra Utleie KrogsveenHva koster lånet?
Sjekk estimert lånekostnadVil du varsles om lignende boliger?
Ved å lagre ditt boligsøk hos oss får du beskjed når vi har en bolig som ligner denne, før den legges ut på markedet!

