Tiurveien 47
9 200 000 kr
347 m²
3 soverom
Komplett salgsoppgave

Konnerud
Innholdsrik familiebolig med fantastisk utsikt beliggende i et attraktivt boligområde. Dobbelgarasje. Nær skole & marka.
Prisantydning
9 200 000 krOmkostninger
250 990 krTotalpris
9 450 990 kr
Pris
Bruksareal
379 m²BRA-I (internt bruksareal)
347 m²BRA-E (eksternt bruksareal)
32 m²TBA (terrasse-balkongareal)
94 m²
Areal
Etasje
2Byggeår
1989Soverom
3 soveromBad
2 badTomteareal
1 336 m² (eiet)Type
Enebolig - FrittliggendeEierform
EietFasiliteter
Garasje/P-plass og Balkong/TerrasseEnergimerke
Oransje D
Nøkkelinfo
Unngå doble boligrenter
Vi tilbyr gunstig forsikring.
Vurderer du utleie?
Få et tilbud fra Utleie KrogsveenHva koster lånet?
Sjekk estimert lånekostnadDette liker selger best ved boligen
Fantastisk utsikt fra verandaen!
Beskrivelse
Kort om eiendommen
Velkommen til Tiurveien 47! En innholdsrik enebolig med fantastisk utsikt over Drammen, beliggende i en rolig blindvei.
Her bor du i et veletablert og familievennlig nabolag på Konnerud, med umiddelbar nærhet til marka. Boligen er flott tilbaketrukket fra trafikk og byr på en storslått utsikt med fritt utsyn over Drammen by. Med kort vei til skoler, barnehager og Konnerud sentrum ligger alt til rette for en enkel og aktiv hverdag.
Boligen er innholdsrik over to plan med fleksibel planløsning, flere stuer, to pene bad og et lekkert Schmidt-kjøkken fra 2018. Kjøkkenet er moderne med integrerte hvitevarer og god benkeplass. Oppvarmet med to varmepumper fra 2014, peisinnsats og gulvvarme på bad. Gode uteplasser med mye sol og utsikt. Parkering i garasje på ca. 32 kvm med el-billader fra 2022
Innhold og byggemåte
Innhold og byggemåte
Eiendommen
Tiurveien 47, 3030 DRAMMEN
Kommunenummer 3301, gårdsnummer 13, bruksnummer 172
Innhold
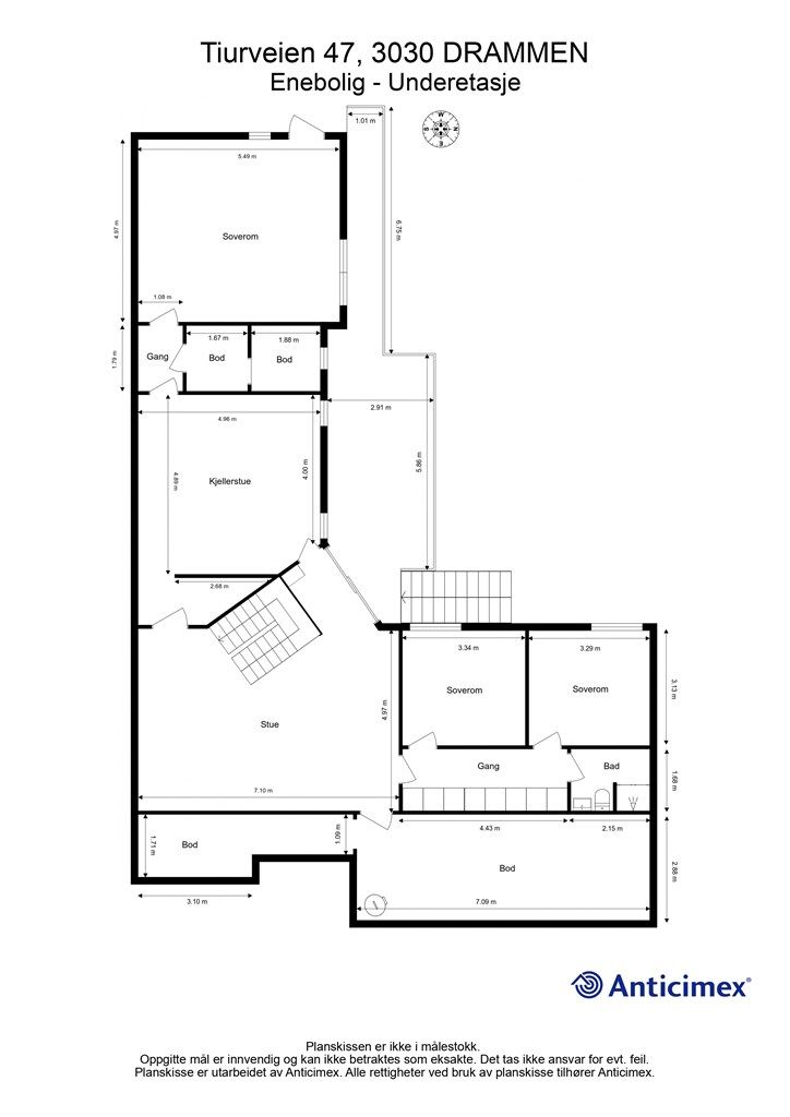
BRA (totalt bruksareal): 379 kvm.
BRA-i (internt bruksareal)
Underetasje:
172 kvm: Stue, kjellerstue, 3 soverom, bad, 2 ganger, 3 boder.
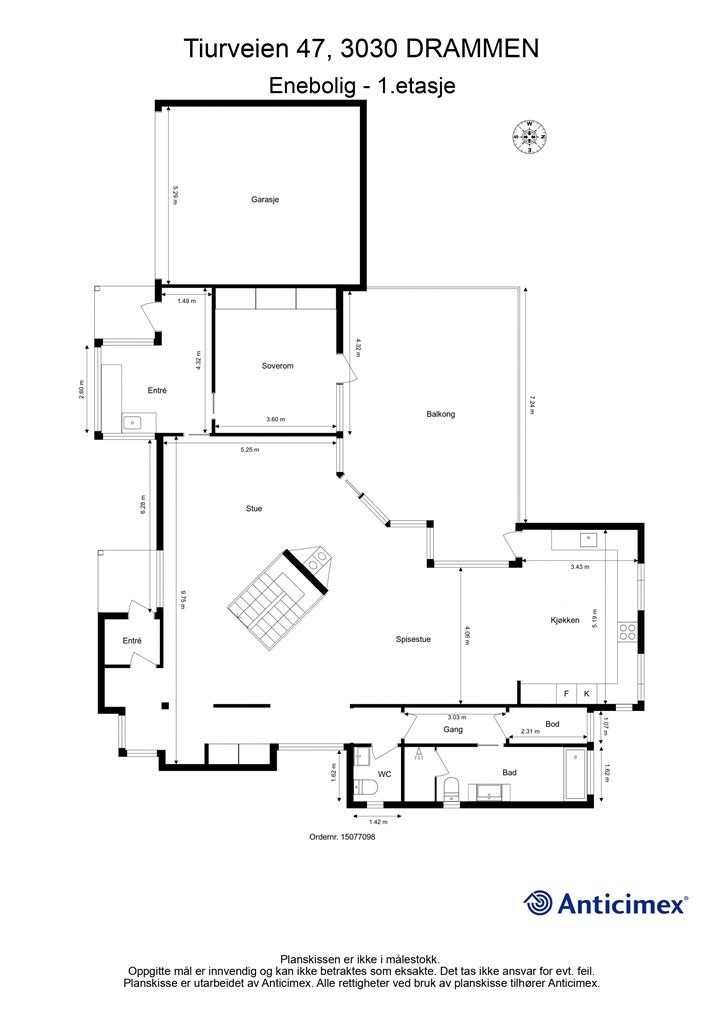
1. etasje:
175 kvm: 2 entréer, stue, spisestue, kjøkken, soverom, bad, wc-rom, gang og bod.
BRA-e (eksternt bruksareal)
1. etasje:
32 kvm: Garasje
TBA (terrasse- og balkongareal)
Underetasje:
54 kvm: Platting (28 kvm) og veranda (26 kvm).
1. etasje:
40 kvm: Balkong.
Rom som avviker fra godkjente byggetegninger ifbm. rom for varig opphold: Ett soverom i underetasjen. Se mer informasjon under punktet ferdigattest.
De oppgitte arealer er hentet fra rapport med befaringsdato 17.11.2025 utført av Bent Gunnerud v/Anticimex. Arealene er beregnet og rom er definert etter dagens faktiske bruk, uavhengig av hva som er godkjent av bygningsmyndighetene.
Byggemåte
Selger har fått utarbeidet en tilstandsrapport, dvs. en teknisk gjennomgang av boligen hvor eventuelle avvik, risiko for kjøper og prisoverslag for hva som bør gjøres av oppgradering, er skissert. Se særskilt TGIU (tilstandsgrad ikke undersøkt), samt TG2 og TG3 som viser hva som er boligens normale slitasje, alder og type, hva som er avvik fra dette og hva som bør/må utbedres. Rapporten og selgers egenerklæring er en del av salgsoppgaven og må leses nøye før bud inngis. Kjøper overtar ansvaret for de opplysninger som fremkommer av salgsdokumentasjonen, og kan ikke gjøre gjeldende som mangel noe som burde vært kjent eller som ikke kan anses å ha betydning for avtalen.
Byggemåte iht. tilstandsrapporten: Boligen er oppført med grunnmur av mur-/betongkonstruksjon og gulv mot grunn av betong. Etasjeskillere av tre- og betongkonstruksjoner. Yttervegger i trekonstruksjon med utvendig stående og liggende trekledning og murstein. Yttertak med pulttaksform av trekonstruksjon tekket med takstein og takpapp. Yttertak opplyses å være fra 2014. Ytterdører med profilert flate og glassfelt fra ukjente årstall. Vinduer og terrasse-/balkongdører med karmer/rammer av tre med to- og tre-lags glass fra 1987, 1988, 2017 og ukjente årstall.
Oppsummering av tilstandsgrader: 56% TG1, 34% TG2, 3% TG3 og 7% TGIU.
I rapporten fremkommer det som takstmannen mener kjøper må være særskilt oppmerksom på, dette gjelder blant annet (se utfyllende tekst i rapporten):
- Rom under terreng (underetasje), TG3: Det er foretatt hulltaking og utført fuktmåling med pigg i treverk med egnet instrument, i utlektet vegg under terreng i soverom mot vest. Det ble registrert forhøyede fuktverdier. Dette indikerer utettheter/funksjonssvikt. Det observeres plast i vegg under terreng.
- Elektrisk anlegg, TG3: Downlights i kjellerstue er defekt. Det er ifølge selger utført egeninnsats/ufaglært arbeid på det elektriske anlegget. Selger opplyser at dette gjelder to lysbrytere og vil bli sjekket ut av elektriker før overtakelse. Manglende deksler i sikringsskap.
- Drenering, TG3: Tildelt tilstandsgraden ut i fra en helhetsvurdering pga. det ble registrert forhøyede fuktverdier i utforet vegg under terreng i underetasjen som tilsier funksjonssvikt. Selger opplyser at det tidligere har vært fuktskader i underetasje og at dreneringen er delvis utbedret på vegg mot nord, se rapport for nærmere detaljer.
- Bad (underetasje), TG2: Sluket er isolert inne i dusjsonen. Skyvedør er løs. Gulvet er tilnærmet flatt og har ikke tilstrekkelig fall mot sluk. Det kan ikke verifiseres om det er oppkant på membran bak dørlister.
- Bad (1. etasje), TG2: Riss/sprekker i flisfuger observert i dusjsonen (vegger). Vinduets plassering i våtsone er uegnet. Utførelsen med hensyn til bruk av slukmansjett og tettesjikt er uoversiktlig. Gulvet er tilnærmet flatt og har ikke tilstrekkelig fall mot sluk.
- Øvrige rom, TG2: Ventilasjonen vurderes til å ikke være tilfredsstillende. Vegger i garasje har sprekker.
- Rom under terreng (underetasje), TG2: Ventilasjonen vurderes til å ikke være tilfredsstillende.
- Krypkjeller, TG2: Krypekjellere har tilsig av fukt i grunn og i vegger og det er ikke etablert fuktsperre mot grunn. Mangelfull ventilering.
- Yttervegger inkl. fasader og konstruksjon, TG2: Råteskader i vindskier mot øst. Det er usikkert om kledningen er montert med tilstrekkelig lufting. Luftespalte bak trekledning er blokkert.
- Dører og vinduer, TG2: Lite fall på skifer ved vindu i entre gjør at vinduer/treverk får forkortet levetid. Ytterdør ved entre mot øst og i underetasje mangler terskelbeslag.
- Balkonger, terrasser, veranda etc., TG2: Skade i gulvbord. Begynnende råteskade i bunn av søyle fra balkong.
- Grunnmur og fundamenter, TG2: Grunnmur har slitasjer. Stedvis synlig armering fører til rustmerker på mur.
Ovennevnte er kun et utdrag fra rapporten. Se supplerende tekst i tilstandsrapporten for mer informasjon. For øvrige tilstandsgrader og tilstandsgrader grunnet alder og evt. slitasje, så henvises det til rapporten. Kjøper overtar ansvar og risiko for dette.
Standard
Løsøre og tilbehør
Integrerte hvitevarer på kjøkkenet medfølger i handelen, dette gjelder oppvaskmaskin, platetopp, kjøleskap, fryseskap, mikrobølgeovn og stekeovn.
Philips Hue lyspærer vil bli demontert før overtakelse og erstattet med ordinære lyspærer.
Videre vises det til liste fra Norges Eiendomsmeglerforbund angående løsøre og tilbehør. Produkter og installasjoner som medfølger overdras uten noen form for garantier, utover eventuell gjenværende leverandørgaranti.
Oppvarming
Luft-til-luft varmepumpe i stue (1. etasje) og kjellerstue (underetasje). Innmurt peisinnsats i stue. Gulvvarme på begge bad. Videre er boligen basert på elektrisk oppvarming ved evt. panelovner.
Det har blitt foretatt en kontroll av pipe og ildsted i 2020, utført av Drammensregionens brannvesen IKS og alt er funnet i orden.
Dersom det ikke er vegg- eller fastmonterte varmekilder i rom ved visning, følger dette heller ikke med.
Ferdigattest/brukstillatelse
Drammen kommune opplyser om at det ikke foreligger ferdigattest eller midlertidig brukstillatelse i deres arkiv. I henhold til matrikkelen for eiendommen, er bygningen først registrert tatt i bruk i år 1990. Det ble gitt rammetillatelse og igangsettingstillatelse i 1987 med godkjente byggetegninger datert 15.06.1987.
Det gjøres oppmerksom at det ikke lenger utstedes ferdigattest på tiltak det er søkt om før 1998 jf. plan- og bygningsloven §21-10. Kommunen vil ikke kreve ferdigattest for disse tiltakene og vil avvise eventuelle søknader. Bestemmelsen innebærer ikke at tiltak med manglende søknad blir lovlige, men at man ikke trenger å avslutte gamle byggesaker. Normalt sett kreves ferdigattest for alle søknadspliktige tiltak som gjøres etter plan - og bygningsloven.
Stort soverom i underetasjen er opprinnelig byggemeldt som trim/hobby/smør iht. godkjente byggetegninger datert 15.06.1987. Innredning av rommet til bruk for varig opphold er ikke bruksendret/omsøkt og er heller ikke godkjent av kommunen. Konsekvensen ved søknad kan være at rommet ikke godkjennes som varig opphold og at rommet da må brukes/tilbakeføres til opprinnelig godkjent formål. Kjøper overtar alt ansvar og risiko for dette videre.
Følgende tiltak avviker fra godkjente byggetegninger og er i følge selger endret på under oppføring av boligen, foruten om at kjøkken har blitt flyttet fra opprinnelig byggetegning og det har blitt satt inn to vinduer på nordvendt fasade som er gjort av nåværende eier.
- Balkongen i 1. etasje har blitt utvidet.
- Del av arealet til kjøkkenet har blitt utvidet/flyttet utvendig vegg. .
- Liten del av badet i 1. etasje har blitt utvidet.
- Satt inn ett vindu og en ytterdør på stort innredet soverom i underetasjen.
- Satt inn skyvedør og endret arealets utforming i mellomgang i underetasjen.
- Satt inn ett vindu på bad i underetasjen.
- Etablert veranda og utvendig trapp i tilknytning til stuen i underetasjen.
- Etablert bodareal i underetasjen med innvendig adkomst til boligen.
- Gravd ut areal under underetasjen (nåværende areal med platting).
Megler anfører at det ikke foreligger dokumentasjon på søknad til kommunen vedrørende de utførte tiltakene. Kjøper overtar risiko og ansvaret for eventuelle pålegg fra kommunen samt kostnader forbundet med dette.
Kjøper overtar eiendommen slik den framstår på visning.
Tinglyste heftelser og rettigheter
Eiendommen overdras fri for pengeheftelser.
Det er ingen tinglyste servitutter på eiendommen.
Eventuell adgang til utleie
Eiendommen har ikke separat utleieenhet. Det vil normalt være anledning til utleie av hele eiendommen eller enkeltrom, såfremt utleiearealet er bygningsmessig godkjent for varig opphold og har forsvarlige radonnivåer.
Energimerking
Komplett energiattest inkludert oppvarmingskarakter fås ved henvendelse til megler eller lastes ned fra www.krogsveen.no.
Beliggenhet og tomteforhold
Beliggenhet og tomteforhold
Beliggenhet
Eiendommen ligger i et veletablert og attraktivt boligområde. Boligen ligger fint til i et boligfelt som oppleves som barnevennlig og rolig. Beliggende i en blindvei, som medfører ingen gjennomgangstrafikk. Det er gangavstand til fotballplass samt flotte markaområder med gode turmuligheter både på sommer- og vinterstid. Gomperudløypa om vinteren har oppkjørte skispor gjennom boligfeltene på Konnerud og tar deg til Haukåstoppen eller Steglevann. Litt over 1 km til barnehage og barneskole fra eiendommen. Nærhet til Konnerud sentrum og Konnerudsenteret som er bydelens naturlige samlingssted for handel. Ca. 15 min kjøring til Drammen sentrum med et stor utvalg av sentrumsfasiliteter som caféer, kjøpesentre, restauranter, nisjebutikker m.m. i tillegg til kino, minigolf og teater.
Konnerud har en rekke fritids- og sportstilbud, med blant annet idrettsanlegg og flott turterreng innover marka. Drammens største kunstgressanlegg for fotball, lysløpe fra Konnerud stadion og Imjelt golfsenter er noe av det Konnerud har å by på. Konnerud IL er et av Norges største idrettslag og er aktive i flere idretter med tilhørende idrettsanlegg. Flott langrennsarena hvor det har vært World Cup arrangement med tilhørende standard med bla kunstsnø anlegg. Oppgradert is-anlegg i tilknytning til bandy med toppmoderne is-fasiliteter og varmestue. Anlegget er kunstgress sommerstid og skøytebane på vinteren med bakkekjøling som gir flotte is-forhold selv ved mildvær.
Kort gangavstand til bussholdeplass langs Konnerudgata med bussforbindelser til Drammen sentrum, se www.brakar.no for rutetider. Det er ca. 10 minutters kjøring fra eiendommen til Drammen togstasjon, hvor toget tar deg til Oslo på ca. 35 minutter, se www.vy.no for avganger. Generelt god offentlig kommunikasjon mot Kongsberg, Oslo og Sandefjord fra Drammen sentrum.
Adkomst
Det vil bli skiltet med Krogsveen visningsskilt ved fellesvisninger. Se kart i nettannonse eller Google Maps for nærmere veibeskrivelse. Velkommen til visning!
Barnehager, skoler og fritid
Godt sammensatt tilbud av private og offentlige barnehager.
Barnehager: Blåbærtoppen barnehage (1,1 km), Espira Vannverksdammen barnehage (1,4 km), Lassebakken barnehage (2 km).
Skoler: Hallermoen barneskole (1,2 km) og Svensedammen ungdomsskole (3,5 km).
Drammen kommune har tre private barne- og ungdomsskoler, Drammen Realfagsskole Heltberg, Norlights Montessoriskole Drammen og Rosendal skole (Mjøndalen).
Det ligger flere videregående skoler i Drammen og Lier, samt Universitetet i Sørøst-Norge som har campus på Papirbredden i Drammen, for mer informasjon se www.usn.no.
Dersom skole- og barnehagetilbud er av betydning for kjøpet, ber vi om at det rettes en særskilt henvendelse til kommunen for oppdatert informasjon.
Beskrivelse av tomt
Eiertomt på 1 336 kvm. Skrånende tomt som er opparbeidet med gressplen, hekk og diverse beplantninger. Forøvrig er skråningen bestående av naturtomt. Gårdsplassen er belagt med belegningsstein.
Store deler av opparbeidet hekk mot veien, liten del av innkjørselen og del av gruset parkeringsplass langs veien er opparbeidet på en kommunaleid eiendom, se kartutsnitt for tomtegrenser. Kjøper påtar seg risikoen for fortsatt bruk og fremtidig bruk samt eventuelle pålegg fra kommunen.
Parkering
Parkering i integrert garasje på ca. 32 kvm. Garasjen har fliser på gulv, malte vegger og ubehandlede gipsplater i himling. Montert lader for el-bil i 2022 i garasjen.
Forøvrig er det parkering foran garasjen.
Vei, vann og avløp
Eiendommen har adkomst via kommunal vei.
Eiendommen er tilknyttet kommunalt ledningsnett via private stikkledninger. Eier er selv ansvarlig for private stikkledninger til boligen.
Regulerings-og arealplaner
Eiendommen ligger i et uregulert område men er avsatt til boligbebyggelse med krav til vannforsyning, avløp, vei og annen transpport, samt er deler av eiendommen avsatt til høyspenningsanlegg inkl. høyspentkabler (øverste hjørnet av eiendommen) ved kommuneplanens arealdel for Drammen kommune 2025-2037 vedtatt 18.06.2025. Utsnitt av planer med tilhørende bestemmelser kan fås ved henvendelse til megler.
Det er etter info fra Drammen kommune registrert et pågående boligprosjekt på naboeiendommen (Tiurveien 30A og B). Prosjektet omfatter riving av eksisterende garasje og oppføring av ny tomannsbolig. Det må påregnes støy o.l. fra byggeprosjektet under utbyggingen.
Økonomi
Økonomi
Kommunale utgifter
Kommunale avgifter (vann og avløp): kr 16.868,- pr. år (3 terminer), fakturert på eiendommen i 2024. Avgiftene vil variere etter forbruket i boligen.
Renovasjonskostnader: kr 4.930,- pr. år (2 terminer). Type renovasjonsordning: Standard renovasjon, 2025.
Det opplyses om at Drammen kommune har varslet om en vesentlig fremtidig økning av kommunale avgifter.
I tillegg påløper det en kostnad på kr 578,- pr. år for boliger med minst ett aktivt røykrør (kostnad pr. 2025). Det påløper også kostnader for feiing av ildsted, kontroll av fyringsanlegg m.m. Frekvens på feiing samt tilsyn er avhengig av behov og vurderes av feieren.
Det må påregnes kostnader til strøm og nettleie, dette vil variere avhengig av strøm-/nettselskap. Nåværende eier har et strømforbruk på ca. 40.000 kWh pr. år.
For denne boligen er det inngått avtale om Norgespris i stedet for strømstøtte, avtalen på kr 50 øre inkl. mva følger eiendommen og har en bindingstid frem til 31.12.2026. Nettleie, avgifter og påslag fra kraftleverandøren kommer i tillegg. Les mer om Norgespris her: https://www.regjeringen.no/no/aktuelt/legg-fram-lov-om-norgespris-pa-straum-og-fjernvarme/id3102642/
Boligen har en årlig forsikringspremie via Gjensidige på kr 14.600,- pr. år.
Boligen er tilknyttet Viken Fiber Altibox som leverandør av tv/internett, kostnaden er avhengig av kanalvalg og hastighet på nettet.
Det må påregnes kostnader til tv/internett og innboforsikring.
Ovenstående er basert på nåværende eier/husstands senere års forbruk/utgifter. Dette vil variere avhengig av antall beboere, ønsket innetemperatur, egne fordelsavtaler, kanalvalg, hastighet på bredbånd m.m.
Formuesverdi
Formuesverdi for 2024 var kr 2 027 237,- ifølge skatteetaten. Beløpet forutsetter at eier bor fast i boligen (primærbolig).
Ved eventuell øvrig bruk av eiendommen (f.eks. fritidsbolig, pendlerbolig, utleieobjekt) var formuesverdien for 2023 kr 8 108 949,-.
Formuesverdien justeres normalt årlig. Se skatteetaten.no for mer informasjon om fastsettelse av formuesverdien.
Omkostninger
9 200 000,00 Prisantydning
Omkostninger
230 000,00 Dokumentavgift til staten (2,5% av kjøpesum)
19 900,00 Gjensidige Boligkjøperpakke (valgfri)
545,00 Tinglysing panterettsdokument
545,00 Tinglysing skjøte
--------------------------------------------------------
250 990,00 Omkostninger totalt
--------------------------------------------------------
9 450 990,00 Totalpris inkl. omkostninger
--------------------------------------------------------
Totalpris inkl. omkostninger forutsetter kjøp til prisantydning.
Det tas forbehold om endringer i avgifter og gebyrer.
Tilbud om lånefinansiering
Megler formidler gjerne kontakt med rådgiver hos vår samarbeidspartner BN Bank. De har konkurransedyktige betingelser samt rask og løsningsorientert behandling av din lånesøknad. Krogsveen mottar et honorar dersom lån opprettes.
Betalingsbetingelser
Kjøpesum inkludert omkostninger, samt pantedokument tilknyttet eventuelt lån, skal være disponibelt hos megler 2 virkedager før overtagelsen.
Annen viktig informasjon
Annen viktig informasjon
Eier
Michiel Tarald Engeland og Nina Kristin Engeland
Overtakelse
Etter nærmere avtale.
Boligselgerforsikring
Selger har i forbindelse med salget tegnet boligselgerforsikring levert av Gjensidige.
Boligselgerforsikringen dekker selgers ansvar etter avhendingsloven begrenset oppad til kr 14 millioner. Dersom kjøper oppdager forhold ved eiendommen som hen mener utgjør en mangel ved eiendommen, vil Gjensidige behandle reklamasjonen på vegne av selger. Forsikringsvilkår kan fås ved henvendelse til megler.
Vedlagt salgsoppgaven følger selgers egenerklæringsskjema og tilstandsrapport. Interessenter må sette seg inn i dokumentene før bud inngis.
Boligkjøperforsikring
Innen kontraktsmøtet må kjøper ta stilling til om det ønskes å bestille Boligkjøperpakken gjennom Gjensidige. I denne gunstige pakken er boligen ferdig forsikret og inkluderer rettshjelpsforsikring, også kalt Boligkjøperforsikring. Rettshjelpsforsikring gir trygghet og tilgang på profesjonell juridisk hjelp dersom det oppdages uventede feil eller mangler det første året etter overtagelse. Forsikringsselskapet behandler i så fall ethvert mangelskrav kjøper måtte ha overfor selger.
Boligkjøperpakken inkluderer bygningsforsikring for hus og hytte, innboforsikring, flytteforsikring og dobbel rentedekning - i situasjoner hvor kjøper ikke får solgt nåværende primærbolig.
Kjøper mottar ingen særskilt faktura for Boligkjøperpakken da kostnaden det første året legges til kjøpesummen for boligen. Det gjøres oppmerksom på Krogsveen mottar et honorar for denne formidlingen.
Produktark for Boligkjøperpakken ligger vedlagt i salgsoppgaven.
Dersom ikke boligkjøperpakke ønskes kan kun rettshjelpsforsikring, også kalt boligkjøperforsikring, tegnes særskilt via megler. Rettshjelpsforsikringen varer i 5 år fra overtagelse og leveres gjennom Gjensidige. Ta kontakt med megler for ytterligere informasjon.
Selskap og privatpersoner som driver med kjøp/salg/utvikling som ledd i egen næringsvirksomhet kan ikke tegne boligkjøperpakke eller rettshjelpsforsikring.
Budgivning
Forbrukerinformasjon om budgivning er vedlagt denne salgsoppgaven og er også på vår hjemmeside Krogsveen.no. Alle bud og budforhøyelser må inngis skriftlig. I tillegg må legitimasjon være fremlagt sammen med signatur fra budgiver.
Vi oppfordrer til å gi bud elektronisk via GI BUD-knappen på eiendommens hjemmeside på Krogsveen.no. Da vil samtlige vilkår bli oppfylt.
Eventuelle forhøyelser eller endringer av budet kan bekreftes pr SMS eller på e-post. Vi oppfordrer alltid til å kontakte megler pr. telefon i tillegg da forsinkelser i SMS og e-post kan forekomme.
For at budene skal kunne bli behandlet og videreformidlet skriftlig til alle involverte parter, må alle bud ha en tilstrekkelig lang akseptfrist, jf. eiendomsmeglingsforskriften § 6-3.
Selger må også skriftlig akseptere budet før aksept kan formidles til budgiver. Akseptfrist bør derfor være på minimum 30 minutter, og budforhøyelser må derfor skje i god tid før fristens utløp.
Bud i forbrukerforhold kan uansett ikke settes med kortere frist enn kl. 12.00 første virkedag etter siste annonserte visning. I tillegg kan ikke budet ha forbehold om at det skal holdes hemmelig ovenfor øvrige interessenter. Megler har iht lov om eiendomsmegling ikke anledning til å videreformidle disse budene, og de vil dermed heller ikke bli journalført.
Etter at eiendommen er solgt vil kjøper og selger få tilsendt budjournal. Øvrige budgivere kan få utlevert kopi av budjournalen i anonymisert form.
Hvitvaskingsreglene
I henhold til lov om hvitvasking og terrorfinansiering har megler plikt til å gjennomføre kontrolltiltak overfor kunder, herunder fullmektiger. Dette innebærer bl.a. å bekrefte kunders og reelle rettighetshaveres identitet på bakgrunn av fremvist gyldig legitimasjon eller på annen godkjent måte, samt å innhente opplysninger om kundeforholdets formål og tilsiktede art.
Dersom slike kundetiltak ikke kan gjennomføres, kan megler ikke etablere kundeforholdet eller utføre transaksjonen.
Hvis kjøper ikke bidrar til gjennomføring av kundekontrollen og dette fører til at transaksjonen blir forsinket eller ikke kan gjennomføres, vil dette ansees som mislighold av avtalen og gi selger rettigheter etter avhendingslova kapittel 5. I tilfeller der selger ikke bidrar til gjennomføring av løpende kundekontroll underveis i oppdraget, er det selger som misligholder sine forpliktelser etter avtalen og gi kjøper rettigheter etter avhendingslovens kapittel 4. Partene er selv ansvarlige for eventuelle kostnader og ansvar dette kan medføre. Eiendomsmegleren eller eiendomsmeglingsforetaket kan ikke holdes ansvarlig for de konsekvenser dette vil kunne få for partene eller andre som har interesser i eiendomshandelen.
Kjøper oppfordres til å innbetale kjøpesummen som ikke kommer fra låneinstitusjon i én samlet innbetaling fra egen konto i norsk bank. Megler har plikt til å melde fra til Økokrim om eiendomshandler som fremstår som mistenkelige. Melding sendes Økokrim uten at partene varsles.
Personopplysningsloven
I henhold til personopplysningsloven gjør vi oppmerksom på at interessenter kan bli registrert for videre oppfølging.
Lovanvendelse
Generelle bestemmelser
Salgsoppgaven er basert på de opplysningene selger har gitt til megler, den bygningssakyndiges tilstandsrapport, samt opplysninger innhentet fra kommunen, Kartverket og andre tilgjengelige kilder. Det er viktig at kjøper setter seg grundig inn i alle salgsdokumentene, herunder salgsoppgave, tilstandsrapport og selgers egenerklæring. Kjøper anses kjent med forhold som er tydelig beskrevet i salgsdokumentene, og slike forhold kan ikke påberopes som mangler. Dette gjelder uavhengig av om kjøper har lest dokumentene. Alle interessenter oppfordres til å undersøke eiendommen nøye, gjerne sammen med fagkyndig før bud inngis. Kjøper som velger å kjøpe usett kan ikke gjøre gjeldende som mangel noe han burde blitt kjent med ved undersøkelsen.
Dersom det er behov for avklaringer, anbefaler vi at interessenter rådfører seg med eiendomsmegler eller egne rådgivere før det legges inn bud.
En bolig som har blitt brukt i en viss tid, har vanligvis blitt utsatt for slitasje og skader kan ha oppstått. Slik bruksslitasje må kjøper regne med, og det kan avdekkes enkelte forhold etter overtakelse som nødvendiggjør utbedringer. Normal slitasje og skader som nødvendiggjør utbedring, er innenfor hva kjøper må forvente og vil ikke utgjøre en mangel.
Kjøper og selgers rettigheter og plikter reguleres av avtalen mellom partene, samt informasjonen som har vært tilgjengelig for kjøperen i forbindelse med handelen. Avtalen utfylles av avhendingsloven, og det gjelder ulike avtalevilkår avhengig av om kjøper er forbrukerkjøper eller ikke. Dette er nærmere beskrevet nedenfor.
På grunn av ulike avtalevilkår kan selger vurdere bud fra en som ikke er forbruker, ulikt fra en forbrukers bud. Dersom kjøper ikke er forbruker, er selger sitt mulige mangelsansvar begrenset fordi eiendommen selges "som den er". Selger kan ikke ta «som den er»- forbehold overfor en forbrukerkjøper. Selv et lavere bud fra en som ikke er forbruker kan foretrekkes fordi begrensningen i mulig mangelsansvar kan ha egenverdi for selger. Selger står fritt til å forkaste eller akseptere ethvert bud, og er for eksempel ikke forpliktet til å akseptere høyeste bud.
Budgiver skal i budskjema avgi egenerklæring om budgiver er forbruker eller næringsdrivende/ person som hovedsakelig handler som ledd i næringsvirksomhet. Budgivere får informasjon dersom andre bud er inngitt av en som ikke er forbruker.
Forbrukerkjøp - definisjon
Med forbrukerkjøp menes kjøp av eiendom når kjøperen er en fysisk person som ikke hovedsakelig handler som ledd i næringsvirksomhet.
Forbruker – avtalevilkår
Eiendommen har en mangel dersom den ikke er i samsvar med kravene som følger av avtalen, eller det foreligger brudd på bestemmelsene i avhendingsloven §§ 3-2 til 3-8. Hvis eiendommen ikke er i samsvar med det kjøperen må kunne forvente ut ifra alder, type og synlig tilstand, kan det være grunnlag for mangelskrav. Det samme gjelder hvis det er holdt tilbake eller gitt uriktige opplysninger om eiendommen. Dette gjelder likevel bare dersom man kan gå ut ifra at det virket inn på avtalen at opplysningen ikke ble gitt eller at mangelskravet ikke blir rettet i tide på en tydelig måte.
Boligen kan ha en mangel etter avhendingsloven § 3-3 andre ledd, dersom det er avvik mellom opplyst og faktisk innvendig areal, forutsatt at avviket er på 2% eller mer og minimum 1 kvm.
Ved beregning av et eventuelt prisavslag eller erstatning må kjøper selv dekke tap/kostnader opptil et beløp på kr 10 000 (egenandel).
Ikke-forbruker (næringsdrivende) – definisjon
Hvis kjøper er en juridisk person, eller en fysisk person som hovedsakelig handler som ledd i næringsvirksomhet, vil kjøpet ikke anses som et forbrukerkjøp.
Ikke-forbruker – avtalevilkår
Eiendommen har en mangel dersom den ikke er i samsvar med kravene som følger av avtalen.
Eiendommen selges «som den er», og selgers ansvar utover det konkret avtalte er da begrenset etter avhendingsloven § 3-9, første ledd andre setning.
Avhendingsloven § 3-3 andre ledd fravikes, og hvorvidt boligens arealsvikt utgjør en mangel vurderes etter avhendingsloven § 3-8.
Informasjon om kjøpers undersøkelsesplikt, herunder oppfordringen om å undersøke eiendommen nøye, gjelder også for kjøpere som ikke anses som forbrukere.
Det forutsettes at hjemmel overføres til kjøper. Hvis kjøper ikke ønsker hjemmelsoverføring av eiendommen, må det tas forbehold om dette i budet.
Meglers vederlag
Meglers vederlag betales av selger og er avtalt til:
Vederlag: 0,80 % av salgssummen
Minimumsprovisjon er kr 60 000,00
Vederlag:
Kontroll av hjemmel og heftelser kr 2 900,00
Kunderabatt - Tidligere kunde kr -5 000,00
Markedsføringspakke kr 27 400,00
Oppgjør kr 7 500,00
Tilrettelegging kr 17 000,00
Visninger kr 4.000 pr stk. 2 visninger er ink.
Utlegg:
Innhenting av feierrapport fra Drammensreg. Brannvesen kr 573,00
Innhenting av off. oppl. Drammen kommune inkl. tegninger og RFD kr 2 833,00
Tinglysing sikring kr 545,00
Andre utgifter:
Boligfotografering Utebilder høst og dagbilder vinter (2 ganger) Kveld kr 3.000,- i tillegg kr 7 000,00
Boligfotografering utebilder kveld kr 3 500,00
Boligselgerforsikring Gjensidige kr 57 100,00
Stylist rådgivning kr 2 750,00
Tilstandsrapport kr 25 000,00
Vi er opptatt av verdiskapning, og har knyttet til oss samarbeidspartnere som skal sikre våre kunder de beste produkter og tjenester;
• I forbindelse med forberedelse av salget, innhenter vi informasjon om eiendommen hovedsakelig fra vår samarbeidspartner Amibita.
• Gjensidige leverer boligselgerforsikring og tilbyr bygningsforsikring
• Boligkjøperforsikring leveres av Hiscox og med Sedgwick som skadebehandler, og er formidlet gjennom Gjensidige.
• BN bank tilbyr finansieringsløsninger
• Vår avdeling Krogsveen Pluss tilbyr flyttetjenester som utvask, visningsvask, lager, tømming og transport av flyttelass, i tillegg til å formidle kontakt med Flip for overflateoppussing.
• I forbindelse med overtagelse av eiendommen tilbyr Overo avtale om strøm, alarm og bredbånd.
• Krogsveen er, sammen med øvrige bransjeaktører, medeier i den digitale annonseringsplattformen Hjem som eies av Bomega AS.
Opplysninger om oppdraget
Oppdragsnummer 20-0364/25
Eiendomsmegler Krogsveen AS, avd. Drammen
Nedre Storgate 16, 3015, DRAMMEN
950 007 613
Oppdragets KR-kode KR20.25364
Dato
Sist oppdatert: 15. april 2026 kl. 14:26
Dokumenter
Dokumenter
PDF – 1015 KB
PDF – 994 KB
PDF – 384 KB
PDF – 744 KB
PDF – 312 KB
PDF – 29 KB
PDF – 127 KB
PDF – 392 KB
Område
Legg til steder som er viktige for deg
Visning
For å delta på visning, ber vi om at du melder deg på. Da sikrer vi at du får nødvendig informasjon og at det er satt av tilstrekkelig med tid. Kontakt megler dersom annet tidspunkt ønskes. Husk å lese salgsoppgaven før visningen, så du stiller forberedt. NB. Visning utgår dersom det ikke er noen påmeldte. Ønsker du kun å bli holdt orientert, kan du fra eiendommens hjemmeside få varsel om solgtpris, eller kontakte megler.
Lurer du på noe?
Unngå doble boligrenter
Vi tilbyr gunstig forsikring.
Vurderer du utleie?
Få et tilbud fra Utleie KrogsveenHva koster lånet?
Sjekk estimert lånekostnadVil du varsles om lignende boliger?
Ved å lagre ditt boligsøk hos oss får du beskjed når vi har en bolig som ligner denne, før den legges ut på markedet!






































