Thorvald Meyers gate 5
3 800 000 kr
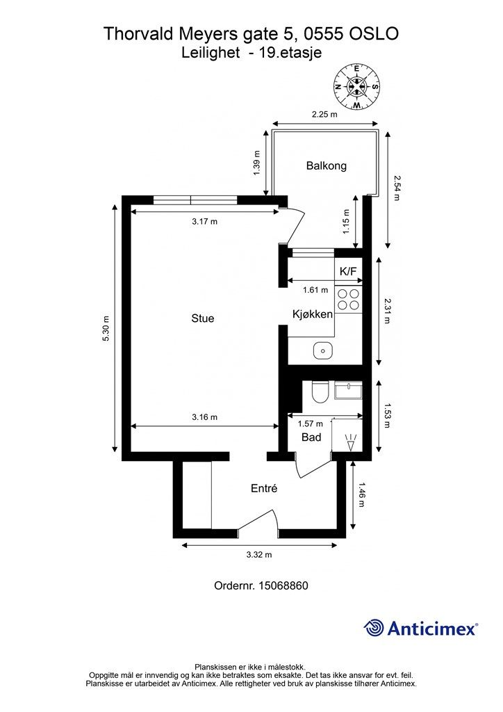
29 m²
1 soverom
Solgt

Presenteres av
Marcus BlohmGrünerløkka
Lys og arealeffektiv toppleilighet med balkong på ettertraktede Løkka! Perfekt førstegangskjøp. Fyring/Varmtvann inkl.
Prisantydning
3 800 000 krAndel fellesgjeld
411 000 krOmkostninger
19 252 krTotalpris
4 230 252 kr
Pris
Bruksareal
31 m²BRA-I (internt bruksareal)
29 m²BRA-E (eksternt bruksareal)
2 m²TBA (terrasse-balkongareal)
5 m²
Areal
Etasje
19Byggeår
1966Soverom
1 soveromBad
1 badType
AndelsleilighetEierform
AndelFasiliteter
Heis og Balkong/TerrasseFellesutgifter
5 106 krEnergimerke
Grønn G
Nøkkelinfo
Unngå doble boligrenter
Vi tilbyr gunstig forsikring.
Vurderer du utleie?
Få et tilbud fra Utleie KrogsveenHva koster lånet?
Sjekk estimert lånekostnadBeskrivelse
Kort om eiendommen
Krogsveen v/Marcus Blohm har gleden av å presentere Thorvald Meyers gate 5 - En lys og arealeffektiv toppleilighet med kvadratsmart planløsning og en herlig balkong. Det perfekte førstegangskjøp! Her bor du med en svært ettertraktet beliggenhet på populære Grünerløkka. Beliggenheten gir deg nærhet til "alt". Denne vil du ikke gå glipp av!
Verdt å merke seg:
Kvadratsmart planløsning
Topp- og endeleilighet
Perfekt førstegangskjøp
Bad rehabilitert i 2022
Romslig balkong - perfekt for varme sommerdager!
Oppbevaringsplass i disponibel bod
Varmtvann, fyring og internett inkl. i felleskostnadene
Muligheter for garasjeleie etter venteliste
Ettertraktet beliggenhet med nærhet til "alt"
Velkommen til visning!
Område
Legg til steder som er viktige for deg
På flyttefot? Tenk kjøp og salg samtidig.
Få din egen rådgiver gjennom hele kjøps- og salgsprosessen. Det starter med en verdivurdering.
Unngå doble boligrenter
Vi tilbyr gunstig forsikring.
Vurderer du utleie?
Få et tilbud fra Utleie KrogsveenHva koster lånet?
Sjekk estimert lånekostnadVil du varsles om lignende boliger?
Ved å lagre ditt boligsøk hos oss får du beskjed når vi har en bolig som ligner denne, før den legges ut på markedet!
På flyttefot? Slik gjør vi det enklere for deg
Skreddersydd flyttepakke
Vi fikser håndverkere, vask, pakking, lagring og transport, og legger ut for utgiftene underveis.
Hjelp med både kjøp og salg
Hos oss har du din egen rådgiver gjennom hele kjøps- og salgsprosessen.
Hjelp til finansiering
Vårt samarbeid med BN Bank sikrer deg rask og løsningsorientert hjelp, til konkurransedyktige betingelser.

