Ammerudhellinga 76
2 850 000 kr
31 m²
1 soverom
Solgt

Presenteres av
Emir MekicAmmerud
Lys og arealeffektiv 1-romsleilighet med solrik innglasset balkong. V.V./fyr inkl. Markanært. Perfekt førstegangskjøp!
Prisantydning
2 850 000 krAndel fellesgjeld
121 219 krOmkostninger
19 446 krTotalpris
2 990 665 kr
Pris
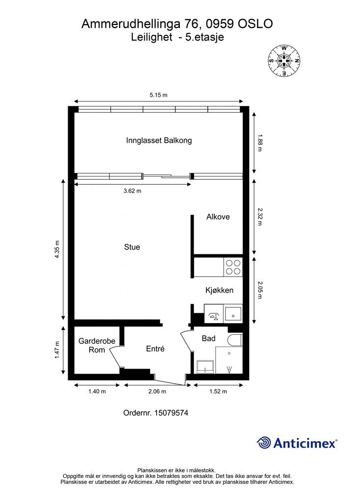
Bruksareal
42 m²BRA-I (internt bruksareal)
31 m²BRA-E (eksternt bruksareal)
1 m²
Areal
Etasje
5Byggeår
1966Soverom
1 soveromBad
1 badType
AndelsleilighetEierform
AndelFasiliteter
Heis og Balkong/TerrasseFellesutgifter
3 507 krEnergimerke
Grønn E
Nøkkelinfo
Unngå doble boligrenter
Vi tilbyr gunstig forsikring.
Vurderer du utleie?
Få et tilbud fra Utleie KrogsveenHva koster lånet?
Sjekk estimert lånekostnadBeskrivelse
Kort om eiendommen
Emir Mekic ved Krogsveen har gleden av å presentere Ammerudhellinga 76 - Supert førstegangskjøp med nærhet til offentlig transport, butikk og kort vei til marka!
Verdt å merke seg om boligen:
Godt førstegangskjøp
Arealeffektiv planløsning
Bad pusset opp i regi av borettslaget i perioden 2010
Solrik vestvendt innglasset balkong på 10 m²
Store vindusflater som gir godt med naturlig lys
Fellesvaskeri inkl. i felleskostnadene
Kjellerbod
2 heiser i etasjen
Varmtvann, fyring, fiber og fellesvaskeri inkludert i felleskostnadene
Kort vei til offentlig transport, butikker og servicetilbud
Flotte tur- og rekreasjonsmuligheter i nærheten
Velkommen til visning!
Område
Legg til steder som er viktige for deg
På flyttefot? Tenk kjøp og salg samtidig.
Få din egen rådgiver gjennom hele kjøps- og salgsprosessen. Det starter med en verdivurdering.
Unngå doble boligrenter
Vi tilbyr gunstig forsikring.
Vurderer du utleie?
Få et tilbud fra Utleie KrogsveenHva koster lånet?
Sjekk estimert lånekostnadVil du varsles om lignende boliger?
Ved å lagre ditt boligsøk hos oss får du beskjed når vi har en bolig som ligner denne, før den legges ut på markedet!
På flyttefot? Slik gjør vi det enklere for deg
Skreddersydd flyttepakke
Vi fikser håndverkere, vask, pakking, lagring og transport, og legger ut for utgiftene underveis.
Hjelp med både kjøp og salg
Hos oss har du din egen rådgiver gjennom hele kjøps- og salgsprosessen.
Hjelp til finansiering
Vårt samarbeid med BN Bank sikrer deg rask og løsningsorientert hjelp, til konkurransedyktige betingelser.

