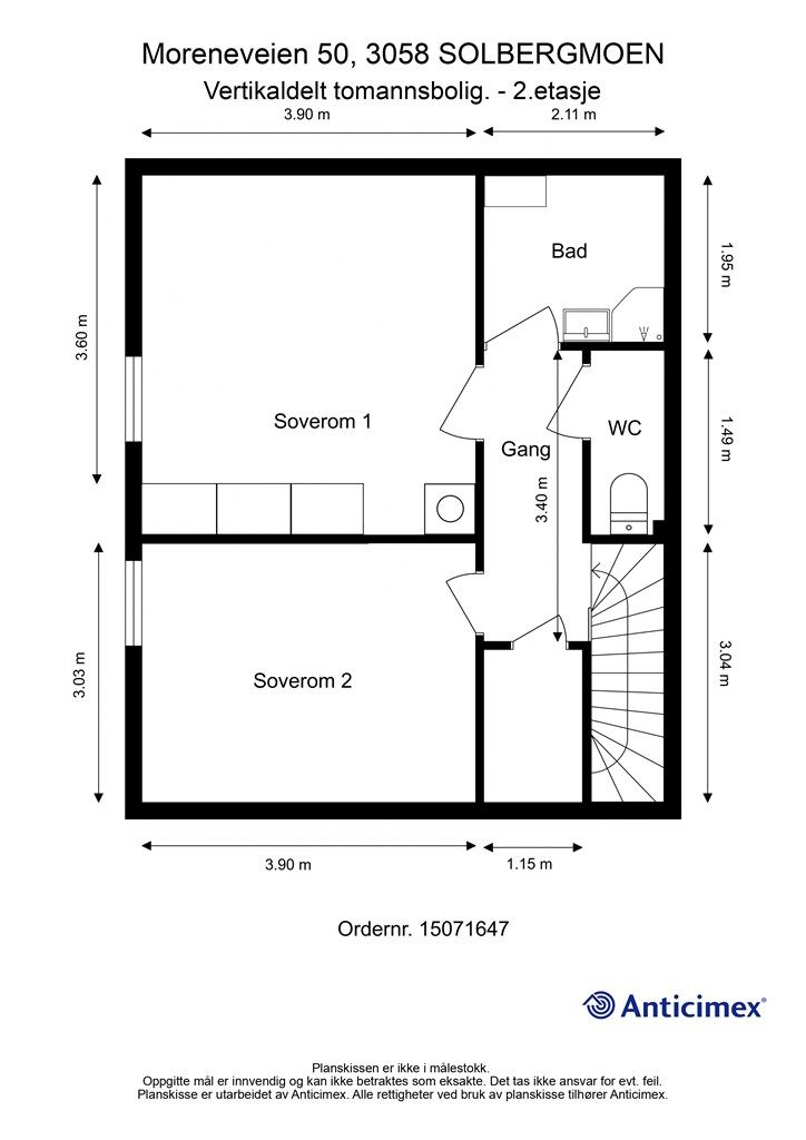
Moreneveien 50
3 000 000 kr
122 m²
2 soverom
Solgt

Presenteres av
Morten Solberg HelgerudSolbergmoen
Halvpart av vertikaldelt tomannsbolig med 3 etasjer. Stor og frodig hage. Garasje. Oppussingsobjekt. Rolig boligområde.
Prisantydning
3 000 000 krOmkostninger
95 990 krTotalpris
3 095 990 kr
Pris
Bruksareal
151 m²BRA-I (internt bruksareal)
122 m²BRA-E (eksternt bruksareal)
29 m²
Areal
Etasje
3Byggeår
1963Soverom
2 soveromBad
1 badTomteareal
695 m² (eiet)Type
Halvpart vertikaldelt boligEierform
EietFasiliteter
Garasje/P-plassEnergimerke
Gul G
Nøkkelinfo
Unngå doble boligrenter
Vi tilbyr gunstig forsikring.
Vurderer du utleie?
Få et tilbud fra Utleie KrogsveenHva koster lånet?
Sjekk estimert lånekostnadBeskrivelse
Kort om eiendommen
Halvpart av vertikaldelt tomannsbolig med 3 etasjer.
Boligen er å anse som et oppussingsobjekt
Stue/spisestue med peisovn fra 2019 og varmepumpe
Profilert kjøkken med delvis integrerte hvitevarer
Bad og wc-rom i 2. etg samt separat vaskerom i kjeller
Godt med lagringsplass i kaldtloft og 2 frittstående uteboder
Ny avløpsledning tilknyttet kommunalt ledningsnett (2025)
Frittstående garasje på ca. 15 kvm (inntil naboen)
Romslig tomt med stor hage som har frodige beplantninger
Attraktivt område med rolige omgivelser i nærmiljøet
Gangavstand til flotte tur- og rekreasjonsområder med lysløype
Ca. 1-1,3 km til flere barnehager, barneskole og ungdomsskole
Velkommen til visning!
Område
Legg til steder som er viktige for deg
På flyttefot? Tenk kjøp og salg samtidig.
Få din egen rådgiver gjennom hele kjøps- og salgsprosessen. Det starter med en verdivurdering.
Unngå doble boligrenter
Vi tilbyr gunstig forsikring.
Vurderer du utleie?
Få et tilbud fra Utleie KrogsveenHva koster lånet?
Sjekk estimert lånekostnadVil du varsles om lignende boliger?
Ved å lagre ditt boligsøk hos oss får du beskjed når vi har en bolig som ligner denne, før den legges ut på markedet!
På flyttefot? Slik gjør vi det enklere for deg
Skreddersydd flyttepakke
Vi fikser håndverkere, vask, pakking, lagring og transport, og legger ut for utgiftene underveis.
Hjelp med både kjøp og salg
Hos oss har du din egen rådgiver gjennom hele kjøps- og salgsprosessen.
Hjelp til finansiering
Vårt samarbeid med BN Bank sikrer deg rask og løsningsorientert hjelp, til konkurransedyktige betingelser.

