Steinbukken 66
5 450 000 kr
139 m²
5 soverom
Komplett salgsoppgave
Romslig endeleilighet over 2 plan | 5 soverom, solrik terrasse og barnevennlig beliggenhet
Prisantydning
5 450 000 krOmkostninger
147 290 krTotalpris
5 597 290 kr
Pris
Bruksareal
159 m²BRA-I (internt bruksareal)
139 m²BRA-E (eksternt bruksareal)
20 m²TBA (terrasse-balkongareal)
27 m²
Areal
Etasje
2Byggeår
2022Soverom
5 soveromBad
2 badType
EierleilighetEierform
EierseksjonFasiliteter
Garasje/P-plass og Balkong/TerrasseÅrlig velavgift
3 000 krFellesutgifter
3 335 krEnergimerke
Rød B
Nøkkelinfo
Unngå doble boligrenter
Vi tilbyr gunstig forsikring.
Vurderer du utleie?
Få et tilbud fra Utleie KrogsveenHva koster lånet?
Sjekk estimert lånekostnadBeskrivelse
Kort om eiendommen
Velkommen til Steinbukken 66 - en romslig og innbydende endeleilighet over to plan, beliggende i et attraktivt og barnevennlig område på Neskollen. Boligen ligger i 2. etasje og byr på hele 5 soverom, 2 stuer og 2 bad, noe som gir god plass og fleksible løsninger for familier i ulike livsfaser.
Leiligheten har gjennomgående god standard og en praktisk planløsning som gir rom for både fellesskap og privatliv. Fra stuen er det utgang til en stor, solrik terrasse med gode solforhold - en naturlig forlengelse av oppholdsrommet i sommerhalvåret.
Her bor dere trygt og rolig med kort vei til skole, barnehage, lekeplasser, butikker og flotte turområder. Carport gir enkel parkering. Et hjem som kombinerer god plass, komfort og en velfungerende hverdag.
Velkommen til visning!
Innhold og byggemåte
Innhold og byggemåte
Eiendommen
Steinbukken 66, 2165 HVAM
Kommunenummer 3228, gårdsnummer 79, bruksnummer 488, seksjonsnummer 34, ideell andel 1/1
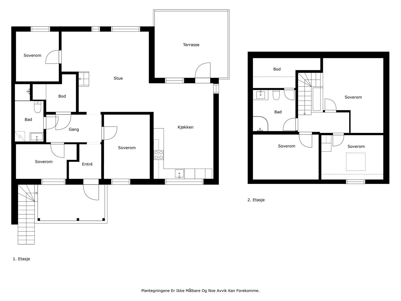
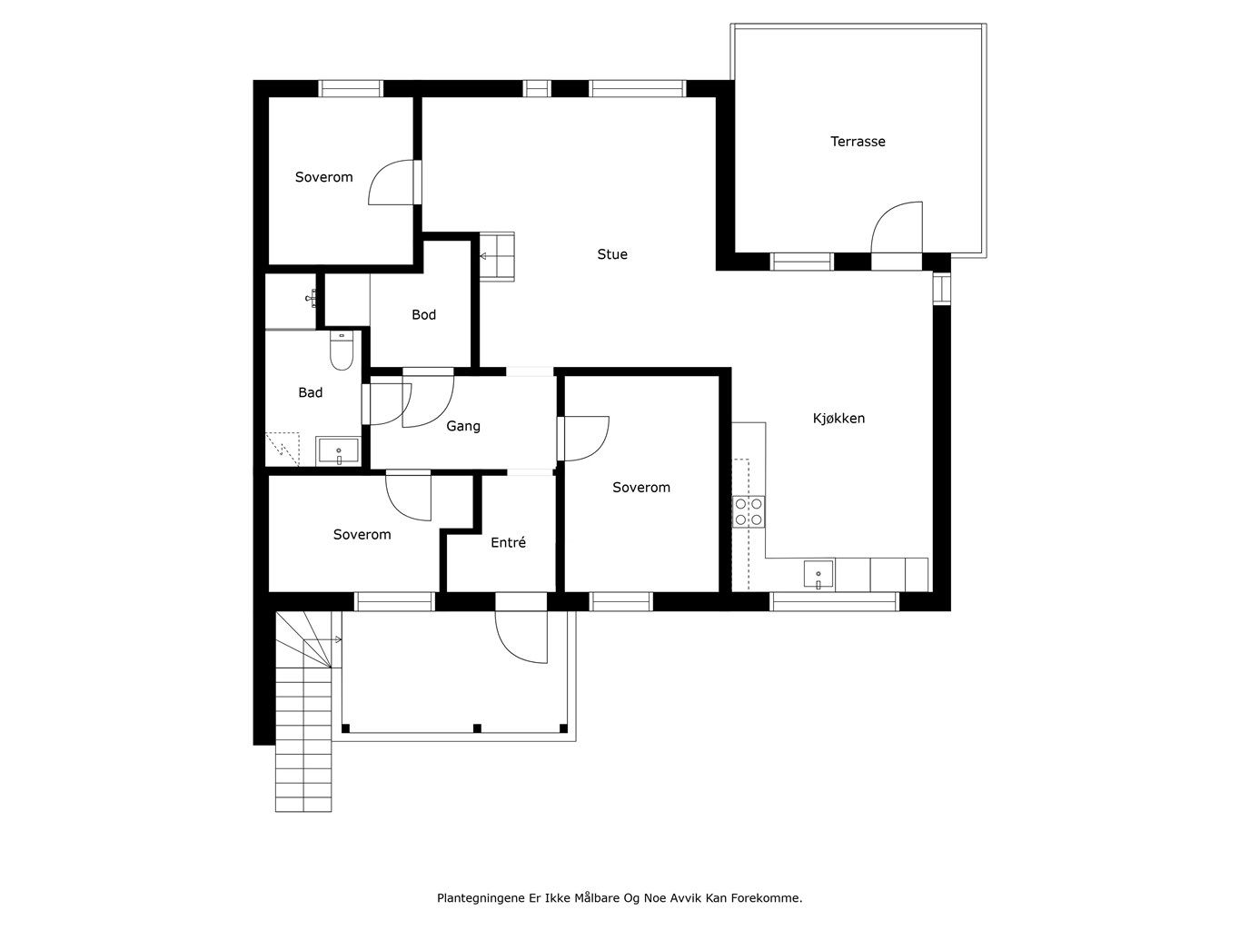
Innhold
Totalt bruksareal BRA: 144 kvm
BRA-i:
Leilighet:
2. etasje 93 kvm: Vindfang, gang, stue, kjøkken, bad, sov.1, sov.2, sov.3 og bod.
3. etasje 46 kvm: Sov.1, sov.2, stue, gang, bad og bod.
BRA-e:
Leilighet:
1. etasje 5 kvm: Utvendig bod.
Åpent areal:
Leilighet:
2. etasje 27 kvm: Altan og veranda.
Loftsetasjen har skråtak, og enkelte deler av rommene har lavere takhøyde enn det som kreves for å regnes som måleverdig areal (under 1,9 meter). Disse arealene er derfor ikke inkludert i boligens bruksareal (BRA), men er oppgitt som tilleggsinformasjon under betegnelsen AHL – areal med lav takhøyde. Det er gangbart gulv helt ut mot ytterveggene, men på grunn av lav takhøyde er dette altså registrert som AHL.
I tillegg finnes det et kaldloft med tilkomst via veggluke i loftsetasjen. Dette rommet har ikke tilstrekkelig høyde eller varig tilkomst, og er derfor verken medtatt i BRA eller AHL. GUA (Gulvareal) oppgis som en sum av BRA (Bruksareal) og ALH (Areal med lav takhøyde). BRA 46m² + AHL 21m² = GUA 67m².
Boligen disponerer en utvendig sportsbod på enden av bygget. Boden er tinglyst som en tilleggsdel til seksjonen.
Vedlagte plantegninger er ikke målbare. De oppgitte arealer er hentet fra rapport med befaringsdato 28.04.2025 utført av Thomas Vestrum.
Byggemåte
Selger har fått utarbeidet en eierskifterapport, dvs. en teknisk gjennomgang av boligen hvor eventuelle avvik, risiko for kjøper og prisoverslag for hva som bør gjøres av oppgradering, er skissert. Se særskilt TGIU (tilstandsgrad ikke undersøkt), samt TG2 og TG3 som viser hva som er boligens normale slitasje, alder og type, hva som er avvik fra dette og hva som bør/må utbedres. Rapporten og selgers egenerklæring er en del av salgsoppgaven og må leses nøye før bud inngis. Kjøper overtar ansvaret for de opplysninger som fremkommer av salgsdokumentasjonen, og kan ikke gjøre gjeldende som mangel noe som burde vært kjent eller som ikke kan anses å ha betydning for avtalen.
Bygningen er iht. eierskifterapporten oppført i tre. Les forøvrig mer om byggemåte og den tekniske tilstanden i rapporten.
Selger informerer videre i henhold til egenerklæringsskjema:
- Har du ladeanlegg/ladeboks for el-bil i dag? Del av infrastruktur i sameiet i egen carport, ikke tilknyttet boligen direkte.
- Kjenner du til om det er innredet/bruksendret/bygget ut kjeller eller loft eller andre deler av boligen? Åpen loftsstue er lukket igjen og benyttes som soverom i dag.
- Er innredningen/utbyggingen godkjent hos bygningsmyndighetene? Ingen bruksendring nødvendig.
- Kjenner du til om sameie/laget/selskapet er involvert i tvister av noe slag? Sameiet har en pågående sak mot utbygger. Omhandler primært utvendig arealer på sameiets tomt.
Se supplerende tekst i tilstandsrapporten. Kjøper overtar ansvar og risiko for dette.
Standard
For den utfyllende tekniske standard for øvrig, henvises det til vedlagte tilstandsrapport.
Løsøre og tilbehør
Det er kun de hvitevarene som er listet opp som følger med. Disse hvitevarene følger med: Stekeovn.
Følgende hvitevarer medfølger ikke eiendommen: Kjøleskap/fryseskap, oppvaskmaskin og platetopp på kjøkken (selger etablerer ny benkeplate før overtakelse i lik stil som kjøkkenøy).
Vi viser til liste fra Norges Eiendomsmeglerforbund som gjelder fra 01.01.2020 angående løsøre og tilbehør.
Oppvarming
Boligen oppvarmes av elektrisitet ved panelovner og varmekabler i yttergang og på begge bad.
Dersom beboelsesrom ikke har vegg- eller fastmonterte varmekilder ved visning, følger dette heller ikke med.
Ferdigattest/brukstillatelse
Det foreligger ferdigattest på leiligheten, datert 28.11.2023. Denne kan fås ved henvendelse til megler.
Det fremkommer av godkjente tegninger fra kommunen at stue i 3.etasje er endret ved å etablere vegger og dør til det som idag er gang/m trapp for å etablere et ekstra soverom. Det er satt opp en lettvegg ved loftstue i tredje etasje til fordel for et ekstra soverom. Til informasjon er det i byggetegninger fra Nes kommune tegnet inn som loftstue. Ta kontakt ved megler om det er spørsmål tilknyttet dette.
Tinglyste heftelser og rettigheter
Det er tinglyst følgende servitutter på sameiets eiendom.
Dagboknr 141301, tinglyst 15.02.2017, type heftelse: Erklæring/avtale. Rettigheter og plikter ved oppføring, drift og vedlikehold av frittliggende nettstasjon. Bestemmelse om adkomstrett, bebyggelse, beplantning.
Dagboknr 1442026, tinglyst 16.11.2021, type heftelse: Seksjonering.
Dagboknr 284666, tinglyst 09.03.2021, type heftelse: Bestemmelse om elektriske ledninger/kabler. Rett til bygging, drift, vedlikehold og fornyelse av anlegg/ledninger/kabler. Bestemmelse om bebyggelse og beplantning.
Dagboknr 141339, tinglyst 15.02.2017, type heftelse: Erklæring/ avtale. Rettigheter og plikter ved oppføring, drift og vedlikehold av frittliggende nettstasjon. Bestemmelse om adkomstrett, bebyggelse, beplantning.
Servituttene vil følge eiendommen. Kjøpers bank vil få prioritet etter ovennevnte heftelser og servitutter.
Eventuell adgang til utleie
Leiligheten kan leies ut såfremt leiligheten har forsvarlige radonverdier. Leietaker må følge sameiets vedtekter og ordensregler på lik linje som eier.
Diverse
Vi er opptatt av verdiskapning, og har knyttet til oss samarbeidspartnere som skal sikre våre kunder de beste produkter og tjenester;
• Gjensidige leverer boligselgerforsikring og tilbyr bygningsforsikring
• Boligkjøperforsikring leveres av Hiscox og med Sedgwick som skadebehandler, og er formidlet gjennom Gjensidige.
• BN bank tilbyr finansieringsløsninger
• Vår avdeling Krogsveen Pluss tilbyr flyttetjenester som utvask, visningsvask, lager, tømming og transport av flyttelass, i tillegg til å formidle kontakt med Flip for overflateoppussing.
• I forbindelse med overtagelse av eiendommen tilbyr Overo avtale om strøm, alarm og bredbånd.
• Krogsveen er, sammen med øvrige bransjeaktører, medeier i den digitale annonseringsplattformen Hjem.
Beliggenhet og tomteforhold
Beliggenhet og tomteforhold
Beliggenhet
Steinbukken 66 ligger i et naturskjønt og populært boligområde på Neskollen, en del av Nes kommune. Neskollen har sitt eget sjarmerende sentrum med barnehager, en barneskole og praktiske dagligvarebutikker. Området tilbyr også omfattende rekreasjonsmuligheter, inkludert nydelige turstier og sykkelruter, samt skiløyper for vinterentusiaster.
En pittoresk turvei på omtrent 2 kilometer leder opp til Tolvstein. Her kan du nyte en fantastisk utsikt over Odalen, Årnes, Borgen, Gjerdrum og Gardermoen-tårnet. Fra Tolvstein kan du fortsette til Hvamsetertjernet, en populær badeplass med en liten strand og flytebrygge. På Neskollen har det nylig blitt åpnet en spennende pumptrack og tuftepark som gir glede til de som elsker aktiviteter og utfordringer.
Nes Golfklubb har sitt hjem på Rommen Golfpark ved Vormsund. Hvam har et eget idrettslag som tilbyr friidrett, håndball, fotball, bordtennis, klatring, barneidrett og fremmer fysisk aktivitet og folkehelse.
Dagligvarehandelen kan enkelt gjøres ved Rema 1000 eller Coop Extra. Hvis du trenger ytterligere servicetilbud, er det en kort kjøretur til Amfi Eurosenteret i Vormsund og Amfi Årnes. I tillegg ligger Jessheim Storsenter, Lillestrøm, Strømmen og Oslo innen rekkevidde med et rikt utvalg av servicetilbud.
Adkomst
Det vil bli skiltet med Krogsveen visningsskilt ved fellesvisninger.
Barnehager, skoler og fritid
Informasjon om tilhørende skolekretser er hentet fra Prognosesenteret som dataleverandør, og tilhørigheten kan årlig endres av kommunen. Dersom skole- og barnehagetilbud er av betydning for kjøpet, ber vi om at det rettes en særskilt henvendelse til kommunen/bydelsadministrasjonen for oppdatert informasjon.
Barnehager:
Øvre Neskollen naturbarnehage (1-5 år): 0,6 km
Neskollen Melkeveien barnehage (1-5 år): 1,2 km
Neskollen Tellusvegen barnehage (1-5 år): 1,4 km
Skoler:
Neskollen skole (1-7 kl.): 1,3 km
Romerike International School (1- 10kl.): 1,7 km
Vormsund ungdomsskole (8- 10kl.): 8,9 km
Runni ungdomsskole (8-10 kl.): 11,5 km
Hvam videregående: 4,3 km
Nes videregående: 11,7 km
Beskrivelse av tomt
Eiertomt på 13 743 kvm som tilhører sameiet. Tomten er fellesareal og opparbeidet med bl.a plenarealer, diverse beplantning, prydbusker og asfalterte arealer bestående av innkjøring til carporter, biloppstillingsplasser samt gangbaner.
Parkering
Biloppstillingsplass er tinglyst som tilleggsdel til boligen og det medfølger el-billader i carport merket nr. 66. Det betales kr 100 i mnd. via felleskostnader som blir avsatt til fremtidig vedlikehold.
Fastmontert lader for EL-bil følger med.
Det gjøres oppmerksom på at dagens parkeringsløsning er etablert på sameiets fellesareal, og at parkeringsplassene således ikke eies av den enkelte sameier. Dette medfører at sameiet i fellesskap beslutter bruken, og at man ikke selv har eierrett og rettsvern for parkeringsplassen. Sameiet kan ved vedtak beslutte annet bruk av fellesarealet.
Etter eierseksjonsloven § 26 kan styret, etter krav fra en seksjonseier med nedsatt funksjonsevne, pålegge en annen seksjonseier uten behov for å tilrettelagt plass å bytte parkeringsplass. Dette gjelder kun dersom seksjonseieren med nedsatt funksjonsevne allerede disponerer en parkeringsplass i sameiet.
Med samtykke fra styret kan en seksjonseier anlegge ladepunkt for elbil og ladbare hybrider ved parkeringsplassen som seksjonen disponerer, eller andre steder som styret anviser. Styret kan bare nekte å samtykke dersom det foreligger en saklig grunn, jf. eierseksjonsloven § 25.
Vei, vann og avløp
Eiendommen er tilknyttet offentlig avløp.
Eiendommen er tilknyttet privat vannverk via Årnes Vannverk.
Eiendommen har adkomst via privat vei med felles vedlikeholdsansvar for sameiet
Eiendommen er tilknyttet kommunalt ledningsnett via private stikkledninger. Eier er selv ansvarlig for private stikkledninger til boligen.
Regulerings-og arealplaner
Eiendommen er regulert til konsentrert småhusbebyggelse i henhold til reguleringsplan Neskollen felt B4 og B5 datert 13.03.2007 med tilhørende kommuneplan 2024-2036 datert 19.03.2024.
Utsnitt av plan med tilhørende bestemmelser kan fås ved henvendelse til megler.
Økonomi
Økonomi
Boligens kostnader
Fellesutgiftene er kr 3.335,- pr. mnd. og inkluderer: TV/bredbånd og generelle felleskostnader.
Fellesutgiftene justeres normalt en til to ganger årlig i forhold til sameiets faktiske utgifter. Det er per dags dato ikke planlagt noen økninger.
Det tas forbehold om at felleskostnadene kan justeres fortløpende pga. renteøkninger. Sameiet har per dags dato heller ingen lån.
Kommunale utgifter
Kommunale avgifter er kr 10.007,- for inneværende år. I dette inngår gebyr for eiendomsskatt, avløp, renovasjon og feiing/tilsyn.
Eiendommen er tilknyttet Årnes Vannverk. Vannverket fakturerer etter antall personer i husstanden.
Gebyr pr. person: kr. 1077,- pr. år.
Grunngebyr for alle abonnenter: kr. 2656,- pr. år.
Gebyr pr. m³ renset vann etter måler: kr. 29,70,- pr. m³.
Minstegebyr pr. boenhet: kr. 4812,- pr. år.
Nåværende eier har et strømforbruk som tilsvarer ca. kr 15.000,- pr. år.
Velavgift er kr 3.000,- pr. år.
Boligen er tilknyttet grunnpakke Telenor som leverandør av kabel-tv og internett, og dette er inkludert i felleskostnader. Dekoder medfølger.
Utgiftene er basert på nåværende eiers forbruk og avtaler.
Formuesverdi
Formuesverdi for 2023 var kr 1 202 994,- ifølge skatteetaten. Beløpet forutsetter at eier bor fast i boligen (primærbolig).
Ved eventuell øvrig bruk av eiendommen (f.eks. fritidsbolig, pendlerbolig, utleieobjekt) var formuesverdien for 2023 kr 4 811 975,-
Formuesverdien justeres normalt årlig. Se skatteetaten.no for mer informasjon om fastsettelse av formuesverdien.
Eiendomsskatt
Eiendomsskatten fakturert i fjor tilsvarer kr 5.909,-.
Omkostninger
5 450 000,00 Prisantydning
Omkostninger
136 250,00 Dokumentavgift til staten (2,5% av kjøpesum)
9 950,00 Gjensidige Boligkjøperpakke (valgfri)* (valgfritt)
545,00 Tinglysing panterettsdokument
545,00 Tinglysing skjøte
--------------------------------------------------------
137 340,00 Omkostninger totalt (uten Gjensidige Boligkjøperpakke (valgfri))
147 290,00 Omkostninger totalt (med Gjensidige Boligkjøperpakke (valgfri))
--------------------------------------------------------
5 587 340,00 Totalpris inkl. omkostninger
5 597 290,00 Totalpris inkl. omkostninger (med Gjensidige Boligkjøperpakke (valgfri))
--------------------------------------------------------
Betalingsbetingelser
Kjøpesum inkludert omkostninger, samt pantedokument tilknyttet eventuelt lån, skal være disponibelt hos megler 2 virkedager før overtagelsen.
Annen viktig informasjon
Annen viktig informasjon
Eier
Roger Pettersen og Martine Jørgensen
Informasjon om sameiet
Eiendommen er seksjonert, og leiligheten er tilknyttet Sameiet Steinbukken, med sameiebrøk 138/4892.
Sameiet består av 58 boligseksjoner.
Forretningsfører er Obos Eiendomsforvaltning AS, tlf. 22 86 55 00.
Dugnad må påregnes to ganger i året.
Dyrehold er tillatt så lenge det ikke er til sjenanse for øvrige beboere. Antall dyrehold er begrenset til ett pr. bolig. Styret kan søkes dersom man ønsker flere dyr.
Planlagte påkostninger: Generelt vedlikehold.
Styreleder opplyser at alle beboere må hjelpe til med snømåking av stikkveier foran boliger og sin egen inngang.
Sameiet har en pågående dialog med Trysilhus angående utbedring av feil og mangler som ble påpekt i forbindelse med overtagelsesforretning. Styret opplyser at dette i hovedsak gjelder generell manglende dokumentasjon på utført arbeid.
Vi gjør videre oppmerksom på at det iht. eierseksjonsloven ikke er anledning å erverve mer enn 2 seksjoner i sameiet, her teller også eierskap via. firma, nærstående og familie. Kjøper har risikoen for at overskjøting på denne bakgrunn kan nektes av Statens Kartverk. I så fall vil kjøper uansett være forpliktet til å gjennomføre handelen, og oppgjør til selger vil finne sted tross manglende overskjøting. Konferer med megler for mer informasjon.
Dokumenter for sameiet og kopi av seksjonsbegjæringen kan fås ved henvendelse til megler.
Overtakelse
Mulig med innflytning før skolestart.
Velforening
Pliktig medlemskap i Neskollen Velforening.
Boligselgerforsikring
Selger har ikke tegnet boligselgerforsikring. Kjøper må sette seg inn i selgers egenerklæring samt salgsoppgaven før bud inngis. Eventuelle reklamasjoner må rettes direkte til selger.
Boligkjøperforsikring
Innen kontraktsmøtet må kjøper ta stilling til om det ønskes å bestille Boligkjøperpakken gjennom Gjensidige. I denne gunstige pakken er boligen ferdig forsikret og inkluderer rettshjelpsforsikring, også kalt Boligkjøperforsikring. Rettshjelpsforsikring gir trygghet og tilgang på profesjonell juridisk hjelp dersom det oppdages uventede feil eller mangler det første året etter overtagelse. Forsikringsselskapet behandler i så fall ethvert mangelskrav kjøper måtte ha overfor selger.
Boligkjøperpakken inkluderer bygningsforsikring for hus og hytte, innboforsikring, flytteforsikring og dobbel rentedekning - i situasjoner hvor kjøper ikke får solgt nåværende primærbolig.
Kjøper mottar ingen særskilt faktura for Boligkjøperpakken da kostnaden det første året legges til kjøpesummen for boligen. Det gjøres oppmerksom på Krogsveen mottar et honorar for denne formidlingen.
Produktark for Boligkjøperpakken ligger vedlagt i salgsoppgaven.
Dersom ikke boligkjøperpakke ønskes kan kun rettshjelpsforsikring, også kalt boligkjøperforsikring, tegnes særskilt via megler. Rettshjelpsforsikringen varer i 5 år fra overtagelse og leveres gjennom Gjensidige. Ta kontakt med megler for ytterligere informasjon.
Selskap og privatpersoner som driver med kjøp/salg/utvikling som ledd i egen næringsvirksomhet kan ikke tegne boligkjøperpakke eller rettshjelpsforsikring.
Budgivning
Forbrukerinformasjon om budgivning er vedlagt denne salgsoppgaven og er også på vår hjemmeside Krogsveen.no. Alle bud og budforhøyelser må inngis skriftlig. I tillegg må legitimasjon være fremlagt sammen med signatur fra budgiver.
Vi oppfordrer til å gi bud elektronisk via GI BUD-knappen på eiendommens hjemmeside på Krogsveen.no. Da vil samtlige vilkår bli oppfylt.
Eventuelle forhøyelser eller endringer av budet kan bekreftes pr SMS eller på e-post. Vi oppfordrer alltid til å kontakte megler pr. telefon i tillegg da forsinkelser i SMS og e-post kan forekomme.
For at budene skal kunne bli behandlet og videreformidlet skriftlig til alle involverte parter, må alle bud ha en tilstrekkelig lang akseptfrist, jf. eiendomsmeglingsforskriften § 6-3.
Selger må også skriftlig akseptere budet før aksept kan formidles til budgiver. Akseptfrist bør derfor være på minimum 30 minutter, og budforhøyelser må derfor skje i god tid før fristens utløp.
Bud i forbrukerforhold kan uansett ikke settes med kortere frist enn kl. 12.00 første virkedag etter siste annonserte visning. I tillegg kan ikke budet ha forbehold om at det skal holdes hemmelig ovenfor øvrige interessenter. Megler har iht lov om eiendomsmegling ikke anledning til å videreformidle disse budene, og de vil dermed heller ikke bli journalført.
Etter at eiendommen er solgt vil kjøper og selger få tilsendt budjournal. Øvrige budgivere kan få utlevert kopi av budjournalen i anonymisert form.
Hvitvaskingsreglene
I henhold til lov om hvitvasking og terrorfinansiering har megler plikt til å gjennomføre kontrolltiltak overfor kunder, herunder fullmektiger. Dette innebærer bl.a. å bekrefte kunders og reelle rettighetshaveres identitet på bakgrunn av fremvist gyldig legitimasjon eller på annen godkjent måte, samt å innhente opplysninger om kundeforholdets formål og tilsiktede art.
Dersom slike kundetiltak ikke kan gjennomføres, kan megler ikke etablere kundeforholdet eller utføre transaksjonen.
Hvis kjøper ikke bidrar til gjennomføring av kundekontrollen og dette fører til at transaksjonen blir forsinket eller ikke kan gjennomføres, vil dette ansees som mislighold av avtalen og gi selger rettigheter etter avhendingslova kapittel 5. I tilfeller der selger ikke bidrar til gjennomføring av løpende kundekontroll underveis i oppdraget, er det selger som misligholder sine forpliktelser etter avtalen og gi kjøper rettigheter etter avhendingslovens kapittel 4. Partene er selv ansvarlige for eventuelle kostnader og ansvar dette kan medføre. Eiendomsmegleren eller eiendomsmeglingsforetaket kan ikke holdes ansvarlig for de konsekvenser dette vil kunne få for partene eller andre som har interesser i eiendomshandelen.
Kjøper oppfordres til å innbetale kjøpesummen som ikke kommer fra låneinstitusjon i én samlet innbetaling fra egen konto i norsk bank. Megler har plikt til å melde fra til Økokrim om eiendomshandler som fremstår som mistenkelige. Melding sendes Økokrim uten at partene varsles.
Personopplysningsloven
I henhold til personopplysningsloven gjør vi oppmerksom på at interessenter kan bli registrert for videre oppfølging.
Lovanvendelse
Generelle bestemmelser
Salgsoppgaven er basert på de opplysningene selger har gitt til megler, den bygningssakyndiges tilstandsrapport, samt opplysninger innhentet fra kommunen, Kartverket og andre tilgjengelige kilder. Det er viktig at kjøper setter seg grundig inn i alle salgsdokumentene, herunder salgsoppgave, tilstandsrapport og selgers egenerklæring. Kjøper anses kjent med forhold som er tydelig beskrevet i salgsdokumentene, og slike forhold kan ikke påberopes som mangler. Dette gjelder uavhengig av om kjøper har lest dokumentene. Alle interessenter oppfordres til å undersøke eiendommen nøye, gjerne sammen med fagkyndig før bud inngis. Kjøper som velger å kjøpe usett kan ikke gjøre gjeldende som mangel noe han burde blitt kjent med ved undersøkelsen.
Dersom det er behov for avklaringer, anbefaler vi at interessenter rådfører seg med eiendomsmegler eller egne rådgivere før det legges inn bud.
En bolig som har blitt brukt i en viss tid, har vanligvis blitt utsatt for slitasje og skader kan ha oppstått. Slik bruksslitasje må kjøper regne med, og det kan avdekkes enkelte forhold etter overtakelse som nødvendiggjør utbedringer. Normal slitasje og skader som nødvendiggjør utbedring, er innenfor hva kjøper må forvente og vil ikke utgjøre en mangel.
Kjøper og selgers rettigheter og plikter reguleres av avtalen mellom partene, samt informasjonen som har vært tilgjengelig for kjøperen i forbindelse med handelen. Avtalen utfylles av avhendingsloven, og det gjelder ulike avtalevilkår avhengig av om kjøper er forbrukerkjøper eller ikke. Dette er nærmere beskrevet nedenfor.
På grunn av ulike avtalevilkår kan selger vurdere bud fra en som ikke er forbruker, ulikt fra en forbrukers bud. Dersom kjøper ikke er forbruker, er selger sitt mulige mangelsansvar begrenset fordi eiendommen selges "som den er". Selger kan ikke ta «som den er»- forbehold overfor en forbrukerkjøper. Selv et lavere bud fra en som ikke er forbruker kan foretrekkes fordi begrensningen i mulig mangelsansvar kan ha egenverdi for selger. Selger står fritt til å forkaste eller akseptere ethvert bud, og er for eksempel ikke forpliktet til å akseptere høyeste bud.
Budgiver skal i budskjema avgi egenerklæring om budgiver er forbruker eller næringsdrivende/ person som hovedsakelig handler som ledd i næringsvirksomhet. Budgivere får informasjon dersom andre bud er inngitt av en som ikke er forbruker.
Forbrukerkjøp - definisjon
Med forbrukerkjøp menes kjøp av eiendom når kjøperen er en fysisk person som ikke hovedsakelig handler som ledd i næringsvirksomhet.
Forbruker – avtalevilkår
Eiendommen har en mangel dersom den ikke er i samsvar med kravene som følger av avtalen, eller det foreligger brudd på bestemmelsene i avhendingsloven §§ 3-2 til 3-8. Hvis eiendommen ikke er i samsvar med det kjøperen må kunne forvente ut ifra alder, type og synlig tilstand, kan det være grunnlag for mangelskrav. Det samme gjelder hvis det er holdt tilbake eller gitt uriktige opplysninger om eiendommen. Dette gjelder likevel bare dersom man kan gå ut ifra at det virket inn på avtalen at opplysningen ikke ble gitt eller at mangelskravet ikke blir rettet i tide på en tydelig måte.
Boligen kan ha en mangel etter avhendingsloven § 3-3 andre ledd, dersom det er avvik mellom opplyst og faktisk innvendig areal, forutsatt at avviket er på 2% eller mer og minimum 1 kvm.
Ved beregning av et eventuelt prisavslag eller erstatning må kjøper selv dekke tap/kostnader opptil et beløp på kr 10 000 (egenandel).
Ikke-forbruker (næringsdrivende) – definisjon
Hvis kjøper er en juridisk person, eller en fysisk person som hovedsakelig handler som ledd i næringsvirksomhet, vil kjøpet ikke anses som et forbrukerkjøp.
Ikke-forbruker – avtalevilkår
Eiendommen har en mangel dersom den ikke er i samsvar med kravene som følger av avtalen.
Eiendommen selges «som den er», og selgers ansvar utover det konkret avtalte er da begrenset etter avhendingsloven § 3-9, første ledd andre setning.
Avhendingsloven § 3-3 andre ledd fravikes, og hvorvidt boligens arealsvikt utgjør en mangel vurderes etter avhendingsloven § 3-8.
Informasjon om kjøpers undersøkelsesplikt, herunder oppfordringen om å undersøke eiendommen nøye, gjelder også for kjøpere som ikke anses som forbrukere.
Det forutsettes at hjemmel overføres til kjøper. Hvis kjøper ikke ønsker hjemmelsoverføring av eiendommen, må det tas forbehold om dette i budet.
Meglers vederlag
Meglers vederlag betales av selger og er avtalt til:
Vederlag: Kr. 45.000,- av salgssummen.
Tilrettelegging fra kr 17.000,-
Oppgjør: kr 7.500,-
Markedspakke: kr 27.400,-
Visninger: kr 2.500,- pr. visning
Oppslag eiendomsregister: kr 2.900,-
Megler har i tillegg krav på dekning av følgende utlegg:
Innhenting av off. opplysninger: kr 3.969,-
Tinglysing sikring kr 545,-
Eierskiftegebyr kr. 6.547,-
Innhenting av informasjon forretningsfører: 4.038,-
Boligfotografering inkl dronefoto + plantegninger kr 8.300,-
Tilstandsrapport kr. 12.000,-
Opplysninger om oppdraget
Oppdragsnummer 24-0043/25
Eiendomsmegler Krogsveen AS, avd. Årnes
Rådhusgata 26, 2150, ÅRNES
950 007 613
Oppdragets KR-kode KR24.2543
Dato
Sist oppdatert: 27. mai 2026 kl. 22:34
Dokumenter
Dokumenter
PDF – 115 KB
PDF – 312 KB
PDF – 29 KB
PDF – 127 KB
PDF – 392 KB
Område
Legg til steder som er viktige for deg
Visning
For å delta på visning, ber vi om at du melder deg på. Da sikrer vi at du får nødvendig informasjon og at det er satt av tilstrekkelig med tid. Kontakt megler dersom annet tidspunkt ønskes. Husk å lese salgsoppgaven før visningen, så du stiller forberedt. NB. Visning utgår dersom det ikke er noen påmeldte.
Ønsker du kun å bli holdt orientert, kan du fra eiendommens hjemmeside få varsel om solgtpris, eller kontakte megler.
Lurer du på noe?
Unngå doble boligrenter
Vi tilbyr gunstig forsikring.
Vurderer du utleie?
Få et tilbud fra Utleie KrogsveenHva koster lånet?
Sjekk estimert lånekostnadVil du varsles om lignende boliger?
Ved å lagre ditt boligsøk hos oss får du beskjed når vi har en bolig som ligner denne, før den legges ut på markedet!




